Artigo
Fernando Martínez Sanabria: operaciones proyectuales hacia la espacialidad del arquetipo ‘aula’
Fernando Martínez Sanabria: Key design operations towards the spatiality of the ‘room’ archetype
Fernando Martínez Sanabria: operaciones proyectuales hacia la espacialidad del arquetipo ‘aula’
Arquitetura Revista, vol. 14, núm. 2, pp. 136-150, 2018
Unisinos
Recepción: 26 Febrero 2018
Aprobación: 11 Julio 2018
RESUMEN: Este artículo trata sobre un proceso de transformación formal en una serie de casas en la ladera oriental de Bogotá, entre 1957 y 1963, basada en el sistema de crujías de muros. Un proceso motivado por la necesidad de encontrar un espacio común, interior e integrador en las casas, debido al cambio de emplazamiento de la sabana a la ladera. Lo anterior se realiza a través de un análisis, principalmente de las zonas sociales en su relación con el entorno próximo, la topografía y el paisaje. Adicionalmente se examinan nociones históricas y formales que preceden y se derivan de las operaciones proyectuales identificadas. Las operaciones proyectuales en las casas no implican un proceso sistemático, sino progresivos y significativos encuentros de Martínez sobre el papel del muro y los elementos comprometidos en esta espacialidad específica. Las transformaciones parten del estricto orden establecido por la crujía de muros, en el que se trasciende el sistema de partida hacia una versión particular del ‘aula’: un arquetipo espacial que mantiene el alto grado de cerramiento característico, pero se modifica su unidad y continuidad para aportar a esta nueva espacialidad el carácter particular de las estancias que se integran.
Palabras clave: Fernando Martínez Sanabria, Bogotá, Colombia, casas, arquitectura moderna, aula.
ABSTRACT: This article discusses the process of formal transformation in a series of houses in the eastern hillside of Bogotá, between 1957 and 1963, based upon a system of bays of walls. This was a process promoted by the need to find a common, interior and integrating space in these houses due to the site transition from the savannah to the hillside. The above is accomplished by performing an analysis focused on the social areas of the houses and their relation with the immediate environment, the topography and the landscape. Furthermore, historical and formal notions that precede or are derived from the key design operations identified are examined. The recurrence of key design operations in these houses does not imply a systematic process but progressive and significant findings by Martínez in relation to the role of the wall and elements involved in this specific spatiality. The transformations start from the strict order established by the system of bays of walls, transcending this system of origin towards a particular version of ‘room’: an archetype that maintains a characteristic high level of enclosure with an adaptation to its unity and continuity in order to contribute the particular character of the spaces that are integrated to this new spatiality.
Keywords: Fernando Martínez Sanabria, Bogota, Colombia, houses, modern architecture, room.
Introducción
El arquitecto colombo-español Fernando Martínez Sanabria (Madrid, 1925 - Bogotá, 1991) fue considerado uno de los más importantes de los años cincuenta y sesenta del siglo XX en Colombia (Arango, 1989; Niño 1999), gracias a una obra prolífica y variada que incluye viviendas, edificios institucionales e intervenciones sobre el espacio público como la remodelación de la Plaza de Bolívar en Bogotá (1960). Entre estos trabajos destaca el conjunto realizado en la ladera oriental de Bogotá, conformado por las casas Martínez (1957), Ungar (1960), Zalamea (1960), Wilkie (1962), Santos (1962), dos casas pareadas, y la casa Calderón (1963). Estas casas se localizan al norte del centro histórico de la ciudad, en un área de un radio no mayor a un kilómetro y en un punto intermedio de la montaña, con lotes en pendiente, los cerros a su espalda; y hacia el frente, la gran sabana sobre la que se asienta la ciudad.
Característica de las últimas casas de esta serie, por lo que son reconocidas, es la cubierta inclinada de teja de barro, el cerramiento de fábrica de ladrillo visto y una geometría de muros no paralelos y curvilíneos (Figura 1). La singularidad figurativa de estas casas, su adaptación a las condiciones particulares del lugar y a las tradiciones constructivas locales, motivó una valoración de la crítica y la historiografía que llevó a considerar a Martínez (junto con Rogelio Salmona) como uno de los mayores exponentes de una corriente orgánica de la arquitectura moderna en el país (Arango, 1989, p. 240).

El objetivo de este artículo contrasta con la valoración figurativa anterior, para enfocarse en un análisis sobre cuestiones de la disposición y la delimitación espacial. Estas cuestiones permiten trazar el proceso de transformación que seguimos hasta la casa Calderón, a través del cual comprender cómo se configura la noción particular del arquetipo aula. Para esto se atiende el sistema de crujías de muros que se distorsiona considerablemente sin desaparecer, provocando la integración de diferentes estancias sociales con la participación definitiva de la cubierta inclinada y el perímetro exterior, que antes quedaban marginados por la compartimentación de las crujías. El resultado de este proceso es el aula de la casa Calderón, representada en la perspectiva de Martínez, en el que la escena del interior se opone al paisaje de la sabana que se domina desde la casa (Figura 2).

La noción de aula
El espacio que denominamos como aula puede caracterizarse de la siguiente manera:
[…] un gran ámbito interior, unitario, continuo e intransitivo con el exterior. Se usa para calificar no el espacio en sí mismo, sino la propensión hacia las características de un espacio cerrado y cubierto, caracterizado por la sensación de interioridad, en el que se gradúa cuidadosamente su relación con el exterior (Erazo, 2016, p. 29).
Según Bonet, el término aula tiene un equivalente espacial y lingüístico en los halls reales – en ingles Royal Hall –, que ha sido traducido como aulas regias, denominando un espacio de los antiguos palacios que se acerca al significado del megarón (Bonet, 2007, p. 43), relacionado con la definición anterior de aula por su grado de cerramiento. En La arquitectura del humo, Bonet realiza un estudio sobre la evolución de la habitación principal que estructuró la casa en el área Atlántica: “lo que se denomina en distintas lenguas hall, halle, halla, saal, aula, términos que expresan un espacio arquitectónico […] designando una habitación grande donde se pueden realizar múltiples funciones” (Bonet, 2007, p. 13).
Lo anterior puede relacionarse también en términos de la delimitación espacial, con la noción de Armesto sobre el aula, quien la considera junto con el porche y el recinto como tres elementos arquetípicos2. Según Armesto, con base en estos elementos es posible responder a la pregunta sobre cómo y de cuántas maneras se puede delimitar el espacio tridimensional de la experiencia (Figura 3): el porche niega la dimensión vertical para afirmar la extensión horizontal del espacio, el recinto niega la extensión horizontal para afirmar la extensión vertical, y el aula niega ambas, para afirmar un mundo interior propio de iglesias y teatros, entre otros, que pueden ser considerados como aulas (Armesto, 2011). Para él:
[…] los rasgos sustanciales de cada uno de estos tres elementos fueron definidos de manera arquetípica y definitiva en la arquitectura griega de la antigüedad y, con ellos, el tipo de relación con el universo que cada uno propone […]. Algunos elementos de la arquitectura griega se identifican con los elementos lógicos primitivos: el megarón, es el aula arquetípica; la stoa es el arquetipo del pórtico y el temenos materializa la idea del recinto (Armesto, 1993, p. 65).

La metodología que sigue el análisis se enfoca principalmente en las operaciones de carácter lógico-formal del proyecto –sobre la disposición y la delimitación espacial–, que se abordan en los Resultados de este artículo. Este apartado se desarrolla con la revisión de las casas de Veraguas (sabana), y las casas Martínez, Santos y Calderón (ladera), para plantear después, en la Discusión, relaciones analógicas. En los Resultados nos ocupamos del aspecto sintáctico de las relaciones entre los espacios y sus elementos, y en la Discusión, de las correspondencias entre las operaciones proyectuales identificadas y la biografía de Martínez, su actividad artística, las tradiciones del hall, el Open planning y el Shingle Style, y la manera como esto lleva a formular una versión particular del aula.
Por razones de la extensión del análisis se omiten las casas Ungar, Zalamea y Wilkie, considerando que aspectos principales de las dos primeras pueden representarse con la casa Martínez; y de la tercera, con las casas Santos y Calderón.
Resultados
Casas económicas de Veraguas (1956): el aula, de la sabana a la ladera
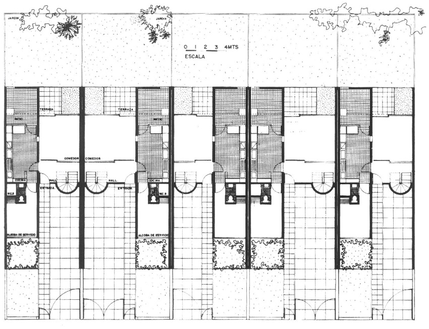
Martínez trabajó desde 1951 como profesional independiente en casas unifamiliares y pequeños conjuntos en hilera con base en el sistema de crujías de muros de carga paralelos. Casas emplazadas en la sabana, en topografías planas, que permanecen confinadas entre las medianeras del lote, con vistas próximas proyectadas hacia el patio posterior como su único espacio principal de integración (Figura 4)3.

La dedicación de Martínez al sistema constructivo de muros debió llevarlo a encontrar una primera noción del aula en las casas económicas de Veraguas, uno de sus últimos proyectos en la sabana de Bogotá antes de pasar a la ladera oriental (Figuras 5 y 6). En estas casas convierte una de las crujías en un gran ‘hall’ de doble altura: un espacio distribuidor que reúne todas las circulaciones, y una solución en que la zona social y la privada, y con ello toda la casa, por primera vez queda integrada y volcada hacia este gran ámbito interior que el aula representa. A diferencia de las casas anteriores de la sabana, en las casas de Veraguas el espacio interior no se proyecta al exterior del patio posterior, ni a la calle con la que se relaciona la zona social. El espacio de integración pasa al interior, al gran hall que logra reunirlo todo en un espacio análogo al aula. El término hall se trata aquí en principio igual al vestíbulo – el espacio que en las casas sirve como distribuidor –, pero se presenta en un proceso que lo lleva a convertirse en un aula. Hall y aula comparten caracteres relacionados con la unidad y continuidad espacial, pero son distintos, pues en la obra de Martínez el hall tiende a proyectar el espacio al exterior, lo que contrasta con el aula.

Conocida la experiencia de Martínez en la sabana, en la ladera se plantea la siguiente disyuntiva: cómo lograr una forma de integración espacial semejante a las casas económicas de Veraguas, pero ahora en estos nuevos encargos de la ladera donde la forma de vida discrimina la relación entre las zonas sociales y las privadas. La manera como resuelve esto se presenta a lo largo de las casas que se analizan, en un proceso donde las operaciones proyectuales se concentran en las zonas sociales porque es allí, según Martínez, donde se manifiesta su consideración de la casa como la expresión de una “vida comunal de integración”.
[…] es esa vida comunal de integración de lo que significaba ese espacio nuevo llamado casa […]. Entonces empezó el interes muy grande de ver cómo podiamos resolver […] esa integración, para que ese nuevo espacio resultante […] tuviera todas las virtudes que la gente que iba a habitarlas se merecía (Martínez, 1992, p. 73).
Casa Martínez (1957)
En este año, Martínez realiza en la ladera oriental de Bogotá la casa que compartirá con sus padres, que será el inicio de la serie de siete casas hasta 1963.
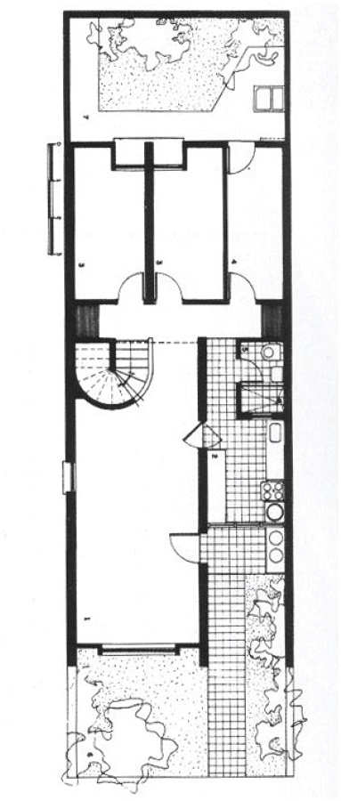
Esta casa se considera la referencia para todas las posteriores por establecer un patrón con el que se inicia el proceso de transformación. La gran operación proyectual que la caracteriza consiste en definir una organización espacial categórica de tres partes – con base en la crujía de muros –, paralela a las medianeras en sentido oriente-occidente, en dirección a los cerros y el paisaje de la sabana (Figuras 7 y 8). Las razones históricas y culturales que soportan esta decisión se abordan en la Discusión.


Por su emplazamiento en la ladera y su implantación en lotes con pendiente orientados hacia la sabana, en esta casa el patio posterior queda en un nivel inferior respecto al acceso. Esto provoca que la zona social se localice en un nivel próximo a éste, donde supere la altura del patio y establezca una relación directa con el paisaje de la sabana (Figura 9). Separada la zona social del recinto del patio posterior, que era el principal espacio de integración de la casa en la sabana, en adelante las operaciones consisten en llevar el espacio de integración exterior al interior – y en este caso al centro del sistema de crujías –, destinando este centro para un hall a todo lo largo de la crujía, proyectado al exterior. Desalojado el centro, se aloja el programa de la casa en las crujías laterales y se determina que el centro es la crujía de acceso y distribución de la casa.

En la zona social, los cuadrantes de la estructura tripartita alrededor del hall adoptan una organización con un programa básico de espacios que siguen las casas de la ladera: estudio, salón, comedor y cocina. Eventualmente una logia hacia el paisaje y un porche en el acceso. Este patrón establece un orden disponible para lo que será un juego combinatorio en el que se intercambian, amplían, desplazan y rotan estancias alrededor del hall. En él convergen todos los espacios contiguos, y, gracias a sus aberturas enfrentadas, se produce una integración transversal que aporta profundidad lateral, contrarrestando la dirección longitudinal del hall que contribuirá en adelante a configurar el aula. En el hall y lo largo de él se concentran y alinean principalmente las escaleras, comprimiendo y dilatando la experiencia del recorrido a lo largo del hall, y otros elementos que participarán en sus transformaciones posteriores.
El conjunto de El Refugio
Las cuatro casas que corresponden a este conjunto para familias emparentadas no se superponen al terreno, se encajan produciendo un desmonte y terraplenado que produce plataformas y recintos (Figura 10). Así, las zonas sociales recuperan la relación con el suelo, con plataformas creadas frente a la casa y en relación directa con el paisaje de la sabana. Esta plataforma es un espacio de extensión de la zona social que no se define como recinto, porque queda enbalconado por un antepecho sobre su vecino, en un nivel inferior.

Casas Santos (1962)
En esta casa, el desmonte y terraplenado provoca sendos patios posteriores y laterales, y una gran plataforma que va a permitir una mayor extensión y proyección de la zona social sobre el perímetro exterior, y sobre el frente que mira a la ciudad (Figura 11). El resultado es una planta tripartita con el hall central, donde la zona social es semejante a la casa Martínez, con los cuatro cuadrantes de espacios alrededor del hall. Gracias a que la cocina se desaloja, incrustándose contra el terreno, es la primera vez que todos los espacios de este cuadrilátero son susceptibles de ser integrados (Figura 12). El acceso a la plataforma donde está la zona social se produce desde un nivel inferior y contra la pendiente del terreno en dirección opuesta al paisaje, donde el eje visual se proyecta hasta el patio posterior. En estas casas, el mismo eje se proyecta también en la dirección opuesta recuperando la mirada sobre la ciudad. Así se logra también, por primera y única vez, reunir oriente y occidente en el hall de la casa, reduciendo la oposición acostumbrada entre el frente y su espalda.


Al igual que en la casa Martínez, al final del hall donde entrega la escalera hacia el patio posterior, se crea una doble altura que vincula la zona social con la privada de habitaciones. Pero, en este caso, se incluye allí la escalera de servicio que vincula todos los niveles de la casa (Figura 13). La escalera se magnifica y adquiere todo el protagonismo, convirtiéndose en un eje de rotación para recuperar la dirección de la mirada hacia el paisaje. Se señala así la importancia del hall en este punto como un centro de ejes visuales: el longitudinal, en las dos direcciones hacia la sabana y el patio posterior; el transversal, entre estudio y comedor; y uno diagonal, entre estudio y salón. Producto de retirar los muros de la crujía central del contacto con el cerramiento hacia el paisaje, el hall pasa a ser rodeable con un circuito alrededor de los muros de la escalera de acceso.

Circunvalar la escalera de acceso y el conjunto de espacios de la planta social provoca una experiencia del perímetro del cerramiento interior que colabora en la integración de todas las estancias. Esto, sin que desaparezcan los muros que definen cada uno de los espacios, pero reduciéndose a planos fuertemente recortados que, por efecto de los ejes visuales en diferentes direcciones, provocan el aspecto de elementos flotantes en el interior (Figura 14). En este caso, los ejes transversales y diagonales buscan, más que una proyección al exterior, descomponer el eje longitudinal de mayor jerarquía, para extender la sensación de interioridad del hall a toda la planta, enfatizando la contención del espacio interior.

El juego distributivo de los espacios alrededor del hall se desarrolla aquí ampliamente: el estudio ocupa toda una crujía, con lo cual se desplaza el salón a la posición del comedor y este desaloja la cocina del cuadrilátero. Movimientos entre los cuadrantes de la planta que llevan, finalmente, a que espacios como el estudio y el salón entren en adyacencia.
Casa Calderón (1963)
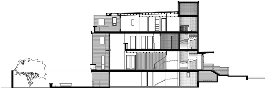
Respecto a la operación de desmonte y terraplenado, común a las casas anteriores que permite implantarlas en los lotes, en esta casa se presenta una gran diferencia. El nivel de la planta social no se pone sobre la plataforma del terreno, sino sobre la planta de las habitaciones que sirve de plataforma a la zona social. Ésta queda ahora plenamente en contacto directo con la cubierta, que se convierte en la máxima protagonista de los elementos que contribuyen a la integración del interior. Pese a la irregularidad del lote se introduce la estructura tripartita en la planta, con el acceso central y modificaciones a los cuadrantes alrededor del hall, afectando la posición de la cocina. Pero se mantienen las relaciones transversales de integración acostumbradas entre sala y comedor, por la doble altura de este último, que pasa a un nivel inferior junto con la cocina (Figura 15). Sobre el hall se inician, entonces, una serie de operaciones que configuran el aula: la cubierta inclinada corta la extensión horizontal del eje visual principal a lo largo del hall central, que establecía la relación con el paisaje, y las relaciones transversales entre las estancias no se proyectan a los recintos exteriores. Estas contravenciones al hall, que es el principal dispositivo de relación con el sitio, llevan esta casa a una mayor contención e integración del espacio interior.

Aunque el hall se siga reconociendo por la existencia de su eje longitudinal (que en este caso la atraviesa en picado, a través de la doble altura del hall de habitaciones), se diluye fuertemente entre las estancias adyacentes por varias operaciones: la reducción de muros que rompen su paralelismo en diferentes direcciones fraccionando su directriz, y el espacio intermedio del hall que separa las estancias se ocupa y estrecha con la escalera y la chimenea. Estas pasan ahora al centro de la planta formando un volumen convexo. Colabora también a esta disolución la creación de vistas oblicuas hacia las estancias laterales y hacia el exterior, que se descubren al avanzar (Figuras 16 y 17).


La zona social se descompone en tres niveles distintos para cada una de las estancias: estudio, salón y comedor, que acentúan la dimensión vertical del espacio, junto con el elemento convexo central de la escalera y chimenea. Esto otorga mayor protagonismo a la cubierta, que ahora se extiende por toda la zona social, reemplazando el papel de reunión e integración que ha perdido el hall. Colabora que la chimenea y la escalera se reúnen en el centro, en un cuerpo convexo, que concentra el espacio a su alrededor permitiendo rodearlas, de forma completa, al menos visualmente, en el recorrido que vincula hall, salón y estudio.
En la casa Calderón, la integración que se desarrolla al interior pasa al exterior, donde se busca a través de la continuidad de las superficies de cerramiento y cubierta englobar todas las piezas en un gran volumen. Con ello se llega a explotar plenamente en esta casa la ductilidad y naturaleza material común de la mampostería de ladrillo y la teja de barro (Figura 18).

Discusión
Genealogía del hall
Descritas las operaciones lógicas, interesa entender las operaciones analógicas, es decir, las correspondencias con otras arquitecturas que hacen parte de la biografía de Martínez y de su cultura arquitectónica, que le llevan a adoptar una forma de organización espacial con base en el hall.
En 1938, Martínez llega a Bogotá junto con su familia. Se instalan en los barrios ecléctico-historicistas donde arriendan una casa que les permite recibir ‘a la manera francesa’ a intelectuales presentados por personajes de la política local (Zalamea et al., 2008, p. 18). Ocupan una casa con la salle des pas perdus, un hall o espacio de recibo propio de las casas burguesas que ordena la casa a su alrededor (Figura 19). El precedente de este tipo de casa lo representa la quinta suburbana que proliferó en Bogotá durante las primeras décadas del siglo XX. Una casa aislada, de tres partes con acceso por un hall central, que se considera el modelo de la modernización de la casa en Colombia, por la especialización de espacios alrededor del hall (Arango, 1989, p. 147-149, 177-178) (Figura 20).


Estas casas, inicialmente de recreo, pasaron a ser primeras residencias conformando importantes vecindarios, en su mayoría de estilo inglés, caracterizados por cerramientos de fábrica de ladrillo y cubiertas inclinadas de teja de barro, con pendientes pronunciadas utilizadas como mansardas. Una de ellas fue el espacio que se reservó Martínez en estas casas hasta su paso a la ladera4.
La influencia de los modos de vida, principalmente europeos, fue determinante en la adopción de estos modelos que tuvieron una importante referencia en la tradición del hall en la arquitectura inglesa. Prueba del interés de Martínez por el hall y su valor como espacio intermedio se halla en la atención que le merecía la casa Monticello de Thomas Jefferson, de influencia palladiana. Y es conocida la incidencia que la arquitectura de Palladio tuvo en la transformación del hall en Inglaterra: de un espacio central de permanencia al de pasaje, orientado hacia el paisaje (Bonet, 2007, p. 91). En su estudio sobre la villa, Ackerman se refiere a Jefferson como arquitecto y a esta relación con Palladio, cuando dice:
Jefferson estuvo influido, seguramente, por la estética de Burke como por la descripción del emplazamiento de su villa Rotonda, cerca de Vicenza, como un “teatro”, sugerida por el hecho de que Monticello es precisamente la palabra que emplea Palladio para describir el lugar (Ackerman, 1997, p. 233).
Monticello está en un promontorio que contempla un valle – al igual que la casa Martínez en la ladera, con vista a la sabana –, y tiene una estructura tripartita con hall central de acceso, transitivo hacia el paisaje (Figura 21). Martínez se refiere a esta casa en un foro, donde trata un hecho particular análogo a la estructura general de la casa: la relación entre tres espacios que conforman el salón – habitación - estudio de Jefferson, con la cama en el centro, desde la que domina los espacios adyacentes (Figura 22). Para Martínez, esto representa la forma de integración espacial que buscó en sus casas en la ladera de Bogotá (Martínez, 1992, p. 73-76).


Los ejemplos anteriores llevan a reconocer los atributos que recoge la organización espacial de la casa Martínez, a partir del hall, como modelo para las transformaciones: la concentración de la casa ecléctico - historicista, el orden tripartito de la casa quinta y la orientación frente al paisaje de la casa palladiana; aparte de la afinidad que guarda el hall con el sistema constructivo de crujías de muros y la forma de habitar que su familia – con quienes compartirá la casa –, había experimentado en la sabana.
Interioridad y transparencia fenoménica
En su texto De los escalones de entrada al cuarto de estar5, Aalto advierte de una forma de interioridad provocada por el hall como un dispositivo.
[…] El hall inglés es una de las formas de ordenación interior de las casas y de su espacio de entrada. […] Aquel cuarto amplio y espacioso, con su chimenea, suelo rustico y tratamiento diferenciado al del resto de las habitaciones, conlleva, no obstante, una función psicológica. Es el símbolo del espacio exterior bajo el propio techo de la casa, remotamente emparentado con el patio de la casa patricia pompeyana, cuyo techo real es el cielo (Aalto, 2000, p. 69-74).
Para Aalto, un espacio propio del exterior ha quedado interiorizado en el hall, de la misma manera como en la casa Martínez – por efecto de la topografía en la ladera –, el recinto exterior que antes servía como espacio de integración en la casa de la sabana ha pasado al interior, al espacio intermedio del sistema tripartito. Aalto se ocupa en su artículo de explicar que no se trata de un problema del límite entre interior y exterior lo que cualifica al hall, sino de su posición.
Si se retoma esta reflexión y se vuelve sobre la casa Santos, se verá la importancia de las operaciones proyectuales practicadas sobre la organización espacial de la zona social, para que la crujía central acentúe su condición de espacio intermedio rodeándola, y logre que las estancias entren en contigüidad. Esta integración espacial se ha conseguido por un acento sobre el umbral, representado por las perforaciones en los muros que crean múltiples puntos de vista al interior. Una apreciación inicial llevaría a pensar que esto produce una proyección del espacio interior al exterior, cuando ocurre algo inverso: una concentración de muros por efecto de su recorte, que provoca su vista simultánea, como una forma de transparencia interior.
Esta operación puede comprenderse mejor si nos remitimos a la práctica artística de Martínez, en un bodegón al óleo de 1952 (Figura 23). Los diferentes objetos del cuadro pueden verse unos a través de otros, sin que la transparencia busque acercarnos al fondo, sino a su presencia simultánea, al igual que en la casa Santos (Figura 18).

Un fenómeno que Rowe denomina como transparencia fenoménica6 para distinguirla de la literal, y que describe de la siguiente manera señalando el valor que adquiere para este efecto la organización espacial.
Si vemos dos o más figuras que se sobreponen y cada una de ellas reclama para sí la parte superpuesta que les es común, nos encontramos ante una contradicción de las dimensiones espaciales. Para resolverla, debemos asumir la presencia de una nueva cualidad óptica. Las figuras en cuestión están provistas de transparencia: es decir, pueden interpretarse sin que se produzca una destrucción óptica de ninguna de ellas. Sin embargo, la transparencia implica algo más que una mera característica óptica; implica un orden espacial mucho más amplio. La transparencia significa la percepción simultánea de distintas locaciones espaciales. […] (Rowe, 1980, p. 156).
La transparencia fenoménica no es un hecho anecdótico en el tipo de espacio que desarrolla Martínez, sino el resultado de una operación que acentúa la interioridad de la casa por contraste con su grado de apertura y proyección al exterior. La transparencia fenoménica que se produce provoca una ampliación espacial, generando un interés contemplativo del interior alternativo al paisaje.
La proximidad al Open planning y el Shingle Style
En las casas de Martínez, la integración del interior se fundamenta en la intervención sobre el muro. Un elemento de soporte, pero sobre todo de delimitación del orden espacial tripartito que llega, por progresivas modificaciones, a comprometer el cerramiento y la cubierta. Es el caso de la transformación que experimenta el prisma ortogonal de fábrica de ladrillo visto, desde su casa en la ladera hasta la casa Calderón. En este sentido, las operaciones proyectuales de sus casas se distancian de la idea de planta libre, propia del sistema dominó – bandejas rígidas y pilotes, donde se independiza el soporte del cerramiento –, y se acercan más a la tradición inglesa y americana del Open planning y el Shingle Style. Nos referimos a la planta abierta y fluida, y al estilo de tablilla de cobertura, respectivamente, y a la influencia que se produce en ambas direcciones entre los arquitectos de Inglaterra y los Estados Unidos, durante la segunda mitad del siglo XIX, que incidirá en la formación de la arquitectura moderna.
El caso de Baillie Scott, en Inglaterra, ejemplifica características principales del Open planning, en que la disposición espacial y la intervención sobre los muros transforman un sistema análogo de crujías paralelas para lograr la concatenación de diferentes estancias alrededor del hall (Figura 24). Por su parte, el Shingle Style, empleado en las casas americanas, se extiende por la superficie de cerramiento y cubierta llevando al exterior, la continuidad y unidad formal alcanzada con el Open planning (Figuras 25a y 25b). A esto se refiere Scully cuando dice que
Los arquitectos de la generación de finales de 1870 vieron ciertas posibilidades, y problemas, en el diseño de nuevas construcciones domésticas: cómo desarrollar a fondo las posibilidades espaciales del salón hall (living hall), las grandes áreas de vidrio y las logias; cómo expandir el uso de la tablilla de cobertura, en que sus posibilidades de continuidad pudieran expresar mejor las continuidades ahora posibles en el espacio interior (Scully, 1971, p. 71, traducción del autor).


Al igual que con la casa Monticello de Jefferson, la vía por la que Martínez pudo asimilar esta tradición sigue vinculada a la influencia del hall, que en sus casas se convierte en un espacio promotor de las transformaciones. La importancia de lo anterior puede resumirse en lo que Bonet señala al respecto del Open planning y del Shingle Style. Primero se refiere a que fue en la planificación (entiéndase organización espacial, respecto al papel que cumple el hall como espacio articulador de las demás estancias) donde se produce el aporte más importante para lograr el Open planning, que considera la innovación más significativa de la casa aislada desde la época del pintoresco (Bonet, 2007, p. 115). Después trata el papel del Shingle Style:
En síntesis, las características del Shingle Syle, cuya visión a partir de entonces toman los arquitectos más importantes del Movimiento Moderno, son la horizontalidad y como contrapunto la verticalidad, la interrelación de espacios y la concretización de áreas funcionales, así como la visión escenográfica y dinámica del espacio a través de los recorridos, principalmente de las escaleras, y, sobre todo, la posibilidad de ensamblar y componer todos estos elementos libremente sin modelos previamente establecidos por tipologías históricas, sino por necesidades concretas o por determinismos del lugar (Bonet, 2007, p. 117).
El aula intersticial
En el proyecto construido de la casa Calderón, Martínez se encarga de controvertir la promesa de unidad de la perspectiva del interior. Acentúa con el cielo raso de madera que recubre el interior de la cubierta inclinada, la individualidad de las estancias que la componen (Figura 26). Es lo que se observa en la comparación de las dos secciones sobre el salón y el estudio, donde la continuidad del intradós de la cubierta de la primera se pierde en la segunda, por la aparición de un dintel y los pliegues del cielo raso. Aunque se introduzca esta discontinuidad, se intensifica la integración de los espacios por la tensión que provoca su compartimentación. Esta paradoja que se experimenta en la casa Calderón, en que la interferencia del muro, del pliegue, es una condición necesaria para que se produzca esta forma de integración espacial discontinua, tiene una clara expresión en la etimología de la interioridad de la que se ocupa Teyssot, a través de Heidegger, quien recuerda que intimus es el superlativo de (L.) interior:
El medio de dos es intimidad –en latín, inter–. La correspondiente palabra en alemán es unter, en inglés, inter. La intimidad del mundo y la cosa no es una fusión. La intimidad se obtiene solo donde lo íntimo –el mundo y la cosa– se dividen claramente y se mantienen separados (Heidegger 1975:203). Lo inter del interior es así creado, no por la unidad de las cosas, sino por su separación (Teyssot, 2005p. 105, traducción del autor).

Esto es lo que nos lleva a proponer que la idea de aula de Martínez en la casa Calderón, pueda denominarse como intersticial7, donde existe la voluntad de producir un conjunto espacial de diferentes estancias cohesionadas e integradas por la compartimentación.
Conclusión
Es posible reconocer a través del proceso de transformación que la definición de hall de Bonet, como “la gran habitación donde se pueden desarrollar múltiples funciones”, se aproxima al resultado de las operaciones proyectuales practicadas por Martínez que conducen al aula (Figura 27).

Y es destacable que Martínez en este proceso, a pesar de las transformaciones a las que somete las casas, no abandone el orden espacial de tres crujías y el hall como promotor de las transformaciones (Figura 28). Por esto, el recorrido a lo largo de las casas de la ladera puede llegar hasta la casa Calderón, donde se contravienen las principales operaciones desarrolladas hasta este momento para afirmar la experiencia del aula. Esto confirma el carácter introvertido del espacio interior, no tanto por un mayor grado de cerramiento, como por el cambio en las relaciones de la experiencia del espacio en el que no se renuncia a la contemplación del paisaje, se aplaza su encuentro. En este proceso no se llega a una espacialidad unitaria ni continua, lo que conduciría a la desaparición del muro y, en consecuencia, a la planta libre de sus contemporáneos. Lo que se produce es una versión del aula que denominamos intersticial, compuesta por estancias diferenciadas que mantienen su identidad dentro del conjunto, integradas por la manipulación del muro y la superficie. Esto representa para nosotros una renovación de nociones de la interioridad y la integración espacial, subordinadas por la atención que mereció la búsqueda de la transparencia y la proyección al exterior, en este momento histórico8.

Referencias
AALTO, A. 2000. De los escalones de entrada al cuarto de estar. In: G. SCHILDT (ed.), Alvar Aalto: de palabra y por escrito. Madrid, El Croquis, p. 69-74.
ACKERMAN, J. 1997. La villa: forma e ideología de las casas de campo. Madrid, Akal, 368 p.
ARANGO, S. 1989. Historia de la arquitectura en Colombia. Bogotá, Universidad Nacional de Colombia, 291 p.
ARMESTO, A. 1993. El aula sincrónica: Un ensayo sobre el análisis en arquitectura. Barcelona, Espanha. Tesis de doctorado. Universidad Politécnica de Cataluña, 165 p.
ARMESTO, A. 2011. La forma objetiva y el concepto de tradición en arquitectura. Bogotá, Seminario (Inédito). Universidad Nacional de Colombia, Museo de Arquitectura Leopoldo Rother, enero 31 a febrero 3.
BONET, Y. 2007. La arquitectura del humo. Barcelona, Fundación Caja de Arquitectos, 173 p.
COLOMINA, B. 1995. Intimidad y espectáculo: Arquitecturas domésticas de Loos y Le Corbusier. Arquitectura Viva, 44:18-24.
ERAZO, A. 2016. Fernando Martínez Sanabria: De la crujía de muros paralelos a la espacialidad del aula. Cali, Universidad de San Buenaventura, 335 p.
GREAT BUILDINGS. 2018. Great Buildings.com. Disponible en: http://www.greatbuildings.com/cgi-bin/gbc-drawing.cgi/Monticello.html/Monticello_Floor_Plan.html. Acceso: 13/12/2018.
MARTÍNEZ, F. 1992. Cuadernos Proa 14, La casa - la vivienda. Conferencia de clausura del foro. Bogotá, Proa, 80 p.
MONTICELLO. 2018. Monticello.org. Disponible en: https://www.google.com/maps/@38.0102433,-78.4522494,2a,90y,152.83h,86.88t/data=!3m6!1e1!3m4!1sCM6ga_z-XjqX9vzSpCIM5A!2e0!7i13312!8i6656. Acceso: 13/12/2018.
NIÑO, C. 1999. Fernando Martínez Sanabria y la arquitectura del lugar en Colombia. Bogotá, Banco de la Republica/El Ancora, 93 p.
NIÑO, C.; MONTENEGRO, F.; BARRETO, J. 2000. Fernando Martínez Sanabria: Trabajos de Arquitectura. 3ª ed., Bogotá, Escala, 213 p.
PARRA, C. 2010. Articulando continuidad. Espacio abstracto y espacio percibido en la casa Calderón de Fernando Martínez Sanabria, 1963. Bogotá, Universidad Nacional de Colombia, Punto Aparte, 182 p.
ROWE, C. 1980. Transparencia: literal y fenomenal. In: Manierismo y arquitectura moderna y otros ensayos. Barcelona, Gustavo Gilli, p. 155-177.
SALDARRIAGA, A. 1996. Casa moderna. Bogotá, Villegas, 279 p.
SCULLY, V. 1971. The Shingle Style and Stick Style: Architectural Theory and Design from Richardson to the Origins of Wright. New Haven and London, Yale University Press, 184 p.
TEYSSOT, G. 2005. A Topology of Thresholds. Home Cultures, 1(2):89-116. https://doi.org/10.2752/174063105778053427
ZALAMEA, A.; MONTENEGRO, F.; VELÁSQUEZ, R. 2008. Fernando Martínez Sanabria. Bogotá, Molinos Velásquez, 192 p.
Notas
Notas de autor
*aferazo@usbcali.edu.co