Case report
Impresión 3D como Herramienta Didáctica para la Enseñanza de Algunos Conceptos de Ingeniería y Diseño
3D Printing as a Didactic Tool for Teaching some Engineering and Design Concepts
Impresión 3D como Herramienta Didáctica para la Enseñanza de Algunos Conceptos de Ingeniería y Diseño
Ingeniería, vol. 23, núm. 1, pp. 70-83, 2018
Universidad Distrital Francisco José de Caldas
Recepción: 18 Agosto 2017
Recibido del documento revisado: 27 Noviembre 2017
Aprobación: 05 Diciembre 2017
Resumen
Contexto: La impresión 3D se puede utilizar para una amplia gama de tareas, como el diseño y prueba de prototipos y productos terminados, en un tiempo más corto. En ingeniería mecánica, los diseños de prototipos se generan continuamente en actividades de clase académica y proyectos de cursos finales por parte de estudiantes y docentes. Sin embargo, los estudiantes muestran limitaciones en la comprensión de los conceptos abstractos representados por dichos diseños.
Método: En primer lugar, se fabricó una impresora 3D a gran escala con especificaciones técnicas mejoradas en comparación n con las opciones de mercado tradicionales y precios similares. Mediante herramientas de hardware y software gratuitas y materiales de fabricación alternativos fáciles de obtener, fue posible disminuir sus costos de fabricación n y operación n. Se preparó un conjunto de casos de estudio que utilizan la impresora 3D en tres clases de asignaturas diferentes los cuales fueron evaluados en dos cohortes de estudiantes de un programa académico de Ingeniería Mecánica.
Resultados: Se mostró la factibilidad de fabricar una impresora 3D practica y rentable para la construcción de prototipos y piezas que beneficien el aprendizaje y la enseñanza en áreas de ingeniería y diseño. Los experimentos llevados a cabo en tres asignaturas de cursos de ingeniería con estudiantes de segundo año, mostraron una tendencia similar de mejorar las calificaciones promedio del curso, observada durante dos cohortes en diferentes semestres.
Conclusiones: Este tipo de impresora 3D de bajo costo representa un beneficio académico como herramienta didáctica para el proceso de aprendizaje en temas de ingeniería y diseño. El trabajo futuro considerara la aplicación de esta herramienta a otros cursos y asignaturas para evaluar aún más su conveniencia y efectividad.
Palabras clave: Enseñanza de ingeniería+ impresión 3D+ proceso de aprendizaje+ creación rápida de Prototipos.
Abstract
Context: 3D printing can be used for a wide range of tasks such as the design and testing of prototypes and finished products in a shorter time. In mechanical engineering, prototype designs are continuously generated in academic class activities and final coursework projects by students and teachers. However, students show limitations while understanding the abstract concepts represented with such designs.
Method: Firstly, a large scale 3D printer with improved technical specifications compared to traditional market options and similar price, was fabricated. By means of free software and hardware tools and easy-to-obtain alternative manufacturing materials, it was possible to decrease its manufacturing and operating costs. Then a set of study cases utilising the 3D printer in three different subject classes were designed and tested with two cohorts of students of Mechanical Engineering programme.
Results: It was feasible to fabricate a cost-effective and practical 3D printer for constructing prototypes and pieces that benefit teaching and learning concepts in engineering and design areas. The experiments carried out in three subjects of engineering courses with second-year students, showed a similar trend of improving the average course grades, as it was observed in two cohorts in different terms.
Conclusions: This type of low cost 3D printer obtained academic advantages as a didactic tool for the learning process in engineering and design subjects. Future work will consider applying this tool to other courses and subjects to further evaluate its convenience and effectivity.
Keywords: Engineering teaching, 3D printing, learning process, rapid prototyping.
1. Introducción
Tradicionalmente, el estudio y la enseñanza están limitadas a la unilateralidad de la información y a la bidimensionalidad del papel o, en escenarios más modernos, a la de una pantalla, olvidando que gran parte de las temáticas tratadas son representaciones de eventos y elementos que pertenecen a un universo tridimensional; estudiantes y docentes, aun los que dominan las temáticas de sus clases, no consiguen formar una imagen mental del tema porque desconocen elementos físicos con que relacionarlos, dificultando la recepción y retención del mensaje, causando, cuando más, un recuerdo provisional del contenido tratado.
Es importante, sobre todo en las ingenierías y las áreas de diseño, contar con material didáctico para ofrecer a los estudiantes problemas y situaciones reales con los que interactúen y tengan que analizar y dar una respuesta a ello; este material fortalece habilidades mecánico-espaciales y asociativas, además de fomentar la educación basada en problemas, que es, a su vez, educación basada en el estudiante, rompiendo la unilateralidad de la información. Se pretende que el docente, indiferentemente de su área de conocimiento, disponga de una máquina que pueda fabricar este material didáctico, que en sí misma sea un elemento de trabajo y que sus características le permitan evolucionar, fortaleciendo significativamente la forma en que se enseña al estimular el aprendizaje significativo y romper el círculo vicioso de enseñar como generalmente se enseña.
La fabricación digital y el diseño digital integrados a la producción física se han vuelto un componente medular en la educación de un arquitecto, artista y diseñador, sin embargo, las habilidades técnicas inherentes al software CAD/CAM estándar la mayoría de las veces son tomadas como un tema avanzado [1]. Las herramientas CAD/CAM, son compatibles con los formatos que se necesitan para exportar e imprimir en 3D.
Uno de los principales retos en el uso de las tecnologías como apoyo a la educación es superar la resistencia al cambio por parte de los profesores de educación convencional, pero no se trata de refutar con las nuevas tecnologías antiguos programas educativos, sino de diseñar y aplicar modelos pedagógicos de innovación que orienten a los alumnos hacia las competencias que necesitaran para adaptarse en un mundo que ya es digital [2]; con esta tecnología, el docente podrá crear nuevas herramientas didácticas de aprendizaje y el estudiante podrá comprender fácilmente muchos temas que quizás son abstractos o difíciles de comprender.
En el ámbito educativo, la impresión 3D ya se ha incorporado en varios proyectos de investigación y entornos de laboratorio. De aquí a los próximos cuatro o cinco años, las impresoras 3D se utilizaran cada vez más en el arte, el diseño, la fabricación y las ciencias para crear modelos en 3D que ilustren conceptos complejos o arrojen luz sobre ideas y diseños novedosos, incluso moléculas químicas y orgánicas [3].
El Reino Unido (UK), en particular Inglaterra, entre sus políticas ha incluido el fomento del prototipo rápido por impresión 3D, ver por ejemplo el informe del Departamento de Educación “Reforming qualifications and the curriculum to better prepare pupils for life after school” [4], en el cual específicamente se propone la impresión 3D para impulsar la enseñanza de la ciencia, la tecnología, la ingeniería, las matemáticas y el diseño (STEM, por sus siglas en inglés) [4].
Michael Gove, el secretario de estado para la educacion en Reino Unido en el periodo 2010-2014, se refirió a la revolución que la impresión 3D está causando a nivel industrial y la necesidad de incluirla en el plan de estudios, pero en las pruebas con instituciones piloto se destacó el potencial que tiene en la enseñanza y aprendizaje de las ciencias como la física, las matemáticas, la química, entre otras, al permitir hacer realidad un concepto o idea en poco tiempo, haciendo de esta tecnología una herramienta poderosa, capaz de aumentar el interés por las matemáticas y otras ciencias al evidenciar su relación con el diseño [5].
Inglaterra no es en el rúnico país en que se invierte esfuerzo y recursos en la propagación del uso del prototipo rápido con fines formativos, también se están llevando a cabo este tipo de iniciativas en instituciones educativas de menor cobertura como Bulimba Creek State High School en Carindale, Australia, como respuesta a la situación pedagógica sociocultural consecuencia de la reforma educativa australiana Digital Education Revolution, que orienta a la apropiación tecnológica de la educación; esta iniciativa pedagógica busca que los estudiantes sean los gestores de su propio conocimiento a través de la exploración de sus intereses, la experimentación y la socialización de las experiencias, mediante el modelamiento y la simulación, pero para poder brindar esa experimentación tangible se requiere tecnología de impresión 3D, llevándolos a escenarios de autoaprendizaje basados en “que pasa si”, fortaleciendo su curiosidad contrarrestando los efectos perjudiciales la enseñanza basada estrictamente en libros [6].
Park Hyeong Yeol habla de cómo Corea, a pesar de ser un país densamente poblado, pequeño y con falta de recursos naturales, ve en la educacion la clave de su futuro, pues ha sido el modo en que este país ha logrado hacer crecer su economía; aparentemente lo rígido del sistema educativo centrado en el aprendizaje de memoria está disminuyendo la creatividad y la curiosidad de los alumnos, según Yeol esto va a cambiar y las impresoras 3D van a estar involucradas. El doceavo Education Korea Expo en enero de 2015, cuyo tema de este año era A Guide to New Education (una guía para nueva educación), apoyado por el Ministerio de Educación de Corea y el Instituto de Diseño Sustentable y Ambiente Educacional de Corea, por primera vez en su historia incluyo entre sus pabellones la impresión 3D, al estar siendo tenida en cuenta significativamente por el gobierno coreano con fines industriales y comerciales; sin embargo, Corea quiere recuperar la creatividad y la curiosidad perdidas debido a su modelo educativo estimulando estos aspectos desde la infancia, ya que son esenciales en el aprendizaje de las ciencias, la tecnología, ingeniería y matemáticas, donde la impresión 3D puede tener un rol decisivo para este proceso [7], [8].
Por otra parte, en Colombia la impresión 3D ya se conoce, pero no a profundidad como en otros lugares del mundo; por lo tanto, en general se desconoce el potencial que esta tecnología tendría a largo plazo [9]. Desde la academia colombiana se empieza a identificar a la impresión 3D como una tecnología con un potencial alto de impacto en la enseñanza de la ingeniería, entre otras tecnologías [10]. En la Universidad Nacional, en el libro Aprendizaje basado en problemas en ingeniería: teoría y práctica, se reporta a la impresión 3D como perteneciente a un conjunto de tecnologías emergentes que determinara hacia donde la ingeniería debería cambiar y evolucionar; además, como esto indudablemente modificara los planes de estudio de ingeniería y la manera de educar a los futuros ingenieros [11]. Sin embargo, es difícil encontrar en la literatura científica, reportes de uso de esta tecnología como generadora de herramientas didácticas. En la Universidad Distrital, se reporta un caso interesante de aplicación de solidos impresos en 3D en el aprendizaje de la asignatura de dibujo en ingeniería, y se reportan mejoras significativas en el aprendizaje y desempeño de los estudiantes [12]. En Colombia es más frecuente la utilización de la impresión 3D desde emprendimientos que ofrecen los servicios de prototipado y capacitación en el uso de esta tecnología.
Se describen tres casos puntuales de la utilización de una impresora 3D para la generación de material didáctico y experiencias didácticas en las asignaturas de: Dibujo I, Lógica de Programación y Cálculo, que hacen parte del currículo de ingeniería mecánica de la Universidad Santo Tomas. Además, se presentan los resultados obtenidos de las experiencias, con los que se puede observar una tendencia de mejora en el proceso de aprendizaje de los estudiantes.
2. Materiales y métodos
El propósito de esta investigación de tipo descriptivo es demostrar los beneficios de la inclusión de la impresión 3D y el prototipado rápido en el aula de clase, lo anterior para el desarrollo y afianzamiento de conceptos de ingeniería y áreas de diseño. En esa medida, se utilizan dos impresoras 3D implementadas en experiencias de investigación anteriores desarrolladas por parte del semillero de investigación en prototipado rápido y manufactura digital, una de ellas es una impresora tipo Mendel Max con un volumen de impresión de 20x20x 15 cm y la otra es una impresora con un diseño más robusto una topología cartesiana construida con perfiles de aluminio dispuesta en forma cubica que permite un mayor volumen de impresión (35 x 35 x 30 cm) y la facilidad de intercambio de herramientas, no solo para impresión 3D sino también para corte y fresado. La Figura 1 muestra la maquina fabricada para el desarrollo del proyecto.

El proceso de investigación se resume en dos etapas: generación y empleo de material didáctico y la evaluación de la experiencia.
2.1. Generación y empleo de material didáctico
En primer lugar, se capacito a los docentes de las asignaturas mencionadas en el diseño y fabricación de material didáctico empleando impresión 3D y posibilidades de generación de experiencias didácticas con la herramienta; esta capacitación se centró en la utilización de herramientas CAD y en la utilización de las impresoras, que incluye interacción en la interfaz de usuario, la calibración y ajuste de los parámetros de impresión, entre otros. Los docentes diseñaron y generaron material didáctico y talleres de experiencias didácticas para contenidos específicos en las materias Dibujo 1: geometría descriptiva, Calculo integral: sumas de Riemann y Lógica de Programación. A continuación, se describe el ejercicio desarrollado en cada asignatura.
2.1.1. Dibujo 1: geometría descriptiva
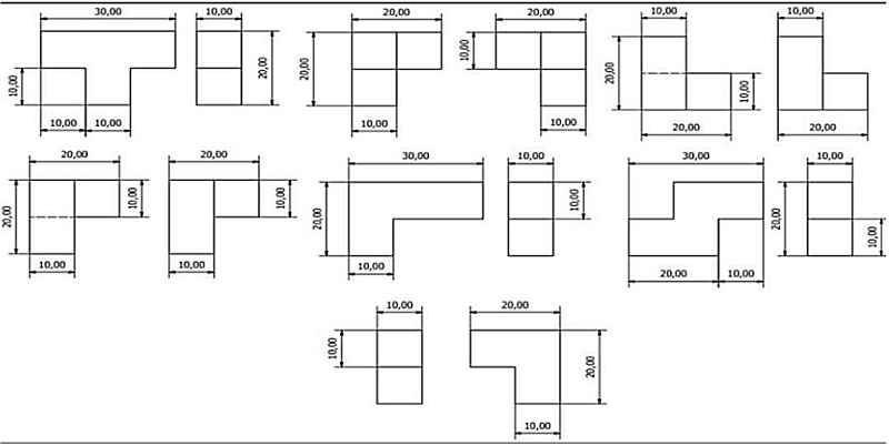
Esta asignatura es de segundo semestre del programa de ingeniería mecánica y contaba para el semestre 2017-1 con 30 estudiantes. Los contenidos objeto del experimento fueron los asociados con geometría descriptiva, donde se orienta a los estudiantes como representar objetos del espacio tridimensional en superficies bidimensionales haciendo uso de técnicas geométricas. Esta materia en la institución tradicionalmente se ha desarrollado haciendo uso de papel y modelos CAD; sin embargo, el desarrollo de memoria espacial, capacidad de abstracción y asociación no se ve muy estimulado por estos recursos, ya que no existe interacción con los objetos reales. La propuesta fue hacer uso de la impresión 3D para fabricar los modelos a escala real y entregarlos a los estudiantes para identificar las formas y medidas reales, generando así las proyecciones en dos dimensiones de manera adecuada y, con esto, componer un modelo 3D para realizar el ensamble de las piezas. Los modelos empleados para la actividad son los mostrados en la Figura 2.

2.1.2. Cálculo Integral: sumas de Riemann y la definición de integral
La integración es un concepto fundamental del cálculo, la cual se basa en la posibilidad de concebir la suma de manera generalizada como una infinidad de áreas o volúmenes infinitamente pequeños. Una forma simple de definir la integral de una función sobre un intervalo es a través de la integral de Riemann, que consiste en la descomposición de un área definida bajo una función en secciones rectangulares y como el ancho de estas secciones incide de manera directa en la precisión del área obtenida frente al área real. Este contenido tiene repercusiones directas en teorías de control digital que son tratados en octavo semestre, y comúnmente es necesario reforzar este tema conllevando un atraso en el cronograma de actividades. La propuesta para este contenido fue diseñar un programa en OpenScad que genera material didáctico para imprimir en 3D sumas de Riemann para ecuaciones bidimensionales; un ejemplo del material fabricado esta exhibido en la Figura 3, con aproximaciones de 5, 10, 20, 50 y 100 rectángulos de la función expresada en la ecuación 1, los modelos fueron diseñados y fabricados a escala 1:1 empleando milímetros como unidad.


Estos modelos son llevados al aula, donde en lugar de realizar una explicación previa del tema, se entrega el material y se pide a los estudiantes que calculen el área de cada uno de los rectángulos y la suma de estas para los diferentes casos; posteriormente, concluir que sucede con el área individual de cada rectángulo y realizar una comparación entre el área calculada por los estudiantes en cada caso con el área real para, al final, construir la definición del tema.
2.1.3. Lógica de Programación para Ingeniería Mecánica: introducción a la algoritmia y nociones de control numérico
Esta asignatura hace parte del programa de ingeniería mecánica en su segundo semestre; el objetivo de este contenido es desarrollar la capacidad de usar instrucciones ordenadas para obtener resultados deseados. La propuesta para este contenido es que los estudiantes, siendo de ingeniería mecánica, usen GCODE propio de máquinas de control numérico para realizar un trazado correspondiente a un diseño propuesto por el docente; para esto, fue necesario diseñar con ayuda del software de diseño OpenScad, para posteriormente fabricar, un utensilio simple que permitiera convertir una impresora 3D en un plotter 2D con ayuda de un plumón como se muestra en la Figura 4.

2.2. Evaluación de la experiencia
Para validar los resultados de la propuesta, se realizó una comparación entre los resultados académicos de los contenidos tratados previos a la inclusión de las herramientas didácticas (2016-2), en confrontación con los obtenidos después de la utilización de las herramientas (2017-1 y 2017-2), teniendo en cuenta el promedio general, la mortalidad académica y las observaciones del docente en cuanto a su experiencia. Por otra parte, se aplicó un cuestionario-encuesta a los estudiantes que cursaron las asignaturas de Calculo Integral, Lógica de Programación para Ingeniería Mecánica y Dibujo 1, para así medir el grado de aceptación y el impacto de la impresión 3D y el prototipado rápido en el ámbito académico.
El grupo objetivo de los estudios fueron los estudiantes de segundo semestre de la Facultad de Ingeniería Mecánica matriculados en las tres asignaturas: once estudiantes de Lógica de Programación, catorce de Dibujo I y veintiséis de Calculo Integral, para un total de 51 en el periodo 2017-1. Para el semestre 2017-2 se evaluaron 27 estudiantes de Lógica de Programación, 33 de Dibujo I y 33 de Calculo Integral, para un total de 93 inscritos. Se diseñó un cuestionario estructurado en diez ítems, con el fin de conocer la percepción y apreciación sobre esta herramienta didáctica.
Esta encuesta fue aplicada en junio de 2017 y en noviembre de 2017, Las preguntas de la encuesta fueron cerradas y se contestaba marcando “sí” o “no". Adicionalmente, se dejaba un espacio al final de la encuesta para que el estudiante expresara sus comentarios generales sobre el uso de esta herramienta o la estrategia didáctica utilizada. Los resultados se analizaron a través del programa Excel, que permite realizar estadística descriptiva, visualizar el análisis de forma gráfica y numérica.
Encuesta realizada a los estudiantes de ingeniería mecánica (Universidad Santo Tomas, Tunja)
¿Considera que la impresión 3D es útil en su formación profesional?
¿Cree usted que la impresión 3D se puede aplicar como apoyo en asignaturas de ingeniería mecánica?
¿La impresora 3D es indispensable para las asignaturas de diseño?
¿El uso de la impresión 3D le permitió comprender mejor los temas de la asignatura?
¿La impresión 3D motiva a su imaginación para llegar a la innovación?
¿Cree usted que el uso de la impresión 3D, le sirve de herramienta didáctica al profesor?
¿Este tipo de herramienta satisface sus expectativas como estudiante al compararla con otros métodos?
¿Considera útil la impresora 3D para los proyectos finales de asignatura?
¿Considera que la impresora 3D disponible es la adecuada como herramienta didáctica para las asignaturas de diseño?
¿Le gustaría el próximo semestre seguir utilizando la impresora 3D para las asignaturas de diseño?
3. Resultados
3.1. Dibujo 1: geometría descriptiva
Para los periodos 2017-1 y 2017-2, la actividad se desarrolló en dos sesiones. La primera, los estudiantes tomaron las piezas individuales que conforman un cubo y realizaron los dibujos de las vistas con sus cotas como se muestra en la Figura 5.

En la Figura 6 se observa el modelo CAD de cada pieza desarrollada por uno de los estudiantes a partir de los sólidos impresos en 3D; este proceso se realizó en el software Inventor y la visualización de los resultados en OpenScad.


En la segunda sesión, los estudiantes ensamblaron las piezas modeladas digitalmente con ayuda del software Autodesk Inventor para formar un cubo. Los estudiantes se apoyaron en el modelo físico para construir su asociación con el digital.
En la discusión con el docente que dirigió la práctica sobre su experiencia, tanto en 2017-1 como en 2017-2, se resaltó que la actividad mostro resultados interesantes, pues en comparación con semestres previos a la incorporación de la herramienta, los estudiantes se mostraron más receptivos y con pocas dudas conceptuales, resultando más fácil alcanzar las competencias básicas propuestas para el tema a través del uso del material didáctico. Se observó que los estudiantes lograron construir sus propios conceptos, garantizando significativamente la apropiación de estos conocimientos. Los resultados fueron similares en el periodo 2017-2 para la misma actividad, sin embargo, la actividad se desarrolló de forma más fluida debido a la experiencia previa del docente al momento de dar las instrucciones iniciales y el apoyo durante la ejecución.
Por otra parte, observando el histórico de calificaciones de los grupos para segundo corte en los tres periodos académicos, se observa una mejora en la calificación promedio de los estudiantes como se observa en la Tabla I.

3.2. Cálculo Integral: sumas de Riemann y la definición de integral
Comparando las calificaciones obtenidas en promedio por los estudiantes en el corte correspondiente a la realización de la actividad, no se observa un efecto importante sobre estas; sin embargo, el docente manifiesta interés de los estudiantes por su desarrollo. En la Tabla II se observan los promedios de calificación para la asignatura en los periodos comparados.

3.3. Lógica de Programación para Ingeniería Mecánica: introducción a la algoritmia y nociones de control numérico
Para los periodos 2017-1 y 2017-2, la metodología de aplicación de la actividad se realizó de forma individual brindando cinco minutos por persona en cada sesión durante dos sesiones, tiempo aproximado que le toma a la impresora realizar el trabajo; en la primera sesión, ejecutaron las instrucciones que previamente tenían preparadas e identificaron los errores cometidos en la secuencia de instrucciones, los cuales debían ser corregidos para la segunda sesión. La calificación de la actividad se basó en el número de errores cometidos en la segunda actividad con respecto a la primera.
La Figura 8 muestra la impresora 3D funcionando como plotter 2D durante la ejecución de la actividad los estudiantes mostraron un elevado interés en el ejercicio.

Una vez familiarizados con el uso de una máquina de control numérico, se realizó una práctica similar pero con la maquina cartesiana de mayor volumen, capaz de soportar diversas técnicas de fabricación como fresado, corte laser, corte de plasma e impresión 3D, en este caso se efectuó corte de plasma de modo similar a la actividad del plumón (Figura 9); para esto, se adaptó la antorcha de una cortadora de plasma manual y se controló la operación de la misma a través de una salida a relé con la que cuenta la impresora. En esta actividad los estudiantes mostraron interés en el ejercicio.

En relación con el desempeño académico, este experimento mostrar resultados similares al ejercicio de geometría descriptiva, donde se aprecia una tendencia de mejora en los promedios obtenidos por los estudiantes en los dos semestres donde se utiliza la impresora como herramienta de enseñanza (Tabla III).

3.4. Análisis del cuestionario-encuesta
Del cuestionario-encuesta el resultado obtenido de las diez preguntas se compilo en la Figura 10, donde se puede ver de eje vertical las respuestas dadas en porcentaje y en eje horizontal las diez preguntas del cuestionario.

En la primera pregunta, el 78 % de los estudiantes respondió que sí consideran que la impresión 3D es útil en su formación profesional y solo el 22 % no la considera útil; la mayoría considera que sí es importante ya que se proyectan o consideran que pueden utilizar esta herramienta en un futuro en su vida profesional. En la segunda pregunta, el 69 % de los estudiantes considera que la impresión 3D se puede aplicar en asignaturas de ingeniería mecánica y el 31 % considera que no; algunos estudiantes consideran que no se puede aplicar, quizá porque no conocen completamente el plan de estudios ni el contenido temático de las asignaturas, otros consideran que solo se puede aplicar en asignaturas de diseño mecánico.
En la tercera pregunta, el 51 % de los estudiantes considera que sí es indispensable la impresora 3D para las asignaturas de diseño y el 49 % que no. En la cuarta pregunta, el 96 % de los estudiantes considera que el uso de la impresión 3D le permitió comprender mejor los temas de la asignatura y solo al 4 % no, esto indica que sí fue relevante el uso de la impresora para el aprendizaje. En la quinta pregunta, el 90 % de los estudiantes considera que la impresión 3D motiva a su imaginación para llegar a la innovación, esto es muy importante para los estudiantes que pertenecen a los semilleros de investigación y para los que se perfilan como futuros investigadores e innovadores.
En la sexta pregunta, el 78 % de los estudiantes considera que el uso de la impresión 3D sí le sirve de herramienta didáctica al profesor, ya que le facilita la enseñanza y la comprensión -por parte de los estudiantes- de algunos temas complejos. En la séptima pregunta, el 92 % de los estudiantes considera que esta herramienta sí satisface sus expectativas como estudiante al compararla con otros métodos, ya que conlleva a que la clase sea dinámica, el estudiante interactúe con sus compañeros y el docente logre sacar sus dudas al mostrar y permitir manipular los objetos vistos en sus clases teóricas. En la octava pregunta, el 88 % de los estudiantes considera que sí es útil la impresora 3D para los proyectos finales de asignatura, ya que en muchos casos necesitan elementos o piezas difíciles de conseguir y en la impresora fácilmente las pueden construir.
En la novena pregunta, el 53 % de los estudiantes considera que la impresora 3D disponible sí es la adecuada como herramienta didáctica para las asignaturas de diseño y el 47 % considera que no; de acuerdo a las observaciones dadas por algunos estudiantes, existen impresoras más grandes, diversidad de materiales y de fácil acceso. En la décima pregunta, el 86 % de los estudiantes responde que sí le gustaría el próximo semestre seguir utilizando la impresora 3D, para las asignaturas de diseño, seguir construyendo nuevos productos, innovar y perfeccionar el manejo de esta máquina.
4. Discusión y conclusiones
Las experiencias de aula empleando impresión 3D en los periodos 2017-1 y 2017-2, crearon un precedente en la forma de obtener y utilizar material didáctico especializado en la Universidad Santo Tomas, abriendo puertas para la formación de una cultura de generación de material didáctico y productos de clase entre los docentes de la Facultad de Ingeniería Mecánica. Para 2018 se esperan incorporar al proyecto las asignaturas de Procesos de Manufactura I y II, Biomecánica, Dibujo II e Instrumentación y Control, aunque en las dos últimas asignaturas, más que material didáctico para la orientación de contenidos, los estudiantes tendrán la posibilidad de fabricar prototipos para prótesis, ortesis, estructuras para actuadores electromecánicos, entre otros.
Con respecto a los resultados obtenidos durante los experimentos realizados para Calculo Integral en la temática sumas de Riemann y la definición de integral, el experimento no consiguió alterar el generalizado bajo rendimiento de los estudiantes que cursan esta materia, lo que abrió la discusión sobre la modificación de la metodología de aplicación y la inclusión de mas temáticas apoyadas en la impresión 3D como operaciones entre funciones y su integral, solidos de revolución, que involucra aproximación por discos y cascarones cilíndricos. El primer cambio a la metodología de aplicación de la estrategia didáctica será involucrar a los estudiantes con el diseño de los modelos y su fabricación, para esto se dispondrá de impresoras 3D compactas y portátiles que se encuentran en desarrollo con este único propósito.
El equipo investigador decidió utilizar encuestas y entrevistas para la medición de efectos y resultados de la aplicación de este tipo de recursos didácticos durante 2017-1 y 2017-2, pues fueron los tónicos docentes involucrados de forma permanente con la propuesta; sin embargo, para etapas futuras del proyecto se está organizando la realización de exámenes diagnósticos iniciando el periodo inmediatamente siguiente al de la aplicación de la herramienta, aunque hacerlo ha implicado superar obstáculos como los cronogramas de actividades propuestos para cada semestre con el fin de realizar los test, la participación de los docentes ajenos del proyecto didáctico, la permanencia de los docentes que aceptan participar en los experimentos, entre otros.
Referencias
[1] Gannon, M., & Brockmeyer, E., Teaching CAD/CAM Work flows to Nascent Designers. 2014.
[2] E. Rua, “Aprendizaje interactivo de termodinámica de fluidos apoyado en las tecnologías de la información y comunicación”. Revista respuestas, Vol. 19, N0 2, 2014, pp 41-50.
[3] NMC Horizon Report, “Edición sobre educación superior”. 2013. La impresión 3D, [En línea]. Disponible en:go.nmc.org/app.
[4] UK Department for Education and The Rt Hon Michael Gove, New 3D printers to boost STEM and design teaching. 2013, October, 19. [En línea]. Disponible en: https://www.gov.uk/government/news/new-3d-printers- toboost-stem-and-design-teaching
[5] UK Department for Education, 3D printers in schools: uses in the curriculum (Enriching the teaching of STEM and design subjects), 2013.
[6] Fisher, T., The Professional Practice of Educators. Cyber-learning - Modelling & simulation. Australia, 2014.
[7] Yeol, P. H. , 3D printing teaches Korean educators at the Korea Edu expo. 2015, February 7. [En línea]. Disponible en: http://3dprintingindustry.com/2015/02/07/3d-printing-teaches-korean-educators-koreaedu-expo/
[8] Yeol, P. H. , 3D printing teaches Korean educators at the Korea Edu expo. 2015, February 7. [En línea]. Disponible en: http://3dprintingindustry.com/2015/02/07/3d-printing-teaches-korean-educators-koreaedu-expo/
[9] Solis, M., “Uso didáctico de impresoras 3D en el ámbito educativo en Colombia”. Revista RedES, vol. 2, 2016.
[10] Mariño, O., “Fortalecimiento de la enseñanza de la ingeniería con las tecnologías de información y comunicaciones”. Revista de Ingeniería Universidad de los Andes, vol. 39, 2013, pp. 46-49
[11] Rodríguez, F., Aprendizaje basado en problemas en ingeniería: Teoría y práctica. Aalborg, Aalborg Universitets forlag, 2017.
[12] Tristancho, J., Contreras, L. y Vargas, L., “Propuesta y aplicación de nuevas herramientas para el desarrollo de habilidades espaciales en la asignatura Dibujo de Ingeniería”. Revista Universidad Católica del Norte, vol. 46, 200-216, 2015. [En línea]. Disponible en: http://revistavirtual.ucn.edu.co/index.php/RevistaUCN/article/view/709/1236
Notas
Notas de autor
Correspondence: edwin.rua@usantoto.edu.coCorrespondence: fernando.jimenez@usantoto.edu.coCorrespondence: german.gutierrez@usantoto.edu.coCorrespondence: nelson.villamizar@usantoto.edu.co