Resumo: Inserido essencialmente no campo conceituai e projetual das cooperativas habitacionais uruguaias, este artigo tem como objetivo verificar de que modo e com que intensidade estão presentes as propostas do cenário crítico internacional dos anos 1950 e I960, em relação à cidade funcionalista, nas estratégias projetuais do Complexo Habitacional Bulevar Artigas. Para este estudo, o cenário é protagonizado principalmente pelos grupos Team 10 e Metabolistas, e defende-se aqui que, em um contexto inicialmente positivo dado pelo sistema cooperativo, as reverberações dos princípios desses grupos foram de grande contribuição para o êxito desse conjunto em termos de apropriação dos espaços pelos moradores e de uma compreensão geral, por parte desses, de seu habitat. As autoras verificaram os limites e as potencialidades dessas propostas teóricas, assim como seu diálogo com a vida contemporânea, por meio da observação da "realidade" do conjunto habitacional.
Palavras-chave: arquitetura social uruguaia, espaço urbano, movimento moderno, projeto de habitação, teoria arquitetônica.
Resumen: Inserido esencialmente en el campo conceptual y proyectual de las cooperativas de viviendas uruguayas, este artículo tiene como objetivo verificar de qué modo y con qué intensidad se presentan las propuestas del escenario crítico internacional de los años 1950 y I960, en relación con la ciudad funcionalista, en las estrategias proyectuales utilizadas en el Complejo Habitacional Bulevar Artigas. Para este estudio, el escenario es protagonizado principalmente por los grupos Team 10 y Metabolistas, y se defiende aquí que, en un contexto inicialmente positivo dado por el sistema cooperativo, las reverberaciones de los principios de estos grupos fueron de grande aporte para el éxito de ese conjunto en términos de apropiación de los espacios por los habitantes y de una comprensión general, por parte de estos, de su hábitat. Las autoras averiguaron los límites y potencialidades de esas propuestas teóricas, así como su diálogo con la vida contemporánea a partir de la observación de la "realidad" del conjunto de viviendas.
Palabras clave: arquitectura social uruguaya, diseño de vivienda, espacio urbano, movimiento moderno, teoría arquitectónica.
Abstract: This article is essentially inserted in the conceptual and projectual field of Uruguayan housing cooperatives, and its objective is to verify how and with what intensity the proposals of the international critical scenario of the 1950s and 1960s are presented, in relation to the functionalist city, in the projectual strategies used in the Bulevar Artigas Housing Complex. For this study, the scenario is mainly played by the groups Team 10 and Metabolistas, and it is argued here that, in an initially positive context given by the cooperative system, the reverberations of the principles of these groups were a great contribution to the success of this complex in terms of appropriation of the spaces by the inhabitants and of a general understanding, on their part, of their habitat. The limits and potentialities of these theoretical proposals, as well as their dialogue with contemporary life, could be verified through the observation of the "reality" of the housing complex by the authors.
Key words: architectural theory, housing project, modern movement, urban space, Uruguayan social architecture.
Proyecto arquitetônico y urbano
Complexo Habitacional Bulevar Artigas, Uruguai: proposta de cidade a partir da crítica do segundo pós-guerra
Complejo Habitacional Bulevar Artigas, Uruguay: propuesta de ciudad desde la crítica de la segunda posguerra
Bulevar Artigas Housing Complex, Uruguay: a city proposal based on the critique of the second postwar period
Recepção: 05 Dezembro 2019
Revised document received: 15 Setembro 2021
Aprovação: 14 Outubro 2021
O presente artigo apresenta parte dos resultados da investigação de Ritter (2019) -no âmbito de mestrado em Arquitetura e Urbanismo- sobre estratégias projetuais empregadas nos conjuntos habitacionais realizados no contexto das Cooperativas Habitacionais Uruguaias. A hipótese deste trabalho é que um dos aspectos fundamentais para o êxito das propostas -em termos de apropriação e uso dos espaços comunitários- foi o contato que os arquitetos projetistas estabeleceram com a cultura urbanístico-arquitetônica do segundo pós-guerra.
No texto aqui apresentado, detivemo-nos na análise do conjunto Bulevar Artigas, investigando 0 grau de manifestação da crítica à cidade funcionalista, estabelecida a partir dos anos 1950, no projeto do objeto arquitetônico e do espaço coletivo.
O Complexo Habitacional Bulevar Artigas (Figura 1), projeto dos arquitetos Arturo Villaamil (1947), Héctor Vigliecca (1940), Ramiro Bascans (1936) e Thomas Sprechmann (1940), foi idealizado e construído entre 1971 e 1974, em região central da capital do Uruguai, Montevidéu. Considerado atualmente un bien de interés departamental do país, o conjunto é fruto do sistema cooperativo habitacional uruguaio, institucionalizado no fim dos anos 1960 pela Ley de Vivienda, Lei 13.728, de 17 de dezembro de 1968. Com forma de propriedade coletiva e modo de poupança e empréstimo1, o processo, que contou com a participação dos moradores em todas as etapas de execução, foi acompanhado pela equipe de arquitetos, pelos assistentes sociais, pelos advogados, entre outros sujeitos que compunham o Instituto de Assistência Técnica Centro Cooperativista Uruguaio.

Os arquitetos que projetaram o Bulevar Artigas, todos formados na Facultad de Arquitectura, Diseño y Urbanismo/Universidad de la República (FADU/UdelaR), Uruguai, no final dos anos 1960 e começo dos anos 1970, eram jovens profissionais que, junto aos seus colegas de geração, estavam mergulhados em um contexto de crítica à cidade funcionalista, como indicam os pesquisadores Almeida e Pintos (2015), Blechman e Casaravilla (2012), Risso e Boronat (1992), Vallès (2015). Desde os anos 1950, haviam-se intensificado os questionamentos à idéia de cidade que se consolidou a partir do IV Ciam e que foi amplamente divulgada pela Carta de Atenas: uma cidade que, rompendo com grande parte das categorias da cidade tradicional, caracterizava-se pela rígida organização funcional e pela alta densidade demográfica, e era pontuada por edifícios de grande altura em grandes espaços homogêneos e indiferenciados.
Em entrevista (Moreira & Almeida, 2019), Héctor Vigliecca conta que a proximidade com Buenos Aires e sua produção extraordinária, que se dava a partir de uma releitura do pensamento europeu do momento, propiciaram aos uruguaios o contato com essa revisão do Movimento Moderno. Declara também que sua estadia de três anos na Europa logo depois de formado consolidou sua formação -a partir do conhecimento do pensamento e das obras de arquitetos como Aldo Rossi, o casal Smithson e Aldo van Eyck-, embasada na valorização das preexistências e do homem inserido em seu contexto e em sua cultura.
Embora o Team 10 seja uma referência central nesse contexto, outras manifestações críticas e ideologicamente semelhantes desse mesmo período -os Metabolistas, Archigram, Jane Jacobs e Christopher Alexander, por exemplo- já eram relativamente conhecidas na América Latina e, mais especificamente, em Montevidéu. Os projetos do Archigram -a Plug-In City e suas estruturas móveis e a Instant-City- e o projeto para a Baía de Tóquio, do metabolista Kenzo Tange, por exemplo, conforme indicam Méndez e Bermúdez (2015), eram referência nas aulas dos então professores de projeto da FADU/UdelaR: Villaamil, Vigliecca, sob a direção de Bascans e Sprechmann.
Por sua vez, o próprio Sprechmann recorda, em relato relativamente recente, que o projeto do conjunto Bulevar se constituiu como uma pioneira ruptura no país, com relação ao que se vinha projetando com inspiração no Movimento Moderno, e o filia à arquitetura metabolista (Fernández, 2015).
Enfim, o contexto do sistema cooperativo proporcionou um grande laboratório para esses jovens arquitetos experimentarem uma base teórica que, pouco a pouco, nas mais diversas formas e por meio das mais diversas fontes, iam adquirindo. Esse contexto se constituiu também em uma oportunidade de trabalho para profissionais que, através de uma gestão mais democrática no canteiro de obras, apostavam em uma cidade com espaços qualitativamente mais generosos e mais passíveis de despertar sentimento de pertencimento em seus habitantes.
Este estudo se organiza metodologicamente a partir do pressuposto de que o espaço projetado no conjunto habitacional em estudo é resultado da reverberação de um arcabouço teórico-conceitual, que se formatou no segundo pós-guerra. Além disso, constitui-se a partir de um olhar diferenciado sobre o homem em vida comunitária, a partir da comunhão de preceitos gerais da arquitetura moderna com realidades e idiossincrasias locais.
Assim, a primeira etapa da investigação consistiu em identificar os conjuntos conceituais (Panerai et al., 2013) que embasaram as decisões de projeto dos principais grupos protagonistas da crítica do pós-guerra, a partir de uma ampla e aprofundada revisão teórica em referências bibliográficas gerais sobre o tema e, essencialmente, a produzida pelos próprios arquitetos.
Desse arcabouço teórico, foram então retirados os temas fundamentais de análise do conjunto Bulevar, formando uma espécie de roteiro que aborda a urbanização nos seus diversos níveis ou escalas. Estudos gráficos e redesenhos - tomando como base fontes primárias gráficas obtidas no Instituto de História da Arquitetura, da já citada FADU, e na própria cooperativa do conjunto em estudo -, assim como observação e levantamentos realizados in loco constituem a base do estudo realizado. Por fim, completam a análise e permitem um ajuste das conclusões os estudos do uso atual dos espaços coletivos e as conversas com moradores.
Entre as várias proposições teóricas e projetuais que iam sendo incorporadas nos projetos dos arquitetos uruguaios, as propostas do Team 10 - sob a liderança de Alison e Peter Smithson e Aldo Van Eyck - e as dos Metabolistas - estes também participantes, embora mais esporadicamente, das discussões do primeiro grupo - mostram-se como as mais fundamentais. Em todas elas havia, por um lado, a busca por uma cidade que fosse projetada a partir de um olhar mais próximo do dia a dia de um habitante real e, por outro, a preocupação com a concepção de uma cidade - ainda que muito grande - compreensível e, assim, apropriável por seus moradores.
O casal inglês Alison Smithson (1928-1993) e Peter Smithson (1923-2003) se destacou a partir do IX CIAM, de 1953, quando apresentaram a grelha Urban reidentification, com fotos de Nigel Henderson, nas quais mostraram a apropriação da rua por parte das crianças em um bairro de Londres, colocadas ao lado das categorias casa, rua, bairro e cidade -a hierarquia de associações humanas- como base da proposta de cidade Golden Lane. A ideia de mobilidade e conexão era a potencializadora da associação entre todas essas escalas (Mumford, 2002) e se opunha ao pensamento analítico que codificou as quatro funções urbanas da Carta de Atenas.
Em 1953, também haviam escrito An urban project (Smithson & Smithson, 1953), texto que, explicando detalhadamente o projeto Golden Lane, expunha uma série de questões essenciais para os arquitetos: a rejeição ao conceito de unidade de vizinhança -criadora de núcleos urbanos isolados- e a necessidade de um afrouxamento dos limites dos agrupamentos para facilitar a comunicação e potencializar a formação de grupos sociais efetivos. Outros pontos também fundamentais, ressaltados nesse momento, eram a importância da relação entre casa e rua, que criaria o que chamaram grupos-espaços, locais com capacidade de satisfazer as necessidades humanas de identificação e pertencimento e a necessidade de conformação dos agrupamentos sociais -rua, bairro, cidade- como realidades plásticas finitas ou espaços visíveis, que se opunham ao espaço abstrato e ilimitado do pensamento urbano moderno (Smithson & Smithson, 1953).
Nesse contexto de valorização da ideia de rua, um elemento que se tornaria simbólico e muito utilizado em projetos dessa época é a street-in-the-air -a rua elevada. A rua elevada é apresentada pelos arquitetos ingleses como parte de uma estratégia projetual que garantiria a liberdade de movimento (Smithson, 1966). Também recuperaria de alguma maneira, em urbanizações com edifícios em altura, a relação dos habitantes com os espaços coletivos e, consequentemente, com a cidade (Mumford, 2002).
Os arquitetos utilizam o termo clusters para designar os agrupamentos sociais em associação. Esses agrupamentos se dariam a partir de um grupo de casas que formaria uma rua, um grupo de ruas e casas que formaria um bairro, e assim por diante (Smithson, 1966), sempre "intercambiando seus fluxos vitais em uma coexistência que dá significado ao indivíduo como parte inseparável de um grupo humano mais amplo" (Solà-Morales, 1995, p. 48).
Cluster vem a ser um conceito coringa (Smi-thson, 1966) que sintetiza a base do pensamento Smithsoniano e, por isso, sofre exaustivas reflexões por parte dos arquitetos. Designa, em última instância, uma cidade organizada em agrupamentos de diferentes escalas com uma identidade efetivamente definida, mas, ao mesmo tempo, em associação e comunicação a partir de meios claros e compreensíveis (Smithson & Smithson, 1957).
Os Smithson vão trabalhar também com a idéia de infraestrutura -caminhos e serviços como elementos fixos que organizam o tecido urbano. Esse conceito, segundo os arquitetos, seria fundamental para a formação de comunidades compreensíveis (Smithson, 1966), em que o cidadão se apropriasse de seus significados de uma maneira mais completa.
No projeto Golden Lane2, a idéia de cluster é utilizada como forma de dotar de identidade as diferentes escalas dentro do conjunto habitacional e de reforçar sua associação. Unidades habitacionais e ruas elevadas formam um primeiro cluster- cada volume do conjunto como um primeiro nível de relação entre os moradores. Os edifícios lineares, que se articulam a partir dos nós de conexão e circulação vertical em seus extremos, conjuntamente com os espaços coletivos no solo, configuram um segundo nível de cluster. E então o conjunto -com sua potencialidade de relação com o tecido urbano do entorno, como mostram os esquemas que acompanham o projeto-, conforma ainda uma terceira escala. No nível do solo, os jardins, delimitados pelos edifícios e para onde estão voltadas as ruas elevadas, substituem o espaço abstrato moderno, potencializando um lugar de acolhimento.
A idéia de flexibilidade e crescimento estava presente nas suas unidades habitacionais tipo duplex: um pátio-jardim no mesmo nível da rua elevada -nível de acesso às habitações- poderia proporcionar às unidades dois dormitórios extras ou um dormitório extra e um terraço. No texto An urban project, os arquitetos indicam várias outras possibilidades de usos desse pátio--jardim: meio de acesso às habitações, lugar de jardinaria, atividades várias e até comércio.
O arquiteto holandês Aldo van Eyck (19181999) é conhecido por seu trabalho a partir de uma base interdisciplinar que buscava referências na antropologia e na sociologia. Nesse sentido, a idéia de lugar -com bordas, níveis e uma configuração definida- que configura um espaço simbólico passível de um habitar pleno é central no pensamento do arquiteto.
Para Van Eyck, a questão fundamental para a apropriação da cidade pelo morador é a inter-relação do que chamou fenômenos gêmeos, que se constituem de categorias opostas, como exemplo, parte e todo, dentro e fora, simplicidade e complexidade, individual e coletivo (Van Eyck, 2008). A inter-relação entre esses opostos, representada em uma configuração e expressão física claras3 (Van Eyck, 2008), tem consequências diretas na relação entre o que o arquiteto chamou de diferentes estágios multiplicativos - cada estágio é entendido como um fenômeno gêmeo, por exemplo, a casa como o individual e um agrupamento de casas como o coletivo. Estágios multiplicativos e clusters são conceitos que basicamente se eqüivalem.
A configuração das inter-relações -aquela configuração e expressão física clara- deveria então se dar por meio de lugares intermediários -inbetween places- espaços abertos, vazios, para a expressão das reciprocidades dos fenômenos gêmeos (Van Eyck, 2008). Mas vazios dotados de identidade -em oposição clara ao espaço do urbanismo moderno.
Nesse espaço aberto, uma categoria avança sobre o outra, adquire algo da outra e, por isso, há uma semelhança configurativa entre elas, como se pode observar, por exemplo, nos fenômenos gêmeos casa-rua, onde a casa configura a rua e, assim, a rua é reinterpretada e faz parte da casa (Van Eyck, 2008).
O tema da relação entre diferentes escalas é crucial no pensamento de Van Eyck, assim como o interesse com o problema da relação -ou da cisão- entre as disciplinas da arquitetura e do urbanismo -preocupação comum aos componentes do Team 10.
Uma obra que representa a estrutura teórica de Aldo van Eyck é seu projeto para o Orfanato de Amsterdã (1956-1960). Nesse projeto, através de um elemento geométrico simples, o quadrado, o arquiteto propõe uma organização complexa e labiríntica, criando inbetween places entre os opostos-fenômenos gêmeos por meio de espaços cobertos, parcialmente cobertos e descobertos e divisórias reais e virtuais.
Com base em uma estrutura que conjuga centralidade e dispersão, o programa orbita ao redor de uma praça central e ao mesmo tempo se dilui em todas as direções, formando centralidades locais através de pequenas praças.
A partir daí, o projeto se organiza em comunidades de habitações para as crianças de diferentes grupos de idades, que facilitam o processo de identidade. Essas comunidades se conectam umas às outras através de espaços de transição -espaços de atividades coletivas e ruas-, criando uma gradação que vai do mais privado ao mais público. Essas ruas são espaços de transição fundamentais entre o individual e o coletivo. O projeto se põe como uma pequena cidade tentando diluir a barreira entre arquitetura e urbanismo e os contrastes entre os âmbitos fechado e aberto, interior e exterior.
Por sua vez, o orfanato, pelo seu argumento geométrico, acaba criando uma esteira que se espalha pelo terreno e, potencialmente, pela cidade, conectando a arquitetura com o território mais amplo no seu entorno.
O Metabolismo, instituído em 1960, no Congresso Mundial de Design, em Tóquio, a partir do manifesto Metabolismo 1960: propostas para um novo urbanismo, também foi um movimento importante no cenário dos anos 1960, e, como foi indicado, teve sua repercussão no Uruguai. Arquitetos como Kiyonori Kikutaki, Kisho Kurokawa, Fumihiko Maki, Masato Ohtaka, Noboru Kawazoe, sob a liderança de Kenzo Tange, utilizando-se de metáforas biológicas, defendiam uma cidade concebida como um processo, um elemento vivo e orgânico em eterno crescimento e mudança.
Nesse contexto, Kenzo Tange propõe, em 1961, de maneira similar ao que haviam pretendido os Smithson, uma cidade composta de infraestrutura -os equipamentos de transporte e comunicação- e elementos de estrutura -as obras arquitetônicas. A estrutura teria um ciclo metabólico mais curto, se comparado com o ciclo da infraestrutura. Isso significava planejar as cidades dividindo-as em elementos de caráter permanente e em elementos transitórios, que estariam em constante relação (Tange, 1970a). Tange havia aplicado essas ideias em seu projeto para a baía de Tóquio (1960), onde um grande eixo cívico que atravessa a baía e se conecta ao centro da cidade de Tóquio contracena com eixos perpendiculares que conduzem às zonas residenciais.
As zonas residenciais são conformadas por grandes estruturas de seção mais ou menos triangular com plataformas de concreto em vários níveis, onde estão localizados os equipamentos públicos e as fileiras de casas, e a "livre escolha individual" (Tange, 1970b, p. 122) é permitida: "sobre essas plataformas cada indivíduo poderá construir com os materiais manufaturados disponíveis a casa de acordo com seu gosto" (Tange, 1970b, p. 126). Ordem e liberdade compõem essa nova organização espacial.
Tange também propõe a criação de ligações tridimensionais em obras arquitetônicas de grande porte, criando conexões entre, por exemplo, os vigésimos andares de dois edifícios distintos (Tange, 1970a), insistindo assim na ideia, tão cara ao Team 10, de mobilidade e comunicação mesmo em grandes edifícios.
Fumihiko Maki e Masato Ohtaka (1964), em Collective form -Three paradigma, ampliaram e detalharam o conceito de megaestrutura- ou megaforma, como também denominaram. Segundo esses autores, a megaestrutura deveria ser flexível e aberta, com muitas possibilidades de conexão entre as partes e com "juntas físicas em pontos críticos" (Maki & Ohtaka, 1964, p. 12).
Kenzo Tange, corroborando a construção teórica dessa nova geração, afirmará mais tarde que a real natureza do urbano "implica diversidade, intercâmbio, flexibilidade, escolha de contatos" (1970a, p. 148).
A proposta de megaestrutura tem diversas definições, mas sempre envolve uma concepção de cidade conformada por grandes elementos estruturais fixos que ordenariam a urbanização e a fariam compreensível e identificável, e, por outros elementos móveis, passíveis de câmbio, como indicava também o grupo Archigram - referência explícita dos arquitetos uruguaios, como já mencionado anteriormente.
O Complexo Habitacional Bulevar Artigas está implantado em terreno limitado por vias públicas em três de suas faces. Organiza-se, a partir de uma composição radial, com um edi-fício central de uso coletivo, de onde divergem quatro edifícios lineares -residenciais- com comprimentos variáveis, levemente escalonados e perpendicularmente colocados em relação àquele volume central, conformando praças e espaços descobertos coletivos internos e, ao mesmo tempo, recuos prediais bastante generosos (Figura 2 e Figura 3).


O conjunto conta com 332 unidades habitacionais, com diferentes organizações espaciais e dimensões, alcançando uma densidade de 638 habitantes/ha (Arias, 2009). Os variados tipos diferem em relação ao número de dormitórios - de 1 a 4- e à presença ou não de um ambiente de 7 m2, previsto para ser um dormitório extra nos casos em que a família crescesse, por exemplo. Grosso modo, cada tipo ainda poderia sofrer oito variações distintas na organização dos espaços, tendo sido construídas, finalmente, um total de 42 variantes de plantas baixas.
As unidades apresentam dupla orientação (leste e oeste) -exceto as unidades de um dormitório que, por estarem junto à circulação horizontal principal, apresentam somente uma orientação (leste ou oeste)-, ou três orientações, caso das situadas nas pontas dos edifícios (norte ou sul). Espaços de uso comum, comércios e serviços -uma creche, uma lavanderia, 12 espaços para comércios e dois salões de uso múltiplo- estão localizados no edifício central E e no térreo do edifício D.
As unidades habitacionais são organizadas a partir da distribuição de 18 torres de circulação vertical que contêm elevadores e escadas. Uma grelha estrutural tridimensional de concreto armado acolhe os escalonamentos verticais decorrentes da localização de unidades habitacionais de maior área nos pavimentos superiores, da presença de circulações horizontais externas em um dos pavimentos e de pavimentos térreos com pilotis. Os planos verticais são em geral de tijolos deixados à vista, sendo as torres em concreto armado, com parte do fechamento em chapas de ferro galvanizado.
Em parte do segundo nível dos edifícios lineares localizam-se as ruas elevadas - circulações mais amplas, que se constituem como uma continuação do passeio público, inclusive com o mesmo calçamento - e as habitações de um dormitório. Nos pavimentos acima, localizam-se as demais habitações.
O edifício central é formado por dois volumes de dois andares, com estrutura de concreto armado, unidos por uma cobertura com estrutura metálica que acolhe uma praça coberta.
São evidentes os pontos de confluência de alguns princípios geradores das estratégias projetuais do Bulevar Artigas, com o contexto internacional anteriormente mencionado. Esses princípios embasam e estruturam o estudo realizado a partir de agora. Assim, a análise do conjunto habitacional é organizada a partir da teoria das escalas de associação - cidade, bairro, rua e casa. Em cada escala, será verificada a manifestação da ideia de cluster. Um cluster se constitui basicamente a partir de realidades plásticas finitas e de conexões entre os lugares e realidades -sendo que essa conexão pode-se dar pela mobilidade, acessos e caminhos- com significado espacial -ou através de lugares intermediários- Lugares de interface entre as duas escalas.
No Bulevar Artigas, caminhos espacializados, escadas e passarelas de acesso -realidades plásticas finitas- conectam-se com passarelas internas, aproximando o conjunto do entorno (Figura 4 e Figura 5). Esses caminhos colocam o visitante dentro do conjunto, conduzindo-o do espaço público ao lugar semipúblico, onde se dão relações coletivas mais estreitas. Por esses mesmos caminhos, na direção oposta, o morador sai, gradativamente, do espaço de convívio com seus vizinhos, para os espaços de relações com seus concidadãos.


Por sua vez, o conjunto permite uma travessia central, que funciona como uma rua de pedestres atendendo ao bairro, diminuindo a quadra onde se situa o conjunto e outras construções. A calçada -que se configura como uma continuidade do passeio público, inclusive com a mesma pavimentação- cruza o conjunto junto ao volume central, conectando a Avenida Bulevar Artigas à Rua Quijote.
Essa flexibilidade dos limites do conjunto se manifesta não somente através da permeabilidade espacialmente projetada - caminhos, passarelas, ruas elevadas - mas também por meio do lugar intermediário entre as duas escalas - cidade e bairro -, criado por generosos recuos de ajardinamento, que se dilatam em direção ao centro do perímetro da urbanização, confluindo e/ou expandindo o fluxo de moradores e visitantes.
No Complexo Bulevar, observa-se a existência de partes mais duradouras e outras mais passíveis de mudança que se organizam de maneira interdependente: a infraestrutura fixa -as circulações horizontais e verticais- e a estrutura móvel- as demais partes que formam todo o conjunto, unidades habitacionais, comércios, serviços etc. (Figura 6).

Nessa representação de cidade metabolista, explora-se uma megaestrutura aberta e não hierárquica, onde sua infraestrutura permite múltiplas conexões e escolhas de percursos. Além da comunicação entre os edifícios através do corpo central, existem conexões transversais -através escadas e passarelas situadas nos espaços coletivos descobertos- que interligam os edifícios lineares entre si, sem a necessidade de acesso ao eixo central (Figura 7).

O conceito de megaestrutura e/ou cidade metabolista também está simbolicamente presente nos edifícios em si, ao possuírem uma grelha estrutural tridimensional e torres de circulação -como sua parte fixa- e os apartamentos -como partes móveis e potencialmente cambiantes. O preenchimento da grelha se dá de forma variada e dinâmica. Os vazios dessa grade sugerem, conceitualmente, que poderiam ser futuramente preenchidos conforme o ciclo de vida do conjunto, demandando ampliações do tamanho ou número de unidades, ou até reduções, criando-se então, outros vazios- representando de alguma forma o dinamismo da vida moderna (Figura 8).

De outro ponto de vista, a implantação do conjunto Bulevar propõe, a partir da composição da forma radial e da decomposição da barra moderna, dotar a urbanização de uma complexidade espacial e de um caráter pitoresco. Essa estratégia compositiva configura fechamentos e demarcações de limites, criando espaços -coletivos- formalmente definidos e que podem ser visual e experiencialmente apreendidos (Figura 8).
O edifício central divide e conecta os espaços coletivos internos descobertos, conservando uma clara comunicação através da praça coberta, que se configura aqui como um lugar e não apenas uma passagem. Por sua vez, através da rua que a tangencia e que atende à cidade, indicada anteriormente, a praça coberta também é um importante elemento de conexão entre conjunto e cidade (Figura 9).

Entre cidade metabolista e resgate de miolo de quadra, o conjunto conforma assim realidades plásticas finitas, fundamentais para criar legibilidade e comunidades compreensíveis, a partir de uma organização que lida tanto com categorias urbanas tradicionais como com conceitos que possibilitariam um diálogo mais abrangente com a cidade moderna.
O conjunto é formado por uma rede de circulações horizontais cobertas e descobertas, algumas delas abrigadas em um dos níveis dos edifícios lineares. Tais circulações podem ser entendidas como streets in the air: as escadas e as passarelas pelo caráter diferenciado e rico que adquirem ao serem inseridas, física e visualmente, no espaço de convívio; a circulação periférica abrigada nos edifícios lineares por sua conexão mais direta com as unidades residenciais e/ ou seu caráter polifuncional (Figura 10). Essas ruas elevadas, além de criarem uma comunicação -funcional e expressiva- entre conjunto e entorno, conectam os espaços coletivos do conjunto com os pequenos espaços -também coletivos- localizados nas torres de circulação vertical junto aos elevadores, que, por sua vez, conduzem às habitações.

O conjunto todo proporciona um sistema de conexões tridimensionais entre os elementos e os espaços e destaca o aspecto da mobilidade como fundamental na cidade moderna. No entanto, as ruas -circulação com largura generosa no interior dos edifícios (Figura 11) ou passarela cruzando espaços coletivos- não são pensadas apenas como um local de passagem, mas também como um lugar que aumenta as oportunidades de encontro entre as pessoas e, consequentemente, as possibilidades de relações sociais. Resgatando de alguma maneira a idéia da rua tradicional -espaço em contato mais próximo com a habitação e com os serviços e comércios (Figura 11 )- o projeto propõe um lugar de intermediação da relação entre opostos -dentro-fora, privado-público etc.

No Bulevar Artigas, estratégias projetuais que envolvem flexibilidade, crescimento e variedade no desenho das unidades habitacionais são exploradas exaustivamente. O sistema estrutural em grelha -fixo- permitiu uma organização com grande variedade das partes móveis, absorvendo repetição e descontinuidade, e mantendo uma unidade visual consistente.
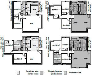
Nas habitações de padrão econômico (Figura 12), de dois a quatro dormitórios, a cozinha, o banheiro e a varanda apresentam sempre a mesma posição em planta baixa. Entre os diferentes tipos, a sala de jantar tem algumas variações em seu desenho e variam o número de dormitórios e a presença ou não do compartimento +7 m2. Por sua vez, a unidade habitacional de um dormitório apresenta uma organização particular. As áreas variam de 40 m2 (um dormitório) a 85 m2 (quatro dormitórios).

Nas habitações de padrão médio (Figura 13), existe uma variação maior na planta baixa das unidades, que possuem dois ou três dormitórios. O compartimento +7 m2 pode ser agregado também nesse padrão médio. As unidades de três dormitórios possuem dois banheiros e diferentes posições e formas da cozinha, sala de jantar e varanda, em relação às de dois dormitórios. Cozinha, banheiro e varanda das unidades de dois dormitórios apresentam a mesma posição e forma das unidades de padrão econômico.

Essas repetições/modulações, destacadas no desenho entre os diferentes tipos das unidades, possibilitam a sobreposição de apartamentos de diferentes áreas finais -que geram as já comentadas variações volumétricas dos edifícios- sem interferir na modulação estrutural destes. As áreas das unidades desse tipo variam de 69 m2 (dois dormitórios) a 95 m2 (três dormitórios).
As unidades habitacionais são organizadas em pares ao redor de uma torre de circulação vertical, configurando um subcluster (Figura 14). Com paradas de elevador a meio nível, o patamar -que atende a quatro habitações- adquire um caráter de espaço coletivo e de encontro entre moradores e visitantes (Figura 15). Ainda, as unidades de um dormitório têm uma relação mais direta com a rua elevada, embora ainda seja necessário acessar a torre de circulação para então chegar à porta dessa unidade.


Enfim, fica evidente que o projeto do Complexo Habitacional Bulevar Artigas tem como base o conceito de cluster. Por um lado, pela configuração espacial dos vários ambientes que formam sempre, de alguma maneira, realidades plásticas finitas, concretas e definidas e, por isso, potencializadoras de relações sociais mais intensas e de uma apropriação mais efetiva por parte dos moradores. Por outro, pela construção de uma gradação espacial que vai do espaço público circundante até o espaço mais privado da casa através de uma sucessão de lugares coletivos com maior acesso -e espacialmente mais abertos-, até aqueles de acesso mais restrito -espacialmente mais fechados-, potencializam-se as possibilidades de uso e identidade. A rede de mobilidade e conexão através de caminhos figurativamente definidos completa esse sistema, tornando o conjunto uma estrutura complexa e ao mesmo tempo uma comunidade compreensível.
Este trabalho tentou verificar como certas idéias de além-mar foram interpretadas quando inseridas em contextos específicos, como o da América do Sul. Aqui e lá, alguns aspectos da realidade eram semelhantes. A Europa vivia uma situação de reconstrução no pós-guerra; na América do Sul, o êxodo rural e o aumento da população geraram um grande déficit habitacional nas cidades. Ambos os cenários necessitavam de soluções habitacionais contundentes e que pudessem atender a muitas pessoas sem moradia.
No entanto, o contexto específico do Uruguai, com seu programa cooperativo, com projetos de tamanho médio a pequeno, facilitou a potencialização daquelas idéias européias e americanas, conseguindo, por vezes, resultados mais eficientes do que dos colegas do hemisfério norte.
Em meio disciplinar receptivo, com um diálogo projetual aberto e ao mesmo tempo responsável, os arquitetos conseguiram realizar uma interpretação local muito específica desse cenário de inflexão teórica. O resultado se manifestou em projetos potentes, qualificados e apropriados por seus moradores. Projetos que geram uma vida urbana e coletiva muito efetiva.
Em visitas ao conjunto Bulevar Artigas, pôde-se verificar o êxito com que várias das idéias presentes na ação projetual se concretizaram na realidade. O sistema participativo facilitou um real entendimento dos espaços projetados e potencializa sua apropriação hoje. Ademais, a variedade de tipos de unidades habitacionais acaba decorrendo na presença de um público morador muito variado.
Mas, claro, é necessário destacar que algumas intenções projetuais não se concretizaram. O espaço formado pelos recuos para a Avenida Bulevar e para a Rua Quijote, ainda que convidem ao acesso ao conjunto, não são efetivamente utilizados como espaço de estar e convívio, constituindo-se como estacionamentos ou espaços de gramados.
Ainda, o problema grave de acessibilidade, pela variação de níveis dos vários espaços, e o debate entre os moradores sobre a necessidade de restringir o acesso ao conjunto através de fechamento com grades -para minimizar ocorrências de violência urbana tão comum aos nossos países latino-americanos- são alguns dos temas contemporâneos que os moradores enfrentam.
Em contrapartida, destaca-se positivamente a efetiva utilização dos espaços coletivos pelos moradores assim como pela vizinhança numa clara reconciliação entre os fenômenos individual e coletivo. Os claros limites dos diversos espaços de estar, através de bordas e desníveis no solo, permite a formação de diferentes grupos, com diferentes interesses -crianças, jovens, adultos, esportistas-, permitindo que cada um encontre o "seu lugar" e, ao mesmo tempo, participe da vida social como um todo.
Ruas elevadas e passarelas criam um dinamismo que permite uma escolha de movimentos e trajetos muito ampla, tanto para o morador que chega à sua casa quanto para o visitante que procura seus amigos ou o morador da vizinhança que quer chegar à rua posterior e pega o atalho para cruzar o conjunto através das passarelas. O ato de se deslocar adquire um significado que não é apenas pragmático -ir de um lugar a outro- mas é quase uma aventura, com um fim às vezes claro, outras nem tanto.
Por fim, destacamos a hipótese desta investigação: o sistema cooperativo é fundamental para o êxito da vida coletiva observado no conjunto Bulevar, mas o projeto arquitetônico e urbanístico potencializa, estimula, torna essa vida possível e lhe dá substância
Carolina Ritter: concepção geral, pesquisa bibliográfica, análise e interpretação dos dados gráficos e teóricos, redação do artigo, desenhos e redesenhos.
Celia Castro Gonsales: concepção geral, pesquisa bibliográfica, análise e interpretação dos dados gráficos e teóricos, redação do artigo, revisão crítica do conteúdo intelectual, revisão final do artigo.
O presente trabalho foi realizado com o apoio da Coordenação de Aperfeiçoamento de Pessoal de Nível Superior (Capes), Brasil, código de financiamento 001














