Artículos
Arquitectura moderna en El Salvador (1950-1980): una interpretación de dos tendencias
Modern architecture in El Salvador (1950-1980): an interpretation of two trends
Arquitectura moderna en El Salvador (1950-1980): una interpretación de dos tendencias
Revista de Arquitectura (Bogotá), vol. 25, núm. 1, pp. 40-52, 2023
Universidad Católica de Colombia, Facultad de Diseño y Centro de Investigaciones (CIFAR)
Recepción: 10 Julio 2021
Recibido del documento revisado: 20 Septiembre 2021
Aprobación: 14 Julio 2022
Resumen: Entre 1950 y 1980, la arquitectura moderna en El Salvador se consolidó y produjo algunas de sus obras más emblemáticas a través de dos tendencias. La primera puede denominarse racionalista estructural, y se fundamentó en las cualidades del hormigón armado, así como en el desarrollo de envolventes para la protección solar, cáscaras, paraboloides y la integración plástica de murales y otros elementos artísticos. La segunda fue la orgánica, interesada en la recuperación de lo vernáculo y la integración a la naturaleza a través de un lenguaje wrightiano, el paisajismo y el desarrollo de geometrías más complejas. Estas aproximaciones diferenciadas develaron una gradual dinámica de adaptación del lenguaje moderno a las condiciones particulares del país, en términos ambientales y tecnológicos. También evidenciaron la permeabilidad a la influencia internacional a través del trabajo de extranjeros y de salvadoreños formados en el exterior. Finalmente, sobresalió el papel protagónico del Estado como promotor de la arquitectura moderna. Todo ello puso en valor un ejercicio de asimilación consciente de la Modernidad que, sin embargo, no alcanzó a establecer un diálogo con los códigos mundiales y latinoamericanos, lo que sigue siendo una tarea pendiente para la práctica contemporánea.
Palabras clave: Arquitectura orgánica, hormigón, identidad cultural, modernización, racionalismo.
Abstract: Between 1950 and 1980, modern architecture in El Salvador consolidated and produced some of its most remarkable works under two trends. The first trend was structural rationalism, based on the plastic qualities of rein-forced concrete, the development of sun protection elements, shells, paraboloids, and the integration of murals and other artistic elements. The second approach was organic, interested in the recovery of the vernacular and integration to nature through a Wrightian language, landscaping, and more complex geometries. These differentiated trends disclosed a gradual dynamic of adaptation of modern language to the environmental and technological conditions of the country. The work of foreign and Salvadoran professionals trained abroad exposed local permeability to international influences. Finally, the state played a significant role as a promoter of modern architecture. However, this valuable exercise of conscious assimilation of modernity did not arrive to establish a proper dialogue with global and Latin American design codes, which remains a pending task for contemporary practice.
Keywords: Concrete, cultural identity, modernization, organic architecture, rationalism.
Introducción
Hacer una historia crítica de la arquitectura salvadoreña es todavía una tarea pendiente para los profesionales en arquitectura y en historia. Para contribuir en esa dirección, entre 2008 y 2016, el Departamento de Organización del Espacio (DOE), de la Universidad Centroamericana (UCA) de El Salvador, realizó, dentro de su área de teoría e historia, tres trabajos de investigación, de donde se deriva este artículo: Guía de Arquitectura de El Salvador (inédito); Estética y política, modernización cultural en El Salvador (1940-1970) (UCA, 2015), y Los recursos de la producción arquitectónica en El Salvador (Accesarte, 2013), orientados a analizar la producción arquitectónica en el país documentando obras, periodos y diseñadores.
En ese marco, este trabajo busca construir una interpretación de la arquitectura moderna salvadoreña, para ubicarla en el contexto más amplio de la producción arquitectónica latinoamericana, ponerla en valor y así vislumbrar orientaciones para el ejercicio contemporáneo. Se trata de hacer una lectura de la producción arquitectónica en El Salvador durante la segunda mitad del siglo XX, en el periodo de consolidación de la arquitectura moderna local, para trazar paralelos con la producción regional y potenciales vías de diálogo con la producción internacional valorando categorías como "sincretismo ambiental", "identidad/alteridad" y "desarrollismo", según lo han propuesto, entre otros, autores como Segre (2003), Arango (2012) y Müller y Parera (2016).
La selección de este periodo corresponde a diversos procesos esenciales: una época de producción arquitectónica intensa; la adopción decidida del lenguaje moderno por diseñadores y promotores públicos y privados, y la apertura y la consolidación de la primera escuela de arquitectura en el país. Más relevante para este análisis es la hipótesis inicial: la producción de arquitectura moderna en El Salvador durante la segunda mitad del siglo XX, como en buena parte de América Latina, no es fruto de la simple transferencia tardía de las ideas, materiales y sistemas constructivos de la vanguardia arquitectónica occidental, sino que es el resultado de procesos más complejos de transferencia, adaptación y reinterpretación. Este trabajo parte de la constatación inicial de que esa producción oscila entre los valores de una tendencia arquitectónica racionalista estructural en hormigón, y otra orgánica, que aprovecha materiales diversos, incluyendo los vernáculos. Lo anterior es de interés, en tanto constituye el antecedente inmediato del quehacer arquitectónico contemporáneo, y puede contribuir a explicar algunas de sus principales potencialidades y limitaciones. Para ello, se hace una revisión cronológica, enfocada en las tres décadas comprendidas entre la adopción de una Constitución "modernizante" (1950) y la explosión de la guerra civil (1980), aplicando los criterios propuestos por múltiples teóricos latinoamericanos para entender la Modernidad en la región. Esto permite entablar un diálogo y proponer una nueva interpretación en relación con trabajos recientes sobre arquitectura en el ámbito nacional y el centroamericano, incluyendo publicaciones monográficas sobre la obra de: José F. Terán, en Nicaragua (Martínez-García, 2015); Ernesto de Sola, en El Salvador (Salazar et al., 2016); toda una serie de arquitectos costarricenses (Monge et al., 2016); un dosier de la revista Realidad sobre la Modernidad arquitectónica (Gutiérrez, 2017), y la vivienda moderna en El Salvador (Chicas, 2017), además de las guías de arquitectura de Panamá (2007), Guatemala (2008) y Costa Rica (2015).
En tal sentido, el trabajo se divide en cuatro grandes secciones. En la primera se explican los métodos utilizados con base en la visión de crítica proyectual de Tafuri (1997), para explicar la validez de categorías propuestas por Segre (1999; 2003), Arango (2012) y otros, para la arquitectura salvadoreña. La segunda sección constituye el corazón del análisis, al profundizar en la interpretación de la producción arquitectónica moderna en El Salvador, tanto en su tendencia estructural como en su corriente orgánica, a la luz de las categorías propuestas y la comparación con obras emblemáticas en América Latina. En la tercera sección se hace una discusión de dicho recorrido, para enfatizar puntos comunes y particularidades. Finalmente, a manera de conclusión, se proponen elementos para el debate en clave local y regional que contribuyan a la construcción de una historiografía arquitectónica salvadoreña.
Metodología
Dice Montaner (2004) que la crítica arquitectónica busca comprender la obra para poder explicarla. Se trata de hacer una interpretación de esta, pero abierta, a su vez, a futuras interpretaciones, con una aspiración de mejora de la sociedad o, cuando menos, del mismo quehacer arquitectónico.
La interpretación propuesta en este trabajo se fundamenta en las categorías de análisis expuestas por diversos autores. De Segre (1999) retoma la noción "identidad ambiental latinoamericana" (p. 164), que pone en valor la adaptación de los principios de la vanguardia arquitectónica internacional a las condiciones propias de la región, tales como: clima, limitaciones tecnológicas o expresiones artísticas vinculadas a la identidad. Ello resulta en otras categorías más próximas a la región, como el "sincretismo ambiental caribeño" (Segre, 2003, p. 2); todo esto, en diálogo con nociones como el regionalismo crítico, propuesto por Frampton (2000, p. 326). La asimilación de las condiciones contextuales en la producción latinoamericana ha sido tratada por otros autores como: Rueda (2015) para explicar la arquitectura moderna en la ciudad de Guadalajara; González-Franco y Nagel-Vega (2019) en el caso de Monterrey; y también, por Sosa y Alonso-Rohner (2019), al discutir las influencias internacionales sobre la arquitectura moderna española. Ello se vincula con la categoría más contemporánea y controvertida de arquitectura tropical, como la han planteado Guedes y Widodo (2020) para leer la producción de arquitectura de la franja tórrida global, y que Solano-Meza (2020) ha discutido para el caso de Costa Rica. De igual forma, se recupera lo que Arango (1989) ha denominado la asimilación consciente en la arquitectura colombiana moderna (p. 204), donde domina un paradigma topológico organicista, interesado en la topografía, el clima y, en general, las condiciones únicas e irrepetibles del sitio (p. 230), sin dejar de lado los materiales y las técnicas constructivas locales, ni ignorar las condicionantes socioculturales del lugar. La misma Arango (2012) ha insertado esta discusión dentro de un debate más amplio en torno a las categorías de identidad y alteridad respecto al lenguaje de la arquitectura moderna internacional indispensables para entender la producción latinoamericana. La misma autora ha puesto en valor un enfoque generacional que permite reconocer y comparar las obras de diseñadores agrupados según su edad, su periodo de práctica y su formación académica. Se recuperan algunos planteamientos de Zevi (1999) respecto a las invariantes que forman parte del código proyectual de la arquitectura moderna (p. 17); particularmente, el valor que otorga a las "estructuras en voladizo, caparazones y membranas" y la "reintegración arquitectura-ciudad-territorio" que comprende recorridos, vinculaciones interior, exterior y paisaje. Por último, de autores como Browne (1988), Martínez-García (2015), Müller y Parera (2016) y González-Pendás (2017), se rescata la categoría de arquitectura moderna "desarrollista", en tanto va por delante de la realidad socioeconómica y es "propulsora" de modernización al interesarse en la asimilación tecnológica, de la mano con el Estado, combinando valores técnicos y visuales que adquieren una dimensión simbólica y política.
Con los mencionados lentes conceptuales se busca hacer una lectura interpretativa de la arquitectura salvadoreña de la segunda mitad del siglo XX. El análisis se concentra, entonces, en el estudio de diez edificios, viviendas, templos religiosos y centros recreativos representativos de la época, seleccionados a partir de tres criterios originados en las categorías ya expuestas. Primero: se han retomado obras significativas por su valor arquitectónico, según lo propuesto por López-Pérez (2016), en términos espaciales, funcionales y técnicos. Segundo: se han privilegiado edificaciones que recuperan cualidades clave de la arquitectura moderna, como la continuidad espacial, la planta libre o la ausencia de ornamentación y, simultáneamente, demuestran la adaptación de dichas ideas a la realidad salvadoreña, en términos ambientales y tecnológicos.
Tercero: se ha empleado un criterio generacional, como lo han propuesto Arango (2012) y Esteban-Maluenda (2016), a través de la selección de proyectos elaborados por extranjeros, salvadoreños formados fuera del país y los primeros profesionales educados localmente.
Se ha hecho uso de tres técnicas de investigación. La primera es una aproximación que Tafuri (1997) denomina óptica, en el sentido de que se fundamenta en el conocimiento visual, ocasional, del edificio. En efecto, muchas de las obras existentes, que se discuten más adelante, han sido visitadas, fotografiadas y dibujadas de primera mano por el autor y otros investigadores, para reconocer sus cualidades espaciales. La segunda consiste en que, siguiendo las técnicas historiográficas clásicas (Montaner, 2004 p. 11), se han consultado archivos personales e institucionales de los diseñadores y los promotores de los proyectos, además de trabajos académicos. Mediante la tercera, se ha tenido acceso a entrevistas a profundidad con algunos profesionales vinculados a los diseños que se comentan.
Resultados
Breves antecedentes: la arquitectura salvadoreña hasta 1950
La arquitectura salvadoreña hasta 1950 puede leerse a partir de una serie de cualidades espaciales de interés para el análisis de la producción arquitectónica moderna. Por un lado, destaca su escala modesta, no tanto en términos del volumen de la obra, como sí, de la proporción de los espacios en relación con el ser humano (Pohl, 2013). Ello es muy propio de un territorio periférico respecto a los núcleos dominantes de producción arquitectónica, como las antiguas civilizaciones mesoamericanas o los grandes centros y rutas del poder colonial. Así, entre las obras más significativas por su valor patrimonial y su reconocimiento, destacan: el asentamiento prehispánico de Joya de Cerén, único patrimonio de la humanidad en El Salvador; las sencillas iglesias coloniales de Metapán, San Vicente, Panchimalco y Huizúcar (Bailey, 2016); la elemental casa de hacienda de San Juan Buena-vista; algunos conjuntos urbanos modestos, como Suchitoto; edificios republicanos institucionales y las casas patio construidas en madera, lámina y otros sistemas industriales en el centro de San Salvador (Avendaño, 2018). Todas ellas guardan como rasgo de continuidad, más allá de sus superficiales variaciones estilísticas, la escala y la relación con el ambiente natural, por medio de patios, galerías y otros espacios de transición; además, evidencian algunas características tecnológicas comunes: la robustez de las estructuras, el limitado repertorio material y la horizontalidad.
Las primeras obras modernas aparecieron hasta la tercera década del siglo XX, con la llegada de los arquitectos salvadoreños Ernesto de Sola y Armando Sol, formados en Estados Unidos y Bélgica, respectivamente (Rivas Merino, 2013), y quienes se convirtieron, junto a sus pares en Guatemala, Nicaragua, Costa Rica y Panamá, en la primera generación de arquitectos centroamericanos1. La consolidación de la arquitectura moderna en El Salvador a mediados del siglo XX introdujo en este contexto algunas novedades y reforzó continuidades, que explican, en parte, las dos tendencias que se presentan adelante.
La arquitectura es estructura y la estructura es concreto
La arquitectura moderna había llegado a El Salvador desde los años treinta del siglo XX, cuando aparecieron los primeros edificios proto-modernos, todavía con fuertes influencias historicistas. Tendencias estilísticas como el Art Déco y el neocolonial, combinadas con el aprendizaje gradual de la técnica del concreto reforzado, fueron dando pie a la práctica del lenguaje moderno en el país, tal como sucedió en toda América Latina (Segre, 1999, p. 130; González-Pendás, 2017). Al mismo tiempo, se exploraba la integración de los espacios interiores y exteriores, por medio de terrazas, patios internos y porches (Salazar et al., 2016). Otros procesos más amplios impulsaron esta dinámica. En el ámbito político-ideológico, la Constitución de 1950 legitimó el modelo de Estado promotor del desarrollo y renovó las estructuras políticas liberales del siglo XIX. En el plano tecnológico, se instalaron las primeras industrias de materiales de construcción, como cemento, bloques, ventanas, láminas y acero en varillas. En la escena cultural, sobresale la fundación de la escuela de arquitectura de la Universidad de El Salvador (UES), en 1954, lo que permitió la formación de las primeras generaciones de profesionales locales que asentaron la modernidad como gusto dominante en el país, a la manera como Rueda (2015) lo ha planteado para Guadalajara en México. Lo anterior se refuerza por la llegada de una segunda generación de arquitectos modernos: salvadoreños formados en el exterior y europeos contratados por el Estado para hacerse cargo del diseño de edificios públicos en la Dirección de Urbanismo y Arquitectura (DUA). Todo eso contribuyó, además, a la influencia inmediata de diseñadores de la categoría de O. Niemeyer y F. Candela, como se dio en toda América Latina (Esteban-Maluenda, 2019). A partir de entonces, emergió una tendencia estructural que se desplegó en tres ejes de trabajo. Una primera línea se desarrolló en torno a las propiedades constructivas del concreto armado, y se manifestó en una serie de edificios que utilizan los marcos estructurales a manera de esqueleto portante, con una aspiración de planta libre, en lo que Colquhoun (2002, p. 142) denomina el racionalismo estructural. En el contexto latinoamericano, dicho racionalismo se vincula a una idea de progreso tecnológico, manifestado por medio del alarde estructural (Martínez-García, 2015, p. 335), que se va interesando en el desarrollo de fachadas libres y envolventes, que contribuyen a la climatización de las edificaciones y a su adaptación a la realidad tropical de El Salvador. Müller y Parera (2016) explican que ello va de la mano con un Estado impulsor de la modernización a través de la asimilación tecnológica, lo cual, según González-Pendás (2017), comprende los valores técnicos y visuales del concreto y la aspiración de darle un significado simbólico y político.
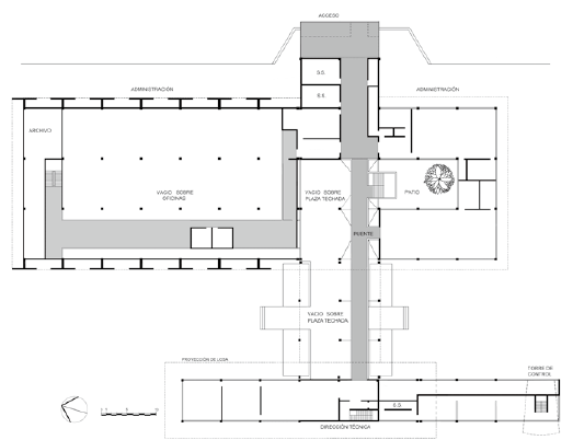
En esa lógica, sobresalen varios edificios configurados de acuerdo con el principio del bloque sobre pilotes corbusiano, dentro de los que destaca la capitanía del puerto de Acajutla (1964), que se muestra en la figura 1, de los esposos austriacos E. Schõtt y K. Katstaller. El diseño se configura en dos bloques horizontales alargados: uno para las funciones administrativas, y otro, para las técnicas, y articulados por medio de un puente colgado de la losa reticular celulada que cubre una plaza techada a doble altura, rodeada por espejos de agua y patios y, como contrapunto, una torre de control vertical, como se muestra en la figura 2. Sobresalen, además, los elementos de protección solar, las pantallas y las tramas de partesoles en concreto, indispensables por la orientación poniente del edificio, con la que se garantiza el control visual del muelle.


Todo lo planteado se materializa en clave de un lenguaje moderno internacional adecuado al trópico, que había encontrado su expresión inicial en el Ministerio de Educación y Salud Pública (MESP) de Río de Janeiro (1945). Con ello se superaba la visión tradicional de la fachada compuesta de llenos y vacíos para convertirla en membrana de relación interior exterior, como lo ha comentado Galindo-Díaz et al. (2020) en el caso de la arquitectura moderna colombiana.
Las cualidades plásticas del concreto bajo la forma de voladizos, paredes curvilíneas y cubiertas parabólicas se expresan con más claridad en una segunda serie de obras en las que la forma arquitectónica es determinada por las cáscaras de hormigón. Zevi interpreta que "el espacio plasma las estructuras y se forma con ellas" (1999, p. 59), lo que resulta en una orquestación integral de elementos arquitectónicos vinculada a la vanguardia expresionista de la arquitectura moderna, y cuyos máximos exponentes internacionales fueron figuras como Candela, Torroja o Nervi (Galindo-Díaz, 2018). De los Katstaller sobresalen las tres taquillas del Gimnasio Nacional (1958), resueltas por medio de un platillo aligerado de concreto sostenido por una columna en cruz con un drenaje pluvial central, rodeada de jardines, como se muestra en la figura 3.

Otras construcciones notables en esta línea son los paraboloides hiperbólicos, o pañuelos, que aparecieron en diversos espacios públicos del país, incluyendo los del Centro Urbano Libertad y los de la Colonia Nicaragua, en San Salvador; ambos, proyectos del Instituto de Vivienda Urbana (IVU) (Barahona, 2017). Probablemente, el caso más sobresaliente de esta tipología sea el Comedor Universitario de la UES, obra de G. Yanes-Díaz (1966). El edificio se configura a partir de una planta en estrella cubierta por ocho pañuelos de concreto que liberan el espacio interior para mesas en el nivel superior, incluyendo un voladizo elíptico a manera de terraza y un salón para deportes en la planta baja, como puede verse en la figura 4.

El interés en el tema de caparazones, paredes curvas y las propiedades estructurales y plásticas del concreto en planos verticales también se expresa en numerosas obras de J. J. Rodríguez que desembocan en los edificios de aulas A y B de la UCA (1975). Estos edificios se resuelven mediante la yuxtaposición de cuatro cilindros elípticos de hormigón de diferente tamaño, que generan salones inclinados tipo auditorio con aforos diferenciados, abiertos hacia el norte y con circulaciones horizontales y verticales al sur, como se ve en la figura 5.

La tendencia estructural de la arquitectura moderna salvadoreña desarrolló un tercer eje de trabajo a través de diversos ejercicios de integración plástica (Rivera, 2017), en los que el concreto siguió siendo protagónico, pero articulado a expresiones artísticas modernas, a través de murales, vitrales y esculturas. Los edificios religiosos fueron un escenario propicio para estas experimentaciones; probablemente, la obra más representativa, en tal sentido, fue la Iglesia del Rosario (1971), de R. Martínez, en el centro de San Salvador. Este templo, que responde a las disposiciones litúrgicas del Concilio Vaticano II, con el altar en el centro del espacio, se estructura a partir de dos grandes arcos parabólicos de concreto de 70 m de luz, unidos por una serie de vigas Vierendeel escalonadas, dentro de las cuales se insertan vitrales que permiten un artístico manejo de la luz, la ventilación y la materialidad, como se ve en las figuras 6 y 7; todo eso, combinado con una notable serie de esculturas en concreto y acero de desecho, obras del mismo diseñador.


La integración plástica también se manifestó en otras obras religiosas y civiles, incluyendo la Capilla de San Benito, de A. Sol (1968), que incorpora los frescos de Vaquero Turcios (Bahamond, 2011). También es significativa la pared hiperbólica del Monumento a la Revolución, de Reyes y Schulze (1958), y su mural mosaico en piedra volcánica de color, obra de C. Cevallos y V. Bonilla. La misma intención integradora aparece en varias residencias de R. Carbonell que incorporan murales colados in situ y paneles repujados de lámina de cobre (Avendaño, 2017).
Todo esto hace eco de obras emblemáticas de la modernidad latinoamericana, tales como: el campus de la Universidad Nacional Autónoma de México (UNAM), con el trabajo de O'Gorman, Siqueiros, Pani y Rivera; la Universidad Central de Venezuela (UCV), con Villanueva y Calder, o del MESP, de Costa, Niemeyer, Burle-Marx y Portinari (Segre, 1999). En Centroamérica también es relevante considerar referente el conjunto del Centro Cívico de Guatemala, desarrollado durante la década de 1950 por Haeussler y Montes, y donde se integran los murales de Mérida, Goyri, Vásquez y Recinos (Monterroso, 2008).
En síntesis, la arquitectura moderna en El Salvador entre 1950 y 1980 encuentra algunas de sus mejores expresiones en diversos edificios que aprovechan las cualidades estructurales y plásticas del concreto armado. Estos proyectos están dominados por la regularidad de los marcos estructurales, la aparición de envolventes de control solar y climatización, la generación de planos curvos con paredes y cáscaras y, en los casos más depurados, la integración plástica de espacio, estructura y obras artísticas; todo ello, en coherencia con la superación definitiva del repertorio formal historicista, al mismo tiempo que se explora la adecuación a las condiciones del trópico.
Arquitectura para un lugar: tres aproximaciones orgánicas
Frank Lloyd Wright planteó sus ideas acerca de la arquitectura orgánica con las propuestas de casas de la pradera fundamentadas en un lenguaje consciente del lugar, la horizontalidad y la integración del espacio interior y exterior (Wright, 1901). Otros maestros europeos, como Alvar Aalto, también demostraron la compatibilidad entre el lenguaje moderno, la adaptación a las condiciones del sitio y la recuperación de tradiciones constructivas vernáculas, artesanía y uso de materiales del lugar. Más adelante, otras escuelas regionales, como la del sur de California, aportaron experimentaciones domésticas interesadas en el manejo climático y el uso de materiales industriales livianos con una expresión moderna (Frampton, 2000, p. 326; González-Franco & Nagel-Vega, 2019).
Todo eso llegó a tener un impacto relevante en la arquitectura de El Salvador entre 1950 y 1980, en lo que puede reconocerse como una segunda tendencia de la arquitectura moderna local, identificada como orgánica. Esta puede estudiarse en torno a tres variaciones: una más wrightiana; otra, más vernácula y paisajista, y una tercera, más compleja y sintética. Es de gran valor simbólico que esta aproximación orgánica llegó al país de la mano con el mismo Wright y su propuesta para el almacén Freund, en el centro de San Salvador (1954), y que se muestra en la figura 8, aunque nunca se ejecutó.

No obstante, el influjo wrightiano se materializó en el país a través de una serie de discípulos y seguidores locales, entre quienes sobresale J. Paz-Larín, uno de los primeros arquitectos graduados de la UES. Paz-Larín hizo una interpretación local del lenguaje orgánico en diversas residencias; especialmente, la Alfaro (1968), donde se destacan la conexión del espacio interno y externo por medio de voladizos y terrazas, el uso delicado de la mampostería de bloque de concreto, la adaptación topográfica, la atención a elementos como las cubiertas de pendiente pronunciada, los acentos verticales de piedra volcánica y las persianas horizontales de madera en las ventanas, tal como se ve en la figura 9.

Una segunda línea de arquitectura moderna consciente del lugar se origina en proyectos interesados en temas paisajísticos y la recuperación de la espacialidad y la materialidad de la arquitectura vernácula salvadoreña. Una pieza notable en ese sentido fue la destruida "Cabaña" (1980) para investigadores del proyecto de restauración de la hacienda La Bermuda por B. Pohl. Esta obra tenía la intención de revalorizar algunas características clave de la arquitectura colonial local, desde una mirada austera y respetuosa del edificio patrimonial vecino, a través del uso renovado del adobe sobre un basamento de piedra bola, la recreación del patio central alrededor de un árbol existente y la cubierta de teja de fuerte pendiente y aleros, como se aprecia en la figura 10.

Desde ese mismo enfoque de recuperación de lo vernáculo y la naturaleza hay que destacar varios proyectos de centros recreativos, promovidos desde el Estado a través de la Junta Nacional de Turismo, posteriormente Instituto Salvadoreño de Turismo (ISTU), cuyo ejemplo más destacado es el Hotel de Montaña del Cerro Verde. Este edificio, obra de R. Suárez y F. Morales (1956), se organiza a partir de una composición en varios volúmenes extrovertidos hacia la espectacular vista del volcán de Izalco, por medio de voladizos y terrazas que remarcan la horizontalidad y las visuales, los cuales, no obstante, mantienen una presencia discreta en el sitio a través de un manejo sabio de la escala. En el proyecto destacan, además, el uso de materiales como piedra volcánica y madera combinados con elementos industriales como vidrio y estructuras metálicas, según lo ilustra la figura 11.

El tercer conjunto de edificaciones orgánicas modernas en El Salvador se caracteriza por el manejo consciente de la escala doméstica, la complejidad geométrica y la actitud crítica hacia la ortodoxia moderna y el lenguaje "internacional". De gran relevancia es la producción de Sistema Consultores (A. Harth, A. Zúniga & C. Heymans) en la segunda fase del plan maestro del campus de la UCA, por medio de tres edificios: la rectoría original (1979) y los cubículos de profesores A y B (1979), que se aprecian en la figura 12. Estos edificios están conformados por tres cuerpos de diferente tamaño, dispuestos en torno a un vestíbulo interior de doble altura con puentes que unen los diferentes cuerpos y potencian la fluidez espacial, la ventilación cruzada y el contacto con la naturaleza. En todos ellos destaca la combinación de materiales tradicionales como el ladrillo de barro, la piedra laja y las cubiertas de teja, empleados en una espacialidad moderna, fragmentaria, que reduce la escala de los edificios, y así les da un carácter doméstico y austero que, como dice Segre (2003, p. 6), al hablar de sincretismo ambiental, "asume las constantes del lugar" y combina conocimiento profesional y tradición.

En resumen, durante esos 30 años la arquitectura moderna salvadoreña produjo múltiples obras de acento orgánico: unas son más wrigh tianas, por sus alusiones formales y el repertorio de materiales; otras, más interesadas en la reelaboración del vernáculo y el aprovechamiento del paisaje, y un último grupo de edificaciones, más sintéticas, y donde se integran exploraciones en torno a la materialidad, la geometría, y la fragmentación de los volúmenes. Todos estos proyectos comparten la escala modesta, el interés paisajista a través del manejo de vistas, la orientación solar, la vegetación y la exploración del tema del edifico como organismo que se descompone y se reintegra para reducir la escala, facilitar su permeabilidad y adaptarse al sitio.
Zevi (1999, p. 73) lo interpreta como un ejercicio de reintegración dinámica entre edificio y territorio, lo que favorece recorridos multidireccionales, y la articulación, o bricolaje, entre piezas independientes, que en climas tropicales favorece la "respiración" de los edificios, como Vázquez-Ramos, a su vez, lo ha interpretado para la obra de Almeida (2017). Autores como Arango (1989, p. 230) han identificado esta corriente no tanto como orgánica, sino como topológica, ya que plantea los valores del lugar en su sentido más amplio: clima, vistas, relieve, vegetación, tradiciones y materiales locales, como la matriz para hacer arquitectura sin perseguir el avance técnico expresado en el concreto y, por lo tanto, asumiendo una actitud más crítica respecto a los alardes tecnológicos y plásticos del lenguaje de la arquitectura internacional.
Discusión
Puntos para el debate sobre la arquitectura moderna en El Salvador
Hacer un ejercicio de interpretación de las dos tendencias de la arquitectura moderna salvadoreña facilita identificar varios temas de interés para la discusión, puntos compartidos y diferencias, que contribuyen a situar la modernidad arquitectónica del país en el contexto latinoamericano y proponer orientaciones para la práctica contemporánea.
En primer lugar, el recorrido de las obras comentadas permite reconocer matices e intereses diferenciados entre los proyectistas de la época, lo que reafirma una gradual dinámica de adaptación del lenguaje moderno a las condiciones particulares del país. Se trata del aprovechamiento diferenciado de las posibilidades técnicas locales, que oscilan entre los potenciales constructivos y formales del hormigón armado y la recuperación y la integración de una paleta de materiales y tecnologías vernáculas: palma, teja, madera rolliza, ladrillo de barro y piedra dentro de una espacialidad moderna, lo cual habla de la persistencia de un saber hacer constructivo tradicional en el siglo XX que se sobrepone a técnicas más industriales y nuevas capacidades de diseño, cálculo y construcción, como lo han explicado Galindo-Díaz (2018), en el caso de Colombia, o Martínez-García (2015), en el de Nicaragua. Esto resulta en una distinción en términos de escala, que tiende a ser más monumental en las obras racionalistas estructurales, y más doméstica en las orgánicas, como se muestra en la figura 13.

Lo anterior permite cuestionar la idea de que la arquitectura moderna salvadoreña haya resultado de una simple importación de formas y tecnologías o de la adopción de un lenguaje arquitectónico unívoco, y pone en valor una práctica de diseño más pluralista y de reelaboración de los códigos internacionales, como sucedió en toda América Latina y otras regiones periféricas.
Se trata pues de un ejercicio que puede asemejarse a lo que Frampton (2000) conceptualiza como regionalismo crítico (p. 326), que Segre (2003) en el contexto caribeño ha denominado sincretismo ambiental (p. 3), y Guedes y Widodo (2020), a nivel planetario, han llamado tropical.
En segundo lugar, no debe confundirse esta distinción entre las tendencias estructural y orgánica con antagonismo, ya que hay múltiples puntos de encuentro entre ellas, en términos de adaptación al trópico e integración de otras expresiones artísticas. Como se ha visto, algunas obras de la corriente estructural, incluyendo la capitanía de Acajutla, se interesan en la elaboración de las envolventes como elementos de protección solar y climatización pasiva (Galindo-Díaz et al., 2020), la secuencia y la transición entre espacios interiores y exteriores y la alusión a formas naturales; así mismo se hizo en los proyectos de inspiración orgánica, lo que es consistente con lo que Segre (2003, p. 3) ha denominado la apropiación de las constantes del lugar: clima y materiales. De ahí que buena parte de las realizaciones más emblemáticas de este periodo, independientemente de su carácter estructural u orgánico, terminaran reencontrándose con una inclinación secular por las obras de escala doméstica; sobre todo, viviendas unifamiliares y edificios fragmentados en piezas menores, abiertos a la naturaleza y adecuados a su entorno, como antes había sucedido en la arquitectura prehispánica, colonial y republicana de El Salvador, lo cual remite a la inclinación por la pequeña escala, que Frampton identifica como una de las características del regionalismo crítico (2000, p. 326).
De igual forma, el interés en la integración plástica es un punto común en los proyectos comentados. Ello sería el resultado de un aparente diálogo entre diseñadores arquitectónicos, paisajistas y artistas plásticos que eran profesores de la nueva carrera de arquitectura en la UES (Rivera, 2017). Esta integración y este diálogo se han señalado como factores clave en el advenimiento de una arquitectura moderna propia en diversas regiones del mundo, como explican Rueda (2015), Sosa y Alonso-Rohner (2019) y Cohen et al. (2019) en Guadalajara, España y Francia. Se debe valorar, entonces, la continuidad entre los diseños racionalistas estructurales de Reyes y Shulze, de R. Carbonell y de R. Martínez, animados por sus murales, sus vitrales y sus esculturas, y las obras orgánicas de Suárez y Morales, integradas al paisajismo. En estos casos, los elementos artísticos superan lo ornamental y se convierten en parte integral de la estructura y la expresión formal de las edificaciones (Avendaño, 2017); no obstante, a diferencia de otras realizaciones latinoamericanas, las creaciones salvadoreñas se enfocan más en temas abstractos y religiosos, y menos, en la reelaboración de elementos distintivos locales, como lo prehispánico o lo popular... probablemente, por estar asociadas a viviendas particulares y templos, más que a edificios públicos, como en el resto de la región.
Un tercer elemento de continuidad en ambas tendencias es su permeabilidad a la influencia internacional, a través de dos canales: el trabajo de extranjeros y la formación de profesionales locales fuera del país. Diseñadores como Schõtt, Katstaller, Shulze, Cevallos y el mismo Wright dejaron una huella directa en algunas de las obras más emblemáticas de la arquitectura moderna salvadoreña; además, varios de ellos se integraron a la planta docente de la UES, donde incidieron en la formación de los nuevos profesionales locales (Rivera, 2017). Por otra parte, salvadoreños como: De Sola, Harth, Rodríguez y Zúniga, formados en Estados Unidos; Sol y Carbonell, en Europa, y Yanes-Díaz y otros, en México, pusieron en práctica la arquitectura moderna aprendida en esos países, e intentaron, desde diversas aproximaciones, adecuarla a las condiciones del país evitando una traslación mecánica, en una actitud que Guedes y Widodo (2020) consideran propia de la arquitectura tropical. De igual forma, estos personajes se incorporaron a la universidad, donde contribuyeron a la consolidación de la disciplina y a la formación local de profesionales como Martínez, Paz-Larín o Pohl. Esta movilidad de individuos e ideas vinculados a la Modernidad es un tema común en la región latinoamericana, como lo han documentado Segre (1999), Esteban-Maluenda (2016) y Ávila-Gómez (2019), y en América Central, según lo explicado por Tejeira-Davis (2007), Monge (2016) y Solano-Meza (2020).
Finalmente, en las dos corrientes analizadas sobresale el papel clave del Estado como promotor de la arquitectura moderna, a través de instituciones públicas como DUA, IVU, ISTU y la UES. Obras destacadas en este relato, como la capitanía de Acajutla o el Hotel de Montaña, fueron promovidas, diseñadas y ejecutadas desde el aparato público, que contribuyó, entonces, a impulsar, consolidar y difundir el lenguaje moderno; no obstante, hubo una preferencia institucional por el lenguaje racionalista estructural, con tendencia a la monumentalidad en los edificios públicos por sobre el orgánico, más frecuente en los proyectos privados de escala doméstica y en los espacios recreativos. Se evidencia así, en el caso salvadoreño, lo que Cavalcanti (2001) ya ha observado para Brasil, en tanto el Estado buscó, por un lado, construir un "capital simbólico nacional" a través de diversos edificios públicos consistentes con una visión de "modernización" y, por otro, atender su "deber ético" (p. 14) a través de proyectos de espacio público. Se confirma, pues, lo planteado por Browne (1988), en términos de una visión desarrollista de la arquitectura moderna como "propulsora" de modernización por delante de la realidad socioeconómica de un país que hasta 1980 era todavía predominantemente rural, con una economía agroexportadora fundamentada en el café, el algodón y la caña de azúcar, y con una industrialización incipiente. Esto coincide con lo explicado por Müller y Parera (2016) sobre la naturaleza de la arquitectura latinoamericana impulsada desde el Estado, más interesado en la "progresiva asimilación de la técnica moderna" que en abordar las limitantes locales en términos tecnológicos, constructivos, políticos y culturales.
Conclusiones
La guerra civil que se desencadenó en El Salvador entre 1980 y 1992 interrumpió de forma violenta la producción de arquitectura, y puso de manifiesto las tensiones y las contradicciones de la realidad socioeconómica que sirvió de marco a la Modernidad arquitectónica, incluyendo las disputas en torno a la reforma agraria, la movilización social y el autoritarismo militar. Se inició así un ciclo de limitada inversión pública y privada que restringió las oportunidades para los diseñadores y dificultó la acumulación de las experiencias precedentes; además, la devastación del centro de San Salvador con el terremoto de 1986 eliminó o provocó el abandono de algunas de las edificaciones mencionadas, y así creó una discontinuidad en la práctica del diseño. Este quiebre abrió un nuevo periodo de la arquitectura salvadoreña del siglo XXI, todavía por estudiarse.
De ahí que este recorrido por la arquitectura moderna salvadoreña permita extraer tres conclusiones. Primero, la revisión de las tendencias racionalista estructural y orgánica pone en valor un ejercicio de asimilación consciente del lenguaje moderno internacional, por medio de adaptaciones climáticas y exploraciones tecnológicas que pusieron en valor elementos de protección como cortasoles, aleros y celosías. También se experimentó la secuencia entre espacios interiores y exteriores: a través de patios y corredores, se elaboraron obras notables por su emplazamiento en el paisaje natural y el aprovechamiento de visuales y relieve. Lo tecnológico se abordó, ya sea vía la integración de lo vernáculo al lenguaje moderno, o bien, por la adaptación de los sistemas industriales. Por una parte, los diseñadores orgánicos salvadoreños se interesaron en el uso de materiales locales y la reinterpretación de elementos y tecnologías tradicionales como el rancho o el adobe. Por otra, los sistemas más industriales -particularmente, el hormigón armado- no dejaron de producirse de forma artesanal y con acabados rústicos; incluso en los murales y las esculturas integrados a los edificios, se experimentó con materiales locales como piedra volcánica y desechos.
Como ya se ha dicho, estos valiosos ejercicios de adaptación climática y tecnológica a través de lo vernáculo y de la puesta en valor de la escala doméstica hablan de una reelaboración de ideas y modelos internacionales que podrían asociarse al "sincretismo ambiental" (Segre, 2003). A ello se debe agregar la importancia del aporte de personajes extranjeros y locales, formados fuera del país, que contribuyeron a través de sus obras y de la formación de nuevos profesionales a consolidar la modernidad arquitectónica. A pesar de esto, en el caso salvadoreño es difícil hablar de un diálogo o un intercambio verdaderos entre las adaptaciones locales y los códigos internacionales o latinoamericanos. Tal cual lo ha documentado Esteban-Maluenda (2019), a diferencia de las obras de países como Brasil, México y Venezuela, o de personajes como Niemeyer, Candela o Villanueva, las realizaciones de la arquitectura moderna salvadoreña entre 1950 y 1980 no salieron del ámbito estrictamente nacional. La limitada documentación de las obras construidas, publicaciones y reflexiones sobre la arquitectura local restringieron dicha posibilidad. La revista Arquitectura, del CADES, se publicó de forma discontinua, y fueron excepcionales los libros sobre arquitectura colonial de Yanes-Díaz (1970) e historia de la arquitectura salvadoreña contemporánea de Monedero (1970). En próximos trabajos queda por estudiar también la contribución potencial de las revistas de arquitectura en cuanto a facilitar la permeabilidad del ejercicio profesional salvadoreño a la influencia internacional, como lo han hecho Esteban-Maluenda (2019) para toda la región; González-Franco y Nagel-Vega (2019), para México, o Solano-Meza (2020), para Costa Rica. De igual forma, queda pendiente para futuras investigaciones contrastar las principales realizaciones del periodo con las que se dieron en el resto de Centroamérica o en las regiones de referencia que las inspiraron: México, Brasil y California; de hecho, esas restricciones -ante todo, culturales-, en términos de análisis, crítica y difusión de la arquitectura, han dificultado que dentro del mismo país se otorgue a estos proyectos modernos el valor estético, histórico y patrimonial que se merecen.
Por último, el estudio de la arquitectura moderna en El Salvador entre 1950 y 1980 destaca como elemento distintivo el valor otorgado al diseño de lo público: espacios abiertos y edificios institucionales resueltos ya sea desde una aproximación estructural o desde una orgánica. En ello, como en el resto de América Latina, el Estado jugó un papel central; no obstante, queda por ver si este programa edilicio orientado hacia la primacía de lo colectivo tuvo o no su correlato en el abordaje de lo urbano. En la línea de lo ya hecho por Chicas (2017) y Barahona (2017), está pendiente de exploración en estudios posteriores si las realizaciones en materia de diseño de conjuntos habitacionales, desarrollos urbanísticos y grandes obras de infraestructura permitieron materializar en El Salvador algunos de los ideales originales del movimiento moderno, si trascendieron del discurso desarrollista y si dieron una respuesta apropiada a los procesos de urbanización emergentes en la segunda mitad del siglo XX.
De igual forma, habrá que profundizar en futuras reflexiones sobre un análisis detallado de las obras artísticas como murales, vitrales y esculturas que se integraron a los edificios modernos, y las cuales tienen su propio valor estético, simbólico y tecnológico.
Finalmente, el análisis de estas dos tendencias, racionalista estructural y orgánica, permite extraer cuatro orientaciones para la práctica contemporánea del diseño en el país. Primero, aprovechar la exploración de diversas estrategias de climatización y diseño solar pasivo, conforme a las preocupaciones ambientales de la sociedad actual. Segundo, promover un ejercicio más experimental y, a la vez, más abierto a la expresión artística y lo popular integrado en la arquitectura. Tercero, retomar el interés en lo público en temas clave como la vivienda, los espacios abiertos y lo urbano, lo cual es urgente en un contexto de urbanización acelerada, vulnerabilidad ambiental e inseguridad; todo ello, como reflejo, en última instancia, de una renovada actitud de asimilación crítica e intercambio con los códigos, los lenguajes y las imágenes de la arquitectura internacional.
Referencias
Accesarte. (2013). Los recursos de la producción arquitectónica en El Salvador. Fundación Accesarte.
Arango, S. (1989). Historia de la Arquitectura en Colombia. Universidad Nacional de Colombia.
Arango, S. (2012). Arquitectura moderna Latinoamericana: el juego de las interpretaciones. Anales del Instituto de Arte Americano e Investigaciones Estéticas "Mario J. Buschiazzo" (1), 39-54. http://www.iaa.fadu.uba.ar/ojs/index.php/anales/article/view/71.
Avendaño, A. (2017). Integración del arte mural en la arquitectura residencial de Ricardo Carbonell. Revista Realidad, (150), 91-118. https://doi.org/10.5377/realidad.v0i150.6169.
Avendaño, A. (2018). Función habitacional del patrimonio cultural en el centro histórico de San Salvador. Estoa, Revista de la Facultad de Arquitectura y Urbanismo de la Universidad de Cuenca, 7(12), 71-81. https://doi.org/10.18537/est.v007.n012.a06.
Ávila-Gómez, A. (2019). Estudiantes latinoamericanos en el Institut D'Urbanisme de I'Université de Paris (1923-1941). Revista de Arquitectura (Bogotá), 21(2), 44-56. https://doi.org/10.14718/RevArq.2019.2L2.2154.
Bahamond, A. (2011). Procesos del arte en El Salvador. Dirección de Publicaciones e Impresos.
Bailey, G. (2016). The baroque churches of El Salvador. Burlington Magazine, 158(1360), 529-539. https://www.burlington.org.uk/archive/back-issues/201607.
Barahona, A. (2017). La vivienda social en El Salvador (1940-1980). Revista Realidad , (150), 65-90. https://doi.org/’10.5377/realidad.v0i150.6168.
Browne, E. (1988). Otra arquitectura en América Latina. Gustavo Gili.
Cavalcanti, L. (2001). Quando o Brasil era moderno: guia de arquitetura 1928-1960. Aeroplano.
Chicas-Molina, J. C. (2017). Historiografía de la vivienda mínima moderna en el Área Metropolitana de San Salvador: los años de la modernización urbana. AKADEMOS,1 (28), 50-77. https://doi.org/10.5377/akademos.v1i28.6158.
Cohen, J.-L., Ávila-Gómez, A., & Ruiz, D. C. (2019). Arquitectura modernidad modernización. Revista de Arquitectura (Bogotá) , 21(2), 126-142. https://doi.org/10.14718/RevArq.2019.2L2.2539.
Colquhoun, A. (2002). La arquitectura moderna, una historia desapasionada. Gustavo Gili.
Esteban-Maluenda, A. (2016). La arquitectura moderna en Latinoamérica. Antología de autores, obras y textos. Editorial Reverté.
Esteban-Maluenda, A. (2019). Intereses divididos: la arquitectura moderna latinoamericana en las revistas europeas después de la Segunda Guerra Mundial. Bitácora Arquitectura, (43), 34-47. https://doi.org/10.22201/fa.14058901p.2020.43.72948.
Frampton, K. (2000). Historia crítica de la arquitectura moderna. Gustavo Gili.
Galindo-Díaz, J. A. (2018). Láminas cilíndricas en la arquitectura colombiana del siglo XX. Revista de Arquitectura (Bogotá) , 20(2), 36-50. https://doi.org/10.14718/RevArq.2018.20.2.2057.
Galindo-Díaz, J., Osuna-Motta, I., & Marulanda-Montes, A. (2020). De componer la fachada a diseñar la envolvente: el ejemplo del arquitecto Juvenal Moya en Cali. Revista de Arquitectura (Bogotá) , 22(1), 94-106. https://doi.org/10.14718/RevArq.2020.2776.
González-Franco, L., & Nagel-Vega, V. (2019). Rastreando el noreste a vuelo de página. La modernidad regiomontana en las publicaciones de arquitectura (1943-1963). Bitácora Arquitectura , (43). https://doi.org/10.22201/fa.14058901p.2020.43.72955.
González-Pendás, M. (2017). Errores concretos o la magia de los cascarones. Bitácora Arquitectura , (37), 32-43. http://dx.doi.org/10.22201/fa.14058901p.2017.37.64829.
Guedes, P, & Widodo, J. (2020). South of cancer: Modern architecture's tropical diasporas. Docomomo Journal, 63, 4-5. https://dx.doi.org/10.52200/63.A.IN6GWK9B.
Gutiérrez, S. (2017). Presentación del dossier: arquitectura moderna en El Salvador. Realidad: revista de ciencias sociales y humanidades, (150), 5-8. https://doi.org/10.5377/realidad.v0i150.6165.
López-Pérez, J. (2016). Crítica y valoración de la arquitectura moderna. El método de Roberto Segre y Eliana Cárdenas. Academia XXII, 7(13), 95-109. https://doi.org/10.22201/fa.2007252Xp.2016.13.56307.
Martínez-García, G. (2015). Arquitectura moderna en Nicaragua 1960-1970, una aproximación a la obra de José F. Terán Callejas. Fundación Ortiz Gurdián.
Monge, L. A. (2016). Monografía arq. Alberto Linner Díaz: monografías de arquitectos costarricenses. Colegio de Arquitectos de Costa Rica.
Montaner, J. M. (2004). Arquitectura y crítica. Gustavo Gili.
Monterroso, R. (2008). Moderna: guía de arquitectura moderna de Ciudad de Guatemala. Ediciones alternativas del Centro Cultural de España/Guatemala.
Müller, L., & Parera, C. (2016). Arquitectura de sistemas y programas sociales en la Argentina desarrollista: del optimismo a lo posible. Arquitecturas del Sur, 34(49), 32-41. http://revistas.ubiobio.cl/index.php/AS/article/view/2259.
Pohl, B. (2013). El espacio. La Casa de Todos, (11), 25-40. https://revistalacasadetodos.wordpress.com/about/.
Rivas Merino, V. (2013). El legado gráfico arquitectónico de Armando Sol. Revista de Museología Koot (2), 9-25. https://doi.org/10.5377/koot.v0i2.1149.
Rivera, S. (2017). Modernidad arquitectónica en El Salvador: la estética de un ideal. Revista Realidad , (150), 9-40. https://doi.org/10.5377/realidad.v0i150.6166.
Rueda, C. (2015). La modernidad arquitectónica tapatía: el uso de elementos y recursos de la tradición constructiva. Estoa, Revista de la Facultad de Arquitectura y Urbanismo de la Universidad de Cuenca , 4(7), 29-36. https://doi.org/10.18537/est.v004.n007.04.
Salazar, L., Cañas, C., Ferrufino, C., & Regazzoli, J. (2016). Ernesto de Sola arquitecto. Editorial Kalina.
Segre, R. (1999). América Latina fin de milenio, raíces y perspectivas de su arquitectura. Arte y Literatura.
Segre, R. (2003). Arquitectura antillana del siglo XX. Arte y Literatura.
Solano-Meza, N. (2020). Narrativas del ambiente tropical y la consolidación de ciertos discursos disciplinares en la revista Habitar (Costa Rica 1990-2012). Bitácora Arquitectura , (43), 110-117. https://doi.org/10.22201/FA.14058901p.2020.43.72949.
Sosa, J. A., & Alonso Rohner, E. (2019). Ida y vuelta. Influencia exterior en la arquitectura española (en la modernidad, y algunas consecuencias). Estoa, Revista de la Facultad de Arquitectura y Urbanismo de la Universidad de Cuenca , 8(16), 97-109. https://doi.org/10.18537/est.v008.n016.a08.
Tafuri, M. (1997). Teorías e historia de la arquitectura. Celeste Ediciones.
Tejeira Davis, E. (2007). Quinientos años de arquitectura en Panamá. En E. Tejeira Davis, Panamá: guía de arquitectura y paisaje (pp. 85-175). Consejería de Obras Públicas y Transportes / Instituto Panameño de Turismo.
UCA. (2015). Estética y política, modernización cultural en El Salvador (1940-1980), informe de investigación. Departamento de Organización del Espacio y Departamento de Comunicaciones y Cultura, Universidad Centroamericana José Simeón Cañas (UCA).
Vázquez-Ramos, F. G. (2017). Cuadros de una exposición: promenade architectural por la obra de Eduardo de Almeida. Revista de Arquitectura (Bogotá) , 19(2), 28-43. https://doi.org/10.14718/RevArq.2017.19.2.78.
Wright, F. L. (1901). A home in a Prairie Town. Ladie's Home Journal, 17. S#0045.00.0207.
Zevi, B. (1999). Leer, escribir, hablar arquitectura. Gustavo Gili.
Notas