Artigos
El colegio Cuestas Blancas de Miguel Fisac (Madrid, 1965): Nuevas estrategias para una nueva arquitectura escolar
The Cuestas Blancas School by Miguel Fisac (Madrid, 1965): New approaches for a new school building
El colegio Cuestas Blancas de Miguel Fisac (Madrid, 1965): Nuevas estrategias para una nueva arquitectura escolar
Arquitetura Revista, vol. 14, núm. 1, pp. 1-16, 2018
Unisinos
Recepción: 29 Septiembre 2015
Aprobación: 22 Enero 2018
RESUMEN: Las décadas de 1950 a 1960 suponen un momento destacado en la reformulación del edificio escolar a nivel mundial y coinciden, además, con la construcción de un gran número de estos centros en España. En este contexto, Miguel Fisac tuvo la oportunidad de construir numerosos edificios de enseñanza e, incluso, de participar en reuniones internacionales sobre la materia. El colegio Cuestas Blancas, construido en Madrid en 1965, supone el resultado más depurado de su experiencia en este tipo de edificios. El trabajo analiza en detalle esta obra de Fisac con el objetivo de identificar sus valores y aportaciones particulares. El estudio se enmarca en una investigación de mayor envergadura sobre edificios educativos, lo que permite situar la obra respecto a los avances en la materia de su época. El colegio Cuestas Blancas supone un ejemplo destacado de arquitectura escolar, con un esquema novedoso y gran riqueza espacial, cuyos valores se mantienen vigentes en nuestros días.
Palabras clave: edificios escolares, España, Arquitectura Moderna, siglo XX, historia.
ABSTRACT: In the 1950s and 1960s, school buildings were rethought worldwide according to new necessities and a large number of education centres were also built in Spain. In this context, Miguel Fisac had the opportunity to design many school buildings and to attend specialised international meetings. The Cuestas Blancas School was built in Madrid in 1965 and became the most refined result of the Fisac’s experience in this kind of building. The work analyses in detail the Cuestas Blancas School to identify its values and particular contributions. The study forms part of a broader research project about school buildings, which allows placing the building of Fisac in relation to the school building advances of that time. The Cuestas Blancas School is a prominent example of school architecture, with an innovative organization and spatial wealth, that maintains its values up to the present.
Keywords: school buildings, Spain, Modern Architecture, 20th Century, history.
La reformulación del espacio educativo
A mediados de siglo XX, la arquitectura escolar despertó un gran interés a nivel internacional y, desde distintas instituciones, se promovió la reformulación de estos edificios de acuerdo con las nuevas necesidades. En 1951, La Unión Internacional de Arquitectos y la UNESCO crearon la Comisión de Construcciones Escolares, presidida por el arquitecto suizo Alfred Roth, y sus estudios y recomendaciones se convirtieron en una referencia internacional (Roth, 1950, 1957, 1961 y 1966; Union Internationale des Arquitectes, 1954-1965). Si bien la actualización de los modelos había comenzado en la década de 1930, donde se abordaron aspectos relativos a la iluminación, ventilación y relación de las aulas con el exterior, en este momento se empezaron a considerar nuevos aspectos vinculados a las nuevas prácticas pedagógicas (Durá et al., 2016), en las que los alumnos cobraban mayor protagonismo.
Este periodo coincidió con una etapa destacada de la historia de la arquitectura española y además un momento en el que, por su contexto social y político, la enseñanza primaria desempeñó un papel fundamental en el desarrollo del país3. En 1956, el Estado emprendió un ambicioso programa de construcción de escuelas, el Plan Nacional de Construcciones Escolares, que se prolongó, en sucesivas etapas, hasta 1972. La construcción de nuevos centros fue aparejada al fomento de la investigación y mejora de los espacios de enseñanza. En este marco, se definieron nuevas soluciones sin precedentes que propiciaron una transformación considerable de la arquitectura escolar (Durá Gúrpide, 2013 y 2015).
Asimismo, se produjo una gran expansión de la enseñanza privada en el país. Los sucesivos planes de construcción de escuelas promovidos por el Estado se vieron desbordados ante la creciente demanda de nuevos puestos escolares y se buscó promover la colaboración de la iniciativa no estatal para alcanzar los objetivos mediante subvenciones. Las instituciones privadas se sumaron a la tarea convencidas de la necesidad de una renovación acorde a las nuevas demandas sociales y educativas. Atendieron a las experiencias pioneras internacionales y acudieron a arquitectos destacados para la construcción de los nuevos centros.
La Iglesia experimentó al mismo tiempo una importante renovación que tendría repercusión en sus edificios educativos. En 1959, Juan XXIII convocó el Concilio Vaticano II con el propósito de acercar el catolicismo a la realidad y las necesidades de su tiempo. En el ámbito de la educación, se estableció como prioridad la integración de la escuela católica en la sociedad y se orientó su doctrina a favor del progreso cultural. Como consecuencia, se entendió la necesidad de sustituir los centros educativos de modelo conventual por otros más acordes a las circunstancias del momento y vinculados a la comunidad.
En ese contexto, Monseñor Morcillo, arzobispo de Madrid, animó a las congregaciones religiosas a colaborar en la ambiciosa labor de construcción de escuelas que estaba realizando el Estado. Los nuevos colegios católicos deberían distribuirse de manera equitativa en la ciudad para completar la oferta. A esta iniciativa se sumaron las Religiosas de la Asunción4, que abandonaron su ámbito conventual para aventurarse en la construcción de un edificio escolar moderno al servicio de las nuevas demandas sociales en educación, el colegio Cuestas Blancas. La elaboración del proyecto se confió a Miguel Fisac, arquitecto de prestigio con una amplia experiencia en edificios docentes5.
La venta de una parte de las propiedades urbanas de la congregación desencadenó el rápido proceso de construcción del nuevo centro. Se decidió emplazar el colegio en la zona norte de la ciudad que, en ese momento, se encontraba con menor oferta de centros educativos. El edificio se construiría a la altura del km 7.800 de la autopista de Madrid a Burgos6. Se trataba de un solar de 30.520 m2 muy irregular, tanto en su perímetro como en su topografía, situado en la cima de una colina con marcada pendiente descendente hacia el este.
El nuevo centro tendría una capacidad para 1.500 alumnas de educación infantil, primaria y bachillerato elemental y superior (educación secundaria), internado y una residencia para religiosas. El programa del colegio era amplio e incluía distintos tipos de espacios con la vocación de asegurar una formación integral de las alumnas: aulas, laboratorios, biblioteca, salón de actos, capilla e instalaciones deportivas. Las indicaciones de la dirección del colegio respecto del nuevo edificio fueron muy precisas: querían evitar el aspecto cuartelero que los grandes corredores y las series repetitivas de aulas podían proporcionar a un colegio tan extenso. Se indicó el deseo de conseguir una disposición de aulas en distintos grupos y se insistió en realizar una construcción sólida, pero austera. Este sería el reto al que se enfrentaría Miguel Fisac.
Bagaje sobre arquitectura escolar: obras y reuniones internacionales
Los años cincuenta y sesenta fueron un período muy intenso en la carrera profesional de Fisac en el que elaboró más de ciento cincuenta proyectos. Además, tuvo la oportunidad de realizar distintos viajes para conocer la arquitectura de vanguardia que completaron su formación y contribuyeron a establecer las bases que regirían su obra (Maruri, 1997, p. 17-18). Ambas circunstancias serían particularmente determinantes en la definición de sus proyectos de arquitectura docente. Por un lado, construyó numerosos edificios de enseñanza, lo que le permitió disfrutar de un amplio campo de pruebas (Tabla 1). Por otro, a través de sus viajes y de la participación en reuniones internacionales sobre construcciones escolares, conoció obras ejemplares y la discusión internacional sobre la materia. Así, su obra escolar consiguió trazar una línea de desarrollo continuo, de manera que las sucesivas tentativas se apoyaban en las obras precedentes y añadían nuevas aportaciones.

Fisac se inició en la arquitectura escolar con los centros de enseñanza media y profesional, conocidos como institutos laborales; fue uno de los pioneros en la definición de los edificios de este nivel educativo en España7. En 1950, construyó el instituto laboral de Daimiel (Ciudad Real) (Figura 1), un año más tarde el de Almendralejo (Badajoz) y, en 1952, el de Hellín (Albacete). Estos proyectos compartían una similar organización funcional; se desarrollaban en una sola planta y tenían dos áreas diferenciadas, la de aulas y la de talleres, que a su vez se vinculaban en un extremo por un área compartida que servía de acceso, salón de actos y administración. Además, cabe destacar los estudios minuciosos realizados de la iluminación, ventilación y acústica de cada espacio, acordes a su actividad. Los proyectos citados fueron publicados en la Revista Nacional de Arquitectura (Fisac, 1953b) con la intención de servir como modelo para el Concurso de Institutos Laborales de 1954.

Fisac participó también en este concurso; su propuesta tenía una organización similar a sus obras anteriores, pero incorporaba un patio a la zona común que mejoraba la articulación de las distintas partes del edificio y se convertía en el espacio central y representativo de la actividad del centro. El arquitecto suizo William Dunkel, experto invitado como jurado, destacó como aciertos de la propuesta la organización de los diferentes sectores, la disposición del vestíbulo que funcionaba como distribuidor, la separación de las zonas de ruido y silencio, y la solución constructiva planteada. En su contra, observó las dificultades para ampliar el programa de talleres y la proximidad del porche cubierto a la biblioteca. Finalmente, la propuesta obtuvo un accésit (Rodríguez et al., 1954).
En 1951, Fisac proyectó el colegio apostólico de los Padres Dominicos en Arcas Reales, Valladolid (Fisac, 1952 y 1955) (Figura 2). En este caso también se aseguraron las condiciones idóneas de iluminación, ventilación y acústica en las aulas, pero se adoptó una disposición según una figura en ‘espina’, con pabellones de aulas a cada uno de los lados del área central. El eje del conjunto conseguía en este caso un especial protagonismo al albergar una parte importante del programa: los servicios comunes en torno a un patio, donde se producía el acceso, y la capilla como núcleo central del conjunto. Para su construcción se empleó ladrillo en muros de carga y cerramientos, vigas de hormigón armado, galerías de pórticos de membrana de hormigón de gran expresividad plástica y piedra del lugar para el muro principal de la capilla. En el desarrollo de la obra, Fisac trabajó en colaboración con distintos artistas con el propósito de integrar las artes plásticas en su arquitectura, siendo esta una actitud constante a lo largo de su carrera (Cánovas, 1997, p. 66-73).

En las obras que le sucedieron, el esquema que venía desarrollando ganó flexibilidad y adoptó también un lenguaje más depurado. A este respecto, cabe destacar el Centro de Formación de Profesorado de Enseñanza Laboral (1953a) (Figura 3) y el Teologado de los Padres Dominicos (1955) (Figura 4), ambos en Madrid. En cada caso, las diferentes partes del conjunto se articulaban y acotaban patios que se integraban como espacios docentes al aire libre. En ambos edificios se empleó el ladrillo visto, se repitieron las marquesinas de hormigón y se incluyeron elementos escultóricos. No obstante, la segunda obra añadía una ventaja respecto a las anteriores: mantenía un patio de articulación principal ligado a la capilla, pero los pabellones de aulas ganaban en autonomía y se disponían de manera que permitían su ampliación y la agregación de nuevos cuerpos de aulas (Fisac, 1953a, 1958 y 1960).


A pesar de la dilatada experiencia de Fisac en materia de arquitectura docente, fueron escasos los centros dedicados a la enseñanza primaria que logró construir. Si bien estos edificios se insertaron en la línea de evolución de su obra escolar, incorporaron algunas particularidades propias de este grado. Como antecedente inmediato al colegio Cuestas Blancas, Fisac construyó el colegio de los Padres Jesuitas Santa María del Mar en La Coruña (Figura 5). El centro se situaba en un solar de pendiente pronunciada junto a la ría y, aunque en un principio el proyecto contempló un amplio programa distribuido en varias edificaciones, sólo llegó a construirse el edificio de educación primaria y de servicios generales (Fisac, 1962).

El proyecto de La Coruña garantizaba las vistas a la ría desde todas las aulas con una sección escalonada y, al mismo tiempo, delimitaba un patio como elemento de cohesión del centro, característico de sus obras previas. Una de sus mayores aportaciones fue la incorporación de los corredores como área docente complementaria. Los elementos de circulación se dimensionaron ampliamente y se integraron mesas y bancos que favorecían su aprovechamiento como lugar de trabajo de pequeños grupos o de reunión informal. En este caso, Fisac se sirvió de su trabajo en el campo de la prefabricación en hormigón armado para la construcción del centro.
Además de estas experiencias, cabe destacar como antecedente la participación de Miguel Fisac en reuniones internacionales sobre arquitectura escolar que le permitieron conocer ejemplos de vanguardia y participar en el debate sobre las nuevas posibilidades de estos edificios. Miguel Fisac formó parte, junto a Carlos de Miguel, de la sección española en las reuniones de la Comisión de Construcciones Escolares de la Unión Internacional de Arquitectos (UIA). Carlos de Miguel inició la representación española en 1956, Miguel Fisac se incorporó en 1962 y participó en las reuniones de México (1962), Hamburgo (1963), Lausanne (1964) y París (1965). En estos encuentros, conocieron a arquitectos con experiencia en la materia como Pedro Ramírez Vázquez (México), Gunther Wilhelm (Alemania), Jackes Marozeau (Marruecos), Ciro Cicconcelli (Italia), Jan Piet Kloos (Holanda), Enric Pawley (USA) y Jean Pierre Cahen (Suiza), entre otros (UIA, 1954-1965).
La participación española fue activa desde su comienzo y tuvo importantes contribuciones. En 1959, fue acogida la propuesta de Carlos de Miguel de cambiar el método de trabajo sustituyendo las discusiones de carácter teórico por el análisis de proyectos. En los siguientes encuentros, España fue uno de los protagonistas en el análisis de modelos de escuela rural y planteó la revisión de la Carta de Construcciones Escolares, elaborada en la reunión de la comisión en Rabat en 1958 (Comisión de Construcciones Escolares, 1959). El cambio de tema, de la escuela primaria a los centros de formación profesional en 1963, también fue iniciativa del equipo español. El entusiasmo demostrado por De Miguel y Fisac durante el periodo de preparación de la reunión de Hamburgo les sirvió para ser designados como referencia en el desarrollo del trabajo. Las fotografías de las reuniones revelan la participación activa de los dos arquitectos españoles, que fueron protagonistas de muchas de las instantáneas. Durante las visitas de arquitectura en México, De Miguel y Fisac conversaban con otros miembros y Fisac llevaba en todo momento su cámara fotográfica (Comisión de Construcciones Escolares, 1962) (Figura 6).

Estas experiencias previas, tanto la elaboración de edificios educativos como la participación en reuniones internacionales sobre el tema, establecieron el punto de partida del colegio Cuestas Blancas. Por un lado, su experiencia en arquitectura escolar le sirvió para comprobar y mejorar las soluciones progresivamente y, además, el conocimiento de ejemplos de vanguardia y del debate internacional le permitieron a Fisac incluir nuevas aportaciones y contribuir al desarrollo de la arquitectura escolar.
La fragmentación como estrategia de escala
El mayor reto que presentaba el proyecto del colegio Cuestas Blancas para Fisac suponía abordar un extenso programa que incluía distintos tipos de actividades y niveles educativos en un único centro y proporcionar, al mismo tiempo, una escala contenida que resultase agradable al niño, condición demandada desde la pedagogía. Además, la irregularidad del perímetro del terreno y su topografía dificultaba en gran medida la disposición de un edificio de gran tamaño. Por otro lado, la solución constructiva debía estar presente desde el planteamiento del proyecto debido a las limitaciones de tiempo para su ejecución. En suma, Fisac se enfrentaba a un proyecto de gran complejidad que exigía atender a un gran número de condicionantes8.
En los primeros croquis del proyecto, Fisac planteó un esquema similar al de sus edificios educativos previos: la distribución de los servicios comunes en torno a un patio, por el que se realizaba también el acceso, y la agrupación de las aulas por niveles distribuidas en el terreno (Figura 7). En esta ocasión, las unidades de aulas no se agruparon de manera lineal sino en torno a un espacio compartido. Sin embargo, en este caso el esquema presentaba importantes inconvenientes, principalmente derivados de la gran cantidad de programa dedicado a usos comunes que le conferían una escala masiva. Además, la gran cantidad de aulas exigía un extenso despliegue de esta zona que se distanciaba en exceso del núcleo de actividades comunes. Las particularidades del terreno harían también inviable esta primera opción que requería una vasta superficie para el desarrollo del área central.

Fisac reelaboró el esquema que establecía las relaciones entre cada una de las partes del programa en beneficio de una mayor cohesión entre los diferentes usos y una mayor integración de los grupos de aulas (Figura 8). El edificio se situó en el centro de la parcela, en el área de mayor extensión, y se desplegó en dirección este-oeste manteniendo una geometría ortogonal. Se optó por una organización fraccionada que distribuía el extenso programa en distintas áreas funcionales articuladas entre sí. La disposición quebrada permitía también acomodar el proyecto a las irregularidades del solar, tanto en superficie como en altura. Debido a la fuerte pendiente del solar, la edificación llegó a alcanzar diferencias de hasta doce metros de altura entre unas y otras rasantes.

El acceso se realizaba en la zona central, frente a la capilla, que suponía el elemento de mayor singularidad del colegio. Los espacios comunes — salón de actos, gimnasio, comedor, capilla y aulas especiales — se distribuyeron a lo largo del conjunto de manera que sirviesen como articulación entre las unidades de aulas. Tal disposición conseguía, al mismo tiempo, valorar el grado de autonomía de los espacios que componían el conjunto y adecuar la escala en cada caso. En síntesis, se trataba de una organización abierta de gran desarrollo que se adaptaba a las distintas cotas del terreno y conseguía una gran vinculación con los espacios exteriores, propiciando así una educación al aire libre en sintonía con la pedagogía moderna (Figura 9).

En el área del solar no edificada, el terreno se rectificó levemente para conseguir planos de aprovechamiento deportivo y zonas de arbolado y jardines. En el lado norte, se dispuso una cancha con gradas para distintas actividades y una zona de juegos infantiles; mientras que, en el lado opuesto, se distribuyeron distintas pistas deportivas. Los jardines y, sobre todo, las zonas arboladas se situaron en consonancia con los distintos módulos de la edificación que definían las áreas exteriores y acotaban las visuales.
Las distintas partes del conjunto estaban estrechamente relacionadas; no obstante, se distinguieron tres zonas para el desarrollo del proyecto, su documentación y construcción (Figura 10). Esta diferenciación respondía a tres áreas con servicios distintos — identificadas en los planos con las letras A, B y C — que, a pesar de estar comunicadas, guardaban cierta independencia en su funcionamiento. La denominada zona A, en el centro del conjunto, albergaba el acceso principal, las dependencias de administración, el comedor y la capilla. Al este, la zona B contenía el salón de actos y, a su alrededor, se disponía la residencia de religiosas, el internado, las aulas de educación infantil y de primaria. En el oeste, la zona C incluía las aulas de bachillerato, las aulas especiales y el gimnasio.

El acceso al recinto del colegio se realizaba desde el lado sur (Figura 11). La entrada al edificio estaba precedida por una plataforma definida por un muro de directriz curva donde se ubicaba el campanario, elemento singular de gran esbeltez. El ingreso al edificio se producía por la parte central, la zona A, a través de un volumen de una sola planta que incluía salas de visita, conserjería, secretaría y despachos de administración. El vestíbulo conducía a un gran espacio que servía de atrio para la capilla y enlazaba con las otras zonas del conjunto. El desnivel del terreno permitió situar una planta bajo la capilla que se destinó a comedor, almacén y local de instalaciones. La zona A se completaba con un volumen de dos plantas de uso residencial que incluía viviendas para los porteros, un apartamento para huésped y, en la segunda planta, alojamiento para cinco sacerdotes.

De acuerdo con el interés particular de Fisac por los espacios religiosos — constante en su trayectoria profesional —, la capilla del colegio contó con una situación destacada en el conjunto9. La capilla, con capacidad para 700 personas, disfrutaba de una ubicación central y poseía una geometría singular que contrastaba con la ortogonalidad predominante del edificio (Figura 12)10. Se optó por una configuración de la asamblea en abanico, para asegurar la proximidad de los fieles al altar. La sala estaba definida por una sucesión de semicilindros de hormigón, entre los que se realizaba el acceso, un muro curvo que contenía el presbiterio y una cubierta singular formada por vigas pretensadas. Fisac contempló en su diseño todos los elementos de la capilla — imágenes, sagrario, altar, ambón, órgano y bancos — en su empeño por la integración de las artes en su arquitectura; y para esta tarea contó con la colaboración del artista plástico Amadeo Gabino (Figura 13)11.


La zona B se extendía de manera perpendicular a la A y acotaba el patio de juegos principal. De manera semejante al área central, la zona B se desarrollaba en torno a otro espacio común, el salón de actos para 500 espectadores, al que se accedía desde la zona A aunque con acceso exterior propio. El programa residencial — convento e internado — se distribuía en dos volúmenes de tres plantas dispuestos de manera perpendicular al salón de actos, condición que les otorgaba cierta autonomía y les permitía disfrutar de un patio abierto propio. Las aulas de educación infantil y primaria se agrupaban en tres niveles, estaban orientadas al este y se vinculaban visualmente con el patio de juegos.
Desde el atrio central del edificio se prolongaba un corredor hacia el este que enlazaba con la zona C y vertebraba su programa correspondiente. Esta área comprendía dos unidades de aulas, para bachillerato elemental y superior, dispuestas en cuatro niveles, con orientación sur y este respectivamente. El segundo grupo de aulas establecía el remate del edificio en su extremo. Entre ambos grupos volvía a aparecer un elemento común que servía de aglutinador de esta zona: el gimnasio, situado en la parte sur y próximo a las pistas exteriores. Al otro lado del corredor, se situaban las aulas especiales: laboratorios, aulas de dibujo, aulas de música, etc.
La comunicación entre las diferentes áreas del centro era fluida, se realizaba a través de corredores que se adaptaban a los cambios de nivel mediante rampas y quiebres que servían también para controlar las perspectivas. La comunicación vertical entre las aulas se resolvía a través de rampas que reducían los inconvenientes de la agrupación en altura; estas facilitaban la accesibilidad de los alumnos y se convertían a su vez en un espacio lúdico (Figura 14). El empleo de escaleras se reservaba para áreas de uso exclusivo de adultos: la residencia de religiosas y, en los aularios, para comunicar los despachos de profesoras de los distintos niveles.

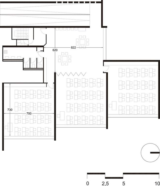
Los tres sectores docentes — educación infantil y primaria, bachillerato elemental y bachillerato superior — contaban con 500 alumnos cada uno. A su vez, cada sector agrupaba las aulas por cursos, separados por plantas, que formaban unidades docentes. La unidad de cada curso estaba formada por dos o tres aulas, un baño, un cuarto de profesoras y un amplio vestíbulo que vinculaba las distintas partes y propiciaba el desarrollo de actividades conjuntas. El aula central disponía de un panel plegable que le permitía abrirse completamente a este espacio y duplicar su superficie. Así, se conseguía una gran flexibilidad en la disposición de la clase para las distintas actividades, desde el trabajo individual al colectivo, y una mayor vinculación con los otros grupos.
Cada aula tenía una superficie libre de 51 m2, lo que suponía 1,28 m2 por alumno para grupos de cuarenta (Figura 15). Este valor era inferior al rango recomendado por las instituciones internacionales de 1,5-2,5 m2 por alumno (Comisión de Construcciones Escolares, 1959). Fisac redujo el área del aula individual a favor del área compartida y diluyó el límite entre ambas zonas educativas. El área compartida actuaría como extensión del aula y serviría para desarrollar distintas actividades docentes. Considerando la parte correspondiente del área común se alcanzaba un valor de 1,71 m2 por alumno, relación adecuada a los estándares (Figura 16). Además, las aulas se equiparon con un armario para material escolar y pupitres individuales que podían moverse con facilidad para adoptar distintas configuraciones y adecuarse a la diversidad curricular.


La flexibilidad del aula contemplada por Fisac en las aulas del colegio Cuestas Blancas era un tema de actualidad ligado a la pedagogía activa que había promovido Roth en The New School (Roth, 1950, 1957 y 1961) y desde su participación en la Comisión de Construcciones Escolares y que tuvo especial incidencia en proyectos contemporáneos como la escuela Montessori en Delft de Herman Hertzberger (1960-1966) (Hertzberger, 2008).
Finalmente, cabe destacar como un acierto la articulación del programa en torno a las zonas comunes que, a pesar de disponerse en áreas diferenciadas, mantenían una estrecha vinculación mediante circulaciones fluidas. Las secciones de aulas se organizaban en torno a los espacios comunes, pero, al mismo tiempo, disfrutaban de cierta autonomía, lo que les permitía adoptar una escala propia cercana a la doméstica. La fragmentación y el escalonamiento del programa posibilitaba interrumpir visuales prolongadas y acotar espacios de escala controlada, tanto interiores como exteriores. No obstante, a pesar de este tratamiento diferenciado a las distintas partes del programa, se reconocía al mismo tiempo la unidad del conjunto (Figura 17).

Cabe señalar que, en los últimos años, se habían planteado soluciones similares — de tipo disgregado — para escuelas de gran escala, tanto en España como en otros países europeos; no obstante, la escuela de Fisac destacaría por su estrategia particular de articulación y fragmentación volumétrica.
Sistemas constructivos: huesos y otros sistemas prefabricados
La realización del colegio Cuestas Blancas supuso un desafío constructivo para Fisac. Además de exigir austeridad en todos los aspectos del edificio, la congregación estableció un plazo de ejecución de la obra de seis meses, ya que, en esa fecha, el antiguo edificio del colegio tenía que desalojarse y trasladar su actividad al nuevo centro. La amplia experiencia profesional de Fisac hizo posible este desafío. Asimismo, fue decisiva la labor de la constructora Fersa, de Fernando Ortiz-Echagüe, para cumplir los plazos establecidos sin demasiadas dificultades.
Fisac aprovechó su experiencia en el campo de prefabricación del hormigón para lograr una ejecución eficaz de la obra (Figura 18). En los años 60, el limitado mercado nacional había llevado a Fisac a desarrollar sus propias soluciones constructivas. Su experimentación con el hormigón armado le condujo incluso a patentar sus inventos entre los que destacaron las vigas ‘hueso’ postensadas y pretensadas, que resolvían con un solo elemento los distintos requerimientos de una cubierta: estructura, aislamiento térmico, impermeabilización, iluminación cenital y acústica (González Blanco, 2007). También desarrolló otras piezas y sistemas prefabricados en hormigón como soluciones de fachada. Cuestas Blancas sería, en cierto modo, un singular catálogo de soluciones particulares ya comprobadas en sus obras previas.

La estructura del edificio consistía en muros y pórticos de hormigón armado con forjados de bloques cerámicos tipo ‘Ondax’. La cubierta estaba formada por piezas prefabricadas tubulares de hormigón armado en las aulas, el salón de actos, el pabellón de religiosas y el internado; y losa sobre los corredores. Las piezas prefabricadas de cubierta eran estructuras pretensadas de sección ‘Valladolid’ — empleadas previamente en otros de sus colegios12 — y salvaban luces de 12 a 20 m. El gimnasio se proyectó con una cubierta de vigas postensadas de sección ‘Barredo’, la misma que había sido empleada en el Centro de Estudios Hidrográficos; aunque, finalmente, se ejecutó una cubierta convencional.
El cerramiento de fachada, a pesar de su aspecto robusto, estaba compuesto por elementos prefabricados de hormigón armado huecos, empleados previamente en el Instituto de Química del CSIC. Estas piezas conseguían aligerar los muros y, al mismo tiempo, albergaban las instalaciones. Los prefabricados de los muros se curvaban en su encuentro con las ventanas que podían ser de dos tipos: huecos puntuales en los volúmenes residenciales y ventanas corridas en las aulas.
La iluminación fue otro de los aspectos importantes atendidos por Fisac; cada espacio tenía una iluminación acorde a la actividad que contendría. Cabe destacar el cuidadoso manejo de la iluminación en la capilla, el espacio más singular del conjunto. Por un lado, se proporcionaba una iluminación cenital uniforme a través de ventanas situadas entre los semicilindros y, además, se intensificaba en el altar a través del quiebre del muro principal y perforaciones puntuales en la cubierta. El gimnasio disponía también de iluminación cenital. Los espacios de circulación tenían una iluminación particular que acentuaba su carácter dinámico, las rampas contaban con bloques de vidrio dispuestos de manera alterna en toda la altura del muro y lucernarios en la cubierta. Por otro lado, las aulas se orientaban en dirección este y sur, para obtener la mayor intensidad lumínica en el horario escolar. En cambio, las aulas especiales lo hacían a norte para conseguir una luz homogénea que era más adecuada para las actividades de taller.
La iluminación de las aulas era especialmente generosa respecto a los estándares habituales. La superficie de iluminación de cada aula estaba conformada por cinco ventanas que cubrían la anchura total de uno de los lados (7 m). Las ventanas eran de dos anchuras distintas intercaladas, las dos de menor tamaño eran practicables y el resto fijas, y contaban con persianas para permitir el control lumínico. No obstante, las aulas carecían de iluminación bilateral y ventilación cruzada — condición beneficiosa para el confort del aula — como consecuencia de su disposición en altura. Esta carencia se minimizaba a través del vestíbulo compartido que permitía, especialmente en las aulas que podían abrirse totalmente, mejorar las condiciones de iluminación y ventilación.
El comportamiento acústico supone otro factor de especial relevancia en el diseño de arquitectura escolar. En este caso, el aislamiento acústico entre las aulas quedaba asegurado por los muros estructurales de hormigón que las separaban, de elevado factor másico. Las diferencias de nivel de las distintas partes del conjunto también contribuían a evitar interferencias entre distintas áreas de ruido. Por otro lado, en los grandes espacios de las salas comunes se buscaba optimizar su sonoridad. En estos casos, la geometría de las vigas ‘hueso’ de cubierta eran las principales responsables de garantizar un comportamiento acústico adecuado. Además, en el caso de la capilla, la secuencia de muros de sección semicircular dispuestos con su lado convexo hacia el interior funcionaba como reflectores de sonido incrementando así sus virtudes acústicas.
En todo caso, se buscó la máxima austeridad en la elección de los materiales, sin caer en malas calidades que perjudicaran su envejecimiento. El sistema de construcción en hormigón permitió prescindir de recubrimientos y dejar los muros vistos, tanto en su cara exterior como interior, lo que agilizó su ejecución. Los forjados de bloques cerámicos se cubrieron con placas de yeso que permitían incorporar las instalaciones de iluminación y la pavimentación se realizó de terrazo, por su alta resistencia y bajo coste. En suma, la construcción respondió a criterios de funcionalidad, fácil conservación, confort y sencillez que contribuyeron a la rotundidad de la propuesta arquitectónica.
Por otro lado, cabe destacar la gran expresividad plástica del conjunto, ligada al sistema constructivo empleado y a los mecanismos de articulación de las distintas áreas. El valor expresivo de la obra quedaba acentuado por la calidad y textura del hormigón de los muros y su contraste con las piezas delgadas y huecas de la cubierta que se prolongaban formando aleros. A pesar de la crudeza del hormigón, Fisac empleó mecanismos que suavizaban sus formas. Las fachadas de los aularios alternaban franjas de ventanas corridas con piezas prefabricadas de hormigón huecas que se curvaban en su encuentro con las ventanas; este recurso aportaba también dinamismo a las fachadas (Figura 19). Además, los muros pantalla de las áreas de circulación se perforaban para iluminar las rampas y, al mismo tiempo, minimizar su impacto visual.

La disposición articulada del programa y la adaptación del edificio al terreno en varios niveles definía una volumetría fraccionada que, al mismo tiempo, reconocía la unidad del conjunto con una proporción predominantemente horizontal. El mecanismo de articulación permitía controlar las visuales en el edificio, tanto desde el interior como desde el exterior. Se trataba de una búsqueda consciente del escorzo que trataba de evitar vistas frontales; esto permitía minimizar el impacto visual de un edificio de gran tamaño ofreciendo, en su lugar, una sucesión de espacios e escala controlada. Este planteamiento no era ajeno a las discusiones de los grupos internacionales de vanguardia, como el Team X13. La geometría se entendería como una herramienta eficaz para el control de la escala.
En la vanguardia de la arquitectura escolar
Como se ha señalado previamente, esta obra se construyó en un momento de reformulación del edificio escolar. Las transformaciones más relevantes en la materia se dieron a partir de una mayor vinculación de los espacios educativos con los sistemas de enseñanza contemporáneos que promovían una educación integral. Según las nuevas exigencias, la escuela debía ser un lugar para formar además de para instruir, y pasaron a considerarse como parámetros de diseño las necesidades físicas, afectivas y sociales de los alumnos. Fisac se alineó con una nueva manera de entender el espacio de la escuela, ya no como contenedor pasivo, sino como instrumento partícipe de la educación. El colegio Cuestas Blancas contribuiría al proceso de enriquecimiento de la calidad y diversidad espacial del edificio de la escuela en beneficio de la experiencia educativa.
Por otro lado, en los años 60, se generalizó por primera vez — tanto a nivel internacional como en el caso concreto de España — la construcción de escuelas de gran tamaño y grupos escolares, que integraban en un mismo edificio distintos niveles educativos (educación infantil, primaria y secundaria), como dejan patente las revistas especializadas de la época y las últimas ediciones de The New School (Roth, 1961 y 1966). Esta condición era consecuencia de la gran demanda de nuevos puestos escolares, debido a la extensión de la enseñanza y al elevado crecimiento demográfico en las ciudades, y a la elección de las escuelas graduadas de gran tamaño como opción de calidad educativa frente a las escuelas unitarias o de pocas aulas. Esta opción hacía posible también la amortización de las instalaciones especializadas; lo que permitía incorporar aulas complementarias, como laboratorios de ciencias y aulas para trabajos manuales, y la sustitución de la sala de usos múltiples por espacios específicos para cada actividad (gimnasio, salón de actos, comedor, ...).
El considerable aumento del programa hizo inviables los esquemas anteriores y exigió una reelaboración del edificio escolar. Esta condición se observa de manera clara en Cuestas Blancas, cuyo extenso programa obligó a Fisac a trascender la disposición adoptada en sus edificios educativos previos. En las escuelas de gran tamaño, la distribución del programa en una sola planta resultó impensable, por la gran superficie requerida, y la compactación de los recorridos se reveló insuficiente. La problemática de la arquitectura escolar se centró entonces en cuestiones de escala; el reto consistía en evitar edificios masivos a favor de soluciones que mantuviesen escalas controladas más cercanas a la doméstica. Para ello fue fundamental el estudio minucioso de las relaciones entre las partes del programa y el establecimiento de una jerarquía en la sucesión de los distintos espacios.
Además de la obra de Fisac, se construyeron en España en esa época otros centros escolares de gran tamaño que consiguieron resolver con brillantez las condiciones particulares de este nuevo tipo de edificios. Cabe destacar, entre otros, la escuela Sant Jordi en Pineda de Mar, de Josep Martorell, Oriol Bohigas y David Mackay (1967-1969); el colegio Estudio en Aravaca, de Fernando Higueras y Antonio Miró (1962-1968); el grupo escolar de Caño Roto en Madrid, de Antonio Vázquez de Castro y José Luis Íñiguez de Onzoño (1966-1969); el colegio Teresianas en Alicante, de Rafael de la Hoz (1964-1969); y el colegio Jesús y María en Zumaia de Luis Peña Ganchegui y Eduardo Mangada (1966-1970) (Durá Gúrpide, 2013; Landrove, 2010). Todos ellos compartirían características comunes como la contención de la escala, la riqueza espacial y la articulación de las partes. Sin embargo, el edificio de Fisac tendría aportaciones particulares relativas a su singular esquema de organización.
La disposición de las aulas en grupos en torno a un área compartida no era una novedad en el ámbito internacional. Uno de los primeros ejemplos había sido la escuela Heathcote en Scarsdale, Nueva York, de Lawrence Perkins y Philip Will (1953-1954)14. En este caso se dispuso un núcleo central de usos comunes desde el que se extendían los grupos de aulas. También existían ejemplos europeos conocidos como la escuela en Locarno, Suiza, de Dolf Schnebli (1960-1964). Werner Max Moser pondría de relieve esta estrategia en un artículo sobre arquitectura escolar (Moser, 1963) y, junto a sus socios Max Ernst Haefeli y Rudolf Steiger, utilizaría esta agrupación de aulas en el proyecto de la escuela primaria de Rapperswil-Jona (1960). No obstante, en estos casos, las aulas quedaban desvinculadas del área de usos comunes (Figura 20). Así bien, el acierto del proyecto de Fisac fue emplear el programa compartido como rótula entre los grupos de aulas para evitar una excesiva dispersión de estas.

El colegio Cuestas Blancas de Fisac tuvo una importante difusión a través de publicaciones de arquitectura. En 1969, el colegio Cuestas Blancas fue publicado en las revistas españolas Arquitectura, Nueva Forma, e Informes de la Construcción (Fisac, 1969a, 1969b y 1969c). Su repercusión fue tal que incluso sirvió como imagen publicitaria para la empresa constructora Fersa, responsable de su ejecución. Curiosamente, esta obra de Fisac había sido publicada con anterioridad en Francia. En 1968, L’Architecture d’Aujourd’Hui incluyó Cuestas Blancas en un número dedicado a las tendencias (Fisac, 1968). Asimismo, distintas revistas extranjeras fijaron su atención en la arquitectura de Fisac y publicaron este colegio como parte de artículos monográficos sobre su obra. De este modo, Cuestas Blancas se situó junto a la arquitectura de vanguardia y pudo servir como referencia para otras obras.
La contribución de Fisac a la arquitectura fue reconocida en 1994 con la Medalla de Oro de la Arquitectura, otorgada por el Consejo Superior de los Colegios de Arquitectos de España. Las monografías que recogen su trayectoria reservan un lugar destacado a Cuestas Blancas (Cánovas, 1997; Arques Soler, 1996). En el ámbito de la arquitectura escolar, este proyecto ha sido puesto en valor por distintas investigaciones; ha sido destacado tanto entre las escuelas madrileñas del período 1868-1968 (Burgos Ruiz, 2007) como entre los edificios escolares construidos en España en el período 1956-1972 (Durá Gúrpide, 2013). Asimismo, la Fundación Docomomo Ibérico ha incluido esta obra en su registro como una obra relevante de la arquitectura española del siglo XX (Landrove, 2010).
La permanencia del edificio hasta la actualidad, en el que la congregación de la Asunción sigue impartiendo clases, supone la mayor garantía de la calidad de la obra de Fisac. Su funcionamiento y la experiencia docente han corroborado los aciertos del proyecto que presenta escasas modificaciones respecto al proyecto original. Las cubiertas de ‘huesos’ se han mantenido y se han resuelto problemas de filtraciones con la superposición de chapa nervada, que asegura la impermeabilización y no compromete la imagen del conjunto. El mayor inconveniente ha sido la reducción de la superficie de campo de juegos que ha penalizado significativamente al conjunto y la posibilidad de desarrollar actividades al aire libre en la actualidad.
Conclusiones
En definitiva, el colegio Cuestas Blancas se caracterizó por la contención de la escala y la definición de una secuencia de espacios que contempló las diferentes dimensiones de la enseñanza. Asimismo, resaltó por su versatilidad que posibilitaba distintas opciones de utilización. Cabe destacar la agrupación de aulas, que incorporaban espacios compartidos para facilitar el desarrollo de actividades conjuntas. La complejidad del proyecto demuestra un gran esfuerzo de síntesis para lograr la integración de los diferentes aspectos del espacio escolar. Según lo expuesto, Fisac consideró los avances de la vanguardia en la materia y su propia experiencia; y respondió al mismo tiempo a las nuevas demandas con una solución novedosa.
Esta obra de Fisac, si bien se enmarca en un momento de revisión de la arquitectura escolar en el que contribuyeron distintos arquitectos, tiene aportaciones particulares como el acierto de la disposición de los espacios de uso común al modo de rótulas que articulan el conjunto educativo. El interés por la innovación, presente desde el inicio del proyecto, se trasladó a todas las dimensiones de la obra; desde la destacada solución constructiva, que incorporaba su experimentación en construcción prefabricada, hasta la integración de las artes y la expresividad plástica de su geometría. Los criterios de austeridad demandados no fueron incompatibles con la calidad de la obra, en la que cada detalle fue coherente con su planteamiento y colaboró a enriquecer el proyecto.
El colegio Cuestas Blancas tuvo una gran repercusión mediática, fue publicado tanto en revistas nacionales como en el extranjero. Aunque Fisac ya había realizado destacados edificios escolares con anterioridad, Cuestas Blancas recibió una atención especial por su estructura y organización novedosas que configuraban un edificio de gran calidad espacial y lo convertían en referencia. Este colegio puede considerarse el colofón de la obra escolar de Fisac15 y uno de los ejemplos más elaborados de la arquitectura escolar española de este período.
Incluso, cabe destacar este edificio como referencia para el diseño del espacio escolar en la actualidad. Si bien la educación está en constante evolución y, en consecuencia, también los edificios escolares, Cuestas Blancas supone una muestra de la potencialidad de la vinculación entre la pedagogía y la arquitectura que merece ser recuperada en la práctica actual.
Referencias
ARQUES SOLER, F. (ed.). 1996. Miguel Fisac. Madrid, Pronaos, 320 p.
BURGOS RUIZ, F. 2007. La arquitectura del aula. Nuevas escuelas madrileñas, 1868-1968. Madrid, Ayuntamiento de Madrid, 252 p.
CÁNOVAS, M. (ed.). 1997. Miguel Fisac. Medalla de Oro de la Arquitectura 1994. Madrid, Ministerio de Fomento y Consejo Superior de los Colegios de Arquitectos de España, 280 p.
CASSINELLO, F. 1955. Escuela Heathcote en Scarsdale, Nueva York. Perkins y Will. Informes de la Construcción, (74):141-26.
COMISIÓN DE CONSTRUCCIONES ESCOLARES. 1959. Carta de Construcciones Escolares. Elaborada por la Comisión de Construcciones Escolares durante su reunión de Rabat (Marruecos), en febrero de 1958. París, Unión Internacional de Arquitectos, 64 p.
COMISIÓN DE CONSTRUCCIONES ESCOLARES. 1962. Memoria de la octava reunión de la Comisión de Construcciones Escolares de la Unión Internacional de Arquitectos. México, 14 a 30 de marzo de 1962, México, Unión Internacional de Arquitectos, 146 p.
DELGADO ORUSCO, E. 2007. Las Iglesias de Miguel Fisac. En: Congreso Internacional de Arquitectura Religiosa Contemporánea, I, Coruña, 2007. Actas… (1):130-161. Disponible en: http://www.arquitecturareligiosa.es/index.php/AR/article/view/8/8. Acceso el: 07/09/2015.
DURÁ GÚRPIDE, I. 2013. La Construcción de la Escuela Activa en España, 1956-1972. Pamplona, España. Tesis doctoral. Universidad de Navarra, 601 p.
DURÁ GÚRPIDE, I. 2015. El edificio escolar como instrumento para la enseñanza. El desarrollo de la escuela primaria en España, 1956-1972. En: A.A.V.V., Actas del VIII Congreso DOCOMOMO Ibérico: La arquitectura del Movimiento Moderno y la Educación. Málaga, Instituto del Patrimonio Cultural de España - Instituto Andaluz del Patrimonio Histórico - Fundación DOCOMOMO Ibérico, 295 p.
DURÁ GÚRPIDE, I.; MARTÍN-GÓMEZ, C.; RANGEL, B. 2016. El colegio Nuestra Señora del Recuerdo de Luis Laorga, Madrid, 1957-1958. Revista ACE. Arquitectura, Ciudad y Entorno, Barcelona, Universidad Politécnica de Barcelona, 11(31):71-92.
FISAC, M. 1952. Documentación del proyecto del Colegio Apostólico de los Padres Dominicos en Arcas Reales. En: Archivo Documental de la Fundación Miguel Fisac. Ciudad Real. Disponible en: http://fundacionfisac.org/. Acceso el: 05/07/2015.
FISAC, M. 1953a. Documentación del proyecto del Centro de Formación de Profesorado de Enseñanza Laboral. En: Archivo Documental de la Fundación Miguel Fisac. Ciudad Real. Disponible en: http://fundacionfisac.org/. Acceso el: 05/07/2015.
FISAC, M. 1953b. Instituto Laboral en Daimiel. Revista Nacional de Arquitectura, (139):3-14.
FISAC, M. 1955. Colegio Apostólico de los PP. Dominicos en Valladolid. Revista Nacional de Arquitectura, (157):3-9.
FISAC, M. 1958. Conjunto de edificios para formación del profesorado de enseñanza laboral en la Ciudad Universitaria, Madrid. Revista Nacional de Arquitectura, (203):3-9.
FISAC, M. 1960. Teologado de San Pedro Mártir para los Padres Dominicos en Madrid. Arquitectura, (17):9-19.
FISAC, M. 1962. Documentación del proyecto del Colegio Santa María del Mar de los PP. Jesuitas. En: Archivo Documental de la Fundación Miguel Fisac. Ciudad Real.
FISAC, M. 1965. Documentación del proyecto del Colegio de la Congregación de la Asunción Cuestas Blancas. En: Archivo Documental de la Fundación Miguel Fisac. Ciudad Real.
FISAC, M. 1968. Collège de l’Ascension, Madrid. L’Architecture d’Aujourd’Hui, (139):102-103.
FISAC, M. 1969a. Colegio de la Asunción. Arquitectura, (127):3-6.
FISAC, M. 1969b. Colegio de la congregación de la Asunción en Alcobendas. Informes de la Construcción, (210):47-57. https://doi.org/10.3989/ic.1969.v22.i210.3719
FISAC, M. 1969c. Colegio de la Asunción, Alcobendas (1965). Nueva Forma, (41):49-53.
FRAMPTON, K. 2010. Historia crítica de la arquitectura moderna. 4ª ed., Barcelona, Gustavo Gili, 447 p.
GONZÁLEZ BLANCO, F. (ed.). 2007. Miguel Fisac. Huesos Varios. Madrid, Fundación COAM, 296 p.
HERTZBERGER, H. 2008. Space and Learning. Rotterdam, 010 Publishers, 156 p.
LANDROVE, S. (ed.). 2010. Equipamientos I. Lugares públicos y nuevos programas, 1925-1965. Registro Docomomo Ibérico. Barcelona, Fundación Caja de Arquitectos, 413 p.
MOSER, W. M. 1963. Voraussetzungen der Planung. Von Mittelschulen heute und morgen. Eternit, (55):967-978.
MARURI, N. 1997. Como trazar el futuro. En: M. CÁNOVAS (ed.), Miguel Fisac. Medalla de Oro de la Arquitectura 1994. Madrid, Ministerio de Fomento y Consejo Superior de los Colegios de Arquitectos de España, p. 17-18.
RISSELADA, M.; VAN DEN HEUVEL, D. (eds.). 2005. Team 10: in search of a Utopia of the present, 1953-1981. Rotterdam, NAI Publishers, 368 p.
RODRÍGUEZ DE VALCÁRCEL, C.; PÉREZ LÓPEZ, R.; CASANOVA, L.; DEL CORRO, J.; GALÁN, A.; MONCLÚS, L; WILLIAM, D. 1954. Concurso de Institutos Laborales. Revista Nacional de Arquitectura, (153):1-44.
ROTH, A. 1950. The New School / La Nouvelle Ecole / Das Neue Schulhaus. Zürich, Girsberger Zürich, 224 p.
ROTH, A. 1957. The New School / La Nouvelle Ecole / Das Neue Schulhaus. Zürich, Girsberger Zürich, 280 p.
ROTH, A. 1961. The New School / La Nouvelle Ecole / Das Neue Schulhaus. Zürich, Girsberger Zürich, 280 p.
ROTH, A. 1966. New School Building. 4ª ed., London, Thames and Hudson, 304 p.
UNION INTERNATIONALE DES ARCHITECTES. 1954-1965. Revue de l’Union Internationale des Architectes, (1-36).
Notas
Notas de autor
INCIHUSA-CONICET, Universidad de Congreso idurag@gmail.com Universidad de Congreso pablo.llorca.arq@gmail.com