Artigo
FUNCIONALIDADE E MOBILIÁRIO DA HABITAÇÃO: CONTRIBUIÇÕES PARA O PROJETO DE MORADIAS SOCIAIS
FUNCTIONALITY AND FURNITURE OF THE HOUSING: CONTRIBUTIONS TO SOCIAL HOUSING DESIGN
FUNCIONALIDADE E MOBILIÁRIO DA HABITAÇÃO: CONTRIBUIÇÕES PARA O PROJETO DE MORADIAS SOCIAIS
Arquitetura Revista, vol. 15, núm. 2, pp. 212-237, 2019
Unisinos
Recepção: 15 Janeiro 2018
Aprovação: 05 Novembro 2018
Resumo: Estudos demonstram que a falta de funcionalidade é um problema latente nos projetos antigos e recentes de habitação de interesse social (HIS). A busca desenfreada pela redução do custo da moradia tem refletido na baixa qualidade espacial das moradias, vislumbrada na dificuldade de mobiliar e circular nos ambientes. A literatura discute, no entanto, quais são os atributos necessários para a garantia da funcionalidade no projeto de moradias. São aspectos ligados ao programa, à compartimentação da moradia, às suas áreas e dimensões mínimas e, sobretudo, à relação do mobiliário mínimo necessário para a realização das atividades domésticas, bem como à área necessária para o seu uso e para a circulação nos espaços da moradia. Sendo assim, para que sejam elaborados projetos de habitação funcionais, é necessário que seja conhecido o conjunto de móveis e equipamentos necessários para o desempenho das diversas atividades domésticas, suas características dimensionais e de uso. E é este o objetivo central do trabalho: verificar no comércio popular quais são as dimensões do mobiliário mínimo da habitação e, com esses dados, elaborar uma família de objetos paramétricos para Modelagem da Informação da Construção (em inglês, Building Information Modeling [BIM]), composta por todos os itens do mobiliário básico necessário em uma moradia. A pesquisa é de caráter prático, natureza aplicada e orientada à prescrição, e foi sistematizada em três etapas principais: (1) entendimento do tema; (2) coleta de dados; (3) construção de família BIM de mobiliário padrão popular. Como resultado, incialmente, é apresentada uma análise comparativa entre as dimensões do mobiliário encontrado no comércio com o que é indicado na literatura especializada. Posteriormente, esse mobiliário é disponibilzado para download, em forma de arquivos de famílias compatíveis com o Autodesk Revit. Por fim, a aplicabilidade desse material é ilustrada em uma análise de projeto. Sendo assim, a pesquisa afirma sua relevância ao disponibilizar à comunidade acadêmica, projetistas e demais interessados um material que é de grande utilidade para uma melhor prática de projeto, em especial aos de HIS.
Palavras-chave: Qualidade habitacional, projeto habitacional, funcionalidade.
Abstract: Studies show that the lack of functionality is a latent problem in both old and recent projects of social housing (HIS). The unbridled search for the reduction of the houses has reflected in the low spatial quality of the houses, glimpsed in the difficulty of mobilizing and circulating between the rooms. The literature discusses, however, what resources are needed to guarantee functionality without housing design. They are aspects related to the program, to the compartmentalization of the dwelling, its minimum areas and dimensions and, above all, the relation of the minimum furniture necessary for the accomplishment of the domestic activities, as well as the necessary area for its use and for the circulation in the spaces of the dwelling. Therefore, for the development of functional housing projects, it is necessary to know the set of furniture and equipment required in the performance of the various domestic activities, in their dimensional and use characteristics. And this is the central objective of this work: to check in the popular trade the dimensions of the minimum furniture of the house, and, with this data, to elaborate a family of parametric objects for Building Information Modeling (BIM), composed of all the necessary basic furniture items in a house. The research is of a practical nature, applied nature and oriented to the prescription, and was systematized in three main stages: (1) understanding of the theme; (2) data collection; (3) artifact construction: BIM family of popular furniture. As a result, initially, a comparative analysis is presented between the dimensions of the furniture found in commerce with what is indicated in the specialized literature. Then, this furniture is made available for download as Autodesk Revit-compatible family files. Finally, the applicability of this material is illustrated in design analysis. Thus, the research affirms its relevance by making available a material that is of great use for a better project practice, especially those of HIS, available to the academic community and other stakeholders.
Keywords: Housing quality, housing project, functionality.
INTRODUÇÃO
Historicamente, o combate ao deficit habitacional brasileiro, estimado em 5,846 milhões de unidades (Fundação João Pinheiro, 2016), acontecia sempre por meio da construção da maior quantidade possível de casas e do atendimento ao maior número possível de beneficiários, limitando a questão a um problema numérico. Com isso, a busca pela redução de custos foi utilizada para justificar a redução da área das moradias, em detrimento do desempenho técnico, humano e funcional (Leite, 2006; Palermo, 2013; Saramago et al., 2015).
Diversos estudos buscaram analisar as moradias ofertadas pelos programas habitacionais e, como resultado, apontaram sua baixa qualidade construtiva, ambiental e arquitetônica (Romero e Ornstein, 2003; Reis e Lay, 2002; Villa e Carvalho, 2012; Villa e Garcia, 2011). O uso das unidades era prejudicado pelo não atendimento a aspectos mínimos de habitabilidade, funcionalidade e privacidade. Em consequência, a insatisfação dos moradores era notável, principalmente, pelas mudanças e reformas que estes realizavam nas suas próprias casas (Saramago et al., 2015; Szücs et al., 2007).
O Programa Minha Casa Minha Vida (PMCMV), lançado em 2009 e ainda em vigor, contribuiu para agravar esse quadro. Apesar de ter beneficiado grande quantidade de famílias, reproduziu em larga escala um modelo padronizado de habitação, com baixa qualidade, mal inserido e mal articulado com as realidades locais. Trata-se de uma solução única e pouco integrada ao desafio de enfrentamento do problema habitacional de cada cidade brasileira, que é bastante complexo (Rede Cidade e Moradia, 2015; Saramago et al., 2015).
Diversos autores analisaram, por todo o país, a produção do PMCMV. Os estudos apontam problemas cruciais relacionados com a baixa qualidade espacial das unidades habitacionais, em especial a falta de funcionalidade dessas habitações, decorrente da redução de sua área útil e de soluções de projeto mal formuladas.
Na região metropolitana de Fortaleza, Pequeno e Rosa (2015) comentam a inadequação das dimensões das unidades habitacionais às necessidades inerentes ao desempenho das atividades domésticas. Em média, metade das famílias entrevistadas pelos autores considerou a unidade muito pequena, afirmando ainda que sentiam falta de algum cômodo da moradia onde residiam anteriormente.
Nascimento et al. (2015) referem-se também aos problemas funcionais encontrados nas moradias da região metropolitana de Belo Horizonte, tendo em vista os pequenos espaços das unidades. Os autores relatam a dificuldade de circular pela moradia, visto a falta de espaço para o mobiliamento e o uso de eletrodomésticos. Relataram que, com certa frequência, os moradores eram levados a posicionar geladeira, máquina de lavar ou micro-ondas na sala e ressaltam que a adequação do espaço ao mobiliário era ainda mais difícil quando o morador exercia alguma atividade de trabalho em casa.
Silva e Silva (2013), ao analisar os conjuntos habitacionais do aglomerado Sarandi-Maringá, mostraram que 71% dos moradores gostariam de aumentar o tamanho da casa, pela falta de espaço para o mobiliário. Essa limitação prejudica a circulação e o uso dos equipamentos domésticos, fazendo com que a própria família improvise soluções.
A mesma questão foi notada por Lopes e Shimbo (2015), quando fizeram um estudo de adequação do espaço físico das unidades entregues pelo PMCMV na região central do estado de São Paulo, a fim de verificar as possibilidades de instalar o mobiliário necessário nos ambientes internos das moradias. Segundo os autores, é praticamente impossível acomodar as peças sem prejudicar a circulação e demais funções da unidade. No entanto, acreditam que a má qualidade projetual das unidades pode ser decorrente da própria concepção dos espaços em uma geometria equivocada. Segundo os autores, “a falta de uma solução arquitetônica mais elaborada no processo de desenho acaba por gerar espaços que praticamente impedem alguma disposição inteligente do mobiliário – e isso ocorre muito mais em função da configuração geométrica dos ambientes do que em função de sua área útil” (Lopes e Shimbo 2015, p. 247).
Percebe-se, portanto, que, apesar do PMCMV estabelecer uma série de requisitos que devem ser atendidos pelos empreendimentos, estes não têm se mostrado suficientes para garantir a qualidade dos projetos (Blumenschein et al., 2015).
As análises citadas anteriormente demonstram que os maiores problemas das moradias produzidas pelo PMCMV relacionam-se principalmente com a falta de funcionalidade, que é a característica que permite “facilidade, fiabilidade e eficiência de desenvolvimento das funções e atividades habitacionais, sendo proporcionada pelas características dos espaços e de seus equipamentos” (Pedro, 2000, p.32). Trata-se da relação entre o espaço e o conjunto de equipamentos necessários às atividades domésticas e ao usuário da moradia, incluindo o acesso a cada cômodo, a circulação entre os cômodos e dentro deles, bem como o acesso e a operação de cada peça do mobiliário e dos equipamentos (Palermo, 2009).
Sem um nível satisfatório de funcionalidade, as atividades domésticas mais básicas são comprometidas, impactando negativamente a qualidade de vida e o convívio familiar. Para garantir um projeto funcional, é necessário levar em consideração os atributos que conferem funcionalidade à moradia e, além disso, buscar ferramentas que facilitem e otimizem o processo de projeto.
Frente a isso, o objetivo deste trabalho é, primeiro, identificar na literatura quais são os atributos de funcionalidade no projeto da moradia e, depois, elaborar uma biblioteca de famílias de objetos paramétricos para Modelagem da Informação da Construção (em inglês, Building Information Modeling [BIM]) referentes ao mobiliário mínimo da habitação, nas dimensões condizentes com os ofertados no mercado popular.
Alguns autores trazem a relação do mobiliário mínimo da habitação (Imai, 2010; IPT, 1987; Palermo, 2009; Pedro, 2001), mas é possível que suas dimensões estejam diferentes do que é comercializado hoje nas lojas populares. Além disso, o material apresentado pelos autores é meramente visual: o projetista deve redesenhar os móveis durante o processo de projeto, o que acarreta um tempo maior de trabalho. Trabalhando em CAD 2D, este processo não é tão complicado, mas quando o projeto é modelado em BIM, a elaboração de objetos de mobiliário é feita em 3D, em um processo que é bem menos trivial e muito mais demorado.
Os programas para desenho de projetos CAD foram se adaptando a modelos paramétricos e de informação, e a tendência é que o uso de programas BIM seja gradativamente incorporado aos processos da produção de edifícios, por meio de incentivos públicos e iniciativas privadas, tendo em vista as vantagens de sua aplicação (ABDI, 2017). No Brasil, um conjunto de medidas vêm sendo tomadas para regular e difundir o uso do BIM, podendo citar a criação do Portal BIM; a elaboração de Guias aplicáveis ao BIM; instalação do CE-BIM para estudos e difusão do conceito e, recentemente, a publicação do decreto N. 9377, em 17 de maio de 2018, que institui a Estratégia Nacional de Disseminação do Building Information Modelling, que, entre outros objetivos, busca criar condições favoráveis para o investimento, público e privado, em BIM (Media Lab Estadão, 2018).
O BIM pode ser entendido tanto como tecnologia como processo de projeto. Envolve o desenvolvimento e uso da informação (banco de dados) no projeto de edifícios, visando à sua documentação, à simulação da construção e até mesmo à operação do edifício. Em termos de processo, pode ser considerado como uma atividade humana fundamentada no gerenciamento das informações dos edifícios, por meio de um modelo digital (Andrade e Ruschel, 2011). Nas plataformas BIM, os projetos são conduzidos como modelos completos. O projetista pode desenvolver soluções de projeto por meio de modelos paramétricos, acompanhando, em tempo real, volumetria, plantas, cortes, quantificações de materiais, observando e ajustando vários itens projetuais. As modificações efetuadas no modelo são processadas automaticamente nas várias vistas e nas tabelas de quantidades de materiais e componentes da construção, permitindo um incremento significativo na qualidade da representação, contribuindo com a qualidade da edificação (Souza et al., 2009).
Considerando, então, a crescente utilização dos programas BIM na elaboração de projetos de arquitetura tanto no meio acadêmico – estudantes de arquitetura — como no mercado de trabalho, surge a relevância desta pesquisa. A disponibilização de uma família de objetos paramétricos para BIM referente ao mobiliário da habitação, em dimensões condizentes ao ofertado no mercado popular nacional, é de grande valia para projetistas e estudantes de arquitetura. Isso porque a maioria das famílias de elementos de construção e de mobiliário que vem nos programas BIM utilizados no Brasil são de origem internacional e respeitam padrões dimensionais estrangeiros. Além disso, para o caso específico de projetos de HIS, em que há um extremo rigor no controle da definição dos espaços e da área construída da edificação, é muito importante que o projeto seja desenvolvido com base em um leiaute real, para que o uso da edificação não seja prejudicado pela impossibilidade de ser adequadamente mobiliada. O dimensionamento mínimo do projeto deve ser respeitado, mas os espaços devem ser funcionais, para que as atividades domésticas sejam desempenhadas com eficácia e conforto.
OBJETIVOS E MÉTODOS
Esta pesquisa é de caráter prático e de natureza aplicada e orientada à prescrição. Isso porque seu principal interesse é que os resultados auxiliem os profissionais na solução de problemas do dia a dia (Appolinário, 2006; Dresch et al., 2015). Sua operacionalização foi sistematizada em três etapas principais: (1) entendimento do tema; (2) coleta de dados reais junto ao mercado de venda de móveis populares; (3) construção de famílias BIM de mobiliário padrão popular (Figura 1).

O entendimento do tema buscou elencar, na literatura, as características que conferem qualidade espacial ao projeto da moradia social. Por meio da definição do conceito de qualidade habitacional, chegou-se ao conceito de funcionalidade e, a partir daí, buscou-se estabelecer quais são os critérios ou requisitos de projeto para essa funcionalidade. Os resultados dessa etapa da pesquisa estão apresentados nos itens “Qualidade Habitacional” e “Funcionalidade da Moradia”.
A segunda etapa compreende a coleta de dados sobre as dimensões do mobiliário mínimo da habitação como são ofertadas hoje no mercado popular. Esse levantamento serviu para alimentar o banco de dados que foi utilizado posteriormente, na modelagem das famílias, e foi realizado em três grandes grupos varejistas e-commerce de abrangência nacional: Casas Bahia, Lojas KD e Magazine Luiza. Em cada loja, os móveis/eletrodomésticos foram buscados e ordenados por preço. Selecionaram-se os dez itens mais baratos de cada loja e extraíram-se deles as informações necessárias (dimensões, preço, link). Em uma planilha, listaram-se todos os itens de cada móvel/eletrodoméstico, classificando-os segundo o preço. Selecionaram-se, para a etapa posterior, aqueles que fossem, primeiro, de menor preço e, depois, de menor dimensão, seguindo o mesmo procedimento adotado por Palermo (2009). Os resultados dessa etapa estão no item “Resultados — levantamento de dados”, no qual as dimensões do mobiliário levantado foram comparadas com o que é encontrado na literatura.
A terceira etapa compreendeu a construção do artefato proposto: no caso, as famílias BIM do mobiliário da habitação, no padrão popular. Os itens selecionados foram modelados e parametrizados como arquivos de família, no software Revit 2018, da Autodesk. Os resultados dessa etapa estão no item “Resultados — modelos BIM da habitação”. Por fim, para ilustrar uma aplicação das famílias, estas foram carregadas e inseridas em um projeto de HIS entregue pelo PMCMV Faixa 1. O resultado desse exercício, bem como as considerações acerca da funcionalidade deste projeto, estão no item “Resultados – exemplos de aplicação”.
QUALIDADE HABITACIONAL
O termo qualidade relaciona-se com um conjunto de características que tornam um determinado produto apto ao uso para o qual foi concebido. De modo geral, qualidade é a adequação das características de qualquer produto às necessidades dos seus usuários, sendo verificada pela conformidade com as especificações de qualidade aplicáveis. Esse conceito, perfeitamente estabilizado, é aplicado de forma diferente para cada tema, sendo que as especificações de qualidade variam de acordo com o produto sob análise (Paiva, 2002).
Com relação às edificações, o conceito de qualidade pode abranger diferentes interpretações ao longo do ciclo de vida dessas interpretações, de acordo com as diversas expectativas e interesses dos agentes envolvidos em todas as suas etapas — projeto, produção, comercialização e uso. A qualidade total de um empreendimento, portanto, corresponde ao resultado da ponderação dessas diferentes dimensões, de forma que sejam atendidas as necessidades dos diferentes agentes envolvidos no ciclo de vida da edificação (Fabricio et al., 2010).
Pode-se dizer, no entanto, que é na etapa da concepção do projeto do edifício que todas essas dimensões podem ser consideradas. Além disso, parece haver um consenso na literatura de que mais vale um investimento na fase de projeto do que nas fases de construção ou uso, quando as modificações são significativamente mais onerosas (Leite, 2006; Oliveira, 2006; Romano, 2003).
No caso do projeto de habitação, em especial da habitação de interesse social, muitas vezes o cliente — aquele que contrata o projeto — jamais fará uso da edificação e pode não considerar adequadamente os atributos relacionados com o projeto. É compromisso do projetista, no entanto, prestar seus serviços ao usuário final, acima de tudo (Palermo, 2013). Quanto mais contemplado o usuário final for nas etapas iniciais do processo de projeto, menor o risco de equívocos nas etapas seguintes, que, como já mencionado, são significativamente mais onerosas em termos de manutenção corretiva. Se as demandas relativas ao uso, à operação e à manutenção de uma habitação foram pouco consideradas, o resultado do projeto estará muito aquém das expectativas dos usuários (Imai, 2010).
Coelho (2010) considera que a qualidade do projeto habitacional é baseada no respeito aos seus usuários e concretiza-se na identificação de fatores elementares para essa qualidade. Segundo o autor, os itens que conferem qualidade à habitação caracterizam-se como elementos concretos — e não abstratos —, entendidos em termos de relações e elementos arquitetônicos que são desejados pelos habitantes. Esses elementos podem ser perfeitamente descritos, ilustrados, analisados e, da mesma forma, oferecidos no projeto arquitetônico. Sendo assim, por mais que a qualidade aparentemente se refira a algo subjetivo, ela é totalmente possível de ser analisada e garantida pelo arquiteto nas etapas do processo de projeto (Logsdon, 2012).
Considerando que o termo qualidade está relacionado com a adequação das características do produto às necessidades dos usuários, Pedro (2000, p. 9) definiu o conceito de qualidade habitacional como aquilo que “refere-se à adequação da habitação e de sua envolvente às necessidades imediatas e possíveis dos moradores, compatibilizando as necessidades individuais com as da sociedade”.
Desdobrando esse conceito, é plausível afirmar que, para atender às necessidades imediatas de seus moradores, a moradia deve estar adequada ao morar: “deve oferecer espaço suficiente para o morador, como também para todos os seus utensílios que são necessários ao desempenho das atividades cotidianas. Em outras palavras, a casa tem que funcionar” (Malard et al., 2002, p. 38). Ou seja, a moradia precisa ter funcionalidade.
A funcionalidade não é o único princípio que confere qualidade à habitação. Diferentes autores elencam diferentes requisitos, como ilustra a Tabela 1, mas a funcionalidade está sempre listada e, além disso, refere-se à qualidade espacial do projeto, e não da construção ou do sistema construtivo adotado. Ou seja, é um princípio que está relacionado com o espaço da moradia, traduz-se em atributos que podem ser inseridos no projeto única e exclusivamente pelo projetista e, por isso, é considerada neste trabalho como essencial para a garantia da qualidade do projeto da moradia.
| NBR 15.575 (ABNT, 2013) | Pedro (2001) | Amorim et al. (2015) |
|---|---|---|
| Desempenho estrutural | Agradabilidade | Flexibilidade |
| Segurança contra incêndio | Segurança | Funcionalidade |
| Segurança no uso e na operação | Adequação espaço-funcional | Habitabilidade |
| Estanqueidade | Articulação | Uso sustentável de água e energia |
| Desempenho térmico | Personalização | Acessibilidade |
| Desempenho acústico | Satisfação do usuário | |
| Desempenho lumínico | ||
| Durabilidade e manutenibilidade | ||
| Saúde, higiene e qualidade do ar | ||
| Funcionalidade e acessibilidade | ||
| Conforto tátil e antropodinâmico | ||
| Adequação ambiental |
Esta pesquisa não ignora a importância de requisitos de desempenho técnicos construtivos, como, por exemplo, segurança estrutural, habitabilidade, estanqueidade e manutenibilidade. Nem tampouco ignora que um dos grandes problemas que permeia a questão habitacional brasileira é pautado na questão da terra, que decai sobre a localização segregada dos conjuntos habitacionais. No entanto, o recorte desta pesquisa busca aprofundar a discussão da qualidade espacial das moradias, em especial na funcionalidade dos projetos das unidades habitacionais.
FUNCIONALIDADE DA MORADIA
Vários autores que tratam de temas habitacionais abordam o conceito de funcionalidade, colocando-o como um princípio que confere qualidade ao projeto da moradia e que deve ser buscado no intuito de oferecer ao usuário final uma moradia com espaço e condições necessárias para o mobiliamento, a circulação e, consequentemente, o desempenho das atividades domésticas de forma segura e confortável.
Para Silva (1982, p. 19), funcionalidade diz respeito à “tradução espacial apropriada”, relacionada com as características geométricas do ambiente: formato, dimensão, disposição e arranjos de elementos internos.
Para Leite (2006), o conceito de funcionalidade relaciona-se com as habilidades funcionais ou propriedades específicas recomendadas para que uma habitação cumpra a sua finalidade frente as referências mínimas de espaço e de mobiliário e equipamentos para o uso da moradia.
Palermo (2009) especifica que a funcionalidade tem a ver com a relação entre espaço, o conjunto de equipamentos necessários a cada atividade e o usuário da moradia, incluindo o acesso ao interior da casa e a cada cômodo, a circulação dentro da casa e em cada cômodo, o acesso e a operação de cada móvel ou equipamento doméstico.
Amorim et al. (2015) entendem funcionalidade como a especialização dos compartimentos da casa em decorrência do atendimento a atividades específicas. Citando Palermo et al. (2007) e a NBR 15.575:1 (ABNT, 2013), consideram dois critérios para o atendimento desse princípio: o programa arquitetônico e o rigor dimensional dos ambientes da residência, sendo que relacionados com este último estão o mobiliário mínimo e os espaços para a sua correta utilização.
Pedro (2000, 2001) e Coelho (2010) chamam de adequação espaciofuncional o conjunto de exigências que visa assegurar que os espaços habitacionais proporcionem adequadas condições de uso, pelo seu número, sua forma, sua dimensão, seu equipamento e sua pormenorização. Os autores subdividem essas exigências em três conceitos norteadores: capacidade, espaciosidade e funcionalidade. Todos eles estão relacionados com a capacidade de a moradia comportar os equipamentos, o mobiliário e as faixas de circulação necessárias à sua adequada utilização. No entanto, o termo capacidade relaciona-se com o programa de espaços funcionais; o termo espaciosidade, às exigências de área e dimensões dos espaços; e o termo funcionalidade, a algumas exigências específicas que propiciam aos usuários adequadas condições no desenvolvimento das funções de uso da habitação.
Os autores brasileiros, no entanto, não adotam essa subdivisão de conceitos e entendem funcionalidade como um sinônimo de adequação espaciofuncional, em seu aspecto mais amplo. Por essa razão, este trabalho segue o mesmo raciocínio.
A pesquisa relativa à funcionalidade da moradia tem como base a compreensão da satisfação de necessidades humanas, no sentido de viabilizar as atividades realizadas dentro da moradia, em espaços apropriados e com os equipamentos necessários (Pereira, 2015). Dessa forma, três critérios são colocados neste trabalho como norteadores para o desenvolvimento de projetos de moradias funcionais: o programa habitacional; as áreas e dimensões dos espaços da moradia; o mobiliário mínimo e sua área de uso. Esses critérios serão mais bem detalhados a seguir.
Programa de necessidades habitacional
O Programa arquitetônico identifica as atividades envolvidas na edificação a ser projetada, com todos os aspectos que o projeto deve atender. No programa, sugere-se a divisão da edificação em função das atividades desenvolvidas pelas diversas categorias de usuários, especificando-se as necessidades espaciais de cada parte do edifício, para que estes tenham eficiência e conforto em suas atividades (Moreira e Kowaltowski, 2011).
O programa habitacional refere-se ao caso específico do projeto de moradias, apresentando a classificação dos espaços que as compõem; a relação das funções e atividades desenvolvidas nessas moradias; a localização dessas funções e atividades em compartimentos, entre outros (Pedro, 2001).
A NBR 15.575:1 (ABNT, 2013) elenca as atividades essenciais da habitação em: dormir; estar; cozinhar; alimentar; fazer higiene pessoal; lavar, secar e passar roupas; estudar, ler, escrever, costurar, reparar e guardar objetos diversos. A norma recomenda, para essas atividades, a compartimentação da moradia nos seguintes ambientes: sala de estar; sala de jantar ou copa; cozinha; dormitório casal (principal); dormitório para duas pessoas (2° dormitório); dormitório para uma pessoa (3° dormitório); banheiro e área de serviço. Para cada um desses ambientes, a norma elenca o mobiliário mínimo e a sua área de uso, como será ilustrado posteriormente.
Para Palermo (2009), o sentido de lar depende do atendimento às funções domésticas: conviver, cuidar do corpo, cuidar da mente, armazenar produtos, lidar com a roupa, manter a casa e aumentar a renda. Essas funções são relacionadas com as necessidades humanas intrínsecas ao ato de morar e pouco têm a ver com o nível de renda ou extrato social. A autora distribui as atividades inerentes nos cômodos da moradia: dormitórios, sala de estar, sala de jantar, banheiro, área de serviço, cozinha, varanda e quintal.
Amorim et al. (2015) considera como indispensáveis à HIS os ambientes destinados ao repouso; ao convívio social; à preparação de alimentos; à higiene pessoal; à higiene e manutenção geral da casa; aos estudos e às atividades afins; e, por fim, ao armazenamento de pertences diversos. Os autores distribuem essas atividades nos cômodos elencados pela NBR 15.575:1 (ABNT, 2013) como os essenciais da moradia: sala de estar; sala de jantar ou copa; cozinha; dormitório casal (principal); dormitório para duas pessoas (2° dormitório); dormitório para uma pessoa (3° dormitório); banheiro e área de serviço.
Portas (1969) elenca um conjunto de dezesseis funções a que devem atender os espaços da moradia, para a realização das diversas atividades domésticas: dormir, descanso pessoal; preparo de alimentos; refeições formais; refeições correntes; estar/reunir; estar/receber; recreio de crianças; estudo ou recreio de jovens; trabalho ou recreio de adultos; passar e costurar roupas; lavar roupas; secar roupas; higiene pessoal; permanência em exterior; circulação ou comunicação/separação; arrumação ou armazenamento. Pedro (2001) elenca as mesmas funções e acrescenta mais uma: o estacionamento de veículos. Para o autor, os compartimentos essenciais são os quartos (cuja quantidade varia de acordo com o número de moradores), a sala de estar e jantar, a cozinha, a instalação sanitária e o vestíbulo/circulação. A marquise (área de serviço) e a varanda (exterior privado) são colocadas como compartimentos que abrigam funções recomendáveis, mas não essenciais.
Resumindo o que foi apresentado anteriormente, a Tabela 2 elenca as principais funções domésticas que se relacionam com as atividades realizadas na moradia, e a Tabela 3 elenca os compartimentos essenciais da moradia, segundo os diferentes autores citados.
| Funções domésticas | Portas (1969) | Silva (1982) | Pedro (2001) | Palermo (2009) | NBR 15.575 (ABNT, 2013) | Amorim et al. (2015) |
|---|---|---|---|---|---|---|
| Dormir / descansar | ✓ | ✓ | ✓ | ✓ | ✓ | ✓ |
| Preparo de refeições | ✓ | ✓ | ✓ | ✓ | ✓ | ✓ |
| Alimentar-se | ✓ | ✓ | ✓ | ✓ | ✓ | ✓ |
| Estar / receber / conviver | ✓ | ✓ | ✓ | ✓ | ✓ | ✓ |
| Lazer / recreio | ✓ | ✓ | ✓ | ✓ | ✓ | ✓ |
| Estudo / trabalho | ✓ | ✓ | ✓ | ✓ | ✓ | ✓ |
| Lidar com a roupa | ✓ | ✓ | ✓ | ✓ | ✓ | ✓ |
| Higiene pessoal | ✓ | ✓ | ✓ | ✓ | ✓ | ✓ |
| Manutenção / arrumação | ✓ | ✓ | ✓ | ✓ | ✓ | ✓ |
| Permanecer no exterior | ✓ | ✓ | ✓ | |||
| Armazenar | ✓ | ✓ | ✓ | ✓ | ||
| Circular | ✓ | ✓ | ||||
| Estacionar o veículo | ✓ |
| Compartimentos da habitação | Portas (1969) | Silva (1982) | Pedro (2001) | Palermo (2009) | NBR 15.575 (ABNT, 2013) | Amorim (2015) |
|---|---|---|---|---|---|---|
| Sala de estar | ✓ | ✓ | ✓ | ✓ | ✓ | ✓ |
| Sala de jantar | ✓ | ✓ | ✓ | ✓ | ✓ | ✓ |
| Dormitório casal | ✓ | ✓ | ✓ | ✓ | ✓ | ✓ |
| Dormitório duplo | * | ✓ | * | ✓ | ✓ | ✓ |
| Dormitório individual | * | * | * | ✓ | ✓ | |
| Cozinha | ✓ | ✓ | ✓ | ✓ | ✓ | ✓ |
| Banheiro | ✓ | ✓ | ✓ | ✓ | ✓ | ✓ |
| Área de serviço | ** | ✓ | ** | ✓ | ✓ | ✓ |
| Varanda | ** | ** | ✓ | |||
| Quintal | ** | ** | ✓ | |||
| Circulação | ✓ | ✓ | ||||
| Estacionamento | ** |
De uma maneira geral, a maior parte das atividades domésticas é considerada por todos os autores, com a diferença de que alguns são mais específicos do que outros. Enquanto Pedro (2001) e Portas (1969), por exemplo, separam em funções distintas o lavar, secar e passar/costurar roupas, Palermo (2009) coloca todas essas atividades em uma única função — lidar com a roupa. Por outro lado, Pedro (2001) e Portas (1969) associam a função armazenar à função arrumação, diferentemente de Palermo, que as coloca como funções distintas. A maior diferença entre os autores está na função estacionar o veículo, recomendada apenas por Pedro. Além dessa, a NBR 15.575:1 (ABNT, 2013) e Amorim et al. (2015) não mencionam as atividades armazenar, circular e permanecer no exterior, mas consideram os espaços necessários para as duas primeiras nas recomendações de mobiliário e suas respectivas áreas de uso, como ilustrado posteriormente.
Com relação aos compartimentos da moradia, todos os autores citados — Portas (1969), Silva (1982), Pedro (2001), Palermo (2009), NBR 15.575 (ABNT, 2013) e Amorim et al. (2015) — elencam como essenciais a sala de estar e jantar, a cozinha, o banheiro e os dormitórios. A quantidade de dormitórios é geralmente vinculada ao número de moradores: dois quartos para até quatro moradores. A área de serviço é considerada essencial para os autores brasileiros — Silva (1982), Palermo (2009), NBR 15.575 (ABNT, 2013) e Amorim et al. (2015) —, mas apenas recomendável para os autores portugueses — Portas (1969) e Pedro (2001). Varanda e quintal são colocadas como essenciais para Palermo (2009). A circulação é considerada como um compartimento específico apenas por Pedro (2001) e Portas (1969). Por fim, apenas Pedro (2001) considera o estacionamento de veículos como um compartimento recomendável. O comparativo entre o estabelecido por esses autores está na Tabela 3.
Pode-se afirmar que as funções e atividades domésticas listadas pelos autores citados divergem pouco entre si, assim como a classificação dos compartimentos da moradia. Além disso, a listagem dos ambientes da moradia não necessariamente implica na sua compartimentação. Uma unidade de um dormitório, por exemplo, pode ter quarto, sala e cozinha integrados, se esta for a intenção do projetista. O recomendado aqui, pelos autores citados, é que as funções e atividades domésticas sejam previstas e consideradas no desenvolvimento do projeto, que deve prover espaço para todos os móveis e equipamentos a elas relacionados.
Áreas e dimensões mínimas
A discussão acerca da funcionalidade da moradia passa, impreterivelmente, pela questão da área útil de seus espaços, que, por sua vez, está associada ao número de moradores. De acordo com Silva (1982), para os padrões europeus, a relação entre dotação de espaço por pessoa está no intervalo entre 11 e 14 m2 por habitante. Segundo o autor, abaixo de 11m2/hab haveria uma situação crítica e, abaixo de 8m2/hab, existe um contexto potencialmente patogênico. Romero e Ornstein (2003) ressaltam que essa relação diminui conforme o número de moradores e o de dormitórios aumenta. Esclarecem que, nas experiências europeias, a área útil por habitante varia entre 17m2, para moradias com dois moradores, e 7,5m2, para moradias com oito moradores (Rosso inRomero e Ornstein, 2003).
A Tabela 4 demonstra a relação mínima de área útil por habitantes, e a Tabela 5 demonstra a área mínima dos compartimentos da moradia. Além das exigências de áreas, alguns autores consideram que algumas dimensões da moradia devem ser consideradas, para seu desempenho funcional (Tabela 6).
| 1 dormitório para 2 moradores | 2 dormitórios para 4 moradores | 3 dormitórios para 6 moradores | ||||
|---|---|---|---|---|---|---|
| FONTE | Área útil Total (m2) | Área útil/ Morador (m2) | Área útil Total (m2) | Área útil/ Morador (m2) | Área útil Total (m2) | Área útil/ morador (m2) |
| Portas (1969) | 46,00 | 23,00 | 56,00 | 14,00 | 70,00 | 11,66 |
| Silva (1982) | 26,32 | 13,16 | 34,12 | 8,53 | 41,92 | 6,99 |
| IPT (1987) | 33,50 | 16,75 | 41,50 | 10,37 | 49,50 | 8,25 |
| Boueri (1989) | 45,80 | 22,90 | 57,80 | 14,45 | 65,80 | 10,97 |
| Pedro (2001) | 39,00 | 19,50 | 58,00 | 14,50 | 76,00 | 14,20 |
| Palermo (2009) | - | - | 48,00 | 12,00 | - | - |
| FONTE | Dormitório Casal (m2) | Dormitório duplo (m2) | Dormitório individual (m2) | Sala (m2) | Cozinha (m2) | Banheiro (m2) | Área de serviço (m2) |
|---|---|---|---|---|---|---|---|
| Portas (1969) | 10,50 | 9,00 | 6,00 | 14,00 | 5,20 | 3,0 | - |
| Silva (1982) | 7,75 | 7,80 | 7,80 | 10,50 | 3,57 | 2,40 | 2,10 |
| IPT (1987) | 9,00 | 8,00 | 8,00 | 12,00 | 10,00 | 2,50 | - |
| Boueri (1989) | 14,00 | 12,00 | 8,00 | 15,00 | 7,20 | 4,20 | 5,40 |
| Pedro (2001) | 10,50 | 9,00 | 6,50 | 12,00 | 6,00 | 3,50 | - |
| Dimensões mínimas | Pedro (2001) (m) | NBR 15.575 (2013) (m) | |
|---|---|---|---|
| Pé-direito | Espaços habitáveis | 2,40 | 2,50 |
| Espaços não habitáveis | 2,20 | 2,30 | |
| Sala | Área < 9,5m2 | 2,10 | |
| 9,5m2 ≤ Área < 12m2 | 2,40 | - | |
| 12m2 ≤ Área < 15m2 | 2,70 | ||
| Área ≥ 15m2 | 2,70 | ||
| Dormitórios | Área < 9,5m2 | 2,10 | |
| 9,5m2 ≤ Área < 12m2 | 2,40 | - | |
| 12m2 ≤ Área < 15m2 | 2,70 | ||
| Área ≥ 15m2 | 2,70 | ||
| Cozinha | - | *1,70 | 1,50 |
| Banheiro | - | - | 1,10 |
| (Exceto box) |
Pedro (2001) especifica dimensões mínimas de espaços funcionais, do pédireito e de alguns compartimentos da moradia. Da mesma forma, a NBR 15.575:1 (ABNT, 2013) estabelece as dimensões mínimas do pé-direito e dos compartimentos da sala, cozinha e banheiro. A Norma diz não estabelecer demais “dimensões mínimas de cômodos, deixando aos projetistas a competência de formatar os ambientes da habitação segundo o mobiliário previsto, evitando conflitos com legislações estaduais ou municipais que versem sobre dimensões mínimas dos ambientes” (ABNT, 2013, p. 70).
Os parâmetros dimensionais e de áreas mínimas — por habitantes ou por compartimentos — são importantes para termos uma referência projetual. No entanto, os autores esclarecem que esses critérios não são suficientes para garantir a funcionalidade das habitações. Mais do que isso, a listagem do equipamento mínimo, bem como das áreas exigíveis para a sua utilização e as ocupadas pela circulação, são parâmetros que o espaço da moradia deve atender, para ser efetivamente funcional (Silva, 1982). São esses parâmetros que serão detalhados a seguir.
Mobiliário e área de uso
Como mencionado anteriormente, a funcionalidade da moradia está diretamente relacionada com a provisão do espaço capaz de abrigar o conjunto de móveis e equipamentos necessários — bem como o espaço para a sua adequada utilização — no exercício das diversas atividades domésticas. Nesse sentido, é relevante, primeiramente, entender quais são esses equipamentos e, depois, suas dimensões e as das suas respectivas áreas de uso.
Por isso, este trabalho buscou essas informações na literatura, fazendo um comparativo entre o que é recomendado pelos diversos autores. A tabela 7 elenca o mobiliário mínimo da habitação, segundo diversos autores.
Analisando a Tabela 7, pode-se notar que Palermo (2009) considera como mínimo necessário todo o mobiliário previsto pela NBR 15.575, e adiciona alguns itens que estão em consonância com o que é estipulado pelos demais autores brasileiros, como Pereira et al. (2002) e Silva (1982). Os autores portugueses, apesar de elencarem um número maior de itens, consideram equipamentos que não são usuais no Brasil – ou pelo menos, na maior parte dele — como bidê no banheiro e secadora de roupas na área de serviços. Sendo assim, pode-se dizer que o mobiliário mínimo elencado por Palermo (2009) é o mais adequado à realidade brasileira nos dias atuais. Foi, então, essa a referência para a coleta de dados das dimensões do mobiliário, que é tratada no próximo item.
| Móvel / equipamento | Portas (1969) | Silva (1982) | IPT (1987) | Pedro (2001) | Pereira et al. (2002) | Palermo (2009) | NBR 15.575 (2013) | |
|---|---|---|---|---|---|---|---|---|
| Sala | Sofá 2l | ✓ | ✓ | ✓ | ||||
| Sofá 3l ou sofá cama | ✓ | ✓ | ✓ | ✓ | ✓ | *7 | *7 | |
| Poltrona | ✓ | ✓ | *3 | ✓ | ✓ | ✓ | ||
| Rack | ✓ | ✓ | ✓ | ✓ | ✓ | ✓ | ✓ | |
| Aparador ou estante ou buffet | ✓ | ✓ | ✓ | ✓ | ✓ | *9 | ||
| Mesa canto ou centro | ✓ | ✓ | ✓ | ✓ | ✓ | |||
| Mesa 4 ou 6 lugares | ✓ | ✓ | ✓ | ✓ | ✓ | ✓ | ||
| Quarto casal | Cama casal | ✓ | ✓ | ✓ | ✓ | ✓ | ✓ | ✓ |
| Criado mudo | ✓ | 2 un | 2 un | ✓ | ✓ | |||
| Roupeiro casal | ✓ | ✓ | ✓ | ✓ | ✓ | ✓ | ✓ | |
| Berço | ✓ | ✓ | *2 | ✓ | ✓ | ✓ | ||
| Gaveteiro / sapateira / cômoda | ✓ | ✓ | ✓ | *4 | *8 | |||
| Mesa de estudos ou penteadeira | ✓ | *1 | *4 | |||||
| Quarto duplo | 2 camas ou beliche | ✓ | ✓ | ✓ | ✓ | ✓ | ✓ | ✓ |
| Criado mudo | ✓ | ✓ | 2 un | *10 | ||||
| Roupeiro solteiro | ✓ | ✓ | ✓ | ✓ | ✓ | ✓ | ✓ | |
| Gaveteiro / sapateira / cômoda | ✓ | ✓ | ✓ | |||||
| Mesa de estudos ou penteadeira | ✓ | ✓ | *2 | *5 | ✓ | ✓ | *3 | |
| Estante | ✓ | ✓ | ✓ | |||||
| Cozinha | Balcão com pia | ✓ | ✓ | ✓ | ✓ | ✓ | ✓ | ✓ |
| Armário superior | ✓ | ✓ | - | ✓ | ✓ | ✓ | ||
| Geladeira com freezer | ✓ | ✓ | ✓ | ✓ | ✓ | ✓ | ✓ | |
| Fogão 4 bocas com forno | ✓ | ✓ | ✓ | ✓ | ✓ | ✓ | ✓ | |
| Mesa apoio | ✓ | ✓ | ✓ | ✓ | ✓ | ✓ | ||
| Armário ou balcão extra | ✓ | ✓ | ✓ | |||||
| Mesa de 4 ou 6 lugares | ✓ | |||||||
| Banh. | Box | ✓ | ✓ | ✓ | ✓ | ✓ | ✓ | ✓ |
| Bacia sanitária | ✓ | ✓ | ✓ | ✓ | ✓ | ✓ | ✓ | |
| Lavatório | ✓ | ✓ | ✓ | ✓ | ✓ | ✓ | ✓ | |
| Bidê | ✓ | ✓ | ||||||
| Armário | ✓ | ✓ | ||||||
| Serv. | Tanque | ✓ | ✓ | ✓ | ✓ | ✓ | ✓ | ✓ |
| Máquina de lavar | ✓ | ✓ | ✓ | ✓ | ✓ | ✓ | ✓ | |
| Tábua de passar | ✓ | ✓ | ✓ | ✓ | *2 | |||
| Varal suspenso | ✓ | ✓ | ✓ | |||||
| Secadora de roupas | ✓ | *6 | ✓ | |||||
| Máquina de costura | ✓ |
RESULTADOS
Levantamento de dados
As dimensões do mobiliário mínimo da habitação estão ilustradas nas Tabelas 8 a 14, por meio de um comparativo com o que está na literatura e o que foi encontrado na coleta de dados. As tabelas estão separadas por compartimento da habitação e são apresentadas a seguir.







Os dados mostram que as dimensões descritas por Silva (1982), IPT (1987), Pedro (2001) e Imai (2010) são, em sua maioria, relativamente superiores às elencadas por Palermo (2009), que provêm de um levantamento realizado em lojas populares no ano de 2007 e 2008. É provável que o mercado mobiliário tenha se adequado às novas realidades, produzindo móveis menores, a fim de que fossem mais adequados às moradias que também se tornaram menores, ou que simplesmente tenham sido reduzidos por razões econômicas.
A NBR 15.575 (ABNT, 2013) elenca, para o mobiliário mínimo recomendado, dimensões próximas às que foram encontradas por Palermo (2009). No entanto, a norma deixa de informar as dimensões de vários itens de mobiliário — como aparador, mesa de centro, armário superior e mesa de apoio da cozinha —, por considerá-los opcionais, e não necessários.
O levantamento realizado nesta pesquisa, que está listado na coluna “Os autores” das tabelas elencadas (ver Tabelas 8 a 14), encontrou móveis e eletrodomésticos em dimensões ainda menores, se comparados ao recomendado pela NBR 15.575 (ABNT, 2013) e ao que foi encontrado por Palermo (2009) em levantamento realizado dez anos atrás. Apenas o balcão com pia, as camas e a máquina de lavar apresentaram dimensões um pouco maiores neste último levantamento. Grandes diferenças foram notadas, no entanto, nos roupeiros dos dormitórios — esta pesquisa encontrou dimensões bem menores do que as levantadas por Palermo (2009) e as recomendadas pela NBR 15.575 (ABNT, 2013).







Com relação às áreas de uso dos móveis e equipamentos, estas variam bastante entre os autores. Silva (1982), IPT (1987) e Pedro (2001) elencam dimensões que, via de regra, são maiores que as elencadas por Imai (2010), Palermo (2009) e pela NBR 15.575 (ABNT, 2013). Imai (2010) apresenta, na maioria das vezes, dimensões mais restritivas do que as de Palermo (2009). Palermo (2009) explica que a área de uso dos equipamentos baseia-se nas dimensões antropométricas e, por isso, considera, para a maioria dos móveis, uma faixa de circulação de 60 cm (largura de uma pessoa de frente) e, em casos particulares, 40 cm (largura de uma pessoa de lado), somando-se quase sempre uma margem de 2,5cm para o encaixe do móvel no ambiente. Neste trabalho, estabeleceram-se as mesmas áreas de uso estabelecidas por Palermo (2009), alterando-se apenas aquelas que eram mais restritivas (menores) do que as elencadas pela NBR 15.575 (ABNT, 2013). Por exemplo: Palermo (2009) considerou que a faixa de uso ao redor da mesa de quatro lugares pode ser de 44 centímetros, medidas a partir da borda da mesa (sem, no caso, haver superposição de uso e circulação), e a NBR 15.575 considera, para essa mesma área de uso, a dimensão de 75 centímetros. Neste caso, adotou-se o valor estabelecido pela norma, que é menos restritivo (dimensão maior).
Sendo assim, as tabelas a seguir (15 a 21) apresentam as áreas de uso de cada móvel/equipamento conforme o recomendado pelos atores, definindo o que foi adotado nesta pesquisa.
Famílias BIM do mobiliário da habitação
Após a coleta de dados referente ao mobiliário da habitação e a sua tabulação em uma planilha, selecionaram-se, para a modelagem e construção de famílias de mobiliário, os elementos que fossem, em primeiro lugar, de menor preço, e, depois, de menor dimensão, seguindo o mesmo procedimento adotado por Palermo (2009). Esse critério foi adotado porque, na prática, o preço terá papel fundamental na escolha das famílias atendidas e o espaço reduzido da edificação condiciona a escolha de móveis pequenos, para permitir acomodar todas as mobílias necessárias às atividades cotidianas. Entretanto, muitas vezes, os móveis de mercado selecionados por essa dupla condição (preço e menor dimensão) não atendem aos padrões dimensionais mínimos exigidos na NBR 15.575. Nesses casos, o padrão dimensional normativo também foi destacado na modelagem do mobiliário e deve ser respeitado em projetos de HIS.
Os objetos foram modelados e parametrizados como arquivos de família, no Revit 2018, seguindo o passo a passo que está em anexo ao fim do artigo.i
Visualmente, as famílias possuem as características físicas dos móveis e equipamentos levantados, trazendo também o tracejado que indica a sua área de uso (em vermelho). Nos casos em que o móvel/equipamento possui dimensões menores às estabelecidas pela NBR 15.575, essas estão representadas na família por um tracejado azul, para que o projetista possa vislumbrar o espaço exigido pela Norma, independentemente do tamanho real do móvel/equipamento (Figura 2). Cabe lembrar que a modelagem paramétrica permite que o projetista altere as dimensões dos móveis para o tamanho estabelecido pela NBR, mas o tracejado em azul e a área de uso não podem ser alterados.

Além das dimensões, das áreas de uso e da área da NBR, os modelos apresentam os parâmetros de material e informações diversas — preço, fabricante, modelo, loja e link. Todas as famílias modeladas estão ilustradas a seguir (Figuras 3, 43), segundo os compartimentos da moradia, e disponíveis para download no site do grupo de pesquisa ARQUITEC IAUUSP, na aba “Produção”, “Biblioteca Bim”, “Mobiliário da habitação” (acesso ao fim do artigoii).



Exemplo de aplicação
Para ilustrar um exemplo de uso das famílias, estas foram aplicadas no projeto de uma unidade habitacional entregue por intermédio do PMCMV Faixa 1, em um município brasileiro. O projeto da UH foi modelado no Revit e, nesse arquivo, foram carregadas as famílias previamente modeladas.
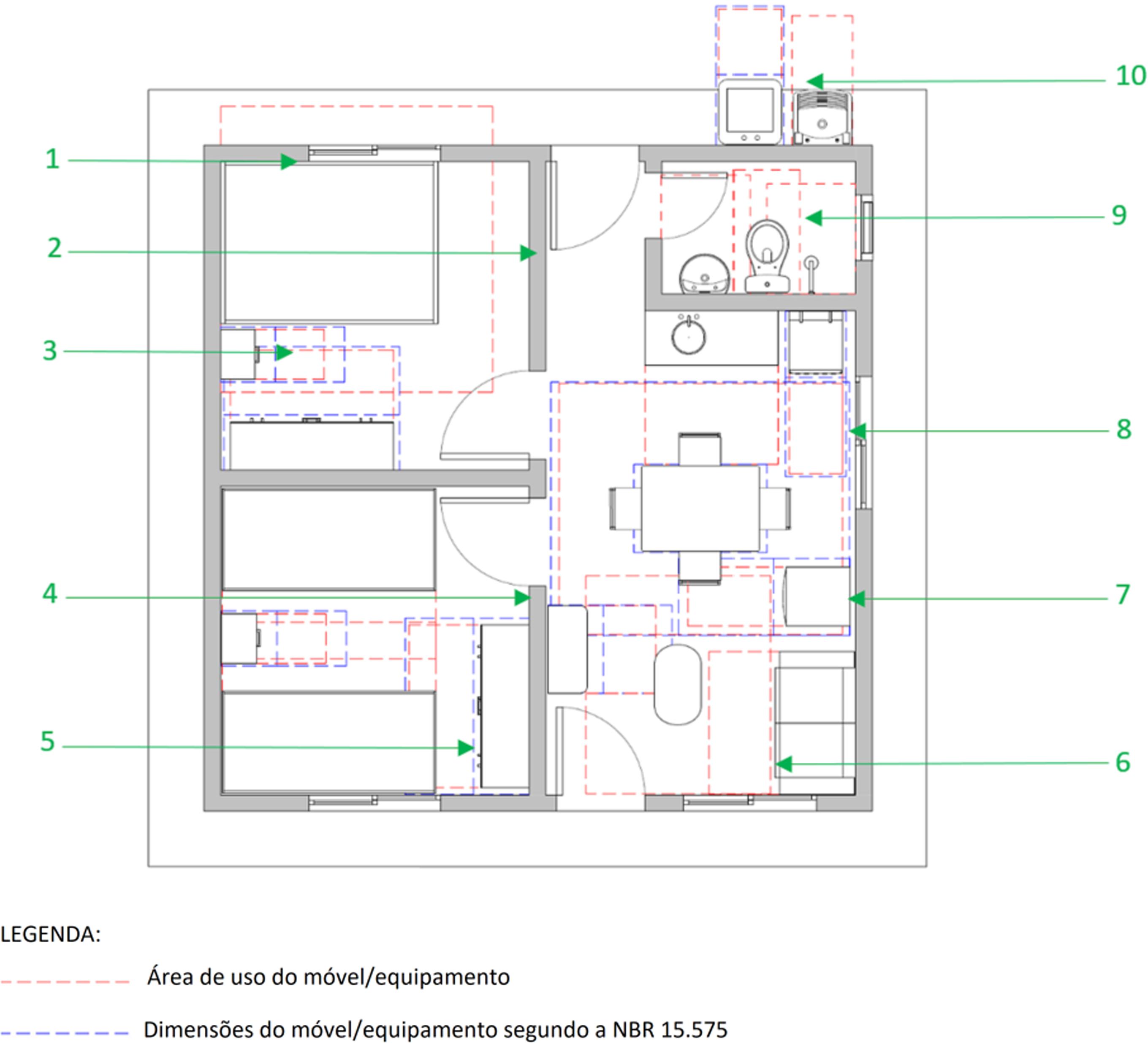
A Figura 6 traz a planta da UH, na qual foram inseridas as famílias modeladas, seguindo a mesma disposição do projeto original, que foi entregue aos moradores junto ao Manual do Beneficiário. Esse exercício ressaltou os problemas de funcionalidade que constam no projeto. No dormitório do casal, não há espaço para circulação em uma das laterais da cama (1), não há espaço para berço ou móvel auxiliar — sapateira, cômoda — (2), e o criado-mudo ocupa a área de uso do roupeiro (3), o que dificulta o acesso ao mesmo. No segundo dormitório, não há espaço suficiente para um móvel auxiliar (4), nem para a área de uso do roupeiro (5). Na sala/cozinha, não há espaço para poltrona (6) ou móvel auxiliar — buffet/aparador; a geladeira está disposta sobre a área de uso da mesa de jantar (7), o que dificulta o uso de ambos; e também não é possível alocar uma mesinha de apoio ou um armário extra. O banheiro tem dimensões exíguas, com pouquíssimo espaço para o uso dos equipamentos (9); e a área de serviço, que se limita a um tanque sobre uma pequena calçada, não comporta espaço sequer para a máquina de lavar (10), e não prevê espaço pavimentado/coberto para a área de uso.

No caso dessa aplicação, em específico, as famílias ilustram as falhas do projeto da UH, que não considerou o conjunto de móveis/equipamentos necessários nas dimensões corretas e em conjunto com a área de uso de cada um. Dessa forma, fica claro que os modelos das famílias disponibilizados nesta pesquisa podem ser utilizados tanto para analisar projetos existentes como para desenvolver novos projetos.
CONSIDERAÇÕES FINAIS
O presente artigo apresentou uma revisão bibliográfica atualizada do conceito e do papel da funcionalidade no projeto de habitações de interesse social. A discussão sobre a funcionalidade justifica-se pela realidade encontrada até hoje nos inúmeros conjuntos habitacionais existentes por todo o país: moradias sem o mínimo do que se considera necessário para o desempenho das diversas atividades domésticas que são atribuídas a esse tipo arquitetônico, considerado certamente o mais essencial ao ser humano. Assim, a intenção que norteou este trabalho é a de oferecer à comunidade acadêmica, em especial aos futuros arquitetos, diretrizes, fundamentos e ferramentas de projeto que lhes facilite o trabalho e propicie o desenvolvimento de melhores soluções projetuais.
Neste sentido, foi realizada uma pesquisa junto ao varejo de venda de móveis populares dos itens de mobiliário vendidos atualmente para a camada da população alvo dos programas de HIS, e, a partir desses levantamentos, foram sistematizados mobiliários típicos. A partir desses parâmetros, foram desenvolvidas e disponibilizadas na internet famílias de mobiliários populares para projeto BIM. As famílias foram construídas com dimensões reais e agregam na sua modelagem as áreas de uso, facilitando o trabalho do projetista no estudo espacial associado ao leiaute do mobiliário. As famílias modeladas também consideram a área mínima preconizada pela NBR 15.575.
Associada ao artigo, todas as famílias de mobiliário são disponibilizadas no site do Arquitec IAU-USP, grupo de pesquisa no qual este trabalho foi desenvolvido (link ao fim do artigo). No mesmo local, é encartado um passo a passo sobre o processo de modelagem das famílias de mobiliário desenvolvidas, auxiliando os usuários a alterarem essas próprias famílias ou a modelarem suas próprias famílias conforme necessidades específicas.
Para trabalhos futuros, sugere-se fazer uma avaliação ergonômica desse mobiliário levantado, com o apoio de um especialista. Analisar as dimensões e as condições de uso, em função das medidas antropométricas é importante para verificar se a indústria moveleira está considerando esse aspecto durante o processo de produção dos seus produtos.
Outro ponto necessário de reflexão futura relaciona-se com a adequação dimensional dos móveis populares aos padrões normativos da NBR 15.575, já que vários deles não atendem as dimensões mínimas preconizadas. Estudos antropométricos podem contribuir para o refinamento dos padrões normativos. Por outro lado, estudos e ações devem ser desenvolvidos para garantir o atendimento aos padrões dimensionais mínimos da norma na produção moveleira nacional. As cadeias produtivas da construção e de móveis devem ser alinhadas para garantir a coerência dimensional.
Por fim, espera-se que esta pesquisa possa contribuir para a discussão acadêmica acerca da qualidade da HIS e da área mínima dos ambientes e fornecer subsídios aos projetistas profissionais e estudantes para o projeto em BIM de HIS no contexto nacional.
AGRADECIMENTOS
A primeira autora agradece ao Instituto Federal de Educação, Ciência e Tecnologia de Mato Grosso (IFMT) o afastamento de doutorado, o que possibilitou o desenvolvimento desta pesquisa junto ao Instituto de Arquitetura e Urbanismo da Universidade de São Paulo (IAU-USP).
O segundo autor agradece ao Conselho Nacional de Desenvolvimento Científico e Tecnológico (CNPq) a bolsa produtividade.
A terceira e quarta autoras agradecem à Universidade de São Paulo e ao Programa Unificado de Bolsas de Estudos para Estudantes de Graduação (PUB) a bolsa, que possibilitou a participação das mesmas nesta pesquisa.
REFERÊNCIAS BILIOGRÁFICAS
Agência Brasileira de Desenvolvimento Industrial (ABDI). 2017. Mobilização para Difusão do BIM no Brasil Iniciativas da ABDI, MDIC e parceiros. Oficina sobre desenvolvimento de estratégia de implantação do BIM no Complexo Industrial da Saúde. Disponível em: http://portalarquivos2.saude.gov.br/images/pdf/2017/setembro/04/2.pdf. Acesso em: 03/04/2019.
AMORIM, C. N. D., GUINANCIO, C.; IKEDA, D. F. R.; PEIXOTO, E. R. 2015. Qualidade do projeto arquitetônico. In: R. N. BLUMENSCHEIN; E. R. PEIXOTO; C. GUINANCIO (Org.), Avaliação da qualidade da habitação de interesse social: projetos urbanístico e arquitetônico e qualidade construtiva. Brasília, UnB, p. 102-139.
ANDRADE, M. L. V. X., & RUSCHEL, R. C. 2011. Building Information Modeling (BIM). In: D. C. C. K. KOWALTOWSKI; D. DE C. MOREIRA; J. R. D. PETRECHE; M. M. FABRICIO (Org.) O processo de projeto em arquitetura. São Paulo, Oficina de Textos, p. 421-442.
APPOLINÁRIO, F. 2006. Metodologia da ciência: filosofia e prática da pesquisa. São Paulo, Pioneira Thomson Learning, 240 p.
Associação Brasileira de Normas Técnicas (ABNT). 2013. NBR 15.575-1. Edifícios habitacionais - Desempenho. Parte 1: Requisitos Gerais. Rio de Janeiro: ABNT.
BLUMENSCHEIN, R. N.; PEIXOTO, E.; GUINANCIO, C. 2015. Avaliação da qualidade da habitação de interesse social: projetos urbanístico e arquitetônico e qualidade construtiva. Brasília, UnB, 241 p.
COELHO, A. B. 2010. Melhor habitação com melhor arquitectura. Disponível em: http://infohabitar.blogspot.com.br/2010/03/melhor-habitacao-com-melhor.html. Acesso em: 03/04/2019.
DRESCH, A.; LACERDA, D. P.; ANTUNES JR, J. A. V. 2015. Design Science Research: Método de Pesquisa para Avanço da Ciência e Tecnologia. Porto Alegre, Bookman Editora, 141 p.
FABRICIO, M. M.; ORNSTEIN, S. W.; MELHADO, S. B. 2010. Conceitos de qualidade no projeto de edifícios. In: M. M. FABRICIO & S. W. ORNSTEIN (Org.) Qualidade no projeto de edifícios. São Carlos, RiMa Editora, p. 5-22.
Fundação João Pinheiro (FJP). 2016. Déficit habitacional no Brasil 2013-2014. Belo Horizonte, Fundação João Pinheiro – Centro de Estatística e Informações. Disponível em: http://www.fjp.mg.gov.br/index.php/produtos-e-servicos1/2742-deficit-habitacional-no-brasil-3. Acesso em: 03/04/2019.
IMAI, C. 2010. O sonho da moradia no projeto: o uso da maquete arquitetônica na simulação da habitação social. Maringá, EdUEM, 152 p.
Instituto de Pesquisas Tecnológicas do Estado de São Paulo (IPT). 1987. Manual de Tipologias de projeto e de racionalização das intervenções por ajuda-mútua. São Paulo, IPT, 121 p.
LEITE, L. C. R. 2006. Avaliação de projetos habitacionais: avaliando a funcionalidade da moradia social. São Paulo, Ensino Profissional, 162 p.
LOGSDON, L. 2012. O Programa Minha Casa, Minha Vida em Cuiabá-MT: Uma análise da qualidade dos projetos destinados às famílias de baixa renda. Florianópolis, SC. Dissertação de mestrado. Universidade Federal de Santa Catarina - UFSC, 183 p.
LOPES, J. M. A.; SHIMBO, L. Z. 2015. Projeto e produção da habitação na região central do estado de São Paulo: condições e contradições do PMCMV. In: C. S. AMORE, L. Z. SHIMBO, & M. B. C. RUFINO (Org.), Minha casa… e a cidade? Avaliação do Programa Minha Casa Minha vida em seis estados brasileiros. Rio de Janeiro, Letra Capital, p. 229–254.
MALARD, M. L.; CONTI, A.; CAMPOMORI, M. J. L.; SOUZA, R. C. F. 2002. Avaliação pós-ocupação, participação de usuários e melhoria de qualidade de projetos habitacionais: uma abordagem fenomenológica. In: A. K. ABIKO; S. W. ORNSTEIN. (Org.). Inserção Urbana e Avaliação Pós-Ocupação (APO) de Habitação de Interesse Social Rio de Janeiro, FINEP, p. 243-267.
MEDIA LAB ESTADÃO. 2018. Especial Tecnologia na Construção. São Paulo, Suplemento Especial, Estadão, CBIC, SENAI. 8 p.
MOREIRA, D. C.; KOWALTOWSKI, D. C. C. K. 2011. O programa arquitetônico. In: D. C. C. K. KOWALTOWSKI; D. C. MOREIRA; J. R. D. PETRECHE; M. M. FABRICIO (Org.) O processo de projeto em arquitetura São Paulo, Oficina de Textos, p. 101–108.
NASCIMENTO, D. M.; COSTA, H. S. M.; MENDONÇA, J. G.; LOPES, M. S. B.; LAMOUNIER, R. DA F.; SALOMÃO, T. M. N.; SOARES, A. C. B. 2015. Programa Minha Casa Minha Vida: desafios e avanços na Região Metropolitana de Belo Horizonte. In: C. S. AMORE; L. Z. SHIMBO; M. B. C. RUFINO (Org.), Minha casa… e a cidade? Avaliação do Programa Minha Casa Minha vida em seis estados brasileiros. Rio de Janeiro, Letra Capital, p. 195–228.
OLIVEIRA, R. 2006. Desempenhos Críticos para Sustentabilidade Habitacional. In: II Congresso Brasileiro e II Iberoamericano - Habitação Social: Ciência e Tecnologia. 2, Florianópolis, 2006. Anais… Florianópolis, CTHab.
PAIVA, A. L. S. A. 2002. Habitação flexível - Análises de conceitos e soluções. Lisboa, PT. Tese de doutorado, Universidade Técnica de Lisboa, 366 p.
PALERMO, C. 2009. Sustentabilidade Social do Habitar. Florianópolis, SC, editora da autora, 96 p.
PALERMO, C. 2013. Avaliação da qualidade no projeto de HIS: uma parceria com a Cohab/SC. In: S. B. VILLA; S. W. ORNSTEIN (Org.) Qualidade Ambiental na Habitação: avaliação pós-ocupação. São Paulo, Oficina de Textos, p. 209-232.
PALERMO, C.; MORAIS, G.; COSTA, M.; FELIPE, C. 2007. Habitação Social: Uma Visão Projetual. In: IV Colóquio de Pesquisas em Habitação, 4, Belo Horizonte, 2007. Anais… Disponível em: http://www.mom.arq.ufmg.br/mom/coloquiomom/comunicacoes/palermo.pdf. Acesso em: 10/07/2018.
PEDRO, J. B. 2000. Definição e avaliação da qualidade habitacional. Porto, PT. Tese de doutorado. Universidade do Porto, 392 p.
PEDRO, J. B. 2001. Programa Habitacional: Habitação. 4 ed. Lisboa, LNEC, 246 p.
PEQUENO, R.; ROSA, S. V. 2015. Inserção urbana e segregação espacial: análise do Programa Minha Casa Minha Vida em Fortaleza. In: C. S. AMORE; L. Z. SHIMBO; M. B. C. RUFINO (Org.), Minha casa… e a cidade? Avaliação do Programa Minha Casa Minha vida em seis estados brasileiros. Rio de Janeiro, Letra Capital, p. 131–164.
PEREIRA, G. M. 2015. Funcionalidade e qualidade dimensional na habitação: Contribuição à NBR 15.575/2013. Florianópolis, SC. Tese de doutorado. Universidade Federal de Santa Catarina – UFSC, 214 p.
PEREIRA, F. O. R. et al. 2002. Características da Habitação de Interesse Social na Região de Florianópolis: Desenvolvenvimento de Indicadores para Melhoria do Setor. In: ABIKO, A. K.; ORNSTEIN, S. W. Coletânea Habitare – Inserção Urbana e Avaliação Pós-Ocupação (APO) Da Habitação de Interesse Social. São Paulo, ANTAC, p. 160-209.
PORTAS, N. 1969. Funções e exigências de áreas da habitação. Lisboa, LNEC, 86 p.
Rede Cidade e Moradia. 2015. À guisa de conclusão: Nota pública da Rede Cidade e Moradia. In: C. S. AMORE; L. Z. SHIMBO; M. B. C. RUFINO (Org.) Minha casa…. e a cidade? Avaliação do Programa Minha Casa Minha Via em seis estados brasileiros. Rio de Janeiro: Letra Capital, p. 417–420.
REIS, A. T. L.; LAY, M. C. D. 2002. Tipos arquitetônicos e dimensões dos espaços da habitação social. Ambiente Construído, 2(3): 7-24.
ROMANO, L. F. 2003. Modelo de referência para o gerenciamento do processo de projeto integrado de edificações. Florianópolis, SC. Tese de doutorado. Universidade Federal de Santa Catarina – UFSC, 381 p.
ROMERO, M. A.; ORNSTEIN, S. W. 2003. Avaliação Pós-Ocupação: Métodos e Técnicas aplicados à Habitação Social. Porto Alegre: ANTAC. 294p.
SARAMAGO, R. C. F.; VILLA, S. B.; ALEXANDRE, L. C.; PARREIRA, J. F. 2015. Morar coletivo em Habitação de Interesse social: o caso do Conjunto Residencial São Jorge I. Cadernos PROARQ, 24(2):102–122.
SILVA, B. F.; SILVA, R. D. 2013. As novas formas de provisão de moradia e seus impactos na reconfiguração socioespacial do aglomerado Sarandi-Maringá entre 2009 e 2011. In: A. L. CARDOSO (Org.) O programa minha casa minha vida e seus efeitos territoriais. Rio de Janeiro, Letra Capital, p. 279–300.
SILVA, E. 1982. Geometria funcional dos espaços da habitação: contribuição ao estudo da problemática da habitação de interesse social. Porto Alegre, UFRGS, 134 p.
SOUZA, L. L. A.; AMORIM, S. R. L.; LYRIO, A. M. 2009. Impactos do uso do BIM em escritórios de arquitetura: Oportunidades no mercado imobiliário. Gestão e Tecnologia de Projetos, 4(2):26-53. https://doi.org/10.4237/gtp.v4i2.100
SZÜCS, C. P.; PEREIRA, G. M.; SILVA, C. S. F.; COSTA, M. 2007. Sustentabilidade Social e Habitação Social. In: IV Encontro Nacional e II Encontro Latino-americano sobre Edificações e Comunidades Sustentáveis, 4, Campo Grande, 2007. Anais… Campo Grande, ENECS-ELECS, 4:481-490.
VILLA, S. B.; & GARCIA, L. C. 2011. Elementos facilitadores da qualidade no processo projetual de habitação de interesse social - A experiência metodológica do projeto MORA. In: V Projetar - Processos de Projetos - Teorias e Práticas, 5, Belo Horizonte, 2011. Anais… Belo Horizonte, PROJETAR, 5.
VILLA, S. B.; CARVALHO, L. G. O. 2012. Funcionalidade do Habitar Social: metodologias e soluções projetuais para uma melhor qualidade habitacional a partir da experiência do projeto [ MORA ]. In: XIV Encontro Nacional de Tecnologia do Ambiente Construído, 14, Juiz de Fora, 2012. Anais… Juiz de Fora, ENTAC, 14.
Notas