Artigos
STUDENT HOUSING AT PLATEGLASS UNIVERSITIES: A COMPARATIVE STUDY
RESIDÊNCIAS DE ESTUDANTES NAS UNIVERSIDADES ‘PLATEGLASS’: UM ESTUDO COMPARATIVO
STUDENT HOUSING AT PLATEGLASS UNIVERSITIES: A COMPARATIVE STUDY
Arquitetura Revista, vol. 16, no. 1, pp. 97-118, 2020
Unisinos
Received: 10 June 2018
Accepted: 25 January 2019
Abstract: The Robbins report published in 1963 took stock of higher education in postwar Britain and proposed new guidelines for university entrance policies. Tremendous efforts were made to promote seven new universities or ‘plateglass universities’, to use the term coined by Michael Beloff in 1968. This achievement was possible thanks to the close cooperation of interdisciplinary teams in which architects endeavoured to translate educational goals into built works. Existing literature examines the situation before, during and after this great undertaking from sociological and teaching viewpoints, and also takes a closer look at architectural works of note. However, there are few comparative studies of accommodation, and this paper is the first one to compare the architecture of student accommodation and its crucial contribution to university education at the seven plateglass universities. The authors have redrawn and compared the plans of student housing at the seven universities under study, and then analysed them with regard to their respective architectural and urban projects. The findings offer critical insight into how student residences contributed to campus design and placed particular emphasis on the private and community spheres of student life.
Keywords: Higher education architecture, Postwar Britain, halls of residence, colleges.
Resumo: O relatório Robbins, publicado em 1963, fez o balanço do ensino superior no Reino Unido no pós-guerra e propôs novas orientações para as políticas de acesso à universidade. Esforços muito significativos foram então feitos para promover sete novas universidades ou, usando a expressão cunhada por Michael Beloff em 1968, universidades ‘ plateglass’ . Essa iniciativa contou com uma estreita cooperação de equipes interdisciplinares, em que os arquitetos presentes se esforçaram por traduzir em seus edifícios os objetivos educacionais. A literatura atualmente disponível analisa a situação anterior, durante e após esse vasto empreendimento a partir de pontos de vista sociológicos e do ensino. De igual modo, tem um olhar próximo sobre as obras arquitetônicas dignas de nota. Há, no entanto, poucos estudos comparativos das residências, sendo este trabalho o primeiro a comparar a arquitetura das residências de estudantes e seu contributo para o ensino universitário nas universidades ‘ plateglass’ . Os autores, depois de desenharem e compararem as plantas das residências de estudantes de sete universidades alvo de estudo, analisaram-nas em sua relação com os respetivos projetos urbanos e arquitetônicos. Os resultados obtidos refletem uma visão crítica de como as residências de estudantes contribuíram para o desenho dos campi , dando um foco particular às esferas privada e comunitária da vida estudantil.
Palavras chave: Arquitetura do ensino superior, pós-guerra na Grã-Bretanha, residências, faculdades.
INTRODUCTION
The universities of Sussex, York, East Anglia, Essex, Lancaster, Kent, and Warwick are the original ‘plateglass universities’, a term coined by Michael Beloff (1). When Robbins report about higher education was published in 1963, these universities had already been established but what matters is that these seven universities were all promoted under its guidelines and strategic aim: to open up and diversify higher education. It was felt that the restricted entrance to university at that time might hinder the country’s future social and economic development. The elitism resulting from the Oxbridge monopoly was an anachronism: anyone capable of studying at university should now be allowed to do so (2).
The said report drew upon countless statistics and whittled them down into many recommendations, including the construction of campuses across the country, university funding, new courses and curricula design, teacher training and also on-campus student housing. Great Britain’s deep-rooted tradition of university student accommodation dates back to its earliest universities and the staunch belief that living at university is a crucial part of a student’s education. In general, higher education was moving with the times and, along with it, the types of accommodation and attitudes towards community life at university.
The University Grants Committee (UGC) issued student housing guidelines that each university had to comply with when building their chosen type of accommodation. Architects and town planners played a crucial role in these huge developments. At a time when the architectural profession was regarded mainly as a social service, collaboration between different disciplines was bolstered by confidence in form-givers, i.e. those able to transform ideas into forms and spaces. They all converged on the road towards the welfare state and these development schemes gave architects ‘unprecedented responsibility and status’ (3, p.12).
Back in 1964, Hugh Casson had already pointed out parallels between the meteoric growth of universities and a massive building scheme: in both instances, quantity could be detrimental to quality. He emphasised that accommodation was a highly complex, unresolved issue of great importance for university life (4). The accommodation in the collegiate model adopted by York, Lancaster, and Kent was different from that of Sussex, East Anglia and Warwick, and far removed from Essex University’s innovative blocks of flats.
The present paper examines the 7 proposals for on-campus student accommodation from the standpoint of architectural design with particular emphasis on how the policy was transformed into inhabited spaces, by comparing their differences and similarities, the specific aims of each university, and the general layout of the residential buildings (connection to the campus, functions and facilities) down to the smallest accommodation element (basic private unit).
HIGHER EDUCATION IN POSTWAR BRITAIN
Once the most pressing difficulties arising from World War II had been dealt with, economic optimism encouraged European politicians to undertake huge housing, leisure, tourism, health, and education development schemes for a booming population. In Britain in particular, where prime minister Harold MacMillan said in 1957 that most people ‘had never had it so good’, the new postwar capitalism firmly espoused economic planning. Higher education emerged as a cornerstone of this planning and the plateglass universities could be said to embody the same entrepreneurial spirit. Measures were taken to cater for the student population and the public funding of education, and also to update the university concept. Firstly, the number of students involved was obviously a major issue: the generation of students whose studies had been interrupted by wartime were now joined by a steadily growing population. University students had increased from 50,000 in the 1938–39 academic year to 90,000 in 1956–57, and two thirds of this increase occurred after the war (5). Secondly, public demands were made for more funding from the UGC. The purpose of this committee established in 1919 was “to enquire into the financial needs of university education in the United Kingdom and to advise the Government as to the application of any grants which may be made by Parliament towards meeting them” (6). Finally, it was necessary to reconsider the purpose of university education, and the British, noticing the growth of US universities, realised that times were changing. The classic universities devoted to cultivating the mind and spirit of the elite and the nineteenth-century liberal universities offering education and research independent of State and Church precepts were all lagging behind. Scientific, modern, and humanist universities were needed, universities able to cater for a growing sense of economic purpose and service to the community, and this required great specialisation and equal opportunities in student selection (7).
The Robbins report was not the only document to highlight the need for more universities but it did play a significant role in defining postwar higher education policies. Five appendices of data underpinned a lengthy text which ended with 178 recommendations. The first group of proposals suggested the creation of new universities to cope with the considerable increase in student number, including the transformation of colleges of advanced technology into universities. The section entitled ‘The Future Pattern of Higher Education’, however, listed more specific proposals, including the following:
90. Six new universities should be established at once so that they can provide about 30,000 places by 1980/1; ... 98. The majority of new universities or institutions chosen for the granting of university status should be in or near large centres of population (8).
The last chapter, ‘Short-Term Emergency’, recommended a fast-track construction plan for the necessary buildings including staff and student accommodation, together with sufficient funding (8).
THE PLATEGLASS UNIVERSITIES
Recommendation no. 90 in the Robbins report specifically proposed the construction of six new universities, but the University of Sussex built shortly before was included in the plateglass university scheme, causing Lord Edward Boyle, then Minister of Education, to describe these institutions as the ‘Shakespearean Seven’ (1) (9) (10). The establishment at Sussex was in fact put forward for university status by the director of education for Brighton in 1956, and two years later its application was approved by the UGC after a process which was subsequently applied to the other establishments. In 1959, the UGC established a sub-committee on new universities which announced funding for the other six universities and decided where they would be built. Hence, in actual fact, none of the seven universities under study here owes its existence to the Robbins report (11). i
‘It is fortunate that a period of educational expansion in quantitative terms in Britain has coincided with a period of fresh thinking about the scope and content of university education in qualitative terms’, said the University of Sussex vice-chancellor, during the university planning seminar organised by the Architectural Association and RIBA in 1964. These new universities were given the opportunity to develop their own lines of teaching, which ‘encouraged the extension of the national debate about the scope and purposes of university education in the middle of the twentieth century’ (12, p. 12). The tendency was to create cross-training courses offering more flexible education – the complete opposite of the specialised education of the Victorian era. The relationship between the different subjects and the way they were taught was more important than the actual contents (1).
Some of these discussions about academic and organisational concerns led directly to issues concerning physical layout. A blank canvas for each campus in line with curricular intent was a far cry from the concept of the university as an integral part of the city, and also quite the opposite of Oxford and Cambridge. This new approach would also enable universities to grow quickly whilst encouraging students to live in a community. A search was then conducted for large, splendid settings in outlying areas of cities, like those chosen for country clubs (13). The sites selected near the cities of Brighton, York, Norwich, Colchester, Lancaster, Canterbury, and Coventry ( Figure 1 ) fulfilled three basic requirements: availability of funding from local authorities, easily accessible accommodation, and a plot of at least 200 acres no more than 6 kilometres from the city. Each campus was to be self-sufficient in order to encourage university life with a healthy atmosphere of its own whilst contributing to nearby towns and even boosting their social and cultural life.

The resulting campuses varied but had one common denominator: a small-scale design intended to create a sense of belonging to a community by building and maintaining hubs of activity (14). ii This design arose from discussions between those in charge of curriculum design and those responsible for architectural design. The ultimate aim was innovative teaching and architecture, so, specific spaces for social interaction were created on the basis of factors related to companionship, integration, and equality, and also certain architectural factors, i.e., the possibility of different uses, and the creation of a specific, recognisable nature. An overview of the seven universities confirms that their urban planning was adapted to cater for teaching prerequisites and reveals that the most crucial factor in campus design was whether or not to adopt a collegiate system.
York, Lancaster and Kent, the three universities with a collegiate system, all have a campus with a molecular urban layout ( Figure 2 ). The York campus was the result of talks between the architect Andrew Derbyshire and the rector, who regarded colleges as hubs of belonging and identification for their members. At York, the three buildings and a new, manmade lake were connected by walkways to encourage social interaction and enable a sense of continuity in subsequent growth phases (18). The buildings were similar and deliberately avoided any hierarchies in order to encourage academic and social integration by means of the CLASP system. iii

The universities of York and Lancaster were compared on the basis of the latter’s collegiate system and central timetabling (19). iv Lancaster was in fact classed as an ‘efficient’ university in human and functional terms due to its combination of traditional teaching tenets and an innovative master plan. Its layout is linear but structured around nodes: a continuous walkway, known as the Spine, winds its way through the campus, opening up onto squares associated with the colleges and interspersed by other services and facilities.
Kent featured the same strategy as York, in this case pairs of compact, self-contained colleges although a series of problems made alterations to the design of the connections necessary. Kent, in fact, had no master plan, at least not in the sense of a general definition of the whole university. The rector opted for a teaching method based on tutorials and full immersion in university life with no barriers between the learning process and community life (20). The architect William Holford had very little time to create his design and the result was harshly criticized (9). The first two colleges built, Elliot and Rutherford, are, however, characteristic of this campus, with an emphatic geometric composition reminiscent of the work of Louis I. Kahn (10).
The universities of Sussex, East Anglia, Essex, and Warwick chose a non-collegiate system, and their urban planning is completely different ( Figure 3 ). Basil Spence’s design for Sussex, the smallest campus, radiated outwards from Falmer House, which housed all the functions of university life in phase 1, with the addition of separate buildings for the other planning elements. The shape of the buildings conveyed a sense of unity and growth and was based on what the architect described as ‘adding courtyard on to courtyard’ as opposed to a rigid axial plan’ (12, p. 27). The pavilions were scattered across a traffic-free carpet of greenery, an idyllic urban and landscaping setting belonging to the early phases of modern architecture, but which did not escape subsequent criticism (9).

Denys Lasdun’s design for the University of East Anglia allowed for compact, linear growth. Teaching areas were concentrated in a continuous building connected to the halls of residence, or ziggurats, as they came to be known, by walkways. These ziggurats, arranged like a land-locked harbour against a backdrop of impeccable landscaping in sharp contrast with the pre-fabricated concrete buildings, are the hallmark of this project coordinated with the rector. The educational framework consisting of 8 broadly-based schools of study and small groups required a socially-aware style of architecture able to create meeting points and minimise walking time (10).
The University of Essex, in Colchester, also blurred the barriers of strictly compartmentalised teaching areas in a move towards inter-disciplinary education. The chancellor’s idea was embodied in a building that wound its way through the valley with a series of pedestrianised squares cutting across it. Perpendicular walkways ran from the intersections of the S’s to the residence blocks, and several singular buildings stood out like landmarks on this ‘town in a park’ campus (21).
Finally, Warwick University had the largest site – and also the master plan that changed most often. Like Essex and East Anglia, Warwick was larger than recommended by the UGC and was designed as a university town expected to merge with Coventry as the city expanded. The first urban design, by Arthur Ling, was based on a linear layout featuring a walkway in the form of an arcade. The second design, by Yorke, Rosenberg, and Mardall, proposed a rectilinear scheme featuring zoned blocks of buildings with well-defined sections earmarked for different purposes (14) (12). Described as a dehumanised campus belonging to the outdated International Style, the master plan changed hands again and Gabriel Epstein, the Lancaster University architect, took charge.
ON-CAMPUS STUDENT ACCOMMODATION
According to Pierre Merlin’s research into different types of campus, student accommodation was a cornerstone of university policy and a decisive factor in the university–city relationship. In countries where higher-education students traditionally live away from home, the change of scenery or separation from the family experienced when starting university makes accommodation crucially important (25).
Living away from home during higher education was an inherent and virtually unchallenged part of the British education system. It was assumed that during this stage of life:
the residential setting is the context in which the student learns to balance personal needs and group demands, where he integrates his public and private worlds, and where he is initiated into ways of thinking and behaving that have important psychological, social and educational consequences (26, p.9).
Oddly enough, the question of the relationship between academic performance and the type of accommodation apparently had no clear-cut answer: living at university was simply believed to have undeniable benefits (26).
Halls of residence had been examined in a great deal of literature, including particularly the Murray Report (1948) and the Niblett Report (1957) featuring in-depth recommendations and a deterministic approach, and the Grebenik Report (1962), which marked the cusp of a broader outlook. The committee of vice-chancellors on halls of residence charged Keith Murray with an in-depth study of the amenities provided by halls of residence and the philosophy of living on campus. Halls of residence were expected to have a distinctive, clubbable, collegiate, and academic atmosphere whilst conveying a sense of history. Murray, appointed UGC chairman in 1953, said no expense should be spared in furnishings – hanging portraits of benefactors and past wardens on dining room walls and even fitting thick pile carpets because of their ‘remark-ably civilising effect on students.’ (27, p.160) The drawing of a student room provided showed bookshelves and a desk beneath a window, a divan and locker on the opposite wall, plus an electric fire, an armchair and an occasional table (10).
William Niblett confirmed the concepts of the above-mentioned study to the UGC sub-committee on halls of residence, saying that ‘A room of his own is far more than a convenience to a student: it is an instrument of education’ (28, p. 13), and went on to specify details of the location, size and population of the halls. Rooms were not to be strung out along unending corridors but arranged in small clusters of about 20 students with a parlour where students could meet. Rooms were to be of different sizes and have different furniture. The ideal size of a hall would be 80 to 180 students, and in the event of larger numbers, several halls could be grouped together with shared facilities. The hall would be managed by a warden — a position to which a considerable part of the report was dedicated (recruitment, wage, professional or academic background, etc).
The Grebenik Report was based on several surveys of Leeds University students, which revealed that actual accommodation conditions differed considerably from what was desired, and it recommended a wider range of student accommodation. Halls of residence were expensive and other new alternatives, such as independent bed-sits leading into a common kitchen, appealed to students reluctant to be treated like eternal adolescents (29, 30).
The final proposal of the Robbins report for a university capital building programme in 1964, aimed to increase residence rates considerably until 2/3 of students were housed on campus. Only Oxford, Cambridge and the younger civic universities offered accommodation for over half of their students; the percentages at all other universities were very low. The British scenario was then compared with those of other countries. Finally, the ‘Living accommodation for students’ section of the report gave statistics from recent years and recommended that attention should be paid to the conditions and variety of the different types of accommodation.
ACCOMMODATION AT PLATEGLASS UNIVERSITIES
This paper covers the period up to the year 1970 approximately. At all the universities under study, the halls of residence under construction or already completed reflected the consolidation of the campus project as a whole. The universities were compared on the basis of their types of residence, the relationship between the sites chosen and town planning considerations, and the layout of residences, including community areas and private living quarters. The resulting data was used to plot a graph of the private/community spheres of student living.
All the universities under study followed UGC accommodation guidelines, except the University of Essex, whose innovative student housing was more along the lines of shared flats. Three of the other six institutions — York, Lancaster and Kent — had a collegiate system, whilst Sussex, East Anglia and Warwick built halls of residence. Similar figures were observed in the earliest general data about available accommodation and overall figures — not surprisingly because all seven universities had a common road map based on the same education policies ( table 1 ). There are, however, no similarities in factors regarding the approach to community living, making it necessary to break the data down further into the type of housing at each university.
| SUSSEX | YORK | EAST ANGLIA | ESSEX | LANCASTER | KENT | WARWICK | |
|---|---|---|---|---|---|---|---|
| UNIVERSITY SYSTEM | Centralised | Collegiate | Centralised | Centralised | Collegiate | Collegiate | Centralised |
| TYPE OF ACCOMMODATION | Halls of residence | Colleges | Residence | Residential towers | Colleges | Colleges | Halls of residence |
| ACCOMMODATION: GENERAL DATA | |||||||
| No. of buildings (planned/built, by 1970) | 4/4 | 5/5 | 46/10 (units) | 26/10 | 7/3 | 3/3 | 15/2 |
| Case-study buildings | Men’s Hall of Residence no.1 | Derwent College; Langwith College | Norfolk Terrace; Suffolk Terrace | Rayleigh Tower; Keynes Tower | Lonsdale College; Bowland College; Cartmel College | Eliot College; Keynes College | Benefactors Rootes Hall of Residence |
| No. of floors | GF+2 | GF+3 | Up to 7 | GF + 13 | GF + 2 | GF+3 | GF+3 |
| No. of students/building | 98 | 400 | 84 | 145 | 500 | 300 | 1000 |
| % students living on campus (by 1966) | 10% | 33% | 30% | 27% | - | 60% | 50% |
| Students in residence after first 5-year period | - | 50% | 60% | - | 30% | 50% | - |
In any case, chancellors’ choice between colleges or halls of residence was a far-reaching decision because it not only concerned the overall education system embodied by the campus layout but also prefigured the social image of university. Colleges were associated with the splendour of traditional institutions, whereas halls of residence ‘denoted a type of building and institution conceived of as a miniature version of an Oxford or Cambridge college (…), where students dined formally and were scrupulously regulated by wardens’ (31, p. 110). Both formulae implied introducing students into a parallel form of community living, not devoid of a certain camouflaged elitism, and thus constituted ‘an instrument for prolonging adolescence’ (32). Not opting for either of these two possibilities suggested that that one was ground-breaking and modern: the vice chancellor of Essex, Albert Sloman, ranked his students alongside Londoners or Newyorkers living in flats (33).
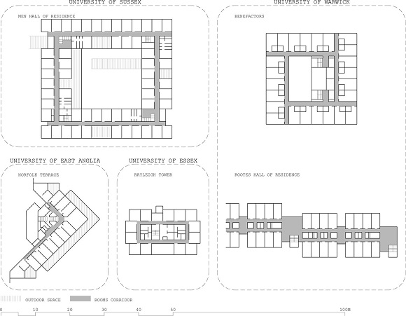
The first point of comparison is the specific location of the buildings on the campus (Figures 2 and 3). Colleges featured a combination of teaching areas and accommodation, therefore, the college buildings formed the campus itself with the addition of separate buildings for specific purposes, such as libraries, theatres, laboratories, etc. Halls of residence, on the other hand, supplemented the general campus layout rather than forming an inherent part of it. Some buildings consisted entirely of teaching areas, with student residences located alongside the faculties and schools of study. The outcome was affected by a variety of factors, including urban density, a subject of discussion at that time, and compactness: both understood to reflect a shift beyond modernity (31). Universities with halls of residence adopted a functional city approach whilst collegiate universities with multi-purpose buildings were reminiscent of dense and more compact traditional cities. Differences can, however, be seen in campus layouts. At York and Lancaster, the colleges are indeed part of a continuous fabric, whilst the colleges at Kent are sufficiently far apart to emphasise the extent of their autonomy. As for universities with halls of residence, such different approaches as those of Sussex and Essex reproduce a new-town subtopia, where residential areas are satellites of a town centre (the teaching buildings in this instance), although Sussex obviously reinforces the ideal image of pavilions in a green landscape, whilst Essex focuses on opposites, with tall, separate residence blocks in sharp contrast to its extended, low-lying teaching building.
A building’s overall shape also gives an insight into the impact of design on the visual recognition and possible experiences of campus residents. The Essex towers are landmarks on the campus, which even features an approach scenario thanks to the entrance footbridges. The ziggurats at East Anglia give the campus a powerful identity. The residences at Sussex, the Benefactors residence at Warwick and Eliot College at Kent have sufficient visual impact to be identified as self-sufficient entities. These stances contrast with those of the Langwith and Derwent colleges at York, Cartmel at Lancaster, and Keynes at Kent, whose façades and building materials feature a serial composition strategy that unifies the different shapes in the composition. Both approaches determine the user experience: compact shapes enable users to look inwards and also into the distance (towards the rest of the campus), whilst buildings broken up into subgroups encourage users to look at indoor and outdoor spaces one after another, with the cluster of buildings providing a greater degree of ‘spatial surprise’ or ‘picturesque visuality’ (34, p. 390).
As regards the building layout, some colleges had a traditional cloister arrangement, albeit with some flexibility, which enabled them to function like a relatively autonomous community and organise themselves according to a benchmark framework of functions. This is the case of Bowland and Lonsdale colleges at Lancaster, where several departments are housed in a single building together with study rooms, bedrooms, lecture halls, and seminar and tutorial rooms. The most general common areas are on the ground floor, and the study areas, accommodation and associated facilities on two or three upper storeys. Likewise, Eliot College at Kent is a series of square blocks of living quarters with teaching areas and shared services in the middle of each one. The only real patio is the central cloister.
Other colleges, however, rejected this traditional layout in favour of clusters sprawling across the landscape. The functional arrangement was similar: low-density buildings with the common and most frequented areas on the ground floor, and study rooms and bedrooms on the upper floors. Rooms were arranged in clusters, instead of along corridors, each associated with a staircase. This layout was adopted by the colleges of Derwent and Langwith at York, Cartmel at Lancaster, and Keynes at Kent ( Figure 4 ).

Four halls of residence were designed for the northern area of the Sussex campus: identical and strikingly square buildings although they did not operate as cloisters. East Anglia’s ziggurats were linked by paths to the linear building containing the departments, thereby situating accommodation and teaching in parallel. Communal facilities received less priority than at Sussex and were tucked away on the inner façade of the building along the road at ground level. In Warwick’s original design, the halls of residence formed the periphery of the campus backbone, occupied by teaching buildings and the pedestrian walkway. The residences had quite different designs, as the plan intended, in order to give each building a personality of its own. Essex has a different layout featuring several towers of shared flats ( Figure 5 ).

In collegiate systems, logically enough, all the common services and facilities needed in addition to accommodation were provided. The refectory, kitchen, launderette and areas for service staff, along with the library, lecture room, study and reading rooms, games rooms, and the bar all contributed to the smoothing running of the residence. The most elegant rooms were even an important part of the scenery. Likewise, student supervision was provided by the porter and academic staff who lived in the college.
Halls of residence had fewer of these services. There were no refectories or shared kitchens, and study and games rooms were important areas for social interaction in the absence of libraries and lecture halls. New, small service areas appeared between the rooms: small pantries, kitchenettes, laundries, and storage spaces. Students continued to be supervised by a warden and sub-warden.
Useful information can be gleaned from examining all these solutions from the specific viewpoint of the building’s access and circulation in general. It must be said that until 1969, undergraduates were not of legal age and therefore, whilst they were at university, the college stood in loco parentis and determined the freedom with which they could enter and leave the building (35). In this respect, the porter’s location in relation to the rooms gives an idea of the student supervision intended. At Sussex, for example, the building has just one entrance, well defined by being set back and two storeys high. In front of the porter’s lodge is a reception desk and the vestibule looks out across the central patio. Access control was obviously a design feature. Lonsdale College at Lancaster University has a main entrance in its east wing with a large vestibule overlooked by the porter’s lodge (with no views of the patio), but closer inspection of the ground floor reveals additional entrances from several car parks at the sides, connected to the staircases leading up to the rooms. The elimination of access control is obvious at York’s Langwith College. A sizable vestibule marks the entrance, but the different areas on the ground floor are not connected, hence, the many separate entrances. The porter’s lodge is quite a distance from the vestibule. Logically enough, centralised control was possible in residential buildings, whereas colleges containing a variety of functions required more flexible solutions.
On the other hand, the size of circulation spaces, their location in the building and even their infrastructure, all reflect their possible impact on creating a sense of belonging (36), and their design can make chance encounters more or less pleasant. Staircases and corridors — where only students from a specific subgroup of rooms meet each other — are probably not the best place for lingering after a chance meeting at East Anglia, hence the existence of a common room with magnificent views and several accessible balconies. Students at Warwick’s Rootes Halls of Residence can relax in the areas around the different staircases: the inner corridors joining the rooms have doors that can be closed to prevent noise but no views, whereas the vestibules around staircases are furnished and can be seen through from one side to another. Less obvious but equally intentional interaction spaces for people moving around Eliot College at Kent are found at the large corner staircases with natural daylight and even some additional functions.
The overall shape of the building, mentioned earlier in relation to its visual impact within the campus, is now examined in its capacity as the physical foundations for the creation of the university community. Giddens’ studies of the social organisation of Hull University students revealed there to be two structures: one formal and one informal (37). The formal structure of traditional colleges was based on house rules handed down from one generation to the next — obviously impossible in a college created from scratch. The informal structure concerned the room layout and shared facilities. His research suggested that the more compact the building, the more autonomy students would lose whilst building a community because supervision would be more centralised and restrict the creation of spontaneous social groups. We do not know whether the architects who designed the accommodation for plateglass universities realised it, but there is a link between the buildings’ entrances and circulation, and the amount of freedom enjoyed by students living in these residences when interacting informally as groups. Sussex has common areas that are wider sections of corridors but because these corridors have no interruptions and their width does not vary, the rooms do not form specific subgroups and do not enable possible groups of students to be seen. The situation is very similar in Lonsdale College at Lancaster, although this building is larger and has more staircases and entrances — making overall visual control more complicated. Eliot College at Kent is divided into sectors, which undoubtedly helps students find rooms near their friends and reveals how they arrange themselves informally, although it is possible to walk straight though the building, and there is also a common collegiate structure. The rooms in the Rootes Halls of Residence are also arranged in sectors despite having uninterrupted corridors, but not so many shared facilities. Students in Langwith College, York have a dual common structure: a sub-group of rooms with study areas and direct entrances, and the community social life provided by the college itself. The layouts that enable student subgroups to be completely autonomous with little community support are those at East Anglia and Essex.
As regards the layout of the rooms themselves, the studies and reports on which education policies were based specifically mention creating a sense of belonging partly by dividing the students in a residence into subgroups. Such social units are found in all the systems analysed and are of a similar siz, regardless of the type of accommodation: some ten to twenty students. There were, however, differences in the facilities enabling students to create this community life ( table 2 ). In the collegiate system, student needs were catered for by a single building with fully integrated facilities. Each group of rooms would have a shared bathroom and tutorial room (and sometimes a launderette). In halls of residence, on the other hand, the common areas between sub-groups of rooms also featured kitchenettes, lockers, laundry rooms, etc, but no study areas.
| SUSSEX | YORK | EAST ANGLIA | ESSEX | LANCASTER | KENT | WARWICK | ||||
|---|---|---|---|---|---|---|---|---|---|---|
| UNIVERSITY SYSTEM | Centralised | Collegiate | Centralised | Centralised | Collegiate | Collegiate | Centralised | |||
| RESIDENCE MODEL | Halls of Residence | Colleges | Residence | Residential Towers | Colleges | Colleges | Halls of Residence | |||
| ACCOMMODATION: SOCIAL UNIT | ||||||||||
| Case Study Buildings | Men’s hall of Residence no.1 | Derwent College | Langwith College | Norfolk Terrace | Rayleigh Tower | Lonsdale College | Cartmel College | Eliot College | Benefactors | Rootes Hall of Residence |
| No. of rooms/unit | 12 | 12 | 13 | 20 | 9 | 8 | 24 | 16 | ||
| Type of rooms | Single rooms | Single and double rooms | Single, double and triple rooms | Single and double rooms | Single rooms | Single rooms | Single and double rooms | Single rooms | Single rooms and two-person studios | Single rooms |
| No. of units on each floor | 4 | 1 | 1 | 6 | 1 | 4 | 1 | 1 | ||
| Common services (in the unit): | ||||||||||
| Bathroom | ✓ | X | ✓ | ✓ | ✓ | ✓ | ✓ | ✓ | x | ✓ |
| Pantry | ✓ | X | ✓ | X | x | ✓ | x | x | x | ✓ |
| Kitchen | X | X | x | ✓ | ✓ | v | ✓ | ✓ | ✓ | X |
| Storage area | ✓ | X | ✓ | ✓ | x | ✓ | x | x | ✓ | X |
| Laundry | ✓ | X | ✓ | ✓ | x | ✓ | v | ✓ | x | x |
| Lockers | X | X | ✓ | X | x | ✓ | x | x | x | ✓ |
| Tutorial rooms | X | X | v | X | x | ✓ | x | ✓ | x | x |
Another factor which affected community living, and which caused a great deal of controversy at that time, was the provision of single-sex or co-ed accommodation. In the cases under study, the factors that tipped the balance in favour of co-ed accommodation were time and the type of accommodation. At Sussex, the oldest of the universities under study, each hall of residence was single sex (segregation by buildings); at Essex, entire floors of flats were single sex, alternating between men and women (segregation by floors); at the Lancaster colleges of Lonsdale and Bowland, rooms for men or women were provided in different areas of the same floor (segregation by area); whilst Carmel College had no rules in this respect (no segregation).
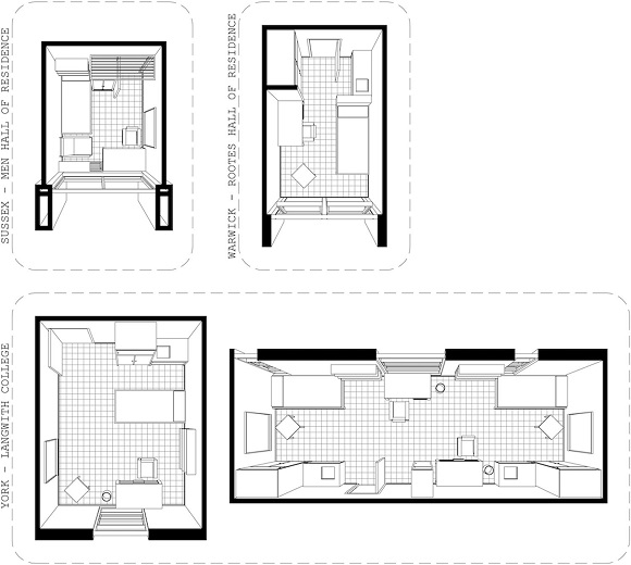
The last stage along the road to privacy is the basic residential unit: the student’s room. Because students sleep and study in their rooms they require specific fittings but personal touches are needed — the consequences of which have been studied in depth in some colleges at Oxford and Cambridge (34, 35). Our comparative study detected certain specific traits at plateglass universities. In all the universities under study, accommodation consisted mainly of single rooms (10sqm approx.), with a smaller percentage of double or triple rooms (slightly larger than 20sqm) in halls of residence than in colleges. The rooms drawn again in this study have different shapes but essentially the same purpose ( Figure 6 ). To make the most of available space, most rooms are rectangular and deeper than wide, and the area between the door and the window is occupied by a wardrobe and (in some cases) a wash-hand basin, the bed and then the study area with the best lighting. This is the layout at Sussex, York (single rooms in Langwith College), East Anglia (single rooms), and Kent (Eliot College), whilst at Essex and Warwick the desk is against the wall opposite the bed. In shared rooms, however, each student’s area is delimited by the arrangement of the furniture — quite clearly in the case of East Anglia by means of a partition.

There was virtually no fitted furniture (built-in benches, wardrobes, desks) and the furniture in the drawings is completely standardised. Each single room had a bed, bedside table, one or two wardrobes, a desk and an office chair. Bookshelves and the occasional armchair or other item of furniture were added to some rooms, apparently on an ad-hoc basis ( Figure 7 ). The rooms thus reflect financial constraints and a certain reduction in the comfort of fitted furniture. From a psychological viewpoint, the iconic domesticity recreated in the rooms at other universities has disappeared and is replaced here by predetermined furniture. ‘Unconditioned’ space could then be personalized to a greater degree, but the fact is that no meticulous spatial design was dedicated to the structure of the room: the windows are simply openings in the façades and, apart from Eliot College (Kent) and Rootes Hall of Residence (Warwick), where a service area filters the access to the room, rooms consist of four unimaginative walls. Mention must, however, be made of Basil Spence’s painstaking design for the Sussex room (shelves over the door for suit-cases, a cupboard under the window with grille over the radiator), and Denys Ladun’s combined interior design at East Anglia. Extant photographs of rooms after the students moved in, contrast with the original drawings. The way in which these rooms were inhabited does, however, demonstrate their importance for the occupants ( Figure 8 ).


The comparison of accommodation in this paper reveals the broad spectrum of solutions adopted, each of which affects the social, visual and identifying factors of both individual students and their community. Many combinations of decisions are possible: whether or not to implement a collegiate system, where to locate the buildings on the campus, and the overall campus layout. Likewise, the interior layout of the buildings and their smallest dwelling units, i.e., the rooms, all help shape the residential experience.
CRITICAL OVERVIEW: ‘THEY WILL LIVE HERE AS YOUNG ADULTS’
In the 1967–68 year, a student living on the second floor of Eliot College (Kent) gets up in the morning, washes at the washbasin in his own room and goes down to have breakfast on the ground floor, where he mixes with young men and women of his own age, teaching staff and the porter. His day consists of studying in the library, several tutorials, a seminar or lecture and probably an activity of some sort somewhere off campus. In the evening, he has dinner in the large refectory overlooking Canterbury cathedral and ends his day with a chat to classmates in the common room.
In the same academic year, another student wakes up in one of the two blocks of flats at Essex University, walks from his room to one of the shared bathrooms, then goes to the kitchen to make his own breakfast whilst chatting to flat mates. He then takes the lift down from the ninth floor and walks the short distance to the teaching buildings. He spends his spare time between classes in the common rooms in the schools of studies. If he feels like it, he will have dinner in the hexagonal restaurant with many other students. There are no restrictions on leisure time or curfews in the blocks so he will probably visit friends in other flats before going to bed.
These two examples at opposite ends of the community–privacy spectrum of student life at plateglass universities involve two crucial factors: urban planning and type of residence.
On the one hand, a collegiate campus does not require the interwoven system necessary on a campus where teaching buildings are separate from halls of residence and walkways are needed to get from one place to another. Instead of the integrated facilities found on collegiate campuses, these universities have stand-alone buildings for libraries, restaurants, etc, and students commute across campus as part of their everyday routine. This can determine the compactness of the campus and the extent to which users are theoretically in contact.
The sense of belonging experienced by students may vary according to whether they live in a college or hall of residence. In a college, students differentiate between their own room and “everything else”, i.e., the areas in the shared residence and the teaching areas. However, in a hall of residence, the experience varies as one moves along a sequence: room, social unit facilities, general areas in the residence, and, outside the building, teaching areas. This increase in the phases of community living means, according to the analysis carried out, a subdivision of the services provided in halls of residence with the ensuing increase in the functional agenda. A college, for example, has a refectory, whereas a hall of residence also has a kitchenette for a group of 10–12 rooms. The rooms in some colleges, however, are arranged in clusters: a development of the traditional model based on the parlour group recommendations made in the Niblett Report.
The way in which facilities are arranged also dictates the spatial organisation inside the buildings. Colleges give greater priority to common areas, making them well-sized and ceremonial, whilst, in halls of residence, they are obviously more functional, but still very comfortable. According to some authors, the ‘hall of residence was the provincial waiting-to-be-a-college version of Oxbridge’ (10), whilst others said that halls of residence played a ‘key role in transforming student accommodation in universities’ (27, p. 157). Either way, the hall of residence, as defined by the UGC, was far from cheap for the university. It required a great deal of time and effort if all the management guidelines concerning wardens and sub-wardens were to be taken into account. In any case, the non-collegiate university system that sprang from these policies was a gateway to a new type of accommodation for students in higher education.
These comments about the private and community spheres of university life also led to an analysis of the degree of autonomy and freedom enjoyed by students — a factor often used, according to the discussions of that time, as a yardstick for the sociological success or failure of plate-glass universities. These institutions suffered a media onslaught, and newspaper articles lambasted their types of accommodation and students’ behaviour. Co-ed accommodation policies were attacked and the slightest anecdote would fuel the most sensationalist discussions (1).
The specialised press adopted a professional approach to this matter. The Architect’s Journal commissioned a sociology lecturer to write an article about students and teaching staff sharing accommodation at Essex 13 months after they moved in. The resulting paper, ‘Essex University: What it is like to live there’, published in the January 1967 edition, highlighted the mis-dimensioned design of different areas and certain technical errors in their construction. As regards student life in a community, the paper specifically pointed out one success and one failure: independent living in flats gave no cause for concern, whereas the areas supposedly intended to foster social interaction did not have the desired results (42). Strangely enough, independent living and social interaction were precisely the two factors that Denys Lasdun emphasised when explaining his project for the University of East Anglia to the British press in 1963: ‘The student’s ways of living are changing and there is a deep desire to relax the forced formality of the college or the hall of residence. They will live here as young adults (…)’ (43).
Whilst these discussions were taking place, the student press went one step further. In response to surveys carried out for the Grebenik Report, students said they wanted to live off campus and requested subsidies for their daily travel — an attitude that clashed head on with the approach to university accommodation at that time (30).
At this point, policies and outcomes, obviously related to different classes and generations, came full circle. The authorities wanted to provide decent accommodation with a certain degree of supervision within a modern framework (halls of residence); vice-chancellors and architects were seduced by these ‘clean-start’ community experiences (32); students requested fewer restrictions; and their parents, who probably read the press, thought that the college was probably the safest system.
ACKNOWLEDMENTS
This work was supported by the Universitat Politécnica de València under its Teaching Staff Career Development Programme (which enabled a research stay at the University of the Arts London [Central Saint Martins-BSO]); and also the Spanish Ministry of Education, Culture and Sport under its Cooperation Scholarship for Students in University Departments (which enabled the student internships of María Lidón-de-Miguel and Pau Raigal-Torró).
REFERENCES
BELOFF , Michael . The Plateglass Universities [ online ]. New Jersey : Fairleigh Dickinson University Press , 1968 . ISBN 9780838675502 .
BARR , Nicholas and GLENNERSTER , Howard . Fifty years of Robbins . LSE Connect . Summer Edition, 2013 . p. 21 – 23 .
CRINSON , Mark and ZIMMERMAN , Claire . Neo-Avant-Garde and Postmodern: Postwar Architecture in Britain and Beyond . Studies in British Art. Yale Center for British Art , 2010 . ISBN 9780300166187 .
CASSON , Hugh . Las implicaciones arquitectónicas del plan de desarrollo para las nuevas universidades británicas . Cuadernos de Arquitectura . 1964 . No. 55 , p. 37 – 41 .
MURRAY , Keith . The Development of the Universities in Great Britain . Journal of the Royal Statistical Society. Series A (General) . 1958 . Vol. 121 , no. 4 , p. 391 – 419 . https://doi.org/10.2307/2343310
INNES , Peter D . How the British University Grants Committee Functions . The Journal of Higher Education . 1950 . Vol. 21 , no. 7 , p. 355 – 359 . https://doi.org/10.2307/1976915
THOMPSON , Paul . Essex University: What it is like to live there . The Architects’ Journal . 1967 . Vol. 4 , no. January , p. 4 – 6 .
ROBBINS , Lionel . The Report of the Committee appointed by the Prime Minister under the Chairmanship of Lord Robbins [ online ]. 1963 . Available from: http://www.educationengland.org.uk/documents/robbins/robbins1963.html
BIRKS , Tony . Building the New Universities . Newton Abbot : David & Charles , 1972 . ISBN 0715354760 .
MUTHESIUS , Stefan . The Postwar University. Utopianist Campus and College . New Haven : Yale University Press , 2000 . Paul Mellon Centre for Studies in Britis Series. ISBN 9780300087178 . https://doi.org/10.1017/s0018268000038115
PERKIN , Harold James . Les Nouvelles universités au Royaume-Uni . Paris : Organisation de coopération et de développement économiques , 1969 .
BRAWNE , Michael . University Planning and Design: A Symposium . London : Lund Humphries for the Architectural Association , 1967 .
BRAWNE , Michael . The New Universities . The Architectural Review . 1970 . Vol. 147 , no. 878 , pp. 239 – 254 .
DOBER , Richard P . The new campus in Britain: Ideas of Consequence for the United States . New York : Educational Facilities Laboratories , 1966 .
Elliot College [ online ]. University of Kent . [ Accessed 12 February 2019 ]. Available from: https://www.kent.ac.uk/50/pride-in-our-past/
EPSTEIN , Gabriel . The University of Lancaster 1964-1968. Four years of building at Bailrigg . Shepheard & Epstein , 1968 .
Derwent College [ online ]. Institute of Advanced Architectural Studies. University of York . c.1960-c.1970 [ Accessed 5 February 2019 ]. Available from: https://dlib.york.ac.uk/yodl/api/resource/york:20162/asset/PREVIEW_IMAGE Image
BRETT , Lionel . Site, Growth and Plan . The Architectural Review . 1963 . Vol. 134 , no. 800 , p. 257 – 264 .
SAVILLE , Richard and BURTON , John . The Universities of York and Lancaster . Building . 1969 . Vol. 216 , no. 6580 , p. 95 – 100 .
WILLIAM HOLFORD & PARTNERS . University of Kent . The Architects’ Journal . 1965 . Vol. 17 , no. November , p. 1141 – 1152 .
ARCHITECTS’ CO-PARTNERSHIP . Town in a park. University of Essex . The Architectural Review . 1966 . No. December , p. 401 – 410 .
View of Falmer House from South [ online ]. Historic Environment Scotland (Sir Basil Spence Archive) . [ Accessed 8 January 2018 ]. Available from: https://canmore.org.uk/collection/1046627
WARREN , Peter M . Students on top of one of the Towers in 1970 [ online ]. University of Essex . [ Accessed 5 February 2019 ]. Available from: https://www.essex.ac.uk/about/our-history
Warwick University in 1967 [ online ]. University of Warwick . [ Accessed 6 February 2019 ]. Available from: https://thetab.com/uk/warwick/2015/08/05/vintage-pics-show-crazy-life-warwick-uni-50-years-ago-9174
MERLIN , Pierre . Campus ou retour en ville? Les relations spatiales ville-université . In: BELLET , CARME ; GANAU , Joan ( ed .) , Ciudad y universidad. Ciudades universitarias y campus urbanos . Lleida : Editorial Milenio , 2000 . p. 175 – 192 .
BROTHERS , Joan and HATCH , Stephen . Residence and Student Life: A Sociological Inquiry into Residence in Higher Education . London : Tavistock , 1971 . ISBN 9780422737203 . https://doi.org/10.1080/00131727309339281
WHYTE , William . Halls of Residence at Britain’s Civic Universities, 1870-1970 . In: Residential Institutions in Britain, 1725–1970: Inmates and Environments . Taylor & Francis , 2015 . ISBN 9781317320265 .
NIBLETT , William . Report of the sub-committee on halls of residence . London : H.M.S.O ., 1957 .
HATCH , Stephen . Student Residence: A discussion of the literature . London : Society for Research into Higher Education Ltd , 1968 .
Grebenik Digs Report Backs Students . Union News [ online ]. 1962 . p. 1 – 2 . Available from: https://library.leeds.ac.uk/special-collections-explore/25001
PROCTOR , Robert . Social Structures: Gillespie, Kidd & Coia’s Halls of Residence at the University of Hull . Journal of the Society of Architectural Historians . 2008 . Vol. 67 , no. 1 , p. 106 – 129 . https://doi.org/10.1525/jsah.2008.67.1.106
MCKEAN , John . The English University of the 1960s: built community, model universe . In: The Man-Made Future: Planning, Education and Design in Mid-20th Century Britain . Routledge , 2007 . p. 205 – 222 . ISBN 9780415357890 .
SLOMAN , Albert . BBC Radio 4 - The Reith Lectures, Albert Sloman: A University in the Making: 1963, The Fulfilment of Lives . [ online ]. 1963 . [ Accessed 9 November 2017 ]. Available from: http://www.bbc.co.uk/programmes/p00hbdmq
SMITH , Otto Saumarez . Robinson College, Cambridge, and the Twilight of a Collegiate Modernism, 1974-81 . Architectural History . 2012 . Vol. 55 , p. 369 – 402 . https://doi.org/10.1017/s0066622x00000150
FAIR , Alistair . ‘Brutalism Among the Ladies’: Modern Architecture at Somerville College, Oxford, 1947-67 . Architectural History . 2014 . Vol. 57 , p. 357 – 392 . https://doi.org/10.1017/s0066622x00001465
CAMPBELL , Louise . Building on the Backs: Basil Spence, Queens’ College Cambridge and University Architecture at Mid-Century . Architectural History . 2011 . Vol. 54 , no. 2011 , p. 383 – 405 . https://doi.org/10.1017/s0066622x0000410x
GIDDENS , Anthony . Aspects of the Social Structure of a University Hall of Residence . Sociological Review . 1960 . Vol. 8 , p. 97 – 108 .
EINZIG , Richard . University of East Anglia, Norwich, Norfolk. Students Halls of Residence 1963–72 . [ online ]. ARCAIDIMAGES . [ Accessed 6 February 2019 ]. Available from: http://www.arcaidimages.com/home.php
Study Bedroom, Elliot College [ online ]. University of Kent . [ Accessed 12 February 2019 ]. Available from: https://www.kent.ac.uk/50/pride-in-our-past/
Bedroom in 60s [ online ]. University of Warwick . [ Accessed 6 February 2019 ]. Available from: https://thetab.com/uk/warwick/2015/08/05/vintage-pics-show-crazy-life-warwick-uni-50-years-ago-9174
DONAT , John . Students in a Tower Kitchen [ online ]. University of Essex . [ Accessed 5 February 2019 ]. Available from: https://www.essex.ac.uk/about/our-history
THOMSON , David . Britain’s Changing Universities . The Journal of Higher Education . 1949 . Vol. 20 , no. 8 , p. 407 – 409 .
About Anglia: Denys Lasdun Chosen to Design the New Norwich University [ online ]. 1963 Norwich, Norfolk, UK : East Anglian Film Archives , 1963 . Available from: http://www.eafa.org.uk/catalogue/213000
ENDNOTES