Cátalogo de deteriorios de pavimentos flexibles en aeropuertos para Cuba.
Catalog of distress in asphalt pavements in airports for Cuba.
Cátalogo de deteriorios de pavimentos flexibles en aeropuertos para Cuba.
Revista de Arquitectura e Ingeniería, vol. 11, núm. 2, pp. 1-11, 2017
Empresa de Proyectos de Arquitectura e Ingeniería de Matanzas

Recepción: 31 Enero 2017
Aprobación: 24 Febrero 2017
Resumen: La evaluación de un pavimento permitirá determinar el estado en que se encuentra la superficie del mismo, detectando los deterioros que se pueden presentar durante su vida útil. Uno de los puntos de partida para evaluar un pavimento es mediante inspección visual. Para realizarla se emplean catálogos de deterioros. Este trabajo tiene como objetivo proponer un catálogo para la identificación de los deterioros en aeropuertos en Cuba, puesto que en la actualidad no se cuenta con esta herramienta para realizar las inspecciones en los aeródromos. Se toma como referencia el catálogo establecido en el método PCI y se adecúa teniendo en cuenta las características de Cuba. La propuesta permitirá una mejor evaluación de los pavimentos flexibles en aeropuertos.
Palabras clave: Evaluación, PCI, Inspección visual, Deterioro, Aeropuerto.
Abstract: The evaluation of a pavement will determine the state in which the surface of the pavement is, detecting the distress that may occur during its useful life. One of the starting points for evaluating a pavement is by visual inspection. To do this, catalogs of distress are used. This paper aims to propose a catalog for the identification of distress in airports in Cuba, since this tool is not currently available to carry out inspections at aerodromes. It takes as reference the catalog established in the PCI method and is adapted taking into account the characteristics of Cuba. The proposal will allow a better evaluation of flexible pavements at airports.
Keywords: Evaluation, PCI, Visual inspection, Distress, Airport.
Introducción:
Los aeropuertos son las terminales en tierra donde se inician y concluyen los viajes de transporte aéreo en aeronaves. Las funciones de los aeropuertos son varias, entre ellas el aterrizaje y despegue de aeronaves, embarque y desembarque de pasajeros, equipajes y mercancías, reabastecimiento de combustible y mantenimiento de aeronaves, así como lugar de estacionamiento para aquellas que no están en servicio. Los aeropuertos sirven para aviación militar, aviación comercial o aviación general.
Los pavimentos en aeropuertos se clasifican en: pavimentos rígidos, flexibles y mixtos, estos últimos se conforman extendiendo material asfáltico, que actúa como capa de rodaje sobre una capa de hormigón rígido.
Los pavimentos flexibles (Figura 1) se componen de una o varias capas de material granular, construidos a partir del terreno, en los cuales los productos naturales pueden mezclarse o no con materiales asfáltico para obtener mayores resistencias y mejores superficies de rodaje. La capa de rodadura puede ser de bastante espesor a fin de reducirlas cargas en el suelo [1].
![Estructura típica de pavimento flexible [1].](../193954081002_gf2.png)
![Estructura típica de pavimento flexible [1].](../193954081002_gf3.png)
Los pavimentos rígidos (Figura 2) consisten en losas de hormigón de cemento que descansan sobre el terreno, bien directamente o a través de una capa de material granular. El espesor depende de la capacidad del hormigón para absorber las cargas y repartirlas en la superficie del suelo [1].
Generalmente los pavimento rígidos son utilizados áreas de hangares y de estacionamiento (donde se efectúan servicios de reabastecimiento de combustibles y mantenimiento de aeronaves), por la mejor resistencia química del hormigón a los combustibles, aceites y lubricantes y en las cabeceras de las pista por los giros realizados en la misma. En las calles de rodaje y pistas, la preferencia es por el pavimento flexible [1].
La finalidad principal de los pavimentos tanto en carreteras como en aeropuertos, es la de distribuir adecuadamente las cargas concentradas, de tal manera que la capacidad soporte de las capas de apoyo no se exceda, así como la de proveer una buena calidad de rodaje y seguridad operacional a las aeronaves que transitan sobre ella, bajo cualquier condición meteorológica [1].
Es indispensable para el correcto funcionamiento y desarrollo de las actividades diarias del aeropuerto, que el estado del pavimento en todas las zonas del mismo se encuentre en excelentes condiciones, por lo que se hace necesario realizar una previa evaluación del estado de los diferentes tipos de pavimentos para poder realizar un buen mantenimiento y un dimensionamiento de refuerzo en caso que se requiera para poder cumplir los requerimientos de carga impuestos por las diferentes aeronaves operantes [2].
La detección de los deterioros se realiza mediante la utilización de equipos de auscultación (empleados para la detección de defectos en los pavimentos, sistema de señalización e iluminación principalmente) o mediante la inspección visual. Una inspección visual cuidadosa se debe realizar a pie o en un vehículo en marcha muy lenta, deteniéndose cuando sea necesario. Los deterioros detectados deben ser cuidadosamente identificados, cuantificados y registrados [3].
Una herramienta muy útil para la inspección visual es la existencia previa de catálogos de deterioros. Se trata de colecciones de fichas en cada una de las cuales se incluye la denominación del deterioro correspondiente a cada familia, descripción del mismo, una explicación de sus posibles causas, forma de medirlos y evaluarlos (niveles de severidad) y una fotografía de un pavimento afectado por dicho deterioro [4].
Después de detectados los deterioros en el pavimento inspeccionado se realizará un informe, en el cual se presenta el estado en el que se halla la superficie del mismo, para de esta manera poder adoptar las medidas adecuadas de reparación y mantenimiento, con las cuales se pretende prolongar la vida útil de los pavimentos, por eso es de suma importancia elegir y realizar una evaluación que sea objetiva y acorde al medio en que se encuentre [5].Coincidiendo con [4] que si se analiza que los deterioros evolucionan para agravarse cada vez más con el paso del tiempo; se comprende que una intervención oportuna al pavimento, conlleva a propiciar una conservación vial económica, disminuyendo su deterioro y por tanto alargando el tiempo de vida útil del pavimento.
La objetividad en la evaluación de pavimentos juega un papel primordial, pues se necesitan personas verdaderamente capacitadas para que realicen las evaluaciones, de no ser así, dichas pruebas pueden perder credibilidad con el tiempo y no podrán ser comparadas. Además, es importante que se escoja un modelo de evaluación que se encuentre estandarizado para poder decir que se ha realizado una evaluación verdaderamente objetiva [6].
Existen diversos métodos de evaluación de pavimentos mediante inspección visual, expresando mediante un índice, el estado superficial del mismo. El Índice de Condición de Pavimento (PCI) desarrollado por especialistas del Cuerpo de Ingenieros de la Armada de los Estados Unidos, es un procedimiento de evaluación de la integridad estructural y operacional (superficial) mediante inspección visual. Tiene como objetivo la detección de los deterioros, los cuales deben ser identificados, cuantificados y registrados, para la posterior evaluación del pavimento. Es regulado para su aplicación mediante la norma ASTM D6433 [7] para carreteras y en el caso de aeropuertos ASTM D5340 [8]. Este último en su catálogo tiene identificado 16 deterioros para pavimentos flexibles de aeropuertos. Se detallan en cada uno de ellos, la descripción, las causas que los provocan, la forma de medirlos, los diferentes niveles de severidad para definir la gravedad en la condición del pavimento y una foto ilustrativa de cada uno de los niveles de severidad representado.
La inspección visual consiste en la definición del estado superficial de la carretera y su entorno, comprendido en este último, todo tipo de obras o elementos auxiliares relacionados con el pavimento que de manera directa o indirecta pueden afectar a la comodidad y seguridad del usuario [9].
Una herramienta muy útil para la inspección visual es la existencia de catálogos de deterioros. Es decir, colecciones de fichas en cada una de las cuales esté presente la denominación del deterioro correspondiente con el estado del pavimento, descripción del mismo, una explicación de sus posibles causas, forma de medirlos y evaluarlos [9] y una fotografía de un pavimento afectado por dicho deterioro [4].
En Cuba existe un catálogo de deterioros para pavimentos de carreteras [10] que se organiza y contiene los aspectos que se mencionaron anteriormente; pero para los pavimentos aeroportuarios se carece de una herramienta de este tipo. En este sentido se elabora un catálogo de deterioros para pavimentos flexibles aeroportuarios, tomando como base el catálogo que se establece en el método PCI [8] adaptándolo a las características de Cuba. El mismo se confecciona mediante fichas técnicas, similar a como se organiza el catálogo de deterioros para pavimentos de carreteras en Cuba [10], se define los deterioros en función de las características climatológicas de Cuba, influyendo el análisis de las temperatura y precipitaciones. En su conformación se utilizó la fraseología empleada según conceptos y definiciones propias del país. Además para definir niveles de severidad cantidad de operaciones los cuales son crecientes en los últimos años, ciclos de mantenimientos, tecnología a emplear en los mismos. En este criterio, niveles de severidad se pretende ser riguroso atendiendo a la infraestructura aeroportuaria en función de la cantidad de operaciones y de la tecnología como antes se mencionaba para mantener los pavimentos en condiciones tales que no afecten desfavorablemente a la seguridad, regularidad o eficiencia de la navegación aérea, sin riesgo alguno a las operaciones en el área de maniobra de las aeronaves manteniendo la seguridad de los pasajeros y aeronaves. Los valores a modificar de severidad se trabajaron manteniéndose del lado de la seguridad según lo reglamentado y el criterio de los expertos según su experiencia en la especialidad. Por lo que se propone un catálogo de deterioros basado en el que se establece el PCI teniendo en cuentas las consideraciones antes expuestas.
Materiales y métodos:
Con el objetivo de unificar criterios técnicos para la evaluación y clasificación de los deterioros presentes en aeropuertos y brindarle a los especialistas de conservación una herramienta de trabajo útil y práctica, se confeccionó un catálogo de deterioro para pavimentos flexibles aeroportuarios analizando diferentes criterios en función de:
La estructura del catálogo: se refiere a la organización y diseño del mismo de la igual forma que se establece en el catálogo para carreteras.
Característica de los aeropuertos de Cuba: hace referencia a las cargas a las que están sometidos, el número de operaciones, las condiciones climáticas.
Estructura del catálogo:
La no existencia de un catálogo de deterioro para pavimentos flexibles en aeropuertos en Cuba.
La definición de los deterioros que se mantenían o eliminaban respecto al PCI en función de las diferencias en las características climatológicas de Cuba y de otros países que emplean el método [11,12, 13, 14, 15].
Reorganizar los deterioros en familias según el formato existente del catálogo de carreta en Cuba.
Utilizar la fraseología con que se trabaja según especialistas, técnicos y obreros de la rama en Cuba
Características de los aeropuertos en Cuba
De los aeropuertos se analizaron diferentes criterios para ser más rigurosos a la hora de establecer los niveles de severidad, por lo que se tuvo en cuenta:
Infraestructura aeroportuaria.
Cantidad de operaciones e incremento de las mismas en los últimos años.
Tecnología de forma general propia del aeropuerto como la empleada para garantizar los mantenimientos.
Inestabilidad en la operatividad, transportación y características de las mezclas asfálticas cubanas.
De forma general según lo antes expuesto se analizaron los siguientes criterios:
Formato de los catálogos de deterioros en Cuba: La propuesta de catálogo estará organizada por familia al igual que el formato que presenta el catálogo de carreteras logrando una homogenización de los mismos para lograr una mejor compresión, aplicación y desarrollo de las evaluaciones de los pavimentos.
Temperaturas ambientales: El clima en Cuba es un clima subtropical moderado con dos estaciones bien diferenciadas. De Noviembre a Abril se da la estación seca, la cual es menos húmeda y algo más fresca, con un promedio de temperaturas alta de entre 21 y 28ºC y un promedio de temperaturas bajas de entre 18 y 24ºC; mientras que en los meses de verano, la temperatura media oscila alrededor de los 30ºC, con una humedad un poco mayor. En la tabla 1 y figura 3 se muestra el comportamiento promedio de la temperatura anual de Cuba observándose la homogeneidad para valores de temperaturas en el orden de los 26ºC a lo largo de todo el país, diferente a lo que sucede en otros países donde tienen mayores variaciones de temperatura en sus regiones [11,12, 13, 14,15]. En este sentido se debe aumentar el rigor de mediciones en la severidad de los deterioros en Cuba, las temperaturas referidas en el país es un factor de análisis en las condiciones de un pavimento influyendo directamente en las características del mismo. Además de suprimir acciones referentes a congelamiento de la subrasante por no presentar estas características de bajas temperaturas en Cuba.
| Cuba | Precipitaciones (mm). | Mínimas. | Máximas. |
| Enero | 65 | 18 | 26 |
| Febrero | 67 | 18 | 26 |
| Marzo | 46 | 19 | 27 |
| Abril | 54 | 21 | 28 |
| Mayo | 98 | 22 | 29 |
| Junio | 180 | 23 | 30 |
| Julio | 125 | 23 | 31 |
| Agosto | 98 | 24 | 31 |
| Septiembre | 145 | 23 | 31 |
| Octubre | 175 | 23 | 29 |
| Noviembre | 87 | 21 | 27 |
| Diciembre | 58 | 19 | 26 |
![Comportamiento de la temperatura media anual de Cuba [17].](../193954081002_gf4.png)
Precipitaciones: Se considera que en el periodo de mayo a octubre ocurren precipitaciones con mayor frecuencia, asociado a los altos valores de temperaturas y al calentamiento del día y la humedad acumulada. Esto demuestra que se cuenta con un periodo de lluvias extenso a lo largo de todo el país, estableciendo una temporada de aproximadamente 6 meses de año de precipitaciones. Esta variable incide en la evaluación de los pavimentos aeroportuarios de manera que se dificulta la realización de inspecciones periódicas establecidas así como el cumplimiento de los planes de mantenimientos. Se ha evidenciado en la práctica que los trabajos incluidos en los ciclos de mantenimientos [18] se han visto afectados por la ocurrencia de precipitaciones severas y prolongadas incidiendo en la conservación y mantenimiento y en el incremento de la severidad del estado de los deterioros ya detectados Por lo que se debe aumentar el rigor en las evaluaciones de los deterioros, logrando detectar y reparar a tiempo los de mayor incidencia.
Características físicas de los aeropuertos en Cuba: En este caso se analizó la cantidad de pistas disponibles para las operaciones aéreas. La mayoría de los aeropuertos que actualmente están en servicio en el país cuentan con una sola pista. Esto hace que aumente la influencia de las cargas de las aeronaves sobre la estructura del pavimento además del incremento de los mismos en los últimos tiempos. Independientemente que el número de vuelos sea inferior a los que se realizan en otros países [11,12, 13, 14,15], la incidencia que ejercen las cargas lo realizan en una sola pista lo que hace estas cargas significativas. Por lo tanto el análisis de los deterioros asociados con las cargas y capacidad estructural de los pavimentos será valorado en la definición de las severidades.
Tecnología empleada en los mantenimientos: Existe un déficit de materiales y recursos así como de equipamiento para dar cumplimiento a los planes de mantenimientos. Muchas de las actividades que se desarrollan en los mismos se dificultan su ejecución por no contar con el equipamiento indicado o de materiales además de lo antes expuesto respecto a las precipitaciones. Si a esto se le agrega el aumento de la cantidad de operaciones con el incremento de nuevas aerolíneas en nuestro espacio aéreo esto lleva a establecer criterios de severidad más exigentes para lograr mantener los pavimentos en estado aceptable para dar el servicio requerido.
Calidad de las mezclas asfálticas y materiales: Según [19] los materiales que actualmente se emplean en la confección de las mezclas asfálticas no reúnen las características idóneas para las prestaciones establecidas. Los áridos presentan niveles elevados de absorción, las granulometrías de las fracciones no siempre satisfacen los valores normados y la mezcla una vez colocada en pavimento, evidencia por sus niveles de deformaciones y exudación, que la calidad de los asfaltos no es la deseada. Sumándose a estos los retrasos en obras por contar con una sola empresa, Empresa Constructora de Obras Ingeniería No 5 (ECOING-5) que suministra el equipamiento y la mezclas de la obras de reparación y reconstrucción del pavimento. Siendo esta empresa encargada de la mayoría de las obras priorizadas en la capital así como Cayo Largo y el municipio especial Isla de Juventud. En este sentido se corrobora la necesidad de ser más estrictos en la evaluación de las superficies de los pavimentos con el objetivo de mantener en buen estado los pavimentos en aeropuertos.
Severidad del deterioro: Según el análisis de cada deterioro que conforma el PCI, se propone para la definición de las severidades de los deterioros, tener en cuenta no solo las valoraciones cualitativas que se describen, sino establecer criterios cuantitativos que faciliten la evaluación de los especialistas en función de los criterios anteriormente analizados según las características de Cuba.
Resultados y discusión:
Según los criterios analizados se obtuvieron los siguientes resultados cualitativos:
Existen algunos deterioros que conforman el PCI que no establece severidades cuantitativas.
Se agruparon los deterioros en cuatro familias definidas (Deformaciones, Fisuras, Segregaciones y Otros deterioros), no siendo así en el catálogo de PCI.
1.1. Ahuellamiento
1.2. Depresión
1.3. Hinchamiento
1.4. Ondulación
1.5. Deslizamientos
2.1. Fisura en bloque
2.2. Fisuras longitudinales y transversales
2.3. Piel de cocodrilo
2.4. Fisuras reflejadas
3.1. Peladuras y efectos de la intemperie
4.1. Bacheos (Reparaciones)
4.2. Agregados pulidos
4.3. Deterioro por derrame de combustible
4.4. Erosión por chorro de turbina
4.5. Exudación
4.6. Pavimento rígido expuesto (Empuje del pavimento asfáltico por losas de hormigón)
Llevado un análisis de todos los criterios antes expuesto las modificaciones realizadas a los deterioros fueron básicamente en su descripción y las severidades teniendo en cuenta los valores admisibles y el criterio de los especialistas en la materia. Se modificaron los siguientes deterioros:
-Piel de cocodrilo.
Descripción-Se añadió: Forman una malla con diagonales menores de 0.20 m de longitud.
Niveles de Severidad-Eliminar dentro del criterio de medida de la severidad media la posibilidad de desprendimientos de materiales. Se considera que solamente para severidades altas se debe permitir un nivel de desprendimiento. Incluir el ancho de las grietas como criterio cuantitativo para definir la severidad.
-Exudación.
Severidad-Definir niveles de severidad en función del área afecta con respecto a la muestra, (el PCI no define ninguno).Se considera que la existencia de exudación puede afectar el rozamiento entre el pavimento y las ruedas de la aeronave, siendo más crítico cuando la superficie está mojada.
-Fisura en bloque.
Descripción-Se le agregó conjunto de fisuras que forman una malla con diagonales superiores a 0.20 m de longitud.
Niveles de severidad-Dentro de la descripción cuantitativa se estableció rango de fiuras más severos.
-Depresión, Ahuellamiento, Fisusras por resbalamiento o deslizamiento.
Niveles de severidad-En este caso se fue poco más riguroso sin violar los valores admisible para pistas, calles de rodajes y plataformas de estacionamiento.
-Fisuras por reflexión de juntas, Fisuras longitudinales y transversales
Niveles de severidad-Se proponen cambios en la abertura de las fisuras no selladas.
-Bacheos (reparaciones)
Descripción-Se agregó más elemenos a la descripcón de lo que contempla un bache(reparación) para su mejor interpretación .Es un deterioro que aparece en áreas donde el pavimento original fue removido y reemplazado por un material similar o diferente; es un deterioro que se producen producto de defectos en la construcción del pavimento; es un deterioro que aparece en el área o cerca de una reparación realizada al pavimento y que su ejecución fue de mala calidad y es un deterioro que aparece en el área o alrededor de una reparación puntual, pudiendo ser del mismo tipo de pavimento o no.
Niveles de severidad-Se cambió la palabra bache por reparación.
-Peladura y efecto de la intemperie
Niveles de severidad: Modificar en severidad media la admición de peligro de FOD.
-Hinchamiento
Descripción-Quitar lo referente a: Un hinchamiento es usualmente causado por la acción de congelamiento en la subrasante por las condiciones climáticas de nuestro país y agregar, este deterioro se considera que tiene relación con la capacidad y conformación de la estructura del pavimento. Cuando el hinchamiento se deba a reparaciones mal ejecutadas, que como resultado se observe un desnivel entre el área reparada y el resto del pavimento, se registrará como deterioros puntuales.
Para cada deterioro se confecciono una ficha técnica que contiene: figura ilustrativa, descripción, severidad y forma de medición (Ver Anexo 1 Ejemplo Ficha Técnica). El conjunto de todas las fichas técnicas para cada deterioro confeccionará el catálogo de deterioros para pavimentos flexibles aeroportuarios. El catálogo diseñado es un documento que contará con una portada de presentación donde se recogerán los siguientes datos: nombre del catálogo, institución que lo confeccionó, autores y fecha de elaboración. Seguidamente un índice con la estructuración de la información que proporcionará el catálogo. Por último el conjunto de las fichas técnicas para los 16 deterioros que conformará el mismo.
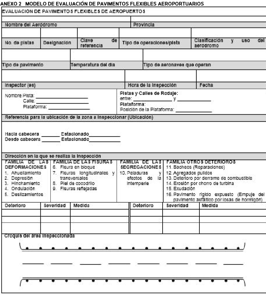
Se propone un modelo para la inspección diaria del aeródromo que recopilará la información básica del aeropuerto a evaluar y resultados de la inspección realizada. El mismo recogerá datos relacionados con el nombre del aeropuerto, fecha y hora de inspección, condiciones climáticas, datos del inspector, referencia de la zona a evaluar y un croquis con los detalles de cada deterioro encontrado para facilitar la localización de los mismos (Ver Anexo 2).
Conclusiones:
Contar con una herramienta que permita mediante inspección visual realizar una evaluación de pavimentos flexibles en aeropuertos.
Mejorar las tareas de conservación y reparación establecidas en los ciclos de mantenimiento así como los costos de los mismos de los pavimentos, además de prologar su vida útil.
Garantizar una superficie segura desde el punto de vista operacional, garantizando las operaciones de las aeronaves así como la seguridad y confort de los pasajeros. Ya que un pavimento deteriorado trae afectaciones para el movimiento de las aeronaves en el área de maniobra atentando contra la seguridad de las operaciones en el aeropuerto así como afectaciones a los explotadores de a aeronaves en consumo de combustibles y deterioro de las misma. Además de establecer demoras en las operaciones debido al cierre de la pista, calles de rodajes y plataformas de estacionamiento trayendo esto como consecuencia la premisa de un accidente o incidente.
Agrupar los deterioros en familias, similar que en el catálogo de pavimentos flexibles carreteras [10].
Modificaciones en las severidades con el objetivo de ser más riguroso en la evaluación.
Incluir en las severidades un criterio cuantitativo para facilitar la evaluación por parte de los especialistas.
Referencias bibliográficas
1 Instituto de Aeronáutica Civil de Cuba. Manual de Mantenimiento de Aeródromo. Manual Aeronáutico Cubano. 2011.
2 Cristiano Albarracín, Daniela y Pérez, Cristian. Estado del arte en el diseño de pavimentos aeroportuarios. Proyecto de Grado., Universidad Industrial de Santander, 2011.
3 Fundora Ayuso, Dr. Ing Gonzalo.Conseravación de carretera.La habana, 2014.
4 Armijos Salinas, Cristian. Evaluación superficial de algunas calles de la Ciudad de Loja., Universidad Técnica Particular de Loja, 2009.
5 Cazorla, Ing María Elena. Metodología para la evaluación del pavimento flexible y propuesta de solución de rehabilitación de un tramo de carretera a partir de la inspección visual. Tesis de Maestría.La Habana. 2010.
6 AASHTO. Guide for Design of Pavement Structures. American Association of State Highway and Transportation Officials. 1993.
7 ASTM-D6433.Standard Practice for Roads and Parking Lots Pavement Condition Index Surveys. ASTM International,2003.
8 ASTM-D5340 Índice de condición de pavimentos en aeropuertos (PCI).ASTM Internacional. Traducción Español Norma ASTM 5340-98. 2005.
9 Pérez Jiménez, D. Félix Edmundo .Pavimentos asfálticos. Vademecum. Edición: 10 Edición. Cátedra de Caminos de la Universidad Politécnica de Cataluña. 2011. Disponible en: http://www.cepsa.com/cepsa/Que_ofrecemos/Asfaltos/Vademecum/ [Consulta: 06, junio del 2016].
10 Gil Payne, Cecilia y Serrano Rodríguez , Luis Emilio. Catálogo cubano de deterioros en pavimentos flexibles.La Habana. 2000.
11 Schvartzer,Ing Fabián y Ocariz , Ing. Eustaquio. Rehabilitación de la Pista, Rodajes y Plataforma–Evaluación superficial. Seminario ALACPA de Pavimentos Aeroportuarios.VIII Taller Federal Aviation Administration.III Curso Rápido de Mantenimiento de Aeropuertos. DF, México. 2013.
12 Loria, MsC Luis, Hajj, PhD Elie, Navas, MsC Alejandro y Sebaaly, PhD Peter E.Revisión y mejora de los modelos de predicción de condición de pavimento para pavimentos flexibles usando técnicas estadísticas. Universidad de Nevada Reno/ MS257. 2009.
13 Kohler , Erwin.Evaluación y gestión de pavimentos de aeropuertos. ALACPA Buenos Aires, Argentina. 2011.
14 Álvarez Martínez, Guillermo.Auditoría técnica sobre el estado del pavimento de la pista de vuelos del Aeropuerto Internacional Toussaint Louverture en Port-Au-Prince (PAP), Haití. 2013.
15 Hanthequeste Cardoso, Dr. Samuel, Espinoza Nieri, Ing. Jorge, Alvarado Caballero, Ing. German y Saez Alván, Bach. Lucía del Pilar Evaluación funcional de los pavimentos del aeropuerto de Arequipa. Lima, República del Perú. 2000.
16 González Pedroso, Dra. Cecilia. Breve resumen de la temporada invernal 2014-2015. Revista Cubana de Meteorología, Vol 21 No.2, 2015.
17 Gil Barceló, María de Lourdes . Propuesta de catálogo para pavimentos flexibles en aeropuertos.Instituto Superior Politécnico José Antonio Echeverría.La Habana .2016.
18 Vazquez,Ing Pedro.Cumplimiento del Plan de Mantenimiento Campo de Vuelo.La Habana. 2016.
19 Hernández Hernández ,Wendy. Revisión de diseños de mezclas asfálticas en caliente realizados por la Empresa Nacional de Investigaciones Aplicadas (ENIA) de La Habana. Tesis de grado.Instituto Superior Politécnico José Antonio Echeverría. La Habana.Cuba.2015.
Bibliografía
1 AASHTO. Guide for Design of Pavement Structures. American Association of State Highway and Transportation Officials. 1993.
2 Aenlle, Dra. Anadelys. Indicadores para el análisis ambiental del proceso de producción de las mezclas de hormigón asfáltico en caliente. Tesis presentada en opción al Grado de Master, CUJAE. La Habana (2009)
3 Armijos Salinas, Cristian. Evaluación superficial de algunas calles de la Ciudad de Loja., Universidad Técnica Particular de Loja, 2009.
4 ASTM-D6433.Standard Practice for Roads and Parking Lots Pavement Condition Index Surveys. ASTM International,2003.
5 ASTM-D5340 Índice de condición de pavimentos en aeropuertos (PCI).ASTM Internacional. Traducción Español Norma ASTM 5340-98. 2005.
6 Atiezo López, José Guillermo Y Rosales Rodríguez, José Bernardo. “Guía de inspección e pavimentos aeroportuarios”, Escuela superior de Ingeniería Mecánica y Eléctrica. Instituto Politécnico Nacional.Mexico.2008
7 Calvo, Victoria. Propuesta de índice de evaluación de pavimentos flexibles para Cuba. Trabajo de Diploma, CUJAE La Habana (2014).
8 Cazorla, Ing María Elena. Metodología para la evaluación del pavimento flexible y propuesta de solución de rehabilitación de un tramo de carretera a partir de la inspección visual. Tesis de Maestría.La Habana. 2010.
9 Cristiano Albarracín, Daniela y Pérez, Cristian. Estado del arte en el diseño de pavimentos aeroportuarios. Proyecto de Grado., Universidad Industrial de Santander, 2011.
10 Delgado Egoávil, Fabiola Abigail y Villaverde, Candy Quispe. Diseño del pavimento de un aeropuerto Tesis para optar el Título de Ingeniero Civil, Pontificia Universidad Católica del Perú.2012
11 Gil Payne, MSc Ing. Cecilia y Dr Ing Serrano Rodríguez , Luis Emilio. Catálogo cubano de deterioros en pavimentos flexibles.La Habana. 2000.
12 González Pedroso, Dra. Cecilia. Breve resumen de la temporada invernal 2014-2015. Revista Cubana de Meteorología, Vol 21 No.2, 2015.
13 Instituto de Aeronáutica Civil de Cuba. Manual de Mantenimiento de Aeródromo. Manual Aeronáutico Cubano. 2011.
14 MIDEPLAN. (2005). "Metodología de Proyecto de Mantenimiento Vial Urbano". Chile.
15 Montejo Fonseca, Alfonso. Ingeniería de Pavimentos. Fundamentos, estudios básicos y diseño.Cuba.2011.
16 , Juan Manuel y Téllez, Rodolfo. Gutiérrez. Sistema de evaluación de pavimentos. Publicación Técnica No 245, Sanfandila, Qro, 2004.Mexico.
17 Pérez Jiménez, Félix Edmundo .Pavimentos asfálticos. Vademecum. Edición: 10 Edición. Cátedra de Caminos de la Universidad Politécnica de Cataluña. 2011. Disponible en: http://www.cepsa.com/cepsa/Que_ofrecemos/Asfaltos/Vademecum/ [Consulta: 06, junio del 2016].
18 RAC-14.Aeródromos Y Helipuertos. Instituto de Aeronáutica Civil de Cuba. 2015.
19 Varela, I. R. (2012.). Pavement Condition Index.
ANEXOS


Notas de autor
Ingeniero Civil
Doctor en Ciencias