Artículo
Recepción: 24 Septiembre 2015
Aprobación: 10 Marzo 2017
Resumen: Mediante una investigación localmente apropiada en el sector de vivienda sustentable para la ciudad de San Luis Potosí, México, fue posible integrar en un solo prototipo: verticalidad para incrementar densidades urbanas; flexibilidad para adecuarse a los cambios demográficos; y resistencia al cambio climático mediante la evaluación del desempeño de estrategias de diseño bioclimático. El prototipo también sirvió para comparar el desempeño en términos de confort térmico entre block hueco de concreto y tabique rojo recocido mediante el software DesignBuilder. La investigación muestra que a través de un diseño bioclimático localmente adecuado es posible producir vivienda sustentable y resistente al cambio climático para la ciudad de San Luis Potosí.
Palabras clave: flexibilidad, accesibilidad, resistencia al cambio climático, diseño bioclimático, vivienda sustentable.
Abstract: This locally-tailored research focuses on sustainable housing in San Luis, Potosí, Mexico and includes verticality to increase urban density, flexibility to adapt to demographic changes and climate change resilience through the assessment of bio-climatic design strategies into a single prototype. This prototype was also useful to compare the thermal comfort performance of hollow concrete blocks and fired bricks; such a measure was made via DesignBuilder. This paper shows that a locally-tailored bio-climatic design may enable the production of sustainable housing resilient to climate change in San Luis, Potosí.
Keywords: flexibility, accessibility, climate change resilience, bio-climatic design, sustainable housing.
Introducción
En décadas recientes, las ciudades medias en México, como lo es San Luis Potosí (SLP), han experimentado un crecimiento urbano significativo. Sin embargo, debido a la falta de eficacia y una influencia efectiva por parte de las instituciones locales de planeación urbana, el crecimiento urbano ha sido dirigido por los especuladores de suelo. Dicha situación ha generado una expansión urbana desordenada, en la cual, la dispersión del crecimiento urbano a través del paisaje supera por mucho al crecimiento poblacional (Ewing, Pendall & Chen, s.f., p. 3). Aún más, las políticas de vivienda han impactado al medio ambiente, ya que los artefactos construidos forman parte de un traslape de redes, naturales, artificiales y culturales (DeKay, 2011), los cuales, según su planeación, ejecución y funcionamiento demandan gran variedad y cantidad de recursos, muchos de ellos de naturaleza no renovable. En cuanto a sustentabilidad y eficiencia energética se refiere, SLP carece de regulaciones y normatividad localmente apropiadas en el ámbito de la vivienda y de la construcción.
Aunado a lo anterior, se espera que el crecimiento urbano y la demanda de vivienda en SLP continúen relativamente estables hasta 2050, esto, debido a las tendencias demográficas y a los cambios en la configuración de las familias. De manera adicional, censos locales y proyecciones de población muestran que la mayor parte de la demanda de vivienda para el mismo periodo de tiempo, se concentrara en los sectores de bajos ingresos (Partida, 2008).
Finalmente, el stock actual de vivienda, así como las viviendas de nueva construcción tendrán que enfrentar temperaturas ambiente cada vez más altas debido al calentamiento global producto del cambio climático (se considera un ciclo de vida mínimo de 50 años para vivienda). En SLP se espera un incremento de 3,4C en las temperaturas promedio para el año 2090, junto con un decremento de cerca del 11% en las precipitaciones pluviales (Montero, Martínez, Castillo y Espinoza, 2010, p. 56). Este escenario presenta el reto de diseñar y construir para resistir y/o adaptarse al cambio climático.
Objetivos y metodología
El principal objetivo del estudio fue crear un prototipo de vivienda vertical a pequeña escala (únicamente 4 niveles), en oposición al enfoque convencional de vivienda social vertical masiva. Mediante este enfoque se espera tomar ventaja de los vacíos urbanos existentes contribuyendo así a generar mayores densidades urbanas; de forma paralela, se minimiza el riesgo de generar ‘segregación socio-espacial’ asociada con los grandes conjuntos habitacionales para sectores socio-económicamente específicos de población. Otra ventaja de este enfoque de diseño es que, hipotéticamente hablando, hace uso de la infraestructura y servicios urbanos existentes sin sobrecargar la capacidad de los mismos, esto se debe a la disponibilidad aleatoria de tales vacíos dentro de la mancha urbana. Es importante señalar que el prototipo ha sido diseñado en un lote ‘ideal’ con una orientación sur en su fachada principal para efectos de bioclimatización y simulación energética.
Los departamentos fueron dimensionados siguiendo la normatividad de accesibilidad (Higuera y Gutiérrez, s.f.), especialmente en planta baja. Esto como una respuesta no solo a la necesidad de vivienda social adecuada para personas con discapacidad motriz, pero también para las necesidades de una población cada vez más vieja la cual eventualmente requerirá adaptar su vivienda acorde a los cambios en su motricidad. Este prototipo también cumple con las normas locales de construcción para edificios de vivienda de varios niveles.
Finalmente, otro de los objetivos principales fue el de evaluar el desempeño de las estrategias de diseño bioclimático durante varios escenarios temporales, partiendo del año 2002 como base y simulando mediante software futuros escenarios de cambio climático para los años 2020, 2050 y 2080; esto con el objetivo de encontrar aquellas estrategias de diseño bioclimático que presentaran mejor desempeño en términos de confort térmico, como una medida de su resistencia al cambio climático.
El confort térmico es el grado de satisfacción de los usuarios con respecto al ambiente térmico en las edificaciones y lo conforman seis factores: rango metabólico (nivel de actividad del usuario); aislamiento por vestimenta (tipo de vestimenta); temperatura del aire; temperatura radiante (de las superficies inmediatas); velocidad del aire; y humedad relativa. Todos estos factores son simulados mediante software para predecir el número de horas dentro del edificio en el cual la combinación de todos estos parámetros es percibida como ‘confortable’ por el usuario. Dicha percepción se mide en una escala conocida como PMV ET -Pierce Mean Vote por sus siglas en inglés- y se considera adecuada para edificios con ventilación natural como en el caso del prototipo estudiado (“Thermal comfort models”, s.f.).
Dicha escala de percepción cuenta con un rango que va de -3 (muy frío) a +3 (muy cálido) en el que cero representa neutralidad. Valores mayores a +1 se consideran fuera del área de confort y requerirán de ventilación adicional o sistemas de enfriamiento. Mientras que valores menores a -1 requerirán de calefacción para generar confort térmico. El rango de temperatura al interior del edificio que se considera como ‘área de confort térmico’ se ubica entre los 20ºC y 25ºC y una percepción PMV ET en el rango de +1 a -1.
Por otra parte, el diseño arquitectónico al igual que los diversos enfoques de sustentabilidad son procesos complejos capaces de integrar múltiples objetivos a través de un diseño y planeación cuidadosos. El prototipo busca demostrar que es posible precisamente, el lograr múltiples objetivos de sustentabilidad (sociales, urbanos, de confort térmico, resistencia al cambio climático, diseño solar pasivo, flexibilidad y accesibilidad) dentro de un mismo programa arquitectónico. Aunque dicho enfoque carece de una perspectiva profunda respecto a las diversas soluciones integradas (debido al alcance de la investigación), logra por otra parte, un diseño arquitectónico sustentable y localmente apropiado, cuya función principal, es la de poner a prueba diferentes estrategias de diseño bioclimático (DB) en relación a su efectividad ante el cambio climático.
La ciudad de San Luis Potosí se ubica en el centro de la república mexicana, a una altura de 1,685 m.s.n.m. en la latitud 22°09’02”N, longitud 100°58’3’O; el clima local se clasifica como semiárido. Debido a la altitud de la ciudad y a su ubicación tierra adentro, esta experimenta variaciones diarias de temperatura de aproximadamente 12°C como se muestra en la tabla 1; esto hace posible el tomar ventaja de la masa térmica en las edificaciones como estrategia de diseño bioclimático.
Por otra parte, las temperaturas promedio en SLP muestran que se pueden alcanzar el confort térmico únicamente empleando diseño solar pasivo (bioclimatización) durante buena parte del año. Por lo tanto, en un primer paso, se comenzó por estudiar las estrategias de DB adecuadas para SLP para posteriormente evaluar su efectividad ante futuros escenarios de cambio climático (tabla 2). El siguiente paso consistió en la selección de materiales de construcción locales adecuados para las estrategias de DB.
Finalmente, mediante el estudio de los conceptos de flexibilidad, accesibilidad y de las normas locales de construcción, fue posible establecer los parámetros de diseño que permitieron generar la propuesta final de prototipo. Además, se estableció un tamaño de lote mínimo de 15x15 metros capaz de albergar al prototipo de vivienda y sus áreas complementarias (circulaciones, áreas, verdes y de estacionamiento, etc.) en cumplimiento con el código de construcción local.
El software Meteonorm1 fue utilizado para generar el archivo climático en formato ‘epw’2 el cual se basa en datos climáticos históricos hasta el año 2002 para la ciudad de San Luis Potosí. Posteriormente, el archivo ‘epw.’ fue procesado empleando el software CCWorldWeatherGen3 para generar archivos de futuros escenarios de cambio climático para los años 2020, 2050 y 2080. Finalmente dichos archivos fueron analizados mediante el software Climate Consultant 5, con cuyos resultados se generó la tabla 1, en la que se muestran las temperaturas promedio para los años 2002, 2020, 2050 y 2080 en la ciudad de San Luis Potosí, México.

Para comparar la efectividad de las estrategias de diseño bioclimático ante el cambio climático, los futuros escenarios en formato ‘epw.’ fueron estudiados empleando el software Climate Consultant 5.44, como se puede apreciar en la tabla 2.

Desde el punto de vista de la resistencia al cambio climático, las mejores estrategias de diseño bioclimático son: sombreado de ventanas, masa térmica con ventilación nocturna durante el verano; mientras que las ganancias internas de calor pueden ser aprovechadas durante el invierno para proveer confort térmico. Por lo tanto, dichas estrategias fueron consideradas durante el diseño del prototipo. Cabe señalar que para que tales estrategias de diseño sean efectivas es necesario contar con un diseño solar pasivo que tome ventaja de la orientación sur la cual permite un margen de tolerancia de 30 grados tanto al este como al oeste. Esto representa restricciones en cuanto a la disponibilidad de terrenos adecuados y, dado el caso, requeriría de modificaciones al diseño original para compensar cambios mayores en la orientación del edifico por lo que se optó por trabajar con un terreno ‘ideal’ y sin obstrucciones por edificios de mayor altura.
Por otra parte, los materiales más ampliamente utilizados por la industria de la construcción local son: pisos y techos de concreto; y muros ya sea de tabique rojo recocido (ladrillo común) o de tabique hueco de concreto. Estos materiales son excelentes opciones debido a su elevada masa térmica.
La masa térmica es considerada como la capacidad de los materiales para absorber y almacenar calor para posteriormente liberarlo lentamente durante el ciclo día-noche (“Thermal mass benefits for housing”, 2010). Por lo tanto se optó por comparar el desempeño del ladrillo rojo común y del tabique hueco de concreto en muros mediante el software DesignBuilder; manteniendo el resto de los elementos constructivos sin cambios.
En cuanto a accesibilidad y flexibilidad, el “Código de construcción de vivienda” (CONAVI, 2010) y el “Manual de recomendaciones de accesibilidad” (Higuera y Gutiérrez, s.f.) fueron las principales fuentes y guías de diseño. Para este estudio, se considera a las personas con discapacidad como: “aquellas que tienen una o más deficiencias físicas, mentales, intelectuales o sensoriales y que al interactuar con distintos ambientes del entorno social pueden impedir su participación plena y efectiva en igualdad de condiciones a las demás” (“Discapacidad en México”, s.f.).
Discapacidad motriz es la más frecuente en México (58% de las discapacidades - INEGI, 2010-) y es la más demandante en términos de espacio, por lo tanto fue considerada como la línea base para dimensionar las plantas arquitectónicas del prototipo. Adicionalmente y de acuerdo con CONAVI (2010, p. 115) la superficie mínima construida para una vivienda accesible debe ser de 65 m2.
Finalmente, la vivienda flexible es una vivienda que ofrece flexibilidad en el arreglo de sus componentes ya sea durante la fase de diseño o que por otra parte, ha sido diseñada para facilitar el cambio durante su ciclo de vida tanto en usos sociales como constructivos (Schneider & Till, 2005, p. 157). En el primer enfoque, al diseñar espacios sociales flexibles y de dimensiones generosas, se permite que los usuarios modifiquen el arreglo del mobiliario de acuerdo con sus necesidades; mientras que el segundo enfoque requiere una estrategia de diseño más compleja en la que la configuración de las divisiones internas puede ser modificada para transformar los espacios de acuerdo a los cambios en el estilo de vida de los ocupantes durante el ciclo de vida de la vivienda y por lo tanto este último enfoque fue el empleado para el diseño del prototipo.
Es importante señalar que una de las principales críticas al concepto de ‘flexibilidad’ es que este enfoque de diseño se traduce en una serie limitada de opciones prescritas por el arquitecto/diseñador (Friedman & Krawitz, 1998, p. 109). En este sentido, aunque un diseño participativo pudiera en cierta medida superar dicha situación, tal metodología rebasa los alcances de la presente investigación.
Respecto al diseño general, cada departamento del prototipo de cuatro niveles cuenta con una superficie interna de 76,57 m2 (11.57 m2 superior al mínimo establecido) y ha sido diseñado de tal manera que algunos muros internos puedan ser añadidos/sustraídos de acuerdo a las necesidades de espacio de sus habitantes sin necesidad de modificar la envolvente (muros con relleno especial en plantas arquitectónicas).
La altura libre de piso a techo es de 2,40 metros y, como ya se mencionó antes, la fachada principal se encuentra orientada hacia el sur.
El departamento “A” en planta baja fue diseñado para accesibilidad y movilidad con silla de ruedas; cuenta con dos habitaciones una cocina de planta abierta que se integra espacialmente con la sala/comedor; el mobiliario en cocina está dispuesto en forma de “L” para facilitar la maniobrabilidad. Los niveles superiores fueron diseñados para ejemplificar las posibles variaciones en planta como se describe a continuación:


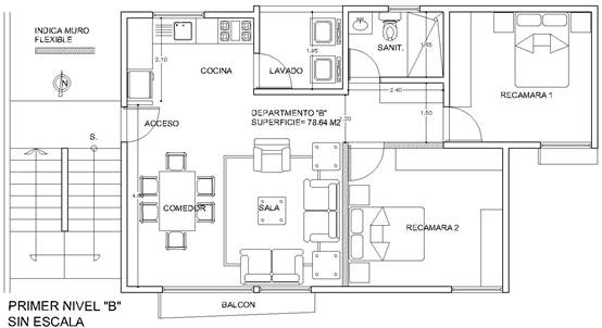
Primer nivel “B”: el diseño en planta es prácticamente igual al de planta baja “A”, pero cuenta con un balcón, el cual está pensado como una extensión de la sala/comedor; todos los departamentos repiten esta característica.

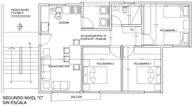
Segundo nivel “C”: cuenta con el mayor número de subdivisiones internas con tres habitaciones, sin embargo este arreglo se produce a expensas de reducir la superficie de sala/comedor.

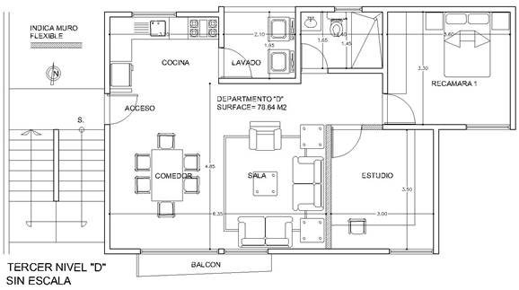
Tercer nivel “D”: fue diseñado pensando en un hogar unipersonal y por lo tanto una habitación ha sido dispuesta como estudio o en su defecto como habitación de huéspedes. Este diseño cuenta con la mayor superficie común (sala/comedor).
Azotea: esta fue diseñada no solo para alojar tinacos, pero también para poder alojar paneles fotovoltaicos y/o calentadores solares de agua, por ello, la altura máxima de los pretiles es de 0,50 metros para evitar que estos produzcan sombra sobre dichos implementos.
En las distintas plantas arquitectónicas, se muestran con relleno especial los muros diseñados para ser agregados/sustraídos según las necesidades de espacio; esto, sin afectar la envolvente del edificio ni el sistema estructural, traduciéndose en ahorros en tiempo y costos de construcción en caso de requerir alguna modificación en el arreglo interior de los departamentos.

Por otra parte, los departamentos B, C y D cuentan con un balcón de dimensiones contenidas (un metro de profundidad sobre una ventana de 2,20 metros de altura), el cual sirve como extensión del espacio interior (sala/comedor) y que brinda mayor dinamismo a la fachada, como se puede apreciar en la figura 5. En dicha imagen podemos también observar parte del análisis de asoleamiento realizado para la fachada sur, en este caso a las 15:00 horas, en los meses de marzo, junio y diciembre. Como se puede apreciar, durante el mes más caluroso (junio), la fachada sur genera su propia sombra evitando así el sobrecalentamiento de los espacios interiores.
Resultados
Se estableció un tamaño mínimo de terreno con unas dimensiones de 15x15m y una superficie de 225,00 m2 para dar cabida al prototipo de cuatro niveles en cumplimiento con la normatividad local (porcentajes de superficie construida y áreas libres). Mediante este diseño, el edificio ahorra una superficie de 135 m2 de suelo urbano en comparación a los 360 m2 necesarios para construir cuatro viviendas horizontales bajo el esquema actual de vivienda social en SLP para el cual serían necesarios cuatro terrenos de 6 por 15 metros (90 m2 es el terreno mínimo para vivienda social)5.

Probablemente, el resultado más significativo del presente estudio surgió al realizar pruebas de sensibilidad con el software DesignBuilder. Empleando un prototipo de base se realizó una serie de simulaciones de confort térmico durante el periodo de un año, con y sin elementos sombreadores en ventanas (parasoles) y con y sin el volumen de escaleras; esto con el fin de determinar la sensibilidad del software a dichas variaciones en el diseño y calibrar los parámetros en caso de ser necesario.
La tabla 3 muestra el número de horas fuera del rango de confort térmico (CT) al interior del prototipo para cada mes del año. Sorprendentemente, el prototipo sin parasoles en las ventanas mostro un mejor desempeño (menor número de horas). Posteriores simulaciones de CT mostraron que en oposición a la literatura tradicional acerca de diseño bioclimático y a la evaluación realizada con software (tabla 2) los parasoles (elementos sombreadores en ventanas en orientación sur) no son necesarios siendo incluso contraproducentes. Esto se debe a la particular combinación de altitud, latitud y ubicación geográfica de la ciudad de SLP, los cuales hacen que tales elementos produzcan un mayor número de horas fuera del área de CT debido a una menor incidencia solar, la cual se traduce en bajas temperaturas especialmente durante el invierno.
En un análisis posterior de sombreado de fachadas utilizando el software EcoTect (figura 5), se comprobó como el edificio se beneficia de una mayor exposición al sol (ventanas sin parasoles), especialmente durante el invierno; mientras que durante el verano, la latitud, combinada con la orientación sur de la fachada son suficientes para evitar sobrecalentamiento durante la mayor parte del tiempo. Lo que es más, posteriores simulaciones de CT para escenarios de cambio climático mostraron que los parasoles en ventanas (orientación sur) no generan en el presente ni en el futuro, una mejora significativa en el número de horas dentro del rango de CT. Dado que el número de horas fuera del área de confort térmico solo muestran una imagen parcial del fenómeno, se realizó una comparación empleando el índice Pierce PMV6 durante el mismo periodo de tiempo (tablas 4 y 5); con dichos resultados se descubrió que esta incomodidad se debe a bajas temperaturas como consecuencia de la baja exposición a la radiación solar, especialmente durante el invierno.

En las tablas 4 y 5 se ha resaltado en color gris obscuro los índices correspondientes a los meses en los que se experimentara incomodidad térmica debido a bajas temperaturas, mientras que en color gris claro se resaltaron los índices correspondientes a los meses en los que se espera incomodidad térmica debido a altas temperaturas. Como se puede apreciar, el número de meses y la intensidad de la incomodidad térmica son mayores en el prototipo con parasoles (tabla 5).

En cuanto a la comparación del desempeño energético entre block hueco de concreto y tabique rojo recocido7, la diferencia entre ambos materiales fue mínima, e incluso el block hueco de concreto mostró ligeramente un mejor desempeño en términos de confort térmico como se muestra en las tablas 6 y 7.


Al comparar el total de horas por año podemos apreciar un desempeño ligeramente mejor (menor número de horas fuera del área de confort térmico) en el prototipo simulado con block hueco de concreto, el cual mostró 161 horas menos fuera del área de confort para todos los niveles y para todos los periodos de tiempo estudiados. Sin embargo, es necesario estudiar con mayor profundidad dichos resultados, ya que el número de horas fuera del área de confort térmico es tan solo una imagen parcial del comportamiento de dichos materiales.
Dado el alcance y limitaciones del presente estudio se consideró pertinente el dejar para una posterior investigación, el estudio con mayor detalle de la diferencia en el comportamiento entre ambos materiales (comportamiento por hora en un día típico de verano y de invierno, tiempo de carga y descarga térmica, entre otros) los cuales permitirán comprender y posiblemente tomar ventaja de las características de cada material, en particular en relación a su empleo como parte de una estrategia de diseño solar pasivo más amplia.
Finalmente, vale la pena mencionar que el análisis gráfico de sombreado del edificio jugó un papel clave para comprender la relación del prototipo respecto a las estaciones y al movimiento aparente del sol y su impacto en las temperaturas interiores del edificio.
Discusión
El prototipo mostró un desempeño energético diferenciado para cada nivel, incluso cuando el arreglo en planta fue muy similar como lo es el caso de planta baja “A” y primer nivel “B”. En ese sentido, el peor desempeño energético lo mostró el departamento del tercer nivel “D”, ya que debido a su posición relativa en el edificio, es el que cuenta con una mayor superficie expuesta a la intemperie a través del techo y los muros perimetrales. En consecuencia, podemos afirmar que la posición relativa del departamento en relación al edificio tiene un impacto en los niveles de CT y por lo tanto en su desempeño energético. En este sentido, el CT disminuye progresivamente mientras la altura del departamento asciende hasta alcanzar el tercer nivel con el peor desempeño en comparación con el resto de los departamentos. Es importante señalar que dicha afirmación se basa en un edificio de tres niveles (cuatro pisos), por lo que sería necesario realizar estudios análogos para edificios con mayor altura.
Adicionalmente, contrario a las recomendaciones de diseño bioclimáticas encontradas en software y literatura especializados, los elementos sombreadores de ventanas (parasoles, etc.) no solo son inefectivos en la ciudad de San Luis Potosí, sino que además son contraproducentes para las fachadas orientadas hacia el sur. Esto se debe a que un edificio en esta latitud y ubicación geográfica específica se beneficia de la exposición natural a la luz del sol especialmente durante el invierno; mientras que durante el verano, la misma latitud ayuda a evitar un excesivo calentamiento por sobre exposición solar. Vale la pena hacer énfasis en que esta afirmación es únicamente válida para ventanas con una orientación sur. Estos resultados realzan la importancia de realizar investigación localmente apropiada con el fin de encontrar las estrategias más efectivas para proveer de CT y resistencia al cambio climático según la localidad.
Finalmente, la comparación en el comportamiento energético en términos de confort térmico entre block de concreto hueco y tabique rojo recocido (ladrillo común) muestra que ambos presentan un desempeño muy similar, e incluso el primero, mostró un comportamiento ligeramente superior al tabique rojo. Tradicionalmente, el tabique rojo recocido es percibido como un material de mejor calidad capaz de proveer mejores niveles de confort térmico.
El block hueco de concreto es un material relativamente barato que provee mejores tiempos de construcción debido a su tamaño, sin embargo, existen barreras culturales para su aceptación ya que es percibido como un material de construcción de baja calidad. Mientras que ambos materiales mostraron un desempeño muy similar durante las simulaciones de CT, es necesario resaltar que la percepción de calidad juega un rol muy importante, y por lo tanto es un área que requiere de mayor promoción y difusión tanto entre especialistas como hacia el público general si es que se pretende mejorar los niveles de aceptación de dicho material y con ello promover su aplicación en el sector vivienda. Profundizar en el estudio del comportamiento para confort térmico entre ambos materiales requiere aun de mayor investigación.
Por otra parte, la producción de ambos tipos de material tiene muy bajos niveles de estandarización y por lo tanto su calidad y desempeño energético son muy variables. Sin embargo, el block hueco de concreto puede ser considerado como un buen material para el sector vivienda siempre y cuando esta última sea diseñada tomando en cuenta principios básicos de diseño bioclimático (en especial una cuidadosa orientación) y que los materiales de construcción sean producidos localmente, de una manera ambientalmente responsable y con una calidad uniforme.
Como resultado de los análisis realizados, se puede afirmar que en la ciudad de San Luis Potosí, México, la resistencia al cambio climático desde la perspectiva del CT (hasta el año 2080) puede ser lograda únicamente mediante un cuidadoso diseño bioclimático. En este sentido, los esfuerzos a nivel local se deberían de centrar en entrenar a arquitectos y profesionales de la construcción para diseñar y construir de acuerdo con estos principios en lugar de confiar en materiales novedosos, tecnologías caras y altamente consumidoras de energía como el aire acondicionado o en la sobre-especificación de aislantes térmicos. Dichos resultados también resaltan los riesgos de aplicar irreflexivamente principios de diseño que pueden desembocar en innecesarios sobrecostos en construcción para los cuales el sector de vivienda social es particularmente sensible.
Respecto a las áreas de flexibilidad, y adaptabilidad, no es posible realizar una evaluación ex post del prototipo ya que este no ha sido construido, sin embargo, desde la perspectiva del diseño arquitectónico, el proyecto demuestra una alternativa capaz de integrar tales aspectos a través de un diseño cuidadoso que toma en cuenta las condiciones del clima y materiales locales así como futuras tendencias demográficas. Aunado a esto, se tomaron en cuenta las normas y criterios de diseño oficiales y vigentes a nivel local.
Por último, es necesario tener en cuenta que el prototipo ha sido diseñado para ser construido teóricamente en vacíos urbanos existentes en un entorno en el cual la vivienda social es predominantemente horizontal. Es por esto que, dada la naturaleza vertical del proyecto se afirma que puede contribuir a generar mayores densidades urbanas. Sin embargo, su aplicación como parte de una estrategia más amplia de re-densificación urbana supera los alcances del estudio.
Conclusiones
Para finalizar, los principales resultados de la investigación se pueden resumir en los siguientes puntos generales:
Aun cuando existe una vasta literatura y software especializado respecto a diseño bioclimático, es necesario realizar investigación específica para determinar las estrategias localmente apropiadas.
En el caso particular de la ciudad de San Luis Potosí, México, el sombreado de ventanas (orientación sur) como estrategia bioclimática no solo es inefectiva sino contraproducente al crear condiciones de bajas temperaturas en el interior de la vivienda debido a la falta de exposición al sol, particularmente durante el invierno. Durante el verano, la latitud local evita el sobrecalentamiento para fachadas verticales con orientación Sur.
Un diseño cuidadoso empleando únicamente estrategias de diseño bioclimático puede ser suficiente para ofrecer resistencia al cambio climático en el sector de la vivienda social hasta el año 2080. Esto, únicamente desde la perspectiva del confort térmico. Por lo tanto, una industria de la construcción sustentable y de alta eficiencia energética es plausible a nivel local y constituye un objetivo para futuras investigaciones en el área.
El uso de materiales locales como estrategia de diseño sustentable es factible siempre y cuando se cumplan condiciones como: un nivel de calidad estándar en los materiales y un sistema de producción ambientalmente responsable. Con estos pre-requisitos y debido a sus propiedades térmicas, el block hueco de concreto puede ser considerado como un buen material de construcción, especialmente para el sector de la vivienda social.
Es importante señalar que los resultados de las simulaciones realizadas mediante software, en especial las referentes a cambio climático están sujetas a variaciones en función a actualizaciones en el software que los produce y que incorporen sucesivamente nuevos algoritmos más sofisticados; por lo que el valor de este tipo de investigación no se debe centrar en parámetros estrictamente cuantitativos (exactitud en el número de horas de confort térmico). Más bien en la tendencia que dichas cifras muestran y en cómo pueden ofrecernos dentro de un rango aceptable de incertidumbre, bases para la selección e implementación de estrategias de diseño bioclimático capaces de ofrecer buenas condiciones de confort térmico a bajo costo incluso en escenarios futuros de cambio climático.
Referencias bibliográficas
CONAVI. (2010). Código de edificación de vivienda (2a ed.). México: Autor. Recuperado de http://www.inafed.gob.mx/work/models/inafed/Resource/332/1/images/Codigio_Edif_Vivienda.pdf.
DeKay, M. (2011). Integral sustainable design: Transformative perspectives. London: Routledge.
Discapacidad en México. (s.f.). Recuperado de http://cuentame.inegi.org.mx/poblacion/discapacidad.aspx?tema=P.
Ewing, R., Pendall, R., & Chen, D. (s.f.). Measuring sprawl and its impact. Washington: Smart Growth America. Recuperado de http://www.smartgrowthamerica.org/documents/MeasuringSprawl.PDF.
Friedman, A. & Krawitz, D. (1998). The next home: Affordability through flexibility and choice. Housing and Society, 25(1-2), 103-116. https://doi.org/10.1080/08882746.1998.11430288.
Higuera, V. y Gutiérrez, J. (s.f.). Recomendaciones de accesibilidad. México: Oficina de Representación para la Promoción e Integración Social para Personas con Discapacidad.
Montero, M., Martínez, J, Castillo, N., y Espinoza, B. (2010). Escenarios climáticos en México proyectados para el siglo XXI: precipitación y temperaturas máxima y mínima. En Martínez, P y Patiño, C. (Eds.). Atlas de vulnerabilidad hídrica en México ante el cambio climático. México: Instituto Mexicano de la Tecnología del Agua. Recuperado de http://atl.org.mx/atlas-vulnerabilidad-hidrica-cc/.
Partida, V. (2008). Proyecciones de los hogares y las viviendas en México y de las entidades federativas 2005-2050. México: Consejo Nacional de Población. Recuperado de http://www.conapo.gob.mx/work/models/CONAPO/hogares_viviendas/hogares.pdf.
Schneider, T. & Till, J. (2005). Flexible housing: Opportunities and limits. Architectural Research Quarterly, 9(2), 157-166. https://doi.org/10.1017/S1359135505000199.
Thermal comfort models. (s.f.). Recuperado de http://www.esru.strath.ac.uk/Reference/concepts/thermal_comfort.htm.
Thermal mass benefits for housing. (2010). Recuperado de https://www.ccaa.com.au/imis_prod/documents/Library%20Documents/CCAA%20Technical%20Publications/CCAA%20Briefings/Briefing12.pdf
Notas