Artículos
Patrimonio industrial: los conjuntos habitacionales de la fábrica azucarera CRAV en Penco, 1941-1975
Industrial heritage: The residential complex of the CRAV sugar factory in Penco, 1941-1975
Patrimonio industrial: los conjuntos habitacionales de la fábrica azucarera CRAV en Penco, 1941-1975
Revista INVI, vol. 34, núm. 96, 2019
Universidad de Chile. Facultad de Arquitectura y Urbanismo. Instituto de la Vivienda
Recepción: 03 Diciembre 2018
Aprobación: 13 Junio 2019
Financiamiento
Fuente: PIA-CONICYT
Nº de contrato: SOC. 1403
Descripción del financiamiento: Proyecto ANILLOS SOC. 1403 PIA-CONICYT. Patrimonio industrial: formas de habitar colectivo en el sur de Chile. Universidad de Concepción; Universidad del Bío-Bío; Universidad Austral de Chile; Universidad de Magallanes
Resumen:
El presente texto analiza los tres conjuntos habitacionales construidos por la Compañía Refinería de Azúcar de Viña del Mar (CRAV) en la ciudad de Penco, Región del Bío-Bío, considerados hoy patrimonio urbano, arquitectónico e histórico de dicha localidad: el Recinto CRAV, la Población Desiderio Guzmán y Villa Los Radales. Se describen los principios urbano-arquitectónicos presentes en estos conjuntos, así como sus programas, tipologías de vivienda, superficie y materialidad. Además, se describen los dispositivos de control social desplegados con el fin de disciplinar a los trabajadores en sus espacios de habitar. Estos tres conjuntos formaron parte de una zona industrial mayor que definió el carácter fabril del Concepción Metropolitano, constituyendo una zona habitacional adyacente a las instalaciones productivas de la CRAV-Penco. Además, proporcionaron a los trabajadores estándares de vida asociados a la modernidad, a través del acceso a viviendas de calidad y múltiples equipamientos urbanos que fomentaron la creación de la llamada familia refinera. Como elementos diferenciadores, se plantea que el Recinto CRAV funcionó como un recinto cerrado sujeto a un mayor control empresarial que los otros dos conjuntos analizados. En la actualidad, los tres espacios conforman un barrio industrial reconocible en la localidad y son parte de su patrimonio material e inmaterial.
Palabras claves: CRAV-Fábrica Penco, conjuntos habitacionales, patrimonio industrial, barrios industriales, paternalismo industrial.
Abstract : The article analyzes the three housing complexes built by the Sugar Refinery Company of Viña del Mar (CRAV) in the city of Penco, in the Bío-Bío Region of Chile, which are today considered part of the architectural and historical heritage of that locality. Namely the CRAV Campus, Desiderio Guzmán and Villa Los Radales. The paper describes urban-architectural principles present in these groups, their programs, types of housing, surface and materiality. Additionally, the devices of social control deployed in order to discipline workers in their living spaces are also described. These three developments were part of a larger industrial area that defined the manufacturing character of the metropolitan area of the city of Conception, constituting a housing area adjacent to the production facilities of the CRAV-Penco. Furthermore, they provided workers with living standards associated with modernity, through access to quality housing and multiple urban facilities that fostered the creation of the so-called refining family. The CRAV Campus operated as a closed site subject to greater corporate control than the other two groups analyzed. Currently, these housing complexes constitute a recognizable industrial district in the town and is part of its tangible and intangible heritage.
Keywords: CRAV-Penco Factory, housing complexes, industrial heritage, industrial neighborhoods, industrial paternalism.
Introducción
A lo largo del país, el desarrollo industrial impulsó la construcción de diversos conjuntos habitacionales destinados a los trabajadores, siendo uno de sus principales objetivos fijar a la mano de obra en centros urbanos controlados exclusivamente por las empresas. Este planteamiento se ha convertido en la hipótesis de recientes investigaciones que han pretendido comprender el aporte de la industria en la construcción del espacio urbano, así como los diferentes fundamentos y modelos arquitectónicos subyacentes en estas soluciones habitacionales. Al estudio de los campamentos mineros surgidos desde mediados del siglo XIX en torno a la producción salitrera y cuprífera, se han sumado investigaciones sobre los conjuntos asociados a la industria carbonífera (Godoy, 2015; Fuentes, 2015), la industria textil (Venegas y Morales, 2017), la industria del cemento (Venegas y Morales, 2019), la industria siderúrgica (Brito y Ganter, 2014, 2015; Fuentes y Pérez, 2018), la industria papelera (Pérez y Fuentes, 2019) y la ganadería extensiva (Cvitanic y Matus, 2018). La mayoría de estos espacios estuvieron dotados de equipamientos destinados a satisfacer las múltiples necesidades de los trabajadores, llegando a conformar poblados totalmente autónomos, similares a las colonias industriales españolas o las ciudades-fábricas Pullman City en Estados Unidos, la cité Mulhouse, Le Creusot en Francia o Le Grand Hornu en Bélgica (Alemany, 2005).
El presente artículo tiene por objetivo dar a conocer la intervención habitacional de la industria azucarera en la comuna de Penco. Nos referimos, específicamente, a conjuntos habitacionales poco visibilizados o lo que podríamos denominar patrimonios no consagrados situados al sur de Chile, intentando contribuir con ello a la descentralización del conocimiento. No obstante cerrada ya la industria (1976), los fuertes lazos de identidad y memoria social del territorio perduran hasta el presente. Ejemplo de ello, ha sido la participación de sus habitantes en los aniversarios de la comuna, en los cuales continúan evocando ese pasado industrial a través de carros alegóricos inspirados en la historia de la Refinería (Ovando, 2017).
Como hipótesis planteamos que los tres conjuntos habitacionales construidos por la industria azucarera -el Recinto CRAV (1941), la Población Desiderio Guzmán (1961) y Villa Los Radales (1975) - responden a diversas formas de gestión destinadas a resolver el problema habitacional de la clase trabajadora en el marco del proceso de industrialización de mediados de siglo. Además, pese a que cada conjunto presenta planteamientos urbanos y arquitectónicos diferentes -un recinto privado, una pequeña ciudad jardín y una construcción a pie de monte con una traza urbana de cerro-, los tres conforman una unidad urbana reconocible entendida a través de una lógica de conjunto, hoy de gran valor patrimonial.
Específicamente el texto analiza los principios urbano-arquitectónicos en torno a los cuales se ordenaron los conjuntos habitacionales surgidos al alero de la industria CRAV. Estos aspectos adquieren relevancia en la medida que durante los últimos años la definición de patrimonio industrial se ha ampliado y complejizado, incluyendo no solo los bienes inmuebles o espacios productivos sino todos aquellos vestigios, tangibles e intangibles, asociados a la cultura del trabajo (Ciselli, 2015). Como señala Capel (2014), estos elementos son de gran trascendencia histórica puesto que constituyen fuentes de información de actividad pasadas y de identidad, además de tener un valor cultural y estético. Los barrios y las viviendas obreras también son reconocidos como parte del patrimonio industrial, constituyendo un “testimonio de lo cotidiano, memoria del trabajo y del lugar” (Álvarez, 2008, p. 6).
Por otro lado, desde un enfoque histórico-social, se describen las diferentes formas de gestión habitacional asociadas a estos conjuntos, poniendo especial atención en los aportes de la industria, el Estado y los/as trabajadores/as. Además, se identifican algunos de los dispositivos de control desplegados por la CRAV-Penco, a partir de los cuales se intentó regular la vida de los/as trabajadores/as y sus familias. El concepto de paternalismo industrial resulta útil para comprender el accionar de determinadas empresas, quienes, a través de la entrega de diversos beneficios sociales, intentaron resolver los problemas derivados de la gestión de la mano de obra. En Chile, estas prácticas paternalistas fueron perfeccionándose con el fortalecimiento de los Departamentos de Bienestar en un periodo en que los mecanismos clásicos de represión no eran suficientes para contrarrestar el activismo obrero (Venegas, 2015). Hacia fines de la década de 1930, el control empresarial se combinó con el proyecto de modernización nacional del Frente Popular y con la legislación social dictada en beneficio de la clase trabajadora. Para Brito y Ganter (2015) se trató de una nueva forma de concebir la relación capital-trabajo sustentada en la formación de un obrero moderno. En este sentido, proporcionar una vivienda, “además de procurar condiciones adecuadas de vida al personal, persiguió vincular a los trabajadores en forma permanente a la zona de la nueva industria” (Brito y Ganter, 2015, p. 16-17).
Los objetivos mencionados anteriormente son abordados de la siguiente forma: en primer lugar, se realiza una breve descripción histórica sobre los orígenes de la industria CRAV en Penco y la construcción de los barrios para los trabajadores refineros. Esta descripción se sustenta en una revisión bibliográfica que considera diversas fuentes secundarias, entre ellas: libros, artículos de revistas científicas y tesis de pre y postgrado. Para trabajar los distintos hitos de la construcción de los barrios, se recurrió, específicamente, a periódicos de la época, siendo los principales el Diario El Sur de Concepción y el Diario Pan de Azúcar, publicación oficial de la industria CRAV-Penco. Todas estas fuentes fueron trabajadas de acuerdo al método de triangulación de las investigaciones cualitativas, cuyo objetivo es “analizar un mismo fenómeno a través de diversos acercamientos” (Okuda y Gómez-Restrepo, 2005, p. 119). En segundo lugar, se realiza una descripción urbano-arquitectónica de los diferentes conjuntos habitacionales, recurriendo para ello al análisis de la planimetría de conjunto, pero también a la planimetría de las viviendas más significativas y del edificio de instalaciones deportivas y culturales, elegido por su particularidad al tratarse de un volumen único que reúne un variado programa en un solo cuerpo. Finalmente, se realiza una descripción socio-histórica en torno a los mecanismos de control patronal desplegados por la industria CRAV en el ámbito de la vivienda. Para el desarrollo de esta temática se utilizaron fuentes bibliográficas y fuentes orales, destacando, entre estas últimas, los relatos obtenidos a partir de un taller de reconstrucción de memoria colectiva 1 , realizado con habitantes de los barrios industriales estudiados.
Los orígenes de la industria CRAV en Penco y la construcción de los barrios refineros
Hacia fines del siglo XIX, la comuna de Penco comenzó un proceso de expansión industrial con la instalación de su primera gran fábrica: la Refinería de Azúcar de Penco, conocida, más tarde, como CRAV-Penco. En aquella época, el país experimentaba un proceso de industrialización temprana en torno la modernización de ciertas actividades económicas, como la minería y la industria manufacturera, (Pinto y Salazar, 2002) y que se vio favorecido con el auge del ciclo salitrero y el crecimiento del mercado interno (Brito, 2018). En el Gran Concepción, este impulso industrializador tuvo su expresión en el desarrollo de la explotación carbonífera en Coronel y Lota y el surgimiento de la industria textil en Tomé, lo que permitió aumentar la demanda de bienes de consumo. En Penco, la pesca, la agricultura y el turismo de playa fueron reemplazados por la producción azucarera y la fabricación de loza, consolidándose esta última con la creación de la Fábrica Nacional de Loza de Penco el año 1927. Como señala Márquez (2014), ambos rubros industriales otorgaron identidad al pueblo de Penco, fomentando su modernidad y progreso urbano y social.
Los orígenes de la industria azucarera en Penco se remontan a la creación de la Refinería Sudamericana de Azúcar de Penco (1886), de propiedad de la sociedad Plate, Mengellier y Cía. Como señala Mazzei (2015), la Refinería de Penco abastecía el territorio al sur de Talca, mientras que la Compañía Refinería de Azúcar de Viña del Mar (CRAV) se encargaba del territorio ubicado al norte de esa misma ciudad, llegando a conformar un verdadero oligopolio. En 1924, la fábrica de Penco fue vendida a la industria azucarera viñamarina, con quien compartió un directorio común, aunque conservando su autonomía. Este último traspaso de propiedad constituyó un hecho relevante para las relaciones laborales en la industria de Penco, puesto que la CRAV de Viña del Mar contó tempranamente con un Departamento de Bienestar (1880) e impulsó diversas innovaciones en materia social, siendo la más trascendente “la construcción de la ciudadela, una población para los obreros y sus familias” (Lira, 1992).
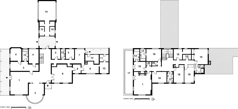
Al igual que la industria de Viña del Mar, la CRAV-Penco también construyó conjuntos habitacionales aledaños al espacio productivo, los que actualmente conforman el núcleo denominado Conjunto CRAV, de una identidad social y urbana propia en la localidad. Este conjunto está compuesto por tres barrios en pleno funcionamiento y actividad pese al cierre de la industria en el año 1976: el Recinto CRAV (1941), la Población Desiderio Guzmán (1961) y la Villa Los Radales (1975), los que se analizan a continuación (Figuras 1 y 2).


El Recinto CRAV
Según el historiador local Claudio Jara (2016), los primeros antecedentes de viviendas para los trabajadores refineros se remontan a comienzos del siglo XX, sin embargo, no fue sino hasta el año 1941 -específicamente, el 22 de febrero de 1941-, cuando se inauguró una nueva población obrera que permitió establecer los límites definitivos del Recinto CRAV o también llamado Recinto Refinería, el primer barrio industrial surgido al alero de la Fábrica de Penco de la CRAV.
El nuevo conjunto de viviendas pertenecientes al Recinto CRAV fue calificado durante su inauguración como una población obrera moderna, entendiendo por ésta un conjunto de viviendas cómodas e higiénicas, dotadas de servicios de alcantarillado, energía eléctrica y agua potable, además de ubicarse en un sector con calles pavimentadas. En relación a ello, podemos identificar la presencia de algunos principios del higienismo o también llamada ciencia de la higiene, una corriente de pensamiento surgida hacia fines del siglo XVIII como crítica a los efectos negativos de la Revolución Industrial en Europa. Los higienistas consideraban que las enfermedades en las ciudades eran causadas por las malas condiciones de vida y trabajo de los obreros, quienes habitaban espacios urbanos poco salubres y caracterizados por diversos problemas de orden moral, tales como la embriaguez, la delincuencia o la prostitución. De esta forma, para mejorar la salud de los trabajadores era necesario modificar tanto su medio físico como social, requiriendo, entre otras cosas, de una nueva tipología de vivienda que permitiera evitar los contagios propagados, con mayor facilidad, en el hábitat colectivo, contagios de orden sanitario, político y moral.
En ese sentido, la vivienda confortable y salubre pasó a cumplir una función modeladora, tal como reconoció Desiderio Guzmán, Administrador de la industria CRAV-Planta Penco, durante la inauguración de la nueva población obrera: “es ella [refiriéndose a la vivienda cómoda e higiénica] la gran modeladora de costumbres y elemento indispensable para la formación de hijos sanos que pueden mañana dar a nuestro Chile grandeza y prosperidad” (“La inauguración”, 1941, p. 2). Como revela Rodrigo Hidalgo, la influencia del higienismo, presente en algunos círculos de la administración pública chilena:
se manifestó en la transición desde aquellas medidas que intentaban restringir las construcciones precarias en determinados límites de las ciudades, hacia iniciativas que trataban de privilegiar las condiciones de salubridad en la construcción de viviendas para los sectores populares (Hidalgo, 2002, p. 87).
Por otro lado, el Recinto CRAV se organizó en torno al sitio de la industria, contiguo a las instalaciones industriales de la refinería de azúcar. Ello obedeció a la idea generalizada de los conjuntos industriales hacia el siglo XIX y comienzos del siglo XX de conformar una unidad industria-habitación, un “recinto” cerrado, de uso exclusivo de la industria, el que en este caso -y como en la gran mayoría de los casos- llegó a disponer de una portería y control de acceso. De ahí, precisamente, el nombre del conjunto: Recinto CRAV. Además, el concepto de recinto estaba asociado a la idea de configurar un núcleo urbano reconocible. Este se encuentra configurado en su programa por viviendas y equipamiento, algunos de los cuales se disponen dentro del recinto (la escuela, la iglesia y el mercado) y algunos fuera y contiguos al recinto (estadio, gimnasio, teatro y biblioteca) los que son compartidos con el resto de la comunidad de Penco.
Equipamientos dentro del Recinto CRAV
El Recinto CRAV se planteó como un conjunto urbano equipado. En el acceso se emplaza la escuela, la que, construida por la estatal Sociedad Constructora de Establecimientos Educacionales sobre el terreno privado de la industria, habla de la colaboración que en muchos casos se produjo hacia la década de 1940 entre industria y Estado 2 (López y Cerda, 2015). Esta escuela era utilizada tanto por los niños del Recinto CRAV como por los del resto de la localidad de Penco, constituyendo un importante punto de encuentro entre industria y ciudad.
En el corazón del conjunto, junto a la plaza y el mercado, se encuentra la iglesia y el salón parroquial, construidos entre 1942 y 1943. En su expresión arquitectónica, de claras influencias neo-coloniales, destaca la presencia de la torre, la que sirve de referencia y orientación a los habitantes del lugar.
Equipamientos fuera del Recinto CRAV
Enfrente del acceso principal del Recinto CRAV, ya en una manzana de la trama pública central de la ciudad, se encontraban los equipamientos compartidos de la industria con el resto de la localidad. Se trataba de instalaciones deportivas y culturales que constituyeron el principal nodo de relaciones sociales entre la denominada familia refinera y la comunidad de Penco.
Su particularidad radica en que se trataba de un volumen único, en donde se concentraba un programa arquitectónico tan diverso como teatro, gimnasio con camarines, biblioteca pública e incluso un casino-comedor para la comunidad, todo ello contiguo al Estadio CRAV, que era al mismo tiempo el estadio de la ciudad. Dicho volumen se caracterizaba por las referencias a la arquitectura industrial de fines del siglo XIX e inicios del siglo XX, confundiéndose con una bodega más del recinto fabril (Figura 3).

El teatro, ubicado en el acceso de la industria, era uno de los edificios públicos de mayor significación del conjunto y allí tenían lugar no solo funciones de teatro y cine, sino también innumerables ceremonias escolares, actividades comunitarias y políticas. En ello radica uno de los puntos claves para definir el valor patrimonial de estos recintos, los que tuvieron la capacidad de adentrarse hasta hoy en la memoria y el intangible de la comunidad refinera, es decir, transformarse en una arquitectura de valor patrimonial no solo por sus cualidades estilísticas, históricas o de diseño, sino también porque albergaron el acontecer cotidiano de una comunidad que les otorgó valor y hacen parte de su memoria arquitectónica.
Las viviendas del recinto CRAV
Las viviendas del conjunto Recinto CRAV hablan de un orden social claramente estratificado, asunto común a la gran mayoría de los conjuntos industriales, que en este caso se presenta a través de cuatro categorías de viviendas: a) viviendas para obreros; b) viviendas para empleados; c) viviendas para jefes y altos rangos; d) vivienda de gerencia.
Viviendas para obreros
Estas no correspondían a una tipología única, como las de empleados y jefes, sino a diversas tipologías que se fueron construyendo en diferentes períodos hacía las décadas de 1930 y 1940 conforme a las necesidades de crecimiento de la industria. Se trata en su mayoría de viviendas aisladas de un nivel y una superficie similar de 70 a 80 m2 cada una.
Un elemento a destacar en estas viviendas es su materialidad. La mayoría de ellas se encuentra construida con el sistema de quincha, es decir, una estructura de madera, rellena con pequeños bloques de tierra o adobillo, muros que finalmente son estucados también con tierra, desde los primeros revoques más gruesos, hasta los de terminación con tamices más finos.
Así como las tipologías arquitectónicas desarrolladas en este sector para obreros son diversas, lo son también la expresión de las distintas arquitecturas allí producidas. Destacan en la expresión de estas obras las referencias icónicas a la arquitectura clásica, al Art Decó, al Neo-Colonial y en general a referencias eclécticas expresadas mediante columnas, capiteles, frontones, muros almohadillados, detalles ornamentales en sobre y bajo relieve, portadas de piedra y madera, todos elementos que serían reemplazados y/o eliminados más tarde de las arquitecturas producidas para los empleados, de traza claramente moderna.
Viviendas para empleados
Las viviendas para empleados se emplazaron a pie de cerro en torno a la calle principal del recinto, la que en ese punto asciende y da acceso a la calle superior del conjunto. Se trata de una calle curva que provoca consiguientemente perspectivas cóncavas y convexas. Como elementos articuladores del espacio urbano se ubican allí la plaza, la capilla y el mercado, espacio público y edificios que indican el punto de mayor centralidad del barrio.
La pendiente es resuelta por medio de un breve escalonamiento de las viviendas, el que se expresa en el desfase vertical de los volúmenes. Se trata de viviendas tipológicamente iguales, pareadas, de 80 m2 de superficie en dos niveles, construidas en albañilería reforzada (Figura 4).

El conjunto, construido en la década de 1940, acusa en su desarrollo arquitectónico las características propias de la primera Arquitectura Moderna, expresadas en este caso en una vivienda liberada de todo ornamento, resuelta constructivamente en hormigón armado y albañilería reforzada, la existencia de espacios iluminados y ventilados naturalmente, pero con un programa que se resuelve aún de la manera que se resolvía una planta antes de la llegada de la Arquitectura Moderna: no existe claridad en las circulaciones y se accede a un recinto a través de otro, lo que se puede observar en los accesos al segundo nivel y al baño, los que se efectúan a través de la cocina (Figura 5).

Viviendas de jefes y altos rangos
Se ubican en la calle principal de acceso al recinto. Se trata de un pequeño grupo de cinco viviendas aisladas con antejardín y patio, en dos niveles. Su ubicación, entre el acceso principal y la capilla del recinto, determinan su centralidad, espacio reservado a las categorías y rangos más importantes en el escalafón de la industria (Figura 6).

Su programa revela el mayor estándar de que estas viviendas gozaban: dos comedores (uno diario y otro de servicio), sala de estudio, tres baños con distintas categorías (principal, de servicio y de visitas), lavandería y un novísimo recinto agregado al volumen: un garaje de automóvil. Aun cuando se advierte cierta zonificación del programa, elemento de orden propio de la Arquitectura Moderna (áreas públicas en el primer nivel, áreas privadas en el segundo nivel y área de servicio hacia la fachada posterior) es posible observar también ciertas contravenciones a dicho orden, como queda expresado en una despensa ubicada en el segundo nivel a la que se accede a través del dormitorio de servicio.
Desde el punto de vista de su expresión arquitectónica, estas viviendas se encuentran en el límite de la arquitectura ecléctica de comienzos del siglo XX y la Arquitectura Moderna, presentando un desarrollo que en algunos momentos se asocia a uno u otro período. Del eclecticismo pre-moderno podemos mencionar las referencias al cottage inglés, al chalet, la pequeña casa de campo, la presencia de chimeneas, cornisas y otros decorados eclécticos. De la Arquitectura Moderna asoma su materialidad en albañilería reforzada y hormigón armado, su limpieza y claridad volumétrica, el orden, funcionalidad y zonificación de sus recintos (Figura 7).

Vivienda de la gerencia
Se trata de una vivienda única, no una tipología, destinada al gerente de la industria, es decir el representante de un directorio, a diferencia de lo que habitualmente se encuentra en otros conjuntos industriales en donde la casa principal estaba destinada al propietario de la fábrica.
Destaca esta vivienda en primer término por su ubicación y emplazamiento: se ubica contigua al acceso principal y se emplaza sobre una breve colina, es decir, sobre el nivel del resto de las viviendas. Ubicación en el acceso y emplazamiento sobre el resto del conjunto responden a un objetivo de preeminencia y control, dos elementos asociados por cierto al paternalismo industrial, en donde la figura -y la vivienda- del gerente o el propietario, constituyen el punto más alto de una pirámide social. Hay relatos acerca de cómo los niños y jóvenes transitaban enfrente de dichas viviendas de la gerencia de una manera más ordenada y silenciosa, comportamiento social asociado a una altísima estratificación.
Otro elemento que destaca en esta vivienda es su superficie y programa arquitectónico: 592 m2 y un programa que incluye diversas áreas de estar públicas y privadas, dormitorios familiares, de servicio y de visitas, sala de estudio, áreas de servicio con leñera, caldera, lavandería, varias categorías de baños (de visitas, de servicios, familiares y privados), cocina con repostero e incluso una capilla con sacristía y confesionario de uso exclusivo de la gerencia (Figura 8).

Orden urbano y orden social en el recinto CRAV
Los innumerables testimonios recogidos de los miembros de esta familia refinera, como a ellos les gusta denominarse, hablan de una comunidad que supo, no obstante una rigurosa jerarquía, desarrollar estrechos lazos de compañerismo. Eso resulta común a la mayoría de los conjuntos industriales, en donde paralelamente a los recuerdos de la gran estratificación social que allí existía, persisten también recuerdos de profundos lazos de fraternidad, aún entre distintos estratos.
La hipótesis aquí planteada es que en el Recinto CRAV se reprodujo en el orden urbano y arquitectónico, el orden social existente en dicha comunidad industrial. Este correspondía a una férrea pirámide social, la que tiene una correspondencia con la arquitectura y la trama urbana allí producida: en el acceso y en un punto preeminente se ubica la vivienda del gerente (la de mayor superficie y en medio de un parque privado); le siguen en la calle principal las viviendas para los jefes y rangos mayores (viviendas aisladas con antejardín y extenso programa); continúan, subiendo el cerro, las viviendas de los empleados (viviendas pareadas y programa arquitectónico básico) y remata el conjunto ,sobre el cerro, con las viviendas para los obreros (en quincha y madera, alejadas del centro, pero de amplias vistas sobre el paisaje circundante). Este fenómeno es posible observarlo en otros conjuntos industriales como han reseñado Pérez y Fuentes sobre Villa Presidente Ríos de Talcahuano (Fuentes y Pérez, 2018), el Conjunto Papeles Bío-Bío de San Pedro de la Paz (Pérez y Fuentes, 2019) y el Barrio Bellavista Tomé (Brito, Cerda, Fuentes, y Pérez, 2018), entre otros.
Población Desiderio Guzmán
La población Desiderio Guzmán 3 fue resultado de la aplicación de un Plan Habitacional 4 impulsado por la industria CRAV, en atención al aumento de personal y las necesidades habitacionales de este. Su materialización dio lugar a un grupo de 82 viviendas destinadas tanto al personal de rango obrero como empleado, manteniéndose los altos cargos de la industria y los trabajadores de mayor antigüedad en el recinto original. Esta es una de las primeras diferencias respecto al planteamiento urbano observado en el Recinto CRAV, donde existió una notoria segregación espacial entre ambos estratos. Por otro lado, a diferencia del Recinto CRAV, la Población Desiderio Guzmán, fue resultado del esfuerzo mancomunado de tres actores sociales que, ya en la década de 1950, habían asumido un rol protagónico en la solución del problema habitacional de las familias populares, nos referimos al Estado, la industria y la clase trabajadora. La iniciativa emanó, esta vez, de los propios trabajadores, quienes, representados por los líderes del Sindicato Industrial CRAV, decidieron iniciar las gestiones para construir un nuevo grupo de viviendas.
Si una de las principales ideas fuerza de la construcción del Recinto CRAV fue proporcionar salubridad a las familias trabajadoras, el nuevo proyecto tuvo por objetivo convertir a los trabajadores en propietarios de las viviendas. En el caso del barrio Recinto CRAV, la industria conservó la propiedad de las viviendas, cediéndolas a los trabajadores solo durante el periodo en que se mantuviera la relación contractual. De esta forma, “cuando el trabajador de la empresa era desvinculado, estaba obligado, en un plazo de seis meses, a devolver la vivienda que la empresa le había facilitado” (Jara, 2016, p. 138). Al respecto, los y las actuales habitantes de la población Desiderio Guzmán también mencionan que cuando el trabajador se portaba mal o no tenía un comportamiento adecuado a las exigencias establecidas por la industria, él y sus familiares debían abandonar la casa; algo similar podía ocurrir cuando el responsable de la vivienda fallecía, debiendo su familia buscar un nuevo espacio de habitar si es que ningún integrante continuaba vinculado a la fábrica.
El deseo de convertirse en dueños de una casa propia constituyó uno de los principales motivos que tuvieron algunos trabajadores de la CRAV-Penco para participar en la gestión de la Población Desiderio Guzmán. En su discurso es posible observar cómo ellos lograron apropiarse de la idea de propiedad, en conformidad a las políticas estatales que ya desde la década de 1940 apuntaban a la conformación de hogares bien constituidos, lo que implicaba, por un lado, la existencia de una familia compuesta por un hombre padre-proveedor y una mujer madre-esposa -junto a sus hijos e hijas- y, por otro lado, la posesión de un techo seguro que permitiera garantizar el bienestar de dicha familia. No es de extrañar, por tanto, que el Frente Popular, a comienzos de los años cuarenta, tuviera “en la superación del problema habitacional una de sus banderas de lucha” (Hidalgo, 2000) y que asumiera un rol cada vez más activo en la regulación de la esfera privada de la clase trabajadora (Rosemblatt, 1995). Para cumplir el tan anhelado sueño, cada trabajador debió firmar un convenio de ahorro y préstamo con la Corporación de la Vivienda (CORVI) por el valor total de la casa y pagar, posteriormente, su vivienda a la CRAV.
El Estado chileno y la industria CRAV-Penco también jugaron un papel fundamental en la construcción de la población. El primero actuó a través de la Corporación de la Vivienda, prestando a la CRAV el 80% del valor total de las viviendas y a los trabajadores, un préstamo pagadero a 17 años y medio años plazo. Por su parte, la empresa, además de vender los terrenos donde se edificaría la población y de financiar los trabajos de urbanización, aportó directamente el 20% del valor total de las viviendas y prestó a cada trabajador el 31% del valor de su casa, proporcionado en la forma de cuotas de ahorro previo. Como se revela en el periódico refinero, todos estos aportes realizados por la CRAV-Penco fueron imputables al 5% de la Ley 7.600 nro. 285, mediante la cual se exigía, a las empresas industriales y mineras, la entrega de un porcentaje de sus utilidades -el 5%- para financiar los planes y programas habitacionales impulsados por la CORVI.
El proyecto de la nueva población refinera fue encargado a los arquitectos Santiago Roi y Ricardo Hempel, quienes recién arribados a la ciudad de Concepción, desarrollaron, con posterioridad al terremoto de 1960, una importante obra moderna que se materializó en la construcción de edificios 5 , viviendas y conjuntos habitacionales. En este sentido, la población Desiderio Guzmán formó parte de una producción urbano-arquitectónica de grandes conjuntos habitacionales diseñados en la oficina Hempel-Roi; entre ellos, estaban: Villa Capataces CAP (1964-1968); Villa Acero (1965); Denavi Sur (1966-1968) y Villa El Bosque (1967), la mayoría de ellos construidos en madera (Jara, 1997).
Paisajismo y urbanismo moderno
Uno de los elementos que caracteriza el conjunto Desiderio Guzmán es el gran tamaño de los sitios, lo que permite a las viviendas disponer de amplios antejardines y patios. Ello está asociado a una idea paisajística del conjunto, presente ya desde su formulación urbana original 6 . Lo que se propone es un conjunto rodeado de bosques, con grandes antejardines cubiertos de flores, calles arboladas e iluminadas, en contraste con los tugurios insalubres con los que se asociaba la vida obrera a comienzos del siglo XX. Representa por ende la idea de un urbanismo moderno que se propone como ideal el mejoramiento de las condiciones de vida del trabajador industrial a través de un conjunto en un intenso vínculo con la naturaleza y el paisaje circundante.
Caracterización arquitectónica
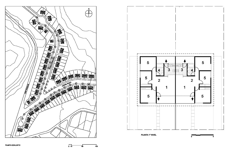
La vivienda desarrollada en el conjunto Desiderio Guzmán de Penco correspondió a una tipología única conformada por 78 viviendas pareadas y cuatro viviendas individuales de igual planta. Es decir, se trata de una planta modular que se repite, no existiendo viviendas de mayor o menor jerarquía o distinto programa (Figura 9).

En su concepción arquitectónica, planimetría, programa, distribución, espacialidad, estructura constructiva y modulación, nos encontramos frente a una propuesta arquitectónica claramente racional y moderna. Lo singular sin embargo, es que se trate de una propuesta arquitectónica moderna construida casi por completo en madera 7 , lo que le otorga peculiaridad y la convierte en uno de los desarrollos arquitectónicos primigenios del urbanismo y la arquitectura moderna en madera desarrollados en el sur del país (Cerda, 2017; Cerda et ál., 2005), caracterizado, entre otros, por la modulación y en algunos casos la prefabricación; nuevas relaciones espaciales interiores; fluidez entre el interior y el exterior.
Programa arquitectónico
En una superficie de 75 m2 c/u, las viviendas de Desiderio Guzmán disponen de tres dormitorios, un estar-comedor-cocina integrados, un baño; un porche de acceso y un porche de servicio. Quizá sea el porche como espacio intermedio lo que más caracterice y destaque en estas viviendas: el de acceso como espacio de permanencia y relación con los vecinos; el de servicio como un espacio protegido para realizar actividades domésticas como lavar o colgar la ropa. Resulta interesante observar como un significativo porcentaje de la superficie se ha destinado a espacio intermedio, asunto que caracterizó y cualificó dicha propuesta arquitectónica.
La racionalidad como expresión de la modernidad
La racionalidad y modernidad de esta arquitectura la encontramos en un desarrollo planimétrico que concentra las áreas de servicio y baños hacia el centro (y consiguientemente concentra y alinea las instalaciones de agua potable y alcantarillado), dejando a los dormitorios y al estar con iluminación y ventilación natural. De igual modo se han minimizado las superficies de pasillos y circulaciones, un asunto prioritario en la concepción moderna de esta arquitectura.
Otro elemento que caracteriza la modernidad de esta obra es su racionalidad volumétrica y constructiva, la que se resuelve mediante un volumen simple cubierto a dos aguas, sin complejidades, claro de entender y austero.
Es la iluminación y ventilación natural uno de los aspectos en que los arquitectos modernos desplegaron sus mayores esfuerzos, lo que en este caso está asociado a la presencia de grandes ventanales en la zona del estar-comedor. Allí precisamente se encuentra uno de los detalles más característicos y cuidadosos de este conjunto: un elaborado desarrollo de marcos de ventanas y tabiques livianos en la zona del porche de acceso los que destacan en el diseño de la fachada principal.
Con todo, el conjunto Desiderio Guzmán de CRAV-Fábrica Penco representa un significativo ejemplo de apropiación de la modernidad reinterpretada en madera, un material que ampliamente disponible en el territorio sur, aportó particularidad al desarrollo de la arquitectura moderna en Chile (Figura 10).

Villa Los Radales
Villa Los Radales fue el último conjunto habitacional construido con apoyo de la industria CRAV en Penco. Surgió por iniciativa de un grupo de trabajadores de la empresa, quienes -interesados en adquirir una casa propia- decidieron fundar, hacia el año 1968, una Cooperativa de Vivienda llamada Villa Los Radales. Para materializar este proyecto, además de los aportes de la empresa -provenientes del 5% de las utilidades exigidas por ley-, se solicitó un préstamo a la Corporación de Servicios Habitacionales (CORHABIT), sin embargo, este no fue suficiente “lo que hizo que los fondos fueran trasladados a la Asociación de Ahorro y Préstamos Andalién para la terminación de la obra” (“Nueva población”, 1974, p. 22).
Caracterización urbano-arquitectónica
Se trató de una agrupación de 72 viviendas construidas por completo en el cerro aledaño a la Población Desiderio Guzmán, desde la cual se accede al conjunto. En ello reside precisamente el mayor interés urbano del barrio: tratarse de una agrupación en cerro, lo que provoca una trama irregular de calles que suben y bajan conforme a la pendiente, dinamizando los recorridos y produciendo a su vez perspectivas todas distintas, tanto de las viviendas allí construidas, como perspectivas diversas al entorno urbano y paisajístico.
Otro elemento urbano de interés del conjunto está dado por la existencia y presencia en el espacio público de zócalos de hormigón armado con los que se resuelve la pendiente del cerro. Los zócalos contribuyen a la conformación espacial de la calle, otorgando continuidad y diversidad al espacio público. No obstante, al tratarse de un conjunto de una sola tipología arquitectónica, su disposición y emplazamiento ha permitido la variedad del espacio urbano, asunto que lo distingue de los mayoritariamente monótonos conjuntos urbanos actuales.
El conjunto Villa Los Radales está conformado por viviendas pareadas en dos niveles, caracterizadas por una gran limpieza volumétrica. Se trata de viviendas a dos aguas que disponen en el primer nivel los usos públicos y en el segundo los privados. Arquitectónicamente se debe asociar estas viviendas al amplio uso que se hace en el sur de Chile del entretecho habitable, el soberado, referencia arquitectónica directa de esta tipología construida por la CRAV en Penco.
Control de las formas de habitar
La intervención de la industria CRAV en el ámbito habitacional no solo implicó la promoción de las viviendas sino también la regulación de los modos de vida, hábitos y costumbres de los trabajadores y sus familias en los espacios de habitar. Un factor decisivo para comprender este tipo de intervención fue la relación existente entre el trabajador y la propiedad de las viviendas, diferente en cada una de las poblaciones mencionadas. En el Recinto CRAV, la industria pudo controlar y supervisar la vida cotidiana de los y las habitantes de una forma más directa puesto que las viviendas solo fueron prestadas a los trabajadores con la obligación de su cuidado, mantenimiento y posterior restitución. Una primera medida de control sobre las familias residentes puede inferirse del propio nombre del barrio puesto que estuvo delimitado por ciertos elementos físicos y simbólicos que significaron su carácter de espacio cerrado o privado. El Recinto CRAV estuvo resguardado por celadores o guardias de seguridad que trabajaban, habitualmente, en unas garitas ubicadas a la entrada de la población, además de las gruesas cadenas que separaban al barrio del sector de Penco Chico (Ovando, 2017).
Por otro lado, la industria CRAV-Penco también permitió y prohibió ciertos comportamientos de los y las habitantes del Recinto Refinería en beneficio del cuidado y mantenimiento material de las viviendas. La principal encargada de supervisar este aspecto fue la Srta. Ema Stowhas Kargus, visitadora social de la industria desde principios de la década de 1940 hasta el cierre de la industria, en el año 1976. Su misión como responsable del Departamento de Acción Social de la Refinería consistió, principalmente, en visitar y atender las necesidades privadas de los obreros y sus familias, estableciendo, producto de ello, una especial relación con las mujeres. Este rol debe comprenderse en el marco del proceso de consolidación del Servicio Social Industrial chileno, a partir del cual las visitadoras sociales contribuyeron a materializar el control extensivo de la industrialización capitalista (Moyano, 2016).
Según el relato de los y las actuales habitantes de los barrios refineros, esta profesional visitaba el Recinto CRAV de forma periódica con el fin de supervisar el estado de limpieza y orden de las viviendas cedidas por la empresa. En caso de no cumplir las exigencias, la visitadora social “les hacía ver que la casa no estaba en buen estado, no la tenían bien limpia y los niños andaban sucios” (Taller de Reconstrucción de Memoria Colectiva, 2016). Ello implicaba, a su vez, la responsabilidad de educar a las dueñas de casa cuando estas no daban prioridad a las labores domésticas o cuando no lograban cumplir con los estándares de limpieza y orden exigidos. En otros barrios de la zona construidos por industrias, esta preocupación dio lugar, además, a la promoción de concursos que tenían por objetivo premiar las casas más aseadas, tal como sucedió en Lota Alto (Venegas y Morales, 2015) y en Schwager, según lo publicado en el periódico La Información, de la Compañía Carbonífera y de Fundición Schwager.
En el caso de la Población Desiderio Guzmán, el grado de intervención de la industria CRAV fue considerablemente menor, sobre todo, en relación a la vigilancia y supervisión de las viviendas y la vida barrial. Por un lado, convertirse en dueños de una casa propia permitió a los trabajadores librarse del control directo ejercido tanto por los celadores como por la visitadora social -puesto que la población ya no era un recinto privado-, pero, por otro lado, los obligó a cumplir ciertas responsabilidades que, en el Recinto CRAV, fueron asumidas por la empresa. Por ejemplo, los y las habitantes de la Población Desiderio Guzmán debieron encargarse de reparar, por cuenta propia, los desperfectos de las viviendas, actuando la industria solo en los casos estrictamente necesarios. En cambio, en el primer barrio refinero, “Se quebraba un vidrio, [la fábrica] mandaba personal a la casa; tenían que cambiar una puerta, la fábrica; una parte eléctrica se echaba a perder, la fábrica” (Taller de Reconstrucción de Memoria Colectiva, 2016). En el caso de Villa Los Radales, esta intervención fue inexistente ya que las viviendas fueron entregadas poco tiempo antes del cierre definitivo de la industria CRAV.
Conclusiones
Los tres conjuntos habitacionales construidos por la Refinería de Azúcar CRAV en Penco tienen en común un territorio, el ideal de la modernidad y el uso compartido de los equipamientos y espacios públicos, llegando a conformar una comunidad de vida denominada hoy familia refinera. No obstante, al compararlos, aparecen también claras diferencias: la primera de ellas, relacionada al concepto de recinto cerrado que tiene el primer conjunto respecto de los dos últimos; la segunda, en relación a los medios de control social ejercidos por la industria sobre sus trabajadores, mucho más estrictos en el Recinto CRAV que en las poblaciones Desiderio Guzmán y Villa Los Radales; y la tercera respecto de las tipologías arquitectónicas desarrolladas en cada uno de los conjuntos, las que hablan de diferentes momentos arquitectónicos y materialidades asociadas a dichos períodos.
Elementos compartidos
Un territorio común en tanto el Conjunto CRAV hace parte de una unidad industrial mayor, un territorio industrial que ha definido el carácter fabril del Concepción metropolitano, con la presencia de industrias del Estado como la Siderúrgica Huachipato; la industria minera en la Cuenca del Carbón (Coronel, Schwager, Lota ,Curanilahue, Lebu); la Empresa Nacional del Petróleo ENAP, como así también de industrias privadas como la Fábrica de Vidrios Planos VIPLA en Lirquén, las industrias textiles Bellavista-Tomé y la Fábrica Ítalo Americana de Paños FIAP en Tomé, la fábrica textil MACHASA de Chiguayante, por nombrar algunas de las más importantes.
Territorio común también en el sentido de ocupar las tres un sitio contiguo a los edificios fabriles propiamente tales, las instalaciones de producción y refinado del azúcar, lo que, en la perspectiva del paternalismo industrial, define un área de mano de obra cercana y siempre dispuesta a las faenas y requerimientos de la producción.
Territorio común en tanto se comparte un espacio geográfico caracterizado por la cercanía y presencia del mar, así como la ocupación del borde de ladera en los primeros promontorios de la Cordillera de la Costa. Ello habría de tener una incidencia fundamental en la calidad de vida de obreros y empleados, quienes recuerdan no sin nostalgia los días de verano junto al mar o el cultivo de plantas y flores del borde cordillerano.
En común se encuentra también la idea de modernidad. Esta expresada en el desarrollo de un conjunto urbano que proporciona los nuevos estándares que ofrece la modernidad, en contraposición a las antiguas condiciones de vida de un obrero industrial: viviendas salubres, iluminadas y ventiladas naturalmente, que dispone de servicios como alcantarillado, agua potable y electricidad, con dormitorios separados para padres e hijos. Modernidad expresada también en el acceso a los servicios, a la salud y la educación.
Comparten asimismo estos tres conjuntos los equipamientos y los espacios públicos. Los equipamientos se organizan y distribuyen tanto hacia el interior del recinto (iglesia y salón parroquial, escuela, mercado-cooperativa), como también en el borde de encuentro entre el Conjunto CRAV y la ciudad de Penco (estadio y edificio de equipamientos con cine-teatro, gimnasio, biblioteca y comedor). Esto provocó que los equipamientos CRAV fueran paralelamente utilizados por los habitantes del barrio refinero y la comunidad de Penco, representando uno de los puntos de encuentro y reunión social más importantes de la ciudad.
Elementos diferenciadores
La primera diferencia que destaca entre estos tres conjuntos habitacionales es la condición de recinto cerrado del primero respecto de los dos segundos. En efecto, la idea de recinto cerrado en el conjunto de 1941 se expresa ya a partir de su nombre, el Recinto CRAV, nombre que mantiene hasta hoy en día, aun cuando ya sea un barrio abierto. Las poblaciones Desiderio Guzmán y Villa Los Radales fueron construidas como áreas abiertas, organizadas en torno a calles públicas.
Una segunda diferencia se encuentra en los medios de control social ejercidos por la industria sobre sus trabajadores, muy rigurosos en el primer Recinto CRAV respecto de las poblaciones Desiderio Guzmán y Villa Los Radales más tarde. Aquí operó de modo claro lo que hoy se denomina paternalismo industrial, es decir un sistema desde el cual se provee al trabajador industrial de todo aquello que necesita para la vida familiar, a cambio de estar permanentemente dispuesto a las exigencias de la producción y a acatar los modos de comportamiento dictados por la empresa, incluso en el ámbito familiar.
Una tercera diferencia proviene de las arquitecturas y las tipologías habitacionales allí desarrolladas. En un período cercano a los 35 años, se experimentó allí con arquitecturas en madera; quincha y barro, albañilerías simples y más tarde albañilerías reforzadas. Asimismo, el abanico de tendencias estilísticas va desde las reinterpretaciones neoclásicas y eclécticas, las influencias de la arquitectura art decó y las primeras expresiones de la arquitectura moderna.
Palabras finales
Los tres conjuntos desarrollados por la Fábrica de Azúcar CRAV de Penco constituyen una unidad peculiar que ha sido espacio de vida y trabajo para una comunidad, la familia refinera, quienes han dotado a dicho espacio de significados y vivencias que han elevado ese lugar a la categoría de barrio. Un barrio que se asocia culturalmente a un territorio industrial mayor en el Concepción metropolitano, cargado de identidad obrera. Por sus cualidades urbanas, arquitectónicas y sociales, el conjunto CRAV-Fábrica Penco constituye un barrio de valor significativo, un espacio de valor patrimonial que resulta importante reconocer y proteger.
Referencias bibliográficas
Alemany, M. (2005). El concepto y la justificación del paternalismo industrial (Tesis de Doctorado), Universidad de Alicante, España.
Álvarez, M. A. (2008). Patrimonio industrial. Un futuro para el pasado desde la visión europea. Apuntes, 21(1), 6-25.
Brito, A. (2018). Memoria colectiva y construcción de territorio: auge y despojo de una cultura industrial. Los casos de la fábrica textil Bellavista-Tomé y la carbonífera Schwager en Coronel (1970-2007). Izquierdas, (42), 1-29.
Brito, A., Cerda, G., Fuentes, P., y Pérez, L. (2018). Industria y habitar colectivo. Conjuntos habitacionales en el sur de Chile. Concepción, Chile: Stoq Editorial.
Brito, A. y Ganter, R. (2014). Ciudad obrera: persistencias y variaciones en las significaciones del espacio. El caso de la siderúrgica Huachipato y su influencia en el desarrollo urbano del Gran Concepción. EURE, 40(121), 29-53. doi:10.4067/S0250-71612014000300002
______ (2015). Cuerpos habitados, espacios modelados: el caso de la Siderúrgica de Huachipato, 1940-1970. Historia 396, (5), 11-36.
Capel, H. (2014). El patrimonio: la construcción del pasado y del futuro. Barcelona, España: Ediciones del Serbal.
Cerda, G. (2017). Arquitectura moderna en madera en el sur de Chile: 1936-1976 (Tesis Doctorado en Arquitectura y Urbanismo) Universidad del Bío-Bío, Concepción, Chile.
Cerda, G., Burdiles, R., Cartes, I., Rojas, E., Lobos, J., y Correa de Paula, L. (2005). Arquitectura moderna en madera en el sur de Chile: 1930-1970. Arquitecturas del Sur, 21(30), 17-33.
Ciselli, G. (2015). El patrimonio cultural: su reconocimiento constitucional y su apropiación social. En G. Ciselli y M. Hernández (Eds.), El patrimonio industrial como la huella del trabajador petrolero en el territorio. El caso de Y.P.F en Comodoro Rivadavia y su impronta cultural (pp. 27-52). Ayacucho: Dunken.
Cvitanic, B. y Matus, D. (2018). Industria y hábitat colectivo en la Región de Magallanes: dinámicas y singularidades de un modo de ocupación territorial, 1885-1971. Revista 180, (42), 36-48. doi:10.32995/rev180.Num-42.(2018).art-443
Fuentes, P. (2015). Del familisterio al condensador social. El colectivo Chollín como arquetipo moderno. Revista AUS, (17), 49-55. doi:10.4206/aus.2015.n17-09
Fuentes, P. y Pérez, L. (2018). La Compañía de Acero del Pacífico, CAP. Instauración de un modelo urbano habitacional en la intercomuna de Concepción. Revista INVI, 33(93), 71-96. doi:10.4067/S0718-83582018000200071
Godoy, M. (2015). Las casas de la empresa: paternalismo industrial y construcción de espacio urbano en Chile. Lota, 1900-1950. Universum, 30(1), 115-136. doi:10.4067/S0718-23762015000100008
Hidalgo, R. (2000). El papel de las leyes de fomento de la edificación obrera y la Caja de la Habitación en la política de vivienda social en Chile, 1931-1952. Revista INVI , 15(39), 92-120.
______ (2002). Vivienda social y espacio urbano en Santiago de Chile. Una mirada retrospectiva a la acción del Estado en las primeras décadas del Siglo XX. EURE, 28(83), 83-106. doi:10.4067/S0250-71612002008300006
Jara, C. (2016). Una dulce historia. Tomé, Chile: Al Aire Libro.
Jara, P. (1997). Conjuntos habitacionales de los arquitectos Ricardo Hempel y Gerardo Valverde (Seminario de título, sin publicar). Universidad del Biobío, Concepción, Chile.
La inauguración de la nueva población obrera. (1941, 3 de abril). Pan de Azúcar, pp. 1-3.
Lira, R. (1992). Modelo de relaciones industriales y orientación sindical. El caso de la Refinería de Azúcar de Viña del Mar, 1930-1973. Proposiciones, (27), 1-28.
López, M. I., y Cerda, G. (2015). Población Bannen de Lota Bajo, Chile 1944-1950: La acción del Estado en la construcción del espacio minero. En M.I. López y L. Pérez (Eds.), Parques Mineros, Ecomuseos y Geoparques (pp. 70-83). Concepción, Chile: STOQ.
Márquez, B. (2014). Cerámica en Penco. Industria y sociedad, 1888-1962. Concepción, Chile: Ediciones del Archivo Histórico de Concepción.
Mazzei, L. (2015). Estudios de historia económica regional del Biobío. Concepción, Chile: Ediciones del Archivo Histórico de Concepción .
Moyano, C. (2016). La visitadora social industrial en Chile: tradición y modernidad en la gestión del bienestar, 1920-1950. Nuevo Mundo Mundos Nuevos. doi:10.4000/nuevomundo.69328
Nueva población para CRAV Penco. Se entregará en diciembre. (1974, 21 de mayo). Diario El Sur, p. 22.
Okuda, M. y Gómez-Restrepo, C. (2005). Métodos en investigación cualitativa: triangulación. Revista Colombiana de Psiquiatría, 34(1), 118-124.
Ovando, G. (2017). La familia refinera: un acercamiento etnográfico a la memoria colectiva desde la visión de sus actuales residentes, para la puesta en valor de los elementos socio-culturales que cohesionan a la ex comunidad industrial Refinería de Azúcar CRAV-Penco (Memoria de pregrado, sin publicar). Universidad de Concepción, Concepción, Chile.
Pérez, L. y Fuentes, P. (2019). Arquitecturas de la industrialización nacional. El conjunto Papeles Bío-Bío como recinto autónomo primario (1953 hasta la actualidad). Revista AUS , (25), 4-10.
Pinto, J. y Salazar, G. (2002). Historia contemporánea de Chile III. La economía: mercados, empresarios y trabajadores. Santiago de Chile: LOM.
Rosemblatt, K. (1995). Por un hogar bien constituido: el Estado y su política familiar en los Frentes Populares. En L. Godoy, E. Hutchison, K. Rosemblatt y M. S. Zárate (Eds.), Disciplina y desacato: construcción de identidad en Chile, siglos XIX y XX (pp. 181-222). Santiago, Chile: SUR/CEDEM.
Venegas, H. (2015). Políticas de bienestar y control social en la minería del carbón. Las experiencias de Lota y Coronel en el siglo XX. Atenea, (511), 221-245. doi:10.4067/S0718-04622015000100012
Venegas, H., y Morales, D. (2015). El despliegue del paternalismo industrial en la Compañía Minera e Industrial de Chile, 1920-1940. Historia Crítica, (58), 117-136. doi:10.7440/histcrit58.2015.06
______ (2017). Un caso de paternalismo industrial en Tomé: familia, espacio urbano y sociabilidad de los obreros textiles (1920-1940). Historia, 50(1), 273-302. doi:10.4067/S0717-71942017000100010
______ (2019). Alternativas de gestión del trabajo en una industria monopólica: el caso de la cementera El Melón, Chile (1930-1950). América Latina en la Historia Económica, 26(1), 72-93. doi:10.18232/alhe.921
Notas