Artículo
Practicidad y comunicación de lo técnico en las tipologías de vivienda CORVI
Practicality and technical communication in CORVI housing typologies
Practicidad y comunicación de lo técnico en las tipologías de vivienda CORVI
Revista INVI, vol. 36, núm. 103, pp. 323-348, 2021
Universidad de Chile. Facultad de Arquitectura y Urbanismo. Instituto de la Vivienda
Recepción: 25 Septiembre 2020
Aprobación: 31 Mayo 2021
Financiamiento
Fuente: Fondo Nacional de Desarrollo Cultural y las Artes FONDART
Nº de contrato: 547745
Descripción del financiamiento: Investigación “Obras de especulación. Prototipos y tipologías diseñadas y construidas por CORVI entre 1966 y 1972”, financiado por el Fondo Nacional de Desarrollo Cultural y las Artes FONDART 547745, línea de investigación en arquitectura.
Resumen: El Sub Departamento de Diseño de la Corporación de la Vivienda (CORVI) publicó, en diciembre de 1972, un documento con dieciocho prototipos de viviendas desarrollados por sus equipos entre 1966 y 1971. Este documento fue el resultado de la experiencia previa de dichos equipos al desarrollar la obra de vivienda de interés social construida en Chile, el trabajo de sistematización y estandarización de dicho conjunto de obras y las indicaciones proyectuales dadas por los directivos de estos equipos. Utilizando el propio documento, más fuentes secundarias que informan sobre las decisiones de CORVI y entrevistas realizadas a Orlando Sepúlveda Mellado -arquitecto parte de los equipos de diseño de la CORVI- el presente trabajo analiza el sentido práctico de “Tipología de viviendas racionalizadas 1966-1972”, proponiendo que este performa la noción de tipología de un modo no canónico, articulando una estandarización de las ideas proyectuales y respondiendo a las contingencias del entorno sociomaterial. Esto ayuda a concluir que las imprecisiones observadas en el documento son parte de una estrategia objetual de comunicación de lo técnico que apunta a su practicidad, esto es, ser eficiente en narrar toda la complejidad de la racionalización arquitectónica como programa político y sociotécnico.
Palabras clave: racionalización, CORVI, tipologías, estandarización, practicidad.
Abstract: In December 1972, the Sub Department of Design of the Corporación de la Vivienda (CORVI) published a document with eighteen housing prototypes developed by its teams between 1966 and 1971. This document was the result of the previous experience of those teams in developing a large part of the social housing built in Chile, of the work of systematization and standardization of that set of works, and of the design indications given by the managers of these teams. Drawing on the document itself, secondary sources that report on CORVI's decisions, and interviews with Orlando Sepúlveda Mellado, an architect member of CORVI's design teams, this paper analyzes the practical meaning of "Tipología de viviendas racionalizadas 1966-1972" and suggests that it performs a non-canonical mode of the notion of typology, articulates a standardization of project ideas, and responds to the contingencies of the sociomaterial environment. This helps to conclude that the inaccuracies observed in the document are part of an objectual strategy of communication of the technical aspect that aims at its practicality, that is, to efficiently narrate the complexity of architectonic rationalization as a political and socio-technical program.
Keywords: Rationalization, CORVI, typologies, standardization, practicality.
Introducción
“Tipología de viviendas racionalizadas 1966-1972” es un documento elaborado en 1972 por el Sub Departamento de Diseño de la Corporación de la Vivienda [CORVI], que contiene información sistematizada sobre dieciocho prototipos de viviendas diseñados por sus diversos equipos entre 1966 y 1971. El documento da cuenta de un proceso de estandarización de la vivienda de interés social denominado racionalización, comenzado a mediados de la década anterior y fiel expresión del sentido modernizador de la época. Este asociaba el desarrollo económico a la eficiencia del gasto y por ello otorgaba un fuerte protagonismo a las etapas de diseño (Anguita, 2012; Becerra, 2016; Gámez, 1999; Raposo Moyano, 1998). Como señala el arquitecto José Quintela Roca en la Editorial del mencionado documento:
“La tipología de vivienda que se expone, representa una integración profesional que ha modificado sensiblemente el comportamiento funcionario y la calidad del producto; contiene méritos y contradicciones inherentes a la complejidad del diseño en un país en vías de desarrollo económico, que afronta su destino con una profunda revisión política, cultural, económica, social y estructural” (CORVI, 1972).
Sin embargo, “Tipología de viviendas racionalizadas 1966-1972” es un objeto ambiguo. No es propiamente un documento de trabajo; para ser considerado un libro es demasiado corto y es demasiado extenso para ser tomado por un folleto publicitario. Podría ser visto como un catálogo de las tipologías diseñadas por los equipos CORVI, pero carece de las fotografías (CORVI, 1969), de las narrativas o de los datos de costo y producción con que cuentan dichos catálogos (CORVI, 1969; “Corvi en el centro”, 1972). Su firma además no es la habitual -la de la Oficina de Relaciones Públicas de CORVI- sino la del Sub Departamento de Diseño; esto podría explicar que su factura fuera también diferente, en hojas color pastel y de alto gramaje que reproducen en tintas negras y rojas los planos, secciones, elevaciones y dimensiones de cada prototipo diseñado.
Sumado a lo anterior, sus dibujos y datos son suficientemente precisos para dar una idea práctica de lo que las diferentes tipologías implican en términos productivos, pero no entregan información sobre el desempeño técnico de las mismas. Se indican, por ejemplo, el tipo de materialidades a utilizar en cada elemento estructural, pero no sus cantidades; se diferencian sus programas, pero no hay información sobre como ocurre el habitar dentro de ellos; se entregan sus medidas de largo, muro y altura, pero no en todos los casos y no siempre son simétricas. De esta manera, el documento es útil para organizar una idea sobre la eficiencia práctica de los prototipos de proyecto, pero no para una reproducción técnica de ellos.
Metodología
Siguiendo tres premisas sobre la practicidad de los objetos, propias de los estudios sociales de Ciencia y Tecnología (CTS), el presente trabajo describe cómo este documento utiliza la imprecisión, más para comunicar técnicamente la practicidad de las tipologías elaboradas que para buscar su mera reproducción. Para ello se analizaron las formas mediante las que el propio documento comunica los aspectos técnicos de los prototipos de vivienda, fuentes secundarias que ayudaran a fijar el escenario de producción del documento en cuestión y entrevistas realizadas al arquitecto Orlando Sepúlveda Mellado, quien fue parte de los equipos de diseño CORVI y, por tanto, testigo y partícipe de los procesos que el documento comunica.
Las premisas consideradas para el presente trabajo son: 1) que los objetos son productivos, hacen cosas y/o colaboran centralmente con la producción de ellas; 2) que los objetos son performativos, actores dentro de procesos colectivos que ayudan a organizar, justificar y sostener diferentes órdenes situacionales (De Laet y Mol, 2000; Joerges, 1999); y 3) que los objetos son contingentes, son efecto de las relaciones en que son involucrados, y lo por tanto no son neutrales (Winner, 1980), aunque sí ambivalentes (Woolgar y Cooper, 1999), heterodoxos y abiertos (Law y Mol, 2008, 2020). En las siguientes líneas se emplean para describir los modos mediante los que el documento “Tipología de viviendas racionalizadas 1966-1972” performa una forma no canónica de la noción de tipología, articula una estandarización de las ideas proyectuales y responde a las contingencias del entorno sociomaterial. Esto da orden a sus acápites y permite considerar, como conclusión, que las imprecisiones observadas en el documento son parte de una estrategia objetual de comunicación de lo técnico que tiene por norte su practicidad, esto es, ser eficiente en narrar la complejidad de la racionalización como programa político y sociotécnico.
Tipologías
Tal como señala Quintela, “Tipología de viviendas racionalizadas 1966-1972” es
“el testimonio de un proceso de racionalización del Diseño de la Vivienda tipificada, para un uso repetitivo, serializado, a escala nacional (…) La tipología de vivienda que se expone, representa una integración profesional que ha modificado sensiblemente el comportamiento funcionario y la calidad del producto”,
por lo que:
“(…) ha sido considerado conveniente, exponer los proyectos que se incluyen en el siguiente volumen, en un carácter estrictamente técnico e informativo, reducidos a la misma escala, normalizados y jerarquizados según su aparecimiento cronológico y destinación, en un marco de precisión y sobriedad, que den a este material, una efectividad y solvencia” (CORVI, 1972).
Esta breve descripción enmarca la intencionalidad del documento y argumenta su practicidad. Por su parte, cabe entender que este proceso de estandarización fue motivado, tanto por la necesidad de organizar una memoria sincrética de la vivienda de interés social -realizada hasta esa fecha (lo cual fundamenta que se le entienda como un proceso de organización tipológico)- como por las controversias de diseño y construcción que los mismos diseñadores enfrentaban en la supervisión de las obras.
La observación de obras anteriores y/o similares es habitual en las comunidades de prácticas donde sus procesos de estandarización están en desarrollo y/o donde los sistemas de referencias son fluidos, como en las bellas artes, la arquitectura o la artesanía. En el caso particular de la arquitectura, estos procesos ayudan a organizar cánones y tipologías, es decir, a aplicar modelos de orden de las obras según su relevancia disciplinar o según sus similitudes estructurales. Ambos órdenes responden, sin embargo, a un mismo sentido práctico: sirven a las obras y éstas a las funciones requeridas por cada realidad local. Como sostiene Orlando Sepúlveda, estas prácticas también eran propias de los equipos CORVI:
“Con eso se les decía al grupo de arquitectos: ‘guíense de estas dos poblaciones que han sido exitosas’, supongamos, ‘en Santiago’. Entonces se tomaban los planos, se analizaban esas dos poblaciones y los arquitectos sacaban conclusiones y deducían un partido general desde ahí: ‘Aquí la estructura de estas viviendas tiene que ser de tal tipo’ y también incluso se pronunciaban en el partido general sobre la solución de los estándares. Ahí se definía, por ejemplo, el tamaño de los clósets. Se definían los artefactos sanitarios, y si se ponía bidé o no se ponía bidé. Ahí salía el tamaño del dormitorio principal, del dormitorio de los niños, el tamaño de la cocina, si iba a tener balcón o no, si iba a tener logia de servicio y de qué tamaño. Todo eso. Ahí, más o menos, se definía todo el partido general". (Entrevista O. Sepúlveda, 10 de octubre de 2018)
A esto se sumaba la experiencia y las conclusiones que los equipos de diseño adquirían de eventuales visitas a las obras, dentro del proceso de construcción, como indica Sepúlveda:
"[E]ventualmente el mismo personal técnico le sugería a la empresa que también comprometiera a los arquitectos proyectistas, para ir a ver la obra. No con un fin de inspección, sino de orientar si se estaba ejecutando de acuerdo al enfoque del proyecto. Nosotros íbamos, no a ver si ponían la dosificación del hormigón, si el fierro estaba correcto, o si todos los materiales estaban bien fijados. No. Eso no era nuestra propuesta, sino más bien si la obra se estaba ejecutando conforme al conjunto de la distribución de las casas, los antejardines, el tamaño de las piezas, etcétera. Eso, hasta que se terminaban. Eso era el proceso de construcción” (Entrevista O. Sepúlveda, 10 de octubre de 2018)
De esta manera “Tipología de viviendas racionalizadas 1966-1972” se articula entre ambas situaciones de diseño: la de un canon de obras y la de la practicidad de la construcción. Ello posibilita que, sin ser un texto canónico, dé orientaciones para articular un estándar de vivienda de interés social a nivel de programa y de estructura y materialidad, estándar que podía adecuarse tanto a diferentes condiciones climáticas como a diferentes presupuestos. El texto emerge como respuesta a una experiencia heterogénea y proyecta un modo colectivo de entender el problema de la vivienda tipificada:
“CORVI empezó a tomar una manera de hacer los proyectos residenciales, arquitectónicos, porque por razones de velocidad operativa decían: ‘mira, hazte tú un proyecto que se está pidiendo para la caja tal. Y se necesitan ciento cincuenta viviendas’. ‘Mira, guíate por este proyecto por el número 114 que se hizo en Irarrázaval que está muy de acuerdo a los estándares’. Entonces, la persona, el arquitecto o el grupo veían ese proyecto, lo analizaban, pero no lo aplicaban tal cual, sino que lo tenían como un referente y hacían un diseño, un partido [imagen] general de acuerdo al enfoque que el grupo tenía. Ese grupo de arquitectos, una vez que ya tenía las ideas claras, iba donde el jefe y les decía:’“oye tú nos dijiste que nos guiaría, sí, pero ese referente no resolvió bien tales aspectos, nosotros mejoramos eso y la casa nos sale un poco más grande’. ‘¿Cuánto más?’ ‘Un poco más, no más, pero cambiamos el dormitorio principal para dentro’, ‘Ah, ya, correcto’. Eso era muy frecuente. Ese procedimiento. No tenía la claridad que incorporó Héctor Valdés, que dijo: 'No solo tipología, sino que además, los primeros proyectos tipológicos que van a recoger como síntesis la experiencia de CORVI. Van a ser racionalizados, además’. (Entrevista O. Sepúlveda, 14 de noviembre de 2018)
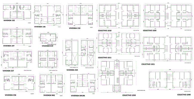
Sin embargo, lo anterior dista del uso canónico del término en la teoría de la arquitectura. En esta, las nociones tipológicas emergen como parte de un instrumental que ayuda a producir objetos similares y, por tanto, a acuñar y perfeccionar repertorios socio técnicos adecuados para ello. Rafael Moneo define tipología como “aquel concepto que describe un grupo de objetos caracterizados por tener la misma estructura formal” (Moneo, 1978, p. 190). Se trata de un modo de agrupación o clasificación basado en las similitudes estructurales que comparten los objetos (Argan, 1983); una abstracción (Martí, 2005) que permite a la comunidad de prácticas pensar en grupos, en un orden de conglomerados (Figura 1). La base de la noción de tipología responde a la comunalidad de la forma estructural y no, aunque puede coincidir, a la composición material o al destino de la obra.

Siguiendo la definición de Moneo (1978), el documento ofrece tres conjuntos con similitudes estructurales internas a partir de las que ordena los prototipos desarrollados por los diversos equipos. Los divide en viviendas en extensión (casas), colectivos en altura (edificios de cuatro y más pisos) y viviendas de emergencia (unidades con un solo programa). En su Editorial, José Quintela (CORVI, 1972) utiliza indistintamente los términos tipología y prototipo para referirse a los diseños, pero utilizando además, dentro de la información de cada uno, la palabra tipología para distinguir si se trata de una casa pareada (todos los modelos de viviendas presentados, que no son vivienda de emergencia, son pareados) o de un edificio aislado. Ante la ambigüedad del documento y para evitar confusiones se les denominará prototipos, tanto porque no corresponden a cabalidad con la conceptualización de Moneo y de otros como por la no realización de todos los modelos.
“Tipología de viviendas racionalizadas 1966-1972” utiliza el término tipología también para indicar si el prototipo corresponde a una casa pareada o a un colectivo (bloque o edificio) aislado (Tabla 1). Que las casas sean pareadas quiere decir que contienen dos unidades de vivienda pareadas. Los colectivos de vivienda son señalados como de tipología aislada, aunque contienen unidades de vivienda pareadas, que comparten una misma pared. Todos los prototipos presentan programas de actividades similares: estar/comedor, cocina, baño, dormitorio, pasillo y clóset, lo cual constituye uno de los resultados de la estandarización del diseño de las viviendas realizado por CORVI. Si bien las dimensiones dedicadas a cada actividad varían dentro de cada prototipo, en promedio la superficie dedicada en ellos al Estar y Comer corresponde al 27%; al Cocinar un 11%; al Higiene un 6%; al Dormir un 45% (un 21% al dormitorio principal y un 24% de superficie al resto); un 6% de espacio dedicado a las circulaciones y un 4% dedicado al guardar.

Las casas presentan, por cada prototipo, unidades de vivienda de dimensiones homogéneas. Los colectivos, en cambio, contienen unidades de vivienda con distintas dimensiones y tipos. El colectivo 1010 y 1020, por ejemplo, tienen cuatro plantas, la primera contiene cuatro unidades de vivienda de tipo A, mientras las siguientes incluyen tres de tipo A y una de tipo B. Esta última incluye un dormitorio más o un espacio que se contabiliza en los metros de superficie útil como tal, aunque en el dibujo aparece como extensión del estar/comedor. En los colectivos 1010 hay viviendas de dos (A) y tres (B) dormitorios, donde A es el dormitorio principal y los B son de menor pero igual dimensión. En los colectivos 1020 hay viviendas de tres (A) y cuatro (B) dormitorios donde se consideran dos unidades de mayor tamaño y dos de menor tamaño, ambos pares iguales (Figura 2).

Tal como ocurre con las tecnologías fluidas (De Laet y Mol, 2000), los prototipos de viviendas dan cuenta de dos aspectos epistemológicos diferentes, pero no contradictorios: por un lado, son parte de un proceso de estandarización que implica un acotamiento de las opciones de forma, función y materialidades de la obra; por otro lado, están abiertos a la heterogeneidad de interpretaciones del mundo. Las variaciones requieren de una base, la estandarización desplaza esa base hacia todos los lugares como parte de un proceso evolutivo de las mismas. Mientras la adopción del estándar tipológico gubernamentaliza el diseño y la construcción de viviendas, también ayuda a sus desplazamientos y adaptaciones. La estandarización no cierra el diseño; el estándar abre la tecnología a la adaptación local.
Estándar
Las tipologías son el resultado de prácticas reflexivas, mediante las que una comunidad ordena, clasifica y valora lo realizado singularmente por sus miembros, para proyectarlo como un saber contingente y disciplinar, al igual que la obra arquitectónicamente construida. Como sostiene Rafael Moneo (1978), hacerse la pregunta por la clase de objeto que es una obra de arquitectura pasa por también preguntarse qué es un tipo dentro de un conjunto de obras marcadas por la singularidad. Walter Gropius, por su parte, elige hablar de standards para identificar estas formas replicadas, que son resultado de los medios de producción y de los modos de vivir de una época y “síntesis de las mejores aportaciones individuales para solucionar determinados problemas repetitivos” (Benévolo, 1963). Es la línea que también sigue el influyente “Arte de Proyectar en Arquitectura” de Ernst Neufert (1995), texto con el que la Bauhaus organiza como método proyectual su modelo de estandarización de los efectos espaciales de movimientos y prácticas corporales de humanos y objetos. Para Le Corbusier, por su parte, “la arquitectura actúa sobre standards (sic). Los standards son cosa de lógica, de análisis, de estudio escrupuloso, y se establecen sobre un problema bien planteado. La experimentación fija definitivamente el standard” (Le Corbusier, 1953, p. 31).
El sentido práctico de “Tipología de viviendas racionalizadas 1966-1972” es presentar prototipos diseñados para su uso repetitivo y serializado a escala nacional (Figura 1). No todos estos prototipos fueron llevados a obra, por lo que no se trata de un resumen de trabajos concretados sino de un conjunto de proyectos elaborados bajo un sentido estandarizante, resultado de un proceso de estudio y análisis sistemático de la obra realizada que permitió establecer parámetros que fueron comunes a estos proyectos y que guiaron sus encargos. Este conjunto está ordenado bajo dos modelos estructurales diferentes: el de las viviendas extendidas y el de los colectivos en altura; más ambos comparten una similar distribución de los programas dentro de la superficie utilizable en cada prototipo. Esto coincide con la forma como Le Corbusier describe los procesos de estandarización que sostienen la arquitectura como procesos lógicos, “de análisis, de estudio escrupuloso y (que) se establecen sobre un problema bien planteado” (1953, p. 31).
Parte de los problemas planteados por la racionalización radicaban en las decisiones y consumos materiales de los proyectos, por ello el documento acota esas decisiones a una serie de materiales a usar, en cada caso, en muros, tabiques, cubierta, pavimentos, puertas y ventanas. De esto se deducen variaciones en los costos de las unidades derivados del costo de los materiales; pese a esto, el documento considera opciones bastante homogéneas. Así, privilegia la mezcla entre albañilería de ladrillo y hormigón armado en muros de casi todas las tipologías, salvo para las versiones más pequeñas de viviendas y las viviendas de emergencia. En los tabiques se privilegia la plancha de yeso forrada y el asbesto cemento; en las cubiertas y baldosas el asbesto cemento; así como para los pavimentos las baldosas y el asbesto cemento.
Lo que se aprecia en la Tabla 2 da cuenta de dos aspectos: que en las especificaciones se consignan opciones alternativas, no composiciones materiales cerradas, y que hay imprecisiones en la nominación de algunas materialidades. Un ejemplo de lo primero es que cuando se especifica “Plancha de yeso forrada en cartón, albañilería de ladrillo, madera, asbesto cemento” para los tabiques, o “Baldosa, Vinilo Asbesto” para los pavimentos, se están dando alternativas a utilizar. Lo que hace la diferencia es el precio y la disponibilidad geográfica, de manera que los prototipos están abiertos materialmente según los presupuestos con que se cuenten. Un ejemplo de lo segundo es que, en cubiertas, se habla indistintamente del “asbesto” o del “cemento”, como si fueran dos materialidades diferentes, y de “asbesto cemento” como si fuera una sola. En realidad, lo segundo es lo correcto, pero estas imprecisiones son permitidas dada la practicidad del documento que, como se verá más adelante, opta por la flexibilidad interpretativa como estrategia de adaptación a distintas situaciones de concretización de los prototipos.

No se trata, por cierto, de los únicos aspectos en que el documento es flexible a la interpretación. Los prototipos de viviendas 196 y 197, diseñadas por el mismo equipo en el mismo año, pero regionalizadas para distintas zonas (norte y sur) son exactamente iguales en su diseño y materialidad, no hay diferencia entre ellas. Los prototipos de viviendas C36 y SM 36, diseñadas por el mismo equipo, con diferencia de un año, para distintas zonas (central y todo el país) son diferentes en dimensiones y materialidades, pero su distribución programática es igual en el dibujo. Incluso, la SM36 no contabiliza un pequeño pasillo que aparece en el dibujo y al que otorga metros en las especificaciones de la C36. El resultado son dibujos similares, pero metrajes diferentes: 34 metros cuadrados (C36) y 35,44 metros cuadrados (SM 36) de superficie útil cada una. Por su parte, el prototipo 150, era una vivienda de una planta, pero en dos niveles, adaptable a laderas con una pendiente elevada.
Los estándares no siempre constituyen composiciones precisas (Lampland y Star, 2009). Para ser instrumentos efectivos y poder desplazarse entre contextos diferentes, o para ser reproducidos en situaciones prácticas distantes, requieren ser flexibles interpretativamente y permeables a los arreglos locales que realicen los actores, además de demostrar ser eficientes y sencillos en la producción de los efectos prácticos buscados (De Laet y Mol, 2000). Por ello, la estandarización de las prácticas de la arquitectura no implica rigidez, sino practicidad (Graaf, 2017), y esto puede no ir de la mano con la precisión, en tanto cualidad instrumental.
Tanto los estándares como las tipologías son instrumentos que no buscan reproducir objetos exactamente iguales, sino lo suficientemente similares entre sí para ser considerados como parte de un mismo conjunto (Graaf, 2017; Moneo, 1978; Star, 2010). Son tecnologías fluidas (De Laet y Mol, 2000), su practicidad radica en promover similitud entre las prácticas de una comunidad marcada por la singularidad de las mismas. Esto no necesariamente implica sean instrucciones precisas, aunque a veces lo parezcan, como ocurre con el documento en cuestión (Figura 3).

Practicidad (Racionalización)
El proceso de estandarización del que forma parte “Tipología de viviendas racionalizadas 1966-1972” tiene relación tanto con el programa de modernización sociotécnica propia del capitalismo desarrollista de la época como con la necesidad de un gasto económico, temporal y material eficiente en función de la producción masiva de viviendas. En ello radica el sentido práctico de la “racionalización” de los diseños y de las decisiones proyectuales y por ello funciona como un proceso de estandarización. Y esto comienza un poco antes, en 1965, con la llegada del arquitecto Héctor Valdés Phillips a la vicepresidencia ejecutiva de CORVI.
Valdés Phillips venía de una exitosa carrera profesional asociada, principalmente, con los arquitectos Carlos García Huidobro, Carlos Bresciani y Fernando Castillo Velasco, con los cuales integraba la firma BVCH, responsable de obras emblemáticas como la Unidad Vecinal Portales (1954-1966), Conjunto Habitacional Matta Viel (1952), el Conjunto Habitacional Estadio en Arica (1956-1957), la Universidad Técnica del Estado (1957 y 1967) y las Torres de Tajamar (1967), diseñada junto con Luis Prieto Vial y construida en el mismo periodo en que los responsables del prototipo 1020, Orlando Sepúlveda y Jaime Perelman, junto con Vicente Bruna y Víctor Calvo, diseñaban y construían Remodelación República (1967-1968), otra obra emblemática del periodo.
Sepúlveda sitúa en la llegada de Valdés el origen de un encargo colectivo en el que los diversos equipos de diseño CORVI revisaron la obra de vivienda realizada anteriormente en el país, sistematizando aprendizajes y buscando dar un orden racionalizado a los procesos constructivos de las mismas. Como el mismo Sepúlveda lo relata:
“En esa época, llega como vicepresidente de la CORVI, un arquitecto. Generalmente los vicepresidentes no eran arquitectos, eran ingenieros, abogados (…) pero esa vez, llegó un arquitecto como vicepresidente, y dijo: 'yo quiero juntarme con todos los arquitectos proyectistas’. Y casi en una asamblea de cincuenta o sesenta arquitectos en la CORVI dijo: 'yo encuentro que la CORVI tiene una gran experiencia. Y yo creo que deberíamos aprovechar esa experiencia, y yo lo que propongo es que ustedes traigan de las distintas zonas del país los mejores proyectos, los colguemos y hagamos un análisis en conjunto. Yo lo que pienso, es que lo que debiéramos hacer es capitalizar esa experiencia en prototipos, en pocos prototipos, de manera de mejorar la calidad productiva de las viviendas. Pocos, pero de calidad. Así como la Citroneta. La Citroneta fue un éxito, en costo, en cantidad de producción, y después en difusión y venta. Es barata, y es fácil de repararla. Yo les pongo ese ejemplo, es como que Chile, un refrigerador. Aquí no hay refrigeradores para la persona que vive en Ñuñoa, para la que vive en Pudahuel y para la que vive en Las Condes, no. Los refrigeradores funcionan todos igual’. Ese fue el enfoque que él dio. Y entonces después de hacer un análisis, él dijo: ‘primero que nada, las viviendas son con bloques oriente y poniente. Segundo lugar, el pareo: los departamentos deben estar compartiendo muros de manera que eso economice la periferia de la vivienda. Si yo me pareo más con el vecino, significa que entre los dos estamos pagando la mitad de ese pareo. Juntar no solo la estructura sino también la instalación. La descarga de alcantarillado que sea uno para los dos departamentos, y así’”. (Entrevista O. Sepúlveda, 10 de octubre de 2018).
De esta manera, la racionalización se expresa como un sentido de composición y, más que una serie de indicaciones rígidas, aparece como un elemento interpretativamente flexible. Su definición sigue esa línea, tanto en los documentos observados como en el relato de los protagonistas. Sepúlveda, por ejemplo, relata dos versiones no disímiles, aunque tampoco exactamente iguales:
1) “Y para más remate, ese colega vicepresidente dijo: 'y yo quiero que los diseños sean racionalizados’ ¿Qué significaba que fueran racionalizados? Ahí fue la tarea más fuerte y más dura del desarrollo, porque hacer un anteproyecto arquitectónico es sencillo. Uno define el programa, y al definir el programa ahí está si hay bidé o no, si el clóset era más chico, si el dormitorio principal, etcétera, etcétera. Eso era el programa. Lo complejo fue coordinar el diseño de los detalles constructivos. Por ejemplo: los pavimentos, en el 1020, ¿de qué los vamos a hacer? Hagamos un listado, ¿de baldosa? sí, ¿todo el departamento con baldosas?, sí. Otra alternativa, que la baldosa vaya en el baño y cocina pero que el resto sea con parqué.” (Entrevista O. Sepúlveda, 10 de octubre de 2018).
2) “¿Qué significa racionalizado? entonces él empezó a decir: no, no, yo quiero que aquí no haya sobrantes, ni retazos ni desperdicios, no; que se aproveche al cien por ciento. Y que sea referido en general a todos los materiales que se necesitan para la vivienda, o sea, no solo los prefabricados modulados, sino que aquellos que no son prefabricados modulados, como la enfierradura, el cemento, qué sé yo”. (Entrevista O. Sepúlveda, 14 de noviembre de 2018).
Lo común en ambas versiones es que describe lo racionalizado como un sentido de diseño, centrado en un uso eficiente de los materiales constructivos. Su problema es mejorar la practicidad constructiva, y esto lo resuelve no malgastando material, más que diseñando con materialidades más baratas, lo cual también estaba sostenido por su propia cultura institucional, como sostiene Sepúlveda:
“En CORVI existía ese sentimiento de que no podíamos farrearnos la plata. Yo que trabajaba para las cajas de previsión, eran para un nivel medio, digno, cómodo, pero sin lujos (…) el compromiso que tenía CORVI, era que los proyectos no deberían utilizar materialidades que fueran de mayor costo que los razonables”. (Entrevista O. Sepúlveda, 14 de noviembre de 2018).
Así también lo expone otro documento de la época, Fundamentos y estructura del plan habitacional, elaborado por Hiram Quiroga y José Quintela en 1971, que plantea las estrategias que asumirá la CORVI dentro del gobierno de la Unidad Popular (CORVI, 1971). Dentro de estas, lo referido a la reducción de los costos de construcción está asociado con la subordinación del diseño a la coordinación modular, la racionalización, la sistematización y la evaluación para el diseño, lo cual orienta la construcción, la administración y las materialidades a emplear en las viviendas no industrializadas (mayores a 36 metros cuadrados).
Tal es el principal marco práctico que orienta a “Tipología de viviendas racionalizadas 1966-1972” donde la comunicación de las plantas, elevaciones y cortes de 10 modelos de vivienda extendida, de seis modelos de vivienda colectiva y de dos modelos de vivienda de emergencia que son presentados -indistintamente- como tipologías y como prototipos de vivienda, elaborados bajo el signo de la racionalización y con el fin de replicación masiva y seriada. Para José Quintela, este documento constituye “el testimonio arquitectónico del proceso de racionalización del Diseño de la Vivienda tipificada, para un uso repetitivo, serializado, a escala nacional” (CORVI, 1972).
Cabe considerar que, en el mismo año de elaboración del documento, se realizó en Chile la Exposición y Conferencia Internacional de la Vivienda (VIEXPO), donde concurrieron 16 países expositores y 31 países a la conferencia, además de destacados invitados extranjeros como Aldo van Eyck, Gui Bonsieppe, Henry Lefevbre, Manuel Castells, entre otros. El evento era de gran importancia para el gobierno de Allende, pues no solo ponía en valor su política de vivienda, sino también consolidaba su visión del desarrollismo a través de una propuesta urbana que incluía la realización de un concurso internacional para la remodelación de Santiago Centro, la principal zona urbana del país. La CORVI, aunque no participaba institucionalmente de su organización, previamente al evento publicó una separata en la revista AUCA, exponiendo ampliamente la productividad del modelo racionalizado (“Corvi en el centro”, 1972), lo que no hace el documento en cuestión, permitiendo situar su esfera comunicativa más en la practicidad del modelo que en su propaganda.
Las diferencias son elocuentes, sobre todo por la cercanía temporal de su elaboración. Firmada por el vicepresidente ejecutivo de CORVI, Hiram Quiroga, “CORVI en el centro de la producción” consta de quince páginas en las cuales se expone un diagnóstico de las políticas de vivienda donde sostiene que:
"[D]esde el periodo 1954-60, el diseño de las viviendas, que era necesario renovar para políticas masivas, se confió al sector privado a través de concursos públicos. Ello trajo consigo una renovación e incorporación de criterios urbanísticos más contemporáneos a la acción habitacional, y paralelamente, un deterioro de los equipos técnicos. En el sexenio 64-70 se dieron algunos pasos para corregir la anarquía de tipos de vivienda y se buscó una racionalización de ellos, como la vivienda 132, en extensión y el bloque 1020, en altura.” (MINVU, 1972, p. 42).
Dentro de ello, la política de la CORVI de Allende, centrada en el aumento del número de viviendas de interés social producidas, la absorción de mano de obra y en producir un impacto positivo en la activación de la industria, tiene una fuerte identidad técnica. Sus prioridades son los campamentos, la vivienda industrializada (donde ocupa un lugar especial la planta de bloques prefabricados KPD), los insumos y una política de diseño, como la expresada en “Tipología de viviendas racionalizadas 1966-1972”, que no entra ni en la política contingente ni en el argumento cuantitativo que sí despliega “CORVI en el centro de la producción”. Las cifras expuestas en el texto permiten apreciar que no todos los prototipos tuvieron producción en ese periodo y la distribución regional de los que sí fueron construidos (Tabla 3).

Carente de cifras similares, “Tipología de viviendas racionalizadas 1966-1972”, evidencia su distancia con una narrativa meramente productiva. Su métrica es particular, lo que se nota sobre todo cuando habla de superficies (Tabla 1) y materialidades (Tabla 2). Este sentido singular de su narrativa enmarca su practicidad, pues no habla a quienes darían importancia a los prototipos a partir de sus volúmenes producidos, sino a quienes tomarían nota de las indicaciones prácticas que contiene cada prototipo para su concretización. Habla a quienes pueden entender el gesto estandarizado del modelo racionalizado y lo pueden interpretar.
Para convencer a este público en particular, el documento en cuestión no necesita mencionar las unidades construidas sino las operaciones tipológicas implicadas en cada prototipo. No es totalmente claro en ello, es cierto: emplea la palabra tipología tanto para identificar cada prototipo como para indicar si, en teoría, las unidades constructivas van pareadas o aisladas, por ejemplo; pero su propia practicidad no radica en ser preciso, sino en consolidar una reflexión y un hacer tipológicos en torno a la vivienda social y a su escala arquitectónica. Este aspecto era necesario para superar las maneras fragmentarias con que las empresas constructoras habían respondido a la demanda de vivienda de las clases medias y trabajadoras, así como para sostener un uso repetitivo y serializado de los prototipos en la escala nacional (CORVI, 1972). En ese marco, la lógica racionalizada de los prototipos ayudaba a encarar la anarquía relativa que gobernaba tanto las elecciones formales de las viviendas como las controversias de escala local que ocurrían en los procesos de construcción, motivadas por las ausencias de detalles de las especificaciones. Como señalaba Sepúlveda:
“Muchas veces, los arquitectos hacían la especificación y no entraban en detalle, entonces la empresa constructora decía: “Bueno, el pavimento, sí, correcto, pero hay problema con los guardapolvos”. “Pero ¿cómo, si en la especificación dice que el pavimento es de parqué o entablado y se consulta un guardapolvo de una por dos?”. “Sí, pero no se dice cómo se pega”. “No, pero sí dice que se fijará con clavo de dos y media”. “Sí, pero no dice a qué distancia van los clavos. ¿A qué distancia pongo los clavos? yo pongo los guardapolvos y pongo un clavo y nada más. ¿O usted, quiere que le ponga clavos a un metro, o a cincuenta centímetros?, entonces, dígame”. “No, ahí los clavos tendrían que ir a cincuenta centímetros”. “Ah, pero eso entonces es un extraordinario”. Entonces la experiencia de la CORVI dijo: “Ya, correcto, se hace una especificación. Pero además se dice que la ejecución de las obras debe ser de acuerdo a la Ordenanza General de Construcciones y Urbanización, y si ahí hay artículos, las obras tienen que hacerse de acuerdo a las normas del arte”. (Entrevista O. Sepúlveda, 10 de octubre de 2018).
Lo anterior, que busca reflejar un tipo de controversia en torno a los costos de la materialidad y, por tanto, acerca de la ganancia de las empresas constructoras, grafica también aspectos de especulación material que podían ser resueltos mediante una estandarización del proceso. La indicación racionalizada colabora con ello, pero requiere además de una perspectiva útil que lleve ese tipo de reflexividad hacia las escalas locales o constructivas, una versión de las “normas del arte” que colabore con la practicidad de la política de racionalización impulsada (Figura 4).

Conclusión
“Tipología de viviendas racionalizadas 1966-1972”, da cuenta del modo como CORVI buscó “corregir la anarquía de tipos de vivienda (mediante) una racionalización de ellos” (Quiroga, 1972, p. 42). No diferencia (ni menciona) cuáles de estos diseños fueron exitosos productivamente y cuáles no. Hoy sabemos que las tipologías de vivienda 132 y los colectivos en altura 1010 y 1020 fueron construidas en todo el país y que los colectivos 1040 y 1050 no alcanzaron a ser construidos, pero este tipo de productividad no incumbe al texto. Su relato expone cómo se involucraron estándares en el diseño de vivienda de interés social chilena, enunciando un escenario sociotécnico, pero no sus resultados concretos.
Las tres premisas seguidas para el análisis de “Tipología de viviendas racionalizadas 1966-1972”, han permitido abordar su condición productiva, performativa y contingente, y su descripción ha permitido considerar que este documento se articuló en un espacio relacional donde confluyen lo técnico, lo gráfico y lo político como lenguajes de mundos diferentes que buscan cooperar entre sí. Se trata de una inter-estructura capaz de sostener el trabajo conjunto de estos mundos distintos (Suboticki y Sørensen, 2020). Para esto recurre a estrategias híbridas, algunas propias de las políticas del conocimiento experto -como las anotaciones métricas que dan la idea (pero no el resultado) de precisión (Forsyth, 2019), y otras que son parte del mundo de la experiencia, como su lenguaje impreso y material. Se trata de un objeto reflexivo, abocado a las situaciones relacionales que enfrenta y que, para poder organizar una posición entre los mundos de prácticas a los que apela, debe tomar una posición indeterminada entre ellos, no como un truco, sino como una estrategia (Star, 2010).
Describir la forma en que el documento produce las tipologías permitió caracterizar su estrategia epistemológica como un acto demostrativo, además de objetual, de lo que el discurso racionalizador implicaba como modelo práctico. Por su parte, abordar el modo en que este performa la estandarización permitió observar que las medidas expresadas en el documento no están proporcionadas de acuerdo a sus dibujos; esto corrobora la idea de que su practicidad no se basa en replicar propiamente las tipologías, sino en trasmitir la idea de que puede hacerse. Finalmente, considerar los aspectos contingentes que inciden en su estrategia de comunicación nos muestra a las tipologías como instrumentos técnicos útiles para desplazar modos de orden a través de la practicidad, promoviendo la estandarización en la medida en que acotan las soluciones prácticas posibles. El conjunto de aspectos anteriores nos propone como conclusión que la política movilizada por los objetos no requiere de ser precisa, conceptual o técnicamente, sino solo suficientemente buena para desplazar sentidos prácticos hacia otras comunidades.
Referencias bibliográficas
Anguita, R. (2012). La vivienda, imagen de una ideología social. Documentos de la revista AUCA, 1965-1986. (Tesis doctoral, Universitat Politècnica de Catalunya, España). http://hdl.handle.net/2117/94798
Argan, G. C. (1983). Tipología. Summarios, (71), 2-14.
Becerra, J. (2016). Vivienda y ciudad, un único proyecto : la unidad vecinal Exequiel González Cortés, 1960-1964. (Tesis doctoral, Universitat Politècnica de Catalunya, España). http://hdl.handle.net/2117/96117
Benévolo, L. (1963). Historia de la arquitectura moderna. Taurus
Corporación de la Vivienda. (1969). La Corporación de la Vivienda. Oficina de Relaciones Públicas CORVI.
______ (1971). Fundamentos y estructura del plan habitacional.
______ (1972). Tipología de viviendas racionalizadas 1966-1972. Subdepartamento de Diseño CORVI. https://catalogo.minvu.cl/cgi-bin/koha/opac-retrieve-file.pl?id=e01c8b0c4fc725c3a88b56be6dddb72a
Corvi en el centro de la construcción 60 mil viviendas. (1972). Auca: Arquitectura Urbanismo Construcción Arte, (23), 39-66. https://revistaauca.uchile.cl/index.php/AUCA/article/view/59334
De Laet, M. y Mol, A. (2000). The Zimbabwe Bush pump. Social Studies of Science, 30(2), 225-263. https://doi.org/10.1177/030631200030002002
Durand, J. N. L. (2000). Précis of the lectures on architecture. The Getty Research Institute.
Forsyth, T. (2019). Who shapes the politics of expertise? Co-production and authoritative knowledge in Thailand’s political forests. Antipode, 52(4), 1039-1059. https://doi.org/10.1111/anti.12545
Gámez, V. (1999). Algunos antecedentes para el estudio de la doctrina habitacional de la Corporación de la Vivienda. Revista INVI, 14(38), 27-58.
Graaf, R. d. (2017). Four walls and a roof: The complex nature of a simple profession. Harvard University Press
Joerges, B. (1999). Do politics have artefacts? Social Studies of Science , 29(3), 411-431. https://doi.org/10.1177/030631299029003004
Lampland, M. y Star, S. L. (Eds.). (2009). Standards and their stories: How quantifying, classifying, and formalizing practices shape everyday life. Cornell University Press
Law, J. y Mol, A. (2008). The actor-enacted: Cumbrian Sheep in 2001. En C. Knappett y L. Malafouris (Eds.), Material agency, (pp. 57-77). Springer. https://doi.org/10.1007/978-0-387-74711-8_4
______ (2020). Words to think with: An introduction. The Sociological Review, 68(2), 263-282. https://doi.org/10.1177/0038026120905452
Le Corbusier. (1953). El modulor. Ensayo sobre una medida armónica a la escala humana aplicable universalmente a la arquitectura y a la mecánica. Poseidón.
Martí, C. (2005). La cimbra y el arco. Fundación Caja de Arquitectos.
Moneo, R. (1978). On typology. Oppositions: Journal for Ideas and Criticism in Architecture, (13), 22-45.
Neufert, E. (1995). Arte de proyectar en arquitectura. Gustavo Gili.
Quiroga, H. (1972). Conclusiones. En Corvi en el centro de la construcción 60 mil viviendas. Auca: Arquitectura Urbanismo Construcción Arte , (23), 64-65. https://revistaauca.uchile.cl/index.php/AUCA/article/view/59334
Raposo Moyano, A. (1998). La racionalidad tecno-instrumental en el accionar político-administrativo del Estado: elementos para un modelo descriptivo. Revista INVI, 13(35), 116-138.
Star, S. L. (2010). This is not a boundary object: Reflections on the origin of a concept. Science, Technology, & Human Values, 35(5), 601-617. https://doi.org/10.1177/0162243910377624
Suboticki, I. y Sørensen, K. H. (2020). Designing and domesticating an interstructure: Exploring the practices and the politics of an elevator for cyclists. Urban Studies, 58(6), 1229-1244. https://doi.org/10.1177/0042098020910334
Winner, L. (1980). Do artifacts have politics? Daedalus, 109(1), 121-136. http://www.jstor.org/stable/20024652
Woolgar, S. y Cooper, G. (1999). Do artefacts have ambivalence. Social Studies of Science , 29(3), 433-449. https://doi.org/10.1177/030631299029003005
Notas