ESTUDOS DE CULTURA MATERIAL
Recepção: 24 Julho 2018
Aprovação: 20 Fevereiro 2019
DOI: 10.1590/1982-02672019v27e12
RESUMO: Este artigo analisou a arquitetura, os ornamentos e utensílios presentes no Palácio Velho, primeira casa de governadores instalada em Vila Rica e prédio que serviu por residência oficial dos capitães-generais dom Lourenço de Almeida (1721-1732) e Conde das Galvêas. Avaliou-se também a casa que abrigou a morada do capitão-mor de Vila Rica Henrique Lopes de Araújo, anfitrião e benfeitor, residente em prédio vizinho e integrado ao palácio. Demonstra-se que, apesar de vir a transformar-se num espaço cortesão, adaptado às exigências da casa nobre ou senhorial, o Palácio Velho manteve compromissos específicos com a realidade colonial, manifestados, por exemplo, na presença marcante da escravidão, que viria a determinar, aliás, o futuro daquela propriedade.
PALAVRAS-CHAVE: Palácio, Corte colonial, Minas Gerais.
ABSTRACT: This article analyzed the architecture, ornaments and utensils present in the Ouro Preto Old Palace, the first house of governors installed in Vila Rica and a building that served as the official residence of the Dom Lourenço de Almeida (1721-1732) and Conde das Galvêas captains-generals. The house of the Vila Rica main captain Henrique Lopes de Araújo, host and benefactor, resident in a neighboring and integrated building to the palace, was also evaluated. Although the Ouro Preto Old Palace has became a courtier space, adapted to the demands of the noble or seigniorial house, it maintained specific characteristics of the colonial reality, manifested, for example, in the presence of the slavery, which will determine, furthermore, the future of that property.
KEYWORDS: Palace, Colonial Court, Minas Gerais.
Após debelar a Revolta de Vila Rica em 1720, a Coroa portuguesa modificou a forma de sua presença política nas Minas. Além de desmembrar o território de São Paulo, até então anexo à capitania de Minas de Ouro, D. João V determinou que a posse dos governadores mineiros deveria ocorrer na vila há pouco insurgente, a defini-la, portanto, como “cabeça” da nova unidade política. Antes disso, os capitães-generais designados para a extinta capitania de São Paulo e Minas de Ouro haviam tomado diferentes endereços, distribuídos, em geral, pela macrorregião das Minas Gerais, extensa área a abranger diversos arraiais integrados ou próximos a Vila Rica e Vila do Ribeirão do Carmo. Desde o mandato de dom Brás Baltasar da Silveira, todavia, estabelecera-se a residência oficial na Vila do Carmo, estrategicamente escolhida por sede em função de sua neutralidade (ou “lealdade”) durante a Guerra dos Emboabas, quando os moradores locais recusaram submeter-se ao governo forasteiro de Manuel Nunes Viana. Estabelecidos num imponente palácio de dois pavimentos à rua Direita, próximo da matriz, o qual mandou erigir Manuel Antunes de Lemos, reinol que constou entre os pioneiros locais, os representantes régios residiram nesse imóvel até agosto de 1721.
Não obstante, eles eram comumente vistos em Ouro Preto, onde pernoitavam ou permaneciam por curtos períodos. Quando da chegada de dom Pedro de Almeida, Conde de Assumar, em dezembro de 1717, um rico minerador chamado Henrique Lopes de Araújo, morador na encosta do afamado Morro de Tapanhuacanga, no arraial de Antônio Dias, em Vila Rica, ofertou um luxuoso palácio, construído ao lado da casa do próprio anfitrião, com a finalidade de que Assumar viesse a instalar ali a sua moradia. Preterido àquela altura, porque este governador preferiu ocupar o imóvel no Carmo, o palácio de Henrique Lopes viria a ser, enfim, escolhido como residência oficial pelo sucessor dom Lourenço de Almeida, que lá residiu entre agosto de 1721 e setembro de 1732. Índice importante do processo de centralização política de Minas Gerais, o sedentarismo deste governador no sobredito palácio foi surpreendente. Mesmo sediado em Vila Rica, as constantes assistências no Carmo perduraram até 1723, quando ali se hospedou entre 24 de agosto a 13 de outubro. Foi a sua última estadia de fôlego nessa vila. A partir daí e até o fim do mandato, o governador fixou residência definitiva em Vila Rica. Dentro em pouco, inclusive as visitas esporádicas à vila vizinha cessaram. As duas últimas hospedagens no Carmo ocorreram de 7 a 9 de maio e entre 16 e 17 de junho de 1724.2 Assim, de meados de 1723 até o segundo semestre de 1732, isto é, por ininterruptos nove anos, dom Lourenço de Almeida residiu em Vila Rica e, após a derradeira visita ao Carmo, em junho de 1724, jamais deixou os limites daquela urbe mineradora.3 Tratou-se da mais longa estadia de um governador num só local desde a povoação do território e, quiçá, tenha sido a mais longa estadia desse tipo na história da capitania de Minas Gerais em todo o período colonial.
Em setembro de 1732, assumiu o sucessor Conde das Galvêas, último governador a residir junto ao capitão-mor Henrique Lopes de Araújo. Ao longo de seus dois anos e meio de mandato, Galvêas jamais deixou o palácio. Inexistem registros de jornada às demais comarcas e, talvez, sequer os limites do termo de Vila Rica tenham sido vencidos.4 Foi a primeira vez que um governador se manteve fixo numa única vila, abdicando do ritual de entrada junto a outros núcleos populacionais da capitania. Com a morte do anfitrião, em julho de 1733, foi garantida a permanência do Conde no palácio até o término da gestão, que findou em março de 1735.
Este artigo analisa a arquitetura, os ornamentos e utensílios presentes no palácio que abrigou, por quase 14 anos, a principal autoridade política da capitania. Também será alvo de interesse a casa que pertenceu ao anfitrião e benfeitor, capitão-mor Henrique Lopes de Araújo. Integradas num mesmo complexo político, militar e econômico, as edificações citadas situavam-se em extenso terreno aurífero, onde trabalhou a mais robusta escravaria de Vila Rica, que chegou a reunir cerca de 80 cativos. Ao mesmo tempo, fosse pela função marcial desempenhada pelo construtor, fosse pela exigência defensória adquirida com a residência do capitão-general, o palácio desenvolveu estruturas bélicas, como muralhas e seteiras, a proteger todo o complexo. Nesse sentido, tanto a casa de Henrique Lopes quanto o palácio onde morou dom Lourenço participaram do mesmo ambiente e, por isso, devem ser avaliados conjuntamente, muito embora os imóveis detivessem, como veremos, diferentes funcionalidades.
ICONOGRAFIA DO PALÁCIO VELHO
O palácio onde residiram dom Lourenço de Almeida e o Conde das Galvêas deixou de servir por aposentadoria de capitães-generais a partir de 1735. Depois disso, a edificação passou a ser conhecida pela designação “Palácio Velho”. Tendo resistido razoavelmente intacta até princípios do século XIX, ela sofreu acentuado processo de arruinamento, já completamente consumado na centúria seguinte.5
Dispomos de algumas representações iconográficas - todas datadas do momento em que o processo de arruinamento se iniciava, no primeiro quarto do oitocentos. A mais remota data de um século posterior à fundação do edifício. Trata-se da aquarela publicada na obra de Johann Emanuel Pohl, mas editada por Thomas Ender.6 Nessa aquarela, apresenta-se vista da Freguesia de Antônio Dias, desde a Praça de Santa Quitéria, no canto esquerdo, até a igreja de Santa Efigênia, à direita, tendo ao centro a Matriz de Nossa Senhora da Conceição (figuras 1, 2 e 3). Apesar de alguma imprecisão, manifestada, sobretudo, na caracterização geográfica das margens do ribeiro de Antônio Dias, a imagem oferece vista panorâmica do Palácio Velho, descrevendo, com riqueza de detalhes, os edifícios e os elementos construtivos existentes no complexo arquitetônico. Observando os extratos, é possível divisar, no canto esquerdo da área frisada na figura 2 e com friso em vermelho na figura 3, a antiga casa de morada do capitão-mor Henrique Lopes. Por sua vez, ao centro da figura 3, com friso em azul, está o Palácio Velho, edifício de maior dimensão, a ostentar seis ou sete janelas frontais e telhado duas águas. Mais abaixo, com friso em verde, uma casa pequena, aparentemente anexa ou interligada ao palácio, que pode ter sido correspondente à secretaria de governo, e ainda outras estruturas menores, retratadas no declive do morro, alusivas a possíveis senzalas ou casas rústicas.



Outra imagem do mesmo período foi o Mapa de Vila Rica, de autoria atribuída a Manoel Ribeiro Guimarães, a mais antiga representação cartográfica remanescente da capital mineira (figura 4), a descrever a implantação urbana das propriedades então situadas no complexo do Palácio Velho.7

Observando-se o extrato contido na figura 5, especialmente em sua área frisada, notam-se no interior do Palácio Velho cinco edificações, com suas respectivas áreas fundiárias devidamente demarcadas com muros de pedra seca. É possível estimar que as duas propriedades situadas ao centro da área destacada correspondessem respectivamente à antiga casa de Henrique Lopes (à esquerda) e ao Palácio Velho propriamente dito (à direita) a deter a maior área cercada entre muros.

Por fim, a terceira iconografia de que dispomos aludiu ao surpreendente uso dado ao palácio pelos irmãos da Confraria de Nossa Senhora do Rosário do Alto da Cruz, que realizaram, em 1825, a sua festa de coroação de reis negros, em cerimônia sucedida defronte ao antigo prédio palaciano e que foi retratada em litografia do pintor alemão J. Rugendas, numa das mais singulares e alegóricas pranchas de Viagem Pitoresca através do Brasil (figura 6). Alessandro Dell’Aira comprovou que essa litografia de Rugendas retratara aquela festa confrarial e fora ambientada, precisamente, no interior do Palácio Velho, em Ouro Preto. Rugendas visitara o Brasil entre março de 1822 e maio de 1825, como participante da expedição chefiada por Georg Heinrich von Langsdorff, à qual se manteve vinculado até novembro de 1824, quando, a caminho do Rio de Janeiro, se desentendeu com o grupo de expedicionários e retornou a Ouro Preto, onde ficou até, pelo menos, fevereiro do ano seguinte. Portanto, o viajante esteve na capital mineira em dois momentos quase contíguos, entre julho e agosto de 1824 e, no retorno, de novembro até o ano novo. Nessa última ocasião, possivelmente na primeira quinzena de janeiro de 1825, presenciou a festa de coroação de rei e rainha negros eleitos pela confraria do Rosário da Freguesia de Antônio Dias. Inserida na quarta parte da obra Viagem Pitoresca através do Brasil, publicada em francês e em alemão, em 1835, a litografia nomeada “Fête de S.te Rosalie, Patrone des Nègres” não tinha correspondência entre título e conteúdo. Com base em convincente conjunto de evidências, Alessandro Dell’Aira demonstrou que essa prancha, por ter sido descrita com didascália equívoca, com mote festivo atribuído a Santa Rosália, tivera identificação igualmente errônea, associada a Nossa Senhora do Rosário, quando, na verdade, reportava-se a uma festa em homenagem a Santa Efigênia, cujo cenário estava situado no interior do Palácio Velho. Além de considerar aspectos geomorfológicos, como a feição e a conformação do lugar, o posicionamento da igreja e da ladeira imediata ao templo, o autor identificou flâmula com a iconografia votiva de Santa Efigênia, a portar ramo de palma à mão direita, prova que encerrou a questão.8

É impossível saber se Rugendas conhecia algo a respeito da história da propriedade onde se encontrava e tampouco se tinha informações sobre por que a festa estava a ocorrer naquele local. Fato é que o pintor optou por referenciar o palácio e inseriu representação parcial do prédio, mostrado de esguelha, a exibir quatro janelas, parte da fachada frontal e o telhado duas águas, recoberto com telhas de barro, formato de cobertura coincidente com a da aquarela feita por Thomas Ender. A vista de árvores e arbustos e os matos crescidos à frente da edificação acusam abandono e arruinamento. As cavidades das janelas estão todas abertas, e não há vestígio das folhas de madeira que deveriam preservar o interior. Muito próxima ao local onde a festa se dá e a proporcionar vista privilegiada do evento de um ponto mais elevado, a casa, no entanto, está vazia e ninguém optou por assistir à cena a partir de uma das janelas do prédio, à revelia da superlotação e da pouca visibilidade obtida a partir de baixo - o que levou alguns foliões a se posicionar num elevado à esquerda, para melhor ver o que se passava no centro da imagem, mirada que a mulher em saudação conseguiu desfrutar ao ser suspensa por um ajudante. Sem dúvida, tratava-se, já, de uma ruína, dificilmente habitada por morador. Sem receber reparos e cuidados de um inquilino, sob o efeito de intempéries e sendo mesmo avariada pelo afã de exploradores em busca de ouro, como informou Eschwege (1979), a casa estava exposta ao relento e ao rigor do sol e, por isso, seu interior haveria de apresentar condições insalubres.
Muito antes de vir a ser ressignificado por essa comunidade escrava, autora e personagem principal do mito de Chico Rei, o Palácio Velho, em seus áureos tempos, abrigou nobres lusitanos que representavam, em nível local, o poderio régio e o domínio da monarquia portuguesa. Essa propriedade assumiu, por conta disso, diversos compromissos caros à sociedade de Antigo Regime. Tornou-se um ambiente cortesão, frequentado por nobres governadores e funcionários ligados à administração portuguesa. Porém, ali também viveram e trabalharam escravos e forros submetidos a condições de exploração diversas, próprias da sociedade colonial, às quais reagiram e resistiram de distintas maneiras. Essa ambivalência se tornou evidente nos arranjos arquitetônicos e domésticos presentes no palácio e na casa senhorial do anfitrião.
A CASA DE HENRIQUE LOPES
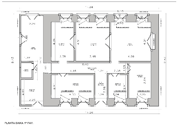
As casas de Henrique Lopes eram isentas junto à câmara e “nunca pagaram foro por serem feitas pelos primeiros povoadores destas Minas, tempo em que ainda não havia Senado”.9 A residência do minerador foi erguida, possivelmente, ainda na primeira década do século XVIII e devia constituir exemplar arquitetônico requintado para a época. Cinco (ou seis) cômodos - desconsiderando a cozinha, alheia à composição original - formam a planta, distribuída irregular e assimetricamente por cerca de 110 m² (figura 7). As paredes limítrofes, formadoras do retângulo principal, são de alvenaria de pedra, e as divisórias internas, de pau a pique. Há janelas de peitoril, dotadas de conversadeiras de pedra, fechamento de calha, forros de saia e camisa, piso de tabuado corrido com tábuas largas e soleiras de pedra. O esmero da construção mede-se no fato de que a casa se mantém, ainda hoje, de pé, razoavelmente intacta.10

Assentada sobre a pedra do Tapanhuacanga, a estrutura original tem porta de entrada voltada para o aclive, com duas janelas de cada lado. Ao fundo, cinco janelas dão vista para o declive do morro, com porão abaixo. Um corredor perpendicular à porta de entrada dá acesso aos quartos, encerrando-se em sala ampla, com um oratório anexo à parede. No porão, abaixo do assoalho, situava-se uma das senzalas, com uma única porta, voltada para o declive. A grossura e a técnica de construção da base e das paredes externas, feitas de pedra, são as mesmas percebidas nas ruínas do palácio e não deixam dúvida quanto à ancestralidade do edifício (figuras 8, 9 e 10).


A planta da casa e a lógica de sua implantação espacial exemplificam o tipo arquitetônico que se pode classificar “emboaba”, se contrastado à arquitetura “bandeirista”, marca das construções residenciais de origem paulista erguidas a partir do século XVII. Segundo Luis Saia, as residências coloniais sertanistas caracterizar-se-iam pelo espaço retangular, em planta onde se distinguiam três faixas. A primeira, de fronteira, compunha-se do quarto de hóspedes e da capela, nas duas extremidades, e de um alpendre, ao centro, constituindo ampla varanda, à frente da casa. A segunda, já no interior do domicílio, detinha uma sala central, núcleo do convívio doméstico e comunitário - possível herança de hábito social indígena - e os quartos dispostos lateralmente. Por fim, aos fundos, podia surgir compartimento de serviço (ver figura 11).11
Em geral situados em terrenos planos, a certa distância dos arraiais mais densamente povoados, as casas bandeiristas assumiam caráter nitidamente rural, acentuado, na planta, pela presença marcante da varanda, onde os paulistas exibiam armas e séquitos de índios escravizados. Segundo José Álvares de Oliveira, os naturais de Serra Acima “por se afastarem da vizinhança dos homens” costumavam se arranchar “pelo arrabalde em moradas de espaçosas varandas a fim de ostentarem os seus grandes cabides de armas”.12 Nas proximidades de Ouro Preto, no antigo arraial de São Gonçalo do Tijuco (atual distrito de Amarantina), há exemplar arquitetônico coevo, a sugerir que construções do gênero não deviam ser ignoradas em Vila Rica. Em São Gonçalo do Tijuco, a presença de carijós (escravos silvícolas em geral pertencentes a senhores de procedência paulista) em período avançado do setecentos, já na década de 1730 - quando a escravidão indígena se tornava cada vez mais rara em Minas - conforme atestam os registros paroquiais da capela local, comprovam a filiação bandeirista do imóvel.13
A casa de Henrique Lopes, ao contrário, inseria-se no epicentro da atividade mineradora e em um dos arraiais mais densamente povoados das Minas, a reforçar sua função urbana. Pode-se acreditar, igualmente, que a localização do imóvel, postado na encosta do morro, distante do vale, onde nadava o córrego de Antônio Dias, filiava-se ao momento em que a mineração de ouro teria abandonado o leito dos rios para subir morro acima, em busca das jazidas que se incrustavam na pedra, ainda alheias à erosão, na primeira década do século XVIII. A passagem da faiscação à mineração por talho aberto, marco na história da exploração aurífera das Minas, coincide com a maior estabilidade dos núcleos de povoamento, processo refletido no imóvel de Henrique Lopes, erigido sintomaticamente ao lado de uma mina de ouro, escavada na rocha. Essa tipologia de ocupação, destoante da lógica bandeirista, acabou por generalizar-se em Vila Rica, sobretudo com a diáspora paulista, após a Guerra dos Emboabas, quando indivíduos oriundos do Planalto de Piratininga abandonaram as principais minas de Ouro Preto ou ficaram confinados a espaços específicos da vila.14 Os distintos estilos arquitetônicos expressavam, segundo Russel-Wood, “as diferenças culturais entre emboabas e paulistas”, capazes de individualizar estes últimos perante outros súditos do rei português, transformando-os num “grupo étnico” específico.15
A partir do caso de Henrique Lopes de Araújo é possível propor novas relações de forças no processo de povoamento e de urbanização das Minas. Se, por um lado, como há muito se vem afirmando, o desbravamento e a ocupação inicial das áreas auríferas foram encetados, sobretudo, por particulares e arrivistas, com tímida participação do Estado metropolitano, gênese aventureira que resultou no formato “desordenado” das povoações, livremente adaptadas ao meio geográfico acidentado e infensas ao estabelecimento de traçados urbanos regulares, previamente organizados;16 de outro, trabalhos recentes têm enfatizado a célere institucionalização daquele espaço colonial, rapidamente colocado sob a jurisdição real, transformando partes indômitas do “sertão” em arraiais, distritos e vilas administradas por súditos do soberano português. Indubitavelmente, a delimitação de termos de vilas e comarcas e a criação de câmaras municipais, entre outros dispositivos importantes, como a formação de freguesias e a colação de paróquias, modelaram e classificaram as áreas mineradoras conforme padrões jurídicos e políticos prevalecentes no império português. A espontaneidade das Minas não excluíra o cálculo e o controle políticos e a sua adequação aos princípios norteadores do urbanismo lusitano de Antigo Regime.17
OS PALÁCIOS VELHOS
Diferentemente da moradia do capitão-mor, casa ainda hoje íntegra, o Palácio Velho só existe em ruínas. Ao avaliar as estruturas remanescentes, é possível constatar a grandiosidade do prédio, que se destaca por suas dimensões avantajadas para a época e o lugar. Se a casa de Henrique Lopes tinha pouco mais de 110 m² de área, a residência oficial estendia-se por cerca de 460 m² de área construída no piso principal, espaço mais de quatro vezes superior ao ocupado pelo prédio vizinho (figura 12). Quando o arquiteto Ivo Porto de Menezes elaborou planta das ruínas, em 1956, algumas estruturas de pedra, como três janelas à direita e uma aos fundos, ainda estavam de pé (figura 13).

Os limites atuais de ambas as propriedades deixam entrever apenas parte do que se constituiu, sem dúvida, num complexo arquitetônico de dimensões originais bem maiores. Até 1733, inexistiram muros ou divisórias internas entre a casa do capitão-mor e o palácio, só posteriormente inseridos em atendimento à cláusula testamental de Henrique Lopes. Ao lado do palácio, uma segunda casa, que servia possivelmente por secretaria de governo, deixou de existir. Abaixo dos prédios principais fixavam-se senzalas e casas de moradia de escravos. A propriedade estendia-se até as margens do córrego, no vale de Antônio Dias, subindo encosta acima até o Alto de Santa Efigênia ou do Padre Faria.
Comparado ao palácio da Vila do Carmo, que abrigara os antecessores dom Brás da Silveira e dom Pedro de Almeida, a nova sede era maior e mais dispendiosa. Dispomos de dados interessantes a respeito desse edifício preterido. Ele situava-se à Rua Direita, a 90 braças da matriz. Teria sido a primeira edificação coberta com telhas no Ribeirão. Salomão de Vasconcelos notou, com perspicácia, que esse prédio foi retratado no Mapa das minas de ouro e São Paulo e costa do mar, talvez a mais remota representação cartográfica das Minas, elaborada por volta de 1717, posteriormente à ereção da vila de Pitangui (1715), mas antes da fundação da vila de São José Del Rei (1718).18 Um extrato do Mapa das minas... traz a mais antiga vista da Vila de Nossa Senhora do Carmo, então sede política da capitania de São Paulo e Minas de Ouro (figuras 16 e 17). Nessa imagem, o palácio constitui o único sobrado então existente no traçado urbano do arraial. Retratado ao centro da imagem, em destaque, o prédio é, nela, sem dúvida, o elemento organizador e estruturador do espaço político da Vila, em função do qual se dispõem o casario e até mesmo a igreja matriz. No piso térreo existiam três portas para a rua e, no superior, seis portais abriam-se como varandas internas.




Dispomos de detalhada descrição e avaliação desse palácio, realizada no momento em que a câmara de Ribeirão adquiriu o imóvel, em 1715, para em seguida emprestá-lo a dom Brás, que já ali residia. Além do rol de seus componentes, fizeram-se estimativas do valor dos elementos arquitetônicos, a fim de que o preço final do palácio pudesse ser computado. Dentre os elementos estruturais, a edificação principal tinha cobertura de telhas, com armação de madeira; paredes de taipa de pilão, interna e externamente; apenas uma sala do pavimento superior fora erguida com tijolos. Cinquenta vigas de madeira garantiam a sustentação. Cento e quarenta e duas tábuas formavam o assoalho de dois pavimentos. Vinte e cinco portais se comunicavam com diversos cômodos e espaços da propriedade.
No primeiro pavimento, situavam-se uma cozinha, com três janelas; uma sala grande ou loja, com quatro janelas; três portais se abriam para a rua e outras quatro portas com fechaduras limitavam os cômodos internos. Aos fundos, uma escada, ornamentada com grades de ferro, dava acesso à varanda e ao piso superior, onde existia número elevado de cômodos, entre os quais uma alcova, todos cobertos com forros e esteiras. Onze portas grandes, quatro delas com ferragens, delimitavam os acessos internos e a saída para a varanda. Esta apresentava esmerado acabamento: assoalho e forro com feitio e pregos, quatorze esteiras e seis frechais de sustentação. Outra escada descia para o pátio, situado possivelmente aos fundos da estrutura principal. Nesse espaço, existia outra cozinha, isolada, coberta de telhas, forrada, assoalhada e com duas portas. Adiante, enfim, restavam os espaços destinados aos trabalhadores escravizados e aos animais: uma estribaria, uma cozinha rústica e uma senzala grande. Todo o quintal aos fundos achava-se cercado, com uma única saída. Foram poucos os móveis listados - dois bancos de encosto e um bofete - talvez porque os utensílios domésticos pertencessem ao governador ou ao proprietário e, assim, não tenham sido levados a rol.
Não se tratava, sem dúvida, de um sobrado qualquer. O primeiro piso, no nível da rua, abria-se em três portas de entrada, com acesso à loja. Esse espaço, construído possivelmente para abrigar um ponto comercial, apresentava menor requinte ornamental, se comparado ao pavimento superior, destinado aos aposentos domésticos senhoriais. Tal disparidade refletiu-se na avaliação dos componentes arquitetônicos. Desconsiderando-se os itens estruturais mais caros da edificação (paredes, telhado, vigas e assoalho), o conjunto de elementos presentes na loja foi orçado, na apreciação dos carpinteiros responsáveis, em 267 oitavas de ouro. Já o segundo piso atingiu valor três vezes maior, estimado em 901 oitavas de ouro, excluindo-se uma cozinha equipada com cobertura de telhas, forro e assoalho, fixada no pátio, avaliada em 250 oitavas de ouro, cujo propósito seria o atendimento específico do sobrado. Por fim, aos fundos, os aposentos destinados às pessoas escravizadas e aos animais eram os mais modestos, calculados em 130 oitavas de ouro.
Chamam a atenção as cifras caríssimas. Paredes e telhado somavam 5.200 oitavas, cerca de 70% do preço. O valor total da propriedade alcançou o montante de 7.452 oitavas, quase duas arrobas de ouro, conforme descrito no quadro 1. Traduzido em dinheiro, esse cômputo podia atingir até 11 contos de réis, uma fortuna considerável. Tal estimativa confirma, na prática, os prognósticos sobre os elevados custos de materiais construtivos e de mão de obra especializada no mercado mineiro, sobretudo nas primeiras décadas do século XVIII.

Embora não contemos com dados semelhantes relativamente ao Palácio Velho de Ouro Preto, restaram pareceres esparsos a respeito dos méritos deste prédio ou a relatar episódios relevantes nele ocorridos. A fonte mais importante nesse sentido foi o diário de viagem de dom Pedro de Almeida, que narrou a chegada deste governador a Vila Rica, em 1º de dezembro de 1717, e a estadia de aproximadamente 21 dias junto a Henrique Lopes. O trecho abaixo caracterizou o ritual de recepção à autoridade portuguesa e registrou impressões sobre o edifício palaciano:
Tornou sua excelência a montar a cavalo para ir jantar à casa do capitão-mor Henrique Lopes, o qual para esta ocasião fez umas casas, que lhe custaram mais de três arrobas de ouro, só a fim (como dizem muitos) de que sua excelência lhe confirmasse a sua patente. Podendo com menos dispêndio ficar airoso se tinha crido a muitas pessoas, que o aconselhavam, dizendo-lhe que hospedasse a sua excelência nas casas em que morava, e que em lugar de três arrobas que havia de gastar, que pusesse uma por fruta na mesa; mas não puderam acabar com ele isto; por que é incapaz de se lhe dar conselho e aceitá-lo. Comprou também para esta função três negros charameleiros, que até custaram quatro mil cruzados. As casas estavam muito bem ornadas com cortinas nas portas de damasco carmesim e as cadeiras e cama do mesmo; e todos estes aparatos deu a sua excelência por adorno do seu Palácio da Vila do Ribeirão. Vestiu seis negros para pajens, e os quatro charameleiros de pano berne, forros de espernegam da mesma cor, e no primeiro dia que chegou sua excelência apareceu com três vestidos e pela noite com um de pano negro, ricos todos, mas no seu mal e desproporcionado feitio pareciam uns trapos, sempre andou com um colar no chapéu e seu broche, e finalmente tão ridículo em tudo que era o objeto de sua excelência. É natural de Alhandra, e casado na mesma vila. No seu princípio foi taberneiro e hoje se acha rico sem filho, nem filha, que o herde, e ele já de uma idade avançada. Na paragem onde fez as casas teve tão má eleição, como se podia esperar do seu rústico entendimento; porque estão ao pé do morro chamado de Pascoal da Silva, cujas vertentes de água as fazem tão úmidas que é prejudicial à saúde o morar muito tempo nelas, e com gastar tanto ouro, não teve habilidade para escolher melhor paragem havendo muitas na mesma vila. Estas casas a muito valor em Lisboa poderiam custar seis para sete mil cruzados, e ao dito capitão-mor lhe estiveram em quarenta e cinco. Tal é carestia desta terra e tais são os jornais, que um oficial carpinteiro ou de outro qualquer ofício ganha por dia duas oitavas de ouro, e ainda em cima se rogam. O senhor dom Brás jantou este dia com sua excelência e algumas pessoas mais.19
Convém examinar mais de perto as informações expostas. Temas centrais foram os valores e os interesses envolvidos na edificação e na recepção. O dispêndio de recursos no soerguimento da casa justificou-se pelo desejo de alcance de uma benesse almejada, qual seja, a renovação de patente militar. Aconselhado a adotar estratégia menos onerosa com vistas a alcançar o mesmo fim, o teimoso anfitrião nem por isso desistira do plano elaborado. Não satisfeito com os elevados gastos consumidos na construção, o anfitrião ainda adquiriu, para a mesma “função”, três negros charameleiros, a preços exorbitantes. A se confiar nas cifras apresentadas pelo cronista - e, como se verá adiante com relação ao valor do palácio, seus números são confiáveis - esses três escravos teriam custado, juntos, quatro mil cruzados, ou um conto e seiscentos mil réis (1:600$000 rs.), o que implicaria o valor de meio conto de réis por cativo instrumentista (530$000 rs.). O preço médio equivalia a mais que o dobro do valor estimado de um escravo comum no mercado de Vila Rica.20
O emprego de escravos charameleiros ou versados noutros instrumentos musicais, com destaque para os de sopro, não foi incomum nos domínios lusitanos. Também a presença deles em recepções a reis, príncipes e governadores régios se mostrou corriqueira. Desde fins da Idade Média, instrumentos musicais de sopro faziam-se ouvir em diversas situações rituais, como festas e solenidades de corte, atividades religiosas e devocionais, funções bélicas e de vigilância, e ainda no acompanhamento de entradas e saídas de reis e senhores.21 Sem dúvida, a música desempenhava importantes funções na sociedade de corte. Segundo Francisco de Monçon, o príncipe devia ter a seu lado “todo o gênero de cantores” para que oficiassem festas e banquetes nobres, sem esquecer-se do culto divino.22 O acompanhamento musical de sopro em banquetes reais foi costume atribuído por Diogo do Couto à herança clássica: “costumavam os antigos famosos quando se punham a comer, mandar tanger muitas trombetas, para que acudissem os pobres a receber sua ração; porque no repartir com eles mostravam sua grandeza”. Cronistas da Corte de Avis referem-se à música executada em banquetes régios. Segundo Góis, nas festas principais tocavam-se trombetas, atabales e charamelas.23 Outro cronista, referindo-se à Corte da Casa de Bragança, informa sobre apresentações dos mesmos instrumentos a imitar, nesse caso, o procedimento então adotado na Casa Real.24 No extenso império ultramarino, as solenidades musicais sofreram adaptações e releituras que podiam divergir do costume metropolitano. Na colonização e na catequização de indígenas americanos, por exemplo, mas também no contato com povos nativos da África e da Ásia, os portugueses valeram-se frequentemente da música europeia, a fim de que imagem e sonoridade de instrumentos e de instrumentistas impressionassem olhos, ouvidos e mentes nativas.
No Reino, instrumentistas de sopro advinham de estratos plebeus ou podiam mesmo ser escravos, cafres, turcos, mouros ou estrangeiros. Genericamente designados menestréis, a exceção de trombetas e pífaros, postos que podiam ter natureza militar, se diferenciavam dos músicos de câmara, especialistas em instrumentos de corda e de tecla. Nas colônias, os padrões europeus foram transformados em função de interesses e conflitos políticos, culturais, comerciais e religiosos específicos. A diversidade de instrumentos e de instrumentistas deu a tônica. Há registros de africanos charameleiros em Angola, de meninos indígenas flautistas no Brasil e de instrumentos orientais incorporados aos ritos católicos na Índia. Pesava algum estigma quanto aos instrumentos de sopro e de percussão, tidos por populares, afeitos a plebeus. Percussionistas, como tambores e atabaleiros, eram frequentemente de origem africana. O mesmo ocorria com charameleiros e trombeteiros. Na Casa de Bragança, ao tempo de d. Teodósio (1510-1563), um quarto dos escravos sabia tocar charamela. Em Goa, senhores mais abastados tiveram por hábito ostentar cativos charameleiros.25
Na cultura de Antigo Regime, a condição senhorial requeria a exteriorização de práticas magnificentes, entre as quais constava o poder de agenciar plebeus e escravos instrumentistas. Signo distintivo da nobreza em geral e da realeza em particular, a “música heráldica” reafirmava o poder real e senhorial, explicitado no cerimonial e potenciado no impacto visual, sonoro e sensorial da música. Existiram grupos autônomos de charameleiros e trombeteiros prestadores de serviço a casas senhoriais, mediante pagamento. Em Lisboa, um regimento municipal determinava que, em recebimentos ou entradas de reis, “todos [os] ministres e tangedores que nela e no termo houver e trombetas” deveriam ser convocados a tomar parte na cerimônia, em seus respectivos lugares. O arcebispo de Braga contratava regularmente seis charameleiros e seis trombeteiros, obrigados a se apresentar conforme as necessidades da Sé e da cidade.26
Talvez ainda no Minho houvesse Henrique Lopes tomado contato com esse tipo de prática musical, reproduzindo-a, posteriormente, com nova roupagem, nas Minas. Não dispomos de estudos sobre a música cerimonial em núcleos senhoriais da América portuguesa. Sabe-se, todavia, que banquetes e serões musicados também ocorreram por aqui. Alguns senhores coloniais mantiveram instrumentistas próprios, no afã de recriar estilo de vida áulico ou “à lei da nobreza”. Tratava-se de um investimento político e simbólico. A listagem nominal dos escravos possuídos por Henrique Lopes em 1718 - fonte elaborada, portanto, imediatamente após a vinda de Assumar - revela a presença de seis cativos identificados pela habilidade musical. Quatro “moleques” eram “Charameleiros” e havia ainda um adulto “Trombeta” e outro “Tambor”.27 Num rol posterior, certifica-se o “grupo de procedência” desses escravos: todos os meninos charameleiros que se apresentaram perante o governador eram “angolas”.28 A origem centro-africana dos instrumentistas sintonizava-se com a maior penetração de hábitos e de componentes do repertório cultural europeu, de um lado, e com a crescente africanização dos colonizadores portugueses naquela área, de outro.29 O elevado preço de instrumentistas africanos demonstra o quão cobiçados eram. Na primeira metade do século XVI, o Duque Jaime de Bragança declarou em testamento que os escravos charameleiros que possuía “valem muito” e estimou-os no valor de mil cruzados (ou 400$000 rs.) por cabeça, quantia equiparável (ou idêntica) à desembolsada dois séculos depois por Henrique Lopes.30
Tão importante quanto os instrumentos eram as roupas. A indumentária ostentada na solenidade indicou a magnificência senhorial e, por isso, o diarista preocupou-se em descrevê-la em pormenor, atento aos trajes do senhor e de seus criados e escravos. Não raro, instrumentistas vestiam-se com a libré senhorial ou portavam, estampadas em bandeiras dependuradas nas trombetas ou em medalhões presos ao pescoço, as armas da casa ou da cidade que defendiam.31 Nesse caso, sem ter brasão que representasse sua estirpe plebeia, Henrique Lopes vestiu o quarteto de charameleiros com fino tecido vermelho (“pano berne”)32 forrado com “espernegão” da mesma cor.33 Com material de idêntico feitio, adornou outros seis pajens. A coloração vermelha, também utilizada na decoração dos aposentos do governador, predominou monocromática.
É ambígua a passagem na qual o diarista refere-se aos quatro vestidos que foram trazidos pelo capitão-mor: não se pode distinguir se Henrique Lopes vestira-os em si próprio ou se os presenteara ao governador. Embora reconhecesse a riqueza das peças, o autor as considerou de “mal e desproporcionado feitio”, “uns trapos”. Com desaprovação idêntica, avaliou as vestes do próprio anfitrião, cuja indumentária “sempre” se caracterizou pelo uso de “seu broche” e de um chapéu adornado por colar. A censura aplicada aos “vestidos” e à indumentária de Henrique Lopes está respaldada no olhar preconceituoso do observador, modelado à cultura cortesã, cujo requinte e formato talvez não pudessem ser reproduzidos e cujos valores quiçá fossem compreendidos por aquele anfitrião saído da “ínfima plebe”, na expressão consagrada pelo nobre hóspede. A lembrança da origem humilde do taberneiro explica os desacertos cometidos pelo capitão-mor. Tratava-se de clivagem social que nem a patente militar e tampouco a riqueza ostentada deveriam apagar.
Rito fundamental se deu em jantares e banquetes ofertados ao visitante. No Antigo Regime, o ato de comer e a tomada de refeições tinham significado especial, muito valorizado em meios nobres e nas casas de senhorios principais, onde assumiam dimensão litúrgica e até sacral. Nas cortes europeias, inclusive na portuguesa, a mesa do rei era um evento político, cuidadosamente preparado em todos os seus componentes, do cerimonial até os alimentos dispostos. Conforme observa Ana Isabel Buescu, a ostentação, o luxo, a fartura e a abastança constituíam símbolos afeitos à vida cortesã. À mesa nobre, o alimento primordial era a carne animal. Seu consumo refletia o poder econômico e a condição social dos indivíduos. Compunha a base do próprio cardápio real. Da Idade Média advieram as dietas modelares, corroboradas por médicos e dietistas hipocráticos e galênicos, responsáveis por diferentes escalas de valor atribuídas aos alimentos e estabeleceram a superioridade da mesa aristocrática. O “triângulo alimentar cavalheiresco”, transmitido à nobreza dos tempos modernos, compunha-se de pão, vinho e carne. Em meios nobres, essa última era sempre servida em grande quantidade, sobretudo a carne vermelha, de vaca e de porco, e a branca, de aves, sobretudo galinhas, ou de peixes, considerados de valor nutritivo inferior e, por isso, preferidos em épocas de abstinência alimentar, como a quaresma. Por outro lado, legumes e frutas eram estigmatizados, tanto mais depreciados quanto maior a proximidade do alimento em relação ao solo quando colhido. Frutas nobres sobrevinham de árvores, de preferência mais altas, como pêssegos, maçãs, cerejas, peras, nêsperas e cítricos. Já tubérculos e raízes destinavam-se à plebe e aos pobres.34
As duas principais refeições eram o jantar, tomado ao meio dia, e a ceia, à noite. Nessas ocasiões, serviam-se bebidas (água e vinho), carnes e sobremesas, como frutas in natura, secas ou em conserva, e doces. Num meio ameaçado constantemente pela fome e pela penúria, a abundância e a fartura representavam signos de distinção social. Isso se demonstrava à mesa no número de pratos, dos quais muitos podiam tornar intactos à cozinha. Mais do que no ato de comer, o poder senhorial cumpria-se no ritual e no cerimonial da refeição. A ostentação constituiu propósito tão ou mais importante que o consumo dos alimentos, já que, segundo Buescu, representou um “sinal distintivo e o principal motivo da mesa de grandes e de poderosos”. O banquete de Antigo Regime implicou espaço de exclusão social, no qual o “privilégio” e o “poder” contrapunham-se, “com uma ostentação cada vez mais vincada, ao mundo da fome e do medo”.35 Henrique Lopes foi aconselhado a que hospedasse em sua própria residência o governador, poupando assim as “três arrobas que havia de gastar” na construção de novo prédio, desde que aplicasse “uma [arroba] por fruta na mesa”. Esse conselho resguardava a importância da abastança alimentar à mesa nobre. Desconhecemos o cardápio servido pelo anfitrião. O silêncio do cronista denota que o menu teria sido satisfatório a paladares exigentes. Os presentes enviados pela câmara de Vila Rica (“doces, galinhas e outras coisas”), avaliados em 300 mil réis, incluíam possivelmente a carne de vaca e de porco, assim como, na Vila do Carmo, as boas-vindas renderam grande quantidade de carnes.36
A exclusividade do banquete também se realçava na seleção dos convidados à mesa. O ex-governador dom Brás Baltasar da Silveira foi, sem dúvida, o mais notável e frequente comensal. Além dele e do anfitrião, outros homens principais, como Manuel Dias de Meneses, então juiz ordinário da câmara, tiveram o privilégio de jantar ao lado do general.
Os jantares ocorridos em Vila Rica foram, indubitavelmente, os mais próximos à norma europeia dentre os desfrutados pela expedição governamental. Eduardo Frieiro chamou a atenção para os hábitos alimentares indígenas e paulistas que haviam marcado a jornada do governador do Rio de Janeiro a São Paulo e dali até as Minas. O autor lembrou que o macaco e as formigas içás consumidos numa roça paulista reproduziam costume silvícola incorporado à culinária colonial, especialmente em localidades do interior de São Paulo, como Taubaté, onde o gosto pelas içás perdurou até o século XX. Nas passagens pelas vilas de Santos e mesmo na capital paulista, predominaram alimentos nativos, como mandioca, feijão e frutas da terra.37 Entretanto, a culinária plebeia ou de tipo colonial teve espaço reduzido nas principais vilas das Minas, como comprovam os vultosos gastos contraídos no provimento de carne animal e de outros alimentos nobres, como doces e frutas.
O escritor não poupou críticas ao palácio erigido pelo ex-taberneiro. O sítio escolhido para a implantação tivera “má eleição”. Situava-se na vertente do morro de Pascoal da Silva e sofria constante acesso das águas que desciam pela encosta. As terras eram, por isso, insalubres, “tão úmidas que é prejudicial à saúde o morar muito tempo nelas”. A dispendiosa edificação, cujo orçamento fora sete vezes mais caro que uma obra congênere em Lisboa, não estaria à altura dos custos. O plebeu “rico”, mas “de rústico entendimento”, “não teve habilidade para escolher melhor paragem”. Ao fim e ao cabo, Henrique Lopes demonstrou-se “ridículo em tudo que era objeto de sua excelência”.38
Apesar desta avaliação negativa, fato é que o palácio de Vila Rica tinha predicados arquitetônicos que o tornaram mais robusto e mais caro que o congênere na vila vizinha. Considerando a dimensão de 460 m2 e os elementos construtivos empregados, o valor aproximado de 45 mil cruzados (Cr$ 45.000,00), “mais de três arrobas de ouro”, atribuído pelo autor anônimo do diário de viagem de Assumar, não foi exagerado. Se, em 1715, o palácio da Vila do Carmo, erigido com paredes de taipa de pilão, fora avaliado em 7.452 oitavas de ouro, equivalentes a quase 28 mil cruzados (Cr$ 27.945,00), é perfeitamente plausível que as “casas” de Henrique Lopes, construídas em alvenaria de pedra, atingissem aquele montante. É provável, inclusive, que o valor consumido na construção tenha sido dado comunicado ao informante pelo próprio anfitrião, o maior interessado em realçar a grandeza extraordinária do monumento. Como, de fato, realçou algum tempo depois. A destacar o feito benemérito que realizara na qualidade de provedor da residência governamental, afirmou que, “fundando grande sua habitação e umas casas nobres”, mandara construí-las com “todos os cômodos convenientes, despendendo neles muitas arrobas de ouro, pelo exorbitante preço e grande carestia dos materiais”. O benfeitor “voluntariamente os ofereceu por morada dos governadores daquelas Minas sem que por elas quisesse receber aluguel algum”.39
MOBILIÁRIO, ORNAMENTOS E UTENSÍLIOS: UM AMBIENTE CORTESÃO NAS MINAS
Se o aspecto do Palácio Velho não agradou à exigente comitiva do Conde de Assumar, o mobiliário, os ornamentos e utensílios disponíveis na casa não sofreram censura, em sinal de que, talvez, satisfizessem a contento os requisitos da residência nobre.
Temos informações detalhadas sobre o interior doméstico tanto da casa onde viveu o anfitrião Henrique Lopes quanto do palácio governamental. Por um lado, o elenco de objetos, móveis, utensílios e ornamentos domésticos sugere a constituição de um ambiente cortesão que procurou imitar o requinte associado às casas nobres. Por outro, diversos elementos da cultura material nesse complexo arquitetônico denunciaram componentes importantes da sociedade colonial.
Dispomos de dados sobre roupas, trastes, mobiliários e utensílios domésticos alocados na casa do capitão-mor e na residência do governador. A diversidade de itens e o número de objetos contradizem a impressão de humildade ou de simplicidade que já foi associada às primeiras edificações das Minas. Abrangendo apenas as categorias mencionadas acima (roupas, trastes, mobiliários e utensílios domésticos), foram elencadas 140 peças situadas nas duas propriedades. Nesse contexto, se Sylvio de Vasconcelos atribuiu rusticidade ao interior da casa de Henrique Lopes, foi porque teve acesso unicamente ao inventário procedido pela câmara de Vila Rica, que abrangeu apenas os móveis e objetos constantes no “Palácio Velho”, à época em que essa propriedade foi transferida à posse do órgão municipal, documento que omitiu, portanto, os bens existentes na residência do capitão-mor.40 É certo ainda que o rol não considerou todos os objetos possuídos pelo anfitrião, mas tão somente os que este julgou pertinente incluir em seu testamento. Certas roupas e objetos de menor valor não foram levados em conta, pois era seu desejo “os distribuir por meus escravos e escravas e pobres”, doando-os “pelo amor de Deus e pela minha alma e da dita minha mulher”, sem que fosse necessário lançá-los em inventário.41

A maior diversidade de objetos consistiu nos destinados ao uso pessoal doméstico: camas, catres, bofetes, mesas, cadeiras, caixas de roupa, almofadinhas, cortinas, cobertores, tapetes, pratos, copos, colheres, garfos, talheres em geral, bacias, bandejas, jarros, entre outros. Também existiu número bastante de pertences cuja função cumpria-se porta afora, interessada na exibição pública: roupas, fardas, joias, redes, armas, capas e balandraus. Os objetos de uso doméstico detinham função utilitária, presa à logística ordinária da “vida privada” na sociedade colonial: morar, vestir, guardar, descansar, cuidar, ocultar/mostrar. Contudo, detrás da utilidade, escondiam-se signos culturais valiosos, que preenchiam a relação dos objetos com seu meio circundante. Ali, misturavam-se pertences de aplicação doméstica, utilizados no interior do domicílio; outros apresentavam função híbrida ou cambiante, destinados simultaneamente ao uso interior e à exteriorização, seja por transitarem de dentro para fora e de fora para dentro do ambiente doméstico, seja por servirem à recepção social (de visitas e convidados, por exemplo), mesmo quando postos no interior da casa. E, por fim, havia objetos vinculados ostensivamente à vida pública, cuja finalidade, nesse caso, perfazia-se na rua.
Conforme mostrado no Quadro 2, na categoria de peças, roupas e trastes arrolados na casa de Henrique Lopes, existiram 32 objetos que somaram 93 itens. Há que considerar o significado específico de cada item, para dar sentido ao funcionamento de um complexo doméstico que extrapolava o ambiente privado e ganhava extensões públicas manifestas. Isso é particularmente evidente para a análise dos materiais alocados no Palácio Velho, pois que ali estiveram objetos que adornaram a residência dos governadores da capitania, mas não só. Também a casa do anfitrião se prolongou até a sociedade colonial de Vila Rica, com ela trocando símbolos e significados diversos.
Os móveis de quarto e sala são poucos, mas demonstram requinte mobiliário: duas camas42 de damasco, dois catres,43 dois bofetes44 com gavetas, três caixas de roupa e seis tamboretes.45 As camas de damasco eram, sem dúvida, o bem mais valioso e enobrecedor. Daí o motivo pelo qual Henrique Lopes tratou logo de identificá-las e enumerá-las, mesmo quando pensava em não realizar inventário minucioso de suas posses.46 Aqui, cama parece equivaler a leito, conforme a definição dada por Bluteau, acrescida do distintivo de luxuosidade, um cortinado adamascado.47 Segundo Daniel Roche, as camas e leitos tinham valor oneroso, a ponto de o dispêndio com a sua aquisição consumir boa parte dos dotes de casamento na cidade de Bordeaux na década de 1670.48 Se isso se passava no Velho Mundo, a realidade colonial talvez fosse ainda mais modesta. Leila Algranti observou a raridade das camas - preteridas por redes, camas de vento, esteiras ou catres simples - e relembrou o célebre episódio sucedido em 1620 com Gonçalo Pires, que teve sua cama requisitada pela câmara da vila de São Paulo a fim de emprestá-la ao ouvidor que chegava.49 Especificamente, adormecer em leito adamascado parece ter sido privilégio exclusivo de notáveis coloniais. Em 1678, o governador de Pernambuco André Vidal de Negreiros deixou sua relíquia para ornato da capela de Nossa Senhora do Desterro, recomendando aos administradores do templo que jamais se desfizessem do legado: “antes terão grande cuidado de uma e outra coisa”.50 Ao cogitar sobre a função desse móvel no interior da capela, convém lembrar a passagem bíblica em que o Senhor prometeu salvação àqueles “descansados no ângulo do seu leito e na cama de Damasco”.51 Em 1718, em Salvador, o governador-geral mandou fabricar, à custa da Fazenda Real, “um adereço de damasco da Índia carmesim para a casa do dossel do Palácio, de cortinas para as janelas, pano para o bofete, alcatifa e dossel”, garantindo, assim, a monocromia do cômodo onde repousava.52 Nas Minas, camas adamascadas foram igualmente incomuns. O capitão Manoel Rodrigues de Almeida, distinto irmão da Confraria do Santíssimo Sacramento em Vila Rica, assim como também o fora Henrique Lopes, possuía leito similar, mas isto em 1795.53
É pouco provável, mas não impossível, que as duas camas de damasco estivessem abrigadas na casa do capitão-mor. Talvez um dos móveis pudesse existir no Palácio Velho, sendo, no entanto, listado como parte dos bens do proprietário, em consideração a seu valor simbólico e material. Todavia, como se verá adiante, a primeira casa do palácio também contava com um leito nobre, de jacarandá, com cortinado de damasco amarelo. Em qualquer dos casos, pode-se afirmar que o proprietário usufruía de leito equivalente ao da maior autoridade régia da capitania. Além do quarto de dormir reservado ao casal e de outro onde se alocava virtualmente a segunda cama de damasco, mais um cômodo destinado ao repouso de hóspedes e convidados ou mesmo de serviçais e criados domésticos provia-se de dois catres velhos. Sabe-se, através do testamento, que Henrique Lopes abrigava em casa um soldado tido por seu parente. Por outro lado, duas escravas haviam servido individualmente ao testador e à sua esposa, auxiliando-os na velhice e no tratamento de doenças.54 O mulato forro Bernardo, filho adulterino do capitão-mor com sua escrava Mariana, também pode ter habitado o domicílio paterno, conforme indica a declaração do pai, afiançando que o “criou em sua casa” - muito embora seja incerto distinguir se o bastardo pernoitava na residência senhorial ou junto à mãe escrava, nas senzalas da mesma propriedade.55 De modo que, além do casal português, ignoram-se quantas e quais pessoas dormiam no interior da residência. A disposição de quatro redes ampliava o número de dormitórios volantes, apesar de, como frisou Mariza Soares, essas também servirem de veículo de transporte senhorial, com suporte enlombado por escravos.56 Coloridas, as redes prestavam-se possivelmente à exibição pública.57 Em todo caso, o número incerto de moradores aproximou a residência de Henrique Lopes do que Iraci da Costa denominou “domicílio complexo”, morada na qual se abrigavam, “além do núcleo familiar básico, parentes de integrantes de tal núcleo e/ou núcleos familiares secundários” que podiam também manter vínculos familiares com os primeiros.58 Dada a escassez de cadeiras, suprida em parte por seis tamboretes, e a inexistência de mesa, talvez substituída por três caixas de roupa (“isto é, que podem servir de roupas com suas molduras”),59 supõe-se que camas e catres também se prestassem ao assento ou, quem sabe, à recepção de visitas que chegavam sem aviso prévio.60
Os bofetes podiam ser colocados na sala e no quarto. Bluteau identifica-os como móveis usados para contar dinheiro, isto é, adequados à atividade de comerciantes e homens de negócio, que ali podiam escriturar créditos, guardar papéis e quantias. Na gaveta de um bofete Henrique Lopes recolheria os inúmeros papéis de crédito transacionados. Ali também se encontraria o sinete ou carimbo reprodutor de sua assinatura, utensílio muito requisitado no dia a dia de um usurário analfabeto, chamado a dar rubrica constante em letras, créditos e documentos diversos. Aliás, o senhor iletrado devia contar, nesse caso, com o auxílio de um escravo ou ajudante alfabetizado, que lhe traduzisse ou transcrevesse cartas e demais comunicações escritas. Seria esse o ofício do filho Bernardo, que prestara “bons serviços” ao pai?61
Todos os móveis de quarto e sala recobriam e enfeitavam-se com adornos que otimizavam o luxo dos ambientes. Quatro cobertores “de seda de várias cores” tinham “muito uso”. Uma colcha de algodão e travesseiros de renda se prestavam ao aquecimento e à acomodação de corpos em repouso. Quatro lençóis novos com rendas, dois travesseiros e três almofadinhas de Bretanha, acrescidos de outras nove almofadinhas e mais duas toalhas rendadas, completavam o enxoval de cama. Os leitos ornavam-se com armações,62 cortinas, sobrecéus63 e rodapés.64 Algumas cortinas de damasco encarnado, dentre as 13 existentes, atadas aos sobrecéus, vedavam as camas de damasco, numa das quais o casal branco pernoitava. O cerrar das cortinas produzia o único biombo efetivamente íntimo do quarto senhorial, cuja porta nem sempre trancafiada insinuava-se a olhares curiosos que só encontravam barreira na armação cortinada do leito. No caso de cortina insuficientemente extensa, incapaz de tocar o soalho, um rodapé de leito (também tecido em damasco encarnado) garantia a monocromia e o hermetismo do berço nupcial. As portas dos três quartos enfeitavam-se com sanefas,65 a exemplo de dois bofetes adornados com seus respectivos panos. As nove janelas da casa prescindiam de qualquer adorno ou proteção, além das folhas duplas de madeira com abertura para o interior.
Na sala de estar, embutido em nicho incrustado na parede, protegido por folhas de madeira, havia um oratório pintado com um crucifixo e uma imagem de Santo Antônio. Trazida para dentro de casa, a devoção religiosa ganhou forte caráter doméstico na América portuguesa. Em fazendas e casas mais abastadas, fizeram-se comuns capelas ou ermidas particulares, onde famílias senhoriais podiam dedicar-se aos ofícios católicos sem a necessidade de acorrer às igrejas e santuários públicos. Além de representar um símbolo do poder senhorial, as capelas privadas refreavam o assédio às mulheres, esposas e filhas, expostas aos olhares e às intenções de padres esquecidos dos votos. O mestre de campo Pascoal da Silva Guimarães detinha em casa, no morro de Vila Rica, uma capela própria, onde apadrinhou junto à esposa, dona Isabel da Costa, o filho do casal Domingos Francisco da Silva e Inácia de Souza, em janeiro de 1710.66 Nos lares realizavam-se orações privativas ou individuais. As invocações diárias de ave-marias, padre-nossos e salve-rainhas, prescritas a partir da Reforma Católica, implicavam certa individuação devocional, que reforçava a ênfase doméstica da religião. Alguns procedimentos, como o costume de aspergir água benta em alicerces de construções, e diversos ícones, como imagens de santos, estandartes, cruzes e crucifixos, imprimiam às residências as marcas da religiosidade de seus moradores. Particularmente, a devoção a Santo Antônio (Lisboa, 1195 - Pádua, 1231), manifestada no oratório de Henrique Lopes, era partilhada por grande parte dos reinóis aventurados no ultramar, que o tinham por protetor dos conterrâneos portugueses.67 Ao santo lusitano se atribuía ainda o poder de captura de negros fujões.68 Submetia-se a imagem a castigos, a fim de abreviar o tempo de perdimento do escravo. Padre Antônio Vieira endossou o costume popular do suplício icônico e reconheceu sua eficácia no alcance da benesse almejada.69 Nesse caso, contudo, a súplica não surtiu efeito, pois o devoto de Santo de Antônio teve pelo menos 18 escravos foragidos que jamais foram apanhados.
Também na sala de estar e talvez distribuídas nos quartos espalhavam-se três caixas ou baús com molduras que armazenavam roupas e objetos diversos. Possivelmente, tais caixas substituíam mesas ou bancadas, com suas superfícies superiores servindo como suporte de prataria e talheres. Difícil imaginá-las como abrigo de refeições, jantares ou recepções festivas, embora essa possibilidade não deva ser descartada. A rouparia depositada nos baús era multifária, nobre e colorida. De um lado, perfilavam-se as vestes profissionais, ligadas ao ofício militar, e cerimoniais, de pertencimento às ordens militares e confrarias. Duas capas (ou balandraus), uma de tafetá70 roxo com uma cruz de ouro e outra encarnada, “bem usada ou traçada”, atestavam filiação à Irmandade do Senhor Bom Jesus dos Passos, a que se unia, em geral, a “elite” do Santíssimo Sacramento.71 Um manto de Cavaleiro da Ordem de Cristo era cuidadosamente guardado numa bolsa de damasco encarnado, à espera de amortalhar o corpo de seu proprietário, expectativa concretizada à última hora. Uma casaca de droguete72 “forrada de nobreza azul clara”; seis fardas novas completas (conjunto composto por seis casacas, uma véstia,73 cinco calções e alguns retalhos de mesma fazenda), “de pano grosso azul como as dos soldados, guarnecidas e forradas de serafina encarnada e amarela” compunham as vestimentas militares do capitão-mor. De outro lado, certas peças de tecidos nobres vinculavam-se ao vestuário feminino, talvez pertencentes à finada Ana Maria, a exemplo de um penteador de renda.74 Outros itens do mesmo feitio, não se sabe se masculinos, foram uma véstia de tafetá usada; um corte de seda “azul com ramos de ouro e espernegão da mesma cor”; três peças de cetim vermelho “com ramos de ouro antigo”; uma peça de seda “cor de fogo” antiga; e uma peça de tafetá preto.
A predominância azulada na coloração das roupas, associada ao uniforme militar, concorre com o vermelho do enxoval de quarto e de algumas peças de tecido. Em Minas, o azul e o vermelho parecem ter sido as duas principais colorações encontradas em roupas e adornos, além do branco e do preto. Enquanto essas cores manifestavam-se isoladas, desprovidas de combinação, aquelas ocorriam em matizes diversos, a que se sobrepunham detalhes em amarelo (em ouro). As roupas de baixo sempre alvas metaforizavam a pureza, o asseio e a castidade do corpo cristão. O preto associava-se à reclusão, ao recato e à sobriedade esperados do comportamento feminino. Já as demais colorações acenavam conjunto mais complexo de signos agenciados no meio local. Ali, a moda multicolor suplantava, em termos absolutos, a incidência do branco e do preto, demonstrando que o simbolismo das cores ia muito além de um modismo estético. O colorido que Gracinéa Oliveira, apoiada em Luís Lizante, atribui à afetividade e à vivacidade dos colonos de Minas, remete, na realidade, ao teor arrivista da sociedade local.75
As três tonalidades de azul identificadas por Bluteau, também presentes na rouparia do finado, podiam ser tomadas por alegorias ou metáforas da empresa colonial. O azul-celeste, “mui claro”, associava-se evidentemente ao paraíso divino e constituía coloração “imitadora da cor do Céu”; o azul-ferrete, “mais escuro e mais baço”, tomava por adjetivo um instrumento de tortura, usado para marcar o rosto e o corpo de escravos, com ferro em brasa;76 e o azul-ultramarino, mais denso e, quem sabe, o que melhor representava a aventura marítima lusitana.77 As diferentes tonalidades azuladas em roupas e tecidos descritos no testamento reproduziram as distintas funções do súdito no ultramar. A armação de cama de seda “azul clara” enfatizou a ambição celestial do leito senhorial. Por seu turno, fardas soldadescas com “pano grosso”, de um azul-escuro, ferrete ou ultramarino, aludiam à função repressiva do ofício militar, assumida em nome e defesa do rei.
Já o vermelho, nas tonalidades encarnada78 ou cor de fogo (misturada com amarelo), tomou conta do leito adamascado, de cortinas, sobrecéus, sanefas e de quatro peças de cetim e de seda. Essa cor foi, por excelência, a da nobreza lusitana no século XVIII, seja no Reino seja no Novo Mundo. Governadores de capitania e vice-reis trajaram-se rigorosamente rubros, como demonstra a indumentária de dom Luís de Vasconcelos e Sousa, 12º vice-rei do Brasil, retratado em fins da centúria.79 O vermelho conferia distinção social a seus usuários e não só conforme os valores europeus. Estava associado, nas culturas indígenas, à proteção contra malefícios, obtida através da pigmentação do urucum. Também era utilizado por africanos escravizados, especialmente em ritos religiosos.80 Em fins de 1717, quando o recém-empossado dom Pedro de Almeida domiciliou no palácio mandado construir pelo anfitrião, o autor anônimo do diário de viagem frisou que “as casas estavam muito bem ornadas com cortinas nas portas de damasco carmesim e as cadeiras e cama do mesmo”. Isto é, todo o interior revestia-se de tecidos rubros, comprovando a função distintiva da cor, associada à nobreza lusitana. Segundo o escritor, Henrique Lopes teria doado todos esses aparatos ao Conde de Assumar para “adorno” de seu Palácio na Vila do Carmo.81 A casa do minerador reproduziu, portanto, idêntico modelo decorativo, a copiar esteticamente a residência do governador.

Como se vê no quadro 3, a mobília destinada ao conforto e à recepção de convidados foi, sem dúvida, o diferencial do palácio, a sugerir que o domicílio governamental se orientou por programa diverso da casa de Henrique Lopes. Chama atenção, em especial, a grande amostra de mesas, cadeiras e bancos, itens raros nos inventários coloniais e ausentes no próprio imóvel vizinho.82 Essa mobília distribuía-se entre as duas casas que formavam o palácio. Na primeira, havia 18 cadeiras de encosto sem braços, forradas de couro de moscóvia com pregarias.83 Na outra, alocavam-se uma mesa de jantar redonda, de madeira jacarandá, coberta com um pano verde, outra mesa de cozinha, três bancos grandes com encosto “que servem na sala” e mais dez tamboretes velhos (cinco de couro e cinco de olandilha).84 Não há outra hipótese senão a de que tais móveis servissem à prática política dos governadores, forçados a receber convidados, funcionários, requisitantes, homens principais e demais indivíduos que acorriam, sem cessar, às portas do palácio, a fim de obter audiência com a autoridade máxima da capitania. Mas não só isso. A mesa redonda de jacarandá “em que se janta”, talvez instalada na sala, guarnecida parcial ou integralmente por 18 cadeiras (adornadas de maneira uniforme, como um conjunto de mobília) ou ainda por tamboretes, sugere a formação de um lócus de sociabilidade política, em que o governador habilitava-se à recepção de elevado número de convidados, simultaneamente. A sala de jantar transformava-se, assim, em sala de reuniões, de audiências públicas ou particulares, na qual tomavam parte pessoas requisitadas ou requisitantes do governador. Por outro lado, três bancos grandes com encosto, também postados na sala, indicam maior privacidade, convidativos à comunicação interpessoal mais íntima (quem sabe, secreta), direcionada a uma ou duas pessoas apenas. E, nesse caso, o recinto ganhava caráter reservado, próprio ao sigilo exigido na arte de governar.
Dois bofetes de jacarandá com pés torneados e outro com pés lisos distribuíam-se na segunda casa, alocados em cômodos diversos, no quarto e na sala, notadamente; outro móvel do tipo, também de jacarandá, existia na primeira casa. A profusão de bofetes sinaliza o ofício escriturário da secretaria de governo. Ali, fazia-se o registro manuscrito de todo o expediente dos governadores. É possível que o secretário de governo detivesse bofete específico, exclusivo a seu uso. Outro móvel devia alocar-se no quarto do governador, permitindo-lhe escrever com privacidade. E um terceiro, talvez de uso comum, serviria na sala, assistindo as audiências públicas ou privadas dos que recorriam ao general.
A repartição dos móveis deixa entrever que as duas casas do palácio possuíam função complementar, mas distinta. O único leito inventariado, de jacarandá torneado, ornado com cortinado de damasco amarelo franjado de prata, fixava-se na primeira casa. Seria esta a residência do governador? A exiguidade dos móveis e dos utensílios nela existentes, apenas cama, bofete e três cortinas, faz duvidar disso. Desenha-se, antes, uma estrutura modesta, talvez destinada ao usufruto do secretário de governo ou de algum hóspede itinerante, que ali encontraria local de repouso e pernoite. O jogo de cadeiras também listado nessa casa sugere a existência de um pequeno depósito anexo, onde eram guardados utensílios em excesso ou pouco utilizados na edificação principal. A residência oficial era, sem dúvida, a segunda casa. Identificam-se ali pelo menos três cômodos - quarto, sala e cozinha - com móveis próprios, a exemplo da mesa de cozinha e dos bancos da sala. Mas se isso foi verdadeiro cabe perguntar: onde estaria a cama utilizada pelo governador? É possível deduzir tratar-se de um dos leitos adamascados requisitados pelo capitão-mor em seu próprio testamento. O mesmo se pode dizer para os demais adornos domésticos que ornamentavam a casa do general. Onde estariam? À exceção das cinco sanefas de damasco vermelho (usadas possivelmente nas portas) restantes no inventário, todos os outros itens devem ter sido arrolados no testamento de Henrique Lopes. Outra possibilidade é a de que tais itens pertencessem ao governador e, nesse caso, não tenham sido tomados a rol.

Não há dúvida de que o capitão-mor incluiu em seu testamento toda ou boa parte da prataria que serviu em palácio. É o que demonstra o quadro 4, postado acima, com o riquíssimo acervo de peças em prata lavrada possuídas por Henrique Lopes. Destaque-se o numeroso conjunto de utensílios destinados à mesa, como bandejas, colheres, facas, garfos, pratos, púcaros, salvas e talheres de prata. Como vimos, a abastança à mesa foi componente fundamental do ethos nobre ou senhorial, tanto mais requisitado no palácio governamental. Talheres e demais aparelhos eram peças requeridas em quantidade e em qualidade proporcional à fartura de alimentos e à condição social dos convivas chamados à mesa. O anfitrião ostentou 33 tipos diferentes de objeto em prata lavrada, a somar 140 itens. Parece evidente que a maioria dessas peças visava atender às demandas do palácio, quando se sabe que a casa do anfitrião sequer deteve mesa de jantar. Supondo-se a partilha individual de garfos e pratos, é possível cogitar que o jogo permitisse a recepção de mais ou menos 20 comensais simultaneamente. Note-se, portanto, a sua adequação à função palaciana, como lugar de sociabilidade cortesã e de convivência política entre governador e homens principais que jantavam e ceavam junto ao capitão-general.
CONCLUSÃO
Os dados trabalhados permitem concluir que o palácio que abrigou a residência de dois governadores mineiros entre 1721 e 1735 reproduziu, inegavelmente, um ambiente cortesão. Os cerimoniais, as refeições, os espaços de sociabilidade, os ornamentos e mobílias ajustavam-se aos de uma casa nobre e tentavam recriar, no interior da América portuguesa, os valores domésticos caros à sociedade de Antigo Regime. No entanto, essa recriação jamais foi capaz de esconder a especificidade do meio colonial. Vizinhas de uma riquíssima lavra aurífera, as janelas do Palácio Velho proporcionaram aos governadores portugueses a vista da faina diária protagonizada por multidão de trabalhadores escravizados, os mais deles africanos, que muito proximamente à casa oficial extraíam o ouro entranhado no Tapanhuacanga. A onipresença da escravidão imprimiu à Corte colonial características sui generis. Ela própria financiada por um plebeu lusitano e erguida por mãos africanas, a edificação principal inseriu-se nas contradições daquela realidade. Escravos eram todos os músicos, cozinheiros, serviçais e criados domésticos responsáveis pelo atendimento ao governador. E depois de perder seu ilustre hóspede, o Palácio Velho teve seu destino e seus usos como propriedade urbana diretamente influenciados pela comunidade escravizada residente ao redor. Conforme demonstram a gravura de Rugendas e a narrativa lendária de Chico Rei, aquela antiga propriedade cortesã foi reapropriada e ressignificada pela confraria negra do Alto da Cruz, tornando-se lugar de memória daquele meio colonial onde os padrões de Antigo Regime sujeitaram-se à reprodução do escravismo.
REFERÊNCIAS
ARQUIVO ECLESIÁSTICO DA PARÓQUIA DE ANTÔNIO DIAS. DOCUMENTOS diversos e registros paroquiais, Batizados, v. 456, fl. 3.
ARQUIVO HISTÓRICO ULTRAMARINO. INFORMAÇÃO sobre serviços prestados por Henrique Lopes de Araújo na capitania de Minas Gerais, desde 12 de janeiro de 1714 a 19 de maio de 1725. AHU, Minas Gerais, cx.8, doc. 5.
ARQUIVO NACIONAL DA TORRE DO TOMBO. TESTAMENTO do Capitão-mor Henrique Lopes de Araújo. ANTT, Condes de Linhares, mç. 95/2, fl. 3, 3v, 7v, 17, 18v e 39.
ARQUIVO PÚBLICO MINEIRO. Casa dos Contos 1028, fl. 57v.
ARQUIVO PÚBLICO MINEIRO. Seção Colonial 015, fls. 62-143v.
ARQUIVO PÚBLICO MINEIRO. Seção Colonial 021, fls. 149-187;
ARQUIVO PÚBLICO MINEIRO. Seção Colonial 026, fls. 13-150v;
ARQUIVO PÚBLICO MINEIRO. Seção Colonial 028, fls. 2-139v;
ARQUIVO PÚBLICO MINEIRO. Seção Colonial 031, fls. 2-139;
ARQUIVO PÚBLICO MINEIRO. Seção Colonial 034, fls. 5-139.
BIBLIOTECA NACIONAL. Mapa das minas de ouro e São Paulo e costa do mar que lhe pertence. Seção Cartografia.
FONTES IMPRESSAS
BÍBLIA SAGRADA CONTENDO O VELHO E O NOVO TESTAMENTO. Traduzida em português segundo a vulgata latina por Antônio Pereira de Figueiredo. Lisboa: Typographia Universal, 1865, p. 774.
BLUTEAU, Raphael. Vocabulário Portuguez e Latino. Rio de Janeiro: Eduerj, 2000.
CÓDICE Costa Matoso. Coordenação Geral: Luciano Figueiredo e Maria Verônica Campos. Belo Horizonte: Fundação João Pinheiro, Centro de Estudos Históricos e Culturais, 1999, v. 1, p. 231.
DIÁRIO da Jornada que fez o Exmo. senhor dom Pedro desde o Rio de Janeiro até a cidade de São Paulo e desta até as Minas. Ano de 1717. Revista do Patrimônio Histórico e Artístico Nacional. Rio de Janeiro, n. 3, 1939.
DOCUMENTOS HISTÓRICOS, v. 55, p. 72.
DOSSIER de Restauração da Casa de Henrique Lopes. Fundação João Pinheiro. Plano de Conservação, Valorização e Desenvolvimento - Ouro Preto e Mariana. N° OP 86, p. 28.
REVISTA DO INSTITUTO ARQUEOLÓGICO E GEOGRÁFICO PERNAMBUCANO, ano 4, tomo 2, volume 13, 1866, p. 79.
Revista do Patrimônio Histórico e Artístico Nacional (RPHAN), n.3, 1939, p. 314.
LIVROS, ARTIGOS E TESES
ALGRANTI, Leila Mezan. Famílias e vida doméstica. In: Novais, Fernando A. (dir.) SOUZA, Laura de Mello (org.) História da Vida Privada no Brasil: cotidiano e vida privada na América portuguesa. São Paulo: Companhia das Letras, 1997, v. 1.
ALMEIDA, Ana Maria Rego; LIMA, Vera Lúcia. Imagem e reflexão: o retrato de d. Luís de Vasconcelos e Sousa. Anais do Museu Histórico Nacional, Rio de Janeiro, v. 42, 2010, p. 99.
ALVES, Célio Macedo. Um estudo iconográfico. In: COELHO, B. (org.) Devoção e imaginária religiosa em Minas Gerais. São Paulo: Edusp, 2005, p. 69-122.
BARROS, Sigrid Porto de. A condição social e a indumentária feminina no Brasil-Colônia. Anais do Museu Histórico Nacional, Rio de Janeiro, n. 8, p.117-154, 1947.
BASTOS, Rodrigo A. Regularidade e Ordem das povoações mineiras no século XVIII. Revista do IEB, n. 44, 2007, p. 27-54.
BORREGO, Maria Aparecida de Menezes. Códigos e Práticas: o processo de constituição urbana em Vila Rica colonial (1702-1748). São Paulo: Fapesp/Annablume, 2004.
BUESCU, Ana Isabel. Na Corte dos Reis de Portugal: saberes, ritos e memórias. Lisboa: Colibri, 2010.
COSTA, Iraci del Nero da. Revisitando o domicílio complexo. In: LUNA, F. V. Escravismo em São Paulo e Minas Gerais. São Paulo: Edusp, Imprensa Oficial do Estado de São Paulo, 2009, p. 609-614.
CUNHA, Alexandre Mendes. Espaço, paisagem e população: dinâmicas espaciais e movimentos da população na leitura das vilas do ouro em Minas Gerais ao começo do século XIX. Revista Brasileira de História. São Paulo, v. 27, nº 53, 2007.
DAVES, Alexandre Pereira. Vaidade das Vaidades: os homens, a morte e a religião nos testamentos da Comarca do Rio das Velhas (1716-1755). 1998. Dissertação (Mestrado) -FFCH/UFMG, Belo Horizonte, 1998.
DELL’AIRA, Alessandro. Johann Moritz Rugendas e a lenda de Chico Rei. Desígnio: revista de história da arquitetura e do urbanismo. São Paulo: Annablume, 2009, n. 9/10 setembro de 2009.
DIENER, Pablo. O catálogo fundamentado da obra de J. M. Rugendas e algumas ideias para a interpretação de seus trabalhos sobre o Brasil. Revista USP, São Paulo, v. 30, 1996, p. 46-57.
ESCHWEGE, Wilhelm Ludwig von. Pluto Brasiliensis. Belo Horizonte: Itatiaia; São Paulo: Edusp, 1979, v.1.
FONSECA, Cláudia Damasceno. Arraiais e Vilas D’el Rei: espaço e poder nas Minas setecentistas. Belo Horizonte: UFMG, 2011.
FONSECA, Cláudia Damasceno. Urbs e civitas: A formação dos espaços e territórios urbanos nas Minas setecentistas. Anais do Museu Paulista. São Paulo, v. 20, n.1, 2012, p. 77-108.
FRIEIRO, Eduardo. Feijão, angu e couve: ensaio sobre a comida dos mineiros. São Paulo: Edusp; Belo Horizonte: Itatiaia, 1982.
GASPAR, Tarcísio de Souza. O Arraial de São Gonçalo do Tijuco: história, patrimônio e memória do distrito de Amarantina em Ouro Preto. Cadernos de Pesquisa do CDHIS. Uberlândia, v. 23, n° 1, 2010, p. 41-69.
GOMES, Rita Costa. The making of a court society. Kings and nobles in late Medieval Portugal. Cambridge: University of Cambridge, 2003.
HEYWOOD, Linda Marinda De português a africano: a origem centro-africana das culturas atlânticas crioulas no século XVIII. In: HEYWOOD, L. M. (org.). Diáspora Negra no Brasil. São Paulo: Contexto, 2003, p. 81-100.
HOLANDA, Sérgio Buarque de. Raízes do Brasil. São Paulo: Companhia das Letras, 1995.
MENEZES, Ivo Porto de. Os Palácios dos Governadores em Ouro Preto. Cadernos de Arquitetura e Urbanismo, Belo Horizonte, v. 12, n. 13, p. 39-58, 2005.
MONTEIRO, Maria Isabel Lopes. Instrumentos e instrumentistas de sopro no século XVI português. 2010. Dissertação (Mestrado em Ciências Musicais) - Universidade Nova de Lisboa, Lisboa, 2010.
MOTT, Luiz. Santo Antônio, o divino capitão-do-mato. In: REIS, João José; GOMES, Flávio (orgs.) Liberdade por um fio. São Paulo: Companhia das Letras, 1996, p. 110-38.
MOTT, Luiz. Cotidiano e vivência religiosa: entre a capela e calundu. In: NOVAIS, Fernando; SOUZA, Laura de Mello e (org.) História da Vida Privada no Brasil: cotidiano e vida privada na América portuguesa. São Paulo: Companhia das Letras, 1997, v. 1.
OLIVEIRA, Gracinéa Imaculada. As cores do vestuário e a sociedade mineira setecentista. Scripta Philologica, v. 4, p. 298-315, 2008. Disponível em: <Disponível em: http://www.fflch.usp.br/dlcv/lport/pdf/slp21/07.pdf.> Acesso em: 11 jul. 2013.
OLIVEIRA, Monalisa Pavonne. Devoção e poder: a Irmandade do Santíssimo Sacramento do Ouro Preto (Vila Rica, 1732-1800). 2010. Dissertação (Mestrado) - Universidade Federal de Ouro Preto, Mariana, 2010.
OLIVEIRA, Monalisa Pavonne. A elite do Santíssimo de Vila Rica na segunda metade do século XVIII. Anais do Seminário Internacional Justiça, Administração e Luta Social: Dimensões do Poder em Minas. Mariana, 2010. Disponível em: <Disponível em: http://www.seminariojals.ufop.br/monalisa_pavonne_oliveira.pdf.> Acesso em: 8 jul. 2013.
PEREIRA, Alexandra Maria. Um Mercador de Vila Rica: atividade mercantil na sociedade do ouro (1737-38). Juiz de Fora: Universidade Federal de Juiz de Fora, 2008.
PREFEITURA MUNICIPAL DE OURO PRETO. Inventário do Patrimônio Cultural do distrito de Amarantina. Ouro Preto: PMOP/SMPDU, 2010.
REIS FILHO, Nestor Goulart. Imagens de vilas e cidades do Brasil Colonial. São Paulo: Edusp, 2000.
SAIA, Luís. A Casa Bandeirista - uma interpretação. São Paulo: Comissão do IV Centenário da cidade de São Paulo, 1995.
SOARES, Mariza de Carvalho. Devotos da Cor: identidade étnica, religiosidade e escravidão no Rio de Janeiro, século XVIII. Rio de Janeiro: Civilização Brasileira, 2000.
ROCHE, Daniel. A cultura das aparências: uma história da indumentária (séculos XVII-XVIII). Tradução Assef Kfouri. São Paulo: Senac, 2007.
RUGENDAS, Johann Moritz. Voyage Pittoresque dans le Brésil. Paris: Engelmann, 1853.
RUSSELL-WOOD, Anthony John. Identidade, etnia e autoridade nas Minas Gerais do século XVIII: leituras do Códice Costa Matoso. Varia Historia, v. 21, 1999, p. 100-118.
VASCONCELOS, Salomão de. O Palácio de Assumar. Belo Horizonte: Graphica Queiroz Breyner, 1937
VASCONCELOS, Sylvio de. Vila Rica - formação e desenvolvimento. Rio de Janeiro: Ministério da Educação e Cultura/Instituto Nacional do Livro, 1956.
VASCONCELOS, Sylvio de. Vila Rica - formação e desenvolvimento. Rio de Janeiro: Ministério da Educação e Cultura/Instituto Nacional do Livro, 1956.
WAGNER, Robert; BANDEIRA, Júlio.Viagem ao Brasil nas aquarelas de Thomas Ender. Petrópolis: Kapa Editorial; Petrobrás, 2000, v. 3.
ZANETTINI, Paulo Eduardo. Maloqueiros e seus palácios de barro: o cotidiano doméstico da Casa Bandeirista. 2005. Tese (Doutorado em Arqueologia) - USP/Museu de Arqueologia e Etnologia. São Paulo, 2005.
Notas
Autor notes