ESTUDOS DE CULTURA MATERIAL
Brasília e suas unidades rurais: planos e projetos para o território do Distrito Federal entre fins da década de 1950 e início da década de 19601
Brasília and its rural units: plans and projects for the territory of the Federal District between the end of the 1950s and the beginning of the 1960s
Brasília e suas unidades rurais: planos e projetos para o território do Distrito Federal entre fins da década de 1950 e início da década de 19601
Anais do Museu Paulista: História e Cultura Material, vol. 28, e30, 2020
Museu Paulista, Universidade de São Paulo
Recepção: 27 Fevereiro 2020
Aprovação: 29 Maio 2020
Financiamento
Fonte: CNPq (Conselho Nacional de Desenvolvimento Científico e Tecnológico - Brasil)
Número do contrato: 452015/2018-9
Descrição completa: Este trabalho contou com apoio de bolsa produtividade do CNPq (Conselho Nacional de Desenvolvimento Científico e Tecnológico - Brasil), processo 452015/2018-9.
RESUMO: A crítica à nova capital do Brasil inaugurada em 1960 concentrou-se na arquitetura e no traçado do Plano Piloto concebido por Lucio Costa, mas não deixou de apontar uma suposta ausência de planos para integrar aquele núcleo original ao território onde se inseriu. A partir de uma documentação inédita, compreendendo planos e projetos para organizar o sistema de abastecimento e a indústria em Brasília entre fins da década de 1950 e início da década de 1960, este artigo demonstra, porém, que houve um significativo esforço no sentido de um planejamento regional do Distrito Federal. A análise mostra ainda que a elaboração daqueles planos foi tributária de uma contínua preocupação com o abastecimento da capital expressa desde fins do século 19 e identifica suas relações com ideias e experiências correntes no campo do planejamento urbano e regional em meados do século 20.
PALAVRAS-CHAVE: Brasília (história), Plano Piloto, Planejamento regional, Abastecimento de alimentos.
ABSTRACT: Criticism on the new capital city of Brazil inaugurated in 1960 focused on the Pilot Plan drawn up by Lucio Costa, but it also highlighted an alleged absence of plans to integrate that original nucleus into the territory where it was built. Based on unprecedented documentation comprising plans and projects to organize the supply system and industry in Brasilia between the late 1950s and early 1960s, this paper demonstrates, however, that there was significant effort towards regional planning of the Nation´s Federal District at that time. The analysis also shows that the elaboration of those plans was due to continuous concern with food supply of the capital city expressed since the end of the 19th century and points out its relations with current ideas and experiences in the field of urban and regional planning in the mid-20th century.
KEYWORDS: Brasília (history), Pilot Plan, Regional planning, Food supply.
INTRODUÇÃO
Os generosos espaços do Plano Piloto traçado por Lucio Costa e a inventiva arquitetura dos palácios e monumentos projetados por Oscar Niemeyer estabeleceram imagens icônicas da nova capital inaugurada em 1960. A inscrição de Brasília na lista do patrimônio cultural da humanidade pela Unesco em 1987 reiterou o caráter emblemático daquele núcleo modernista. A historiografia sobre Brasília também privilegiou o Plano Piloto, tendendo a vê-lo como expressão acabada do projeto da capital. No entanto, a suposta ausência de planos para integrar o núcleo traçado por Lucio Costa ao território onde se inseriu foi apontada desde a época inicial de sua construção e tornou-se um dos principais tópicos da crítica à capital. Em 1960, arquitetos e especialistas de áreas diversas alertaram, tal como Bruno Zevi: “Foi elaborado um plano regional? Não.”3 David Crease4 reiterou o “fracasso na elaboração de um planejamento regional”. Por sua vez, Mário Pedrosa5 conclamou: “Impõe-se relacionar o plano urbano ao plano suburbano e este ao plano regional.” A ausência de um planejamento regional teria sido o “pecado original” de Brasília.6 Tais julgamentos permanecem válidos se buscarmos uma efetiva e sistemática aplicação de métodos de planejamento à região. Mas, como pretende mostrar este artigo, essas críticas podem ser pelo menos em parte refutadas à luz de planos e projetos elaborados entre fins dos anos 1950 e início dos anos 60 para organizar o território da capital e sua zona urbana e rural. Esses planos se desdobraram em escalas diversas e envolveram articulações entre órgãos de governo e profissionais de diferentes campos disciplinares, vindo mesmo se assumir como um esforço no sentido de um “planejamento regional”.
Esta análise deriva de uma pesquisa mais ampla, cujo objetivo é ir além da ênfase usual no Plano Piloto para investigar propostas para organização do território de Brasília e suas relações com um ideário em planejamento urbano e regional em voga em meados do século 20.7 A pesquisa buscava, inicialmente, concentrar-se na concepção das cidades-satélites, no entanto, na fase de levantamento de dados, deparamo-nos com uma documentação inédita compreendendo documentos escritos e projetos arquitetônicos e urbanísticos destinados a criar núcleos denominados Unidades Socioeconômicas Rurais (USERs). Tal documentação permite uma nova abordagem acerca da postura adotada pela empresa paraestatal encarregada do planejamento e construção de Brasília - Novacap - naquele período: em contraste com os planos esquemáticos e as escassas definições sobre a configuração de cidades-satélites, as USERs foram objeto de extensas elaborações teóricas e tiveram detalhamento em nível de anteprojeto. No enfoque deste artigo, vale ressaltar, Brasília não aparece como empreendimento exclusivamente urbano ou restrito ao Plano Piloto, mas compreende, em sua zona rural, projetos para núcleos também concebidos segundo um ideário modernista e dotados de caráter modelar. Ainda que os projetos aqui abordados não tenham sido implementados por completo, contribuíram para moldar a ocupação inicial do território e integram um conjunto de decisões tomadas à época da implantação da capital que, conforme apontou Sylvia Ficher,8 deixaram profundas marcas em seu posterior desenvolvimento metropolitano, sobretudo no que diz respeito à preferência por assentamentos dispersos e baixas densidades.
ABASTECIMENTO: UM PROBLEMA CAPITAL
O problema de garantir que a nova capital tivesse adequado abastecimento de água e gêneros alimentícios norteou os trabalhos das várias comissões científicas conduzidas desde fins do século 19 para escolha do local onde ela seria erguida. Tais comissões constituíram-se de especialistas em diferentes campos do conhecimento e foram sucessivamente lideradas por Luís Cruls (1892-1893 e 1895), Djalma Polli Coelho (1946-48), Aguinaldo Caiado de Castro (1953-54) e José Pessoa Cavalcanti de Albuquerque (1954-56).9 Houve uma sequência de propostas para definir a configuração do futuro DF, desde o chamado Quadrilátero Cruls, indicado em 1894 e aprovado em 1922, passando pela área definida na Constituição de 1891, o Perímetro Polli Coelho, de 1948, o Retângulo do Congresso, de 1953, o retângulo Belcher, de 1955, e o perímetro definido no relatório da Comissão Pessoa, depois incorporado ao texto da lei 2.874 de 19 de setembro de 1956. Todas essas propostas estavam situadas no Planalto Central, mas não se excluiu, ainda em 1948, a defesa, por parte de membros de uma Comissão de Estudos vinculada ao IBGE, de que o DF se situasse na divisa entre Minas Gerais e Goiás.10
As várias comissões de estudo não deixaram, porém, de indicar dificuldades para estabelecer cultivos no Planalto Central. Já no chamado relatório parcial da Comissão Cruls, enquanto o botânico Glaziou11 refere-se a uma “bela e rica região”, o geógrafo e engenheiro militar Alípio Gama12 a considera “pobre e falta de recursos”, mas ainda assim capaz de se tornar um “vasto celeiro de abastecimento”. Numa visão similar, décadas mais tarde, o relatório da comissão presidida pelo general Djalma Polli Coelho considerou que a região escolhida não tinha condições de todo favoráveis e, salvo “o seu excepcional clima [...] tudo o mais poderia ser considerado, à primeira vista como [sic] contrário [à implantação da capital]”.13 Ainda conforme o mesmo relatório, haveria necessidade de “trabalhos enormes para a exploração, recuperação e conservação dos recursos naturais do Território”.14 Contudo, alega-se que a intenção era justamente mostrar como as dificuldades poderiam ser superadas para fazer da capital “uma grande escola” para o Brasil e uma “civilização superior, com todas as condições de salubridade, de conforto e de produção”.15
O propósito de fazer da capital uma experiência modelar viria a ser reforçado em vários escritos de protagonistas e registros oficiais a seu respeito, mas pode-se considerar também, conforme cogitou Pereira (2010), que a escolha do planalto goiano se baseou nem tanto no potencial de seus recursos naturais, mas sobretudo em razões de caráter geopolítico, levando em conta a presença de vastas terras devolutas a preço relativamente baixo para desapropriações futuras.
Ao longo dos trabalhos das comissões científicas realizados até meados do século 20, o problema de garantir o abastecimento da capital vinculou-se à discussão das dimensões recomendadas para o futuro DF. No já citado relatório de 1948, Djalma Coelho defendeu o pressuposto, depois amplamente reiterado por autoridades e técnicos ligados à Novacap, de que o abastecimento da capital deveria ser feito na maior parte “por meios locais ou regionais”.16 Considerando uma estimativa, à época da mudança da capital, de cerca de 300 mil pessoas ali vivendo e prevendo que inicialmente de 70% a 80% do abastecimento seria feito pela própria região, até chegar ao seu pleno suprimento, Djalma Coelho recomendou que o DF tivesse área de 77 mil quilômetros quadrados (mais de 13 vezes o tamanho atual). Além disso, aconselhou que a mudança da capital fosse feita de 10 a 12 anos após o início dos trabalhos de “progressivo aparelhamento da região”.17 A discussão sobre a área adequada ao DF foi retomada em 1955, quando o relatório da Comissão liderada pelo Marechal José Pessoa criticou os trabalhos realizados pouco antes pela empresa Belcher & Associates por sua “solução inadequada” de delimitação daquele perímetro. Embora reconhecendo que a empresa tinha auxiliado na escolha do sítio da capital, sugeriu-se então uma nova demarcação do Distrito Federal, de modo a incluir, como se lê em anotações manuscritas acrescentadas ao texto, “além de solo fértil, os rios Preto e Descoberto, corrigindo-se assim a ligeira deficiência de água notada no sítio anteriormente escolhido”.18
As comissões de estudos e exploração não apenas ponderaram se as condições dos solos e do clima seriam propícias para o cultivo agrícola e a pecuária, como também avaliaram a produção existente na região e fizeram sugestões quanto ao modo de organizar o abastecimento da futura capital. A monografia do general Djalma Coelho apresentou a proposta mais definida para estruturar os territórios do DF. Recomendou-se ali criar três “coroas” em torno do núcleo urbano principal da nova capital: a primeira, com 30 a 40 quilômetros de largura seria “a cintura verde protetora”, com parques, florestas e atividades agrícolas de abastecimento; na segunda, com cerca de 10 quilômetros de largura, ficaria a população suburbana, alojada em cidades-satélites; na terceira coroa, com 15 a 20 quilômetros de largura, haveria granjas e algumas atividades agrícolas. Previram-se “2-3 cidades-satélites a 30-60 km de distância do centro da cidade e a ele ligado por autoestradas”, além de habitantes rurais em torno de “pequenos núcleos ou povoados”.19 A ideia de um “cinturão verde” foi retomada pelo marechal José Pessoa de Albuquerque, que, além de apresentar estimativas para a distribuição de infraestrutura de água, esgoto, energia e transportes, propôs um “plano de colonização dos arredores da capital” com “modelares chácaras e granjas” conduzidas por “bons colonos holandeses, mesclados com os nacionais”.20 Tais recomendações remetem a um paradigma corrente no ideário de planejamento urbano daquele período, baseado na noção de cidade central com dimensões limitadas e circundada por um cinturão verde, tendo-se em vista a expansão futura por meio de cidades-satélites e a presença de núcleos de caráter rural à distância daquele centro e separados entre si.
Apesar dos extensos relatórios realizados pelas várias comissões, as críticas relativas aos problemas que o Planalto Central representaria para o abastecimento foram tomando vulto à medida que a construção de Brasília se afigurava próxima. Já em 1948, o mencionado relatório do IBGE preocupou-se em refutar a suposta esterilidade das terras demarcadas para o DF como “levianas opiniões”.21 Porém, em fins da década de 50, revistas especializadas como o Boletim Geográfico ou periódicos de grande circulação como O Cruzeiro veicularam vários artigos alertando sobre os problemas de abastecimento que decorreriam da localização da capital no Planalto Central.22 Na Tribuna de Imprensa, principal jornal de oposição a JK, Brasília, às vésperas de sua inauguração, foi considerada “agreste, poeirenta e incivilizada” e também sem condições para o abastecimento daquilo que seria essencial para sua população.23 Por outro lado, a Novacap promoveu uma campanha para defender-se das críticas e ainda em 1960 a revista O Cruzeiro publicou uma reportagem, assinada por Benjamim Soares Cabello (1960), cujo título sintetizava seu principal argumento: “Brasília: onde o abastecimento jamais será um problema” (Figura 1). Em meio a críticas e ao clima de euforia desencadeado pela construção da capital, estavam em andamento planos e projetos para organizar a ocupação do DF.

UM SISTEMA DE ABASTECIMENTO MODELAR E SUA CONFIGURAÇÃO TERRITORIAL
Entre 1950 e 1974, o Estado intensificou seu papel no setor do abastecimento e surgiu então, “pela primeira vez, de maneira orgânica e explícita”, um plano de abastecimento, com uma nova política, envolvendo também a criação de novos e sucessivos órgãos, ainda que viessem a se mostrar sem sucesso para evitar a continuada crise nesse setor.24 O principal órgão encarregado de planejar e coordenar essa política era o Conselho Coordenador do Abastecimento, criado ainda durante a presidência de Café Filho, em dezembro de 1954, e instalado em 1955. Em 1957, já sob o governo de Juscelino Kubitschek, um relatório do Conselho criticou o modo como o tema havia sido abordado até então, considerando que pela primeira vez o problema do abastecimento do país estaria recebendo “um tratamento metódico, global, racional e tecnicamente dirigido”.25 Como parte dos processos de planejamento empreendidos pelo governo JK, elaborou-se um Plano Nacional de Abastecimento com intuito de organizar a produção de alimentos, ampliar a rede de armazéns e silos, melhorar transportes e amparar a indústria e o comércio de alimentos, incluindo também programas de assistência, educação e “higiene alimentar”.26 O plano previa a criação de escritórios regionais para definir programas específicos, com base num roteiro de coleta de informações e de levantamentos de dados sobre vias de comunicação, população, organização da produção e formas de distribuição existentes. A base para organização dos produtores seria o cooperativismo, conforme estudos desenvolvidos pelo engenheiro agrônomo Valdiki Moura.
Em consonância com essa política mais ampla sob JK, em fins de 1957 foram apresentados dois planos escritos para a distribuição de atividades produtivas no território do DF: o Plano de Abastecimento e o Plano Industrial de Brasília, ambos de autoria do jornalista e economista Benjamim Soares Cabello, cuja participação em órgãos ligados ao abastecimento remontava aos anos 1940. O primeiro plano, de novembro de 1957, começou por lembrar o caráter inovador de Brasília e a necessidade de seguir a modernidade expressa em sua configuração: “[tudo] quanto ali [na capital] se fizer, deverá trazer aquele cunho de modernismo contido nas linhas funcionais, urbanísticas e arquitetônicas [do Plano Piloto]”27. Conforme uma outra versão do Plano de Abastecimento, o objetivo era modelar: “dotar a futura capital de um perfeito sistema de abastecimento, para que não se repitam os vícios e defeitos constatados em outros grandes centros consumidores, como sejam Rio de Janeiro, São Paulo e etc”.28 Para isso, entendia-se que a própria Novacap deveria assumir o encargo de organizar o sistema de abastecimento de Brasília, seja diretamente ou por meio de empresas mistas. Ainda na fundamentação inicial do Plano assinado por Cabello, esboça-se uma visão regional do abastecimento, “tendo-se em conta o desenvolvimento agropecuário e industrial de todo Distrito Federal e municípios adjacentes” e considerando-se que “as cidades-satélites que surgirem ao redor de Brasília - e não longe desta - deverão abastecer-se no Centro de Abastecimento de Brasília”.29 Como se vê, o paradigma da cidade central (referida, no texto, não como Plano Piloto, mas como Brasília) rodeada por cidades-satélites também subjaz à concepção do sistema de abastecimento.
O plano de abastecimento estava voltado para a produção hortifrutigranjeira e propunha uma infraestrutura baseada numa rede interligada de mercados do agricultor, centro de abastecimento e supermercados. O Centro de Abastecimento deveria estar situado no Plano Piloto, mas foi concebido como “uma cidade à parte”, contendo setores dedicados a estocagem, beneficiamento, comércio, administração e serviços gerais.30 Deveria servir não apenas à população do Plano Piloto, mas também das futuras cidades-satélites, onde haveria apenas mercados públicos locais. Os mercados do agricultor tinham o propósito de promover o desenvolvimento econômico - por meio da organização dos produtores, do fomento à produção e da orientação à comercialização - e visavam também ao desenvolvimento social, já que cada um deles proporcionaria acesso a educação, assistência médica, social e religiosa e também estimularia o associativismo da população rural a ele ligada. Conforme observou Luiz Augusto Rocha,31 as bases desse sistema estavam na atuação do Estado como “controlador, idealizador e mediador de todas as ações” e na “função social da terra, enquanto meio de trabalho, voltada para uma produção de abastecimento organizada e disciplinada nas [depois assim denominadas] USERs”.
O Plano de Abastecimento continha também determinações de ordem físico-territorial: propôs-se a divisão do Distrito Federal em sete regiões agrícolas, “excluída da zona rural a área circunscrita pela faixa de proteção às vertentes (Faixa Sanitária)”.32 Cabe ressaltar essa referência à “Faixa Sanitária”, cuja delimitação foi aprovada pela Novacap em 1958 e sancionada por decreto em 1962 como princípio de organização territorial do DF em três áreas: a “metropolitana”, situada no interior do perímetro da faixa, e, externa a ela, a área das cidades-satélites e da zona rural restante (Decreto 163 de 26 de fevereiro de 1962). Haveria cinco mercados do agricultor distribuídos no território e situados nos limites das regiões agrícolas, junto às principais rodovias e na parte externa da faixa sanitária. A Novacap arrendaria lotes onde seriam dispostas instalações produtivas, com destaque para granjas de produção intensiva, de modo a criar, “no território do Distrito Federal, uma nova Dinamarca”.33 Embora o Plano de Abastecimento não utilize a denominação Unidade Socioeconômica Rural (USER), seu programa de desenvolvimento econômico e social a partir da organização do território em sete regiões com cinco sedes de mercados viria estar na base dos projetos arquitetônicos elaborados em seguida.
No conjunto de formulações do Plano de Abastecimento, cabe ainda destacar a primeira referência que se conhece, já no contexto da construção da capital, a uma efetiva proposta de criar uma cidade-satélite, sendo que antes tais núcleos haviam sido apenas cogitados de modo genérico em relatórios das comissões de estudos. A cidade-satélite proposta naquele plano seria um núcleo ligado tanto ao Centro de Abastecimento como ao Centro Industrial e surgiria a partir da criação de uma “vila residencial”. Haveria casas alugadas para funcionários municipais, federais e da Novacap, assim como para “todos aqueles que tiverem interesse de ali residir”, incluindo “diferentes categoriais sociais”.34 Os terrenos deveriam ser vendidos nos mesmos moldes adotados para terrenos no Plano Piloto e as casas seriam construídas pela iniciativa privada, mas atendendo a normas arquitetônicas a serem dadas pela Novacap. Nesse caso, a noção de cidade-satélite apareceu já associada à ideia de um núcleo de caráter residencial e sem autonomia funcional, diferentemente tanto daquilo que preconizavam os precedentes do planejamento inglês como de modelos mencionados por protagonistas da construção de Brasília.35
O Plano de Abastecimento esboçou também um método para organizar o sistema de abastecimento considerando a gradual expansão populacional no Distrito Federal. Um documento do plano identificado como cópia de 30 de julho de 1959 previu etapas bem definidas quanto às construções a serem feitas em cada período, em função da população estimada em cada um deles. Tinha-se em vista, inicialmente, a data de inauguração de Brasília em abril de 1960, com uma população inicial de 300 mil pessoas, mas pretendendo-se chegar, mais tarde, ao dobro desse número de habitantes. Em 1960, já deveriam estar instalados os mercados de Guariroba e Sobradinho, almejando atender à população produtora das regiões de Sobradinho e Paranoá (que deveria atingir uma estimativa de cerca de 6.500 habitantes, quando todos os lotes rurais fossem distribuídos) e também a população consumidora da cidade-satélite de Sobradinho (cerca de 10 mil habitantes). O mercado produtor de Taguatinga-Guariroba, por sua vez, deveria estar então em funcionamento para atender à população produtora das regiões de Taguatinga, Guariroba, Brazlândia e Vargem da Bênção - que viria totalizar 8.500 habitantes - e também a população consumidora das cidades-satélites de Sobradinho e Taguatinga, considerando-se que esta última estava “já bem adiantada”. Além disso, em abril de 1960 deveriam estar concluídas também as construções consideradas prioritárias dentro do Centro de Abastecimento e instalados três supermercados em locais determinados do Plano Piloto.
Por fim, em anexo ao Plano de Abastecimento, incluiu-se o capítulo III, atribuído a Ptolomeu de Lucca, do texto “Do Governo dos Príncipes” (De regimine principum), iniciado por Tomás de Aquino. Ali se recomenda, com base em conhecimentos do tratado de Vitrúvio, que, na cidade “que vai o rei edificar”, além de se garantir a salubridade do lugar, deve-se assegurar que o aprovisionamento de alimento venha de sua própria região mais do que do comércio.36 Este excerto de um clássico do pensamento político do século 13 pode ser entendido como argumento de legitimação do plano apresentado, buscando associá-lo a modelos de caráter ideal e universal. Argumentos dessa natureza também foram a base de escritos e registros diversos em defesa da construção da capital.37
O Plano Industrial para Brasília, assinado por Benjamin Soares Cabello e datado de dezembro de 1957, também propôs uma lógica de implantação por etapas e foi concebido em articulação com o problema do abastecimento. A produção industrial em Brasília não deveria almejar a autossuficiência, mas “pelo menos a região circunvizinha ao DF” deveria se tornar “fortemente industrial”.38 Supõe-se que haveria, em 1970, cerca de 2 milhões de pessoas no DF - previsão, aliás, bem superior aos 538.351 habitantes aferidos depois pelo IBGE naquele ano - esperando-se que sua população urbana e rural teria alto poder aquisitivo. Um dos critérios adotados para classificar as indústrias de Brasília foi o de “imediatas”, ou seja, aquelas que seriam logo implantadas para dar apoio à construção de Brasília e as “mediatas”, “que se destinam a servir à vida dos habitantes de Brasília e do DF”.39
Os planos para o abastecimento e a indústria mantiveram a referência a princípios defendidos por Lucio Costa quanto à organização e distribuição de atividades. No Relatório apresentado por Lucio Costa em 1957 houve breve menção a esse respeito no item 4:
[...] as zonas destinadas a armazenagem, ao abastecimento e às pequenas indústrias locais, e, por fim, a estação ferroviária, foram-se naturalmente ordenando e dispondo ao longo do eixo transversal que passou assim a ser o eixo monumental do sistema.40
Os planos apresentados por Benjamim Cabello reportaram-se a esses princípios para propor a localização do Centro de Abastecimento e buscaram também assegurar preceitos urbanísticos mais amplos definidos por Lucio Costa:
Se não concentrarmos as indústrias em um ponto adequado, elas se dispersarão anarquicamente pelas redondezas de Brasília, comprometendo a harmonia urbanística que lhe assegurou o Plano Piloto e a própria urbanização das cidades satélites onde deverão se localizar.41
As determinações a esse respeito estavam também em consonância com a Resolução número 9 da Novacap, citada no Plano Industrial, que prescreveu:
[...] os estabelecimentos industriais do novo Distrito Federal serão localizados nas “cidades-satélites” da nova capital e “só por exceção” na zona rural, condicionando-se o tamanho de seus lotes, os prazos de seu arrendamento e o tipo de indústria.42
As cidades-satélites também comportariam indústrias, o que lhes daria certa autonomia funcional. Não se excluiu a instalação, no Plano Piloto, de pequenas indústrias, artesanatos e oficinas, mas proibiu-se expressamente o comércio por ambulantes, pois, conforme reforçou o Plano de Abastecimento, pretendia-se que “remanescências do passado sejam anuladas de antemão”.43 Além de prever a criação de um “Centro Industrial” ao lado do Centro de Abastecimento, com intuito de compartilhar linhas de comunicação e facilitar o acesso de vendedores e compradores da produção, o Plano Industrial retomou a ideia de dar início a uma cidade-satélite, ligada ao Centro de Abastecimento, onde se disporiam as chamadas “indústrias concentráveis”, ou seja, aquelas interligadas por relações de produção e consumo. Recomendou-se, por fim, que a Novacap criasse um Departamento de Planejamento e Estudos Econômicos, que trabalharia em cooperação com o Departamento de Arquitetura e Urbanismo, para lidar com problemas de produção e comercialização “em Brasília e no Distrito Federal”.44 Como se vê, enquanto se construía o Plano Piloto, havia um intenso trabalho de elaboração de planos envolvendo a organização do território do DF.
Em conformidade com a política mais ampla para estruturar o abastecimento do país e de suas regiões, em 1º de abril de 1958, um “esboço” de um Plano Regional de Abastecimento para o Centro-Oeste foi apresentado pelo economista Geraldo Alves Dias, chefe do escritório responsável por aquela região.45 Partindo do pressuposto de que, no âmbito do planejamento regional, o plano “não é uma imposição - como peça estática”, mas “seu mérito consiste na maleabilidade das recomendações que contém”,46 fixaram-se algumas metas essenciais que poderiam ser ampliadas em função dos interesses e necessidades regionais relativos ao processo de abastecimento em todas as suas fases (produção, estocagem, transporte, circulação e consumo).
A documentação relativa ao sistema de abastecimento de Brasília compreende também ofícios e bilhetes indicativos das articulações entre o Conselho Coordenador de Abastecimento e a Novacap. Como se lê num documento manuscrito, sem autoria e sem data, em papel timbrado do Gabinete da Presidência da Novacap, o planejamento do sistema de abastecimento envolveu coordenar atividades designadas a diversos Departamentos da Companhia (Terras e Colonização, Viário e Obras, Urbanismo e Arquitetura, Estudos e Planejamento Agrícola, Geral de Agricultura). Conforme o mesmo documento, a “urbanização” das USERs e do Centro de Abastecimento ficaria a cargo do Departamento de Urbanismo e Arquitetura, chefiado por Oscar Niemeyer.47 Embora não haja indícios de que isso tenha ocorrido, essa documentação é expressiva do modo ainda pouco conhecido de gestão interna da Novacap, além de atestar a intensa mobilização de esforços no sentido da organização do abastecimento e do planejamento de suas estruturas territoriais.
OS PROJETOS PARA COMUNIDADES RURAIS
Tendo por base os planos apresentados por Benjamim Cabello em 1957, no ano seguinte o arquiteto Lucídio Guimarães Albuquerque, chefe da Comissão de Projetos e Obras do Conselho de Abastecimento, concluiu seu próprio Plano de Abastecimento e enviou cópia dele para o presidente da República, para Lucio Costa e para o próprio Benjamim Soares Cabello.Lucídio Guimarães Albuquerque era então responsável pelo grupo de trabalho dedicado a projetos de centros de abastecimento, entrepostos e mercados em várias cidades brasileiras, tendo já realizado estudos de casos internacionais e viagem ao México para conhecer o sistema lá utilizado. A trajetória de Albuquerque mostra contínua preocupação com os problemas de organização do território e, mais especificamente, com Brasília, onde viria residir. Conforme seu próprio depoimento, desde os tempos em que cursou a Faculdade Nacional de Arquitetura na década de 1940, Lucídio Albuquerque interessou-se por urbanismo e planejamento regional. Em meados dos anos 1950, juntou-se à equipe da comissão liderada por José Pessoa Cavalcanti de Albuquerque para estudar a localização da nova capital. No fim dos anos 1950 colaborou com a Novacap no desenvolvimento de planos para o território. Quando se tornou professor da UnB, lecionou sobre o tema e buscou criar a disciplina de Desenvolvimento Regional Integrado.48 Na FAU-UnB, foi coordenador do curso por um curtíssimo período em fins de 1965, tendo sido afastado em razão de conflitos com os alunos.49 Permaneceu, porém, desenvolvendo estudos sobre planejamento regional, registrados em publicações posteriores acerca do tema.
Em 1958, em seu cargo no Conselho de Abastecimento e ainda no Rio de Janeiro, Lucídio Albuquerque elaborou a monografia Introdução ao Urbanismo regional: sistema de abastecimento de Brasília, publicada em 1960 pela Novacap. Ali, a organização do sistema de abastecimento foi vista como chave para “implantar um novo tipo de civilização no Planalto”, a partir da construção do Plano Piloto de Lucio Costa e da execução de “um Plano Regional de Desenvolvimento Econômico e Social”.50 Nas linhas gerais do que fora antes proposto para o abastecimento por Cabello, Albuquerque descreveu um modelo de ocupação do território rural do DF baseado em agrovilas ou, na denominação mais usada por ele, Unidades Socioeconômicas Rurais (USERs).51 O propósito das USERs era dar apoio ao desenvolvimento de comunidades rurais na área de sua influência e articular um sistema cooperativista de produção. Em cada uma delas haveria órgãos de administração rural, posto de correio, estabelecimentos de assistência médico-hospitalar, posto policial, escola primária, parques, centros de cultura, lazer e recreação e igrejas, além de um núcleo residencial.
A monografia de Albuquerque discorreu sobre o modo como as USERs se integrariam ao “processo socioeconômico” que caracterizaria o abastecimento e tratou da infraestrutura e da organização rural necessárias para isso, com o propósito de promover o “equilíbrio entre o território, a população e a economia regional”.52 Embora cite dados demográficos e estimativas de consumo de alimentos, o texto tem sobretudo caráter teórico ao dar indicações genéricas sobre a configuração do sistema previsto. Há, porém, uma breve menção ao contexto específico da construção da capital quando se considera que a organização proposta seria capaz de “absorver grande parte da mão de obra não especializada que ora se fixa em torno de Brasília, nos acampamentos de Taguatinga, Sobradinho e na chamada ‘Cidade Livre’”.53 O problema de lidar com ocupações irregulares no entorno do Plano Piloto já havia então desencadeado o início da cidade-satélite de Taguatinga e, conforme denota o texto, haveria preocupação com situações similares. A intenção de fixar populações no campo com intuito de evitar o inchaço urbano era corrente em discussões desse período e, no caso de Brasília, envolvia o peculiar problema da migração acelerada e em massa dos trabalhadores atraídos pelas obras de construção. Lucio Costa aludiu a essa questão numa entrevista em que esclarece o pensamento do “engenheiro, Sr. Pinheiro” - provavelmente se referindo a Israel Pinheiro, presidente da Novacap entre 1956 e 1960:
[...] uma vez terminada a fase inicial, dos 3 anos iniciais de trabalho intensivo, um terço da população obreira que tinha ido a Brasília para construir a cidade, chegado o momento da inauguração, voltaria para o seu “país” de origem; outro terço seria absorvido pelas próprias atividades locais urbanas; para o terceiro terço - como eram quase todos operários de tradição rural - a solução seria criar um cinturão verde, agrícola, em torno da cidade.54
Ainda que as formulações de Albuquerque estivessem em sintonia com o pensamento de Lucio Costa, não excluem críticas ao urbanismo funcionalista defendido pela Carta de Atenas (documento resultante do IV Congresso Internacional de Arquitetura Moderna de 1933), cujos princípios foram assimilados ao traçado do Plano Piloto. Sem deixar de mostrar deferência ao “consagrado mestre Lucio Costa”, Albuquerque alertou:
Não basta [...] que a cidade tenha um bom traçado de ruas e parques e jardins. A segurança e o bem estar de seus habitantes não se limitam a soluções tão simplistas, embora seja óbvio que um traçado urbano perfeito é imprescindível à organização da vida comunal em bases racionais. Mas não é o suficiente.55
E prossegue: “Os velhos fundamentos do urbanismo (condicionados aos princípios vitruvianos e mesmo àqueles contidos na CARTA DE ATENAS) carecem de revisão, face às exigências das sociedades modernas.”56 Defende-se um urbanismo que considere uma gama mais ampla de aspectos: “o geográfico, o político, o econômico, o social, o cultural, o estético, o sanitário, o demográfico, o étnico, o moral, o vegetativo e biológico, etc.”.57 E, a partir de conceitos extraídos da obra do sociólogo norte-americano Arthur Hillman (1909-1985), Albuquerque assim define comunidade:
grupo humano economicamente ativo, fixado em determinada área territorial, possuindo identidade cultural, com acentuada interação social e interdependência de assuntos comuns.58
Essa noção mostra-se afinada com debates desenvolvidos no início dos anos 1950 nos Congressos Internacionais de Arquitetura Moderna, nos quais emergiram argumentos utilizados em boa parte das críticas coevas à construção de Brasília.
Já em 1958 e pelo menos até 1960, Lucídio Albuquerque chefiou a equipe, composta por ele e pelos arquitetos Edgard Cerqueira Pinto e Cláudio R. Castelo Branco, responsável pelos projetos dos núcleos e instalações que fariam parte do sistema de abastecimento de Brasília. Os projetos foram elaborados pelo Departamento de Estudos e Planejamento Agrícola (Depa) da Novacap, em parceria com o Conselho Coordenador do Abastecimento. Não há evidências da participação direta de Niemeyer ou Lucio Costa nesses projetos, mas provavelmente eles estariam cientes dos trabalhos em andamento. Há registro, por exemplo, de que a planta do Centro de Abastecimento foi submetida à aprovação de Lucio Costa pelo diretor da Novacap Iris Meinberg.59
Os desenhos conhecidos de USERs estão em nível de anteprojeto e na maior parte em escala 1:100, datam de 1959 e referem-se a três das cinco unidades previstas: USER 1 Taguatinga, USER 1-2 Taguatinga-Sobradinho e USER 2 Sobradinho-Paranoá. Um ofício de 1959 faz ainda referência a desenhos da USER 3 Sobradinho. A referência para a implantação das USERs eram as zonas definidas em mapa do sistema de abastecimento, com data de março de 1960, no qual há indicação da locação do Centro de Abastecimento e de estradas e povoações existentes no DF (Figura 2). Tal como indicado no Plano de Abastecimento, as sedes das USERs foram situadas junto às principais estradas de acesso à Brasília e ao Plano Piloto, de modo que pudessem servir a duas zonas agrícolas (daí algumas delas terem nomes compostos) e na parte externa da faixa sanitária, cujo perímetro foi demarcado pela Estrada Parque Contorno (EPCT). No entanto, no mapa do DF de março de 1960 onde consta a distribuição das USERs no território, elas estão numeradas de 1 a 5, sem a indicação da USER número 1-2, o que sugere possíveis ajustes ao longo do desenvolvimento dos planos.

Em conformidade com as anteriores determinações escritas de Cabello e com os planos do próprio Albuquerque, os projetos compreendem, para cada uma das USERs, edifícios de caráter administrativo e de apoio ao produtor, tais como usina de laticínios e armazéns, serviços para a comunidade, tais como escola, hospital rural, igreja, banco, clube, restaurante, auditório e biblioteca, serviços de apoio para hospedagem de visitantes e um núcleo residencial para funcionários e técnicos. É provável que na escolha dos locais para elaboração dos primeiros projetos de USERs Lucídio Albuquerque tivesse considerado a existência ali - conforme mencionou em sua monografia de 1958 - de “acampamentos”, denominação usual na época para referir a ocupações informais ou precárias. Desse modo, as USERs visavam a absorver pelo menos uma parte da população considerada irregular ou alojada nas nascentes cidades-satélites.
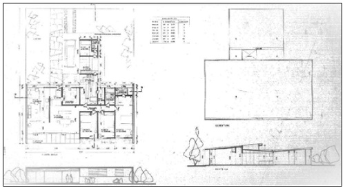
A implantação de cada uma das USERs segue uma orientação similar, porém não idêntica, em que os edifícios se distribuem livremente, mas com tendência para agrupar administração, produção e armazenamento em torno de um mesmo espaço verde, sendo que a escola, a biblioteca e o auditório perfazem outro conjunto e a capela e a casa do capelão estão ainda em outro espaço. As residências de técnicos e administradores ficam um pouco mais distantes da entrada principal da USER e são acessadas por vias cul de sac. Os projetos de arquitetura expressam padrões de composição baseados em princípios funcionalistas, com uma distribuição equilibrada dos volumes que se dispõem em meio a espaços verdes. Dos armazéns às residências, há uma linguagem compartilhada de grandes panos contínuos de esquadrias, elementos vazados ou vedações opacas e coberturas de lajes planas ou suavemente inclinadas (Figuras 5 a 9). A capela e o auditório destacam-se por sua volumetria, mas suas feições decorrem de seus programas arquitetônicos específicos e mantêm-se em harmonia com a linguagem utilizada nos demais edifícios do conjunto (Figuras 5 e 6). Trata-se, enfim, de projetos bem diferentes da impactante arquitetura escultórica de Oscar Niemeyer para o Plano Piloto, mas também muito distantes da marcada ausência de preocupação com a qualidade do desenho urbano ou da arquitetura nos planos iniciais das cidades-satélites.

![Perspectiva artística [ca. 1959]. USER 2 Sobradinho-Paranoá. Conselho Coordenador do Abastecimento.](../1982-0267-anaismp-28-e30-gf4.jpg)





A planta da USER 1, de 12 de julho 1959, na escala 1:1.000, mostra a disposição de seu conjunto de construções, com o principal acesso pela estrada Anapólis-Brasilia, tendo ao seu redor 20 lotes rurais para produtores vinculados a esse núcleo (Figura 3). Ao norte desses lotes e separada deles por córregos, veem-se as quadras da cidade-satélite de Taguatinga, iniciada em 1958. Ainda que representada de modo esquemático e incompleto, é possivelmente o mais antigo registro conhecido do traçado daquela que foi a primeira cidade-satélite a ser criada em Brasília. O conjunto da USER sobressai por suas dimensões e seu elaborado projeto, sugerindo a prioridade da comunidade rural em relação ao núcleo-satélite.
É provável que algumas das pranchas dos desenhos se destinassem a apresentar os projetos a autoridades ou técnicos, já que entre elas há uma perspectiva artística da USER 2 Sobradinho-Paranoá (Figura 4). Ali se veem os diversos edifícios distribuídos de forma livre, mas ordenada, em torno de grandes espaços verdes que definem praças gramadas atravessadas por itinerários pedestres. O conjunto define-se pelas controladas relações ortogonais entre lâminas horizontais dispostas num terreno plano, em que as variações ficam por conta da vegetação ou de alguns edifícios cuja forma geométrica se destaca ligeiramente, tal como o auditório trapezoidal ou a caixa-d’água cilíndrica.
Nos conjuntos das USERs, há dois modelos de arquitetura residencial: casas geminadas e casas isoladas (Figuras 8 e 9). Nos desenhos consultados, veem-se 48 casas em cada uma das USERs, mas com indicação de possibilidade de aumentar esse número. O maior tipo de casa estava destinado para administrador e técnicos, tinha 273 metros quadrados de área coberta, com três quartos, escritório, amplas salas de estar e jantar e dependências de empregada. Já as casas geminadas para funcionários tinham 120,25 metros quadrados de área coberta e três quartos. À parte essas diferenças, ambos modelos apresentam materiais, revestimentos e configurações similares. Além das residências para funcionários, haveria uma casa de um quarto para o capelão e um “motel” para estadia de visitantes. Os programas arquitetônicos sugerem que nas USERs residiria uma elite de funcionários, responsável por gerir núcleos fundamentais ao sistema de abastecimento previsto para o território. Tais núcleos eram dotados de relativa autonomia, de modo que sua população poderia frequentar o Plano Piloto apenas eventualmente.
CIRCULAÇÃO DE IDEIAS, PLANEJAMENTO REGIONAL E URBANISMO RURAL
Os projetos das USERs e os planos para sua distribuição ordenada no Distrito Federal mostram afinidade com princípios de planejamento regional correntes na prática profissional daquele período. Como observou Sarah Feldman,60 a dimensão regional de planejamento urbano emergiu no Brasil na década de 1950, articulada ao propósito de desenvolvimento socioeconômico, tendo em vista a descentralização urbana por meio de unidades de vizinhança, cidades-satélites e cinturões verdes. Em 1956, quando se elaborava o edital para o Concurso Nacional de Projetos para a Nova Capital, o Instituto de Arquitetos do Brasil (IAB) recomendou que um “esquema de plano regional para a área da nova capital” fosse um dos “pontos básicos” do texto (proposição do IAB para o edital).61 O edital veiculado em 1956 exigiu que se apresentasse um “traçado básico da cidade” e “um relatório justificativo”, além disso, solicitou a apresentação de esquemas para o território do Distrito Federal definindo a destinação funcional de suas áreas e a utilização das terras, a distribuição das redes de energia, abastecimento e transporte, além da “previsão de um desenvolvimento progressivo equilibrado” da cidade e da “distribuição conveniente da população nas aglomerações urbanas e nas zonas de produção agrícola”.62 Embora o item acerca do esquema de ocupação do território fosse o mais extenso do edital, ressalvou-se que aquilo era algo que “os candidatos poderão apresentar, dentro de suas possibilidades”, portanto facultativo.63
Entre as propostas apresentadas ao concurso para escolha do plano da capital, houve aquelas restritas ao traçado básico da cidade - como a de Lucio Costa -, mas também estudos com extensão e profundidade variadas acerca da ocupação do Distrito Federal. Considerando 25 planos para a nova capital elaborados entre 1927 e 1957, Jefferson Tavares64 constatou que quase metade deles evidenciava ênfase no planejamento regional do DF e previa modos de expansão urbana e de planejamento agrícola para o abastecimento da capital. Nessa linha, pode-se citar o trabalho apresentado pela equipe da Construtécnica chefiada pelo arquiteto Milton Ghiraldini, cujo relatório partiu de premissas bem diferentes daquelas adotadas por Lucio Costa. Considerando que a cidade ou “urbs” era apenas uma fração do território “e que não é a mais importante”, enfatizou-se que “o urbano, o rural e o primevo [ou a ‘natureza bruta’]” devem ser ordenados, de acordo com um “plano de coordenação territorial”, no âmbito do planejamento regional.65 Em sua proposta, a Construtécnica apresentou uma planta de organização do território do DF baseada no paradigma cidade central versus cidades-satélites em meio ao cinturão verde. Incluiu ainda fotografias da maquete de um “centro cooperativo rural” que tinha programa arquitetônico e configuração muito similares aos das USERs depois propostas pela Novacap. O júri elogiou aquele “bonito modelo de aldeia agrícola”.66 O planejamento regional também foi a tônica da proposta apresentado ao concurso por Carlos Cascaldi e João Vilanova Artigas. A equipe contou com o geógrafo Dirceu Lino de Mattos para atuar na “planificação regional”. Como parte do plano regional, a equipe previu centros rurais, voltados para o abastecimento do núcleo principal, nos quais haveria serviços de educação, saúde e recreação, também nos moldes depois adotados nas USERs. Na avaliação do júri, o “melhor e mais completo” estudo sobre a utilização da terra foi apresentado pela equipe dos irmãos Roberto.67 Seu detalhado plano regional previa dez distritos rurais, concebidos para expandir, assim como a cidade, em etapas planejadas. Entre as propostas apresentadas ao concurso atentas a problemas da organização do território, cabe citar ainda a de número 20, na qual José Geraldo da Cunha Camargo dispôs ideias depois desenvolvidas e sistematizadas no livro Urbanismo Rural, de 1973. De acordo com o presidente do júri do concurso, William Holford, as mais interessantes propostas concorrentes no concurso a respeito de temas como o planejamento rural e a organização social foram “assinaladas [pelo júri] para futuro estudo pela NOVACAP”.68 Não se exclui, portanto, a possibilidade de que, além de compartilharem similares padrões de planejamento urbano e regional, algumas das mencionadas propostas que concorreram ao concurso para escolha do plano da nova capital tivessem servido de inspiração para a o posterior projeto das USERs.
As propostas de criação de comunidades rurais planejadas em Brasília permitem evocar um ideário mais amplo em circulação internacional na primeira metade do século XX. Proposições acerca de um “urbanismo rural”, no âmbito de um plano regional e envolvendo a criação de comunidades cooperativas foram apresentadas por Norbert Bézard (1937) em Relatório anexo aos anais do V Ciam, em Paris, cujo tema geral foi Habitação e Lazer. Com base em ideias de Bézard, Le Corbusier apresentou já em 1934, e depois no Congresso de Paris, o projeto de uma aldeia radiante (village radieux), que funcionaria como centro para “fazendas radiantes” e compreenderia instalações administrativas e de produção, centro cultural e comunitário e núcleo residencial. No Brasil, a noção de urbanismo rural como planejamento social, econômico e físico do meio rural, com base na criação de comunidades planejadas e hierarquizadas, foi desenvolvida por José Geraldo de Cunha Camargo desde 1955 e posta em execução no norte de Mato Grosso e ao longo da Transamazônica, no Pará, nos anos 1970, tendo sido precedidos pela experiência de ocupação do norte do Paraná desde fins dos anos 1920.69 Ainda nos anos 1980, a noção de Unidade de Produção Agrícola, na qual se encontrariam habitações ao lado de equipamentos de uso comum e destinados à produção, foi desenvolvida como instrumento privilegiado de organização do território rural no campo de uma teoria de planejamento regional.70
DO RURAL AO URBANO, DOS FAZENDEIROS AOS CITADINOS
Em suas memórias, tanto Juscelino Kubitschek (2000) como Ernesto Silva (1970) descreveram o Plano de Abastecimento de Brasília e a ideia de criação das USERs como parte importante da concepção da capital. Além de reproduzir ideias e trechos daquilo que fora registrado nos já citados planos, também indicaram - conforme procedimento usual nos registros memorialísticos sobre Brasília - uma galeria de nomes de protagonistas envolvidos: nesse caso, Benjamim Cabello, Lucídio Albuquerque, Iris Meinberg e Joaquim Alfredo da Silva Tavares. Além disso, Ernesto Silva publicou uma imagem ilustrativa do fluxo de produção de alimentos, na qual se vê um detalhe de um dos projetos das USERs, o Centro de Abastecimento e um supermercado (Figura 10). Embora JK e Silva citem algumas iniciativas decorrentes daquele plano, não esclarecem sobre os problemas na implantação daquilo que fora planejado.

Conforme indicam os registros nas atas das reuniões do conselho dirigente da Novacap, em 1959, a implantação tanto de USERs como de cidades-satélites estava em andamento. Naquele ano, foram tomadas várias decisões envolvendo a ocupação do Distrito Federal, como, por exemplo, a criação de um “centro cooperativo de treinamento agrícola para jovens rurais”, a autorização de “execução da estrada de contorno da faixa sanitária”, a aprovação de “plantas do loteamento das cidades-satélites de Taguatinga e Sobradinho” e de plantas dos núcleos rurais de Monjolo e Sobradinho.71 No ano seguinte, impulsionou-se a construção das instalações da primeira unidade socioeconômica rural, em Taguatinga.72
O conjunto de decisões tomadas nesse período não permite inferir que estivesse sendo seguido o método de implantação das estruturas de abastecimento ou da indústria previsto nos planos, mas é bem possível que eles fossem referência para os procedimentos então adotados. No entanto, a imposição daqueles planos modelares parece logo se mostrar pouco plausível. Ainda em novembro de 1959, Iris Meinberg - representante do partido de oposição UDN no quadro de diretores da Novacap - renunciou ao seu cargo, alegando críticas a sua atuação por parte da opinião pública e de membros de seu partido. Até então, Meinberg havia estado à frente das iniciativas ligadas ao planejamento agrícola e à organização do abastecimento. Às vésperas da inauguração da capital, sua produção era insuficiente e teve-se de impor um plano de emergência para abastecimento de Brasília a partir de Goiás. Um decreto de 1962 buscou disciplinar o uso das áreas rurais do Distrito Federal estabelecendo a criação de núcleos agrícolas, sem empregar o termo USER. Ainda parece haver certo compromisso com esse conceito ao se prever, em cada um daqueles núcleos, a “utilização econômica e social das áreas nele compreendidas, de modo a se formarem conjuntos de comunidades agrárias, que integrarão o sistema socioeconômico do Distrito Federal”.73 Mesmo assim, ainda que a política de estabelecer núcleos rurais tivesse sido mantida na primeira década após a inauguração da capital, iniciou-se também a criação de colônias agrícolas, com áreas menores e sem a ampla infraestrutura de apoio prevista para os núcleos, além de se iniciar a distribuição das chamadas “áreas isoladas” que viriam legalizar ocupações irregulares.74
Na avaliação categórica de Lucio Costa, “o projeto de implantação de fazendas-modelo fracassou”.75 Por sua vez, James Holston apontou uma “radical mudança de planos” quando a Novacap iniciou a construção de cidades-satélites, a partir de 1958, em vez de prosseguir na ideia de instalar “cooperativas agrícolas”.76 Há evidências, porém, de que a ideia original das USERs e sua redefinição na proposta de núcleos rurais teve implicações para o modo como se deu a organização e a distribuição de uma estrutura produtiva rural no DF. O levantamento pioneiro das condições rurais no DF elaborado por Pastore em 1966 e publicado em 1968 e também os estudos subsequentes de Pébayle (1971) Bruno (1976) e Rocha (1992) tendem a concordar, em graus diferentes, que o território rural do DF foi transformado por meio das determinações da Novacap no sentido de fixar um cinturão verde, reordenar a estrutura de posse fundiária e introduzir novas formas de exploração agrícola. Os autores citados também concordam que, ao longo da década de 1960, emergiu no DF uma estrutura fundiária marcada por invasões, posses irregulares, propriedades com títulos e arrendamentos, de modo que a intenção inicial de ocupação produtiva da terra foi sendo sobrepujada pelo uso para subsistência e também por grandes projetos agropecuários, chácaras de lazer e loteamentos especulativos. Pébayle observou que, em fins dos anos 1970, a vida rural no DF era, “em parte, o resultado de um planejamento regional”, mas também indicou que se estabeleceu uma gama mais ampla de ocupantes do que aqueles inicialmente esperados, já que houve um ajuste às normas impostas:
[...] quer seja rico, quer pobre, proprietário a título provisório, fazendeiro ou invasor, absenteísta ou verdadeiro agricultor, o explotador [sic] do Distrito Federal adaptou-se com notável rapidez às condições fundiárias e econômicas totalmente novas impostas pela Novacap.77
Esse problemático quadro de ocupação do território rural naquele período parece estar relacionado, conforme indicam os autores antes mencionados, aos critérios de arrendamento de terras utilizados pela Novacap, em muitos casos movidos por interesses políticos, ao lado da baixa capacitação técnica dos lavradores, da deficiente infraestrutura de produção e de dificuldades próprias ao solo. Rocha78 apontou ainda uma lógica de conflitos entre a definição de áreas rurais e urbanas: se, por um lado, o sistema de arrendamento de terras rurais impediu inicialmente a expansão de periferias suburbanas, por outro lado, tais terras tornaram-se objeto de especulação, com a expectativa de que fossem depois liberadas para usos urbanos.
Uma conflituosa convivência entre o rural e o urbano pode ser depreendida também de um mapa elaborado pela Codeplan em fins dos anos 1960 como parte de uma série de estudos acerca da produção, industrialização e comercialização de gêneros alimentícios no DF, voltados para a elaboração de um “plano global de abastecimento”. Ali se veem áreas designadas “cidades”, o que indica, além do Plano Piloto, as áreas urbanas das regiões administrativas (antes denominadas cidades-satélites) em meio a áreas de núcleos rurais. Os estudos trazem ainda mapas da distribuição de escolas rurais e postos de saúde, muitos deles situados junto às sedes dos núcleos rurais. Grandes áreas não ocupadas separam o Plano Piloto dos núcleos urbanos e rurais, levando a ver que o paradigma da cidade central versus cidades-satélites em meio ao verde ainda tinha visível expressão no território. Esse ideário seria mantido, embora com muita dificuldade, por políticas de planejamento conduzidas até meados da década de 1970, quando a expansão urbana de Brasília tendeu a se tornar mais claramente interligada.79
Em síntese, esta análise dos planos para organização do sistema de abastecimento e da indústria no DF permitiu rever alguns tópicos da crítica a Brasília. Longe da suposta ausência de um planejamento regional em sua concepção, o território do DF foi, como se viu, objeto de planos abrangentes e projetos detalhados para estruturação de suas áreas rurais. Embora uma análise mais detida do modo como tais planos contribuíram para determinar a configuração daquele território ainda esteja por ser feita, pôde-se vislumbrar algumas de suas implicações na distribuição de núcleos urbanos e rurais à distância do Plano Piloto. Desse modo, a usual leitura de Brasília e suas cidades-satélites como simples contradição entre plano e realização também deve ser matizada. A ênfase tradicional no Plano Piloto traçado por Lucio Costa e sua icônica arquitetura não dá conta, enfim, da complexidade da formação de Brasília, que envolveu, desde seus primórdios, a escala mais ampla do território.
FONTES MANUSCRITAS
CABELLO, Benjamin Soares. Plano de Abastecimento para Brasília, Rio de Janeiro, nov. 1957a. Arquivo Nacional do Rio de Janeiro, Fundo Conselho Coordenador do Abastecimento, Pasta CPO/Construção. Estudos sobre centros de abastecimento. 1956-60.
CABELLO, Benjamin Soares. Plano Industrial de Brasília, Rio de Janeiro, dez. 1957b. Arquivo Nacional do Rio de Janeiro, Fundo Conselho Coordenador do Abastecimento, Pasta CPO/Construção. Estudos sobre centros de abastecimento, 1956-60.
COMPANHIA Urbanizadora da Nova Capital do Brasil, Conselho de Administração, Resolução n. 9. [s. l., s. d.]. Arquivo Nacional do Rio de Janeiro, Fundo Conselho Coordenador do Abastecimento, Pasta CPO/Construção. Estudos sobre centros de abastecimento, 1956-60.
DIAS, Geraldo Alves, Plano Regional de Abastecimento (esboço) [s. l.] 1 abr. 1958. Arquivo Nacional do Rio de Janeiro. Fundo Conselho Coordenador do Abastecimento, Pasta Programas Regionais de Abastecimento, 1957-58.
DIRETORIA da Novacap para Assuntos de Administração e Obras. Atas das reuniões de 1 jul. 1959, 24 jul. 1959, 9 out. 1959, 3 fev. 1960 ArPDF, Atas da Diretoria, NOV-B-2-2-0006 (2)d.
PLANO de Abastecimento de Brasília [s.l. s. d.]. Arquivo Nacional do Rio de Janeiro, Fundo Conselho Coordenador do Abastecimento, Pasta CPO/Construção. Estudos sobre centros de abastecimento, 1956-60.
PROGRAMA [Manuscrito s. l., s. d.]. Companhia Urbanizadora da Nova Capital, Gabinete do Presidente, Brasília, Arquivo Nacional do Rio de Janeiro, Fundo Conselho Coordenador do Abastecimento, Programas regionais de abastecimento, 1957-58.
RELATÓRIO. [s. l., s. d.] Arquivo Nacional do Rio de Janeiro. Fundo Conselho Coordenador do Abastecimento, Pasta Gab. Administração, Relatório das Atividades do CCA, 1956-1960.
FONTES IMPRESSAS
ALBUQUERQUE, Lucídio. Introdução ao urbanismo regional: sistema de abastecimento de Brasília. Rio de Janeiro: Conselho Coordenador do Abastecimento da Novacap, 1960.
BEZARD, Norbert. Urbanisme rural: rapport annexe [Congres Internationaux D’architecture Moderne]. Paris: [s. n.], 1937.
CABELLO, Benjamin Soares. Onde o abastecimento nunca será um problema. O Cruzeiro, Rio de Janeiro, ed. 12, p. 55-57, 2 jan. 1960.
COMISSÃO de Cooperação para Mudança da Capital Federal. Relatório anual. Comissão de Localização da Nova Capital Federal. [Rio de Janeiro]: [s.n.],1955.
COMISSÃO de estudos para localização da nova capital do Brasil. Relatório técnico. 1a parte, v. 1. Rio de Janeiro, 1948.
COMISSÃO de Localização da Nova Capital Federal. [Rio de Janeiro]:[s. n.], 1955.
COSTA, Lucio. Registro de uma vivência. São Paulo: 34/SESC SP, 2018.
COSTA, Lucio. Relatório do Plano Piloto de Brasília [1957]. In: RELATÓRIO do Plano Piloto de Brasília. Brasília: GDF, 1991. p. 18-34.
CREASE, David. Progresso em Brasília. In: XAVIER, Alberto; KATINSKY, Julio Roberto (Orgs.). Brasília: Antologia Crítica. São Paulo: Cosac Naify, 2012. p. 94-102.
GAMA, Alípio. Relatório apresentado pelo engenheiro militar Dr. Alipio Gama, In: COMMISSÃO de Estudos Nova Capital da União. Relatório Parcial por L. Cruls. Rio de Janeiro: Carlos Schmidt, 1896. D-1-60.
GLAZIOU, A. Notícia sobre Botanica Applicada pelo Dr. A. Glaziou. In: COMMISSÃO de Estudos Nova Capital da União. Relatório Parcial por L. Cruls. Rio de Janeiro: Carlos Schmidt , 1896, f. 1-13.
GHIRALDINI, Milton Carlos. Brasília: plano piloto. São Paulo: Construtécnica, 1957.
HOLFORD, William et al. Apreciação do Júri sobre o projeto de Lucio Costa [1957]. In: RELATÓRIO do Plano Piloto de Brasília. Brasília, GDF, p. 46-47, 1991.
HOLFORD, William. Reflexões sobre o Concurso [19 mar. 1957]. In: XAVIER, Alberto; KATINSKY, Julio Roberto (Orgs.). Brasília: Antologia Crítica. São Paulo: Cosac Naify , p. 27-32, 2012.
IBGE. A localização da nova capital da República. Rio de Janeiro: IBGE, 1948.
KUBITSCHEK, Juscelino. Por que construí Brasília. Brasília: Senado Federal, 2000.
NOGUEIRA, Brenno Cyrino. Indicações sobre o planejamento territorial rural: elementos de ruralística. [Texto de apoio] Disciplina AUP-200 Teoria do Planejamento Regional. FAU-USP, São Paulo, 1987.
OLIVEIRA, Giovanna Ortiz de. Lucio Costa. [Entrevista cedida a] Ana Rosa de Oliveira. Entrevista, São Paulo, ano 6, n. 023.03, jul. 2005. Disponível em: <Disponível em: https://bit.ly/3iwGCbf>. Acesso em: 18 fev. 2016.
PEDROSA, Mário. Brasilia, hora de planejar. Jornal do Brasil, Rio de Janeiro, 25 mar.1960, p. 3.
PREFEITURA do Distrito Federal. Decreto 163 de 26 de fevereiro de 1962, Art. 3. Disponível em: <Disponível em: https://bit.ly/3jngBMg>. Acesso: 2 jul.2020.
RELATÓRIO do Plano Piloto de Brasília. Brasília: GDF , 1991.
RESUMO das apreciações do júri. Módulo: revista de arquitetura e artes plásticas. Rio de Janeiro, n. 8, p. 13-16, 1957.
SILVA, Ernesto. História de Brasília: um sonho, uma esperança, uma realidade. Brasília: Coordenada, [1970].
ZEVI, Bruno. Seis perguntas sobre a nova capital sul-americana. In: XAVIER, Alberto; KATINSKY, Julio Roberto (Orgs.). Brasília: antologia crítica. São Paulo: Cosac Naify , 2012. p. 66-71.
LIVROS, ARTIGOS E TESES
ALMANDOZ, Arturo. Towards Brasília and Ciudad Guayana. Development, urbanization and regional planning in Latin America, 1940s-1960s. Planning Perspectives, v. 31, n.1, p. 31-53, 2016.
ALMEIDA, Jaime Gonçalves de. Universidade de Brasília: ideia, diáspora e individuação. Brasília: EdUnB, 2017.
BRITO, Jusselma Duarte de. De Plano Piloto a metrópole: a mancha urbana de Brasília. 2009. Tese (Doutorado em Arquitetura e Urbanismo) - Universidade de Brasília, Brasília, 2009.
BRUNO, Regina Angela Landim. As condições sociais da agricultura no Distrito Federal. Dissertação (Mestrado em Ciências Sociais) - UnB, Brasília, 1976.
CEBALLOS, Viviane G. de. “E a história se fez cidade...”: a construção histórica e historiográfica de Brasília, 2005. Dissertação (Mestrado em História) - Instituto de Filosofia e Ciências Humanas/Universidade Estadual de Campinas, Campinas, 2005.
DERNTL, Maria Fernanda. Além do plano: a concepção das cidades-satélites de Brasília. Arquitextos (São Paulo), v. ano 19, 2018. Disponível em: <Disponível em: https://bit.ly/2ZHDySq>. Acesso: 2 jun. 2020.
DERNTL, Maria Fernanda. O Plano Piloto e os planos regionais para Brasília entre fins da década de 40 e os anos 60. Revista Brasileira de Estudos Urbanos e Regionais, v. 21, p. 26-44, 2019. Disponível em: <Disponível em: https://bit.ly/2E2gVjf>. Acesso: 2 jun. 2020.
DERNTL, Maria Fernanda. Brasília e seu território: a assimilação de princípios do planejamento inglês aos planos iniciais de cidades-satélites. Cadernos Metrópole, v. 22, p. 123-146, 2020. Disponível em: <Disponível em: https://bit.ly/30oqOiI>. Acesso: 2 jun. 2020.
FELDMAN, S. 1950. A década de crença no planejamento regional no Brasil. In: XIII Encontro Nacional da ANPUR, 2009, Florianópolis. XIV Encontro Nacional da ANPUR. Florianópolis: ANPUR/UFSC, 2009. v. 1. p. 1-23.
FICHER, Sylvia. Das imprevidentes baixas densidades à imprudente verticalização. Urbana: revista eletrônica do Centro Interdisciplinar de Estudos sobre a Cidade, n. 10, v. 2, p. 278-298, 2019.
HOLSTON, James. A cidade modernista: uma crítica de Brasília e sua utopia. São Paulo: Companhia das Letras, 1993.
LINHARES, M. Y. L.; SILVA, F. C. T. História Política do Abastecimento (1918-1974). Coleção Estudos sobre o Desenvolvimento Agrícola Brasília. Binagri. v. 6, 1979.
LOPES, C. A. A loucura de Brasília: o antimudancismo nas páginas do jornal Tribuna da Imprensa (1956-1960). In: Encontro Nacional de História da Mídia: Mídia Alternativa e Alternativas Midiáticas, 7, 2009, Fortaleza-CE. Anais... Fortaleza: Alcar, 2009. Disponível em: <Disponível em: https://bit.ly/31LGoav>. Acesso em: 12 jul. 2015.
PASTORE, José; ROCHA, Fernando A. S., WILKENING, Eugene A. Madison. A agricultura e o homem no Distrito Federal, Brasil: relatório preliminar de uma investigação sociológica. Madison, WI: Land Tenure Center: University of Wisconsin, 1968.
PÉBAYLE, Raymond. A área rural do Distrito Federal brasileiro. Revista Brasileira de Geografia. IBGE, Ano 33, p. 39-83, jan-mar, 1971.
PEREIRA, Sergio Nunes. Na boca do sertão ou integrada ao ecúmeno? Militares, estatisticos, geógrafos e a localização da capital. In: SENRA, Nelson (Org.). Veredas de Brasília: as expedições geográficas em busca de um sonho. Rio de Janeiro: IBGE, 2010, p. 51-74.
REGO, Renato Leão. A integração cidade-campo como esquema de colonização e criação de cidades novas: do Norte Paranaense à Amazônia Legal. Revista Brasileira de Estudos Urbanos e Regionais (ANPUR), v. 17, p. 89-103, 2015. Disponível em: <Disponível em: https://bit.ly/38FPI1b>. Acesso em: 14 jun. 2019.
ROCHA, Luiz Augusto. Modernização e diferenciação social (o caso do programa de assentamento dirigido do Distrito Federal - PAD-DF). Dissertação (mestrado em sociologia) - UFRS, Porto Alegre, 1992.
SENRA, Nelson (Org.). Veredas de Brasília: as expedições geográficas em busca de um sonho. Rio de Janeiro: IBGE , 2010.
TAVARES, Jefferson. Projetos para Brasília e a cultura urbanística nacional. Dissertação (Mestrado em Arquitetura e Urbanismo) - EESC-USP, São Carlos, 2004.
VIDAL, Laurent. De Nova Lisboa a Brasília: a invenção de uma capital (séculos XIX-XX). Brasília: EdUnB , 2009.
VIEIRA, Tamara Rangel. No coração do Brasil, uma capital saudável: a participação dos médicos e sanitaristas na construção de Brasília (1956-1960). Hist. cienc. saúde-Manguinhos, Rio de Janeiro , v. 16, supl. 1, p. 289-312, Jul 2009. Disponível em: <Disponível em: https://bit.ly/2ZCkUKx>. Acesso em: 15 fev. 2020.
Notas
Autor notes