CONSERVAÇÃO E RESTAURAÇÃO
Desenvolvimento de ferramenta para mapeamento diagnóstico de riscos em edificação de salvaguarda e pesquisa: estudo do caso da Divisão de Coleções Especiais na Biblioteca Central da UFMG1
Developing a risk assessment mapping tool for safeguard and research buildings: a case study of the Special Collections Division at UFMG’s Central Library
Desenvolvimento de ferramenta para mapeamento diagnóstico de riscos em edificação de salvaguarda e pesquisa: estudo do caso da Divisão de Coleções Especiais na Biblioteca Central da UFMG1
Anais do Museu Paulista: História e Cultura Material, vol. 30, e23, 2022
Museu Paulista, Universidade de São Paulo
Recepção: 23 Novembro 2021
Aprovação: 08 Abril 2022
RESUMO: Quando se trata do planejamento e das ações de proteção às coleções, os gestores de instituições de salvaguarda e pesquisa são periodicamente confrontados com a necessidade de fazer escolhas e estabelecer prioridades. Isso implica, dentre outras coisas, em conhecer e compreender as características e dinâmicas da construção, de uma forma sistêmica e interdependente. Este trabalho propõe uma ferramenta para mapeamento diagnóstico de riscos em edifícios de biblioteca, que se mostrou factível em contexto real. A ferramenta responde à realidade das instituições de salvaguarda e pesquisa brasileiras, principalmente as públicas, pois trata-se de um instrumento de simples aplicação e de baixo custo.
PALAVRAS-CHAVE: Conservação Preventiva, Gestão de Riscos, Mapeamento Diagnóstico, Arquitetura de Bibliotecas, Avaliação Pós-Ocupação, Patrimônio Cultural.
ABSTRACT: When planning and taking actions to protect collections, managers of safeguard and research institutions are periodically confronted with the need choose and establish priorities. This implies, among other aspects, a systemic and interdependent knowledge and understanding of the characteristics and dynamics of the building. This study developed a risk assessment mapping tool for library buildings, which proved to be feasible in a real context. As a simple and low cost applicable instrument, the tool responds to the reality of Brazilian safeguard and research institutions, especially the public ones.
KEYWORDS: Preventive Conservation, Risk Management, Assessment Mapping, Library Architecture, Post-Occupation Assessment, Cultural Heritage.
INTRODUÇÃO
Um edifício de salvaguarda e pesquisa é uma tipologia complexa de construção, caracterizando-se muitas vezes como território de múltiplos papéis, de conflitos, de cruzamento de dinâmicas institucionais e de diversidade de usos e ocupações. Isso implica em desafios para a gestão e manutenção de sua infraestrutura e para a preservação do seu acervo, logradas somente a partir de conexões interdisciplinares de diversas áreas do conhecimento. O caso proposto para estudo envolve o diagnóstico de condições para conservação da Divisão de Coleções Especiais, na Biblioteca Central da Universidade Federal de Minas Gerais (BC-UFMG).
Tais coleções são registros que documentam o percurso - e seus meandros - do conhecimento nos campos da História, da História Natural, das Artes, da Literatura, do Direito e da Psicologia, para citar alguns exemplos. E estão, dessa forma, atreladas às referências de valor patrimonial da UFMG, propiciando elos de análise e reflexão entre a ciência, a sociedade e a própria universidade aqui referida, em suas feições históricas. Essas obras existem para serem preservadas, entretanto, igualmente importante é o seu reconhecimento e a sua ressignificação constante pela comunidade.3
Por outro lado, o contexto de ocupação recente da edificação BC-UFMG contribui para intensificar os desafios frente à proteção dessas obras. Entre 2014 e 2015, a BC-UFMG foi diagnosticada com a presença de treze instituições externas com divisões funcionando em seu interior: (1) a Coordenação de Assuntos Comunitários (CAC); (2) a Faculdade de Educação (FAE); (3) o Centro de Comunicação UFMG (CEDECOM); (4) a Rede de Museus; (5) a Escola de Música (EMU); (6) a Faculdade de Letras (FALE); (7) a Diretoria de Divulgação Científica (DDC); (8) a Diretoria de Ação Cultural (DAC); (9) a Pró-Reitoria de Recursos Humanos (PRORH); (10) a Escola de Belas Artes (EBA); (11) a Diretoria de Inovação e Metodologia de Ensino (GIZ/PROGRAD); (12) o Instituto de Ciências Biológicas (ICB); e (13) a Reitoria. Com os setores da BU-UFMG, os da própria BC-UFMG, e os compartilhados entre ambas, são pelo menos dezesseis territórios distribuídos na edificação.4 As demandas por abrigar novas divisões da Universidade na biblioteca, não necessariamente ligadas diretamente à sua vocação colecionadora, tendiam a continuar, ao menos à época do levantamento realizado. O que aumenta as chances de conflitos oriundos das limitações físicas e institucionais de ocupação da construção.
Para além das coleções especiais retratadas neste trabalho, destacam-se a Coleção Geral/Periódicos, vinculada parte à BC-UFMG, parte ao ICB; o Acervo Exatas e Biológicas, vinculado à BC-UFMG; e o Acervo Escritores Mineiros, vinculado à FALE, e que reflete uma proposta museográfica. Somados, esses espaços colecionadores ocupam cerca de apenas um quarto de toda a área construída do prédio da BC-UFMG.5 De um lado, portanto, encontra-se a fragmentação da biblioteca em salas com gestões, missões e rotinas independentes daquelas de salvaguarda. De outro, a dissociação como uma disposição inerente dos conjuntos ordenados com o passar do tempo.6 Esse cenário justifica a necessidade de um olhar cuidadoso para a edificação BC-UFMG, e expõe a complexidade desse sistema, principalmente no que se refere à conservação de suas coleções.
Destacam-se aspectos relacionados à infraestrutura do edifício e suas inter-relações com a materialidade do acervo, as políticas institucionais e as questões de segurança, sendo todos eles relevantes para o estabelecimento de contexto na Gestão de Riscos ao Patrimônio Cultural. O procedimento parte da análise dos riscos que incidem sobre o acervo; e culmina na sistematização de seu mapeamento por meio da exploração de instrumentos de apresentação diagnóstica desenvolvidos pelo campo da Avaliação Pós-Ocupação: os mapas de descobertas e os mapas de diagnóstico. Propõe-se, desta maneira, uma ferramenta de caráter preventivo denominada “mapa de proximidade de riscos potenciais” às coleções, oriundos de elementos físicos da infraestrutura”. A aplicação de tal ferramenta traz subsídios para as ações administrativas e projetuais referentes aos espaços de salvaguarda das coleções. Isso inclui critérios que nortearão a ordenação do mobiliário e consequentemente dos documentos, conforme as suas características materiais e o seu estado de conservação, por exemplo. Trata-se, assim, de uma maneira de estreitar o diálogo entre Arquitetura e Conservação, numa estruturação continuada de parâmetros conjugados para ajudar na tomada de decisões em bibliotecas.
O presente artigo, primeiramente, aborda de forma ampla o campo da Conservação Preventiva, sob a perspectiva do papel da edificação na proteção das coleções. Buscando, assim, dar sentido à importância dos processos de avaliação em instituições de salvaguarda e pesquisa, entendendo-os no contexto da Gestão de Riscos. Esta, por sua vez, é trabalhada no segundo item, onde são apresentados instrumentos diagnósticos para a conservação de acervos, bem como as potencialidades que residem em sua associação com propostas da Avaliação Pós-Ocupação. Dessa associação, cuja metodologia foi desenvolvida conceitualmente no terceiro item, e formalmente no quarto item, resulta a ferramenta de mapeamento diagnóstico de riscos apresentada neste trabalho. O quinto item, por sua vez, mostra a aplicação da ferramenta em contexto real, ou seja, no estudo de caso. E, por fim, tem-se as considerações finais do estudo.
O EDIFÍCIO ENQUANTO ENVOLTÓRIO PROTETOR DO ACERVO: CONSERVAÇÃO PREVENTIVA EM FOCO
Após as grandes guerras do século XX, diante da dimensão das destruições causadas pelos confrontos, inicia-se a instauração da noção de “patrimônio da humanidade”, pela qual a proteção dos bens culturais passa a ser um direito e um dever de todas as sociedades. Com isso, acentua-se a responsabilidade quanto à segurança da integridade física desses bens em seu aspecto coletivo; e consolidam-se grandes instituições com o intuito de salvaguardá-los e de garantir a solução pacífica dos conflitos: exemplos disso são a Comissão Internacional de Cooperação Intelectual (CICI) e a Organização das Nações Unidas (ONU).7
A Conservação Preventiva surge, consolidada como campo de trabalho e de pesquisa científica, reunindo um conjunto de “[...] ações tomadas para retardar a deterioração e prevenir danos aos bens culturais por meio da provisão de adequadas condições ambientais e humanas”. A partir de então, muito se tem trabalhado e estudado para o seu aprimoramento enquanto ciência, de forma que diversas instituições internacionais passam a voltar-se para esse objetivo, disseminando e discutindo orientações a fim de propiciar melhores condições de proteção às coleções.8
A introdução de métodos científicos de exame e diagnóstico, e também de critérios de preservação baseados no controle dos microclimas - com a aplicação de conhecimentos da Engenharia Civil, Mecânica e Elétrica, além de procedimentos e recursos da Meteorologia e da Biologia - deram partida a um movimento de deslocamento da práxis da Restauração: de oficinas particulares e mesmo de ateliês localizados nos próprios prédios das instituições de salvaguarda, para laboratórios específicos, por sua vez, implantados em Centros de Estudos e Universidades,9 como o Getty Conservation Institute (GCI), os Laboratórios de Conservação da University College London (UCL), juntamente com a Wolfson Archaeological Science Laboratories e o Institute’s Photographic Laboratory. Ou, no contexto regional, o Laboratório de Ciência da Conservação (LACICOR), do Centro de Conservação e Restauração de Bens Culturais (CECOR), na Escola de Belas Artes (EBA-UFMG).
Protocolos típicos da Conservação Preventiva passam a ser elaborados, circulados e compartilhados, em dois sentidos, para pensar o melhor gerenciamento das transformações das caraterísticas físicas dos materiais presentes nos acervos: no sentido de redução da taxa dessas mudanças,10 e em resposta à complexidade atrelada ao controle da qualidade ambiental nos espaços de salvaguarda.11
Por outro lado, a partir da década de 1970, com os impactos da aceleração do quadro de expansão industrial e do crescimento descontrolado das metrópoles, a Europa se preocupa com o patrimônio milenar de suas cidades. Avanços nas pesquisas relacionadas à climatização de edifícios de salvaguarda e pesquisa seguem nos anos 1980, com a utilização de novos métodos científicos na preservação do acervo cultural. Nesse cenário, o edifício passa a ser pensado a partir de sua condição indispensável de reciprocidade com os acervos que contém, e não mais como um simples depositário dos bens culturais.12
Tal sensibilização influencia no processo de conscientização e na formação de equipes interdisciplinares de investigação, por sua vez, articuladas conforme as realidades financeiras, climatológicas, históricas e físicas dessas edificações. Compatíveis, também, com a tipologia e estado de conservação das coleções nelas abrigadas.13
Novos parâmetros de avaliação de acervos vêm se desenhando a partir de uma visão interdisciplinar, que associa Humanidades, Ciências Exatas e Biológicas. Com o reconhecimento da avaliação do significado e do potencial das coleções como parte integrante da gestão estratégica em instituições de salvaguarda e pesquisa, percebeu-se que seus princípios não poderiam mais ser estruturados a partir de somente uma abordagem.14 Isso recai também sobre a Arquitetura e Urbanismo, importante área profissional nas contribuições para a consolidação da Ciência da Conservação.
Dentre os recursos que devem ser analisados e empregados estrategicamente para a redução de possíveis danos às coleções, estão os relacionados à concepção e aos elementos arquitetônicos, ao sistema estrutural, e às instalações prediais e equipamentos implantados no edifício.
A fim de sistematizar todas essas informações, no sentido de ler, interpretar, avaliar e propor medidas de gestão de riscos em uma edificação de biblioteca, é fundamental a implantação de protocolos de diagnóstico. Trata-se da primeira etapa do planejamento estratégico, por sua vez vital para qualquer ação de conservação preventiva, pois é indispensável no estabelecimento do contexto na metodologia de gestão de riscos aplicada à preservação dos acervos.
FERRAMENTAS DIAGNÓSTICAS DA CONSERVAÇÃO E LIÇÕES DA AVALIAÇÃO PÓS-OCUPAÇÃO: NOVAS PERSPECTIVAS PARA EDIFÍCIOS DE SALVAGUARDA E PESQUISA
Segundo Sherelyn Ogden, para se iniciar o processo de identificação das prioridades institucionais de preservação, além de informações confiáveis sobre a dimensão e os tipos de deterioração presentes, deve-se ter também ao alcance dados sobre as condições do ambiente onde se armazena e utiliza os materiais, “e sobre os sistemas e as políticas, tais como detecção e supressão de incêndio e medidas de segurança que protegem as coleções contra danos, destruição ou perda”.15 Os exemplos trazidos pelo International Centre for the Study of the Preservation and Restoration of Culture Property, em parceria com o Canadian Concervation Institute (ICCROM-CCI) no que se refere ao planejamento e adoção de medidas para a salvaguarda dos acervos, de alguma maneira, direta ou indiretamente, envolvem a estrutura física da edificação e seus elementos arquitetônicos.16
Willi de Barros Gonçalves chama atenção para uma série de causas de danos aos acervos relacionadas à construção. Elas podem ser intrínsecas, isto é, decorrentes de mecanismos de degradação relacionados à infraestrutura da própria edificação, como a má qualidade dos materiais utilizados ou problemas na execução, ou extrínsecas, como catástrofes naturais (terremotos, erupções vulcânicas, enchentes etc.) e eventos, como incêndios.
Nessa avaliação, a infraestrutura é analisada de maneira conjunta com a materialidade das coleções e com as políticas institucionais. Os quesitos de segurança que impactam nas condições de preservação do acervo funcionam, por sua vez, como eixo analítico transversal (Figura 1).17

O presente trabalho se apoia em duas linhas de estudo: protocolos de diagnóstico referentes às condições de armazenagem de acervos em instituições de salvaguarda, e aspectos metodológicos da Avaliação Pós Ocupação para apresentação diagnóstica.
Os protocolos diagnósticos mais conhecidos e utilizados consistem em questionários e listas extensas (checklists).18 Destaca-se, dentre outros, o método RE-ORG, elaborado pelo ICCROM em conjunto com o CCI, que busca melhorar as condições de armazenamento no interior das instituições de salvaguarda. As diretrizes deste método trabalham com a escala do mobiliário (tipologias, materiais, dimensões, distribuição, taxa de ocupação etc.), e sua relação com a sala na qual conforma o leiaute (Figura 2). O método é composto por: (1) livro de exercícios, com instruções passo a passo essenciais aplicáveis à maioria dos projetos; (2) planilhas, para levantamento de informações essenciais; e (3) recursos adicionais, que consistem em ferramentas para casos específicos.19

Naiara Gonçalves et al. e Willi de Barros Gonçalves, por sua vez, desenvolveram uma ferramenta simplificada de diagnóstico, que pondera aspectos e critérios qualitativos e quantitativos. O diagnóstico é organizado por seções: instituição; entorno; edifício; sala; mobiliário; embalagem; coleção; segurança; e reserva técnica. Para cada uma delas, uma pontuação é atribuída, podendo ser negativa (prejudicial à conservação) ou positiva (favorece a conservação). O modelo oferece quatro níveis de influência, para efeito de ponderação: 0 (não afeta); 1 ou -1 (pequena); 2 ou -2 (média); 3 ou -3 (grande). A pontuação global é calculada a partir desses valores (Tabela 1).21

Ao mesmo tempo, a Avaliação Pós-Ocupação vem incrementando esforços para o desenvolvimento de ferramentas de apresentação diagnóstica em ambientes complexos, tais como bibliotecas, e em contextos nos quais essas ferramentas podem ser replicadas ou desdobradas (como escolas).22
No caso das instituições museológicas, nacionalmente há poucas pesquisas que contribuem efetivamente para a gestão dessa categoria de espaços. E menos ainda as baseadas em levantamentos in situ. É possível dizer que as bibliotecas sofrem da mesma carência. O trabalho de Raissa Melo de Souza e Sheila Walbe Ornstein enfoca no próprio edifício como objeto histórico-cultural, e na experiência do usuário como estratégia de conservação.23 Embora a análise nele feita não se estenda para a relação entre a conservação dos elementos construtivos da edificação e a conservação das coleções nela abrigadas, trata-se de um importante passo nas metodologias para a compreensão do ambiente construído com funções museais. Ademais, iniciativas para suprimir ou conter o avanço de falhas nos sistemas prediais refletem também na diminuição dos perigos para o acervo.
Sheila Walbe Ornstein et al. adotam uma ferramenta a qual denominam “mapa de descoberta”. Consiste “em apresentações gráficas dos pontos fortes e fracos de várias características do edifício”. São contempladas também as recomendações de mudança, bem como as legislações e regulamentos pertinentes para as diversas plantas baixas do prédio e de suas áreas externas circundantes. Símbolos e códigos, acompanhados de suas respectivas legendas, identificam cada tópico com seu nível de risco correspondente (Figura 3).24
Na Arquitetura, estudos, propostas e planos de execução comunicam-se amiúde por meio da representação gráfica, classicamente plantas, cortes, fachadas e perspectivas. Para a Gestão de Riscos, incorpora-se o funcionamento diário do edifício em seu contexto real e sistêmico. Dessa maneira, podem ser úteis representações bi e tridimensionais dos elementos da construção, para explicar e acompanhar procedimentos de conservação atrelados à infraestrutura.
Como ressalta Willi de Barros Gonçalves, o roteiro de diagnóstico simplificado é uma ferramenta desenvolvida sob a perspectiva evolutiva, devendo ser continuamente adaptada e aperfeiçoada.25 Dessa maneira, novas sistematizações propostas, condicionadas a uma sensibilidade quanto à gestão e interpretação do espaço propiciada pelo campo da Arquitetura, carregam um potencial de incrementar procedimentos diagnósticos em edifícios de biblioteca, ao que se refere à avaliação de suas condições de conservar as coleções.
GESTÃO DE RISCOS EM BIBLIOTECAS COM ENFOQUE NO CONHECIMENTO DA EDIFICAÇÃO
Antes de adentrar nos procedimentos metodológicos adotados para prototipar a ferramenta que se apresenta, é importante trabalhar conceitualmente a relação proposta entre Conservação e as bases de levantamento e avaliação da Arquitetura e Urbanismo, notadamente vistas nos estudos de Avaliação Pós-Ocupação. Diante disso, este item visa oferecer percursos iniciais de fusão entre esses campos de atuação, consistindo-se no primeiro passo da metodologia.
A partir de uma análise que considera as relações materiais entre o acervo e a edificação que o contém, emergem potencialidades de novos mapeamentos, especialmente relativos aos riscos que pairam sobre as coleções. Nesse aspecto, pode-se considerar um redesenho dos aspectos físicos da biblioteca, de forma que o próprio propósito da arquitetura e infraestrutura sejam direcionados à Conservação. Para isso, vale lançar mão da estratégia do diagrama das envoltórias protetoras utilizado pelos principais guias de conservação preventiva em instituições de salvaguarda e pesquisa, e sobrepô-las às peças gráficas usuais na representação arquitetônica.
A Figura 4 enforma as camadas de envoltório do acervo ao longo da representação gráfica da construção e do seu terreno de implantação. A variação da escala da planta de situação do prédio permite uma análise, em abrangência de área e nível de detalhes, desde o contexto regional mais amplo até os elementos integrados à vizinhança urbana. Para exemplificar, essa tipologia de peça gráfica - “planta” - foi associada a outra, a “perspectiva”. Nesta, foram distribuídas as demais camadas de envoltório, do entorno da edificação até a embalagem.

No Quadro 1, as camadas de envoltório - identificadas com as mesmas cores da Figura 4 -, são associadas a quais peças gráficas arquitetônicas são mais capazes de representá-la. Por exemplo, os detalhes construtivos de uma divisória interna ou de uma estante não aparecem na peça gráfica “fachada”. Da mesma forma que uma planta de pavimento não consegue retratar com detalhes a cobertura do prédio. Por outro lado, tanto uma planta de implantação quanto uma fachada conseguem representar informações do entorno imediato de uma biblioteca. E um corte consegue associar num mesmo desenho espaços e elementos internos (sala e mobiliário, por exemplo), e espaços e elementos externos (entorno imediato, paredes externas e cobertura, por exemplo).

Os Quadros 2, 3 e 4 fazem uma associação entre agentes de deterioração do acervo e os elementos físicos do edifício. Isso facilita evitar o surgimento de situações de perigo, bem como mapear perigos existentes. Para a gestão, importa afastar deles as coleções, diminuindo e até mesmo eliminando os riscos. Cada quadro é concebido para um determinado agente de destruição, e traz preocupações referentes a ele em diversas especialidades e contextos da construção. Para completar, são trazidos exemplos de perigos às coleções, gerados a partir da combinação “agente + elemento construtivo”. Os diagramas contemplam, respectivamente, água e umidade relativa, forças físicas, e temperatura e radiação - a título de ilustração, de maneira que o modelo se aplica aos outros agentes de dano.



Vale colocar que esses níveis se superpõem, não havendo uma separação determinística entre eles. Por exemplo, um mesmo elemento da infraestrutura pode ser fator de risco em diferentes escalas e camadas de envoltório, ou seja, eles podem se repetir. E ainda, um elemento num nível pode ser causa de um segundo elemento em outro nível. Trata-se de uma análise integrada da edificação e seus espaços e equipamentos, ou seja, uma avaliação sistêmica.
A Figura 5, por sua vez, traz um corte esquemático ilustrando a correlação entre os componentes físicos da edificação e entorno, os agentes de deterioração, e os riscos associados. Mesmo que idealmente as análises espaciais sobre a gestão de riscos às coleções sejam feitas em representações tridimensionais, às representações arquitetônicas de planta e corte também podem ser integrados os fatores envolvidos no diagnóstico de risco. Isso pode ser uma estratégia de levantamentos de as built no local, por exemplo, por ser de mais simples feitura. Cabe ainda salientar os modelos paramétricos de alimentação de informações para estudos no ambiente construído. Destaca-se o BIM (Building Information Modeling), que permite um trabalho integrado e simultâneo entre diversas especificidades técnicas, bem como a atualização frequente dos dados no âmbito da gestão das ações (estudos preliminares, projetos, restauros, manutenção etc.).

Em 2020, foram realizados levantamentos in loco dos aspectos físicos da Biblioteca Central da UFMG, principalmente os pertencentes às camadas de envoltório apontadas como mais problemáticas em diagnóstico realizado em 2019 no local (Tabela 2), ou seja, entorno, edifício e sala. O processo de levantamento realizado no ambiente construído do estudo de caso foi dividido em quatro momentos: (1) levantamentos fotográficos; (2) levantamentos métricos; (3) elaboração de croquis de leiaute e anotações sobre plantas com as built formal da instituição; e (4) acompanhamento e assistência da coordenação do setor. Em posse dessas informações-base, foi possível identificar potenciais áreas de risco oriundas da manifestação dos agentes de deterioração, a partir dos elementos físicos do prédio. A organização desses dados teve como base o “quadro-síntese de diagnóstico”, originário da Avaliação Pós-Ocupação26 (Quadro 5).


LIDANDO COM MAPEAMENTOS DIAGNÓSTICOS: PERCURSOS PRELIMINARES PARA A CONSERVAÇÃO DAS COLEÇÕES DE BIBLIOTECA
Uma vez construída a estratégia para a melhor compreensão da relação entre edifício e riscos às coleções, é hora de pensar em como conformar a ferramenta proposta. Ou seja, em como ela vai se apresentar aos gestores em forma de informações técnicas sintetizadas e transmitidas, de maneira a constatar a sua viabilidade. Os levantamentos de campo, como visto, possuem cunho investigativo e exploratório, correspondem aos métodos e técnicas adotados para a coleta de informações, e compõem o diagnóstico da Divisão de Coleções Especiais BU- UFMG.27 Um último passo refere-se à forma de apresentação dos resultados, e possui caráter qualitativo. É inspirado nas referências da Avaliação Pós-Ocupação, particularmente nos mapas de descobertas28 e nos mapas de diagnóstico29 (Quadro 6).

Trata-se do desenvolvimento da ferramenta “mapa de proximidade de riscos potenciais às coleções, oriundos de elementos físicos da infraestrutura”. Primeiramente, esta proposta atual adapta os critérios que balizam a organização dos aspectos identificados na abordagem exploratória. Cada agente de deterioração às coleções passa a ser um critério de desempenho para a organização das informações levantadas em campo.
Depois, ajusta-se a relevância aferida para que fique atrelada à distância, em planta, entre o item analisado (elemento construtivo) e o objeto salvaguardado. As distâncias são parâmetros amarrados qualitativamente aos riscos: quanto mais perto, maior a chance de exposição da coleção aos riscos. Os itens dão lugar às letras que referenciam o elemento construtivo analisado, e o aspecto refere-se ao elemento construtivo propriamente dito. Por exemplo: item “JA” (aspecto janela). A descrição da situação identificada se mantém sem alterações, e se dá, inclusive, por meio de fotografias.
O Quadro 7 resume as correspondências e adaptações que permitem, a partir do quadro-síntese de diagnóstico, a proposição dos componentes do mapa de proximidade de riscos potenciais às coleções, oriundos de elementos físicos da infraestrutura.

Nos quadros-síntese de diagnóstico adaptados são considerados os agentes de deterioração como cada critério ao qual a edificação tem que responder. Eles são adotados nos mapas de proximidade, assim como os critérios de desempenho são empregados nos mapas de descoberta. A Figura 6 ilustra o esqueleto do mapa de descobertas, usado como ferramenta metodológica para a elaboração do mapa de proximidades.

A Figura 7 fornece um guia para a leitura dos mapas de proximidade. Cada barra de transição de cor representa um módulo de estante. Vale frisar que a barras são fiéis apenas à largura e à profundidade dos módulos, por razão da precisão de sua localização e escala em planta. A altura das barras, bem como a cor, refere-se à distância, também em planta, entre o módulo e o elemento construtivo analisado. O vermelho mais alto indica maior proximidade, e o verde mais baixo, menor. Futuras pesquisas podem incorporar maior precisão dos mapas com a incorporação das distâncias verticais. Neste caso, o enfoque chegaria ao nível da posição do objeto no módulo. Bem como consideraria as diferenças entre as alturas dos módulos.

Para cada módulo, são destacados os dois elementos construtivos críticos mais próximos. Há casos em que predomina apenas a proximidade de um único elemento construtivo que pode vir a ser fonte ou vetor de perigo para o acervo. Para cada elemento apontado, caso venha a sofrer falhas, associa-se os agentes de deterioração que podem ser acionados a partir delas.
MAPA DE PROXIMIDADE DE RISCOS POTENCIAIS ÀS COLEÇÕES, ORIUNDOS DE ELEMENTOS FÍSICOS DA INFRAESTRUTURA: VIABILIDADE E CONTEXTO REAL
Antes de mostrar as informações obtidas a partir da aplicação da ferramenta de mapeamento de riscos proposta, é importante uma apresentação, mesmo que breve, do edifício relacionado ao estudo de caso.
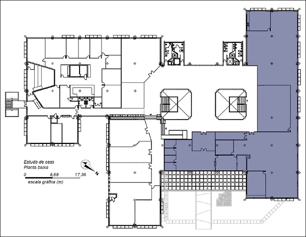
A BC-UFMG (Figura 8) é um exemplar do período tardio do Modernismo, e caracteriza-se por um módulo quadrado conformado por quatro pilares de seção quadrada, quatro vigas periféricas e uma laje do tipo nervurada. Quando combinados dois ou mais módulos, espaços livres para a distribuição de instalações são gerados entre os pilares e entre as vigas. Além disso, há uma clara distinção entre elementos do módulo estrutural e elementos que conformam a infraestrutura, como vedações e subdivisões internas.30 Atualmente, a BC-UFMG possui uma área construída de 14.889 m², dispostos em planta de partido irregular. A volumetria do prédio é dinâmica, possuindo pisos desnivelados: a porção periférica é dotada de quatro pavimentos,31 no espaço central da edificação encontram-se o subsolo e, sobre ele, o hall de entrada com mezanino.
A Divisão de Coleções Especiais BU-UFMG (Figuras 9 a 13), por sua vez, é estruturada em três grandes vertentes. Duas delas reúnem objetos raros e especiais, cuja missão é preservar o acervo reconhecido como importante por seu valor de representatividade para um determinado grupo social, por seu valor histórico ou por sua relevância para a instituição universitária. A terceira agrupa publicações estritamente bibliográficas, parte da produção intelectual da UFMG.32




Em 2020, todas as salas de acervo da Divisão de Coleções Especiais BU-UFMG foram submetidas à ferramenta, fornecendo um cenário geral para o setor (Figura 14).

A Divisão encontra-se no quarto pavimento da Biblioteca Central, portanto, guarda relação íntima com a cobertura do prédio. Esta, por sua vez, é tida como o subsistema construtivo mais vulnerável, e precisa ser submetido a requisitos rigorosos de desempenho.33 Isso deve se refletir também nas demandas de conservação do acervo, assim, não é recomendado o armazenamento de coleções no último pavimento de um edifício.
Dessa maneira, para o presente estudo, importa principalmente os pontos de maior fragilidade da cobertura superior, pois neles incorre a maior probabilidade de infiltração de água para as salas de acervo. Nesse sentido, vale uma atenção especial para as juntas, principalmente em regiões onde se encontram mais expostas ao desgaste e ao ressecamento. A Figura 14, associada à Figura 15, fornecem uma ideia dessa influência sobre as condições de preservação das coleções, onde as áreas de maior risco se distribuem nos ambientes conforme esses elementos de vedação.

Dentre os espaços levantados, os de maior área de acervo foram escolhidos para a produção dos seus respectivos mapas de proximidade. Eles correspondem: (1) à sala Reserva Técnica (Figura 16); (2) à sala Coleções Especiais (Figura 17); (3) à sala Memória Intelectual da UFMG (Figura 18); e à sala Museu Jurídico Assis Chateaubriand (Figura 19).




Além disso, há também o mapa Geral (Figura 20), direcionado aos revestimentos de piso e forro, já que as manifestações de perigo às coleções relacionadas a esses elementos são difusas no estudo de caso.

A Reserva Técnica conserva as obras mais raras e antigas da instituição estudada, sendo a única sala com controle microclimático. Apesar de ser isolada do ambiente externo do edifício, o que condicionaria uma maior proteção ao acervo, ela está vulnerável aos riscos decorrentes do próprio equipamento de ar-condicionado que a climatiza, tais como os provocados por infiltrações e fogo, a partir de um eventual curto-circuito, por exemplo.
A sala Coleções Especiais já enfrenta alguns perigos relacionados a falhas na cobertura da edificação, bem como outros relativos à ação da radiação solar direta e à entrada de pragas e poluentes, resultado da proximidade considerável das janelas da edificação e de sua orientação no terreno. Ao cenário, soma-se o sistema de shafts concebido para a BC-UFMG.
Tanto a sala Memória Intelectual da UFMG, quanto a Museu Jurídico Assis Chateaubriand demonstram um cenário similar à sala anterior, entretanto, manifestam menos perigo relacionado a infiltrações.
Ainda sobre a sala Museu Jurídico Assis Chateaubriand, chama a atenção o estado de conservação de algumas estantes e a proximidade entre os módulos do mobiliário.
Vale mencionar também a taxa de ocupação das salas estudadas, que evidencia desafios quanto à ampliação natural do volume de acervo ao longo do tempo, própria de instituições de salvaguarda e pesquisa funcionais. No estudo de caso, ocorre um processo de contração da área destinada a acervo. Os fatores que provocam tal movimento se dividem em dois grupos: (1) falta de salas de apoio; e (2) presença de zonas de perigo para as coleções. O primeiro caso reúne uma metragem quadrada insuficiente da atual sala que comporta o Laboratório de Restauração e Conservação, ausência de compartimento de almoxarifado e ausência de sala de arquivo administrativo da própria Divisão. Toda essa carência de espaço é compensada em área destinada a acervo. O segundo, por sua vez, é caracterizado basicamente por locais de infiltração de água ao longo da cobertura (Figura 20), dos quais as estantes têm que ser afastadas.
Por fim, para além dos aspectos quantitativos de área disponível, também convém discutir a maneira que ela se divide nos compartimentos e se distribui ao longo da Divisão de Coleções Especiais. Nesse sentido, cabe perguntar se as potencialidades da arquitetura aberta pensada para o edifício são de fato aproveitadas para as dinâmicas flexíveis de uso e ocupação. Especialmente em relação às dinâmicas conformativas do acervo, pois importa para a Conservação saber se há condições adequadas para a expansão contínua dos volumes.
CONSIDERAÇÕES FINAIS: REFLEXÕES SOBRE O RESULTADO TRANSDISCIPLINAR
As questões institucionais da biblioteca enquanto edifício de salvaguarda e pesquisa - principalmente na esfera pública -, requerem instrumentos de gestão que facilitem a tomada de decisões diante dos perigos que possam incidir sobre as coleções, num contexto muitas vezes de limitação de recursos e de desafios de representatividade diante da sociedade. Soma-se a isso as questões essenciais relativas à segurança dos usuários.
A situação torna-se mais delicada quando envolve obras raras, como é o caso do objeto de estudo. A Divisão de Coleções Especiais possui exemplares preservados que vão desde o século XVI ao século XX, com características materiais próprias, que demandam infraestrutura e qualidade ambiental específicas para a sua conservação.
Para lograr o aprofundamento necessário entre os campos da Arquitetura e Urbanismo e da Conservação Preventiva, o trabalho desenvolvido aplica um esforço no sentido de entender as ferramentas de diagnóstico desenvolvidas nos dois campos científicos. Bem como de buscar interseções entre eles, como forma de melhorar os instrumentos de gestão no ambiente construído de salvaguarda. Nesse aspecto, a Gestão de Riscos ganha destaque como eixo de costura nessa proposição.
Procedimentos de Avaliação Pós-Ocupação, associados a planos de manutenção, ganham destaque diante dessas demandas do ambiente de salvaguarda e pesquisa. Juntamente com as novas discussões de valor no campo da Conservação voltado para as coleções especiais de bibliotecas de pesquisa, esses estudos ampliam as reflexões sobre o conceito de “materialidade” para a infraestrutura e para a própria missão da Biblioteca.
A sobreposição entre a teoria metodológica da Conservação, as investigações exploratórias in loco e as estratégias de apresentação diagnóstica da Avaliação Pós-Ocupação no estudo de caso, permitiram a formulação do mapa de proximidade de riscos potenciais às coleções, oriundos de elementos físicos da infraestrutura. A ferramenta diagnóstica procura oferecer uma abordagem preditiva para que os gestores consigam associar com mais precisão e clareza os riscos provenientes dos elementos construtivos do prédio, bem como onde eles estão mais suscetíveis de ocorrer.
Vale lembrar que os diagramas mapeiam os perigos potenciais, isto é, possíveis de ocorrer em algum momento ao longo da vida da edificação. Por isso a importância de agregar especialistas da construção, tais como arquitetos e engenheiros, devido à possibilidade de antever com mais acurácia pontos de fragilidade física da biblioteca.
Por exemplo, nem todas as áreas de acervo localizadas imediatamente sob linhas de junta da cobertura apresentam goteira hoje. Mas os lugares próximos a elas são mais propensos a esse tipo de ocorrência que os lugares mais distantes. Assim como os locais onde as juntas são mais vulneráveis têm mais chance de ocasionar infiltração do que aqueles onde elas se encontram mais protegidas.
É preciso reforçar que a ferramenta apenas associa o conhecimento do comportamento dos materiais e elementos da construção ao longo do tempo, com distâncias em relação às estantes onde se encontram as coleções. O comportamento de cada elemento é diretamente influenciado pelas políticas de manutenção da instituição. Por isso a relevância do campo da Manutenção na evolução deste instrumento.
De maneira similar aos mapas diagnósticos da Avaliação Pós-Ocupação, os mapas de proximidade vêm acompanhados por fotos que ajudam na leitura do ambiente. Neste caso, ou elas trazem o elemento construtivo, que já está manifestando situação de perigo para as coleções, ou ilustram outras informações abordadas, como o distanciamento entre módulos de estante, tipologia e estado de conservação dos módulos, e, até mesmo, o próprio elemento arquitetônico estudado, independente de manifestar falha ou não.
Por outro lado, a apresentação das áreas impedidas, que se referem ao movimento de contração do setor, é também uma informação relevante. Dado que, em conjunto com a taxa de ocupação, reforçam a pertinência da temática da expansão do acervo nas discussões de arquitetura de bibliotecas.
Os resultados alcançados, principalmente no que se refere às ferramentas diagnósticas das condições para conservação no edifício, ainda possuem caráter preliminar. Mas, mesmo com limitações, avançam na construção transdisciplinar de avaliação do ambiente construído de bibliotecas, abrindo caminho para discussões necessárias inclusive para a sua evolução ou possíveis ajustes e correções.
Alguns aspectos dos mapas de proximidade, por exemplo, requerem ainda aferições quanto ao número de categorias adotadas. Alinhadas ao refinamento quanto às metodologias de gestão de risco dos marcos referenciais do campo da Conservação Preventiva. Outra questão é o aprimoramento da linguagem gráfica apresentada, para que ela tenha maior alcance no sentido de facilitar para profissionais de outras áreas a leitura do espaço representado.
O relatório simplificado proposto é factível para a realidade das instituições brasileiras de salvaguarda e pesquisa. Ademais, pode compor bases para desdobramentos com a utilização de tecnologias mais recentes da construção, como o BIM, bem como os que empreguem recursos de automatização e conceitos do campo da Ciência da Computação, em especial da Computação Gráfica.
FONTES IMPRESSAS
DEPARTAMENTO DE PLANEJAMENTO FÍSICO E OBRAS DA UFMG. Biblioteca Central. Belo Horizonte: UFMG, 1997. 1 f. Prancha da planta de cobertura da Biblioteca Central; original em papel vegetal.
GONÇALVES, Naiara et al. Roteiro simplificado para o diagnóstico de condições de conservação de coleções. Belo Horizonte: LACICOR, 2017.
SILVEIRA, Rafael Vilela. Relatório técnico de análise de uso e ocupação, com abordagem preliminar nas questões de segurança e acessibilidade. Belo Horizonte: Departamento de Projetos da UFMG, 2015.
UNIVERSIDADE FEDERAL DE MINAS GERAIS. Biblioteca Central. [ca. 1980]. 1 fotografia.
LIVROS, ARTIGOS E TESES
CALDEIRA, Cleide Cristina. Conservação preventiva: histórico. Revista CPC, São Paulo, n. 1, p. 91-102, 2006. DOI: 10.11606/issn.1980-4466.v0i1p91-102.
DARDES, Kathleen; STANIFORTH, Sarah. Preventive Conservation: Sustainable Stewardship of Collections. Conservation Perspectives: The GCI Newsletter, Los Angeles, v. 30, n. 2, p. 19-21, 2015.
DIULIO, María de la Paz; MERCADER-MOYANO, Pilar; GÓMEZ, Analía Fernanda. The Influence of the Envelope in the Preventive Conservation of Books and Paper Records: Case Study: Libraries and Archives in La Plata, Argentina. Energy and Buildings, [s. l.], v. 183, p. 727-738, 2019. DOI: 10.1016/j.enbuild.2018.11.048.
FIALHO, Beatriz Campos. Da cidade universitária ao campus da Pampulha da UFMG: arquitetura e urbanismo como materialização do ideário educacional (1943-1975). 2012. Dissertação (Mestrado em Arquitetura e Urbanismo) - Escola de Arquitetura, Universidade Federal de Minas Gerais, Belo Horizonte, 2012.
FRANÇA, Ana Judite Galbiatti Limongi. Ambientes contemporâneos para o ensino-aprendizagem: avaliação pós-ocupação aplicada a três edifícios escolares públicos, situados na Região Metropolitana de São Paulo. Dissertação (Mestrado em Arquitetura e Urbanismo) - Faculdade de Arquitetura e Urbanismo da Universidade de São Paulo, São Paulo, 2011.
FRANÇA, Ana Judite Galbiatti Limongi; ORNSTEIN, Sheila Walbe; ONO, Rosaria. Mapas de diagnóstico: procedimentos de Avaliação Pós-Ocupação (APO) voltados à qualidade de projeto. In: SIMPÓSIO BRASILEIRO DE QUALIDADE DO PROJETO NO AMBIENTE CONSTRUÍDO, 2., 2011, Rio de Janeiro. Anais […]. Rio de Janeiro: ANTAC, 2011. p. 297-307. DOI: 10.4237/sbqp.11.253.
FRONER, Yacy-Ara; ROSADO, Alessandra. Princípios históricos e filosóficos da conservação preventiva. Belo Horizonte: LACICOR-EBA-UFMG, 2008. p. 1-23.
FRONER, Yacy-Ara. Storage Collection Recommendation from Interdisciplinary Tools: Documentation, Preventive Conservation, Curatorship, and Architectural Issues. In: CIDOC-ICOM CONFERENCE, 26., 2018, Heraklion. Proceedings […]. Heraklion: ICOM, 2018. p. 1-16.
GONÇALVES, Willi de Barros. Diagnóstico de condições de conservação de coleções: considerações para desenvolvimento de protocolos de acreditação de instituições museais no cenário brasileiro. Patrimônio e Memória, Assis, SP, v. 16, n. 1, p. 389-412, 2020.
INTERNATIONAL CENTRE FOR THE STUDY OF THE PRESERVATION AND RESTORATION OF CULTURAL PROPERTY; CANADIAN CONSERVATION INSTITUTE. Guia de gestão de riscos para o patrimônio museológico. Brasília, DF: Ibermuseus, 2017a.
INTERNATIONAL CENTRE FOR THE STUDY OF THE PRESERVATION AND RESTORATION OF CULTURAL PROPERTY; CANADIAN CONSERVATION INSTITUTE. RE-ORG: a method to reorganize museum storage. Roma: ICCROM, 2017b.
LUCCHI, Elena. Multidisciplinary Risk-based Analysis for Supporting Decision Making Process on Conservation, Energy Efficiency, and Human Comfort in Museum Buildings. Journal of Cultural Heritage, [s. l.], v. 22, p. 1079-1089, 2016. DOI: 10.1016/j.culher.2016.06.001.
MACIEL, Carlos Alberto Batista. Projetando infraestruturas: processo e projeto do Sistema Básico da UFMG. In: PROJETAR, 5., 2011. Anais […]. Belo Horizonte: Escola de Arquitetura da UFMG, 2011. p. 1-14.
OGDEN, Sherelyn (ed.). Planejamento para preservação. In: BECK, I. (coord.). Planejamento e prioridades. 2. ed. Rio de Janeiro: Projeto Conservação Preventiva em Bibliotecas e Arquivos, 2001. v. 30, p. 7-15.
OLENDER, Marcos. “O abismo da história é grande o suficiente para todos”: os primórdios da Carta de Atenas de 1931 e a afirmação da noção de patrimônio da humanidade. Locus: Revista de História, [s. l.], v. 26, n. 2, p. 291-313, 2020. DOI: 10.34019/2594-8296.2020.v26.31204.
ORNSTEIN, Sheila Walbe et al. Improving the Quality of School Facilities Through Building Performance Assessment: Educational Reform and School Building Quality in São Paulo, Brazil. Journal of Educational Administration, [s. l.], v. 47, n. 3, p. 350-367, 2009. DOI: 10.1108/09578230910955782.
SON, Lee How; YUEN, George C. S. Building Maintenance Technology. Londres: Palgrave, 1993.
SOUZA, Raissa Melo de; ORNSTEIN, Sheila Walbe. Gestão de museus a partir da aplicação da avaliação pós-ocupação: o caso do Museu Histórico e Cultural de Jundiaí, São Paulo. Anais do Museu Paulista: História e Cultura Material, São Paulo, v. 28, p. 1-41, 2020. DOI: 10.1590/1982-02672020v28e05.
STANIFORTH, Sarah (ed.) Historical Perspectives on Preventive Conservation. Los Angeles: The Getty Conservation Institute, 2013.
VAN BALEN, Koenraad. Challenges that Preventive Conservation Poses to the Cultural Heritage Documentation Field. The International Archives of the Photogrammetry, Remote Sensing and Spatial Information Sciences, Ottawa, XLII-2/W5, p. 713-717, 2017. DOI: 10.5194/isprs-archives-XLII-2-W5-713-2017.
SITES
ARAÚJO, Diná Marques Pereira. UFMG mantém coleção de obras raras: materiais estão sob os cuidados da Divisão de Coleções especiais. [Entrevista cedida a] Tayrine Vaz. TV UFMG, Belo Horizonte, out. 2017. Disponível em: Disponível em: https://ufmg.br/comunicacao/noticias/ufmg-mantem-colecao-de-obras-raras. Acesso em: 5 out. 2020.
WALLER, Robert; CATO, Paisley. Agents of deterioration: dissociation. Ottawa: CCI, 2019. Disponível em: Disponível em: https://www.canada.ca/en/conservation-institute/services/agents-deterioration/dissociation.html. Acesso em: 5 mar. 2022.
Notas
Autor notes