Artículos
Ciudades mayas en el norte de Petén, Guatemala: cuatro conjuntos palaciegos
Maya Cities in Northern Peten, Guatemala: Four Palatial Complexes
Ciudades mayas en el norte de Petén, Guatemala: cuatro conjuntos palaciegos
Estudios de cultura maya, vol. LVIII, pp. 85-115, 2021
Universidad Nacional Autónoma de México, Instituto de Investigaciones Filológicas
Recepción: 28 Septiembre 2020
Aprobación: 17 Noviembre 2020
RESUMEN: Un rasgo especial en la estructura urbana de las Tierras Bajas Centrales mayas, durante el periodo Clásico, son los conjuntos palaciegos. Se trata de esquemas simbólicos que representan el centro de la ciudad y el poder de sus gobernantes. En otras contribuciones el autor ha estudiado la composición urbana de varias ciudades mayas en el norte de Petén. En esta oportunidad se profundiza en el estudio de dos elementos: en primer lugar, el conjunto palaciego, y en segundo término, la plaza que lo preside. Comparamos estos elementos en cuatro ciudades, con similares características de época y región cultural: la Acrópolis Central de Tikal y los conjuntos palaciegos de Nakum, San Clemente y La Blanca. En el análisis de estas relaciones consideramos, además del concepto del estudio inicial, otros aspectos metodológicos que nos ayudan a identificar y tipificar un patrón de edificios para los conjuntos palaciegos del norte del Petén guatemalteco.
PALABRAS CLAVE: ciudades mayas, periodo Clásico, conjuntos palaciegos, plazas, Petén.
ABSTRACT: Special features in the urban structure of the Central Maya Lowlands are the palace complexes. They function as a symbolic scheme that represents the center of the city and the power of its rulers. In other contributions, the author has studied the urban composition of various Maya cities in Northern Petén. On this occasion, the study of two elements is deepened: first, the palace complex and second, the square that presides over it. We compare these elements in four cities with similar characteristics of chronology and cultural region: the Central Acropolis of Tikal, and the palace complexes of Nakum, San Clemente and La Blanca. In the analysis of these relationships we consider, in addition to the concept of the initial study, other methodological aspects that help us to identify and typify patterns of buildings for the palace complexes in Northern Petén, Guatemala.
KEYWORDS: Maya cities, Classic period, palace complexes, plaza, Petén.
Introducción
En la estructura urbana prehispánica del área maya, el conjunto palaciego representa el lugar donde el gobernante establece la administración de su gobierno, decide la suerte de su pueblo y reside como un dios viviente. Estos espacios, durante el Clásico Tardío y Terminal, crecieron como grandes sedes del poder, verdaderas montañas artificiales que marcaban el centro de las ciudades.
En este trabajo los conjuntos palaciegos son vistos como una unidad compuesta por edificios y patios que se integran en conjuntos, como un espacio privado y restringido, claramente definido. Por otro lado, la plaza es el espacio público que permite al conjunto de gobierno-vivienda comunicarse con el espacio exterior, ambos dimensionados al rango social de la ciudad y su líder.
El palacio-plaza como centro del poder
En la visión de los líderes mayas, resultaba primordial poder interpretar y reproducir el concepto que tenían del mundo. En el conjunto palaciego, la plaza y su tejido urbano es donde el gobernante formulaba y recreaba su microcosmos político y ritual: la montaña de la abundancia infinita, el agua primigenia, los portales a otros mundos y demás símbolos mágicos. Para lograrlo, en la ciudad se imponen los espacios geométricos en contraposición a los espacios irregulares de la naturaleza. El dar forma calculada y proporción a la estructura urbana fue un medio de expresar el plan divino, plan que fue magnificado en los conjuntos palaciegos.
En el conjunto palaciego, los mejores arquitectos trabajaron para engrandecer la imagen del gobernante; se construyeron edificios de buena calidad, algunos de dos y tres niveles, y se aplicaron en las fachadas mensajes escultóricos (frisos y techos). El mundo aparte de la corte y sus edificaciones tenía un punto de contacto con el mundo exterior, la plaza. Frente a la plaza se abría una fachada portentosa como conector entre el espacio interior y el espacio público. Al mismo tiempo la plaza era el espacio de conexión de personas y circulación, el lugar de ceremonias masivas y actos conmemorativos a gran escala.
Metodología
Para tener una relación del concepto espacial entre los mayas centrales del Clásico, referido en el volumen XLIX de Estudios de Cultura Maya(Quintana, 2017), y continuar dicho estudio, haremos un breve resumen. El espacio construido se puede ver como un orden de elementos, en cinco niveles, que van desde el aspecto más grande y general al más pequeño y de detalle. Inicia con el paisaje-ciudad y su contexto territorial. El segundo y tercer nivel atienden a los “elementos generadores del espacio urbano”, el espacio exterior (nivel 2) y el espacio interior (nivel 3).
En los espacios exteriores están: plazas, patios, calzadas y vías. En los espacios interiores están las construcciones o sólidos. En este caso tenemos tres variables: 1) edificios verticales, 2) edificios horizontales y 3) edificios especiales. El análisis formal de arquitectura inicia aquí con cada espacio exterior e interior. Ambos se unen con grupos de elementos, que según su categoría van de poderosos conjuntos palaciegos a pequeñas unidades familiares en las afueras de la ciudad.
En los espacios sólidos, unos tienden a “crecer” aumentando cámaras o recintos útiles en el eje longitudinal, llamados “edificios horizontales”. Otros se desarrollan en forma vertical, sobreponiendo plataformas escalonadas unas sobre otras, llamados “edificios verticales”, colocando en la cima de la pirámide el espacio interior (útil). El tercer grupo son variaciones de las dos posibilidades anteriores que tienen funciones definidas como los baños de vapor, los laberintos o las torres. En este grupo están los volúmenes que no tienen espacio interior útil, como las dos plataformas que marcan el espacio para el juego de pelota, las pirámides escalonadas usadas para ceremonias y observaciones solares (grupos E) o las plataformas bajas colocadas en las plazas.
Siguiendo con el análisis del espacio construido, luego vienen los detalles: los sistemas constructivos (nivel 4) y los materiales empleados en las edificaciones (nivel 5). En este artículo no nos referimos a ellos, pero sí mencionamos frecuentemente la calidad de estos elementos de detalle.
Conjunto palaciego
Este elemento urbano lo podemos precisar como un espacio formado de edificios que confinan uno o más patios, conjunto que a su vez se posiciona frente a una plaza representativa. Lo que en sí define a los grupos palaciegos del norte de Petén, son el juego de diferentes patios articulados unos con otros, teniendo un sistema restringido de circulación interna (control de pasos, entre patios). Determinante es la posición de los edificios que llegan a las orillas o límites del espacio útil, donde su fachada posterior es cerrada (muros continuos) hacia el exterior; así se refuerza el carácter privado del conjunto. Diferente tratamiento tiene la fachada hacia la plaza con entradas representativas de muchas cámaras, pero con un filtro o control de ingreso al interior.
Entre las características locales tenemos: conjuntos palaciegos elevados con grupos de patios a diferentes alturas que marcan un patio principal, y con él el edificio dominante (Tipo 1). En otros casos el juego de patios interior, unos más altos que otros, no es determinante (Tipo 2). Además, está la posibilidad de los conjuntos palaciegos no elevados (Tipo 3), solución urbana menos frecuente, en donde la marcada elevación no es dominante, más bien predominan varios patios pegados unos con otros, como si fuera la estructura de un panal (Quintana, 2017).
En este estudio presentamos cuatro ejemplos: dos casos identificados como Tipo 1 (Nakum y San Clemente) y dos del Tipo 2 (Tikal y La Blanca). También podemos decir que tenemos en la muestra un conjunto palaciego de rango muy grande (Nakum), uno grande (Tikal), uno pequeño (San Clemente) y uno muy pequeño (La Blanca). Tal clasificación obedece a la superficie que ocupan en el tejido urbano (largo y ancho).
Consideramos distintos criterios y metodologías para caracterizar los dos elementos del estudio. En 1970 se publicó el primer análisis gráfico de un conjunto palaciego en Petén; fue el de Peter Harrison, en su tesis doctoral sobre la Acrópolis Central de Tikal. Harrison resumió cuatro tipos de edificaciones: 1) edificios con dos o más cámaras paralelas y cámaras laterales (tres fachadas); 2) edificios con dos o más cámaras paralelas sin cuartos laterales; 3) edificios con sólo una cámara alargada pero con varios cuartos laterales (especie de grupo tríadico), y 4) edificios con solamente un cuarto rectangular, en algunos casos alargados con una o varias entradas (Harrison, 1970: 94-107, Figs. 17-20). Harrison no consideró la relación del edificio con el espacio exterior de los patios.
Houston y Stuart (1992), para describir la vida en la corte, lo analizaron desde cinco factores: reproducción, transmisión, proyección, producción y distribución; ellos mencionan una diferencia entre dos áreas del conjunto palaciego: patio delantero (área delantera) y patio trasero, cada uno con funciones distintas.
Por su parte, Kai Delvendahl, en su libro Las sedes de poder, estudió siete palacios (Aguateca, Kohunlich, Copán, Palenque, Calakmul y Tikal-Acrópolis Central); en sus análisis usó cuatro variables: aspecto físico, aspecto espacial, funcional y social. Además definió tres complejos de funciones generales: el complejo escénico-ceremonial, el complejo político-administrativo y el complejo domestico-residencial; y cinco áreas: de acceso, escénicas, de recepción semi-pública, recepción privada y residenciales (Delvendahl, 2010a: 677).
Rodrigo Liendo (2003), a su vez, examinó siete palacios (Palenque, Acrópolis Central de Tikal, Grupo A-V de Uaxactún, Uxmal, Labná, Kabah y Sayil), y utilizó, en su estudio, diagramas de relaciones espaciales. Criterio parecido empleó Damien Bazy (2012) en Nakum, proponiendo un modelo gráfico que facilita la lectura de las atribuciones espaciales entre plazas públicas y espacios privados. En su investigación determinó seis parámetros para evaluar el carácter público y privado del espacio construido.
Andrés Ciudad Ruiz, Jesús Adánez Pavón y María Josefa Iglesias usaron también un estudio gráfico para investigar el comportamiento de las plazas: tamaño y accesibilidad en el sitio de Machaquilá (Ciudad, Adánez e Iglesias, 2011). Por otro lado, Delvendahl estudió dos aspectos de los conjuntos palaciegos utilizando los datos arqueológicos y los testimonios iconográficos representados en la cerámica (Delvendahl, 2010b). Hay además diversas tesis de doctorado que versan sobre el tema (Delvendahl, 2005; Runggaldier, 2009; Mongelluzzo, 2011; Barrientos, 2014).
En este trabajo utilizamos como base la estructura empleada por Kai Delvendahl (2010a), considerando cuatro variables (aspectos físico, espacial, funcional y social). Los cuatro objetivos del estudio se encuentran en la parte noreste de Petén, actual Reserva de la Biósfera Maya (RBM). Tikal es la referencia regional; Nakum está a 22 km al este de Tikal y hacia el sureste se encuentran San Clemente (25 km) y La Blanca (38 km). Cada uno de ellos, aunque cerca uno del otro, se ubica en paisajes distintos: Tikal en el “Área Tikal”, entre dos bajos parteaguas (este-oeste); Nakum en la “cuenca media del río Holmul” (en la orilla norte del río); San Clemente, sobre una colina en la “cuenca de Los Lagos”, en una zona de montaña, y La Blanca en la base de la colina que forma la frontera noroeste de la “cuenca baja del río Mopán” (Quintana y Wurster, 2001). Los cuatro tienen evidencia arqueológica desde el Preclásico al Clásico Terminal, una misma calidad constructiva, mismos materiales y similares patrones tipológicos.
Presentación de la muestra
1. La Acrópolis Central de Tikal
Este conjunto palaciego ocupa el límite sur de dos plazas: Gran Plaza y Plaza Este. Es un conjunto elevado (tipo 2) con seis patios a distintos niveles rodeados de edificios. El conjunto tiene dos fachadas abiertas al exterior (norte y sur) y dos cerradas (este y oeste). La fachada sur da al Reservorio del Palacio y la norte a las plazas (Figura 1).
La Gran Plaza es el corazón de la ciudad; junto a ella y a un nivel más bajo hay dos plazas más: al este (Plaza Este) y al oeste (Plaza Oeste). Estos espacios adosados reciben cuatro calzadas que comunican otras plazas y grupos de edificios. Con este diseño, el conjunto palaciego y la plaza principal estaban conectados prácticamente con todo el tejido urbano (Figura 2).

Aspectos físicos. Mide 215 por 80 m, con 46 edificaciones, seis patios y cinco terrazas. Las investigaciones del Museo de la Universidad de Pensilvania (1956-1969) identificaron distintas fases constructivas, encontrando evidencia de plataformas del Preclásico (350-1 a.C.); en el Patio 2, encontraron que el suelo natural se encuentra entre 9 m y 15 m de profundidad y tuvo un proceso de adiciones de distintas épocas. La mayoría de los edificios actualmente visibles fueron construidos a partir del año 650 d.C. (Coe, 1985: 55-71).
Aspecto espacial. Es considerado como un conjunto palaciego “grande”. En otro artículo, por publicar, se definen seis categorías (monumentales, muy grandes, grandes, medianos, pequeños y muy pequeños). El rango grande corresponde a superficies entre 11,000 y 20,000 m2. En el norte de Petén hemos identificado cinco: la Acrópolis Central de Tikal (17,200 m2), Chochkitam (19,500 m2), Kinal (19,250 m2), la Acrópolis Central de Naranjo (16,800 m2) y La Honradez (16,000 m2). Aunque la Acrópolis Central de Tikal no es la más grande en el norte de Petén (RBM), es la más famosa y con mayor intervención. En la categoría “monumental”, la mayor de todas, sólo hay una, la “Gran Acrópolis de Calakmul” (Campeche), con una superficie de 36,700 m2, ciudad antagónica de Tikal.
Ubicación en el tejido urbano. Está en el centro de la ciudad, en la cima de una colina con un barranco al sur, modificado en reservorio de agua. Para unir el centro con el sur, se extendió una calzada al lado oeste del palacio y un dique del lado este. Interesantes son las extensiones hacia los lados oeste y este del conjunto elevado: al oeste, sale del Patio 1 un edificio horizontal y elevado (5D-72) que se inserta en el edificio vertical (5D-73), formando así el límite suroeste de la Gran Plaza. Del lado este, también sale un edificio horizontal (5E-37), en este caso no elevado, que se alarga al este y forma, con otros edificios, un grupo especial (servicios al grupo elevado). Destaca su posición estratégica conectando al sur con un dique que pasa al sector sur y en la esquina noreste con la Calzada Méndez (entrada principal al centro de la ciudad).
Organización interna. Dividimos el espacio útil en cuatro partes: una, al oeste con el Patio 1, a 6.20 m sobre el nivel de la Gran Plaza. Es un patio rodeado de edificios horizontales, sin comunicación con los otros grupos de patio (2, 3, 4, 5 y 6). Luego sigue la parte central, que aglomera a los patios 2, 3, 4 y 5. Es la porción más restringida y elevada del conjunto. En este caso no hay una clara comunicación con el exterior. Hacia la Gran Plaza hay un edificio horizontal, con hileras de cámaras (fachadas porticadas, 5D-120), que no tiene conexión directa con los patios superiores.
El Patio 2 está a 11 m sobre el nivel de la Gran Plaza, es el espacio más elevado de la Acrópolis (cota 251.5 msnm). En el extremo sur, viendo al norte, se encuentra el llamado Palacio Maler (5D-65: dos niveles, terrazas, cuatro fachadas, nueve espacios interiores en el primer nivel y tres en el segundo nivel), que en la clasificación de Harrison sería del Tipo 1. En la esquina suroeste del patio, hay un oratorio (5D-66, Tipo 4 de Harrison) y luego un edificio especial (5D- 118). Extraños son los tres edificios del límite norte (5D-63, 62 y 61), pues su fachada no ve hacia el patio. William R. Coe opina que esto se debe a que son edificios anteriores a la construcción del Patio 2 (Coe, 1985: 58). Por un pasillo controlado, entre los edificios 5D-63 y 62, se puede llegar al techo del edificio horizontal 5D-120 y tener una espectacular vista de la Gran Plaza. Del Patio 2 se pasa, por corredores controlados, al Patio Hundido 3 (a 7.60 m sobre el nivel de la Gran Plaza) y luego al Patio 4. En los Patios 3 y 4 predominan las construcciones de dos y tres niveles con espacios interiores en hilera de una y dos crujías. Al Patio 5 se puede llegar por un pasadizo controlado (por el oeste). En este patio, en el límite este, está un edificio porticado (5D-55) con dos pilares y tres accesos, único en el conjunto.
La tercera parte (al este) la forma el Patio 6, el nivel más bajo y extenso del conjunto elevado. Su acceso principal es por la Plaza Este. Aquí una ancha escalinata sube al edificio horizontal (5D-44). Esta construcción representativa tiene nueve entradas, una sola cámara larga y una salida (en zigzag) hacia el Patio 6 (Tipo 4 en la clasificación de Harrison). En el Patio 6 predominan los edificios alargados con una o dos crujías y varias entradas, construcciones en hilera con una y dos fachadas y edificios horizontales encontrados (grupo triádico, Tipo 3 de Harrison). En este sector predomina un grupo formado alrededor del Edificio 5D-46, construcción de dos niveles y escalinata interior (adosados, tres patios interiores y seis edificios); la parte que rodea esta construcción está elevada por una plataforma de 2 m de alto, tiene dos entradas (escalinatas): una al oeste (da al Patio 6) y otra al este (a uno de los tres patios interiores). En realidad, este grupo es todo un microconjunto palaciego del periodo Clásico Temprano, ampliado en el Clásico Terminal.
La cuarta parte la forman edificios en hilera viendo hacia el sur, hacia el “Reservorio del Palacio”; aquí hay terrazas y escalinatas a diferentes niveles. A este sector se accede por los Patios 2, 3 y 6. Lo particular allí es que los edificios no miran a un patio sino al paisaje.
Patrón de acceso. En el Patio 1, el Edificio 5D-71 tiene cinco entradas y cinco salidas, se presenta como un amplio acceso al conjunto palaciego (ancha escalinata y fachada porticada); pero, al menos en la última etapa constructiva, no se comunica con otras partes del conjunto palaciego. Resalta su posición formando un eje central norte-sur con la Gran Plaza y la Acrópolis Norte (edificios centrales).
Para el acceso del sector central (Patios 2, 3, 4 y 5), Delvendahl sugiere que la entrada fue por la esquina sureste de la Gran Plaza, el Edificio vertical 5D-60 (Delvendahl, 2010a: Fig. 52), acceso no tan representativo como el descrito para el Patio 1. Por el Edificio vertical 5D-60 se sube a una cámara superior (con una entrada y una salida contrapuesta) y luego se llega a un pasadizo entre dos edificios (5D-61 y 5D-40). Este pasillo tiene, al final, un puesto de control que permite pasar al Patio 2 (oeste) y al Patio 3 (este).
El tercer acceso al conjunto palaciego está en la parte este. La entrada oficial o representativa es por el Edificio 5D-44, descrito antes (amplia escalinata, nueve entradas, una salida). Es curioso o extraño que en la esquina noroeste, del lado oeste del edificio de entrada (5D-44), hay un paso sin ningún control. En el Patio 6 hay un acceso secundario (escalinata no representativa) entre dos edificios (5D-45 y 5D-47), y una comunicación entre el patio y el grupo de edificios afuera del conjunto palaciego (posible área de servicio).
Aspectos funcionales. En el diagrama de relaciones entre edificios y patios (Figura 3) podemos ver las comunicaciones entre un grupo y otro: el Patio 1 está aislado del Patio 2. El sector central es el de mayor interrelación (Patios 2, 3, 4 y 5) y resulta claro que su fachada hacia la Gran Plaza, o mejor dicho, su primer fachada (Edificio horizontal porticado 5D-120), no tiene relación con la parte superior (área de los patios), a no ser que se use el techo del edificio para ciertas apariciones y para ver, desde lo alto, hacia la Gran Plaza. El sector este marca la relación palacio-plaza con un amplio acceso, pero controlado su paso hacia el patio interior (5D-44 al Patio 6). La principal relación espacial interna se concentra alrededor del Edificio 5D-46 y sus patios interiores. Del Patio 6 hay una comunicación interna (con escalinatas controladas) hacia los Patios 4, 3 y 2. Es notoria la relación privada y de paisaje en los edificios y terrazas relacionados con el estanque de agua, por la parte sur.

En la Figura 3 se presentan, en forma de diagrama, las relaciones espaciales del conjunto: los círculos simbolizan las cámaras, las líneas continuas muestran la relación de la cámara con el patio, en algunos casos a través de terrazas o corredores. Los círculos negros representan pasos de control y las líneas en zigzag las escalinatas; los rectángulos sombreados indican los patios.
Aspecto social. Harrison discute el uso del conjunto palaciego y propone que unas partes debieron funcionar como oficinas administrativas, otras para audiencias y otras más para vivienda del gobernante y la corte. Al menos, a dos edificios emblemáticos se les atribuye la función de vivienda real: uno, el Edificio 5D-46 en el Patio 6, que luego funcionó como “memoria de linaje”, y otro en el Patio 2, el Edificio 5D-65, ambos de dos niveles.
Interesantes son los amplios espacios de una cámara y grandes bancas (5D-62, 59 y 123) que Harrison denomina “salas de trono” (Harrison, 2001: 90, Fig. 3.10). Un tanto diferente es el Edificio 5D-118 (Patio 2), pues no tiene bancas de mampostería pero sí un primer recinto muy amplio y abierto, espacio apropiado para reuniones. En realidad en el conjunto palaciego hay varias cámaras con bancas que pudieron ser lugares de estar y dar audiencia; hay una sobre el techo del Edificio 120 con espectacular vista hacia la Gran Plaza. Un posible salón de audiencia, combinado con otras cámaras, es el Edificio 5D-49, pues está convenientemente ubicado entre dos patios (del lado oeste, el Patio 4 -más alto- y del lado este, el Patio 6). La fachada este presenta una banca viendo al patio, una entrada escénica (ver y ser visto) y una escalinata con grandes escalones (Figura 4).

Podríamos concluir que los Patios 1 y 6 fueron de carácter más “administrativo”, con dependencias de trabajo, recepciones de visitas estatales y al Santuario 5D-46, entregas de tributo, declaraciones de dependencia política, etcétera. Espacios más privados son los Patios 2, 3, 4, 5 y las edificaciones que miran al sur. Las extensiones al oeste, sirvieron para completar el esquema de cierre de la Gran Plaza y en la extensión al este, a un área de servicios. Podría pensarse, por su ubicación y accesos, en un área encargada del abastecimiento y la seguridad del conjunto palaciego.
Nakum
La ciudad se encuentra a orillas del río Holmul, sobre dos terrenos naturales elevados que fueron modificados: Sector Norte y Sector Sur, ambas partes unidas por una calzada de 236 m de largo y 30 m de ancho. En el Sector Sur se encuentra el área más representativa. Está conformada por tres plazas (central, sur y sureste) y el macizo que eleva al conjunto palaciego. La calzada Périgny desemboca en la Plaza Central; esta plaza cuenta con estelas, altares y plataformas bajas para espectadores (Figura 5). Enmarcando el límite sur de la plaza está el conjunto palaciego con una fachada representativa (Edificio D).
El conjunto palaciego se organiza en forma compacta, geométrica y continua. Por la forma bien definida de sus espacios, el conjunto es un modelo de proporción y diseño de la arquitectura del siglo IX, ejemplo del urbanismo del Clásico Terminal en las Tierras Bajas Centrales. La Plaza Central (de 85 por 85 m) es la gran antesala a los edificios representativos de la ciudad. La larga fachada horizontal de entrada al conjunto palaciego (Edificio D) contrasta con los edificios verticales de los otros extremos de la plaza (A al este, B al sur, C al oeste).
Aspectos físicos. Conjunto elevado (base 150 por 170 m, superficie útil en la parte superior 130 por 150 m, 16 patios y 44 edificios). La característica principal son sus patios elevados a diferentes niveles, rodeando una elevación central dominante. La cima de la plataforma central se eleva 18 m (superficie útil de 40 por 45 m), donde está el Patio 6 y cinco edificios, incluyendo el Edificio Y, el más encumbrado de todo el conjunto. Por lo tanto, tenemos un conjunto elevado marcando un grupo principal, más alto (Tipo 1) (Figura 6).

Actualmente, el espacio físico visible corresponde a la última fase de ocupación (aproximadamente 800-900 d.C.). Este conjunto palaciego fue intervenido durante los años 1994-2005 por el proyecto guatemalteco-alemán “Protección de Sitios Arqueológico en Petén” (PROSIAPETEN); como resultado, ahora, se puede circular su espacio y distinguir los edificios que lo conforman. De 44 edificaciones, 36 fueron intervenidas: 12 en forma total, 12 en forma parcial (pasillos de comunicación entre patios) y 12 construcciones fueron investigadas, consolidadas y luego rellenadas, formando un volumen (montículo). Seis edificios no han sido investigados y se conservan como montículos sin forma. Los sondeos arqueológicos constataron que toda la plataforma de sustentación fue hecha por el hombre, etapas que duraron unos 1200 años (desde 300 a.C. al 900 d.C.), conformando lo que sería al final el grupo de patios del palacio. Por ser el volumen totalmente artificial (más de 145,000 m3 de rellenos), permitió a los constructores usar sus reglas de proporción ideal para lograr que el conjunto tuviera la función y el significado deseados. Adentro los niveles varían entre 5 y 23 m de altura en relación con la Plaza Central.
Aspectos espaciales. Es considerado como un conjunto palaciego “muy grande”. Dicho rango corresponde a áreas entre 20,000 y 30,000 m2. En el norte de Petén tenemos dentro de esta categoría a Nakum (25,500 m2), le sigue en tamaño la Acrópolis Norte de Yaxhá (20,726 m2) y la Acrópolis Este de Yaxhá (19,600 m2). Si tomamos esta clasificación, tendríamos que el conjunto palaciego de Nakum es el elemento de mayor superficie en el norte de Petén. El 67.60% del espacio útil fue empleado para circulaciones, barreras y patios y el 32.40% fue cubierto por techos de edificios.
Ubicación en el tejido urbano. El conjunto palaciego fue construido como “montaña sagrada” en el centro del Sector Sur. Enfrente a él está la Plaza Central. Por una razón especial, el emplazamiento está muy cerca del río Holmul (al oeste y sur), importante ruta fluvial hacia Tikal. De hecho, al oeste del conjunto elevado se modificó el cauce del río para hacer un espejo de agua-puerto fluvial.
Organización interna. El conjunto tiene una relación espacial en torno al macizo elevado central -Patio 6- que domina todo el grupo (en la Figura 5 aparece como Acrópolis Central, 6). Alrededor del Patio 6 se estructuran ortogonalmente los patios y edificios. Un grupo de patios al este se ordenan en fila (Patios 10, 9, 8 y 7) y otro grupo al oeste (Patios 12, 11, 2, 3, 4 y parte del Patio 5); al norte el Patio 5 y al sur cinco patios (15, 1, 13, 14 y 16). Estas son franjas de espacios (exteriores-interiores) interrelacionados, que por su posición tiene funciones distintas. Con base en su organización interna (acceso y barreras), podemos identificar cuatro sectores: áreas norte y noreste (Patios 12, 1, 10 y 9), oeste (Patios 11, 2, 3 y 4), central (Patios 13, 14, 15, 16 y 6) y sur (Patios 5, 7 y 8). En la orientación de los edificios destacan las fachadas hacia el norte (18 superficies); le sigue el sur (15 superficies), luego las fachadas orientadas al este (14), y por último 11 construcciones tienen su frente hacia el oeste.
Patrón de acceso. La entrada oficial es por el norte (Plaza Central). El Edificio D es la “portada representativa” del palacio, uno de los edificios más largos del área maya (120 m). De la plaza suben tres amplias escalinatas al corredor frente al Edificio D: una central (60 m de ancho) y dos laterales. La entrada principal o central atraviesa el edificio en forma directa y las laterales en zigzag. En la plaza, a los pies de las escalinatas laterales, están dos plataformas bajas y enfrente la gradería central: dos altares y tres estelas en fila; una de ellas, la Estela D, tiene la fecha 849 d.C. La escalinata central marca el eje norte-sur principal del conjunto palaciego. En la franja oeste en la esquina norte (Patio 12) hay un acceso de “servicios” (no representativo) que permitía la comunicación con el grupo del puerto fluvial. En la parte sur hay otro acceso, aparentemente poco controlado, al Patio 5. Esta parte “trasera” es el sector más amplio, bajo y menos restringido.
Aspectos funcionales. Se puede ordenar en tres espacios de relaciones: doméstico residencial, político administrativo y escénico ceremonial. Con este criterio, podríamos decir que el área central, la más restringida, debería ser el espacio de la residencia del gobernante (Patio 6). Para llegar a dicha parte alta hay que pasar por distintos patios (13, 14, 15 y 16), que de alguna forma son filtros de control y de las relaciones privadas del gobernante. Por ejemplo, en este sector el gobernante podía bajar al Patio 15 y pasar en forma privada al Patio 16 (al este). Este último, por su ubicación y forma (patio con una sola cámara útil -Edificio 12D9- y los lados este y oeste con muros lisos), es ideal para tener audiencias privadas. Los posibles individuos que entraban al Patio 16 tenían que pasar por un paso de control doble desde el Patio 9. Por otro lado, del mismo Patio 15 se puede pasar (al oeste) a los Patios 14 y 13, y aparecer frente al Edificio G y al Patio Hundido 1.
El área oeste, con una hilera de patios y edificaciones similares y acceso controlado, podría ser el espacio de residencia de la familia real o la corte (Patios 11, 2, 3 y 4). El área norte sería la parte con funciones político administrativas y al mismo tiempo escénico ceremoniales (Patios 1 y 10). El área sur es una zona de patios más amplios (Patios 5 y 7); en ella no hay accesos restringidos aparentes y predominan varios edificios en hilera, de una crujía (más de 30 cámaras), que podrían ser interpretados como espacios para el personal del conjunto palaciego (guardia real, administradores, personal de servicio indispensable). En el concepto de Houston y Stuart (1992: 146), sobre los patios delantero y trasero, el Patio 1 definitivamente sería el patio delantero y representativo (Patio Hundido) y el Patio 5 el área de servicios.
En el diagrama de la Figura 7 se muestran las distintas franjas y el sistema de conexiones: las cámaras son representadas por círculos, las conexiones de las cámaras, accesos, corredores, terrazas y patios simbolizadas por líneas continuas y las escalinatas por líneas en zigzag. Se aprecia (en el recuadro azul) lo apartada y aislada que es la relación del Patio 6; se trataba de un espacio muy privado, elevado y controlado en el centro del conjunto palaciego.

Aspecto social. El conjunto palaciego simboliza al gobernante, materializa su poder y su capacidad de administrar su territorio. En los espacios palaciegos, un sector fue dedicado a la administración del Estado con sus mecanismos económicos y estrategias políticas organizadas por el gobernante y sus oficiales; acciones que sostenían el sistema de gobierno (cobros, tributos, control de la producción, juicios, manejo de productos de prestigio, comercio de gran distancia, entrega de funciones administrativas y otros) que debieron tener efecto, como se mencionó antes, en los edificios que rodean a los Patios 1 y 10. Por otro lado están las acciones de protocolo: reuniones políticas, banquetes, recepción de visitas estatales, reuniones de la nobleza local, investiduras y demás actos que debieron efectuarse principalmente en el Patio 1. Es éste el espacio más representativo, como un filtro interno entre lo privado/público y privado/privado.
Otras actividades de la corte se desarrollaron en otros patios, por ejemplo, las purificaciones (Baño de vapor 12E4) en el Patio 9. En el sector sur (Patios 8, 7 y 5), pudo haber actividades con más participantes, como competencias, demostraciones militares o enseñanza de nobles, eventos que incluso podían ser observados, por el líder, desde el Patio 6, 18 m más arriba. Actividades más privadas, en áreas no tan grandes (con menos participantes), pudieron realizarse en espacios como el Patio 16, descrito anteriormente, o en espacios parecidos como los Patios 8 o 3. En estos casos, al menos dos lados del patio son muros lisos, es decir, no dan acceso a cámaras; son áreas propicias para el entretenimiento privado de la corte.
Los aspectos relacionados con el almacenamiento de objetos valiosos, depósito de tributos, el tesoro real, los estandartes o el palanquín real, pudieron tener cabida en el Patio 6; los dos edificios laterales al Y tienen esa disposición (12D12 y 12D10) y quizás el Edificio S del Patio 10.
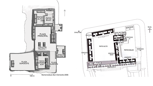
San Clemente
Es un sitio pequeño pero tiene todos los atributos de una ciudad grande: un conjunto palaciego, tres plazas, dos canchas para el juego de pelota, dos edificios verticales gemelos, estelas, altares y una escalinata mostrando cautivos esculpidos (Figura 8). Se encuentra sobre una colina donde el terreno desciende por tres lados.

La plaza principal (120 por 60 m) está elevada del terreno y tiene dos partes: una, al norte, con el conjunto palaciego y dos brazos de plataformas y edificios encima que confinan la plaza; a los lados este y oeste están los monumentos esculpidos (estelas y altares). Luego sigue la parte sur, que es abierta al este y oeste con una cancha para el juego de pelota en medio. El límite sur de la plaza es una plataforma elevada flanqueada por dos edificios verticales gemelos, uno al lado del otro. En 2006 se trabajó este conjunto durante seis meses y se realizaron excavaciones arqueológicas limitadas; el objetivo principal fue consolidar la arquitectura expuesta y en peligro de seis edificios del conjunto palaciego (Quintana, González y Salas, 2011).
Aspectos físicos. Es un conjunto elevado (95 por 70 m), ocupa todo el límite norte de la Plaza Principal; un ancho graderío (escalones esculpidos con cautivos) eleva al conjunto 3 m sobre el nivel de la plaza. Arriba un corredor distribuye a un edificio porticado de dos niveles, 21 entradas y 70 m de largo (Edificio III). Atravesando el Edificio III, por un pasillo abovedado, se entra al área privada: dos patios bajos, un patio alto y siete edificios horizontales. Hacia el norte y oeste las fachadas exteriores son largos muros lisos (como si fuera una fortaleza). Se trata de un conjunto palaciego elevado marcando un grupo principal, más alto (Tipo 1).
Aspecto espacial. Es considerado como un conjunto “pequeño”. Tal rango corresponde a superficies entre 8,500-5,500 m2. En el norte de Petén tenemos dentro de esta categoría: Manantial (7,700 m2), Camalote (7,650 m2), San Clemente (6,175 m2), El Pital (6,000 m2), Witzná (5,400 m2), La Corona (5,400 m2), Perú Waka´ (5,200 m2) y otros.
Ubicación en el tejido urbano. Es un conjunto urbano reducido sobre una colina. La parte representativa es compacta alrededor de la Plaza Principal: al norte el conjunto palaciego (una parte alta y una parte baja), al centro la plaza y al sur una plataforma elevada enmarcada por dos edificios verticales gemelos. Del lado este y oeste hay construcciones más bajas: al este una cancha para el juego de pelota, tipo doble “T” (patrón no común en la zona) y al oeste, la Plaza Suroeste.
Organización interna. El conjunto palaciego se puede describir en dos grupos: la parte alta y la parte baja. Dijimos antes que la entrada oficial es a través de un pasillo abovedado que pasa el Edificio III y sale al Patio Bajo (hundido). Aquí, un corredor distribuye el acceso a diferentes cámaras (Edificios XXIV, VII, partes del IV y el VI). Al patio hundido está unido otro patio (1.50 m más alto), limitado al este por una larga plataforma, al norte el Edificio V y al oeste el Edificio IV. Adentro de este edificio está la escalinata interior que daba acceso al Patio Alto.
El Patio Alto está limitado en tres lados por edificios: al norte, oeste y sur. El lado este es el acceso y está abierto al horizonte. El Edificio I (norte) se ubica sobre una plataforma con corredor frontal, un dado central y tres gradas que lo separan del nivel del patio (una fachada, tres cámaras, tres entradas). Es el edificio a mayor altura del conjunto. En el flanco oeste está el Edificio II, muy parecido al l, pero sin plataforma. En el lado sur, por un único acceso, se entra al segundo piso del Edificio III (una sola cámara con múltiples vanos y pilares hacia el exterior).
Patrón de acceso. La fachada porticada de dos niveles (Edificio III) tiene 21 accesos y cinco cámaras en fila. Al centro, la cámara principal tiene ocho entradas; en este espacio, en el muro posterior, hay una sección remetida que marca el centro y el lugar de una banca; enfrente, el ritmo de los pilares es más abierto. En la misma cámara, del lado este, está el pasillo (a noventa grados), que da paso al interior del conjunto palaciego y sale al Patio Bajo.
El Patio Alto fue originalmente un patio bajo, que en algún momento del Clásico Terminal fue rellenado para elevarlo a 7.5 m por encima del nivel del Patio Bajo. En esa época el acceso era por la escalinata interior del Edificio IV. Luego, este edificio fue varias veces modificado, incluyendo el relleno de la escalinata. Los arqueólogos que realizaron las excavaciones del año 2006 no pudieron identificar otro acceso al Patio Alto. ¿Quizás el relleno de la escalinata fue parte de un ritual de cierre?
Aspectos funcionales. En el diagrama de la Figura 9 se distinguen los espacios interiores con entradas alrededor de los patios. Los círculos representan las cámaras, las líneas continuas la relación de la cámara con el patio (en gris) y las líneas en zigzag las escalinatas. Es notorio en el Patio Alto el corredor con pilares (21), que corresponden al segundo piso del Edificio III.

Aspecto social. Como gran protagonista está el edificio de dos niveles enmarcando la entrada al conjunto palaciego. Seguramente la corte de San Clemente no fue tan extensa como en Tikal o Nakum. La buena fábrica de los edificios demuestra el poder del usuario principal; el Patio Alto es un espacio muy privado y restringido donde el gobernante y su corte podían aparecer, en la galería del Edificio III (segundo nivel), ante su pueblo.
La Blanca
El sitio es de reducidas dimensiones, no tiene edificios verticales ni tampoco estelas o altares esculpidos, pero sí posee un conjunto palaciego con estancias de gran tamaño y de muy buena fábrica. El palacio tiene la entrada principal al norte (fachada porticada hacia la Plaza Norte); la fachada este es cerrada (muros lisos). En la fachada oeste, la primera parte es abierta hacia la Plaza Oeste y luego se muestra la parte trasera del Edificio 6J3 (muro cerrado). El centro del conjunto es un patio hundido con edificaciones en sus cuatro lados (cuadrángulo). La parte sur tiene un patio elevado (Patio Sur) y luego dos terrazas escalonadas, sin edificaciones, que bajan a un estanque de agua.
La Plaza Norte está confinada en dos lados por plataformas continuas (“L”) y edificios encima (al norte y oeste); al este, un edificio aislado con la vista abierta al valle y al sur el conjunto palaciego. La Plaza Oeste es al mismo tiempo una calzada que se prolonga 200 m hacia el sur y llega al Grupo Sur. Al oeste, una larga plataforma elevada enmarca la Plaza Oeste; más al oeste hay varios grupos menores (Figura 10).
Entre los años 2004-2019 el sitio arqueológico fue investigado por la Universidad de Valencia y la Universidad Politécnica de Valencia. En el conjunto palaciego se excavó toda la última fase (Clásico Terminal). También se realizaron sondeos en el interior del conjunto identificando diferentes fases constructivas y algunas restauraciones (Muñoz y Vidal, 2005; 2006; Vidal et al., 2014).
Aspectos físicos. El conjunto tiene una base elevada (65 por 45 m), más dos terrazas escalonadas en la parte sur. En el interior, el concepto del espacio gira alrededor de un Patio Hundido (central); al este está el Edificio principal 6J1; al norte, oeste y sur, el patio es rodeado por el Edificio 6J2 (en forma de “U”) y por un corredor elevado que le da la configuración de patio hundido. En cada flanco, una entrada (pasillo abovedado con bancas laterales) marca dos ejes (norte-sur). Por el pasillo sur se llega al Patio Sur. Este espacio se organiza de la siguiente forma: abierto al sur con vista al valle; en el límite oeste, está el Edificio 6J3 (tres entradas, una fachada); en el lado este, una plataforma baja (no investigada), y al norte la hilera de cámaras del 6J2.
En la caracterización de los conjuntos palaciegos en el norte de Petén le corresponde el Tipo 2 (conjunto elevado con patios a un nivel parecido). La cámara principal del Edificio 6J1 está unos centímetros más elevada que el nivel de piso de las cámaras del Edificio 6J2.
Aspecto espacial. El conjunto tiene una categorización de “muy pequeño”, que corresponde a superficies entre 5,500 y 2,500 m2. De este grupo podemos mencionar, además de La Blanca (2,925 m2), a Holmul-IIIB (4,200 m2) y San Bartolo-Tigrillo (2,650 m2).
Ubicación en el tejido urbano. Se posiciona como el centro de la urbe y sobresale por su magnífica arquitectura, aún conservada en buena parte; se distingue de las demás edificaciones vecinas por su calidad constructiva y el tamaño de sus ambientes.
Organización interna. El Patio Hundido es el ordenador central que, curiosamente, en una fase inicial, sólo un lado del patio, Edificio 6J1, tiene cámaras hacia el patio. El resto, en tres lados (6J2), fueron muros lisos con un corredor interior en forma de “U”. Fuera del patio hundido, el Edificio 6J2, en el ala norte tiene cinco cámaras, en el ala oeste cuatro y al sur cinco (hacia el Patio Sur); en total 14 cámaras unidas por un corredor exterior. La mayoría de los espacios interiores son cámaras con dos entradas y grandes bancas de mampostería. En una fase posterior, el ala sur del 6J2 (Patio Hundido) fue modificada, se agregó un recinto de un espacio interior alargado con tres entradas hacia el patio y un acceso lateral (al este). Pareciera ser una especie de corredor techado sin bancas. El Patio Sur originalmente fue una terraza que luego se amplió para dar espacio al Edificio 6J3.
Patrón de acceso. Es directo desde la Plaza Norte al corredor superior del Edificio 6J2 (ala norte). En el centro (eje norte-sur) se pasa un pasillo controlado (dos bancas, una a cada lado) y se llega al corredor interior que rodea el Patio Hundido.
Aspectos funcionales. La solución atípica del Patio Hundido hace suponer que este espacio pudo servir para representaciones escénicas, teatro, música o competencias deportivas y no a una unidad familiar de élite. Por el contrario, la porción sur del palacio, más reservada y privada, sí pudo ser una unidad cortesana. Es evidente, en el diagrama de relaciones en la Figura 11, que el patio central (Patio Hundido) no sirve de distribuidor a diferentes ambientes, sino que “atiende” a un solo edificio, el principal (6J1). El corredor (Patio Hundido) posiblemente fue un lugar para observar eventos usando como telón escénico la fachada del Edificio 6J1. Quizás, al agregar el edificio-fachada pegado en el ala sur del 6J2 (también con tres entradas), cambió el frente de la escena.

Los círculos representan los espacios interiores (cámaras), las líneas muestran el comportamiento interno y sus relaciones con accesos, corredores y patios, los círculos en negro indican pasos de control y las líneas en zigzag las escalinatas. Son notorias las entradas dobles a un recinto. Además es patente que la circulación principal, entre cámaras, es por afuera y no por el Patio Hundido (al centro). En el diagrama está dibujada, para las dos fases de uso, una escalinata en el lado oeste (hacia la Plaza Oeste), condición que no es segura para la ampliación posterior, cuando se modificó el Patio Hundido y se construyó el Patio Sur. Según los registros arqueológicos no hubo una escalinata representativa en la fachada oeste.
Aspecto social. Por la buena fábrica de su edificación y la falta de edificios verticales y monumentos (estelas y altares) en su alrededor, pareciera ser que el emplazamiento fuera una especie de villa de verano o retiro de un importante personaje. La escala de las cámaras y las bancas demuestran haber sido usadas por un poderoso protagonista. El Patio Hundido, por su forma particular, parece ser un escenario exclusivo con el Edificio 6J1. El Patio Sur es un área reservada que pudo ser vivienda privada con buena ventilación y estupendas vistas al horizonte (valle del río Mopán).
Comparaciones
Sabemos que la evolución en los cuatro conjuntos palaciegos inició en el Preclásico y llegó en todos los casos, con mayor o menor intensidad, hasta el Clásico Terminal. Los cuatro centros urbanos son de diferente magnitud y solución arquitectónica pero su calidad constructiva los equipara y han sido objeto de intervenciones restaurativas en los últimos años.
En la región hay un registro de 128 ciudades mayas (Quintana y Wurster, 2001; Quintana, 2013) con varios conjuntos similares, pero muchos de ellos no están investigados, desescombrados y estudiados en su espacio interior, razón por la cual los datos que podemos comparar son reducidos.
Las fachadas de los conjuntos palaciegos hacia la plaza son porticadas con muchos accesos. El más grande es el de Nakum, con una sucesión de 22 entradas y 23 secciones de muros (120 m de largo); le sigue San Clemente con 21 accesos y 22 pilares (70 m de largo). La Blanca tiene dos fachadas porticadas (nueve vanos y 10 secciones de muro por cada una). En la Acrópolis Central de Tikal, un edificio tiene cinco, y dos edificios, nueve accesos cada uno.
Extraño es el edificio con cinco entradas (5D-71), que presenta cinco salidas contrapuestas al Patio 1. En la Plaza de los Siete Templos (Tikal) hay un edificio parecido con tres entradas y tres salidas (5D-91), soluciones no comunes en el área del estudio.
Destaca, en Nakum, el edificio de entrada al Patio 6, el cual tiene una fachada porticada de cinco entradas y tres salidas. Una solución que, por afuera invita a entrar (es portentosa), pero por dentro, en dos crujías paralelas, se restringe el paso y la salida al Patio 6.
Relaciones plaza-conjunto palaciego: en Tikal se presentan al frente dos plazas en fila (flanco sur de las plazas); en Nakum, dos plazas, una principal (lado norte de la plaza) y una modificación posterior (Plaza Sureste); en San Clemente, una plaza (límite norte de la Plaza Principal), y en La Blanca, dos plazas, una al norte (flanco sur) y otra al oeste (lado este de la plaza).
En general, una de las fachadas de los conjuntos palaciegos es abierta y las otras tres cerradas hacia el exterior (muros lisos). Tikal tiene dos fachadas abiertas, a la Gran Plaza, la Plaza Este y al Reservorio del Palacio; Nakum originalmente tuvo una fachada representativa a la Plaza Central y tres cerradas; luego, en la parte este del conjunto palaciego, se instaló un nuevo espacio público (Plaza Sureste). En esta parte de la fachada, que tenía muros continuos (Edificios R y T), se construyeron nuevos edificios (R1 y T1). En San Clemente hay dos fachadas lisas (al oeste y norte), una abierta al horizonte y otra representativa (a la Plaza Principal). La Blanca tiene dos fachadas hacia el exterior (norte y oeste), una cerrada (este) y otra, al sur, con un patio elevado (privado) abierto al horizonte. Igual solución, abierta al horizonte, sucede en la fachada este de San Clemente.
En los espacios interiores, el orden de las fachadas principales predomina en entradas porticadas con tres accesos y dos pilares (Nakum: Patio 1, Edificios G, 12D13 y 12D14; Tikal: Edificio 5D-55). Más adentro, en los espacios privados predomina la tradicional fachada de tres entradas separadas por macizos muros. Algunos ejemplos: Nakum (Patio 6, Edificio Y, 12D2); Tikal (Patio 2, Palacio Maler, Patio interior 5D-46); La Blanca (Patio Hundido, 6J1); San Clemente (Patio Alto: Edificios I y II).
Edificios de dos niveles están presentes en San Clemente, Nakum y Tikal. De tres niveles sólo en Tikal.
Edificios principales o residencia del gobernante: el Palacio Maler de Tikal (Patio 2), el Edificio Y de Nakum (Patio 6), el Edificio I en San Clemente y el Edificio 6J1 en La Blanca. Los cuatro tienen en común una plataforma con escalinata, pero en su disposición de fachadas y distribución de espacios en el interior son distintos (Figura 12). Los círculos representan las cámaras, las líneas continuas la circulación y la línea en zigzag las escalinatas. En el primer diagrama hay una circulación exterior que rodea al edificio y da acceso a cámaras en las cuatro fachadas (Nakum, Edificio Y); en Tikal el corredor exterior no circula alrededor de todo el edificio, pero posee entradas en las cuatro fachadas; en los dos siguientes (La Blanca y San Clemente), ambos tienen un corredor frontal y una sola fachada con tres accesos.

En los cuatro ejemplos predominan los edificios horizontales y en hilera.
Un caso curioso son las cámaras con dos entradas en La Blanca, con ocho ejemplos; en San Clemente hay tres casos, dos en la Acrópolis Central de Tikal y uno en Nakum (Edificio D).
Más comunes son los espacios interiores con una, tres y más entradas, donde el eje central es acentuado con un acceso más amplio (puerta escénica). Generalmente está en contraposición una banca de mampostería adosada al muro (intención: ver y ser visto).
Hay bancas con respaldo, del largo completo del espacio interior, aislado en el muro posterior, a los lados de la entrada. En tamaño, La Blanca tiene las bancas más grandes de toda la región (2.20 por 5.72 m en promedio y 0.75 m de alto), la más larga mide 6.90 m.
En Tikal y Nakum hay cámaras donde una banca con respaldo ve a un patio con una puerta amplia, más un corredor y escalones de grandes dimensiones: Tikal, Edificio 5D-49 (entre los Patios 4 y 6), y Nakum, Edificio 12D9, Patio 16, como si fueran lugares de audiencia.
Peter Harrison (2001) identificó, en la Acrópolis Central de Tikal, edificios especiales llamándoles “salas del trono” (5D-118, 5D-61, 5D-59 y 5D-123). En el ala oeste del palacio de La Blanca hay una cámara (6J2, Cuarto 11) de tres accesos y dos grandes bancas en fila. En medio de las bancas hay una especie de mesa o altar de mampostería adosado al muro posterior, como si fuera una sala de reuniones muy especial, ejemplo único en la región.
Edificios con accesos sobredimensionados: dos en Nakum (Patio 6: 12D12 y 12D10) y uno en Tikal (Patio 2: 5D-118), ambos muy cercanos al edificio-residencia del líder. Además, en estos dos patios hay un oratorio privado (Patio 6: 12D13 y Patio 2: 5D-66). Para llegar a los Patios 6 y 2, hay que pasar por varios pasos de control; estos patios a su vez son los espacios exteriores a mayor altura de los dos conjuntos palaciegos.
De los cuatro conjuntos estudiados, sólo Nakum tiene un edificio vertical de grandes dimensiones (Patio 1, Edificio E). Destacan allí los dos grupos triádicos (Edificios N y E), el N de dos niveles, y el edificio para el Baño de Vapor (12E4) dentro del conjunto palaciego.
Los cuatro ejemplos tienen un patio hundido: en Nakum (Patio 1), Tikal (Patio 3), La Blanca (Patio Hundido) y San Clemente (Patio Bajo). Los patios hundidos funcionan bien para distribuir, por medio de corredores elevados, hileras de cámaras alrededor del patio. En La Blanca es diferente, pues no distribuye el ingreso a diferentes cámaras; en este caso el corredor elevado parece ser una tarima de observación hacia el patio y el Edificio 6J1.
En Nakum los patios grandes (promedio 40 por 40 m) pudieron contener a unas 1600 personas, y en los patios pequeños (promedio 7 por 4 m), unos 28 individuos. El Patio Hundido de La Blanca (28 por 35 m) pudo albergar, en ocasiones especiales, a unos 1000 sujetos.
En los diagramas destacan algunas relaciones espaciales con pocos accesos a espacios interiores. En el palacio de Nakum, los Patios 16, 3 y 8, y en La Blanca, el Patio Hundido; son espacios que pudieron ser usados para audiencias privadas, representaciones teatrales, danzas de la nobleza, música o eventos deportivos.
En los dos conjuntos palaciegos de mayor número de patios (Nakum y Tikal), el patio más grande, en tamaño, ocupa el nivel más bajo del conjunto (Patios 5-7 en Nakum y Patio 6 en Tikal). Por otro lado, estos patios grandes y bajos están en posición contraria a los patios representativos o frontales a la plaza principal (en el concepto de Houston y Stuart, 1992: 146). Otro rasgo similar es que, afuera de los dos conjuntos elevados (Patios 5-7 en Nakum y Patio 6 en Tikal), hay grupos de edificios con aparente función de “servicios”, con escalinata secundaria al conjunto palaciego. Interesante es también que estas áreas de servicio (fuera del conjunto elevado) están en posición estratégica junto a caminos importantes: en Nakum, el río Holmul, y en Tikal, la Calzada Méndez.
La elevación de los patios interiores, en relación con la plaza principal es, en Nakum, del patio hundido (Patio 1) a la Plaza Central, 7 m; en Tikal, entre el Patio 2 y la Gran Plaza, la diferencia de altura es 11 m; en La Blanca, entre el Patio Hundido y la Plaza Norte hay 9 m; en San Clemente, la diferencia entre el Patio Alto y la Plaza Principal es de 9 m.
Nakum tiene un recorrido principal en el eje dominante norte-sur que inicia afuera, en la Plaza Central, sigue en el Patio 1, pasa por los Patios 13, 14, 15 y llega al Patio 6. En la Acrópolis Central de Tikal no se marca un recorrido representativo.
Tikal tuvo tres entradas: una al Patio 1 (que no continúa o pasa al Patio 2), otra por el Edificio 5D-60, donde por un pasillo estrecho y controlado se llegaba a los Patios 2 y 3; la tercera entrada era al Patio 6, dividiendo el conjunto en tres funciones distintas. En San Clemente la entrada se da atravesando el Edificio III (pasillo abovedado), pasando del Patio Bajo al Patio Alto; el ascenso al edificio principal (I), en el Clásico Tardío, fue por una escalinata interior (Edificio IV), tapiado posteriormente por los mismos mayas. En La Blanca la entrada es directa desde la Plaza Norte hacia el corredor exterior del Edificio 6J2 (ala norte), y de allí por un paso de control al Patio Hundido y al Edificio 6J1.
Un elemento en común es la restricción de la circulación interior. En los cuatro casos hay pasos de control entre un patio y otro, y claras barreras que no todos los usuarios podían traspasar sin ser revisados por guardianes. El factor seguridad (proteger al usuario principal) está plasmado en la estructura de los grupos de patios.
Una particularidad son los espacios para “apariciones” o “ventanas”: en Tikal, del Patio 2, por un pasillo controlado se llega a una terraza (techo del Edificio 5D-120) abierta a la Gran Plaza, además de tener una estupenda banca con vista a la plaza. En Nakum, el gobernante podía aparecer en diferentes partes: sobre el techo de su Edificio Y (Patio 6), en el techo de los Edificios G, H, y D (Patio 1) o en el Patio 16 por una “ventana” al Patio 1. Igual sucede en San Clemente con los Edificios I y II del Patio Alto y el paso a la galería con vistas hacia la plaza principal (segundo piso del Edificio III). En La Blanca no parece necesario ese tipo de apariciones.
Otro aspecto en común es que tres de los cuatro ejemplos tienen en uno de sus lados un estanque o espejo de agua: Nakum al lado oeste (puerto fluvial), Tikal por lado sur (estanque del palacio) y La Blanca al lado sur (plataformas escalonadas y estanque). En San Clemente es posible que existiese uno al oeste.
Nichos, agujeros, grafitos y pintura: los muros con nichos y agujeros diversos abundan en los cuatro conjuntos palaciegos al igual que los grafitos. Hay datos sobre restos de pintura en Nakum (Edificios A y N), San Clemente (Edificio I) y La Blanca (Edificio 6J2 Sub, Cuarto 2).
Conclusiones
Con las comparaciones del acápite anterior podemos intentar establecer un patrón edilicio para los conjuntos palaciegos en el norte de Petén. Los Cuadros 1 y 2 nos presentan un resumen relativo, donde vemos las similitudes y diferencias. Es notorio que en los conjuntos palaciegos de rango menor hay menos elementos posibles de analizar que en los conjuntos de muchos patios (grandes); pero las jerarquías palacio-plaza, su estructura de patios y la restricción de circulación interior se mantiene en los cuatro casos.


Tenemos en la muestra un conjunto palaciego muy grande de 25,500 m2 de superficie, 16 patios, 44 edificios y más de 180 cámaras; en el más pequeño disponemos de una superficie de 2,925 m2, 2 patios, 4 edificios y 29 cámaras; lo cual nos brinda una idea de la gran variedad de posibles soluciones espaciales. En el registro del noreste de Petén (Quintana y Wurster, 2001, y Quintana, 2013: catálogo con 128 fichas técnicas) hay más conjuntos palaciegos por analizar; están identificados pocos de rango grande y muchos de condición mediana, pequeña y muy pequeña, por lo que se deberán seguir los estudios comparativos para afinar una tipología local.
En la muestra se identificaron las similitudes, lo que nos permite suponer un patrón edilicio establecido que siguió normas y proporciones determinadas en las cuatro sedes del poder. Para más precisión se determinaron tres tipos de conjuntos palaciegos para el norte de Petén, a los cuales se asignó una tipología: 1) elevado con un patio dominante, 2) elevado con patios similares y 3) conjuntos no elevados. Además se seleccionaron seis rangos de tamaño, considerando largo y ancho del conjunto palaciego (monumental, muy grande, grande, mediano, pequeño y muy pequeño). En este estudio usamos sólo cuatro de ellos: muy grande, grande, pequeño y muy pequeño, variables que pueden ayudar a normalizar dichos conjuntos en el área de estudio y ser referencia para otros trabajos similares en las Tierras Bajas del Centro.
Es evidente el deseo de elevar los conjuntos palaciegos como montañas sagradas, los witz del mundo mitológico, de sobresalir, marcar y separarse del resto de construcciones vecinas; esta es una condición dominante en el norte de Petén. En los cuatro casos de estudio se visualizó la posición del conjunto-plaza en el tejido urbano y su relación con el acceso a él. Además se identificaron otros elementos urbanos que se asocian a los objetivos del estudio, como las canchas para el juego de pelota, los estanques, los cuerpos de agua y las posibles zonas de servicio para la élite gobernante. También la plaza contenía otros edificios representativos, como los templos pirámide, y es el elemento de unión, a través de calzadas, con el resto de la ciudad.
Es innegable que los conjuntos palaciegos en las ciudades mayas de las Tierras Bajas Centrales son un vivo indicador de la estructura socio-espacial del poder; es la representación de la montaña sagrada, el lugar de la abundancia infinita, estructura vedada al ciudadano común, un espacio privado y restringido. Era la génesis del dominio y el control político social de su comunidad. Por el contrario, la plaza permitía el acercamiento de personas a la sede del poder y en ella participar de eventos con sus líderes. El conjunto palaciego se concibe como un contenedor del poder exclusivo y restringido ligado a la plaza, su brazo público; un esquema que se repite a lo largo de la historia prehispánica, la colonial, la republicana y continúa hasta nuestros días.
Bibliografía
Barrientos, Tomas 2014 “The Royal Palace of Cancuen: The Structure of Lowland Maya Architecture and Politics at the End of the Late Classic Period”, tesis de doctorado en Filosofía. Nashville: Universidad de Vanderbilt.
Bazy, Damien 2012 “Modalidades y dinámicas de relación entre facciones políticas desde una perspectiva arquitectónica en las ciudades mayas de las Tierras Bajas Centrales y Meridionales”, XXV Simposio de Investigaciones Arqueológicas en Guatemala 2011, pp. 160-172, B. Arroyo, L. Paiz y H. Mejía (eds.). Guatemala: Ministerio de Cultura y Deportes, Instituto de Antropología e Historia, Asociación Tikal.
Ciudad Ruiz, Andrés, Jesús Adánez Pavón y María Josefa Iglesias Ponce de León 2011 “La imagen del poder real: las plazas monumentales de Machaquilá”, Representaciones y espacios públicos en el área maya, un estudio interdisciplinario, pp. 133-159, Rodrigo Liendo y Francisca Zalaquett (eds.). México: Universidad Nacional Autónoma de México, Instituto de Investigaciones Filológicas, Centro de Estudios Mayas.
Coe, William R. 1985 Tikal, guía de las antiguas ruinas mayas. 7ª ed. Guatemala: Museo de la Universidad de Pensilvania, Asociación Tikal.
Delvendahl, Kai 2005 “Las sedes del poder. Arquitectura, espacio, función y sociedad de los conjuntos palaciegos del Clásico Tardío en el área maya evaluados desde la arqueología y la iconografía”, tesis de doctorado en Antropología. México: Universidad Nacional Autónoma de México, Facultad de Filosofía y Letras, Instituto de Investigaciones Antropológicas.
Delvendahl, Kai 2010a Las sedes del poder. Evidencia arqueológica e iconográfica de los conjuntos palaciegos mayas del Clásico Tardío. Mérida: Universidad Autónoma de Yucatán.
Delvendahl, Kai 2010b “Los conjuntos palaciegos reales de las tierras bajas del sur: una evaluación de los datos arqueológicos e iconográficos”, Estudios de Cultura Maya, XXXVI: 87-116. DOI: http://dx.doi.org/10.19130/iifl.ecm.2010.36.6.
Harrison, Peter 1970 “The Central Acropolis, Tikal, Guatemala: A Preliminary Study of the Functions of Its Structural Components during the Late Classic Period”, tesis de doctorado en Filosofía. Pensilvania: Universidad de Pensilvania.
Harrison, Peter 2001 “Thrones and Throne Structures in the Central Acropolis of Tikal, as an Expression of the Royal Court”, Royal Court of the Ancient Maya, Volume 2. Data and Case Studies, pp. 74-101, Takeshi Inomata y Stephen D. Houston (eds.). Boulder: Westview Press.
Hohmann-Vogrin, Anna Margaretha 1992 Struktur und Bedeutung der Stadt. Ein architekturtheoretischer Versuch am Beispiel der voreuropäischen Kulturen Mesoamerikas. Graz: Habilitationsschrift, Fakultät für Architetur der Technichen Universität.
Houston, Stephen D. y David Stuart 1992 “Der Hofstaat der Maya in der Klassik”, Die Welt der Maya. Archäologische Schätze aus drei Jahrtausenden, pp.142-157, Eva y Arne Eggebrecht (eds.). Mainz am Rhein: Verlag Philipp von Zabern.
Liendo Stuardo, Rodrigo 2003 “Access Patterns in Maya Royal Precincts”, Maya Palaces and Elite Residences. An Interdisciplinary Approach, pp.184-203, Jessica J. Christie (ed.). Austin: University of Texas Press.
Mongelluzzo, Ryan 2011 “Experiencing Maya Palace: Royal Power Space and Architecture at Holmul, Guatemala”, tesis de doctorado en Filosofía. Riverside: Universidad de California.
Muñoz Cosme, Gaspar y Cristina Vidal Lorenzo (eds.) 2005 La Blanca. Arqueología y desarrollo. Valencia: Universidad Politécnica de Valencia.
Muñoz Cosme, Gaspar y Cristina Vidal Lorenzo (eds.) 2006 La Blanca. Arquitectura y clasicismo. Valencia: Universidad Politécnica de Valencia .
Peiró Vitoria, Andrea 2018 La estructura urbana de las ciudades mayas del periodo Clásico; presentación, Markus Reindel; prólogo, Gaspar Muñoz. Wiesbaden: Harrassowitz Verlag (Forshungen zur Archäologie Aussereuropäischer Kulturen, Band 15).
Quintana, Óscar 2013 Ciudades mayas del noreste de Petén, Guatemala. Análisis urbanístico y conservación. Wiesbaden: Reichert Verlag (Forschungen zur Archäologie Aussereuropäischer Kulturen, Band 11).
Quintana, Óscar 2014 “Nakum-Ciudad Maya, Petén, Guatemala”, Zeitschrift für Archäologie Aussereuropäische Kulkturen ZAAK, 6: 145-246.
Quintana, Óscar 2017 “El noreste de El Petén, aportes al urbanismo prehispánico” Estudios de Cultura Maya , XLIX: 67-95. DOI: http://dx.doi.org/10.19130/iifl.ecm.2017.49.815.
Quintana, Óscar y Wolfgang W. Wurster 2001 Ciudades mayas del noreste del Petén, Guatemala. Un estudio urbanístico comparativo, con planos y dibujos de Raúl Noriega. Mainz am Rhein: Verlag Philipp von Zabern (Materialien zur Allgemeinen und Vergleichenden Archäologie Band, 59).
Quintana, Óscar, Breitner González y Miriam Salas 2011 “Resultados finales de las investigaciones en San Clemente”, XXIV Simposio de Investigaciones Arqueológicas en Guatemala, 2010, pp. 269-276, B. Arroyo , L. Paiz , A. Linares y A. Arroyave (eds.). Guatemala: Museo Nacional de Arqueología y Etnología.
Runggaldier, Astrid 2009 “Memory and Materiality in Monumental Architecture: Construction and Reuse of a Late Classic Maya Palace at San Bartolo, Guatemala”, tesis de doctorado en Filosofía. Boston: Universidad de Boston.
Vidal, Cristina, Gaspar Muñoz Cosme, Maria Luisa Vásquez, Nuria Feliú y Luis Alberto Romero 2014 “Resultados de las recientes investigaciones realizadas en La Blanca (Petén)”, XXVII Simposio de Investigaciones Arqueológicas en Guatemala, 2013, pp. 795-804, B. Arroyo, L. Méndez y A. Rojas (eds.). Guatemala: Museo Nacional de Arqueología e Etnología.
Notas de autor