Articles
Received: 03 November 2020
Accepted: 09 February 2021
Published: 15 March 2021
DOI: https://doi.org/10.14393/SN-v33-2021-58037
Funding
Funding source: CAPES/PROJETO AUXPE
Contract number: 0603/ 2018
Abstract: This paper presents two current problems the city of Rio de Janeiro faces. On the one hand, is the environmental issue caused by the fragmentation of the native restinga, a coastal plain native ecosystem, occurring because of urban development processes. On the other hand, the food shortage suffered by communities with low economic resources. A proposal for edible landscaping applied to Rio’s west side public space that tackles these issues is presented. This work used different methods, including theoretical framework analyses, which explore landscape and ecosystems issues, historical urban processes, and the edible landscape concept. In addition, geo-technological tools and local visits to apply biophysical, urban, and architectural analyses to the study area were applied and made. This research project and process allowed the researchers to choose public space areas in which the edible landscape proposal would be applied.
Keywords: Edible landscaping, Restinga ecosystems, Urban expansion.
Resumen: El siguiente artículo presenta un trabajo de investigación que aborda dos problemáticas que ocurren actualmente y de manera simultánea en la ciudad de Rio de Janeiro, Brasil. Por un lado, la cuestión ambiental causada por la fragmentación de los ecosistemas de restinga nativos de esta zona, que es causada por una urbanización que no privilegia la importancia de la naturaleza en el espacio urbano; y por otro lado la cuestión social - la carencia alimenticia presente en las comunidades de bajos recursos económicos. Al final se presenta una propuesta de paisajismo comestible aplicada en el espacio público de la zona oeste de la ciudad, con la cual se busca atenuar ambas cuestiones, a partir del rescate de uno de los ecosistemas más importantes del litoral atlántico. Dicha investigación se ejecutó a partir de dos momentos: primeramente, se realizó un estudio de un marco teórico que trata los conceptos de paisaje, ecosistemas, procesos de urbanización y paisajismo comestible. Además de esto, como parte de los procedimientos metodológicos, utilizando herramientas geotecnológicas y realizando visitas de campo, se practicó análisis biofísico y urbano arquitectónico del área de estudio seleccionada. Este proceso investigativo y proyectual, permitió seleccionar áreas en el espacio público en las cuales se aplicó la propuesta de paisajismo comestible.
Palabras clave: Paisajismo comestible, Ecosistemas de restinga, Expansión urbana.
INTRODUCTION
The constant increase in the world’s population has resulted in the fragmentation of natural ecosystems due to the uncontrolled occupation of the territory. According to data presented by the UN (FAO, 2015), the world’s population will grow from 7.7 billion to 9.7 billion by 2050, putting these natural habitats at serious risk.
Thus, this work establishes a landscaping proposal that seeks, on the one hand, to rescue a degraded ecosystem endangered by urbanization, and on the other, to address the current social problem of food and nutritional deficiency faced by communities of low socioeconomic levels, especially in Latin American and Caribbean countries (NAME, 2016).
The landscaping proposal is developed from the combination of edible species, native or exotic, together with ornamental species for urban space (NAME, 2016), which until now has only been valued for its purely ornamental characteristics, both in private and public levels, leading to the use of mostly exotic species (ZAMITH, 2014). The appreciation of Brazil’s marine coasts caused an attraction on the part of the population to these areas, which intensified the occupation of areas along the coast. As a consequence of urbanization on the coast, coastal ecosystems, including the restinga ecosystem, have been gradually fragmented and/or suppressed, increasing the risk of extinction, either due to habitat loss or competition with species present in the tree plantations and other urban uses.
Consequently, it is necessary to rescue the restinga ecosystems, natural to the entire Brazilian coast, which are undervalued due to the lack of knowledge about their potential and in a high level of destruction due to local urban expansion. The priority given by the real estate sector to green areas and urban parks aggravates this process by promoting forms of use and appropriation in the environment (GOMES, 2013), intensifying the degradation of the remaining ecosystems.
Considering the importance of native ecosystems for the coastal socio-environmental balance (MONTEZUMA; OLIVEIRA, 2010), the following proposal seeks to increase connectivity between the large fragments of restinga present in the urban expansion zone of the city of Rio de Janeiro, from the approach of edible landscaping focused on the valuation of native species of restinga ecosystems. An area along the coast of Praia do Recreio dos Bandeirantes, corresponding to the Chico Mendes and Marapendi Municipal Natural Parks, located in the west side of the city, and the Terreirão slum, located next to the Chico Mendes Park, were selected as the cropping area to be studied.
LANDSCAPING WITH A SOCIO-ENVIRONMENTAL APPROACH
Study Area and Historical Processes
The western side of the municipality of Rio de Janeiro, called Baixada de Jacarepaguá, is the current area of urban expansion of this city divided into different neighborhoods. However, before urban colonization, this part of the territory was dominated by the restinga (Figure 1), which in turn contains different plant communities, according to their territorial location (ARAÚJO et al. 1984). Historically, this area consisted of sandbanks with open bush vegetation, low trees, swamps and flood zones; rough terrain and difficult access, as described by Magalhães Corrêa (1933, pp. 25), in Sertão Carioca:
The restinga, wall to the Atlantic Ocean, that comes from Barra da Tijuca to the Rangel hill, in an extension of 20 kilometers, in a little pronounced arc of sand and dunes, forms in its center the Marapendi lagoon, of fresh and very deep water, and a smaller one, known as Lagoinha, being these separated from the Sernambetiba lines, by the Itapeva restinga...

These inhospitable lands were previously occupied by the agricultural mills belonging to the colonial era, which, as the land was negotiated, were parceled out, giving rise to the first small villages made up of houses on smaller individual lots (MONTEZUMA et al. 2014). Montezuma & Oliveira (2010) report as an event occurred in the 1970s, the great urban saturation of the South side and San Conrado in the city core, unleashing a "real estate fever" (SANTOS, 2017). It promoted the growth of the city towards the Baixada, occupying these lands from east to west, initially consolidating the Barra da Tijuca district and continuing towards the Recreio dos Bandeirantes, where currently there is still a large number of model homes in individual lots. This urban development process planned for the city’s high class brought the labor force of the lower class. This people, having to work in areas so distant from the city center, opted to move to this territory with their families and join in unplanned communities that consolidated as slums within the medium-high socioeconomic context of this area, which was referred to as the phenomenon of "pockets of poverty" (MONTEZUMA; OLIVEIRA, 2010).
The Lúcio Costa Plan was proposed for this urbanization process, suggesting the Baixada de Jacarepaguá as another urban center where buildings do not exceed a maximum height of 10 floors and the land occupation model was in balance with the natural processes taking place there. In reality, this process was manipulated by the real estate market, which was in charge of allocating the land for the implementation of closed condominiums with buildings reaching 30 floors and large shopping malls that contrast with the precarious conditions of the poorest areas (CARDEMAN; NAME, 2014). These urbanization dynamics consumed the restinga that previously dominated the landscape, leaving as remnants some large fragments of restinga that survive nowadays under the denomination of Conservation Units (Protected Areas), defined as the Marapendi, Chico Mendes and Bosque da Barra Municipal Natural Parks, as shown in Figure 2.

Procedures
Before establishing any type of proposal, it is necessary to know, read and understand the environment and the context of the space where it will be inserted. In this case, the Recreio dos Bandeirantes area (Figure 3) was defined as the study area. A series of analyses of the biophysical and urban architectural systems were carried out, in which the topography and hydrography, road typology, urban typology, urban uses and the system of free public and private construction spaces were studied (Figures 3, 4, 5, 6, 7 and 8). This reading was performed using a combination between the Google Earth PRO (2017) tool and Autodesk Auto CAD, Adobe Illustrator and Adobe Photoshop software, enabling a qualitative analysis of the selected class typologies of use and occupancy.
From there, the existing urban arborization was analyzed by making several visits and car tours, photographing the species, as well as a socioeconomic study based on 2010 census data from the Brazilian Institute of Statistical Geography (IBGE - Instituto Brasileiro de Geografia Estatística) (IBGE, 2010).
Results and discussion
Figures 3 to 8 present the result of the mappings analyzed in the western area of the Recreio dos Bandeirantes, Rio de Janeiro. The maps show the specialization of urban vegetation present in the arborization of roads, squares, conservation units and residential lots.
The cropping area (Figure 3) is then defined by Avenida das Américas at the north, the coastline at the south, the Morto River channel at the west and Avenida Gignard at the east.

The water system (Figure 4) highlights the connection between the lagoons of the Marapendi and Chico Mendes Municipal Natural Parks and the Morto river channel; this structure is the result of the geological movement that this area has experienced since the Holocene era (COSTA MAIA et al. 1984). Because of this process, the two hills included in the area are Morro do Rangel and Pedra do Pontal.

On the other hand, the road system (Figure 5) shows the hierarchy that these roads have according to the amount of vehicular flow that runs through them. We found two primary roads that are intercities and cross the Baixada de Jacarepaguá from east to west; other secondary roads that cross the Recreio dos Bandeirantes from north to south, and finally the interior roads of the district and those of a pedestrian type that are less frequented.

The building typology (Figure 6) reflects a predominance of buildings of 4 floors along the eastern side of the district. While for the westward expansion zone, this pattern changes significantly to buildings with more than 10 floors, along with some remnants of the green area house building model that dominated the area at the beginning of the twentieth century (MONTEZUMA; OLIVEIRA, 2010).

The map of urban uses (Figure 7) shows the residential use of the district and how it is protected from the movement of Avenida das Américas by a barrier of different uses.

The characterization of open spaces (Figure 8) shows how this urban matrix has great potential to increase its permeability, due to these public and private spaces.

The analysis of the current urban arborization demonstrated, as stated by Zamith (2014), is that most of the species present in the public space are exotic with ornamental characteristics. The most common were Flamboyan (Delonix regia), Almond Tree (Terminalia catappa), Brazilian Orchid-tree (Bauhinia forficata), Leucaena leucocephala and the Cocos nucifera palm. Only one native species was found during the survey, the Brazilian Peppertree (Schinus terebinthifolius) (Figure 9).

In the last socioeconomic census conducted by IBGE, in 2010, it was analyzed that the Recreio dos Bandeirantes district is characterized as an area of medium-high socioeconomic stratum with average income between 5 and 10 minimum wages per household. While the Terreirão slum, located there, appears as the most economically vulnerable population with an average income of less than 2 minimum wages per household, which reiterates the importance of guiding the edible landscaping proposal (MONTEZUMA; MAGALHÃES, 2017).
These analyses described above made it possible to define potential areas within the study area to implement the edible landscaping proposal according to a defined categorization for roads, urban squares, the Canal das Taxas and the Land Finch lot currently used for real estate development (Figure 10).

PROPOSING A LANDSCAPING WITH AN EDIBLE APPROACH
Roads
Within the road space (Figure 11), the propose is to use the central and lateral flowerbeds currently present to plant edible species of restinga, which seek to reinforce the existing vegetation, even if it is not native. However, the demands of each species in terms of luminosity, shading and neighborhood are considered when proposing them within the space, in such a way as to guarantee their development and survival.
It is proposed the implementation of several edible species of restinga belonging to the formations that would occur naturally in this space in the existing pedestrian boardwalk on Lúcio Costa Avenue (2). In such a way that they serve as contact species for the people who walk there, as well as a natural barrier that separates the pedestrian space and the beach and that of the avenue that has great vehicle flow.

Thematic squares
Given the potential for social integration that the squares represent in general, we propose a series of themes for each of them where programs that can be implemented by the inhabitants of the neighborhood can be developed. Carrying out activities associated with the exchange of seeds and seedlings, cultivation and harvesting of edible species of restinga. In this context, we consider the limitations of finding them in the market, the sale of fruits and products based on this vegetation, as well as places for the dissemination of knowledge about these ecosystems and their importance. Also incorporated into this proposal for thematic squares is the green corridor Alameda Sandra P. de Fara Alvin (5), which currently functions as a conservation area, leaving it with the same focus, but including restinga species for its conservation.
Five square models are then proposed, which are: Thematic Museum of restinga, Exchange of seeds and seedlings, Sale of edible products, Urban vegetable garden and Protected area, which are adapted to each case according to the square to which they correspond, as shown in Figure 12.

Restinga Thematic Museum:
The propose is to develop landscaping that shows examples of the natural formations of the non-urban restinga, but focusing on the edible species of these formations, offering a direct and didactic contact with these ecosystems, and at the same time allowing new food experiences. It also seeks to stimulate knowledge of what is unique to the area, through informative tables (Figure 13) that reveal, through their data, the values that make these ecosystems worthy of protection to ensure their preservation, especially those that are immersed in an urban context.

Exchange of seeds and seedlings:
Considering that part of the objectives of this project is to create an interest in the population for these habitats, it is proposed to manage the exchange of seeds and seedlings of edible and non-edible species of restinga. The idea is to use the species found within the Chico Mendes and Marapendi Municipal Natural Parks, but developing the proposal in certain squares that, due to their location function, are strategic points. The exchange model is proposed following policies of exchange of elements that benefit these ecosystems, instead of the mercantile one that follows profit interests.
Sale of food products:
Following some commercial uses that currently exist in some squares, some informal sales establishments are proposed where both fruits from the restinga and products developed from this vegetation are marketed. Likewise, some social integration activities are proposed around the dissemination of culinary knowledge based on edible restinga products.
Urban garden:
As part of an edible landscaping proposal is the urban garden, which in this case is projected with a focus on edible restinga vegetation. The idea is to develop this plan with a sponsorship management of the space by the community, who will take care of it and ensure its constant productivity, thus bringing both environmental and social benefits.
Protected area:
Considering that there is an area of requalification and environmental recovery that corresponds to the green corridor Alameda Sandra P. de Fara Alvin (No. 5, Figure 12), a landscaping proposal is suggested including edible and non-edible restinga species, under a framework of environmental protection that does not allow their use but only their contemplation.
Canal das Taxas
Along its course, the Canal das Taxas has a large percentage of vegetation that delimits it and protects it from the urban environment, except for the segment that passes through the Terreirão slum, where the little vegetation and the proximity of the city (Figure 14) make it vulnerable to the unwary population. A proposal is presented for the treatment of the banks of the canal based on the implementation of staggered flood terraces to attenuate the water floods caused by rainfall. In these areas, it is proposed to implement aquatic plant species that help filter water pollution, as well as edible species of restinga belonging to the formations that maintain a certain periodicity of flooding and that are freely accessible to the slum community, so that they know them better and become more familiar with their edible potential.

The guidelines for this proposal are connected to the project proposed for the Finch land lot written below.
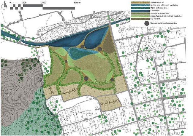
Restinga Finch Park
This lot (Figure 15) is one of the large fragments of restinga remaining in the urban space of the Baixada de Jacarepaguá. However, it is a space destined for real estate development based on Decree No. 3046 of April 27, 1981 for land occupation for the Recreio dos Bandeirantes district, proposing an occupation of 90% of the area. For this reason, an occupancy model was proposed for this lot that would reverse the occupancy percentages and protect the space free of constructions. This space represents for the district and the restinga, which is currently present there, its food, medicinal, ritualistic and handicraft potentials (ARAÚJO et al., 1984) and, at the same time, a part of it will be reserved for real estate development, although with a height limit of 4 floors, resulting in the Restinga Finch Park project (Figure 16).

This space, in addition to highlighting other potentials of the restinga, beyond food, develops a concern for the protection and preservation of these ecosystems based on the knowledge generated by people’s contact with the vegetation, giving them provider values in several categories. The proposal is based on an area at the south side of the lot, where the buildings to be constructed have a restriction of up to 4 floors. To delimit this area from the interior of the park, a transition zone with dense vegetation and a physical barrier is proposed to prevent access from the lots to the protected and conservation areas inside the park

The lot, being an area of more than 120 thousand square meters, has 5% of its total area assigned to the district as a public space, so it was determined as a place that currently functions as a storage area for construction material of an adjacent shopping center, and therefore has eroded soil and no vegetation to be preserved. In addition, its location closer to the slum and Guiomar de Novaes Avenue make it an ideal space to serve as the gateway of the project. Next to the canal, the proposal includes natural flood three that seek to guide the aquatic flow of floodwaters towards the marshes and natural flooding areas, providing a suitable enclosure for alligators, capybaras and other fauna that migrate to this area. In addition, 5 thematic restinga gardens are planned within the park area in which each one develops one of the potentials of its vegetation associated with edible use for fauna, edible use for people, ritualistic use, medicinal use and handicraft use. Each of these gardens has a small building with no more than 3 floors, which presents activities associated with the theme of the garden. In addition, areas of direct contact with the restinga vegetation are proposed in order to provide people with knowledge about these species and nurseries for the production of seedlings to ensure the constant reforestation of the park.
THEMATIC GARDENS
Food for fauna:
It is located in the flooded areas and marshes catalogued as an enclosure for migratory fauna. For this garden, an environmental protection headquarters for the care and protection of fauna and the ecosystems of the restinga, an elevated walkway that allows the sighting of the fauna that arrives at the area, a nursery for the production of seedlings and a contact space with vegetation for feeding the fauna are projected (Figure 17).

Handcraft:
This garden is strategically located next to City hall’s lot, in such a way that it is associated with the use that the city hall grants to this space. It is also proposed a place for teaching and manufacturing of handicrafts made using the restinga vegetation, a nursery for seedling production and a space for contact with the vegetation for this use (Figure 18).

Ritualistic:
This garden is located in the southeastern side of the lot, delimiting with the projected lot area. For this area, it is proposed a cultural space that shows the different religions, as well as the different properties of the restinga vegetation for ritualistic uses, a nursery for the production of seedlings and a space for contact with the vegetation for such use (Figure 19).

Food for people:
This garden was located in the southwest side of the lot, in the limits of the proposed lot area, in order to integrate future residents to the park project. Here we propose a place for culinary education based on recipes using food from the restinga vegetation, as well as a restaurant to promote this type of food, a nursery for seedling production, and a space for cultivation and harvesting open to the public (Figure 20).

Medicinal:
This garden is located in the most affected area in terms of soil erosion and we seek, through reforestation, the reconstruction of the ecosystem. It has a place for the production of homeopathic medicines based on species with this potential, a nursery for the production of seedlings and an area for contact with the respective vegetation (Figure 21).

These thematic gardens are connected to each other through a pedestrian circuit, which is separated from the internal protection areas by transition zones composed of denser vegetation that hinders direct anthropic contact with these spaces. The proposal for this lot offers an alternative occupancy model that focuses on the preservation of local ecosystems, giving them a heritage character. On the other hand, it also proposes a space of knowledge about the importance of the restinga where people have the opportunity to be exposed to the vegetation through its different uses. Although this space corresponds to the category of urban park, which differs from the Conservation Units to which the Marapendi and Chico Mendes Municipal Natural Parks correspond, the intention is to link them on a large scale. So that, together with the Bosque da Barra Municipal Natural Park, which is outside the study area, they form a set of parks that protect the restinga ecosystems and are connected to each other.
A utopia for the future
Although the initial scope of this work only proposes public space in the Recreio dos Bandeirantes district, a large potential area of spaces free of private buildings was identified during the mapping. Due to the number and spread of these spaces in the space, fundamental subsidies are provided to increase the permeability of the urban matrix of this sector. The example of what was discussed by Wolch et al. (2014), stating that private spaces free of building can be essential for most ecological flows potentiating and recovering important ecosystemic processes and services in urban space. Based on this analysis, an initiative is established seeking to promote the participation of private lots in the exchange of species and restinga elements, thus seeking to increase even more the permeability of the urban matrix and increasing the connectivity of these species (Figure 22). Urban parks have the capacity to segregate vulnerable populations (GOMES, 2013). However, this work does not seek to solve this phenomenon, but to propose, within the public space of the squares and the Finch Park, areas of social integration where the population of the Terreirão slum can use the public space of their urban environment.
The discussion around the strategic measures that seek to control or mitigate the possibilities of green gentrification occurring in the area will need to be established preferably with the participation of the local population, without which the implementation of any project becomes unfeasible (WOLCH et al., 2014). Therefore, the valorization of urban vegetation from the approach of edible landscaping, presents the potential for inclusion of the most socioeconomically vulnerable community, as well as the possibility of reducing typical events of discrimination that occur in areas where social inequality is prominent (ANGUELOVSKI, 2014).
According to Bohn & Viljoel (2010), the urban agriculture proposals, which include the concept of edible landscaping, make changes in the eating behavior of the population they affect, in which people are getting to know, learning about and increasingly using the organic products promoted by these proposals.
Although traditional landscaping developed worldwide historically has addressed merely aesthetic concepts in which the ornamental value of the species is highlighted (CHACEL, 2003), bringing and implementing exotic varieties (ZAMITH, 2014), this proposal seeks the opposite. The idea is to rescue and protect native plant species, emphasizing their useful values for human beings and helping to mitigate current social problems, which puts landscaping in a paradigm different from the one currently in use.

FINAL COMMENT
Initially, this proposal sought to rescue and publicize the intrinsic values of the restinga ecosystems, highlighting their edible potential and offering a food alternative for the less favored population. However, it also developed an infrastructure that permeates the urban matrix, increasing the possibility of species flow between the larger fragments and the matrix, giving the urban public space the status of food provider due to its concept of edible landscaping, and awakening the population’s interest in these habitats.
ACKNOWLEDGEMENT
Support CAPES/PROJETO AUXPE No. 0603/ 2018.
REFERENCES
ANGUELOVSKI, I. Neighborhood As A Refuge: Community Reconstruction, Place Remaking, And Environmental Justice In The City. Cambridge: The MIT Press, 2014.
ARAÚJO, D. S.; DE LACERDA, L. D.; CERQUEIRA, R.; TURCQ, B. Restingas: Origem, Estrutura e Processos. Niterói: Universidade Federal Fluminense CEUFF, 1984.
BOHN, K. & VILJOEN, A. The Edible City: Envisioning the Continuous Productive Urban Landscape (CPUL). Www.Field-Journal.Org, Sheffield, v. 4(1), 149-161; 2010.
CARDEMAN, R. G.; NAME, L. Cenários de ocupação e transformação da paisagem na Baixada de Jacarepaguá, Rio de Janeiro. Mercator, Fortaleza, 16(2), 61-78; 2014. http://dx.doi.org/10.4215/RM2014.1302.0005.
Carta Mundial por el Derecho a la Ciudad. Foro Social Mundial, Porto Alegre, 2005. Paz y Conflictos, 5, 184-196; 2012.
CHACEL, F. Paisagismo e ecogênese. Landscaping and ecogenesis. 2. Ed. Rio de Janeiro: Fraiha, 2004.
COSTA MAIA, M.C.; MARTIN, L.; FLEXOR, J. M.; GOMES DE ACEVEDO, A. E. Evolução Holocênica da planície de Jacarepaguá (RJ). In Anais do XVIII congresso brasileiro de geologia. Rio de Janeiro; 1984.
FAO - Organização das Nações Unidas para a Alimentação e a Agricultura 2015. http://www.fao.org/news/archive/news-by-date/2015/es/
GOMES SILVESTRE, M. A. Os parques e a produção do espaço urbano. São Paulo: Paco Editorial, 2013
IBGE - Instituto Brasileiro de Geografía Estatística. Censo do ano 2010. Retrieved from https://ww2.ibge.gov.br/home/estatistica/populacao/censo2010/default.shtm
MAGALHÃES - CORRÊA, A. O Sertão Carioca. Rio de Janeiro: Prefeitura do Rio, 1933.
MONTEZUMA, R. C.; MAGALHÃES, A. Produção do espaço urbano na Baixada de Jacarepaguá: O Parque Estadual da Pedra Branca como mercadoria do capital imobiliário do município do Rio de Janeiro. In: Seminário brasileiro sobre Áreas Protegidas e Inclusão social - SAPIS, VIII., Niterói, 2017. Anais... Niterói: s.i, 2017.
MONTEZUMA, R.; OLIVEIRA, R. Os ecossistemas da Baixada de Jacarepaguá e o PEU das Vargens. Vitruvius, v. 116 (3), 2010.
MONTEZUMA, R; TÂNGARI, V; ISIDORO, I. A.; MAGALHÃES, A. M. Unidades de paisagem como um método de análise territorial: integração de dimensões geo-biofísicas e arquitetônico-urbanísticas aplicada ao estudo de planície costeira no Rio de Janeiro. In: Seminário Nacional sobre o Tratamento de Áreas de Preservação Permanente em Meio Urbano e Restrições Ambientais ao Parcelamento do Solo - APP Urbana, III., 2014. Belém. Anais..., Belém: s.i, 2014.
NAME, L. Paisagens para a América Latina e o Caribe famintos: paisagismo comestível com base nos direitos humanos e voltado à justiça alimentar. Encontro nacional de ensino de paisagismo em escolas de arquitetura e urbanismo do Brasil - ENEPEA, XIII., 2016, Salvador. Anais.... Salvador: s.i , 2016.
O GLOBO. Veja imagens aéreas da Zona Oeste nas décadas de 1930 e 1940. Disponível em https://oglobo.globo.com/rio/bairros/veja-imagens-aereas-da-zona-oeste-nas-decadas-de-1930-1940-14815540. Acesso em 10 de março de 2018.
SANTOS, A. S. O plano de estruturação urbana das Vargens e as transformações da paisagem nos bairros de Vargem Grande, Vargem Pequena, Camorim e Recreio dos Bandeirantes (Rio de Janeiro - RJ). Universidade Federal Fluminense - UFF, 2017.
WOLCH, R.J; BYRNE, J; NEWELL, J. P. Paper Urban green space, public health, and environmental justice: The challenge of making cities ‘just green enough.’ Landscape and Urban Planning, v. 11, 2014. https://doi.org/10.1016/j.landurbplan.2014.01.017
ZAMITH, L. R. A vegetação nativa no planejamento e no projeto paisagístico: Produção e utilização de espécies nativas de restinga no paisagismo de áreas litorâneas. In BATISTA, M.; SCHLEE, M.; BARRA, E.; TÂNGARI, V. (orgs). A vegetação nativa no planejamento e no projeto paisagístico. Rio de Janeiro: Rio Books, 2014.
Author notes