Estudio para la instalación de una planta productora de bebida energética gasificada a base de maca negra, hoja de coca y arándano
Study for the installation of a manufacturing plant for carbonated energy drinks made of black maca, coca leaf and blueberry
Estudio para la instalación de una planta productora de bebida energética gasificada a base de maca negra, hoja de coca y arándano
Ingeniería Industrial, núm. 34, pp. 177-194, 2016
Universidad de Lima

Recepción: 15 Julio 2016
Aprobación: 22 Agosto 2016
Resumen: El presente artículo expone los resultados de un estudio que busca evaluar la viabilidad de instalar una planta de bebida energética carbonatada elaborada a base de maca negra, hoja de coca y arándano, la cual brindará al consumidor una liberación sostenida de energía para combatir el desgaste físico y mental. Este producto representa una alternativa saludable a las bebidas estimulantes del mercado. Para el análisis, desarrollamos los estudios de mercado e ingeniería y evaluamos los aspectos económicos financieros respectivos. Se concluye que el proyecto es viable.
Palabras clave: bebidas gaseosas, arándanos, energéticas, maca, coca.
Abstract: The present article exhibits the results of a study that seeks to evaluate the viability of installing a carbonated energy drink plant made from black maca, coca leaves and blueberries, wich will supply the consumer with a sustained energy feed to combat physical and mental exhaustion. This product represents a healthy alternative to the stimulating beverages currently on the market. Market and engineering studies will be developed, as well as financial and social evaluations, concluding that the project is viable.
Keywords: soft drink, blueberry, energy, maca, coke.
1. PROBLEMÁTICA
En la actualidad, las bebidas energizantes son cada vez más consumidas, principalmente por jóvenes y deportistas (Industria alimenticia, 2013), quienes, debido a la vida moderna y acelerada, tienen que repartir su tiempo entre estudiar, trabajar y ejercitarse. Todo esto conlleva un agotamiento tanto físico como mental, y este tipo de bebidas se consumen como paliativo al desgaste (Cámara, Ramón, Cabral, Juárez y Díaz, 2013). Asimismo, otro factor que causa que aumente su consumo es el marketing realizado por las marcas de estas bebidas, el cual se puede observar frecuentemente en comerciales de televisión, carreras de autos y deportes extremos. Este marketing genera que mucha gente consuma las bebidas sin necesitarlas en realidad. Además, su fácil acceso estimula las ventas, ya que pueden encontrarse desde en los supermercados hasta en la bodega más cercana.
Pero detrás de toda esta publicidad y marketing existe una realidad más oscura. Si bien es cierto que estas bebidas mejoran el estado de alerta, incrementan la concentración y a los deportistas les inducen hipertrofia muscular y fuerza (Souza y Machorro, 2010), su consumo crea, con el tiempo, una dependencia física, social y psicológica, ya que, actualmente, las personas se sumen cada vez más en el cansancio, estrés y fatiga. Finalmente, es importante resaltar que estas bebidas son mal llamadas energizantes o energéticas, cuando la verdad es que son estimulantes, dado que tienen efecto directo sobre el sistema nervioso (El Comercio, 2010); y crean una falsa sensación de energía, ya que no eliminan realmente la fatiga muscular o el agotamiento en general, sino que solo cohíben temporalmente estas sensaciones. Esto hace que el organismo utilice la reserva de energía que posee el cuerpo en un periodo corto de tiempo. Por ello, luego se produce un fuerte cansancio, puesto que el cuerpo ya utilizó la poca energía que le quedaba.
Por todo lo mencionado, se pretende crear una alternativa saludable a las bebidas energizantes existentes, un nuevo producto que en realidad sea energético. Para ello se utilizarán verdaderos insumos energizantes que se cultivan y cosechan en el Perú.
2. ESTUDIO DE MERCADO
2.1 Descripción del producto
Se trata de una bebida gasificada con propiedades energéticas y elaborada a base de insumos nacionales y naturales. Sus principales componentes son: la maca negra, que potencia las funciones cognitivas como la memoria y la concentración, además de aliviar el estrés; la hoja de coca, que es energética y estimulante, ya que provee una mayor oxigenación celular, la cual permite pensar mejor y aumentar nuestra capacidad y resistencia física; y el arándano, que le ofrece a la bebida un delicioso sabor y color, que además de aportar una gran cantidad de antioxidantes. Adicionalmente, la bebida descrita utiliza estevia como endulzante, cuyo principal beneficio es no aportar calorías.
La bebida se presenta en botellas PET de trescientos mililitros, listo para beber (RTD - ready to drink), con etiquetado tipo full body, que se singulariza por poseer los colores característicos y el nombre de la marca, con un diseño atractivo para el mercado objetivo.
El producto es elaborado con altos estándares de calidad, con un proceso de producción que respeta la normativa vigente nacional e internacional para alimentos: Digesa, Norma Técnica Peruana 214.002 (NTP) y Codex Alimentarius. Asimismo, la botella tiene impresa en la etiqueta las propiedades e indicaciones de la bebida, sus contraindicaciones (en caso que existan) y la fecha de vencimiento.
2.2 Análisis de la demanda
Para este análisis se utilizó la demanda interna aparente (DIA), para lo cual fue necesario calcular las exportaciones, importaciones y producción de bebidas energéticas y/o estimulantes. Para la proyección y pronóstico de la demanda se utilizará el modelo asociativo de regresión lineal.
Se entiende por demanda interna aparente (DIA) el resultado de sumar la producción con las importaciones y la diferencia de inventarios; y, al resultado, restarle las exportaciones.

Elaboración propia
Fuente: Datatrade (2015) y MagnaCorp S. R. L (2014)La información de la tabla 1 sirvió para efectuar las proyecciones de la DIA entre los años 2016-2020.

2.3 Demanda para el estudio
Para la demanda del estudio se tomó en cuenta la segmentación del mercado y se utilizó la información obtenida de las encuestas realizadas. Las segmentaciones consideradas fueron las siguientes:
Segmentación geográfica: el producto será vendido en el Perú, en el departamento de Lima, específicamente en los distritos que componen Lima Metropolitana.
Segmentación demográfica: el producto estará dirigido a personas del sexo masculino o femenino, entre 13 y 20 años (adolescente y joven) y al sector entre 21 y 35 años (adulto joven), de los niveles socioeconómicos A, B y C1 (superior), ya que las bebidas estimulantes y/o energéticas no son baratas en comparación con los otros tipos de bebidas.

Elaboración propia
3. INGENIERÍA DEL PROYECTO
3.1 Especificaciones técnicas del producto
En el estudio se llevaron a cabo pruebas de las especificaciones acorde con la NTP 214.002. Los resultados se muestran en la tabla adjunta.

3.2 Selección de la tecnología
Como resultado de la evaluación tecnológica para la elaboración de la bebida energética gasificada a base de maca negra, hoja de coca y arándano, se presenta en la tabla 5 las operaciones involucradas con la tecnología seleccionada.

Elaboración propia
3.3 Diagrama de proceso: DOP
El diagrama que se expone a continuación muestra la secuencia de operaciones e inspecciones involucradas en el proceso de esta bebida.



3.4 Diseño de las instalaciones
3.4.1 Diseño general
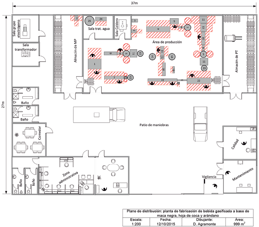
Para el diseño de las instalaciones se utilizó la tabla relacional de actividades, la cual se muestra en la figura 2, para analizar las relaciones de proximidad o lejanía de cada uno de los ambientes o salas que tendría la planta. Además, se utilizó la técnica de Guerchet para el cálculo del área mínima requerida de la planta.

Para la elaboración de esta bebida se ha optado por un sistema de producción por lotes con una disposición en línea, la cual se muestra en el plano adjunto.

Al elaborarse un producto bebible, en el diseño de las instalaciones se hace el máximo esfuerzo para evitar la contaminación cruzada. Así, a medida que avanza el proceso, se aleja de la suciedad que acompaña a la materia prima. Además, se ha considerado que los baños, depósito de residuos y las pozas de aguas servidas deben estar alejados de la zona más limpia de la planta.
Se considera también en la construcción y distribución del edificio que las paredes sean lavables, de colores claros y esquinas sanitarias (redondeadas) de acuerdo a las Buenas Prácticas de Manufactura (BPM). Cabe mencionar que los materiales de tuberías y máquinas serán de acero inoxidable nivel quirúrgico, lo cual requiere una limpieza tipo CIP (cleaning in place), cuya función es la de eliminar la contaminación orgánica e inorgánica.
Las instalaciones contarán con las señalizaciones de seguridad adecuadas en lo que respecta a rutas de evacuación y señaléticas de prohibición, obligación, advertencia, rutas de escape y seguridad contra incendios, respetando las NTP 399.010, NTP 399.012 y NTP 399.015.
4. ASPECTOS ECONÓMICOS Y FINANCIEROS
4.1 Inversión total
La inversión estimada del estudio se presenta en la tabla 6.

4.2 Financiamiento del presupuesto de servicio a la deuda
El 60 % de la inversión será financiado por la Corporación Financiera de Desarrollo S. A. (Cofide), ya que ofrece una de las tasas más bajas y mayores facilidades para proyectos de esta índole. El 40 % restante será aportado por los mismos accionistas como capital propio. El tipo de servicio adquirido será de programa de inversión multisectorial.

Elaboración propia
5. ANÁLISIS DE LOS RESULTADOS ECONÓMICOS Y FINANCIEROS
Análisis económico
Si esta idea de negocio se ejecutara, después de operar por 5 años y de pagar todos los costos de producción y gastos, se obtendría un excedente (VANE > 0) de S/ 648 161,78 actualizados. En consecuencia, es recomendable ejecutarlo, ya que produciría ganancias a los inversionistas. Además, si estos cubrieran toda la inversión inicial, se obtendría S/ 1,20 actualizados por cada nuevo sol invertido (relación beneficio-costo).
Adicionalmente, se ofrece una TIRE de 22,35 %, la cual es mayor al CPPC de 15,21 %. Es decir, que el proyecto da una rentabilidad mayor que la rentabilidad mínima requerida o esperada.
Finalmente, el periodo de recupero, según lo calculado, será de 4 años, 3 meses y 28 días, periodo que se encuentra dentro de la vida útil del proyecto. En conclusión, se puede decir que el proyecto es económicamente viable.
Análisis financiero
Al finalizar el quinto año de operación, el proyecto presentará un saldo positivo (VANF > 0) de S/ 475 388,36 actualizados (valor actual neto), después de pagar los costos de fabricación, los gastos de operación, la amortización del préstamo obtenido y los intereses del crédito. Por lo tanto, es recomendable su ejecución, ya que producirá ganancias.
El presente estudio, asimismo, ofrece un retorno de S/ 1,32 actualizados por cada nuevo sol invertido (relación beneficio-costo). Además, presenta una TIRF de 34,60 %, la cual es mayor al costo de oportunidad (COK) de 21,80 %. Por ende, el proyecto da una rentabilidad mayor que la rentabilidad mínima requerida o esperada.
En cuanto al periodo de recupero, según lo calculado, será de 3 años, 11 meses y 1 día, periodo que se encuentra dentro de la vida útil del proyecto. En conclusión, se puede decir que es financieramente viable.
6. CONCLUSIONES
La bebida energética gasificada a base de hoja de coca, maca negra y arándano representa un producto innovador, debido a la combinación de materias primas e insumos, y da como resultado un producto terminado de buena calidad y sabor, lo cual fomenta el consumo y desarrollo de los productos peruanos de alto valor nutritivo.
Invertir en una planta de las características expresadas en este estudio es factible, pues existe la disponibilidad de materia prima e insumos suficientes, al igual que un mercado que aceptará el producto
Si bien existen actualmente diversos productores y productos similares, el estudio realizado muestra que las personas están dispuestas a cambiar dicho producto y consumir uno más saludable, ya que son conscientes de que los actuales son dañinos y deben ser consumidos con precaución.
El estudio resulta ser viable técnicamente, luego de analizarse la ingeniería del mismo. La maquinaria y equipos existen en el mercado, la mano de obra está disponible y no requiere de mayor especialización, con lo cual se elimina la barrera.
El análisis económico y financiero arroja resultados que permiten afirmar su viabilidad, debido a que los indicadores económico-financieros, como VAN, TIR y R (B/C), superan los requisitos mínimos, lo cual muestra que es rentable y además lo hace atractivo para los inversionistas.
REFERENCIAS
Banco Central de Reserva del Perú (BCRP). (2015). Indicadores de riesgo para países emergentes: Índice de Bonos de Mercados Emergentes (EMBIG). Recuperado de www.bcrp.gob.pe/docs/Estadisticas/Cuadros-Estadisticos/NC_037.xls
Botanical Online. (2014). Arándano. Recuperado de http://www.botanical-online.com/medicinalsarandano.htm
Botanical Online. (2014). Maca: Propiedades Medicinales. Recuperado de http://www.botanical-online.com/maca_propiedades_medicina-les.htm
Cámara Flores, J., Ramón Salvador, D., Cabral León, F., Juárez Rojop, I., y Díaz Zagoya, J. (2013). Consumo de bebidas energéticas en una población de estudiantes universitarios del estado de Tabasco, México. Salud en Tabasco, 19(1), 10-14.
Comisión de Normalización y de Fiscalización de Barreras Comerciales no Arancelarias - Indecopi. (2012). NTP 214.002 1974 (revisada el 2012). Bebidas gaseosas. Métodos de ensayo. Lima.
Comisión de Normalización y de Fiscalización de Barreras Comerciales no Arancelarias - Indecopi. (2014). NTP 214.001 1985. Bebidas Gasificadas Jarabeadas. Requisitos. Lima.
Damodaran. (2015). Stern. Total Beta (beta for completely undiversified investor). Recuperado de http://people.stern.nyu.edu/adamodar/
Damodaran. (2015). Stern. Excess Returns (Equity and Firm) in Percent and (Millions of) Dollar Terms. Recuperado de http://people.stern.nyu.edu/adamodar/
Datatrade: Asesoría y servicio de información en comercio exterior. (2015). Datatrade. Recuperado de http://www.datatrade.com.pe/inicio.asp
El Comercio. (2010). ¿Bebidas energizantes o estimulantes? Lima. Re-cuperado de http://elcomercio.pe/gastronomia/bares-y-copas/bebidas-energizantes-estimulantes-noticia-612248
Euromonitor International. (2015). Sports and Energy Drinks.
Industria Alimenticia. (2013). Informe anual de bebidas 2013. Recuperado de http://www.industriaalimenticia.com/articles/ 86724-informe-anual-de-bebidas-2013
Inka Natural. (2013). Hojas de Coca: Alimento funcional milenario y propiedades. Recuperado de http://www.inkanatural.com/es/arti.asp?ref=hojas-coca
Ipsos Apoyo. (2015). Estadística Poblacional 2014. [encuesta] Lima.
Ipsos Apoyo. (2015). Niveles socioeconómicos 2014. [encuesta] Lima.
MagnaCorp. S.R.L. (2014). Demanda interna peruana creció 9,6 % en abril por contracción del gasto público. América Economía. Lima. Recuperado de http://www.americaeconomia.com/peru
Red Interinstitucional de Tecnologías Limpias. (2014). Proceso de producción de bebidas carbonatadas. Recuperado de http://www.tecnologíaslimpias.org
Souza, M. & Chamorro. (2010). Psiquiatría de las adicciones. Guía para profesionales de la salud (1.ª ed.). México D.F.: Fondo de cultura económica.
Sule, D. R. (2001). Instalaciones de manufactura: ubicación, planeación y diseño (2.ª ed.). México D.F.: International Thomson.