Investigación Temática
Torres en Buenos Aires, los primeros muros cortina
Towers in Buenos Aires, the first curtain walls
Torres em Buenos Aires, as primeiras fachadas-cortina
Torres en Buenos Aires, los primeros muros cortina
Dearq, núm. 25, pp. 54-61, 2019
Universidad de Los Andes

Recepción: 16 Noviembre 2018
Aprobación: 02 Mayo 2019
Resumen: En mayo de 1957 se promulga en Buenos Aires la Ordenanza 4110, titulada “Reglamentación para la construcción de ‘Edificios en Torre’, que habilita y fomenta los edificios de perímetro libre con basamento y torre en altura”. Esta normativa, junto a otras cuestiones de la época de orden económico, técnico y político, va a producir la construcción de una cantidad de torres, entre las cuales interesa destacar dos de ellas, que alcanzan hasta los 120 metros de altura y que fueron resueltas en una precisa articulación con en el tejido de la manzana tradicional de Buenos Aires.
Palabras clave: Torre, muro cortina, rascacielos, Buenos Aires, estructura independiente, aluminio, fachada vidriada.
Abstract: In Buenos Aires in May 1957, Ordinance 4110 was issued and entitled as “Regulations to construct ‘Tower Blocks’ that permits and promotes free-standing buildings with a basement and a high tower”. This regulation, as well as other economic, technical, and political issues of the time, led to the construction of a large number of towers, two of which this paper will highlight, that measured up to 120 meters high and that were settled in precise articulation with the fabric of the traditional block in Buenos Aires.
Keywords: Tower, curtain wall, skyscrapers, Buenos Aires, independent structure, aluminum, glass façade.
Resumo: Em maio de 1957, promulga-se em Buenos Aires, Argentina, o Decreto 4.110, intitulado “Regulamentação para construir ‘Edifícios em Torre’, que habilita e fomenta os edifícios de perímetro livre com embasamento e torre em altura”. Essa normativa, junto a outras questões da época de ordem econômica, técnica e política, produziria a construção de várias torres, entre as quais interessa destacar duas delas, que atingem os 120 metros de altura e que foram elaboradas numa exata articulação com a estrutura do quarteirão tradicional de Buenos Aires.
Palavras-chave: Torre, fachada-cortina, arranha-céu, Buenos Aires, estrutura independente, alumínio, fachada envidraçada.
La fachada ligera, asociada al desarrollo de los elementos metálicos y al incremento de tamaño de los vidrios, tiene una larga historia técnica en el siglo XIX. Los grandes invernaderos ingleses, las fachadas de los almacenes parisinos ofrecen muestras de esa técnica. El principio del pórtico, que caracteriza la técnica constructiva moderna,1 se identifica con el principio elástico de la continuidad. Las estructuras elásticas de esqueleto independiente se distinguen por sus apoyos esbeltos y por la ligereza extrema de las cubiertas. Los miembros que componen el entramado pueden ser rectos o curvos, o de cualquier otra forma, basta que sean solidarios entre sí, de manera que realicen un complejo orgánico, en el cual los esfuerzos y las tensiones de todo género se trasmitan con absoluta continuidad de un elemento a otro de la estructura. En los sistemas de esqueleto independiente, las funciones estáticas y delimitadoras, estructura y cerramiento, quedan separadas. Se presenta un esqueleto de sostén con adecuada resistencia y un complejo de otros elementos en conexión con él y con diversas funciones: de cerramiento, de aislante estanco, aislante térmico, de delimitación de los ambientes, de privacidad. Estructuras de hierro, madera y hormigón armado. Los edificios construidos a finales del siglo XIX, en Chicago, fue el origen de la construcción en altura. El rascacielos americano permitió entender hasta qué punto la tecnología industrial podía proponer nuevas formas arquitectónicas y fue para arquitectos como Mies van der Rohe y Le Corbusier un modelo donde se individualizaban los principios que dotaban de significado arquitectónico a las nuevas técnicas industriales. Los dibujos de los rascacielos de vidrio que realiza Mies Van der Rohe, a principios de la década de los veinte en Alemania, son la síntesis ética y estética de las nuevas posibilidades que ofrece la construcción de estructura independiente y la posibilidad del vidrio de intensificarse como único elemento del cerramiento. Es recién en la década de los cincuenta, en Estados Unidos, cuando tanto Mies como otros arquitectos, por ejemplo SOM (Skidmore, Owings and Merrill), desarrollan, a partir de las posibilidades de la industria norteamericana de posguerra, el concepto cerramiento como muro cortina en edificios altos de esqueleto independiente.
Casi en simultáneo, apenas unos años más tarde, en la ciudad de Buenos Aires, el 16 de mayo de 1957, se promulga la Ordenanza 4110, titulada “Reglamentación para la construcción de ‘Edificios en Torre’”. Esta enuncia en sus considerandos que:
Esta nueva norma, elaborada cuidadosamente y tras pacientes estudios por la Comisión del Código de la Edificación, consiste en admitir formas de edificios inscribibles en prismas ideales, simples, donde un fuste se levante alejado en cierta medida de los ejes separativos entre predios, para dar cabida a espacios abiertos que vinculen el fondo central de la manzana con la vía pública, sin contener patios interiores para servir a locales habitables…2 (Véase fig. 1 )
La ordenanza fomenta la construcción en altura con la construcción de basamento y torre, lo cual —sumado a cuestiones económicas, técnicas y políticas de la época—3 va a producir la construcción de una cantidad de edificios altos de perímetro libre, entre las cuales se destacan tres obras que podemos considerar las primeras del tipo, que se resolvieron como tipología de basamento y torre, y fueron muy bien articuladas en el tejido de la manzana tradicional de Buenos Aires y fueron construidas con estructura de hormigón independiente y cerramiento del tipo curtain wall o muro cortina. Se trata de la Torre Fiat Concord, en Cerrito y Viamonte; la Torre Brunetta, en Santa Fe, Suipacha y Sargento Cabral, y la torre Florida, en la esquina de las calles Florida y Paraguay.

Edificio Torre Fiat Concord
En 1954, la empresa Fiat Concord decidió construir un edificio para su sede central en Buenos Aires. Para ello buscaba un terreno en el centro de la ciudad que tuviera un emplazamiento significativo con perspectiva suficiente para construir un edificio que se destacara como símbolo de la empresa. Así compró el lote de la esquina de la avenida 9 de Julio y Viamonte, frente al Teatro Colón. El primer proyecto es seleccionado por un concurso nacional de arquitectura, ganado por los arquitectos Amaya, Devoto, Lanusse, Martin y Pieres. Con la legislación de la nueva normativa de 1957, que permite la construcción en torre, se amplía y reconfigura el proyecto a cargo del Departamento de Construcciones e Instalaciones de Fiat Concord Argentina, estando a cargo como jefe de proyecto el arquitecto Luis Lanari; la supervisión general estaba a cargo de los ingenieros José Bernardis y Aldo Calza. Los arquitectos ganadores del concurso fueron contratados como asesores generales. Mientras que el proyecto estructural estuvo a cargo del ingeniero Domingo Bertero; la conducción y construcción de la obra fue a cargo de la empresa IMPRESIT S. p. A., sucursal argentina, empresa del grupo Fiat. Se licitó por sectores y por contratos separados, y de este modo participaron 62 contratistas en total.
La obra inició en mayo de 1961 y finalizó en noviembre de 1964. El edificio se compone de tres sectores: 1) los tres subsuelos con garaje para automóviles; 2) el basamento, que ocupa todo el terreno (1050 m.) hasta la cota de 11,70 m, y 3) la torre, con 672 m. de planta que se elevan hasta los 66,80 m. En la memoria descriptiva, los autores manifiestan que hubieran elegido una estructura metálica para aprovechar al máximo las posibilidades de la planta, pero que, debido a la falta de empresas en Argentina expertas en dichas posibilidades técnicas, llevan a proyectar una estructura de hormigón armado. El proyecto busca un módulo común para determinar y dimensionar la mayor cantidad de temas constructivos, tomando la medida de 1,50 m × 0,90 m. Todo el muro cortina, así como el sistema de particiones interiores, está modulado con la medida de 1,50 m.

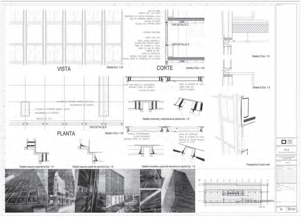
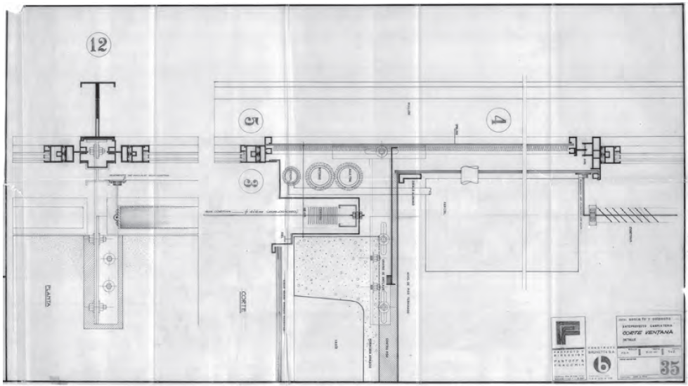
El muro cortina construido en aluminio incluye en cada módulo un sector opaco (antepecho) y un sector vidriado. El antepecho está formado por paneles de aluminio anodizado coloreado y la ventana pivotante está constituida por dos láminas de vidrio con una cortina veneciana entre ambos. El fabricante del muro cortina y las carpinterías es la empresa Sculponia Argentina S. A., hoy en día Obras Metálicas. Los paños practicables giran 180 grados, lo que permite la limpieza de los vidrios desde el interior. La carpintería, conformada por dos vidrios con una cortina, tipo americana de aluminio esmaltada a fuego, entre medio resuelve la aislación térmica y el control solar, al igual que la aislación acústica. Todo el muro cortina utiliza alrededor de 100 toneladas de aluminio laminado y de extrusión. El aluminio se trató con una capa anódica de 20-22 micrones de espesor en el exterior y 10-12 micrones en el interior, y fue realizado por la empresa ARTIS S. A.
Torre Brunetta/Olivetti
Esta torre es el resultado de la persistencia del joven arquitecto Nicolás Pantoff, y es muestra de la posibilidad de generación de un encargo y de imaginar un edificio ante una demanda que aún no existía. Pantoff se interesa en la esquina de la calle Suipacha y Santa Fe, y se pone en contacto con su propietario, Fernando Pereyra Iraola. Luego de unos años, se logran desocupar todos los lotes y, luego, la empresa de Antonio Brunetta se interesa por desarrollar el proyecto. Ante una primera propuesta de llegar con la torre libre al suelo, la posibilidad de la especulación y de conseguir la mayor cantidad de superficie rentable se incorpora el basamento comercial y el pequeño edificio de viviendas que enchapa la medianera de la manzana tradicional. Encuadrado dentro de la reglamentación para la construcción de edificios en torre, el edificio cuenta con 32 pisos altos que alcanzan una cota máxima de 115 m y con cuatro subsuelos. La superficie total cubierta es de 29.800 m2.
La estructura es de hormigón armado con losas nervuradas con encofrado de chapa. Se desarrolla la estructura con un núcleo central y columnas con módulos de 5,61 m y 7,11 m. El cálculo estructural estuvo a cargo del ingeniero Iram. Los encofrados metálicos permitieron llenar losas cada 7 días, utilizándose aceleradores de fragüe químicos. La construcción total de la estructura llevó 11 meses. La piel del edificio es un muro cortina con un módulo de 1,30 m con una superficie aproximada de 10.000 m2 de carpintería. En esa época, los ingenieros Lanusa y Beltrane, que se dedicaban al cálculo de estructuras, abren una empresa dedicada a la fabricación de carpinterías de aluminio: FLAMIA S. A., en sociedad, y como representante argentina de la empresa General Bronze, de Estados Unidos de América, involucrada en los cerramientos de edificios como el Seagram, Lever House, Chase Manhattan Bank, Unión Carbide, entre otros.
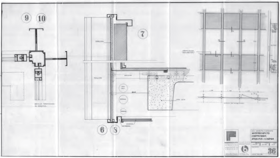
El muro cortina es el primero construido totalmente en aluminio, con montantes en el exterior de aluminio extruido de sección doble T, anclados a la estructura a través de grapas cadmiadas que permiten todas las posibilidades de dilatación. Los paños se componen de paños vidriados, fijos y practicables, pivotantes con burletes de cloruro de polivinilo y antepechos ciegos. Los antepechos están construidos con vidrios templados de color azul oscuro, y contienen 40 mm de aislación térmica de lana mineral. El lado interior es una placa tipo interflex. El sector del antepecho incluye el sistema de aire acondicionado del tipo Fan-Coil, que incorpora las cañerías y los ventiladores en el espesor del antepecho. Todos los vidrios son dobles y el oscurecimiento está en el lado interior, con sus correspondientes nichos para el replegado. Las montantes de aluminio anodizado natural, colocadas cada 1,30 m, definen la contundente imagen del edificio, un sutil corte de las montantes en el nivel de transición entre el basamento y la torre producen una articulación entre los dos cuerpos.







A modo de conclusión
Estos edificios representan los inicios de la construcción en altura en Buenos Aires y un nuevo modelo de ciudad promovido por la nueva normativa, que buscaba replantear el modelo tradicional de la manzana y la construcción entre medianeras, para promover una arquitectura que “Tiende a la conquista de una mayor luz natural, se aleja de la compactación horizontal y pugna por desenvolverse en altura, aislándose del contacto con el vecino…”.4 Así mismo, estas obras proponen una muy buena relación entre el desarrollo en altura y su vínculo con el zócalo urbano y la carpeta urbana. En el contexto general de las ciudades latinoamericanas, originarias de las Leyes de Indias, estas obras pueden valer como buenos ejemplos de convivencia entre la construcción en altura y la manzana tradicional de la ciudad, particularmente en Buenos Aires. Estas obras son una oportunidad de avivar el debate contemporáneo, a partir de que acaba de promulgarse un nuevo código de planeamiento urbano que de alguna manera propone la eliminación de esta tipología en el tejido tradicional de la ciudad.


Por otro lado, es importante comprender estas obras en el contexto histórico y temporal (la torre Seagram fue finalizada cinco años antes que la torre Brunetta), para poner en valor el estadio de la cultura arquitectónica y el desarrollo tecnológico de la arquitectura proyectada y construida en Suramérica, participando en la discusión de los temas relevantes de la arquitectura de manera universal y más allá de todo regionalismo.
Referencias
1. Paricio, Ignacio. La construcción de la arquitectura II: Los elementos. Barcelona: Institut Tecnología Construccio, 1995. Google Scholar
2. Revista Construcciones (Argentina), nº 194 (enero-febrero 1965): 57-70. Google Scholar
3. Revista Construcciones (Argentina), n.º 192 (septiembre-octubre 1974): 615-624. Google Scholar
4. Revista Nuestra Arquitectura (Argentina), n.º 423 (abril de 1965): 18-26. Google Scholar
5. Revista Nuestra Arquitectura (Argentina), n.º 427 (agosto de 1965). Google Scholar
6. Revista Summa (Argentina), n.º 6-7 (diciembre de 1966). Google Scholar
Notas