Artigos de Pesquisa
VARIÁVEIS PROJETUAIS E O FAZER ARQUITETÔNICO: DOIS PROJETOS FEITOS E REFEITOS POR ÍCARO DE CASTRO MELLO 1
DESIGN VARIABLES AND THE ARCHITECTURAL TASK: TWO DESIGNS MADE AND REMADE BY ÍCARO DE CASTRO MELLO
VARIÁVEIS PROJETUAIS E O FAZER ARQUITETÔNICO: DOIS PROJETOS FEITOS E REFEITOS POR ÍCARO DE CASTRO MELLO 1
Oculum Ensaios, vol. 17, e204555, 2020
Pontifícia Universidade Católica de Campinas, Programa de Pós-Graduação em Urbanismo
Recepção: 12 Abril 2019
Revised document received: 10 Julho 2019
Aprovação: 16 Agosto 2019
RESUMO: Como arquitetos estabelecem sua estratégia projetual? Em que medida fatores externos pesam nas decisões relacionadas ao fazer arquitetônico? Para responder a essas questões, este artigo recorre a um múltiplo estudo de caso e aproxima dois projetos arquitetônicos elaborados pelo mesmo arquiteto, Ícaro de Castro Mello, que acabaram substituídos por versões diferentes também concebidas por ele. Com foco no método projetual, são apresentadas as duas propostas para o Country Club de Maringá (1958 e 1962) e para o Umuarama Country Club (1963 e 1969) e são investigados os motivos pelos quais as propostas iniciais foram refeitas, formalmente simplificadas e numericamente reduzidas, valendo-se de técnicas construtivas, formas e materiais distintos. Enquanto a primeira versão era uma expressão da arquitetura filiada à plástica purista, a segunda refletiu a inflexão que se notou na arquitetura pós-Brasília, pautada pelas concepções estruturais e pela industrialização da construção. Ao considerar as variáveis envolvidas no projeto arquitetônico (entorno físico, acomodação funcional, contexto social e simbolização cultural), este artigo expõe como elas foram articuladas no processo de projeto e influenciaram o resultado final, para além das afinidades estilísticas. Recorrendo a documentos originais e inéditos, ao redesenho dos projetos e à análise formal, este trabalho contribui para a história da arquitetura moderna no Brasil e incrementa o debate sobre metodologia de projeto.
PALAVRAS-CHAVE: Arquitetura brasileira, Arquitetura moderna, Circulação de ideias, Country club, Metodologia de projeto.
ABSTRACT: How do architects establish their design strategies? To what extent do external factors compel the decisions related to the architectural task? In order to answer these questions, this paper puts forward a multiple case study, and brings together two architectural designs prepared by the same architect, which ended up being replaced by different versions he also designed. Focusing on design method, the paper presents the two proposals for the Maringá Country Club (dated 1958 and 1962) and for the Umuarama Country Club (dated 1963 and 1969) designed by Ícaro de Castro Mello, and investigates the reasons for their modification, simplification, and reduction, eventually depicting different forms, materials, and construction techniques. While the initial version expressed the Brazilian architecture related to purism, the second one responded to the post-Brasília inflection, which resulted in an architecture defined by its structural system and consonant with the process of building industrialization. By considering the design variables (namely, physical environment, function accommodation, social context, and cultural symbolization), this paper states how they are articulated in the design process and impact the final result, beyond stylistic preferences. Relying upon original data, redesigns of the building plans, and their formal analysis, the paper contributes to the history of modern architecture in Brazil and adds up to the debate on design methodology.
KEYWORDS: Brazilian architecture, Modern architecture, Architecture diffusion, Country club, Design methodology.
INTRODUÇÃO
Ao se observar um projeto de arquitetura ou edifício, por vezes pergunta-se por que o arquiteto o fez daquele modo. Uma pergunta elementar como essa pode desencadear uma reflexão mais complexa sobre método de projeto. Em que medida fatores externos pesam nas decisões relacionadas ao fazer arquitetônico? Ou ainda, como o arquiteto estabelece sua estratégia projetual?
No norte do Paraná dos anos 1950-1960, o arquiteto paulista Ícaro de Castro Mello (1913-1986) projetou dois country clubs; dois edifícios consoantes com a moderna arquitetura brasileira e contrastantes com a paisagem urbana local contemporânea. Com parte das obras em andamento, os dois projetos foram refeitos e acabaram construindo edificações distintas daquelas inicialmente propostas, pela forma, estrutura, materiais e técnicas construtivas, mesmo tendo sido mantidos o programa de necessidades e o terreno. Quando aproximados, os projetos originais e as propostas finais para o Country Club de Maringá (1958 e 1962) e o Umuarama Country Club (1963 e 1969) instigam as mesmas perguntas descritas no parágrafo anterior. Não há relatos ou documentos remanescentes que as respondam, nem são conhecidas as justificativas para essa modificação. Castro Mello é um arquiteto importante no panorama da arquitetura brasileira, mas existem poucos trabalhos que se referem à sua obra (BRUAND, 1991; SEGWA, 1997; MINDLIN, 1999; FORCELLINI, 2014; FRAZATTO, 2019), menos ainda dedicados especificamente à sua produção (ÍCARO, 2005). Pesa ainda o fato de que esses projetos foram produzidos em um período imediatamente antes e logo após a construção de Brasília, ou seja, um período de inflexão na arquitetura brasileira (BASTOS, 2003).
O objetivo principal deste trabalho, portanto, é investigar o fazer arquitetônico para compreender como foram tomadas as decisões referentes à forma, material, estrutura, técnica construtiva, implantação etc. Ao identificar e explorar as estratégias de projeto empregadas pelo arquiteto na concepção desses clubes, este trabalho poderá responder às questões gerais referidas inicialmente. Como desdobramento de objetivos secundários, este trabalho vai reconhecer as variáveis projetuais teorizadas por Norberg-Schulz (1965) e Aschner Rosseli (2009), a saber, o entorno físico, a acomodação funcional, o contexto social e a simbolização cultural, e vai relacioná-las com o caso em questão - as quatro versões dos clubes paranaenses; vai traçar um panorama do contexto social, econômico e cultural em que os referidos projetos foram produzidos para poder aclarar os motivos da sua substituição e vai ainda expor as decisões tomadas pelo arquiteto Ícaro de Castro Mello em cada uma das versões dos projetos estudados, justificadas pela relevância atribuída em cada caso a cada uma das variáveis projetuais. Ao atingir esses objetivos, este artigo contribuirá com a narrativa da história da arquitetura moderna no Brasil, discutindo trabalhos inéditos de um arquiteto relevante no cenário nacional e, mais do que isso, incrementará o debate sobre metodologia projetual no país, expondo como um arquiteto pensa e atua.
Para alcançar os objetivos propostos, a pesquisa utiliza o estudo de casos múltiplos, que permite obter replicações teóricas que conduzirão os resultados a uma possível generalização (YIN, 2001; GROAT; WANG, 2002). Pautado pela abordagem histórico-interpretativa e estruturado pela argumentação lógica (GROAT; WANG, 2002), este artigo adotou como procedimento o redesenho dos referidos projetos, a sua contextualização histórica e a análise de suas distintas conformações, descrevendo aspectos referentes à conformação, espaço, estrutura e materialidade. Este trabalho utilizou o acervo do arquiteto Ícaro de Castro Mello, hoje pertencente à Biblioteca da Faculdade de Arquitetura e Urbanismo da Universidade de São Paulo (FAUUSP), bem como estudos in loco, levantamento documental nas sedes dos próprios clubes e nas prefeituras das cidades de Maringá e Umuarama, no Museu da Bacia do Paraná da Universidade Estadual de Maringá, em jornais e revistas da época e nas publicações referentes à arquitetura moderna brasileira e à colonização, urbanização e desenvolvimento do norte do Estado do Paraná.
Na primeira seção do texto que segue, é apresentado o contexto dos projetos e é introduzida a noção de variáveis projetuais. As propostas iniciais para os projetos dos dois clubes são analisadas na seção seguinte e, na sequência, são estudadas as duas versões finais e apontadas considerações sobre metodologia projetual.
O CONTEXTO E O FAZER ARQUITETÔNICO
A conformação das piscinas projetadas pelo arquiteto Ícaro de Castro Mello para os country clubs de Maringá e de Umuarama (Figura 1), respectivamente em 1958 e 1963, revela uma inflexão de ordem estética. A primeira decorre da exploração formal própria do purismo de Le Corbusier, que marcou a produção da arquitetura brasileira da primeira metade do século XX. A arquitetura devia emocionar e o surpreendente “casamento de contornos” era um recurso pictórico conhecido dos arquitetos, que acompanhou a ordem geométrica da composição purista transposta para a escala do edifício e da paisagem (JEANNERET; OZENFANT, 1994; FRASER, 2000; REGO, 2000; FRAMPTON, 2003; COMAS, 2010). A associação de linhas retas e curvas em contornos sinuosos se manifestou na conformação de marquises, lajes, passeios, jardins, mezaninos, vãos, edifícios inteiros - e piscinas. A segunda não elude a origem comum, porém dá à forma livre um desenho mais pesado, menos sinuoso e mais rígido, característico da arquitetura brasileira no período pós-Brasília (BASTOS, 2003; BASTOS; ZEIN, 2010a).

Essa inflexão também pode ser percebida nos projetos das demais edificações dos dois clubes onde as piscinas foram construídas. O clube maringaense foi projetado em 1958, onze anos depois da fundação da cidade nova planejada pela empresa colonizadora na zona pioneira de colonização. Quatro anos depois, em 1962, esse projeto foi refeito e apresentou uma nova conformação. O projeto do clube de Umuarama, elaborado em 1963, no oitavo ano da fundação da cidade planejada, também sofreu reformulação, em 1969. Com isso, as primeiras versões, alinhadas à estética purista e à composição cúbica corbusierana, deram lugar a uma arquitetura cuja expressão plástica é menos tributária da forma idealizada que dos materiais e das técnicas construtivas empregados.
Para a historiografia da arquitetura é fundamental reconhecer que o arquiteto não trabalha isoladamente (COHEN, 2013). Contando com sua experiência e a dos colegas, ele atua em um contexto histórico e geográfico específico, está sujeito às condições do cliente - sejam elas restritivas ou não -, e por vezes conta com colaboradores. Nesse caso, o arquiteto Ícaro de Castro Mello contou com colaboradores conhecidos: nos anos 1960 seus sócios foram Eduardo de Castro Mello, seu filho, e Cláudio Cianciarullo, ambos formados pela Faculdade de Arquitetura e Urbanismo da Universidade de São Paulo (FAUUSP)2. Entre 1959 e 1963, Alfredo Paesani, formado na escola de arquitetura do Mackenzie em 1954, onde também foi professor, participou do escritório de Castro Mello como associado (ÍCARO, 2005). É interessante salientar a formação desses colaboradores e os períodos de suas aproximações, o que, de modo sugestivo, não deixa de indicar inclinações, interesses e decisões projetuais.
Os clientes que contrataram o arquiteto paulista para projetar os country clubs eram parte da elite daquelas cidades que, em uma época em que a sociedade brasileira demonstrava intensa americanização de costumes, se reunia para convívio social e práticas desportivas e ao mesmo tempo se segregava, demonstrando um status social distinto, a exemplo dos clubes de campo norte-americanos (MAYO, 1998; TOTA, 2000; FRAZATTO, 2019).
O café era o principal produto da região norte-paranaense que, na metade do século XX, passou a ser centro da produção nacional. O preço da saca de café, em 1955, atingiu o valor mais alto até então no Brasil do século XX, concentrando renda no norte paranaense e possibilitando repercussões econômico-sociais consideráveis (CANCIAN, 1981). A prosperidade econômica contribuiu para o rápido crescimento demográfico e para o desenvolvimento regional e permitiu um anseio por modernidade e por progresso que, através de iniciativas locais, se concretizou em contratações de arquitetos paulistas e projetos de edificações modernistas (SUZUKI, 2003, 2011; REGO, 2012a). Contudo, a alta produção regional levou a um cenário de superprodução, desregulando o equilíbrio entre oferta e demanda e culminando na queda continuada dos preços do café a partir de 1955 (embora sem se aproximar do patamar mais baixo verificado em 1940).
Este artigo se volta então para os desdobramentos dessas variáveis externas ao projeto, no intuito de evidenciar como elas repercutiram no processo projetual dos dois clubes. Segundo Aschner Rosselli (2009), aquilo que é preliminarmente apreendido do entono físico, das atividades a serem instaladas na futura edificação e do contexto cultural e social no qual a arquitetura se enraizará, não deixa de ser associado ao processo compositivo da forma arquitetônica. Ainda para o autor, o projeto é a maturação dessas variáveis que aos poucos se tornam intenções, são formalizadas e ocupam, finalmente, um lugar no mundo (ASCHNER ROSSELLI, 2009).
De fato, o fazer arquitetônico almeja a criação de um “ambiente artificial” que proteja o usuário da chuva, do vento, do frio, do calor, da umidade, do ruído, de insetos e animais invasores e outras ameaças. Está, portanto, fortemente atrelado à dimensão “geográfica” e, com isso, deve se voltar para as relações com o entorno da edificação a se projetar, ciente de que materiais e técnicas construtivas idôneos podem dar uma resposta eficaz a um entorno físico singular. Nesse sentido, o entorno físico, como uma variável projetual, considera aspectos físicos externos no processo de projeto e, desse modo, é responsável por determinar o vínculo regional de uma edificação (NORBERG-SCHULZ, 1965; ASCHNER ROSSELLI, 2009).
O fazer arquitetônico lida também com as ações que terão lugar entre as paredes da edificação a se projetar. Certo número de pessoas realizará ali alguma atividade e precisará de uma acomodação funcional para a sua ação. Às vezes essa acomodação requer dimensões específicas, às vezes não; e ela pode envolver distintas disposições: em série, em grupos, em módulos, radial, circundante etc. A organização de um edifício e a distribuição dos seus espaços estão relacionadas com as atividades humanas a serem ali desenvolvidas e, nesse sentido, a acomodação funcional, como outra variável projetual, não só prescreve o tamanho dos espaços, mas geralmente também prescreve as suas características espaciais (NORBERG-SCHULZ, 1965; ASCHNER ROSSELLI, 2009).
O fazer arquitetônico deve ainda considerar a carga simbólica e ideológica da arquitetura. A variável projetual da simbolização cultural permite à arquitetura transcender a situação imediata e lhe garante o status como uma das artes, pois a arquitetura é aquilo no edifício que não é construção, que não é meramente utilitário, que é estético (NORBERG-SCHULZ, 1965; ASCHNER ROSSELLI, 2009).
O fazer arquitetônico deve também estar atento ao fato de que a diferenciação do ambiente construído segundo uma estrutura social determinou (por vezes inconscientemente) como seria construída a maioria dos conjuntos urbanos do passado, assim como de edifícios isolados. Do ponto de vista da sociologia, a edificação pode ser a expressão de certo status de um grupo, de uma coletividade ou instituição. Quando a cabana de um chefe ou o palácio de um rei foram feitos maiores que as demais edificações, a intenção era indicar certo status social. Desse modo, é importante que o arquiteto incorpore informação sociológica e psicológica no fazer arquitetônico, como uma variável projetual (NORBERG-SCHULZ, 1965). Além disso, a consideração da variável econômica, concernente aos meios e recursos disponíveis, especialmente quando restritiva, acaba por implicar na consideração criativa dos materiais e das técnicas construtivas (ASCHNER ROSSELLI, 2009).
Dito isso, como Ícaro de Castro Mello interpretou essas variáveis (entorno físico, acomodação funcional, contexto social e simbolização cultural) para materializar cada uma das duas versões dos dois edifícios projetados? Este artigo parte da proposição de que o resultado distinto entre as duas versões de cada projeto decorre de uma revisão na hierarquia dessas variáveis estabelecida pelo projetista.
OS PROJETOS DOS CLUBES
O projeto do Country Club de Maringá foi uma iniciativa que envolveu, entre outros, o então prefeito, que havia sido rejeitado como sócio no clube de prestígio da cidade, controlado por seus opositores políticos. A fundação do country club aconteceu, portanto, como despeito de um grupo endinheirado e, desse modo, importava construir uma estrutura moderna para lazer e desportes que rivalizasse com a agremiação existente; importava contratar um profissional forâneo, renomado, procedente de São Paulo, como outros profissionais atuantes no norte do Paraná, dadas a deferência e a efetiva conexão com a metrópole paulista3.
Assim, Maringá começou a reproduzir o que se via na capital de São Paulo e em Londrina, onde Vilanova Artigas e Carlos Cascaldi, Rino Levi, Prestes Maia, Leo Ribeiro de Moraes, Jacques Pilon, Philipp Lohbauer, além do próprio Ícaro de Castro Mello e outros profissionais sediados em São Paulo, estavam modificando a imagem da cidade com bairros e edifícios modernos (SUZUKI, 2003; REGO, 2012b). Castro Mello já era atleta de prestígio e profissional reconhecido pelos projetos de instalações desportivas (ÍCARO, 2005)4.
A produção da arquitetura brasileira nesse período estampava a imagem identitária de um país moderno, reformista, empenhado em superar o subdesenvolvimento, alijar o arcaico e conquistar o progresso (SEGAWA, 1997; BASTOS; ZEIN, 2010b; CAVALCANTI, 2010; MARTINS, 2010), e esse ideal transformador físico e social não contrastava com o sonho da zona pioneira (VILANOVA..., 1997; SUZUKI, 2003), pois em cidades novas da zona pioneira, a sociedade em construção, formada basicamente por migrantes em busca de uma vida melhor, dispensou antigas identidades diante da possibilidade de forjar nova imagem, já que seu passado quase sempre merecia ser esquecido (REGO, 2012a).
O projeto do Country Club de Maringá de 1958 (Figura 2) era ambicioso: contava com salão de festas de 2 mil m², sede social de 1.500m², ginásio coberto de 1.400m², a piscina (apresentada no início deste texto), vestiários, quadra de boliche, campo de futebol, quadras esportivas, playground e estacionamento - acomodados em edifícios isolados ou conectados por marquises e dispostos no terreno segundo um esquema de eixos ortogonais, atendendo à orientação solar mais favorável.

O salão de festas era um edifício de planta circular coberto por uma cúpula. Em virtude do desnível natural do terreno, o hall do salão estava acomodado em um pavimento inferior, semienterrado. Duas escadas curvas, opostas e simétricas, diante de uma parede envidraçada, conduziam ao pavimento principal, de planta circular, que abrigava o salão de festas ao centro e ambientes de apoio nas bordas: palco, camarins, banheiros, cozinha, depósito e terraços. O sistema estrutural, em concreto armado, estava dissociado das vedações em alvenaria ou em vidro - do piso ao teto -; os pilares estavam dispostos radialmente ao longo de duas circunferências concêntricas que estabeleciam as bordas do edifício, mantendo livre seu núcleo central; os pilares mais externos funcionavam como contraforte, complementando os pilares internos. A cobertura possuía um diâmetro de 36 metros com uma flecha de 1,5 metro. O fechamento do terraço era feito com elementos vazados do tipo cobogó.
O bloco da sede social (Figura 3) se conectava ao salão de festas por uma marquise que também abrigava a parada de veículos para embarque e desembarque de pessoas, incorporando a ideia do automóvel ao projeto arquitetônico, um artifício comum à arquitetura moderna (LARA, 2018). Estava conformado por prisma retangular, palaciano, desenvolvido em três pavimentos - um deles semienterrado em função do desnível natural do terreno. Nesse pavimento inferior estavam situados os vestiários, banheiros, bar e demais ambientes de apoio à piscina. O pavimento térreo ganhou fluidez visual e espacial com o uso de pilotis; ali ficavam dois blocos deslocados que acomodavam, de um lado, a barbearia, a sala de bilhar e vestiários e, de outro, o hall de acesso social todo transparente, com uma escultórica escada helicoidal, e o setor administrativo. O pavimento superior, retangular, possuía seus dois lados menores - fachadas norte e sul -, fechados com alvenaria formando empenas cegas, e seus dois lados maiores - fachadas leste e oeste -, fechados com esquadrias de ferro e vidro com altura do piso ao teto, agregando transparência e ventilação cruzada. A fachada oeste estava protegida da incidência solar por um brise-soleil de lâminas verticais de madeira. A fachada leste, toda transparente, abria um terraço que dava para a piscina. O bar, a sala de estar e a sala de leitura ocupavam uma mesma amplitude, apenas delimitados pela escada e pela lareira, intermediárias. Restaurante, cozinha, salas de jogos, biblioteca e sanitários ocupavam os espaços delimitados pela modulação estrutural, com vãos de seis metros. Foram empregadas colunas, e foram usados pilares quando a estrutura estava embutida em alguma parede.

O sistema Dominó e a planta livre, dos quais Corbusier extraiu os quatro tipos formais da sua arquitetura, determinaram a conformação espacial desse volume e dos seus espaços interiores. O sistema é rígido e autoritário, haja vista a coluna que intercepta a bancada da cozinha - essa relação conflituosa revela o privilégio da estrutura sobre o programa. A laje de piso do pavimento superior era dupla, de modo que vigas e instalações prediais estivessem embutidas, e a laje de cobertura, simples, estava coberta por telhas de fibrocimento, ocultas por platibandas de alvenaria. Para uma fachada principal mais elegante, a modulação estrutural no terraço assumiu um vão menor, de modo que as colunas que ficavam expostas na fachada apresentavam-se mais esbeltas, com seção menor.
A quadra de boliche estava coberta por uma série de abóbadas de berço, repetindo um motivo formal recorrente na arquitetura moderna brasileira - de uma igreja na Pampulha de 1942 à rodoviária (de Artigas e Cascaldi) em Londrina de 1948 (também publicada no livro de Mindlin) e a vários outros edifícios projetados por Niemeyer, Reidy e Jorge Machado Moreira (REGO, 2000). A planta retangular do ginásio com arquibancada estava coberta por uma série de seis arcos de concreto armado, com vão aproximado de 50 metros e altura de 12 metros no ponto mais alto - uma solução próxima à empregada no ginásio de Sorocaba (de 1950). As duas faces maiores eram fechadas com esquadrias de ferro e vidro.
O Umuarama Country Club de 1963 (Figura 4) teve um projeto mais modesto em termos de instalações: além do edifício da sede social (com 2 mil m²), implantado na testada principal do terreno, havia piscina, um bloco lateral de vestiários e banheiros (com 350m²), playground e quadras esportivas. Esses edifícios e equipamentos também foram concebidos de modo autônomo, independentes uns dos outros, e com formas distintas. A sede social era um bloco de planta retangular, mais alongado que o paralelepípedo do clube maringaense. No pavimento térreo, no pilotis, ficavam o hall social, escadas de acesso ao pavimento superior, administração e serviços, com configurações ortogonais e mais regulares que as do projeto maringaense. O sistema estrutural foi resolvido com pórticos de concreto e pilares de seção retangular (Figura 5); uma terceira linha de pilares foi introduzida na parte central da planta para apoiar o terraço de 5 metros de largura que se destacava do corpo do edifício (No projeto maringaense o terraço era um vazio subtraído no prisma principal). Os pórticos tinham vão de dez metros e espaçamento entre si de 6,75 metros. Uma laje nervurada foi usada no pavimento inferior e, na cobertura, uma laje plana impermeabilizada ficava escondida por platibandas. Havia previsão de duas caixas d’águas de concreto armado, retangulares e simétricas, acima da laje de cobertura.


No pavimento superior ficavam o salão de festas, a cozinha, o bar, a sala de estar e de jogos e os sanitários. Integrados, esses ambientes conformavam uma espacialidade marcadamente horizontal, diferente daquela do projeto de 1958, e o tratamento das superfícies revela uma composição por planos, mais sintonizada com a arquitetura dos anos 1950 e 1960. O bloco do clube maringaense tinha 56 metros de comprimento e 14 de largura com pilotis de 3,10 metros e altura de 8,30 metros; o de Umuarama tinha 60 metros de comprimento e 14,30 de largura, com pilotis de 2,80 e altura de 6,60 metros. As ilustrações desse projeto - perspectivas internas e externas -, reforçam essa diferença.
Como as áreas molhadas do pavimento superior estavam posicionadas em série, no mesmo lado da planta, a fachada oposta ficava livre e, envidraçada, se abria para a piscina. As empenas laterais eram cegas e a fachada da rua recebeu fechamento com cobogó; o conjunto de ambientes molhados (cozinha e sanitários) recebeu na fachada um acabamento com um painel à la Mondrian e a escada de serviço foi acabada com placas de mármore, como o guarda-corpo do terraço. Uma marquise atirantada na face inferior do bloco protegia o acesso desde a rua.
A edificação de apoio à piscina - com bar, banheiros e vestiários -, tinha um único pavimento e uma planta retangular e simétrica: o bar ao centro - com fechamentos feitos por esquadrias de ferro e vidro -, e os banheiros e vestiários nas extremidades direita e esquerda - com fechamentos em alvenaria. As paredes autoportantes de alvenaria receberam cobertura com telhas do tipo calhetão, com beiral e aparentes. Regularidade formal, modulação estrutural e simetria marcam o desenho desse bloco que deixou de assumir uma forma idealizada a priori para responder a um material pré-fabricado e às condições que ele impunha - a conformação desse edifício resultava dessa escolha.
Nos projetos dos dois clubes a expressão da arquitetura modernista era contrastante com a imagem urbana daquelas novas cidades planejadas, mas era consoante com a modernização que essas cidades almejavam e com a distinção e status social que as agremiações buscavam - infere-se aqui que a variável do contexto social teve preponderância nessa solução projetual. Formas, materiais e técnicas de construção denotavam progresso ao espelhar as referências metropolitanas. Ainda hoje causam certa espécie se colocados diante das condições locais contemporâneas. Vale lembrar que para a construção da rodoviária de Londrina, projetada por Artigas e Cascaldi em 1948, parte do material de construção teve que ser levada de São Paulo (MINDLIN, 1999).
No projeto maringaense o conjunto de edificações resulta de volumes puristas articulados: prismas, cilindro, cúpula, abóbadas, arcos. Os itens do programa foram, primordialmente, associados a formas unitárias, com maior ou menor relação com a atividade que se desenvolveria nos seus interiores (por exemplo, vão livre do ginásio e o salão de festas circular, diferentemente da planta livre alongada do salão social ou da cobertura abobadada da quadra de boliche). O prisma do salão social articulado com o cilindro do salão de festas não deixa de ser uma variação da composição volumétrica do Cassino da Pampulha; a planta circular tinha como precedente a disposição da Casa de Baile. A escada helicoidal é um elemento forte na composição purista do espaço interno. Nesse edifício e no de Umuarama, a solução volumétrica alongada, com aberturas nas duas faces maiores do prisma, favorece a ventilação cruzada, embora esse não pareça ter sido um item determinante na solução formal; a fachada longa paralela à rua e a transparência desde e para o interior do clube parecem ter sido preponderantes na adoção desse esquema de pavilhão (O escritório de Ícaro de Castro Mello já havia recorrido a essa conformação para sedes sociais de clubes em outros projetos - por exemplo: Marília Tênis Clube, 1953, e Esporte Clube Sírio, 1950-1955 -, e continuou a fazê-lo).
No projeto para Umuarama, o prisma mais baixo e longo abriga um interior mais contínuo e menos tenso, como se referiu Rowe (1999) aos espaços tipo sanduíche de Mies van der Rohe. Divisórias internas de madeira e placas de mármore na fachada também indicavam outra estética. É significativo lembrar que, na época desse projeto, Paesani era colaborador de Castro Mello e, formado pelo Mackenzie em 1954 com estágio no escritório de Oswaldo Bratke, pode ter contribuído para essa afinidade com a estética miesiana prevalente nos anos 1950. A estrutura, mais arrojada nos vãos e no emprego da laje nervurada, descarta as colunas e se restringe à solução mais pragmática dos pilares de seção retangular.
De toda sorte, formas unitárias e regulares como essas empregadas por Castro Mello nos dois projetos não surgem como consequência de um processo de elaboração que incorpora os múltiplos aspectos do projeto (como lugar, programa etc.). Elas surgem como resposta autônoma que abstrai o que lhes é alheio e, ao mesmo tempo, sintetiza de uma só vez, globalmente, as diversas particularidades do projeto. No caso das formas unitárias, existe sempre uma concepção prévia; não se chega a elas através de correções ou aproximações - elas são o ponto de partida (FERRÁNDIZ-GABRIEL, 1999). O caso da conformação da cobertura da quadra de boliche é exemplar: uma emblemática solução formal escolhida a priori, depois reutilizada em outros projetos, como na Associação Atlética Banco do Brasil (em São Paulo, 1959). Tais formas foram escolhidas pelo arquiteto pela repercussão e impacto que tiveram no contexto social - veio daí sua motivação.
OS PROJETOS REFEITOS
Esses projetos iniciais foram parcialmente executados. Praticamente nos dois casos foram construídas as piscinas e as instalações de apoio, conforme os projetos originais. O projeto do clube maringaense foi refeito em 1962 e o de Umuarama em 1969. Não há informação sistematizada que possa justificar o fato de terem desistido do desenho inicial, nem atas dos clubes nem registro por parte do escritório do arquiteto; atualmente o clube é administrado pela terceira geração de sócios e tampouco há história oral sobre a construção das edificações. Aproximando dados da economia regional com os novos projetos - nos quais se notará uma sensível redução da área construída e do padrão construtivo -, pode-se inferir que a decisão foi motivada por questões financeiras. Essa decisão repercutiu na forma arquitetônica e na estratégia projetual, apesar de a obra sustentar uma imagem moderna. Com isso, o contexto social pesou de modo restritivo, colocando em posições antagônicas as condições locais, os recursos disponíveis e o anseio dos clientes.
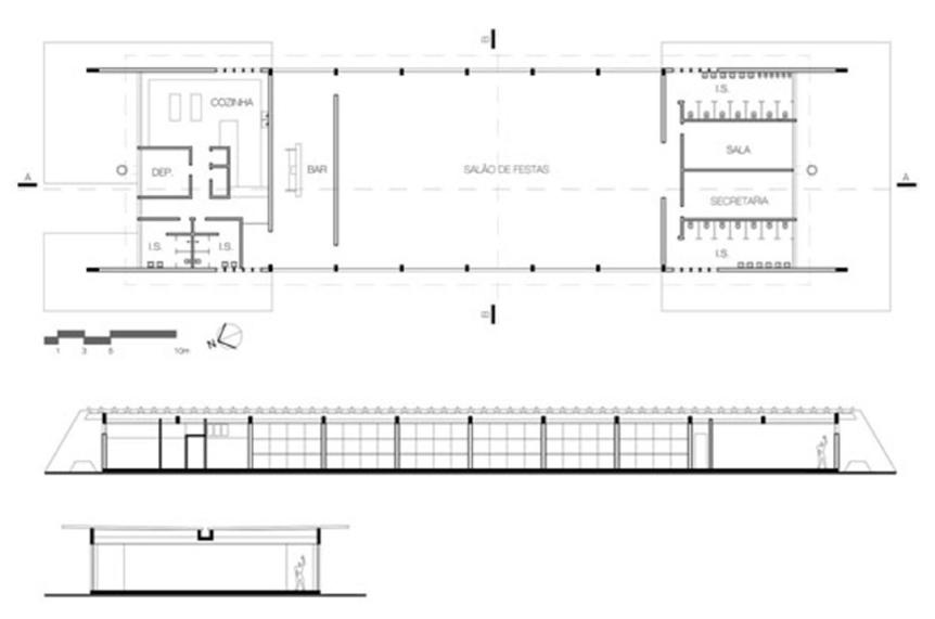
O projeto refeito do clube maringaense (Figura 6) apresenta apenas a sede social - desvencilhando-se das demais edificações. A nova proposta para a sede social (com 2.200 m²) corresponde a um edifício mais simplificado, resolvido em um único pavimento (térreo), cuja planta retangular acomoda, na porção central, a sala de estar, bar e salão de festas e, em uma extremidade, placo, cozinha e demais ambientes de apoio; enquanto na outra ficam a chapelaria, barbearia, sanitários, salas de jogos e administração. O esquema original de uma planta retangular, a disposição das principais atividades no seu interior e a implantação no terreno foram mantidos - inclusive com o aproveitamento dos vestiários semienterrados que já haviam sido construídos, mas a estética purista e a forma (definida a priori) como diretrizes de projeto foram descartadas. O sistema estrutural passou a determinar a conformação do edifício (Figura 7). Com efeito, os princípios corbusieranos da composição original foram substituídos pelo raciocínio miesiano.


O sistema estrutural foi resolvido com uma série de vigas treliçadas de madeira bi-apoiadas. Os pilares de concreto armado - de seção retangular variável, configurando prismas trapezoidais -, estavam posicionados no perímetro do espaço interno, abrindo um vão de 17,50 metros. A extensão total do edifício ultrapassava os noventa metros. O desenho dos apoios era um recurso plástico que então vinha sendo explorado por diversos projetistas. As vigas treliçadas estavam conectadas umas às outras com tesouras de madeira que viabilizavam a inclinação das telhas de fibrocimento da cobertura e a instalação de calhas e condutores pluviais; as inclinações do telhado se repetiam, de modo invertido, no forro de madeira, criando um desenho nas fachadas longitudinais - leste e oeste -, composto por losangos repetidos em série (Figura 8).

Uma solução semelhante pode ser vista no edifício da sede social do Clube Libanês de Belo Horizonte5 e já havia sido construída com estrutura metálica no projeto de Ícaro Castro Mello para a Associação Atlética Banco do Brasil, em São Paulo, em 1959. Uma análise de ginásios projetados por Castro Mello entre 1948 e 1970 destaca o aparecimento, nas obras mais recentes, de soluções construtivas que exploram deliberada e primordialmente o sistema estrutural, com o constante aparecimento de arcos ou de pórticos seriados, construídos com concreto, madeira ou metal (FORCELLINI, 2014).
A madeira era material disponível na região de colonização pioneira desmatada, assim como uma competente mão-de-obra de carpintaria, o que barateava a construção. Um material mais “tradicional” aliado a um desenho incomum na região assegurava o aspecto moderno da construção, que continuava modernamente transparente, com espaços fluídos e vão considerável, sem prescindir do status ansiado. A cobertura criava um beiral que sombreava as fachadas de vidro, dispensando brises ou cobogós. Percebe-se assim que as restrições orçamentárias aliadas às possibilidades do entorno físico levaram o arquiteto a decidir por essa nova estratégia projetual.
Além disso, Brasília, inaugurada dois anos antes, marcou um ponto de inflexão na trajetória da arquitetura brasileira ao indicar mudança na expressão formal, com a referência carioca dando lugar a uma nova expressão (BASTOS, 2003). Na verdade, essa mudança remonta a meados da década de 1950, quando a arquitetura paulista gerou uma linguagem própria, que aderia à exploração técnica e estética da estrutura do edifício, à valorização dos materiais a partir de suas características originais e à exposição dos elementos técnicos. Bastos e Zein (2010a) referem-se, nesse sentido, ao gosto pela estrutura aparente, por certa rusticidade, pela exposição de elementos construtivos. As decorações se tornaram menos presentes e o interesse pela industrialização da construção civil valorizou a racionalidade construtiva, assim como a flexibilidade no atendimento de funções (BASTOS; ZEIN, 2010b).
De modo semelhante ao que se deu em Maringá, o projeto da sede social do clube de Umuarama foi refeito em 1969 (Figura 9) e o edifício passou a ter um único pavimento (térreo), reduzido a 800m². A planta, ainda retangular, exibe reducionismo e simplificação miesianos, assim como se via em certas composições de Niemeyer, definidas pela estrutura de cobertura e pela caixa de vidro disposta sob ela. Nessa planta de Castro Mello (Figura 10), uma sequência de pórticos de concreto aparente, arrematada por viga-cinta, sustenta uma calha central e a cobertura aparente de calhetão; os pilares estão posicionados no perímetro da planta retangular. As vigas tinham vãos de 5 metros no sentido longitudinal da planta e de 14,5 metros no sentido transversal. O fechamento dos pórticos é envidraçado, acomodando o salão de festas transparente. O bar se destaca do salão por um plano independente. A sequência de pórticos é encabeçada por paredes de alvenaria rebocadas e pintadas, arrematadas em um ângulo de 60°. Em perfeita simetria, essas paredes escondem a cozinha de um lado e, do outro, os sanitários. O pilotis desapareceu na segunda versão sem que o novo projeto desse outra justificativa para o fato que não fosse a estética: erguido por pilotis, como reconhecera Le Corbusier (1978), o edifício exibia a “linha impecável” da sua parte inferior - e assim imprimia monumentalidade e modernidade à construção.


A perspectiva do clube elaborada por Eduardo de Castro Mello deixa entrever uma das duas gárgulas nas extremidades da viga-calha e ressalta a conformação arquitetônica que elude o volume e enfatiza os elementos planos - já que os cantos de alvenaria foram eliminados com o prolongamento das paredes frontais. É uma construção modesta, estrutural e funcionalmente clara, moderna pela simplicidade e despojamento. Novamente, sistema estrutural e cobertura dirigem o projeto e indicam a sua constituição formal; as atividades do programa se acomodam no formato dado pela estrutura à planta, diferentemente da arquitetura purista que dá forma à edificação, que passa a reger todas as demais decisões de projeto. Também nesse caso o contexto social e a consideração do entorno físico orientaram a decisão projetual.
CONSIDERAÇÕES FINAIS
As duas versões dos projetos analisados revelam estratégias projetuais diferentes, que resultaram em expressões arquitetônicas distintas. Movido por restrições orçamentárias e questões de viabilidade construtiva, o arquiteto alterou a ênfase dada às variáveis externas ao fazer arquitetônico, atualizando a imagem da edificação.
Nas versões iniciais sobressaíam a forma plástica e a estética purista, fortemente sustentadas pelo peso da variável “contexto social” prevalecente. A acomodação das atividades foi subordinada a essas variáveis tomadas como principais e o aspecto simbólico da institucional foi pouco considerado - como quase sempre na arquitetura moderna. A arquitetura modernista deveria instituir o status social almejado. As formas adotadas pelo arquiteto representavam a arquitetura moderna brasileira na medida em que eram soluções reconhecíveis em edifícios emblemáticos. Materiais e técnicas construtivas pouco usuais naquelas cidades e formas inovadoras contrastavam com a paisagem urbana ao redor e esse contraste era desejado. A resposta construtiva era eficaz ainda que materiais e técnicas construtivas fossem pouco apropriados à realidade local - ou seja, o fator “entorno físico” foi pouco relevante para essas conformações.
Quanto à variável “acomodação das atividades”, pode-se notar que, apesar das alterações nas áreas e da redução dos espaços, as principais atividades da sede social dos clubes permaneceram inalteradas. Nas duas versões de cada projeto são dados a elas espaços flexíveis, genéricos e transparentes, servidos por cômodos menores e mais especializados, deslocados para as extremidades das plantas retangulares. O formato da planta permanece sem alteração já que interessava uma fachada expressiva - nesse caso, longa e paralela à rua.
Nas duas versões finais sobressaíram as soluções construtivas por sobre a forma pré-concebida. Materiais e técnicas localmente mais usuais (no caso da construção em madeira em Maringá) e pré-fabricados (como o calhetão em Umuarama) determinaram a conformação da edificação diante das condições impostas por um entorno físico específico. De todo modo, a ênfase na variável “entorno físico” não subtraiu o status social que os clientes demandavam para as edificações - o contexto social ainda prevaleceu sobre as demais variáveis projetuais.
Reconhecendo interesses, recursos, condições, potencialidades e disponibilidades (em particular, as colaborações dos projetistas associados), o arquiteto alterou sua estratégia e adaptou os projetos para viabilizar a obra. O fazer arquitetônico requer o entendimento de cada variável e o seu inter-relacionamento e, nos casos aqui analisados, o fazer arquitetônico conjugou hierárquica e convenientemente as variáveis projetuais referentes ao entorno físico, ao contexto social, à acomodação das atividades e à simbolização cultural. A história dos projetos aqui apresentados pode ser uma contribuição valiosa para quem discute metodologia projetual. O estudo de casos múltiplos evidencia que as decisões projetuais tomadas pelos arquitetos também dependem da ponderação pessoal sobre as variáveis que incorrem no processo projetual.
AGRADECIMENTOS
Aos familiares de Ícaro de Castro Mello por permitirem a consulta ao acervo do arquiteto.
REFERÊNCIAS
ASCHNER ROSSELLI, J. P. Cómo concibir un proyecto arquitectónico? De Arquitectura, v. 5, p. 30-41, 2009.
BASTOS, M. A. J. Pós-Brasília: rumos da arquitetura brasileira: discurso: prática e pensamento. São Paulo: Perspectiva, 2003.
BASTOS, M. A. J.; ZEIN, R. V. Brasil: arquiteturas após 1950. São Paulo: Perspectiva, 2010a.
BASTOS, M. A. J.; ZEIN, R. V. Brasil: arquiteturas após 1950 em quatro temas. In: ENCONTRO DA ASSOCIAÇÃO NACIONAL DE PESQUISA E PÓS-GRADUAÇÃO EM ARQUITETURA E URBANISMO, 1., 2010, Rio de Janeiro. Anais [...]. Rio de Janeiro: ANPARQ, 2010b. p. 1-17.
BRUAND, Y. Arquitetura contemporânea no Brasil. 2. ed. São Paulo: Perspectiva, 1991.
CANCIAN, N. A. Cafeicultura paranaense: 1900-1970. Curitiba: Grafipar, 1981.
CAVALCANTI, L. Le Corbusier, o Estado Novo e a formação da arquitetura moderna brasileira. In: Guerra, A. (org.). Textos fundamentais da história da arquitetura moderna brasileira. São Paulo: Romano Guerra, 2010. v. 1, p. 109-115.
COHEN, J-L. O futuro da arquitetura desde 1889: uma história mundial. São Paulo: Cosac Naify, 2013.
COMAS, C. E. D. Uma certa arquitetura moderna brasileira: experiência a reconhecer. In: GUERRA, A. (org.). Textos fundamentais sobre história da arquitetura moderna brasileira. São Paulo: Romano Guerra, 2010. v. 1, p. 63-77.
FERRÁNDIZ-GABRIEL, J. Apolo y Dionisos: el temperamento en la arquitectura moderna. Barcelona: Ediciones UPC, 1999.
FORCELLINI, C. D. S. Os ginásios de Ícaro: uma obra e as diversas possibilidades do “projetar” em arquitetura. In: ENCONTRO DA ASSOCIAÇÃO NACIONAL DE PESQUISA E PÓS-GRADUAÇÃO EM ARQUITETURA E URBANISMO, 3., 2014, São Paulo. Anais [...]. São Paulo: ANPARQ, 2014. p. 1-18.
FRAMPTON, K. História crítica da arquitetura moderna. São Paulo: Martins Fontes, 2003.
FRASER, V. Cannibalizing Le Corbusier: The MES gardens of Roberto Burle Marx. JSAH: Journal of the Society of Architectural Historians, v. 59, n. 2, p. 180-193, 2000. Available from: www.jstor.org/stable/991589. Cited: Sept. 20, 2018.
FRAZATTO, B. C. Modernização e status social. 2019. 117 f. Dissertação (Mestrado em Arquitetura e Urbanismo) - Universidade Estadual de Maringá, Maringá, 2019.
GROAT, L.; WANG, D. Architectural research methods. Nova Jersey: John Wiley & Sons, 2002.
ÍCARO de Castro Mello: principais projetos. São Paulo: J. J. Carol, 2005.
JEANNERET, C. E.; OZENFANT, A. Acerca del purismo: escritos 1918-1926. Madrid: El Croquis, 1994.
LARA, F. L. Excepcionalidade do modernismo brasileiro. São Paulo: Romano Guerra, 2018.
LE CORBUSIER. Precisiones respecto a um estado actual de la arquitectura y del urbanismo. Barcelona: Poseidon, 1978.
MARTINS, C. A. F. Identidade nacional e Estado no projeto modernista: modernidade, Estado e tradição. In: GUERRA, A. (org.). Textos fundamentais da história da arquitetura moderna brasileira. São Paulo: Romano Guerra, 2010. v. 1, p. 279-298.
MAYO, J. M. The American country club: an evolving elite landscape. Journal of Architectural and Planning Research, v. 15, n. 1, p. 24-44, 1998.
MINDLIN, H. E. Arquitetura moderna no Brasil. Rio de Janeiro: Aeroplano, 1999.
NORBERG-SCHULZ, C. Intentions in architecture. Cambridge: The MIT Press, 1965.
REGO, R. L. Breve história de três ideias: motivos formais recorrentes na produção da arquitetura moderna brasileira. In: COLÓQUIO ARQUITETURA BRASILEIRA: REDESCOBERTAS, 16; 2000, Cuiabá. Anais [..]. Cuiabá: IAB, 2000. p. 94.
REGO, R. L. Modernidade no interior: o norte do Paraná, os engenheiros, arquitetos e urbanistas forâneos e a construção da imagem regional. In: SEMINÁRIO DE HISTÓRIA DA CIDADE E DO URBANISMO, 12., 2012, Porto Alegre. Anais [...]. Porto Alegre: UFRGS, 2012a. p. 1-10.
REGO, R. L. Importing planning ideas, mirroring progress: the hinterland and the metropolis in mid-twentieth-century Brazil. Planning Perspectives, v. 27, n. 4, p. 625-634, 2012b.
ROWE, C. Manierismo y arquitectura moderna y otros ensayos. Barcelona: GG, 1999.
SEGAWA, H. Arquiteturas no Brasil: 1900-1990. São Paulo: EdUSP, 1997.
SUZUKI, J. H. Artigas e Cascaldi: arquitetura em Londrina. Cotia: Ateliê Editorial, 2003.
SUZUKI, J. H. Idealizações de modernidade: arquitetura dos edifícios verticais em Londrina 1949-1969. Londrina: KAN, 2011.
TOTA, A. P. O imperialismo sedutor. São Paulo: Companhia das Letras, 2000.
VILANOVA Artigas. São Paulo: Instituto Lina Bo e P. M. Bardi, 1997.
YIN, R. Estudo de caso: planejamento e métodos. Porto Alegre: Bookman, 2001.
NOTAS
Autor notes
Correspondência para/Correspondence to: R. L. REGO | E-mail: rlrego@uem.br