Resumen: Objetivo: valorar la declaración de la Torre del Reloj como bien de interés cultural del año 2003, según lo establecido en el título II artículo 6 (Decreto 763) y el Manual para Inventarios de Bienes Culturales Inmuebles desarrollado por el Ministerio de Cultura de Colombia (2005), mediante el diseño de una matriz de valoración por criterios. Metodología: se utilizó una metodología de investigación mixta, de corte aplicada, descriptiva y documental, estructurada a partir de los métodos analítico y sintético. Como técnicas y herramientas de recolección de información se utilizó la revisión bibliográfica y de documentos como método de apoyo teórico a la investigación, la entrevista a actores claves y el trabajo de campo. Resultados: como hallazgo relevante se destaca que este Bien de Interés Cultural (BIC) presentó un cumplimiento alto con respecto a la ponderación de los criterios y valores sometidos a estudio, dentro de los cuales los criterios de la forma, y la apropiación; así como el valor estético, obtuvieron los máximos promedios de valoración, debido a la influencia del estilo Republicano en la ciudad, seguidos del criterio del contexto socio-cultural y el valor simbólico. Conclusiones: se reafirma la importancia de la valoración y significación de los Bienes de Interés Cultural, teniendo en cuenta que esta favorece el reconocimiento, la conservación y preservación del patrimonio de la ciudad logrando que su significado trascienda y fortalezca la memoria, el arraigo y los imaginarios socioculturales de los habitantes de la ciudad.
Palabras clave: criterios de valoración, identidad, memoria, patrimonio, significación.
Abstract: Objective: to appraise the declaration of the Torre del Reloj as an asset of cultural interest in 2003, established by Title II, Article 6 (Decree 763), and the Guidelines on Inventories of Immovable Cultural Assets developed by the Ministry of Culture, Colombia (2005) by designing a criteria evaluation matrix. Methodology: a mixed, applied, descriptive and documentary methodology was used and structured from the analytical and synthetic methods. Literature and document review as theoretical support were used as data collection techniques as well as interviews to key actors and field work. Results: as a relevant finding, this Asset of Cultural Interest (BIC) exhibited a high compliance with respect to the weighting of the criteria and values under study. The form and appropriation criteria and the aesthetic value scored the highest average values due to the city’s influence of Republican style and followed by the socio-cultural context and the symbolic value criteria. Conclusions: the importance of the valuation and significance of assets of cultural interest is reassured and it contributes to the city’s asset’s recognition, conservation and preservation through its meaning transcendence and strengthening of citizen’s memory, roots and sociocultural imaginations.
Keywords: valuation criteria, identity, memory, asset, significance.
Resumo: Objetivo: avaliar a declaração da Torre do Relógio como um bem de interesse cultural em 2003, em conformidade com o disposto no Título II, Artigo 6 (Decreto 763), e no Manual de Inventários de Bens Culturais Imóveis desenvolvido pelo Ministério da Cultura colombiano (2005), através da concepção de uma matriz de avaliação baseada em critérios. Metodologia: foi utilizada uma metodologia de investigação mista, aplicada, descritiva e documental, estruturada com base em métodos analíticos e sintéticos. As técnicas e ferramentas utilizadas para recolher informação incluíram uma revisão da literatura e documentos como método de apoio teórico à investigação, entrevistas com atores-chave e trabalho de campo. Resultados: como conclusão relevante destaca-se que este Bem de Interesse Cultural (BIC) apresentou um elevado cumprimento no que respeita à ponderação dos critérios e valores apresentados para estudo, dentro dos quais os critérios da forma, e apropriação; assim como o valor estético, obteve as mais altas médias de valorização, devido à influência do estilo republicano na cidade, seguido dos critérios do contexto sócio-cultural e do valor simbólico. Conclusões: reafirma-se a importância da valorização e significado do Património Cultural, tendo em conta que isto favorece o reconhecimento, conservação e preservação do património da cidade, assegurando que o seu significado transcende e fortalece a memória, as raízes e os imaginários socioculturais dos habitantes da cidade.
Palavras-chave: critérios de avaliação, identidade, memória, memória, património, significado.
Otras temáticas
Valoración y significación del bien de interés cultural «Torre del reloj» Cúcuta, Colombia
Valoration and Significance of an Asset of Cultural Interest “Torre del reloj” Cúcuta, Colombia
Avaliação e significado dos bens de interesse cultural “Torre do relógio de Cúcuta” Cúcuta, Colômbia
Recepción: 05 Febrero 2021
Aprobación: 21 Septiembre 2021
Ayala Garcia, E. T., Coronel Ruiz, L. K. y Rivera Quintero, A. M. (2022). Valoración y significación del bien de interés cultural «Torre del reloj» Cúcuta, Colombia. Ánfora, 29(52), 232-265. https://doi.org/10.30854/anf.v29.n52.2022.793
Universidad Autónoma de Manizales. L-ISSN 0121-6538. E-ISSN 2248-6941. CC BY-NC-SA 4.0
En el presente artículo se establece que el patrimonio determina el reconocimiento de un territorio, ya que a partir de este se pueden identificar los valores tangibles e intangibles que construyen la base de la sociedad. De esta manera, las palabras, los significados, los hábitos, las tradiciones, los objetos, los lugares de habitación y de relación social, el conocimiento y las instituciones, hacen parte de la cultura del territorio y del contexto en el que se habita; y, por lo tanto, promueven el desarrollo del ser social y determinan su forma de relacionarse con el entorno, con el ambiente y con la sociedad (Ministerio de Cultura, 2005).
La Unesco (1972) definió el patrimonio como un conjunto de bienes muebles e inmuebles de carácter material o inmaterial, que cuentan con un valor excepcional asociado a la historia, el arte, la ciencia y la cultura; y que, por lo tanto; son dignos de ser conservados. El patrimonio revela la identidad cultural del contexto en el que se desarrolla, permitiendo establecer su valor histórico, cultural o estético, por medio de una fundamentación documental, arqueológica, artística, técnico-científica, basada en los criterios de autenticidad, calidad y originalidad (Garré, 2001).
Bajo este orden de ideas, es pertinente destacar que el patrimonio representa una importancia cultural, que consolida los períodos de la historia, los bienes muebles e inmuebles y las características de la cultura propias de cada territorio, por medio de las cuales se fortalecen el sentido de pertenencia, el arraigo, la territorialidad y la memoria urbano-colectiva. A partir de esta consideración, en Colombia en el año 1997 se creó el Consejo Nacional de Patrimonio Cultural, encargado de defender, proteger y conservar el patrimonio de orden nacional; y posteriormente en el año 2005, se estableció el Manual para el Inventario de Bienes Culturales Muebles, que definió la valoración y clasificación del patrimonio cultural, la metodología para la elaboración de bienes culturales muebles y la clasificación de registro de bienes culturales, mediante la determinación de criterios de valoración encargados de definir el valor patrimonial y el nivel de intervención de un Bien de Interés Cultural (BIC) (Ministerio de Cultura, 2005).
Dentro del presente artículo se condensan aspectos relevantes correspondientes a la investigación científica «Diagnóstico y caracterización del Bien de Interés Cultural denominado Torre del reloj y su importancia en el desarrollo del patrimonio de la ciudad de San José de Cúcuta». A través de la cual se evidenció que la Torre del reloj fue catalogada como BIC por el Ministerio Cultura (2003), al ser reconocida como un hito social, cultural y gubernamental, que hace parte del polígono del Sector de Interés Cultural (SIC) de la ciudad, y que representa una carga histórica importante respecto al desarrollo urbano-social de la misma.
Es importante resaltar que uno de los valores agregados de esta investigación corresponde al estudio de los criterios de valoración para el Bien de Interés Cultural Torre del reloj, de acuerdo con lo establecido en el Manual para Inventario de Bienes Cultural Inmuebles del Ministerio de Cultura de Colombia (2005). Esto teniendo en cuenta que, en el año 2005, se establecen elementos complementarios para el proceso de valoración de los BIC.
Por tal razón, con el fin de dar cumplimiento a este requerimiento, el objetivo de esta investigación se centró en la valoración de la declaración de la Torre del reloj como Bien de Interés Cultural, según lo establecido en el título II artículo 6 (Decreto 763) y el Manual para Inventarios de Bienes Culturales Inmuebles desarrollado por el Ministerio de Cultura de Colombia (2005), mediante el diseño de una matriz de valoración que permitió establecer el nivel de cumplimiento de los criterios y los valores del BIC. Lo anterior evidenció la importancia de la valoración y significación de los Bienes de Interés Cultural con respecto al fortalecimiento territorial.
El marco metodológico de esta investigación da respuesta a lo establecido en el Manual del Ministerio de Cultura de Colombia (2005) y en el Título II artículo 6 (Decreto 763 del 2009). Se desarrolló bajo un enfoque mixto, capaz de reconocer, analizar e interpretar datos de carácter cualitativo y cuantitativo dentro de un mismo estudio (Hamui-Sutton, 2013) permitiendo generar y verificar resultados y hallazgos más completos, provistos de una validación más compleja y un mejor entendimiento de los resultados obtenidos (Ugalde y Balbastre, 2013). El tipo de investigación es aplicada y descriptiva, bajo la implementación de método analítico y sintético, teniendo en cuenta que sus planteamientos son consecuentes con los objetivos y el espíritu de la investigación.
Se diseñó una matriz de valoración para el BIC sometido a estudio, la puesta en marcha de esta herramienta favoreció la orientación, atribución y definición del significado cultural de la Torre del reloj en la ciudad de San José de Cúcuta. La matriz de valoración está compuesta por diez criterios y tres valores (tablas 4 y 6). En la matriz se definió una escala de valoración independiente, que permitió establecer los criterios y los valores en términos cuantitativos con el fin de determinar su nivel de cumplimiento y el Promedio Total de Valoración (PTV) soportados en el análisis cualitativo del BIC resultante del trabajo de campo realizado, las entrevistas a actores claves y la búsqueda documental que permitió elaborar la memoria analítica para cada uno de los criterios evaluados.
La escala de valoración de la matriz se realizó teniendo en cuenta dos dimensiones:
La escala de interpretación del Valor de Cumplimiento Total del Criterio (VCTC) corresponde a un rango de (0) a (50), siendo el nivel bajo ≤ 25 (no presenta un grado de cumplimiento significativo a la ponderación de los diez criterios de valoración del Bien Cultural), medio > 25 – 39,99 (presenta un grado de cumplimiento aceptable a la ponderación de los (10) criterios de valoración del Bien Cultural, teniendo en cuenta que el resultado de la ponderación del Bien Cultural se cumple, pero no plenamente), y alto ≥ 40 (presenta un grado de cumplimiento pleno o en alto grado a la ponderación de los diez Criterios de valoración del Bien Cultural).
La escala de interpretación del Cumplimiento Total del Valor (CTV) corresponde a un rango de cero (0) a quince (15), siendo el nivel bajo ≤ 4,9 (no presenta un grado de cumplimiento significativo a la ponderación de los tres (3) Valores de los atributos del Bien Cultural), medio > 5-7.9 (presenta un grado de cumplimiento aceptable de los tres Valores de los atributos del Bien Cultural, teniendo en cuenta que el resultado de la ponderación del Bien Cultural se cumple, pero no plenamente) y alto ≥ 8 (presenta un grado de cumplimiento pleno o en alto grado a la ponderación de los tres (3) Valores de los atributos del Bien Cultural).
La investigación contó con el desarrollo de un marco metodológico documental, las fuentes de información obedecieron a la búsqueda de fuentes primarias y de autores relevantes en fuentes secundarias como libros, tesis, artículos, normativa, bases de datos bibliográficas y revistas indexadas en torno a la temática planteada dentro de esta investigación. Además de la realización de una entrevista a la arquitecta María Teresa Vela Vicini y a la historiadora María Yolanda Suarez Plata, como actores claves que participaron en el proceso de la declaratoria del BIC «Torre del reloj», bajo el soporte del valor patrimonial y el nivel de intervención.
Finalmente, se desarrolló un trabajo de campo que permitió la recolección, el análisis y la síntesis de datos relevantes para el diligenciamiento de la matriz de valoración, proceso que fue apoyado por un levantamiento arquitectónico y un registro fotográfico. Las categorías que orientaron este estudio corresponden a Bien de Interés Cultural, Criterios de Valoración, Significación, Patrimonio y Tradición.
En el plan de redacción de este artículo, los resultados se estructuran a partir de tres títulos. El primero, «El patrimonio y la importancia de su valoración», determina la relación del patrimonio, la historia y el territorio; el segundo, «Valoración de Bienes» según el Ministerio de Cultura establece los criterios necesarios para la valoración de un BIC, de acuerdo a aspectos como la conservación del Bien, el significado de su valor histórico y cultural, su composición arquitectónica- constructiva y su autenticidad, entre otros; y el tercero, «La Torre del reloj de Cúcuta como caso de estudio», en donde se definen los resultados de los criterios de valoración del BIC según los establecido por el Ministerio de Cultura de Colombia en el año 2005 y el Decreto 763 de 2009.
La relación entre el patrimonio y la historia está relacionada a los atributos de la arquitectura en las ciudades, ya que en las calles y en los muros del entorno urbano se almacenan las memorias del pasado consolidando la historia y las transformaciones que han marcado los períodos más significativos del territorio en el que se arraiga. Por lo tanto, la arquitectura y los espacios urbanos se convierten en escenarios, en los cuales, a partir de la cotidianidad, se construyen los lazos y se fortalecen las bases de la identidad que acompañaran las siguientes generaciones (Muñoz Cosme, 2009).
Así las cosas, el reconocimiento de la historia adquiere un valor significativo, porque a través de esta se puede comprender cómo las huellas del pasado, los escenarios arquitectónicos-culturales y los personajes contribuyen cotidianamente en la construcción de la sociedad. Esto cobra sentido a partir del entendimiento de la noción del patrimonio, sobre todo al tener en cuenta que los referentes patrimoniales poseen una carga simbólica que legitima la identidad al estar provista de valores de uso (asociados a la identidad y la memoria colectiva) y de cambio (referente al mercado) (Arévalo, 2010).
Bajo este orden de ideas, se debe reseñar la importancia que tiene el patrimonio arquitectónico con respecto al territorio, ya que este se configura como una memoria urbana llena de atributos y significados culturales, estéticos e inmateriales; necesarios para comprender la relación que existe entre el territorio, la herencia histórica, cultural, económica y arquitectónica que dan sentido a la esencia del habitar y a la conexión del ser humano con su entorno. Por lo tanto, la valoración y significación del patrimonio y de los Bienes de Interés Cultural (BIC) en las ciudades permiten establecer mecanismos de conservación, recuperación y sostenibilidad para los mismos.
Para Freddy Alberto Piñeros Forero (2017), la idea de otorgar una valoración y una significación a los BIC, tiene la finalidad de conservar los elementos compositivos originales, lo que permite su fácil recuperación en caso de haber sido objeto de intervenciones. Su trascendencia y significación radica en su valor histórico y cultural, en su configuración espacial (tipología y morfología), en sus elementos arquitectónicos y constructivos, en su autenticidad (costumbres y modos de una época) y en el testimonio histórico que representan (acontecimientos) particularidades; cuya sumatoria se constituye en documentos esenciales para la configuración de la historia y el sostenimiento de la memoria colectiva de la sociedad.
Según el Ministerio de Cultura (2005), la valoración de los BIC corresponde a la elaboración del inventario de los bienes, la cual está definida a partir de categorías como: 1) El sujeto; que hace referencia al individuo o a la colectividad; 2) El objeto; definido como arqueológico, etnográfico, documental, artístico, utilitario, científico o como un monumento en el espacio público; y 3) El contexto en el que se relacionan la comunidad, el contexto geográfico y el contexto sociocultural.
La puesta en marcha de esta valoración y significación genera un efecto positivo dentro del territorio, ya que contribuye a la recuperación e intervención de los bienes muebles, el fortalecimiento de los valores históricos, estéticos y simbólicos necesarios para el desarrollo de la sociedad; así como a la generación de normativas tendientes para la protección y conservación de los bienes y de los territorios en donde se ubican, promoviendo el desarrollo económico, cultural y social del territorio en el que se implanta.
De acuerdo con lo anterior, se reseñan los criterios de valoración contenidos en el Manual para Inventarios Bienes Culturales Muebles del Ministerio de Cultura de Colombia:
Criterios de valoración: constituyen los valores en los que se apoya la solicitud de declaratoria de un bien en específico y están definidos de la siguiente manera:

Medición de valores: permiten establecer los atributos del BIC con respecto a los valores histórico, estético y simbólico, a través de la siguiente descripción:

Los criterios y valores anteriormente relacionados se presentan como una estrategia y un aporte significativo en torno a la cultura, el fortalecimiento de la economía y el componente sociopolítico en ámbito local, departamental y nacional. Por tal razón, es necesario que los entes territoriales los reconozcan, los utilicen y generen mecanismos asociados a la gestión territorial, así como a su difusión y socialización permanente con las comunidades, con el fin de establecer escenarios activos de reconocimiento y significación patrimonial asociados al territorio mediante un trabajo mancomunado entre la comunidad y los especialistas en el proceso.
En este sentido, en esta investigación se realiza para el BIC Casa Torre Reloj, una actualización de los datos a partir del año 2003, cuando fue declarada como Bien de Interés Cultural de carácter nacional; resaltando las intervenciones a las cuales ha estado sujeta y la adopción de los criterios y valores orientados por el Manual para Inventarios de Bienes Culturales (2005) y el Decreto 763 de 2009 de la presidencia de la República. Vale la pena resaltar que, como valor agregado, los resultados de esta investigación favorecen la actualización del significado y la memoria histórica de la ciudad, toda vez que en ella se resaltan los hechos y atributos más representativos de este BIC, bajo el fin de la promoción de la identidad, el arraigo, y el fortalecimiento del legado arquitectónico; con respecto a su manejo, conservación y sostenibilidad en el tiempo.
La Torre del reloj se encuentra ubicada en la comuna 1, barrio «El Centro», manzana 161, en la Calle 13 No. 3-67, entre las avenidas 3ª y 4ª de la ciudad de San José de Cúcuta, Norte de Santander, Colombia. Con respecto a su ubicación, Maria Teresa Vela Vicini asegura que se encuentra en el sector que alberga la mayor concentración de servicios relacionados a los ámbitos social, económico y político-administrativo de la ciudad de San José de Cúcuta, y que además, se emplaza en el Sector de Interés Cultural (SIC) junto a otros Bienes de Conservación e Interés Cultural dentro de los cuales se destacan: el ancianato Rudesindo Soto, la antigua Escuela de Artes y Oficios (hoy Colegio Normal María Auxiliadora), la Casa natal de Eduardo Cote Lamus, el parque Victoria o Colón, la Gobernación del Departamento (Palacio de Gobierno), el antiguo Club Colsag y la Asociación de Artesanos y Gremios Unidos (Rivera Quintero, Ayala García y Coronel Ruiz, 2019) (ver figura 1).

Este inmueble fue propiedad del señor Francisco Hernández hasta 1917, cuando fue vendido al señor Rafael Colmenares. Posteriormente, en 1923 la «Compañía Eléctrica del Norte SA» lo adquirió y lo convirtió en la sede de la nueva empresa de Energía Eléctrica, representando el crecimiento de la empresa en pro de la calidad de vida de los habitantes, proporcionado bienestar y siendo una fuente de empleos directos e indirectos para la población según informó María Yolanda Suarez Plata.
En 1930, el inmueble sufrió una modificación tras la construcción de su torre, convirtiéndose en un referente urbano para la ciudad, y en 1960 fue destinado para fines culturales, siendo declarado Monumento Nacional el 12 de mayo de 1982 (Resolución 002) y como Bien de Interés Cultural el 25 de agosto del 2003 (Ministerio de Cultura, 2003). Según lo expuesto por María Teresa Vela Vicini, en la actualidad, este BIC alberga las oficinas de la Secretaría de Cultura de Norte de Santander y reúne las manifestaciones culturales de la región.
La «Torre del reloj» posee un estilo arquitectónico Republicano correspondiente al período comprendido entre los años 1850 y 1930 aproximadamente. Dentro de sus características formales utiliza elementos asociados al orden clásico, la arquitectura gótica y la arquitectura oriental. Además, fue considerada como una innovación en Colombia, que transformó la arquitectura doméstica a partir de la implementación de tipologías heredadas de la Colonia hasta producir su propio lenguaje, siendo el final del siglo XIX su período máximo de representación (Arteaga Ruiz, 2018).

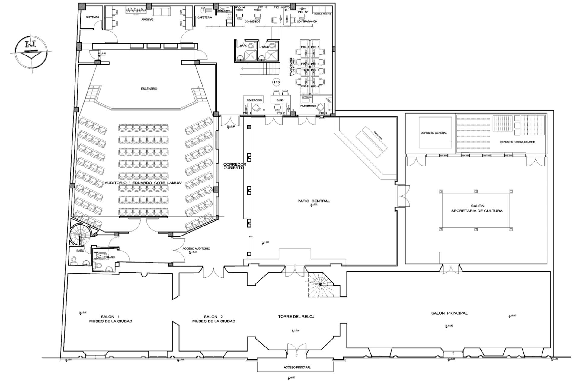
Como se puede apreciar en la figura 2, la Torre del reloj está implantada en un lote en forma de L y posee un patio central con tres cuerpos que lo rodean. Sus pisos son de doble altura y su fachada implementa elementos como columnas, balaustres y capiteles, que caracterizan la fuerza del estilo Republicano, destacando además las cornisas elaboradas con elementos ornamentales neoclásicos y las puertas enmarcadas por molduras, así como los óculos, las escaleras en madera, los postigos, los pisos, y las ventanas (ver figura 3).

El diseño de su fachada es sobria, simétrica, de color blanco y cuenta con teja española. El inmueble tiene una torre de 27 metros de altura aproximadamente, que contiene seis pisos separados entre ellos por cornisas, que la dividen en dos cuerpos dispuestos de manera horizontal. Cada uno de estos cuerpos posee una puerta en madera tallada con figuras geométricas y una reja en la parte superior. Las ventanas tienen figuras talladas en madera, están rematadas por un dintel plano y una cornisa que sobresale varios centímetros.
El acceso principal está enmarcado por pilastras y por una cornisa que separa el primer y segundo piso de la torre, en donde las pilastras tienen continuidad hasta el tercer piso. En la fachada principal se pueden observar tres puertas en madera de forma rectangular dentro de un marco adornado por molduras rectangulares dispuestas en la parte superior y en los laterales; además de un balcón individual compuesto por balaustradas. En la fachada posterior y en las laterales se encuentra una puerta de similares características a la implementada en la fachada principal. La cornisa entre el segundo y tercer piso posee molduras pequeñas dispuestas de manera vertical (ver figura 4).

La cara frontal del proyecto cuenta con bombillos incrustados, el cuarto y quinto piso se observan como una unidad, ya que su forma geométrica con muros inclinados es realzada por los cuatro óculos dispuestos en cada una de sus fachadas (ver figura 5).

En el sexto piso se encuentra un reloj que es visible desde el exterior. La Torre remata en una cúpula octogonal apoyada sobre una cornisa, cuya estructura interior está compuesta por vigas de madera y un pararrayos sobre una base cuadrada (ver figura 6).

Con base al Manual para Inventario de Bienes Culturales Muebles del Ministerio de Cultura (2005) y lo establecido por el Decreto 763 del 10 de marzo del 2009, se definieron los criterios de valoración del BIC Torre del reloj, teniendo en cuenta cada una de las especificaciones que se exponen a continuación.

A partir de lo descrito anteriormente, se referencia el análisis cualitativo y la valoración cuantitativa obtenida a partir del estudio de este BIC, en ellas se condensan los argumentos de valoración obtenidos a través del trabajo de campo, las entrevistas y el soporte documental realizados en esta investigación; así como el resultado del promedio de valoración ponderado para cada criterio y valor, según las especificaciones descritas en las tablas 1, 2, 3, 4, 5 y 6 del presente documento.

El BIC Torre del reloj, construido en 1910, presentó un uso residencial hasta 1917; fecha en la que se convirtió en la primera sede de la «Compañía Eléctrica del Norte SA» en la ciudad (Ministerio de Cultura, 2003). En 1930, el gerente de la Compañía decidió construir una torre de seis pisos en el inmueble. Esta torre fue adornada con bombillos de colores que representan la bandera nacional y con un reloj que tocaba las notas del himno nacional los domingos, los días de fiestas patrias y el 31 de diciembre al mediodía y a las seis de la tarde. En 1960 fue establecido como equipamiento cultural convirtiéndose en la sede de las primeras expresiones culturales, que demarcaron la representación de una época fructífera en la cultura de la región nortesantandereana según mencionó Maria Yolanda Suarez Plata.
Los resultados obtenidos a partir de la ponderación del Criterio de Antigüedad (C1), a partir del estudio de sus cuatro características, determinaron que este BIC presentó su máximo nivel de puntuación en las características: 1) AN3, evidenciando su permanencia en el tiempo, hecho que lo constituye como un documento histórico, único e irrepetible que debe de ser preservado (materiales, técnicas y modos de vida) y 2) AN4, porque existe relación entre el criterio formal y el de representatividad cultural (tabla 3). Lo anterior estableció un promedio de valoración «Alto» para este criterio igual a 4.0 (tabla 4).

Paso 2: cada criterio presenta una valoración definida por la sumatoria de la puntuación obtenida en el paso 1, dividida entre el número de características presentes en cada criterio (C)* a través de la cual se obtiene el Valor por Criterio (PVC).
Paso 3: el Valor de Cumplimiento (VCTC)** a los criterios por parte del bien inmueble (BIC) se encuentra definido a partir de los siguiente rangos de valoración: 0-50, siendo el nivel bajo: ≤ 25; nivel medio: > 25-39.99; y nivel alto: ≥ 40. Lo anterior en concordancia a los resultados obtenidos en el proceso diagnóstico y análisis realizado para cada criterio en el BIC y de la certificación de la información presentada a nivel histórico y patrimonial.
Andrés B. Fernández Gallo, gerente de la empresa «Compañía Eléctrica del Norte SA», en 1930 —luego de realizar un viaje a Europa— propuso realizar obras de remodelación en el inmueble, con la finalidad de adaptarlo a su nuevo uso como compañía eléctrica permitiendo el levantamiento de una torre de seis pisos, para lo que contrató a José Crisanto Ramírez, quien era un maestro muy solicitado en el campo de la construcción y cuyas actividades laborales poseían respeto y confiabilidad para la construcción de la Torre. El estilo de sus construcciones se caracterizaba por tener dos o más pisos, doble altura, uso de ornamentos, molduras, balaustradas en forma de balconcillo, cornisas y frontis decorados, puertas rectangulares y ventanas de grandes dimensiones. Este maestro fue el encargado de la construcción en 1919 de un pedestal y una columna de 13 metros de altura con un hermoso capitel de estilo corintio, ubicada en el centro de la Plaza Victoria o parque Colón con ocasión del centenario de la batalla de Boyacá (Cámara de Comercio de Cúcuta, 2000).
Maria Yolanda Suarez Plata recuerda que José Crisanto Ramírez fue el encargado de la construcción de proyectos como: el antiguo edificio del Hotel Europa, el viejo edificio donde funcionaba la Cervecería Santander de Cúcuta, el colegio Calasanz, la Universidad Francisco de Paula Santander (primera etapa), la residencia de don José Antonio Hernández frente al parque Mercedes Abrego, la residencia de don Mario García Herreros y la residencia de la familia Vélez; entre otras.
Por otra parte, se debe considerar en este criterio a Eduardo Cote Lamus y a Jorge Gaitán Durán como precursores de la cultura en el Departamento, quienes realizaron iniciativas destinadas a fortalecer el frente cultural, convencidos de su necesidad y de la importancia de su consolidación, quienes además hicieron parte del Ateneo del Norte, grupo de intelectuales que promovía la lectura, la creación artística en diferentes ámbitos y que plantearon al gobierno departamental la creación de la casa de la cultura en el BIC objeto de estudio. Es así como en 1960, mediante Ordenanza No. 47 del 28 de noviembre, se creó la Escuela de Arte Dramático, la Escuela de pintura de Cúcuta y el salón de Música de Ocaña (Mantilla y Suárez, 1981).
El Criterio de Autoría (C2), dentro de sus cinco características, estableció su máximo nivel de puntuación relacionado a: 1) AU2, que indicó que el autor es representativo para la historia de la construcción y la arquitectura del BIC, y que ha dejado testimonio de su producción asociada a un estilo o época 2) AU3, señaló la participación de actores representativos (benefactores, propietarios), y finalmente 3) AU4, porque el Bien presentó una propuesta arquitectónica bajo la influencia del Estilo Republicano (tabla 3). Lo anterior, definió que el promedio de valoración para este criterio es de 4.4 establecido como «Nivel Alto» (tabla 4).
La arquitecta María Teresa Vela Vicini, en el año 2019, resaltó en la entrevista realizada para esta investigación que el inmueble original fue construido en la primera mitad del siglo XX, durante el período histórico Republicano. En cuanto a los elementos y técnicas constructivas tradicionales de la época resaltó la implementación de la tapia apisonada, el bahareque, la teja de barro, la madera rolliza y la caña. Asimismo, aseguró que el piso original era en ladrillo cuartón elaborado artesanalmente, y que la cubierta fue construida con pares en vara rolliza, tirantes labrados en madera y teja de barro.
La Torre del reloj utilizó ladrillo tolete con repello de cal para su primer y segundo piso. En el centro de la fachada se levantaron muros que permitieron la construcción de la torre hasta el tercer piso en ladrillo tolete con cal y arenilla. El cuarto y quinto piso se construyeron con madera y caña, y el sexto piso con ladrillo. Los entrepisos fueron construidos con tablones de madera (vigas y entablado) y en el quinto piso se ubicó un tensor metálico original. La fachada fue ornamentada con cornisas, pilastras, pináculos y molduras encuadrando las ventanas, así como por las balaustradas y dinteles en el primer, segundo y tercer piso. La cubierta de la cúpula fue construida en madera y caña.
Es de resaltar que la construcción de esta torre significó un adelanto tecnológico para la construcción en la ciudad de Cúcuta, al tener en cuenta el número de pisos y el sistema constructivo utilizado para la época señalada. El criterio de Constitución del Bien (C3), a partir de sus dos características, registró su máximo nivel de puntuación en la CB1, por la identificación de materiales técnicos y modernos (tabla 3). El promedio de valoración por criterio obtuvo un resultado de 4.5 que corresponde a un «Nivel Alto» (tabla 4).
El inmueble se implanta en un lote medianero y su predio original es en forma de L. Su origen se remonta a una construcción de estilo Republicano representado en los ornamentos dispuestos sobre todo en la fachada de la torre: las pilastras, su frontis decorado con molduras de yeso, los pináculos, la carpintería en madera que enmarca los arcos de medio punto y los marcos con molduras rectangulares, los balaustres, los ornamentos geométricos debajo de cada una de las cornisas, los óculos dispuestos a lo largo de la fachada, junto con las cuatro columnas griegas, refuerzan este lenguaje arquitectónico Republicano. Se resalta para el criterio de la forma que este inmueble adquiere importancia tras la construcción de la torre debido a que su desarrollo impactó el perfil urbano del centro de la ciudad.
El criterio de Forma (C4) obtuvo un promedio de valoración de 5.0, configurando la máxima puntuación en sus dos características evaluadas. 1) F1, que permitió desde su origen histórico reconocer sus elementos compositivos y ornamentales, 2) F2, que identificó la corriente artística o estilística valorando su acertada interpretación, utilización y sentido estético (tabla 3). Por lo tanto, el promedio de valoración para este criterio correspondió a 5.0 «Nivel muy Alto» (tabla 4).
Con respecto a la situación física del inmueble frente al estado del tiempo, se pudo establecer que el inmueble original de 1910 sufrió un cambio de uso del suelo, de residencial a institucional, siendo inaugurado oficialmente en 1962 como Casa de la Cultura (Mantilla y Suárez, 1981), posteriormente declarado por el Ministerio de Cultura «Monumento Nacional» en 1982 y «Bien de Interés Cultural» en el 2003.
Pese al paso del tiempo, el inmueble ha presentado un buen estado de preservación, gracias a su importancia histórica, y a las seis intervenciones que en él se han realizado; propendiendo por la conservación, consolidación y reposición parcial o total de las características de su diseño original, respetando su proporción geométrica y tecnología constructiva. Además, en el inmueble se han ejecutado obras de remodelación (1930), obras de acondicionamiento y ampliación (1962), obras de remodelación (1972), obras de restauración y reconstrucción (1992) obras de mantenimiento y reconstrucción (2004) y obras de adecuación, mejoramiento y mantenimiento (2015) (Chacón et al., 1996; Unión Temporal Arkitorre, 2016).
La Torre del reloj en la actualidad conserva toda la estructura y los elementos propios de su estilo Republicano como las pilastras, las balaustradas y molduras, las cornisas, pináculos, óculos y su cúpula. Internamente, el auditorio Eduardo Cote Lamus cuenta con condiciones adecuadas de acústica, y el patio interior permite la realización de actividades culturales. Su fachada tiene un proceso de mantenimiento constante a cargo de la Secretaría de Cultura Departamental, que en la actualidad ocupa el inmueble y reúne las expresiones culturales de la región.
El Criterio de Estado de Conservación (C5), dentro de sus cinco características evaluadas, presentó su máximo nivel de puntuación en: 1) S1, por evidenciar la situación física del bien en el paso del tiempo, 2) S2, que evidenció las condiciones de uso, cuidado y mantenimiento del BIC y 3) S3, que relacionó su constitución original y sus transformaciones o intervenciones posteriores (tabla 3). De esta manera, el promedio de valoración para este criterio corresponde a 4.8 «Nivel Alto».
De acuerdo con lo expuesto por Maria Teresa Vela Vicini, el inmueble fue construido con materiales propios de la época, que no implicaron el deterioro del medio ambiente. En el trabajo de campo realizado para esta investigación se evidenció que los espacios internos de la construcción son de doble altura; hecho que le otorga amplitud interna, sus dos patios interiores, ventanas y puertas; promueven la ventilación y la iluminación natural de los primeros pisos, mientras que los óculos dispuestos en el segundo cuerpo de la Torre iluminan el cuarto y quinto piso.
El Criterio de Contexto Medio Ambiental (C6), con respecto a sus cuatro características evaluadas, presentó su máximo nivel de puntuación en: 1) MA2, que evidenció la importancia de su técnica constructiva y sus materiales, funcionalidad del diseño, alturas, ventilación, luz, espacialidad y 2) MA3, que definió que su construcción no implicó el deterioro del medio ambiente, y que su utilización contribuyó a la integración del paisaje (tabla 3). De esta manera, el promedio de valoración para este criterio es de 4.75 establecido como «Nivel Alto» (tabla 4).
El inmueble sobresale de todas las construcciones del sector y rompe la monotonía del perfil urbano del lugar. Es un hito que se destaca y se muestra imponente frente a las construcciones aledañas que en su mayoría son de uno o dos niveles. Para Maria Teresa Vela Vicini el bien cuenta con una acertada inserción en el contexto urbano, ya que está ubicado en el Sector de Interés Cultural (SIC) y sirve de articulación con los otros BIC que hacen parte del polígono del sector céntrico de Cúcuta, tales como: el ancianato Rudesindo Soto y la antigua Escuela de Artes y Oficios (hoy Colegio Normal María Auxiliadora), la casa natal de Eduardo Cote Lamus, el parque Victoria o Colón, la Biblioteca Pública Julio Pérez Ferrero, la Gobernación del Departamento, el antiguo Club Colsag y la Asociación de Artesanos y Gremios Unidos, entre otros; todos desarrollados bajo el estilo de la arquitectura Republicana (ver figura 8).

El Criterio contexto urbano/ contexto físico (C7) presentó su máximo nivel de puntuación en tres de sus cuatro características: 1) CU1, que identificó su representatividad como unidad «individual» dentro de un sector urbano consolidado, gracias a la proyección de su valor cultural 2) CU3, que determinó su acertada inserción en el contexto urbano y 3) CU4, que evidenció su relación con su lugar de ubicación y su contribución al desarrollo de acuerdo con su uso y función (tabla 3). El promedio de valoración para este criterio corresponde a 4.75 establecido como «Nivel Alto» (tabla 4).
En 1960 se creó la Casa de la Cultura y desde ese momento el inmueble ha estado vinculado a actividades culturales como exposiciones fotográficas, conferencias, presentaciones musicales, obras de teatro y de títeres; y ha sido sede de escuelas de arte dramático y de artes plásticas: escultura, pintura, cerámica y dibujo; creando lazos de apropiación social y siendo una referencia cultural en la memoria colectiva del ciudadano de Cúcuta (Mantilla y Suárez, 1981).
El criterio sociocultural/ representatividad y contextualización sociocultural (C8), con respecto a sus cuatro características, presentó su máximo nivel puntuación en: 1) CSC2, referente a sus lazos colectivos asociados a la memoria, significado y apropiación, que fundamentan su valor simbólico 2) CSC3, debido a su vinculación con acontecimientos, eventos o actividades propias de la comunidad y su gran importancia dentro de la vida social y cultural de la ciudad, y 3) CSC4, teniendo en cuenta que la sociedad le ha otorgado un significado que redunda en su apropiación (tabla 3). El promedio de valoración para este criterio obtuvo un puntaje de 4.75 correspondiente al «Nivel Alto» (tabla 4).
El bien cuenta con un reloj fabricado en Torino-Italia por la familia Miroglio, en sus campanas está inscrito: «Premiata fonteria de Poli Victorio Veneto Italia. Compañía Eléctrica del Norte -Cúcuta. MCMXXX». Este reloj hace parte fundamental de su identidad, ya que los domingos, días de fiestas patrias y el 31 de diciembre al mediodía y a las seis de la tarde, el reloj tocaba las notas del himno nacional, hecho que se instauró en la memoria y fortaleció el sentido de apropiación frente a lo que representa el inmueble.
La Torre del reloj se ha caracterizado por ser un hito de la ciudad, epicentro de múltiples actividades de formación y cultura, hecho por el cual su apropiación y reconocimiento por parte de la comunidad ha sido permanente. En ella regularmente se presentan foros, conferencias, recitales, danzas, conciertos, exposiciones artísticas-culturales, espacios de discusión, actividades de gobierno y de formación artística, a través de las cuales la comunidad lo apropia permanente.
El Criterio de apropiación/ representatividad y contextualización sociocultural (C9) registró el máximo nivel de puntuación en su característica: 1) AP1, que evidenció la adopción del bien por parte de la comunidad, con respecto a su significado y memoria (tabla 3). El promedio de valoración para este criterio corresponde a 5.0 «Muy Alto» (tabla 4).
A partir del cincuentenario de la fundación del departamento de Norte de Santander se gestó la idea de crear una casa de la cultura para la ciudad de Cúcuta. Esto al tener en cuenta que la ciudad no contaba con espacios adecuados para la enseñanza artística y el encuentro cultural. La creación del Ateneo del Norte de la mano de la Casa de la Cultura de Cúcuta, del Instituto de Cultura del Norte de Santander, de la Escuela de Bellas Artes y el grupo de teatro consolidó el escenario cultural que fomentó diversas manifestaciones como: salones de arte, concursos de poesía y cuentos; entro otros, que contaron con la participación de reconocidos pintores y escultores colombianos (Mantilla y Suárez, 1981).
A partir de los acontecimientos, eventos y actividades que se desarrollaron en el BIC generando lazos con la comunidad, Eduardo Cote Lamus y Jorge Gaitán Durán, a través de la revista Mito, visibilizaron las grandes discusiones de la época y sirvieron de palestra para un puente hacia la universalidad en momentos de oscuridad política y de aislamiento cultural en Colombia (Jurado, 2005, p. 7). Tras la muerte de Gaitán Durán en 1964, el gobernador del departamento bautizó en su honor la Casa de la Cultura con su nombre.
El criterio significado y memoria / representatividad y contextualización socio cultural (C10), de acuerdo a sus tres características evaluadas, presentó su máximo nivel de puntuación en: 1) SM1, a partir de la referencia a imágenes del pasado de la comunidad, que vincula al BIC como parte esencial de su identidad y cultura, 2) SM2, que evidenció lazos emocionales de la sociedad hacia el BIC (tabla 3). El promedio de valoración para este criterio obtuvo un puntaje de 4.6 «Nivel Alto» (tabla 4).
El Valor de Cumplimento Total del BIC «Torre del reloj» a partir del rango de valoración establecido en la tabla 4: (paso 3: de 0 a 50) es de 46.5, considerado como «Alto» por ser mayor que 40.

La información documentada a nivel histórico representa un insumo importante para la construcción de la historia y el patrimonio nacional, regional y local, ya que la información documentada contribuye a los procesos de producción científica, provistos de fuentes primarias que soportan su valor histórico. Lo anterior cobra relevancia al tener en cuenta su declaratoria como Monumento Nacional (1982) y Bien de Interés Cultural (2003). En este sentido, con respecto a los dos atributos del Valor Histórico (V1), el H1, presentó su máximo nivel de puntuación al evidenciar información documental, que contribuyó para la construcción de la historia regional o local, así como al conocimiento científico del BIC (tabla 5). El promedio establecido para este valor obtuvo un puntaje de 3.5 «Nivel Medio» en la escala de puntuación en relación con la metodología establecida (tabla 6).
Los atributos de diseño propios del bien y las características del estilo Republicano son evidenciables y explícitos. Se resalta que la Torre del reloj presenta adelantos tecnológicos en materia de diseño, construcción, técnica constructiva, función y además, que su emplazamiento es representativo al ubicarse en el Sector de Interés Cultural (SIC) junto a otros Bienes de Conservación e Interés Cultural. En cuanto a la ponderación del Valor Estético (V2) sus dos atributos obtuvieron la máxima puntuación, en respuesta a: 1) E1, claridad estética o de estilo, y 2) E2, La idea inventiva resuelta evidencia la técnica y el uso en cuanto su función y tiempo (tabla 5). El promedio establecido para este valor obtuvo un puntaje de 5.0 «Nivel Muy Alto» (tabla 6).
El Bien es considerado un hito representativo de la ciudad que promueve la identificación y la cohesión social. Su función está enmarcada en el ámbito sociocultural y su recordación está asociada a las expresiones culturales que alberga el significado de su reloj, su iluminación y el carácter de su imagen, con respecto a la implantación urbana, la posicionan dentro de la memoria colectiva y el patrimonio tangible e intangible de la ciudad.
El Valor Simbólico (V3) a partir de los tres atributos evaluados, obtuvo su máximo nivel de puntuación establecido en 5.0 en los atributos: 1) S2, como respuesta a su fuerte poder psicológico de identificación y de cohesión social, y 2). S3, bajo la consideración que mantiene y renueva su carácter simbólico, por medio de las aspiraciones, deseos, ideales construidos e interiorizados y la vinculación del tiempo y de espacios de memoria (tabla 5). El promedio establecido para este valor obtuvo un puntaje de 4.6 «Nivel Alto» (tabla 6).
El Total de cumplimiento de los tres valores del BIC «Torre del reloj» de acuerdo a los atributos establecidos para su ponderación, se estableció en 13.1 «Alto»; de acuerdo al rango de (0) a (15) definido en el paso 3 (Tabla 6), por ser mayor o igual que ≥ 8.

Paso 1: la escala de valoración formulada en la presente matriz se realizó teniendo en cuenta los valores (V)* definidos en el Manual de Inventario de Bienes Culturales del Ministerio de Cultura (2005) y en el Decreto 763 de la Presidencia de la República (2009). La estimación para cada una de las características corresponde al siguiente nivel de puntuación de uno (1) a cinco (5), siendo: uno (1) - nivel de apreciación nivel bajo; dos (2) - nivel de apreciación bajo; tres (3) - nivel de apreciación medio; cuatro (4) nivel de apreciación alto; y cinco (5) - nivel de apreciación muy alto.
Paso 2: cada valor presenta una puntuacuón definida por la sumatoria de los resultados obtenidos en el paso 1, dividida entre el número de atributos (***) presentes en cada valor (V)* a través de la cual se obtiene el Promedio del Valor (PdV).
Paso 3: el Cumplimiento Total del Valor (CTV)**** a los criterios por parte del bien inmueble (BIC) se encuentra definido a partir de los siguiente rangos de valoración: un rango de 0 a 15, siendo el nivel bajo: ≤ 4.9; nivel medio: > 5-7.9; y nivel alto: ≥ 8. Lo anterior en concordancia a los resultados obtenidos en el proceso diagnóstico y análisis realizado para cada criterio en el BIC y de la certificación de la información presentada a nivel histórico y patrimonial.
A partir de los resultados obtenidos en este proceso de investigación se reafirma la relación entre el patrimonio, la arquitectura, la historia y el ámbito sociocultural. Esto al tener en cuenta que el patrimonio hace parte del interés colectivo y promueve la identidad de la sociedad, por medio de la exaltación de la riqueza cultural material o inmaterial. La arquitectura y la historia asociadas al patrimonio material (Bienes Inmuebles) se configuran como elementos que promueven la recuperación y preservación de la memoria urbana, histórica, social, cultural y territorial a través del tiempo.
Esta investigación permitió la significación y valoración de la Torre de Reloj como Bien de Interés Cultural de orden nacional contribuyendo al reconocimiento del patrimonio en la ciudad, promoviendo la conservación y preservación del Bien desde su ámbito material e inmaterial, así mismo, logrando que su significado trascienda y fortalezca la memoria, el arraigo y los imaginarios socioculturales de los habitantes de la ciudad.
El marco metodológico permitió aportar insumos para la valoración del registro histórico del Bien, el cual favorece la actualización de su información con respecto a la normativa legal vigente dictaminada por el Ministerio de Cultura de Colombia y la Presidencia de la República, a través del Decreto 763 del 10 de marzo del 2009, configurándose como un aporte significativo que debe ser socializado y difundido a la comunidad en general, para visibilizar la historia de vida del Bien y las características de la ciudad a través de la historia, al fortalecer el sentido de pertenencia y el arraigo de la sociedad.
Este bien hace parte del patrimonio de la región norte santandereana, constituye un interés colectivo y promueve la identidad de la sociedad cucuteña, puesto que su carácter material e inmaterial aporta riqueza cultural. A su vez, posee características físicas y formales enmarcadas en los diez criterios de valoración: constitución del Bien, forma, antigüedad, estado de conservación, autoría, criterio medioambiental, criterio de contexto urbano, criterio de contexto sociocultural, memoria y apropiación. Estos criterios que se complementan a través de los valores histórico, estético y simbólico, que describen los atributos singulares y únicos que van en sincronía con la esencia de la arquitectura Republicana en la ciudad de San José de Cúcuta. Lo anterior cobra relevancia al recordar que la valoración es el apartado más importante de un inventario, ya que a partir de ella es posible destacar la relevancia y la significación patrimonial y cultural que tiene el inmueble dentro del ámbito local y nacional.
Como hallazgos relevantes se destaca que la Torre de Reloj tiene un valor de cumplimiento total de acuerdo a lo establecido por el Manual de Inventario de Bienes Inmuebles (2005) y el Decreto 763 del 2009 correspondiente a 46.5, determinado como «Alto» al estar ubicado en el rango de valoración ≥ 40. Dentro de esta valoración, los criterios que obtuvieron el máximo promedio de puntuación (5.0) corresponden a: el criterio de la forma (C4) y el criterio de apropiación/ representatividad y contextualización sociocultural (C9). De la misma manera, se resalta que el criterio de estado de conservación ha favorecido los criterios de la forma y de la apropiación, toda vez que ha salvaguardado la composición material y física del BIC; así como su relación con el contexto urbano y la comunidad. Asimismo, la ponderación de cumplimiento total de los tres valores señalados en la investigación correspondió a 13.1, definido como «Alto» ≥8 de acuerdo al rango de valoración de 0 a 15. De los tres valores estudiados, el valor estético (V2) obtuvo la máxima puntuación (5.0).
Desde el cumplimiento de su objetivo general, esta investigación valoró la declaración de la Torre del reloj como BIC a partir de la ponderación de sus criterios y valores. Lo anterior estableció que este BIC tiene un grado de significación «Alto» representado en la vida social y cultural de la población de San José de Cúcuta, al tener en cuenta que la adopción de la Torre por parte de la comunidad ha permitido su preservación, reconocimiento y apropiación a través del tiempo; fortaleciendo el significado de la memoria y la cohesión territorial.
La presente investigación se deriva del proyecto denominado «Diagnóstico y caracterización de los bienes de interés patrimonial y su importancia en el desarrollo del territorio. El caso de San José de Cúcuta» con código PI-FEDAH-013-2019 y el Macro proyecto Planeación estratégica fortalecimiento institucional desde las ciencias humanas, sociales y las artes con código institucional 33.000 PIF-02, realizado entre el grupo de investigación Taller de arquitectura y gestión del territorio TAR_GET de la Universidad Francisco de Paula Santander y la Corporación Amigos del Territorio CORPATRIMONIO, a través de las líneas de investigación «Patrimonio e itinerarios urbanos» y «Planeación estratégica y fortalecimiento institucional».











Paso 2: cada criterio presenta una valoración definida por la sumatoria de la puntuación obtenida en el paso 1, dividida entre el número de características presentes en cada criterio (C)* a través de la cual se obtiene el Valor por Criterio (PVC).
Paso 3: el Valor de Cumplimiento (VCTC)** a los criterios por parte del bien inmueble (BIC) se encuentra definido a partir de los siguiente rangos de valoración: 0-50, siendo el nivel bajo: ≤ 25; nivel medio: > 25-39.99; y nivel alto: ≥ 40. Lo anterior en concordancia a los resultados obtenidos en el proceso diagnóstico y análisis realizado para cada criterio en el BIC y de la certificación de la información presentada a nivel histórico y patrimonial.



Paso 1: la escala de valoración formulada en la presente matriz se realizó teniendo en cuenta los valores (V)* definidos en el Manual de Inventario de Bienes Culturales del Ministerio de Cultura (2005) y en el Decreto 763 de la Presidencia de la República (2009). La estimación para cada una de las características corresponde al siguiente nivel de puntuación de uno (1) a cinco (5), siendo: uno (1) - nivel de apreciación nivel bajo; dos (2) - nivel de apreciación bajo; tres (3) - nivel de apreciación medio; cuatro (4) nivel de apreciación alto; y cinco (5) - nivel de apreciación muy alto.
Paso 2: cada valor presenta una puntuacuón definida por la sumatoria de los resultados obtenidos en el paso 1, dividida entre el número de atributos (***) presentes en cada valor (V)* a través de la cual se obtiene el Promedio del Valor (PdV).
Paso 3: el Cumplimiento Total del Valor (CTV)**** a los criterios por parte del bien inmueble (BIC) se encuentra definido a partir de los siguiente rangos de valoración: un rango de 0 a 15, siendo el nivel bajo: ≤ 4.9; nivel medio: > 5-7.9; y nivel alto: ≥ 8. Lo anterior en concordancia a los resultados obtenidos en el proceso diagnóstico y análisis realizado para cada criterio en el BIC y de la certificación de la información presentada a nivel histórico y patrimonial.