DEL REINO DE ESTE MUNDO
Refuncionalización de edificaciones históricas en las áreas centrales de La Habana y Quito
Refunctionalization of Historic Buildings in the Central Areas of Havana and Quito
Refuncionalización de edificaciones históricas en las áreas centrales de La Habana y Quito
Arquitectura y Urbanismo, vol. XXXIX, núm. 3, pp. 92-99, 2018
Instituto Superior Politécnico José Antonio Echeverría
Recepción: 10 Abril 2018
Aprobación: 20 Agosto 2018
RESUMEN: La conservación de las áreas centrales, que concentran edificaciones históricas con valores culturales, resulta necesaria para la preservación de la integridad e identidad de las ciudades. Pero esto no solo implica la rehabilitación física, sino también la introducción de nuevas funciones y actividades compatibles con los recursos y exigencias actuales de cada contexto. El presente trabajo expone los criterios seguidos para la refuncionalización de cuatro inmuebles históricos en las ciudades de La Habana y Quito, teniendo en cuenta las tipologías arquitectónicas, las funciones, las tecnologías y los materiales. Se aborda el tipo de intervención, las estrategias proyectuales y las formas de articulaciones realizadas, lo que lleva a definir el grado de alteración. Este análisis permite tener una visión global de la efectividad de las intervenciones realizadas.
Palabras Clave: Conservación de áreas centrales, edificaciones históricas, estrategia proyectual, intervención, refuncionalización.
ABSTRACT: The conservation of the central areas, which concentrate historical buildings with cultural values, is necessary in order to preserve the integrity and identity of the cities. But it does not only involves physical rehabilitation, but also the introduction of new functionalities and activities compatible with the resources and current demands of each context. The present work exposes the criteria followed for the refunctionalization of four historical buildings in the cities of Havana and Quito, taking into account the architectural typologies, functions, technologies and materials. It addresses the type of intervention, the project strategies and the forms of articulations performed. This analysis allows a global view of the effectiveness of the interventions carried out.
Keywords: Conservation of central areas, historical buildings, project strategy, intervention, refunctionalization.
Introducción
Muchas edificaciones duran más que la generación que las concibió y por tanto, las necesidades que las gestaron se renuevan constantemente, lo que conduce a que un mismo edificio pueda llegar a tener múltiples usos a lo largo del tiempo. Del siglo XIX a la fecha ese proceso se ha acelerado muchísimo, por lo que cada vez es más importante que los cambios de uso de los inmuebles tengan un respaldo teórico, y no sean acciones fortuitas que puedan dañar sus valores culturales.
El crecimiento de las ciudades; las nuevas necesidades socio-económicas y espaciales; la actualización de las regulaciones urbanas para el uso del suelo; las aspiraciones psicosociales y culturales de la población; las transformaciones en las familias; y el desarrollo tecnológico figuran como las principales causas que conducen a la refuncionalización de los inmuebles históricos [1].
Partiendo de tales premisas, en este artículo se analizan cuatro proyectos ejecutados por los autores en su quehacer profesional; uno como especialista del grupo Arquitectos de la Comunidad1 de La Habana, y el otro como arquitecto independiente de la ciudad de Quito. Se trata de obras que fueron originalmente concebidas para viviendas, pero que a lo largo del tiempo han tenido diferentes funciones como respuesta a la demanda y el desarrollo de las zonas donde se ubican.
Para este estudio se analizaron: las tipologías arquitectónicas; las diferentes funciones a lo largo del tiempo; las tecnologías y los materiales empleados; así como las estrategias proyectuales y las formas de articulaciones practicadas. A partir de lo anterior, se hace un análisis de los criterios seguidos como parte de los cambios de uso, y el grado de alteración de las edificaciones intervenidas.
La aceptación que han tenido estas acciones de conservación por parte de sus propietarios, así como por la población, quienes reconocen que las nuevas funciones, y el rescate de las edificaciones estudiadas contribuyen al desarrollo y mejoramiento de la imagen en las zonas donde se insertan, sirvieron como motivación para desarrollar el estudio que se presenta.
Intervenciones de refuncionalización
Las áreas centrales de la ciudad2 se componen de obras arquitectónicas muy valiosas que son hitos en el territorio, y por una gran masa de inmuebles que constituyen un fondo mucho mayor en cantidad [1], pero menos significativo si se analiza por separado, aunque de un gran valor como parte de la totalidad. Precisamente por no ser las inequívocamente más valiosas, en ocasiones se actúa sobre ellas sin reconocer ese valor que tienen en el conjunto, y se transforman elementos esenciales que las identifican, lo que afecta la imagen del todo [2].
La disyuntiva entre los nuevos usos del suelo en la adecuación de los centros históricos, y la conservación de los valores por quienes los habitan [3], ha sido tema de debates y reflexiones. Al respecto, Julieta Mostarda expresa: “La refuncionalización implica un rol de cambio, de nueva función, de necesidades actuales, de potencialidades futuras versus las tareas de conservación o restauración, tendientes a mantener o retornar el estado pasado de una obra” [4]. Esto explica los diferentes criterios internacionales que describen la necesidad de la renovación de las zonas históricas, donde se manifiesta la importancia de limitar el crecimiento horizontal de la ciudad, mejorar las condiciones del hábitat, y resolver los conflictos de la estructura urbana, aprovechando esta como forma indispensable del mejoramiento de las necesidades y condiciones de vida de los residentes [5] [6].
Partiendo de los argumentos anteriores cabe destacar que los inmuebles seleccionados se localizan en contextos ampliamente reconocidos y a pesar de no constituir obras relevantes, tienen valor en el conjunto donde se ubican [7]. Estas experiencias pueden ser replicadas en edificaciones similares, de ahí lo oportuno de su divulgación.
Edificios “San Lázaro 115 y San Lázaro 319”, La Habana, Cuba
Los dos ejemplos habaneros están ubicados en la Calle San Lázaro, que es un eje vial de gran valor cultural para La Habana. Comprende la segunda línea de fachada detrás del malecón3, en el primer tramo que une al Paseo del Prado con el Parque Maceo en el municipio Centro Habana (Figura 1). Fueron construidas en la primera década del siglo XX con muros de ladrillos, cubiertas y entrepisos de viga y losa por tabla4, con una profusa decoración propia del eclecticismo.

La refuncionalización de las obras (Figura 2) (Figura 3), destinadas desde sus inicios a residencia, se realizaron en el año 2014, para transformar el edificio ubicado en San Lázaro 115 en un hostal, y el de San Lázaro 319 en un restaurante. Aunque estas se encontraban en estado técnico constructivo malo, se respetó la materia como soporte de las propiedades intrínsecas de los inmuebles.


Al momento de realizar los proyectos, hubo la necesidad de plantearse una postura conservadora, por disposiciones legales, frente a las expectativas de los clientes. Debido a esto, se aprovecharon las estructuras originales de las edificaciones en más del 80 %, respondiendo así a los criterios de eficiencia y estética planteados en el diseño por los proyectistas [8]. Contrariamente, en muchas de las edificaciones intervenidas en el propio municipio, se han sustituido más del 40 % de las estructuras y materiales a causa del avanzado deterioro del fondo habitacional. De igual manera, se trabajó en la incorporación de nuevos elementos sumamente necesarios (baños, escaleras de acceso a las azoteas y cubiertas), que no afectan los valores de integridad de las edificaciones, y brindan la posibilidad de despiezarlos y reutilizarlos.
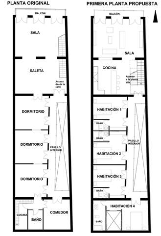
Los proyectos contemplan la reorganización funcional y espacial de los edificios [Figura 4], no obstante se conservaron la tipología y el estilo original de las edificaciones [9]. Esta experiencia difiere de múltiples intervenciones ejecutadas anteriormente, donde los clientes sin autorización legal, produjeron acciones constructivas que no contribuyen a la conservación de los inmuebles.

La intervención de mayor envergadura desde el punto de vista constructivo se realizó en San Lázaro 115, al construir nuevas cubiertas en la primera y segunda crujías5 con la utilización de un sistema constructivo similar al original. La alternativa de aprovechar las áreas de las azoteas en las crujías mencionadas, así como añadir elementos contemporáneos con el uso de nuevos materiales, no fue posible debido a las exigencias de las regulaciones urbanísticas del territorio [10].
Con la madera extraída del despiece de las cubiertas, se construyó una escalera de acceso a la ampliación en la azotea [Figura 5], ubicada en una posición apropiada para mejorar el acceso a las habitaciones, sin tener que reforzar la estructura del entrepiso.

A partir de la premisa de mantener el estilo original, es destacable el rescate de los ornamentos, (Figura 6) y la reconstrucción de las puertas y ventanas en la fachada principal. No se observa este enfoque en edificaciones intervenidas en la misma zona, sin el debido asesoramiento técnico, donde se han añadido nuevas decoraciones “kitsch” en las fachadas.

En los interiores se mantuvieron los muros revestidos con morteros mejorados a base de cal, así como pisos de losetas hidráulicas y mosaicos de diferentes colores. En el inmueble con el número 115, se decidió el uso de muebles y lámparas tradicionales en un 70 % de los espacios, mientras que en San Lázaro 319 el enfoque fue diferente, al incorporarse un nuevo mobiliario acorde a las funciones del restaurante, [11] con un ambiente temático referido al tabaco cubano.
Particularmente interesante en San Lázaro 115, fue el logro de la continuidad de los pasillos que bordean el patio interior, manteniendo así la circulación hasta las habitaciones (Figura 7). Por otra parte, en San Lázaro 319 se rescataron las barandas del balcón corrido, con el propósito de lograr similitudes con las edificaciones contiguas (Figura 8 y Figura 9).



Las obras intervenidas presentan flexibilidad y adaptabilidad a futuros cambios, y en ellas se manifiesta un bajo grado de alteración con respecto a los edificios originales. Es de destacar que no han tenido otras modificaciones desde su intervención.
Edificios “La Ronda 762 y 10 de Agosto N 14-42”, Quito, Ecuador.
Los inmuebles que se presentan pertenecen al área central de la Ciudad de Quito, y se localizan en la Calle La Ronda con el número 762 del Centro Histórico, y en la Avenida 10 de Agosto N 14-42, en una de las vías principales de acceso al centro desde el norte (Figura 10).

En el primer ejemplo (Figura 11), conocido como “Casa Panzona”, la refuncionalizaciòn se ejecutó en el año 1998. La edificación data de inicios del siglo XIX y su función original fue la de vivienda. A mediados del siglo XX, pasó a ser un hostal, y a finales del propio siglo, se convirtió en un restaurante.

La segunda edificación, construida aproximadamente en la década de 1940, de estilo arquitectónico ecléctico, cuenta con tres plantas y tres accesos independientes, y fue diseñada originalmente para vivienda, con comercio en la planta baja. La refuncionalización fue ejecutada en el año 2017, con el objetivo de transformar su función en almacén de venta al por mayor de artículos musicales. (Figura 12)

Las intervenciones de estas edificaciones, construidas con muros de piedra, tapial y adobe, y cubierta de tejas de barro, se centraron en: mantener las características originales; la consolidación estructural de los elementos tales como entrepisos y cubiertas de madera (Figura 13); la reorganización espacial (Figura 14); y la supresión de añadidos [12]. En relación con la postura asumida, se puede señalar que en el primer caso se incorporaron, además de nuevos materiales en la estructura y en los acabados, otros espacios multifuncionales, en correspondencia con el uso de suelo vigente, logrando así una mejor flexibilidad y adaptabilidad a futuras necesidades. En otras intervenciones realizadas en la zona, se observan actuaciones informales, ante los altos costos de inversión dentro de la coyuntura actual.


Dentro de las transformaciones propuestas, se destaca el uso del vidrio templado transparente en el balcón principal, y también en las ventanas del inmueble N 14-42, como aislante de los ruidos de la calle y como recurso que contribuye a la contemporaneidad de la solución. Sin embargo, la intervención se centró más en los interiores, debido a las restricciones legales para las modificaciones en las fachadas de los edificios. En un caso se pudo lograr autorización para un cambio en la cubierta, con vistas a incorporar nuevos espacios de recreación con visuales hacia la calle y el parque colindante, pero la propuesta no fue aceptada por el cliente, impidiendo la posibilidad de flexibilidad de uso futuro.
En el inmueble de La Ronda no fue posible restituir las barandas de madera que se encontraban en los corredores del patio interior, no obstante se logró construir unas similares a las originales, utilizando otros materiales. También se acometió el reforzamiento estructural a partir de riostras y columnetas6, en paredes con deterioros por humedad y con grietas causadas por los movimientos telúricos en Quito.
Entre las alternativas valoradas se descartó la idea de abrir nuevamente el patio interior original del inmueble de la Avenida 10 de Agosto, para colocar vegetación y lograr una mejor ventilación cruzada e iluminación, debido al cambio de uso solicitado por el cliente, que requería aprovechar al máximo los espacios para el almacén, y generar apertura, continuidad y fluidez del espacio interior. Esta idea sí tuvo resultado positivo en la casa de La Ronda, donde se abrió su patio interior y se colocó vegetación en correspondencia a la temática desarrollada para el diseño interior del restaurante (Figura 15).

La articulación en las intervenciones de estos inmuebles se manifiesta en el uso de materiales contemporáneos, mediante la reinterpretación de los códigos originales. Otro recurso utilizado fue el de ocultar los nuevos elementos, simplificándolos o adaptándolos a los viejos, todo esto dentro del marco de la reglamentación local e internacional vigentes [12]. Por otra parte, puede decirse que la integridad de las dos edificaciones se mantiene, percibiéndose desde el exterior la continuidad con su contexto.
Ambos casos no han sido modificados, siendo el inmueble ubicado en La Ronda, un ejemplo que se replicó a lo largo de toda la calle, como consecuencia de los nuevos usos de suelo, bajo la presión de la demanda privada, en busca de espacios multifuncionales acordes a las exigencias actuales de las áreas centrales.
Conclusiones
Las refuncionalizaciones de los inmuebles analizados demuestran que no por tratarse de obras de menor valor, son menos importantes. Aunque no existe una única respuesta a los problemas, no obstante las estrategias utilizadas muestran algunas pautas de actuación sobre el cambio de uso en las edificaciones históricas.
Si bien queda claro que en las obras estudiadas, no hay una entera similitud, se pueden definir algunas coincidencias en las estrategias de intervención siguientes:
Las refuncionalizaciones parten de las mejoras funcionales y constructivas relacionadas a nuevas necesidades de uso de suelo y del confort interno de las edificaciones.
Se respetan las tipologías arquitectónicas originales y el cumplimiento de las normativas sobre la ética de la conservación.
Los espacios son multifuncionales, flexibles y adaptables a futuros cambios de uso.
Se incorporan nuevos elementos necesarios, sin afectar la integridad.
Se aplican criterios de sostenibilidad, a través del reciclaje de materiales, el uso prolongado de las construcciones existentes, evitando su demolición y reemplazo.
Los nuevos sistemas constructivos utilizados son incorporados como una estructura única que ayudan a la consolidación de los inmuebles.
Las soluciones propician nuevos usos del suelo, según la demanda del mercado socio- económico (turismo, comercio, cultura).
En los cuatro casos se logra un “bajo” grado de alteración (aproximadamente el 20 %), y se evita la expresión exterior de las modificaciones realizadas, para propiciar la integración al contexto donde se ubican las obras, así como la preservación de sus valores arquitectónicos.
Sería necesario el estudio de un número mayor de obras, siguiendo un modelo de análisis comparativo similar al propuesto, lo que permitiría contar con una herramienta útil tanto para el estudio de obras existentes, como para futuros proyectos de intervenciones.
Referencias bibliográficas
[1] Fernández EJ . Utopía y Realidad. La rehabilitación de las ciudades cubanas. La Habana: Félix Varela; 2015.
[2] Rigol I, Rojas Á. Conservación patrimonial: teoría y crítica. La Habana: UH; 2012.
[3] Tello, M. El proyecto de conservación integral del patrimonio inmueble. Modulo Arquitectura CUC. 2013;12(1):99-130. ISSN 0124-6542.
[4] Mostarda J. La refuncionalización en el patrimonio edilicio: un enfoque histórico. Anales LINTA. 2007;4(1):45-53.
[5] González D. Sobre resiliencia de ciudades del arte ante catástrofes naturales. Arquitectura y Urbanismo [Internet]. 2017 [consultado: 04 mayo 2018]; 38(1):[97-102 pp.]. ISNN 1815-5898. Disponible en: http://rau.cujae.edu.cu/public/Revistas%20Completas/2017/AU-1-2017.pdf.
[6] Taboada D. Evolución conceptual de la intervención en la arquitectura patrimonial. Anales de la Academia de Ciencias de Cuba. 2014;4(2):174. ISSN 2304-0105.
[7] Cherch P. Adaptive Reuse of Abandoned Monumental Buildings as a Strategy for Urban Liveability. Athens Journal of Architecture. 2015;1(4):253-70.
[8] Scillamá, Mora. Fábricas refuncionalizadas. ¿Dispositivos de integración o de segmentación urbana? Quid 16. 2014; Volumen 4 (4): p.137-160. ISSN 2250-4060.
[9] Torres C, Jorguera N. Evaluación integral de la adaptabilidad del patrimonio residencial frente a los actuales requerimientos de uso. Arquitectura y Urbanismo [Internet]. 2017 [consultado: 15 enero 2018]; 38(1):[22-35 pp.]. ISSN 1815-5898. Disponible en: http://rau.cujae.edu.cu/index.php/revistaau/article/view/396/371.pdf.
[10] Dirección Municipal de Planificación Física Centro Habana. Regulaciones Urbanísticas Ciudad de La Habana: Municipio Centro Habana. La Habana; 2016. Disponible en: http://www.ipf.cu/es/content/regulaciones-urban%C3%ADsticas-municipio-centro-habana-0.
[11] Matamoros M. Diseño de interiores. La Habana: Félix Varela; 2015.
[12] Distrito Metropolitano de Quito. Ordenanza 0094: De las áreas y bienes patrimoniales. [Internet] Quito: Consejo Metropolitano de Quito, Página Web Oficial del Municipio del Distrito Metropolitano de Quito; 2011. [Consultado: 04 diciembre 2017]. http://www7.quito.gob.ec/mdmq_ordenanzas/Ordenanzas/ORDENANZAS%20MUNICIPALES%202017/.
Notas
Notas de autor