Con criterio
Cooperativas para la construcción de casas en Bejucal: inicios de la vivienda social en Cuba
Cooperatives for the Construction of Houses in Bejucal: Beginnings of Social Housing in Cuba
Cooperativas para la construcción de casas en Bejucal: inicios de la vivienda social en Cuba
Arquitectura y Urbanismo, vol. XLII, núm. 2, pp. 58-75, 2021
Instituto Superior Politécnico José Antonio Echeverría
Recepción: 22 Marzo 2021
Aprobación: 05 Junio 2021
RESUMEN: En Cuba, a inicios del siglo XX, un grupo de trabajadores del ramo tabacalero constituyeron asociaciones cooperativas para gestionar y ejecutar viviendas para distribuir entre sus miembros. En el presente artículo se exponen los resultados de una investigación histórica centrada en la organización de asociaciones cooperativas que dieron lugar a la producción de casas de madera para obreros en Bejucal. El trabajo de campo permitió cuantificar, cualificar y describir los exponentes que aún perviven en un área aproximada de 21 hectáreas urbanas donde se localizaron 62 casas que formaron parte de este proceso constructivo. Se hizo un registro fotográfico de aquellas que conservan mayor nivel de autenticidad. Demostrar la valía de este proceso en Bejucal, e insertarlo en la historia de la vivienda social en Cuba, permitirá completar conocimientos sobre el tema y ampliar la cronología histórica existente, constituyendo así un aporte a los saberes sobre la arquitectura patrimonial del país.
Palabras clave: patrimonio construido, arquitectura en madera, asociaciones cooperativas, vivienda social, Bejucal.
ABSTRACT: In Cuba, at the beginning of the 20th century, a group of workers in the tobacco industry formed cooperative associations to manage and execute houses to distribute among their members. This article presents the results of a historical investigation focused on the organization of cooperative associations that led to the production of wooden houses for workers in Bejucal. The field work allowed to quantify, qualify and describe the exponents that still survive in an approximate area of 21 urban hectares where 62 houses were located that were part of this construction process. A photographic record was made of those that retain the highest level of authenticity. Demonstrating the value of this process in Bejucal, and inserting it into the history of social housing in Cuba, will allow to complete knowledge on the subject and expand the existing historical chronology, thus constituting a contribution to the knowledge about the heritage architecture of the country.
Keywords: patrimony built, wooden architecture, cooperative associations, social housing, Bejucal.

Introducción
Los pequeños pueblos cubanos son como libros cerrados y guardados en un cajón o en el fondo de gavetas, casi siempre ignorados. Corren el riesgo de ser lastrados por el olvido o devorados por las “polillas” de la desidia, aunque guardan tesoros invaluables que forman parte de historias no dilucidadas, no escritas ni reveladas, no comprendidas, pero que forman parte de una Cuba que también existe.
La repetida presencia de casas hechas en madera, con factura y diseño semejantes, frecuentes sólo en una porción del territorio urbano de Bejucal, hacen pensar en la preexistencia de un suceso constructivo singular. Hoy estas edificaciones, ya en deterioro o trasformadas, aun dejan ver un origen común en su barrio, tanto en intenciones como en el tiempo.
En documentos escritos por Sergio González Blanco1 y que forman parte de los fondos del museo municipal de Bejucal, se puede conocer sobre la existencia temprana en esta localidad habanera de ciertas asociaciones cooperativas organizadas por obreros del gremio de los tabaqueros, que se dedicaron con éxito a gestionar y construir sus casas. Lamentablemente, este y otros trabajos semejantes sobre el patrimonio edificado bejucaleño no razonan en detalles sobre la factura de estas casas, como construcciones hechas en madera, y mucho menos sobre sus valores, quedando así vacíos desde las perspectivas arquitectónica y patrimonial.
La madeja histórica de la arquitectura doméstica, de la vivienda económica o para pobres realizadas en Cuba, así como la literatura publicada sobre el tema de la vivienda social2 en el país ignoran acontecimientos acaecidos en Bejucal relacionados con la autoconstrucción de casas mediante la asociación o cooperativización de trabajadores, suceso inédito, y que necesita ser desentrañado.
El estudio que hoy ve la luz, es el resultado ampliado de una investigación desarrollada por el autor en 20143 con el objetivo de dar a conocer el empeño de aquellos hombres pueblerinos que intentaron construir sus casas demostrando para la posteridad: “que la cooperación es altamente beneficiosa y útil; la unidad de voluntades para un fin común debe ser el objetivo constante de los hombres; de la unión nace la fuerza y con la fuerza el bien estar” [1, p.3]
Materiales y métodos
La investigación asumió el propósito de explorar una zona poco conocida en la historia de la arquitectura cubana: el quehacer constructivo en términos de vivienda social durante la República (1902-1959)4 en el entorno urbano de Bejucal, antigua región habanera, hoy localidad perteneciente a la actual provincia cubana de Mayabeque.
Para lograr los resultados deseados se aplicó el método histórico- lógico, que permitió demostrar las condiciones históricas que hicieron posible el suceso arquitectónico en sí. Para el estudio de las particularidades del fenómeno asociativo en Bejucal se tomó como método la investigación documental, analizando fuentes primarias, especialmente la valiosa contribución que aportaron los fondos del antiguo Ayuntamiento de Bejucal, que reposan en el museo local. Mediante procesos de análisis y síntesis se logró construir, con rigor científico, el relato de los hechos que argumentan la investigación y que hasta el momento sólo tenían cierto matiz anecdótico.
Trabajos teóricos precedentes permitieron precisar los antecedentes sobre el proceso fundacional y el desarrollo urbanístico de Bejucal, y su ulterior ensanche en el siglo XX, experimentado durante el proceso constructivo que se estudia, así como contextualizar los procesos socioculturales que lo propiciaron. El uso de métodos empíricos como la observación directa y el trabajo de campo, permitieron la definición y descripción de las características morfológicas y particularidades del objeto de estudio, logrando, además, tomar numerosas imágenes que facilitaron la verificación de datos y evidencias sobre los componentes de la arquitectura estudiada, para llegar a la necesaria modelación. Toda la información encontrada fue sometida a análisis cuantitativos, cualitativos y comparativos.
La revisión de archivos históricos, fotográficos, entre ellos el del antiguo Ministerio de Obras Públicas, la Fototeca Histórica de la Oficina del Historiador y otros provenientes de colecciones privadas y repositorios digitales extranjeros, permitió identificar realizaciones, que respaldaron y corroboraron la investigación empírica.
Por último, las entrevistas realizadas a personas, vinculadas familiarmente a los protagonistas del hecho estudiado, permitieron un acercamiento a la memoria colectiva de una comunidad que, a pesar de la centuria trascurrida, mantiene viva aquella experiencia como un fenómeno que aportó bienestar y progreso a determinado grupo social del territorio.
Resultados
Antecedentes
El proyecto fundacional de Bejucal, temprana acción urbanizadora en el hinterland habanero, no sólo se propuso reorganizar la continuidad de la ocupación del territorio y acompasar ventajas a favor de su fundador, sino también planear la creación de una ciudad culta, con la regularidad de las poblaciones “modernas”, siguiendo para ello las indicaciones que dictaban las normativas vigentes, conocidas como Recopilación De Leyes De Los Reynos De Las Indias [2].
La ciudad sufragánea de San Felipe y Santiago de Bejucal, primer señorío de vasallos de Cuba, se alza con un proyecto fundacional propio, pensado y planteado por su fundador el capitán D. Juan Núñez de Castilla, hombre adelantado y perspicaz que presentó al rey Felipe V su solicitud fundacional en 1710, acompañada de un plano delineado para este fin y un pliego que contenía 29 artículos o condiciones a las cuales se comprometía responder en un término de tres años. En 9 de los 29 capítulos de este documento [3, pp. 527-534] se establecían requisitos que facilitaban la construcción de casas destinadas a los 30 primeros pobladores de la ciudad y también para aquellas que ocuparían las demás familias que posteriormente decidieran avecindarse en Bejucal. La entrega de solares sin gravamen, la previsión de terrenos para el futuro crecimiento de la ciudad entre otras, fueron decisiones que a largo plazo fomentaron el afán y el empeño de los bejucaleños por gestionar y construir sus propias viviendas.
En particular, el capítulo séptimo creó las condiciones básicas para la obtención de recursos propios para la construcción de casas, sobre todo para el desarrollo y fomento local de aquellos oficios imprescindibles para estas labores: “Hago gracias y donación para todos los vecinos y bien común de dicha ciudad, de una caballería de tierra en sitio y parage (sic.) que llaman la Sierra, para leña, piedra y otros materiales para sus menesteres”. [3, p.528].
D. Manuel Mariano Acosta5[3, p.519] relata en Memoria sobre la Ciudad de San Felipe y Santiago del Bejucal sobre la existencia de una cantera de gran calidad y hornos de cal, propias de la localidad y para el beneficio público, además de dos herrerías, tres carpinterías, catorce albañiles y dieciséis maestros carpinteros que desempeñaban eficientemente los oficios de construir y también el de adiestrar a sus aprendices.
A partir de 1762 y posterior a la dominación inglesa6, el tabaco deja de ser para Bejucal un recurso agrícola para convertirse en una industria manufacturera de carácter urbano, muy productiva. Este hecho sentó las bases para el progresivo surgimiento y desarrollo de una clase obrera pujante y emprendedora, sector que ya en el siglo XIX se destacaba por determinado nivel de instrucción y cultura, propiciada por la presencia diaria en los establecimientos de escogidas y en las tabaquerías, de los lectores de tabaquería7, personas decisivas en la formación cultural e ideológica del proletariado cubano en general y bejucaleño en particular. [4]
En otro orden, el espacio agrícola comenzaría a ser ocupado por la caña de azúcar y la industria azucarera trajo a Bejucal numerosos ingenios8[3] que establecieron sus moliendas en las cercanías de la ciudad. Las carpinterías y los tejares, talleres estrechamente asociados a la fabricación de azúcar, aumentaron la presencia de personas con el dominio de estas artes en el territorio.
El siglo XIX trajo a Bejucal el ferrocarril9[5]. En 1837 las distancias entre La Habana y su región se reducen considerablemente, las comunicaciones se hacen muy expeditas, la locomotora de vapor y el telégrafo comunicaron a Bejucal con rapidez nunca vista con el puerto matriz, La Habana, con el Surgidero de Batabanó en la costa sur, y con el resto de la isla a través del profundo Valle de Güines, por donde el camino de hierro tomó auge y se extendió rápidamente por toda Cuba.
Primeros intentos de asociación
En acta de reunión a cabildo ordinario del Ayuntamiento de Bejucal, fechada el 12 de mayo de 1848, se puede leer:
“En este estado hizo presente el Sr. Presidente que se le habían presentado diferentes individuos solicitando que se le concedieran solares yermos donde fabricar sus casas pues para este efecto habían acordado formar una especie de sociedad por la cual se comprometian (sic.) a depositar cuatro reales fuertes todos los sabados i (sic.) trabajar personalmente en los domingos y dias (sic.) festivos pues siendo todos albañiles y carpinteros se prestaban recíprocamente (sic.) sus servicios” [6]
Esta demanda no se limitaba a solicitar permiso oficial para la obtención de suelo urbano donde edificar casas sino que, dadas las franquicias otorgadas por el fundador y vigentes desde entonces, los solicitantes pidieron además autorización para proceder a la extracción de materiales de construcción en un reconocido sitio, paraje propiedad del Ayuntamiento “que también le fuera otorgada la gracias de quemar por su cuenta el horno de cal que se halla en la loma de la Sierra en el punto titulado cueva de los murciélagos.” (sic.) [6]
Si esta eventualidad resulta significativa, no menos importante lo fue la positiva respuesta dada por las autoridades locales, evidentemente sensibles y perceptivas ante la necesidad de aquellos individuos: “se acordo (sic.) se le hiciera entrega a los interesados que designen el punto donde se hallan los solares que pretenden i (sic.) que de ser solo para el efecto q (sic.) se espresa (sic.) […] y bajo la presisa (sic.) condicion (sic.) de que se sesara (sic.) esta gracia tan luego como se arrenden los terrenos en que se halla ubicado dicho horno.” [6]
Lamentablemente, el acta no recoge los nombres de quienes emprendieron esta gestión, motivo por el cual ha sido difícil rastrear el desenvolvimiento de este acontecimiento. Con toda independencia de ello, no caben dudas de que este hecho constituye un precedente ineludible para construir esta historia.
La década de los años noventa del siglo XIX trajo algunos sucesos relevantes para el desarrollo social y urbano de Bejucal. Los acontecimientos acaecidos en Cuba, y en particular en la región habanera en este período, provocados por el avance de la última contienda emancipadora10, dan lugar a la emigración de muchos obreros tabacaleros que, algunos junto a sus familiares, se establecen en Tampa y Cayo Hueso, ciudades del centro y sur de la península de La Florida. Estos emigrados bejucaleños siguieron vinculados a las manufacturas del tabaco, donde se insertaron a modos organizativos y gremiales diferentes, y conocieron de modelos de gestión urbana propios de esas ciudades norteamericanas, pero sobre todo, su vínculo con el resto de la emigración y con el Partido Revolucionario Cubano11 hizo que muchos de ellos regresaran a Bejucal una vez terminada la guerra.
Por su parte, el Ayuntamiento de Bejucal redactó, aprobó y promulgó en 1890 sus Ordenanzas Municipales de Policía Urbana y Rural del Término de Bejucal. [7] Este documento oficial y de carácter jurídico se insertó en un contexto mucho más amplio del régimen de gobierno municipal y de la policía (política) urbana, correspondiente a la fase final de la época colonial de la isla de Cuba. En sus 465 artículos, impuso órdenes estrictas a la vida social y urbana de la ciudad. En Policía Urbana, Título segundo: Orden y Gobierno Municipal, Capítulo tercero de su primera parte donde se trataba sobre Edificios, Construcciones y Demoliciones, se describían detalladamente en 259 artículos todo lo concerniente a ordenanzas y regulaciones que, desde el punto de vista urbanístico, asegurarían el buen funcionamiento y el buen orden de la disciplina constructiva de la ciudad. En ellas quedó implícito el propósito de lograr un mejor estilo de convivencia civil y pública, basado en conceptos de gobierno y de sociedad propios al régimen español imperante en la Isla.
En este contexto local, surgió -a saber- la primera asociación gremial del ramo de la construcción organizada de Bejucal. La notable presencia de vecinos con plenos dominios en las artes y en los oficios dados a la fabricación, permitió que el 26 de septiembre de 1890, en asamblea constitutiva, se creara la Sección de Albañiles, Carpinteros y Pintores de Bejucal [8] (Figura 1), amparados por la Ley de Asociaciones ya vigente en la Isla12. [9] Los socios fundadores de esta sección organizaron, elaboraron y aprobaron un reglamento compuesto por 13 capítulos y 72 artículos, documento que regiría su vida interna. Su presidente fundador fue D. Edubigio Aguirre Aguiar y como secretario se inició Juan Justiers Urrutia. El Artículo 1ro. del Capítulo 1 da fe del propósito que guiaría a estos hombres: “La constitución de esta sección tiene como objeto el bien moral y material de todos los asociados”. [8, p.4] Como único requisito se exigía: “A esta sección pueden participar todos los Albañiles, Carpinteros y Pintores sin distinción de colores que ejerzan el arte.” [8, p.4]

La capacidad organizativa demostrada por los trabajadores en Bejucal se puso en práctica en este caso. Asociarse en gremios les permitió hacer frente común para protegerse ante las dificultades impuestas por la inseguridad laboral y económica, en tiempos política y socialmente muy difíciles, periodo en que la reedición de la guerra por la independencia era ya un hecho cierto.
Las asociaciones de fabricación de casas
Las asociaciones cooperativas son entidades de individuos que se juntan voluntariamente para hacer frente a necesidades y aspiraciones económicas, sociales y culturales comunes, por medio de una empresa de propiedad conjunta y democráticamente controlada, que siguen valores basados en la ayuda mutua, responsabilidad, democracia, igualdad, equidad y solidaridad. Se crean para promover y resguardar los intereses comunes de sus miembros, personas que creen en los valores éticos de honestidad, transparencia, responsabilidad social y preocupación por los demás. No persiguen fines mercantiles, lucrativos ni especulativos. En lo legislativo, se identifican por ser corporaciones de personas, jurídicamente hablando, nunca de capitales13[10].
En estas organizaciones no se prefijan límites en el número de personas asociadas ni de su capital, este último siempre tiene carácter social y se construye por el ingreso de pequeñas aportaciones colectivas, cifra colegiada entre sus miembros, quienes reciben sus beneficios según la índole que motiva la creación de dichas sociedades. Fueron establecidas en la Inglaterra decimonónica cuando un grupo de obreros desempleados decidieron agruparse para crear un Almacén Cooperativo en la ciudad de Rochdale14. [10]
Según una fuente consultada, en Cuba la organización de las primeras sociedades cooperativas data de finales del siglo XIX15[11, p. 296]. A Bejucal estas llegaron desde finales del siglo XIX, con la creación de la Sociedad de Socorros Mutuos La Esperanza, institución con fines puramente sociales.
“Fueron los tabaqueros de la fábrica “Suárez Masías” los que tomaron la iniciativa de crear una sociedad a la que dieron el nombre de “La Esperanza”, y cuyo objeto era consagrase al socorro de sus asociados con asistencia médica y farmacéutica. Tal fundación se realizó en el año 1889 conforme a un reglamento que estuvo vigente hasta 1928”. [12, p.3-4]
Durante el siglo XX estas corporaciones tomaron un auge inusitado. La penetración del capital norteamericano en la economía cubana había comenzado a sentirse en la industria manufacturera del tabaco desde finales del siglo XIX, dejando caer su pesado efecto con la instauración de la República en mayo de1902.
Según una fuente local, “La Havana Commercial Co, filial de la American Tobacco Co. - que era el Trust -, compró en los primeros años de la República los negocios de la firma “Suárez Murias”, que daba ocupación a más de mil obreros bejucaleños. Poco después traslada la fábrica para La Habana, afectándose considerablemente la vida del término”. [12, p. 1]
En este escenario, trabajadores bejucaleños comenzaron a asociarse para enfrentar de algún modo las vicisitudes impuestas por la realidad económica de las primeras décadas del siglo, surgieron así numerosas sociedades de ayuda mutua. La Sociedad Cooperativa La Economía (1908), cooperativas de consumo, como la Cooperativa de Bejucal (1918), La Comuna (1930) o Cooperativa Industrial de Bejucal (1940) fueron algunas de aquellas creadas por obreros con diferentes fines, pero siempre para protegerse y defender sus intereses de manera colectiva. [12]
Para enfrentar los costosos alquileres o evitar los riesgos por los desahucios se inicia un movimiento de creación de sociedades de fabricación o cooperativas, organizadas para promover la construcción de viviendas con esfuerzo y participación colectiva. Surgen así siete asociaciones que, con diferentes niveles de gestión, desenvolvimiento y desempeño, lograron construir tal número de casas que provocaron el ensanche de la urbanización en toda su porción oeste y en más de quince hectáreas sobre el añejo ejido de Bejucal, terrenos pertenecientes al Barrio de Beltrán y que, desde finales del siglo XIX, se encontraban baldíos y aún en tenencia del Ayuntamiento municipal. [13]
Dado el rigor de las Ordenanzas Municipales vigentes desde 1890, el crecimiento de la ciudad siguió fielmente la traza ortogonal de Bejucal dando continuidad a las calles existentes y creando nuevas, y facilitando la creación de manzanas semejantes a las delineadas con anterioridad16[13] En esta zona, a partir de la calle Herrería -hoy calle 15- las citadas Ordenanzas Municipales permitían edificar utilizando la madera como material de construcción. [7]
Todas las asociaciones, sin excepción, estipulaban en sus reglamentos el derecho de afiliación voluntaria, exclusivamente para obreros, y como finalidad la ayuda mutua, la reciprocidad, la solidaridad y plena democracia participativa. (Figura 2) Entre ellas, se encuentran: Sociedad de Fabricación Unión y Progreso (1901-1906), El Porvenir de los trabajadores (1902), Bello Ideal (1904), Fraternidad (1907), Sociedad Cooperativa de Casas La Checherie (1922), Sociedad Cooperativa de Casas Redención (1925), y Trabajo, Sociedad Cooperativa de Fabricación (1927).

Las cooperativas más renombradas por sus resultados, actuación y cumplimiento eficaz de sus cometidos fueron: Sociedad de Fabricación Unión y Progreso, Sociedad Cooperativa de Casas La Crecherie y Trabajo Sociedad Cooperativa de Fabricación.
Sociedad de Fabricación Unión y Progreso
Fue fundada el 6 de junio de 1901 y cesó sus funciones el 6 de mayo de 1906, una vez cumplido el cometido que se impuso al ser constituida. [1] En un corto período de cuatro años y once meses, esta organización cooperativa logró levantar y entregar a sus asociados 67 casas. (Figura 3) Tuvo 115 miembros inscritos, todos obreros, de ellos, 48 vendieron sus acciones, 34 lo hicieron a la propia Sociedad. [1]

Cada casa fue construida a un costo de 415 pesos con 46 centavos17. Cada asociado pagó por su nueva vivienda 307 pesos con 23 centavos. Su ejecutivo estuvo encabezado por José Álvarez como presidente, E. Martineaud como secretario y Vicente Llana como tesorero [1].
En el texto de las “Memorias a los Socios” (Figura 4), documento editado con motivo de la culminación de esta asociación se puede leer: - es un hecho demostrado que la cooperación es altamente beneficiosa y útil; la unidad de voluntades para un fin común debe ser el objetivo constante de los hombres; “de la unión nace la fuerza” y con la fuerza el bien estar -, frase ya citada, que recoge en sentir de los socios de esta organización.

Es importante destacar que los resultados ejecutivos de esta sociedad se lograron en los primeros años de la República (1901-1906) y las primeras casas en barrios ejecutados para obreros en La Habana18, [14] que se recogen en la literatura existente sobre el tema, sólo fueron materializadas cinco años después [15] Del mismo modo, la primera experiencia reconocida de formación de cooperativas en la capital no se logra materializar hasta inicios de la década de 195019. [16]
Descripción de las casas construidas por la Sociedad de Fabricación Unión y Progreso
Las viviendas fueron levantadas con un sistema constructivo de entramados ligeros de madera y con techos de tejas planas de barro cocido, conocidas como tejas francesas. Se edificaron en solares de 10 varas de frente por 30 varas20 de fondo, mercedado o subastados por el Ayuntamiento local.
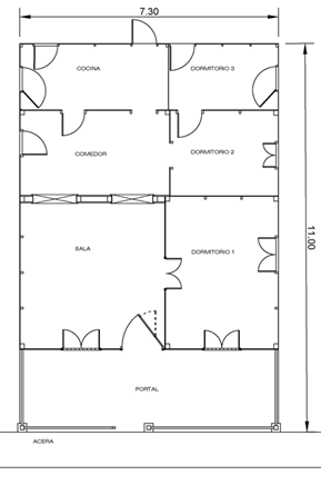
La distribución en planta de las casas disponía de portal corrido a lo largo de toda la fachada, sala, comedor, dos dormitorios, detrás la cocina y un cuarto de baño. Los pisos de estas casas fueron también de madera, excepto en el portal y la cocina que se pavimentaban en cemento pulido. Un amplio patio con letrina sanitaria al fondo ocupaba el resto del lote.
Las cubiertas en armaduras de parhilera, a dos aguas, inclinan sus faldones a la calle por el frente y al patio por el lado posterior. Sus fachadas se organizan de manera simétrica con puerta de acceso al centro y ventanas de dos hojas a cada lado, con postigos y barandas de asomo a modo de antepecho, algunas con lucetas de vidrios traslúcidos en la parte superior de los vanos.
Sus portales se forman por tres pies derechos ochavados en sus aristas, coronados por zaparas y que descansan sobre basas. Una viga solera apoya sobre las zapatas y viguetas simples sostienen la tablazón de la cubierta. Estos espacios son delimitados por barandas hechas de barras de hierro lisas, incrustadas en posa manos arriba y en larguero inferior, todos en madera labrada. (Figuras 5 y 6) Cada vivienda ocupaba un área construida de 80.50 m2 insertadas en una parcela de 250 m2. De este tipo de viviendas existe actualmente un gran número de ejemplares, inmuebles que han pervivido y desafiado el paso del tiempo.


Sociedad Cooperativa de Casas La Crecherie
Fundada el 16 de junio de 1922, y conocida popularmente como La Crecherie, esta sociedad cooperativa de fabricación de casas siguió los derroteros trazados por de su antecesora. Para su constitución, sus miembros asociados por plena voluntad, elaboraron y aprobaron un reglamento interno organizado en 24 artículos. Los párrafos primero y segundo dejaron por sentado sus propósitos y principios. [17] (Figura 7)

“Artículo 1º Esta sociedad se constituye con el objeto de construir casas, contando para este propósito con las cuotas que abonen semanalmente los socios y con los recursos que por medios lícitos que se puedan obtener.” [16, p. 4]
“Artículo 2º Esta SOCIEDAD constará con el número de socios que en el acto de cobrarse el primer recibo se encuentre inscrito en la lista de asociados, debiendo abonar cada uno la cuota de UN PESO (moneda oficial semanalmente, esta cuota no podrá aumentarse ni disminuirse si no se acuerda al efecto en Junta General.” [16, p. 4]
La creación de los fondos se lograba por el aporte semanal de la cuota acordada por cada obrero asociado, efectivo que era recogido en fecha preestablecida, con riguroso cumplimiento y control. La sociedad era administrada por un comité compuesto por un director, un secretario, un tesorero, sus vices respectivos y tres vocales, nombrados en Junta General y cuyos cargos era obligatorio renovarse cada año. El proyecto era seleccionado siguiendo lo establecido en el Reglamento:
“Artículo 14º. Para llevar á (sic.) cabo la fabricación de la primera casa, se presentará el plano y presupuesto, en JUNTA GENERAL para su aprobación, sirviendo de tipo aprobado para la construcción de todas las demás.” [16, p. 6]
En el momento de su fundación, esta sociedad cooperativa tuvo su domicilio legal en la calle 19, en un inmueble marcado con el número 37 según la numeración antigua.

Las casas construidas por esta sociedad engrosaron la zona urbana que había gestado la construcción de casas de la sociedad Unión y Progreso en la parte oeste de Bejucal. En sólo ocho años ya se habían construido y entregado 74 casas21. [16] (Figura 8) Su popularidad y eficiencia fue tal que el Ayuntamiento decidió nombrar a una de las nuevas calles trazadas por el ensanche como La Crecherie22, que se perfila de norte a sur y paralela a la calle San Francisco23. Esta vía se destaca por tener una faja de sección de 8 metros de ancho, superior a las demás trazadas en Bejucal.
Descripción de las viviendas construidas por la sociedad cooperativa de casas La Crecherie
Las casas edificadas por La Crecherie, con cierto parecido a las anteriores, utilizaron el mismo sistema constructivo de entramados ligeros de madera con cubiertas del mismo material, techadas con tejas planas de barro cocido, llamadas tejas francesas. Los solares asignados para ellas medían 10 varas de frente por 30 varas de fondo, parcelas semejantes a las utilizadas por Unión y Progreso, y, de igual modo, mercedado o subastados [17] por el Ayuntamiento. (Figura 9)

La distribución en planta de las casas disponía de portal corrido a lo largo de toda la fachada, sala, comedor, dos dormitorios, la cocina y el cuarto de baño detrás, bajo un colgadizo, un amplio patio con una letrina sanitaria al fondo de la parcela. Sus pisos son de mosaicos, excepto en el portal y la cocina, que se pavimentaban a base de cemento pulido.
Las cubiertas en armaduras de parhilera, a dos aguas, inclinan sus faldones a los laterales de la vivienda. Sus fachadas se organizan de manera simétrica con puerta de acceso principal ubicada al centro, con postigo de ingreso ligeramente ladeado a la izquierda, ventanas de dos hojas con postigo cada una y barandas de asomo a modo de antepecho, situadas a cada lado de la puerta principal, todas con lucetas de vidrio en cuadrículas, en la parte superior de cada vano.
Caracterizan estas casas la presencia de un amplio frontón en la fachada, dibujado por los faldones inclinados de la cubierta y el paño horizontal de la techumbre del portal. En la parte superior de este triángulo, una abertura octogonal con vidrio a manera de luz24 o pequeña claraboya se destaca y distingue la fachada.
Sus portales se apoyan en tres pies derechos ochavados en sus aristas, con zapara y basa, elementos estructurales que reciben la viga solera; sobre ella, viguetas simples sostienen la tablazón de la cubierta y las tejas del techo. Estos espacios estuvieron originalmente delimitados con barandas de barras de hierro lisas incrustadas en posa manos y en largueros inferiores, ambos de madera labrada, solución semejante a las dadas para las casas anteriormente descritas. (Figuras 10 y 11)


Las tablas utilizadas para construir las paredes de estas casas se unen por el sistema de ranura y lengüeta o machihembrado (“machimbrado” en el argot del oficio). Cada vivienda posee un área construida de 80 m2 en una parcela de 237 m2.
Rodríguez Blanco [12] plantea que cada casa edificada por esta sociedad tuvo un costo de ejecución de 610 pesos moneda oficial.
Las casas descritas, construidas por las asociaciones mencionadas, tienen como particularidad común que sus plantas se ubican en la porción centro frontal de la parcela asignada, los portales lindan directamente con las aceras, dejando a cada lado de ellas pasillos corridos a toda la profundidad de la vivienda, pasaje que se comunica con el patio. Estos pasillos, denominados técnicamente como servidumbres, fueron posibles debido a que las Ordenanzas Municipales vigentes en Bejucal desde 1890, contemplaban la posibilidad legal de establecer estos espacios entre viviendas, dando lugar a un tipo de medianerías donde las edificaciones no se adosaban unas a otras, rompiendo así la compacidad tradicional de las manzanas. Este tipo de asociación permitía incluso la abertura de ventanas sobre las paredes laterales de las casas, mejorando la ventilación e iluminación natural en los interiores.
Este tipo de subordinación urbana quedaba registrada y descrita en las Ordenanzas Municipales como Servidumbres de Vistas o de Luces, [7] y se dedicaba un articulado de 32 párrafos que estipulaban sus derechos de uso.
La ubicación y organización de las casas de madera construidas por estas primeras asociaciones cooperativas, dieron lugar a que Bejucal se expandiera hacia el oeste, inaugurando una trama urbana ortogonal que abandona el régimen de medianería compacta de uso tradicional para la zona más antigua de la ciudad. (Figura 12) [12]

Todo ello fue posible gracias a que las Ordenanzas Municipales ya citadas lo contemplaban y, aunque no queda explícito en este reglamento, puede deducirse que se estipulara como medida preventiva ante siniestros provocados por incendios, ya que este tipo de asociación entre edificaciones podía funcionar como elemento cortafuegos en una zona donde estaba permitido edificar utilizando la madera como material de construcción.
Es muy importante destacar que el uso de portales privados para estas casas constituye un aporte importante de estas edificaciones para el régimen urbano establecido a partir de este momento constructivo en Bejucal.
Trabajo Sociedad Cooperativa de Fabricación
Esta sociedad se constituye el 5 de abril de 1927 en Junta General celebrada en el Centro Obrero de Bejucal. Ese día también se discutió y aprobó su Reglamento, documento rector, que con 19 artículos organizaba la vida interna de la sociedad cooperativa de fabricación, que tuvo por nombre Trabajo y como domicilio legal un inmueble en el número 21 antiguo de la Calle 18. Su presidente en el momento de la fundación lo fue Porfirio Serís y como secretario quedó nombrado José Manuel Doce. [18] (Figura 13)

El artículo primero de su reglamento dejaba de manera explícita el propósito de este colectivo de trabajadores al asociarse a modo de cooperativa:
“Art. 1ro. Esta sociedad se constituye con el objeto de construir casas, contando para este propósito con las cuotas que abonen semanalmente los socios y con los recursos que por medios lícitos se puedan obtener.” [18, p. 4]
Al igual que las asociaciones de fabricación ya descritas, su capital fue producido y gestionado por las cuotas que sus socios, reunidos voluntariamente, aportaban cada semana: “Art. 2do. Esta sociedad contará con el número de socios que en acto de entregar la primera casa que se construya se encuentren inscritos en la lista de asociados, debiendo cada uno abonar la cuota de 1 peso ($1) (sic.) semanal y además los derrames que fueran necesarios para cubrir los gastos de la sociedad. [18, p. 4]
Según comenta Rodríguez Blanco [12], las casas construidas por esta asociación cooperativa se localizaron en la porción noroeste de la ciudad, es decir, en zonas periféricas, donde las Ordenanzas Municipales de 1890, vigentes aun durante la República, lo permitían. Este citado investigador describe las casas construidas por la cooperativa Trabajo de la siguiente manera: “son de madera y tienen portal e igual número de habitaciones que las ya descritas. Sus techos, también de tejas planas, vierten hacia el frente y el fondo.”
Esta sociedad se mantuvo activa hasta 1952, año en que por disposiciones del Gobierno Provincial, fue cancelada definitivamente.
Otras asociaciones cooperativas de fabricación de casas fueron constituidas en Bejucal siguiendo el ejemplo de las primeras. El éxito de este modelo asociativo motivó incluso la creación de asociaciones destinadas a otros fines, entre ellas algunas de consumo, de ahorro o de socorro mutuo.
La cooperativización y las viviendas sociales en Bejucal
Las asociaciones cooperativas creadas en Bejucal por iniciativa y voluntariedad expresa de los obreros asociados a ellas son ejemplos tempranos y avanzados de creación de este tipo de organización en Cuba.
Analizados los Reglamentos de algunas de estas asociaciones y documentos que han llegado a nuestros días, se puede detectar que seguían los valores y principios cooperativos conocidos hoy como clásicos para estos movimientos, aquellos que motivaron la creación de estas organizaciones en la Inglaterra de mediados de siglo XIX, ideario y práctica que son conservados, respetados y protegidos aun por la Alianza Cooperativa Internacional de Mánchester (AIC). [9][10] La ayuda mutua, la responsabilidad colectiva y social, la igualdad, la equidad, la solidaridad, la honestidad y el esfuerzo propio son valores que se transparentan en la documentación consultada, y que llegan también como legado de la memoria colectiva de generaciones de bejucaleños que vivieron o conocieron de primera mano estas experiencias. (Figura 14)

De la lectura e interpretación, por ejemplo, de Memorias de los Socios, documento editado con fines públicos por la Sociedad de Fabricación Unión y Progreso en 1906, se puede conocer con claridad sobre la adhesión voluntaria de sus miembros; el ejercicio y el control democrático logrados por la directiva y sus socios; la plena participación en el orden económico de sus miembros; la autonomía e independencia logradas, sobre el fomento de una educación guiada al cooperativismo y sobre todo, los intereses limitados del capital que sus socios eran capaces de fomentar, con las cuotas abonadas y por los recursos que por vías lícitas pudieron obtener; principios que caracterizan e identifican aún al movimiento cooperativo internacional.
Las casas construidas por las asociaciones estudiadas pueden considerarse como antecedentes muy importantes en la ejecución de viviendas de carácter social en Cuba. Tal criterio queda sustentado en el hecho de que fueron proyectos de desarrollo habitacional, gestados y gestionados por los propios obreros, financiadas por ellos y contando con el apoyo constante del gobierno local, órgano que facilitó la adquisición de los terrenos y que respaldó estas cooperativas en sus trámites para la legitimación oficial de sus estatus legales, respetando la Ley de Asociaciones vigentes en Cuba desde el período colonial25.
Sobre la construcción de casas para obreros en Bejucal falta mucho por saber. El origen y autoría de los planos o proyectos empleados, los presupuestos, sus contratistas y ejecutores, los costos reales según cada asociación promotora, orígenes y suministros de los componentes en madera, así como las gestiones lícitas que realizaban para incrementar su capital; son incógnitas que se mantienen y que comprometen al autor a continuar en la búsqueda de páginas perdidas que pudieran completar esta historia.
Conclusiones
Las características fundacionales y la evolución histórica del incremento urbano-arquitectónico de Bejucal permitieron, desde temprano, la existencia de múltiples oficios relacionados con el arte de construir casas.
La madurez cultural e ideológica alcanzada por los tabaqueros de Bejucal a mediados del siglo XIX, dada por su labor en colectivos, por el nivel de instrucción alcanzado, la temprana presencia de la figura del lector de tabaquería en sus talleres, facilitó entre ellos una rápida comprensión sobre las ventajas que podrían obtener al unirse en sociedades de ayuda mutua o cooperativas.
La creación de las Asociaciones de Fabricación de Casas, o Cooperativas, organizadas voluntariamente para este fin, tuvo una anticipada aparición en la ciudad de Bejucal; lo demuestra la constitución de la Sociedad de Fabricación Unión y Progreso, fundada en junio de 1901, adelantándose quizás en mucho, a lo que sucedería sobre este particular, en la ciudad de La Habana y en otros territorios del país. De igual modo, el primer ejemplo conocido de cooperativas para la construcción de casas para obreros no se materializa en la capital hasta 1952.
La construcción de viviendas de carácter social tiene antecedentes muy tempranos en la ciudad de Bejucal, con la construcción de casas para obreros, gestionadas, financiadas y edificadas por la Sociedad de Fabricación Unión y Progreso que, asistida por el Ayuntamiento local, logró construir y entregar a sus asociados, 67 casas en sólo cuatro años y once meses.
La experiencia de construir casas para obreros, gestionadas y financiadas por cooperativas, es una práctica que se repite en Bejucal por más de 40 años durante la primera mitad del siglo XX. Se conoce de la existencia de al menos siete organizaciones de este tipo que tuvieron resultados exitosos en su gestión.
La construcción de casas por asociaciones cooperativas en Bejucal, y su aprobación por parte del Ayuntamiento municipal, provocó un ensanche urbano para la ciudad que modificó su morfología sin alterar la traza originaria del proyecto fundacional de la ciudad.
Las Ordenanzas Municipales de Policía Urbana y Rural, propias del municipio de Bejucal, promulgadas desde 1890, contemplaban la existencia de Servidumbres de Vistas y de Luces, derecho que permitió a las primeras asociaciones de fabricación de casas la posibilidad de realizar proyectos para viviendas que utilizaran las servidumbres continuas a ambos lados de cada edificaciones, ya fueran para el uso de vistas o de luces, o como accesos desde la calle a los patios en cada propiedad.
En el ensanche de la planta urbana, iniciado por la Sociedad de Fabricación Unión y Progreso, se abandona el régimen de medianería tradicional y las manzanas dejan de ser totalmente compactas. Los proyectos de las nuevas viviendas introducen el portal como recurso espacial y volumétrico en la nueva manera de construir casas, esquema que sería aplicado y repetido posteriormente y de forma constante para el crecimiento de Bejucal.
Referencias bibliográficas
Memorias de los socios. Editadas con motivo de la culminación de sus funciones el 6 mayo de 1906. La Habana: Sociedad de Fabricación Unión y Progreso; 1906.
Mahecha A, Mazuera P. Recopilación de Leyes de los Reynos de Las Indias. Libro 4, 1860. Disponible en: http://www.gabrielbernat.es/espana/leyes/rldi/indice/indice.html.
Acosta MM. Memorias sobre la Ciudad de San Felipe y Santiago del Bejucal. En: Los Tres Primeros Historiadores de la Isla de Cuba. La Habana: Imprenta y Librería de Andrés Pego; 1876. p. 519-588.
Rodríguez Blanco S. Acerca de la lectura en Bejucal (1984). Museo Municipal de Bejucal.
Chateloin F. La Habana de Tacón. La Habana: Letras Cubanas; 1989.
Actas del Ayuntamiento de Bejucal, Vol. 10, años 1844-1848. s/p. Museo Municipal de Bejucal.
Ordenanzas Municipales de la Policía Urbana y Rural del Término de Bejucal. La Habana: Batallón Mixto de Ingenieros; 1890.
Expediente de la Sección de Albañiles, Carpinteros y Pintores de Bejucal. Inscrita en el Registro de Asociaciones del Gobierno de la provincia de La Habana por Orden Pública del 6 de octubre de 1890. Libro primero, número 496. Archivo Nacional de Cuba, Fondo 45, Folio 16, Legajo 421, Expediente 13306.
Pelayo Olmedo JD. Derecho de asociación en la historia constitucional española, con particular referencia a las leyes de 1887 y 1964. Revista Electrónica de Historia Constitucional [Internet]. 2007 [consultado: 13 enero 2014]; (8):[95 p.]. Disponible en: Disponible en: https://dialnet.unirioja.es/servlet/articulo?codigo=2380124.
Cooperativas de las Américas. Región de la Alianza Cooperativa Internacional [Internet]. c2001 [consultado 18 julio 2019]. Principio y Valores Cooperativos [aprox. 6 pantallas]. Disponible en: Disponible en: http://www.aciamericas.coop/Principios-y-Valores-Cooperativos-4456.
Sánchez Sánchez I, Villena Espinosa R. Sociabilidad fin de siglo. Espacio asociativo en torno a 1898. Cuenca (España): Ediciones de la Universidad de Castilla-La Mancha; 1999.
Rodríguez Blanco S. Las cooperativas de Bejucal (1984). Museo Municipal de Bejucal.
Cañado López F, Gómez Núñez S. Plano Topográfico de Bejucal, junio de 1893. Biblioteca Nacional de Cuba.
Bay Sevilla L. La barriada obrera de Pogolotti. Arquitectura.1936; 6(73): pp.315-318.
Sambricio C. editor. Ciudad y Vivienda En América Latina. 1930-1960. Madrid: Lampreave; 2012.
Sociedad Cooperativa de Casa La Crecherie. Archivo Nacional de Cuba, Fondo Registro de Asociaciones, Libro 15, Folio 132, No. 4962.
Expediente relativo a la subasta de un terreno solicitado por el Sr. Juan Forra, en su carácter de Presidente de la Sociedad La Crecherie, Bejucal, 1924. Museo Municipal de Bejucal.
Expediente Trabajo Sociedad Cooperativa de Fabricación. Archivo Nacional de Cuba, Fondo 54 Registro de Asociaciones, Libro 18, Folio 210, No. 6232.
Notas
Notas de autor
*Correo para la correspondencia: rmairata@proyectos.ohc.cu, renegumairata@gmail.com