Artículo Original
Reconstrucción resiliente y sustentable: Centro Comunitario Cuexcomate
Resilient Sustainable Reconstruction: The Cuexcomate Community Centre
Reconstrucción resiliente y sustentable: Centro Comunitario Cuexcomate
Arquitectura y Urbanismo, vol. XLIV, núm. 2, pp. 59-68, 2023
Instituto Superior Politécnico José Antonio Echeverría
Recepción: 15 Diciembre 2022
Aprobación: 10 Febrero 2023
Resumen: El proyecto del Centro Comunitario Cuexcomate se da en el contexto de la reconstrucción, en México, posterior a los sismos de septiembre de 2017. La presente comunicación muestra los aspectos arquitectónicos de resiliencia y sustentabilidad del proyecto; cuyo objetivo es analizar los ámbitos social, ambiental y económico en el diseño y la construcción del Centro con Bloques de Tierra Comprimida. Metodológicamente, la investigación recopila datos del proceso de diseño participativo y de la producción social del hábitat con lo que se alimenta la investigación-acción. La investigación coproducida, es una fuente de datos cualitativos que dan soporte al diseño y construcción del Centro Comunitario. Los resultados de la investigación muestran, en las diferentes fases del proceso participativo (gestión, diseño, construcción, operación) cómo la resiliencia es un proceso rectangular en donde los diferentes actores pueden colaborar en disminuir vulnerabilidades a partir de la arquitectura sustentable.
Palabras claves: Reconstrucción, resiliencia, sustentabilidad, co-producción, producción social del hábitat, investigación-acción..
Abstract: The Cuexcomate Community Centre Project is carried out within the reconstruction context in Mexico, after the September 2017 earthquakes. The following notice shows the architectonic aspects of resilience and sustainability in the project, which main aim is to analyse the social, environmental, and economical scope in the design and construction of the aforementioned Centre by means of using Compressed Earth Blocks. Methodologically speaking, this research assembles data from the participative designing process, as well as the social housing production that nourishes research-action issues. The co-produced research is a source of qualitative data supporting the design and construction of the Community Centre. The outcomes of the research shows, alongside the several stages of the participative process (management, design, construction, operation), how resilience is a rectangular process where the different agents may contribute to reducing vulnerabilities from the sustainable architecture.
Keywords: Reconstruction, resilience, sustainability, co-production of habitat, action-research..
Introducción

La experiencia de investigación- acción, de reconstrucción social e integral, en el estado de Morelos, posterior a los sismos de septiembre de 2017, ilustra cómo la co- producción de espacios urbano- arquitectónicos, contribuyen a la generación de una cultura de resiliencia.
El proyecto y construcción de un centro comunitario y la rehabilitación de la unidad deportiva se localiza en el municipio indígena de Xoxocotla, Morelos, México, en donde la necesidad de reconstrucción presentó la oportunidad de generar proyectos comunitarios. El proyecto es el resultado de un proceso de investigación, de estudios y de diseño de un grupo de académicos de diferentes universidades que, en conjunto con la comunidad, fundaciones, y diferentes actores comunitarios, se han comprometido con la sociedad. Este trabajo evidencia la construcción de resiliencia en un contexto de reconstrucción a partir de la consideración de factores sociales, en proyectos urbano- arquitectónicos.
La construcción del Centro Comunitario “Cuexcomate” se realizó con bloques de tierra comprimida (BTC) lo que muestra cómo un material sostenible puede ser un elemento de integración comunitaria y de oportunidad laboral, sintetizando los tres pilares de la sustentabilidad: social, económico y ambiental.
Antecedentes
La vulnerabilidad urbano- arquitectónica que presentan gran parte de las comunidades en nuestro país fue la preocupación que unió a un grupo de profesionistas, profesores e investigadores de diferentes instituciones con el fin de repensar los problemas y las soluciones del hábitat. A través de la investigación acción se participó en la construcción y reconstrucción de comunidades vulnerables física, económica y socialmente.
En 2016, el trabajo de co- producción inició con el proyecto para la construcción de viviendas en los municipios de Comalcalco y Cunduacán, Tabasco, denominado “Casas bellas, seguras y sustentables” [1]. Aquí, el riesgo de inundación, aunado a la pobreza y a la falta de oportunidades fueron los generadores de un proyecto de vivienda que incorporó en el diseño elementos de resiliencia. La co- solución se materializó con la utilización de materiales locales, principalmente provenientes de la tierra.
Un segundo proyecto nace a raíz de los sismos de septiembre de 2017 en el estado de Morelos, uno de los más afectados, en Ocoxaltepec, Ocuituco, en donde mucha vivienda fue destruida o gravemente dañada. En esta comunidad, se propuso la construcción de un centro comunitario para realizar diferentes actividades culturales y de formación, con el propósito de aumentar su resiliencia. La experiencia generada en estos dos proyectos consolidó procesos de construcción social del hábitat como respuestas de reconstrucción post- desastres y de construcción social de resiliencia.
Estas prácticas fueron las que permitieron realizar el centro comunitario y la rehabilitación de la unidad deportiva del municipio indígena de Xoxocotla, Morelos, como parte de los trabajos de reconstrucción de este municipio. Los tres proyectos son el resultado de un proceso de investigación, de estudios y de diseño de un grupo de académicos de diferentes universidades que, en conjunto con la comunidad, con asociaciones, fundaciones, y diferentes actores comunitarios se han comprometido con la sociedad. El encuentro de diferentes actores, con la participación de la comunidad, se encaminó a la realización de un proyecto que permitiera a la población local tener acceso a cursos, capacitaciones, y a la cultura en general, como espacios catalizadores de procesos de resiliencia.
Cuexcomate
Para el centro comunitario construido en el municipio indígena de Xoxocotla, Morelos (2017-2021) se decidió el nombre de Centro Comunitario “Cuexcomate”, que, como muchos objetos prehispánicos y artesanales, se encuentra en peligro de extinción, por lo que la denominación es también una contribución a la preservación de la tradición cuexcomatera que forma parte de la cultura indígena del municipio.
El nombre, además de representar a las tradiciones locales, es un instrumento de preservación de la arquitectura vernácula, de la cultura, y de los valores de la comunidad. La denominación, desde un enfoque socio- ambiental, está en completa relación con el proyecto arquitectónico realizado para el centro comunitario, representando una relación armoniosa del ser humano con su entorno.
El cuexcomate es una pieza prehispánica. Su uso está asociado a una tradición ancestral, relacionada con el maíz, grano principal del sustento mexicano. La relación de este objeto con el maíz le confiere un significado de abundancia y renovación. Es una pieza prehispánica que combina materiales locales, como la paja y el barro, y forma parte de la arquitectura histórica, constituyéndose así en un testimonio de la arquitectura en tierra. El cuexcomate es fundamentalmente una troje de almacén. Es un tipo de granero tradicional, mesoamericano, en la que los campesinos almacenan el grano de maíz en buenas condiciones de ventilación y resguardo.
La arquitectura del cuexcomate, como es el caso de la arquitectura vernácula, puede tener relación con el paisaje, los materiales del lugar y las creencias. La forma, tamaño y técnica de construcción del cuexcomate es particular y diferente de los demás graneros tradicionales. El cuexcomate “tipo Xoxocotla” 1 es ya casi inexistente [2], por lo que la valorización de este patrimonio es de suma importancia social y cultural.
Hábitat resiliente y sustentable
La referencia al hábitat se hace, en este trabajo, desde la perspectiva de los asentamientos humanos, de la vivienda, de la problemática de diferentes territorios urbanos y no urbanos, también a la espacialidad de la sociedad. Es decir, el hábitat considerado desde su integralidad y el cual no sólo tiene una dimensión física, sino también política, económica, social, ambiental y cultural; el hábitat como generador de condiciones de vida individuales y sociales.
El concepto de hábitat está íntimamente relacionado al de habitabilidad, asociados a su vez con aspectos que vinculan con las dimensiones físicas, económicas y ambientales del contexto, relacionado con condiciones que garanticen seguridad. El concepto de habitabilidad, en sus diferentes escalas mínima, básica, aceptable, considera que el hábitat debe incluir infraestructura, servicios, como abastecimiento de agua potable, saneamiento, eliminación de desechos, transporte, energía, equipamiento de salud, educación, espacios para el descanso y recreación, entre otros.
La habitabilidad no sólo está condicionada a los componentes físicos del espacio, sino también a aspectos sociales, psicológicos y culturales que delimitan las necesidades habitacionales, y los requerimientos de las personas en un momento y en un contexto determinado. Enrique Ortíz [3] hace énfasis, en la construcción de identidad como factor de habitabilidad. Lo cual sugiere, en cualquier tipo de proyecto, intervención o investigación, la comprensión del modo en que los espacios son habitados; de los modos de vida según tradiciones y costumbres, de las relaciones entre las personas y los espacios que habitan. Como menciona Casillas, “Tres elementos existen y son determinantes para la construcción de un código social que condiciona la habitabilidad doméstica al espacio y articula la vida cotidiana; es decir: hombre, cultura y espacio” [4, p. 46]. El hombre como actor social que es quien construye el espacio, quien toma consciencia de su espacio y de su entorno. Por lo tanto, el hábitat y su habitabilidad exigen indagar cómo viven los seres humanos, actualmente y en un futuro de mejores condiciones.
La habitabilidad es una categoría esencial del espacio habitable, llámese lugar o escenario, interior o exterior, de escala urbana o doméstica, que amalgama tanto lo físico como lo psicológico y social, y que no pierde de vista su interacción con los procesos medioambientales. Forma una sola unidad conceptual que relaciona las condiciones físico-espaciales de la vivienda, los intercambios materiales, energéticos e informativos con su entorno y los factores físicos, biológicos y psicosociales en que los individuos habitan [5, p. 67].
El hombre, a través de diferentes prácticas sociales, económicas, ambientales y culturales, ordena su espacio, y le otorga valor y significado. A su vez, el espacio les otorga otros sentidos y valores a sus espacios, o a nuevos espacios. De donde la importancia de la lectura e interpretación del hombre, su cultura y espacio, en los procesos de co-producción del espacio arquitectónico y urbano.
Resiliencia
Dos conceptos y principios han acompañado a estos proyectos: la resiliencia y la co-producción. La co-producción, entendida como la colaboración entre la comunidad científica, el gobierno y la sociedad civil, como principales actores, en la co- identificación de problemas, la producción de conocimiento, y su aplicación.
La reconstrucción posterior a un desastre es un momento crucial para reproducir las condiciones anteriores al desastre, o para construir nuevas oportunidades y capacidades [6]. La co- producción puede llevar a la generación de nuevas formas de habitar y de ser, al modificar los procesos socio-culturales, económicos, políticos, construyendo socialmente procesos de resiliencia. La resiliencia, comprendida como la capacidad de un sistema -y de sus redes socio-ecológicas y socio-técnicas a través de escalas temporales y espaciales- para mantener o regresar rápidamente a las funciones deseadas frente a una perturbación [7].
Los riesgos de desastre están relacionados con diferentes fenómenos físicos, que se convierten en amenazas, como los sismos, los huracanes, las sequías; o, a diferentes fenómenos socio-naturales como las inundaciones; o, a fenómenos sociales como las guerras o los incendios. Se refiere a riesgos de origen hidrometeorológico, geológico, humano o tecnológico. Los desastres corresponden a la fase ciclo del riesgo en donde se cristalizan diferentes condiciones que generan pérdidas y daños, materiales y humanos.
De esta manera, el riesgo de desastre, y el desastre mismo, corresponden a un conjunto de factores, que son la relación de una o varias amenazas, de origen natural o antrópico, combinados con condiciones de vulnerabilidad que muchas veces condicionan el hábitat, su exposición, y en donde, a su vez, el hábitat genera condiciones de vulnerabilidad. Factores que pueden ser contrarrestados, en algunos esquemas sociales, por condiciones de resiliencia.
Los desastres no son naturales. En la ecuación que lo construye existe el componente de vulnerabilidad. La definición básica de vulnerabilidad se refiere a las características de una persona o grupo, que influencian su capacidad de anticipar, manejar, resistir y recuperarse del impacto de una amenaza [8], donde hay un componente externo que es la amenaza, y otro interno que es la vulnerabilidad. La interacción entre la amenaza y la vulnerabilidad genera condiciones que pueden culminar en un desastre. Entonces, una misma amenaza, en diferentes contextos de vulnerabilidad, puede presentar diferentes niveles de impacto.
Dos importantes sismos ocurrieron en México en septiembre de 2017, en que uno de los estados más afectados fue el de Morelos, en el centro del país. La amenaza sísmica confluyó con diferentes vulnerabilidades físicas, sociales y económicas existentes en el municipio de Xoxocotla, lo que ocasionó un desastre. En el ciclo de la Gestión Integral de Riesgo de Desastre, la fase de reconstrucción puede ser una oportunidad para mejorar las condiciones de un lugar determinado anteriores a cualquier fenómeno perturbador, en el caso de Xoxocotla lo fue el sismo, es decir, la fase de reconstrucción es el momento en el que se pueden aumentar las capacidades frente a los riesgos existentes.
Métodos
La metodología que soporta esta investigación- acción se articuló en tres ejes: i) diseño participativo; ii) producción social del hábitat; y iii) co-creación.
I. A partir de un diseño participativo, la comunidad de Xoxocotla colaboró en el diagnóstico de los problemas y necesidades de la comunidad, a partir de un análisis de vulnerabilidades versus capacidades. En la investigación, este proceso fue documentado a través de encuestas, entrevistas y talleres participativos.
II. La producción social del hábitat se basa en la capacidad de participación y de organización de las comunidades en la creación de sus condiciones de vida y por lo tanto, de sus espacios urbano-arquitectónicos; de esta manera, los procesos de toma de decisiones, gestión y construcción se realizaron en conjunto con la comunidad. Se realizaron talleres de capacitación con diferentes actores, con distintas condiciones sociales (jóvenes, mujeres, adultos, adultos mayores). La capacitación se basó en la elaboración de bloques de tierra comprimida (BTC); proceso que fue documentado y complementado con entrevistas a los diferentes actores participantes.
III. La co- creación, en la que se establece la colaboración entre la comunidad científica, el gobierno y la sociedad civil en la co-identificación de problemas, la producción de conocimiento y su aplicación, fue un proceso transversal que acompañó la investigación- acción participativa, con un enfoque de construcción social de resiliencia y sustentabilidad.
Arquitectura sustentable
Para lograr una adaptación al contexto del municipio de Xoxocotla y principalmente de lograr la construcción de un hábitat, el proyecto se desarrolló a partir de estrategias definidas desde la sustentabilidad, para así mejorar las calidades de la intervención arquitectónica desde los ámbitos ambiental, económico y social.
La construcción del centro comunitario y la rehabilitación de la unidad deportiva de Xoxocotla Morelos se realizó en un predio con una superficie de 21 096,89 m2. La función del centro comunitario es prioritariamente cultural, deportivo y lúdico, en tanto la unidad deportiva se destina a este único uso.
Las primeras visitas a la comunidad tuvieron el objetivo de conocer las necesidades de los pobladores en relación con la rehabilitación del centro deportivo y cultural, dañado por el sismo del 19 de septiembre de 2017. Se realizaron encuestas, entrevistas y un mapeo comunitario con los asistentes a los talleres participativos. Los temas tratados fueron, principalmente: el nivel de educación, las necesidades sociales y los grupos prioritarios para la comunidad, además de la necesidad de espacios deportivos, culturales y de capacitación. Los principales resultados del estudio se describen a continuación:
Los participantes mencionaron que las áreas de la comunidad que necesitan más apoyo son la seguridad, la salud y el deporte.
Los habitantes expresaron que los grupos de personas que necesitan más apoyo en la comunidad son los niños, los jóvenes y los adultos mayores. Cabe mencionar que se hace especial énfasis en los jóvenes, debido a la existencia de fuertes problemas sociales como el alcoholismo y la drogadicción.
Los temas que surgieron por medio de un mapeo realizado en el taller participativo fueron: seguridad (control, delitos); medio ambiente (basura, parques, agua); espacio público; actividades deportivo-culturales, educación; economía y productividad (actividades laborales, comercio, agricultura).
La seguridad es un factor de especial importancia para la comunidad, ya que la inseguridad está presente en todo el municipio.
En el rubro de medioambiente, se señaló la casi total ausencia de áreas verdes.
En relación con la práctica de actividades deportivo- culturales y educación, se detectó la falta de actividades lúdicas, culturales y deportivas.
En los ámbitos cultural y educativo los participantes señalaron la falta de talleres de capacitación, de arte y de cultura.
En el tema laboral, la falta de empleo está considerada como el mayor problema de la comunidad de Xoxocotla. Los participantes expresaron el deseo de una recuperación parcial de las actividades agrícolas.
Otro aspecto interesante expresado por los habitantes fue el reciclaje, se habló de la conveniencia de una mejor gestión de los desechos, con la posibilidad de convertirse en una fuente de ganancia económica para la comunidad.
Finalmente, los ciudadanos detectan en la educación un factor importante de crecimiento y mejora de las condiciones de vida.
De esta manera, en estrecha comunicación con la comunidad, se conocieron las necesidades de los pobladores en relación con la rehabilitación del centro deportivo y cultural. Así, se definió como objetivo general de proyecto: Construir un centro comunitario para contribuir al fortalecimiento de capacidades de resiliencia en la comunidad de Xoxocotla y rehabilitar la unidad deportiva dañada por los sismos de 2107.
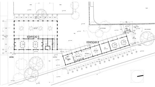
El centro comunitario se divide en dos edificios conectados a través de un pórtico común (Figura 1). Los edificios están modulados a partir de claros de 2,40 m. y 4,80 m. El edificio 1, es el edificio más alto, con 6,48 m de altura. En este edificio se ubican tres baños, un espacio cerrado para diferentes talleres, una sala grande, semiabierta (de usos múltiple), un local para almacenamiento donde se ubica el tinaco, un vestíbulo de acceso y un tapanco multiusos. El edificio 2, más pequeño, cuenta con 5 espacios cerrados para para aulas didácticas/talleres y un local para oficinas.

El sistema estructural utilizado es mixto. La estructura portante del edificio 1 es de acero, mientras que la estructura del edifico 2 es de mampostería confinada con castillos y cadenas de concreto armado. En ambos edificios, los muros divisorios son de bloques de tierra comprimidos (BTC). Estas estructuras soportan la techumbre que en ambos edificios es de lámina acanalada. La estructura mixta para los dos edificios que integra acero y BTC, es de tipo “Mattone”, tecnología desarrollada por Roberto Mattone profesores del politécnico de Turín [9].
Ámbito ambiental
Se desarrollaron diferentes estrategias de diseño bioclimático para lograr una mejor integración con el medioambiente. Considerando el clima cálido y seco de Xoxocotla, y de esta región de Morelos, se tomó la decisión de orientar el conjunto arquitectónico a lo largo del eje norte-sur, limitando la exposición solar. La presencia de pórticos en los dos edificios permite restringir la radiación directa sobre las paredes de mampostería, disminuyendo así el calor al interior. Las techumbres ligeras en los dos edificios permiten dejar abiertas superficies de ventanas para garantizar la ventilación cruzada en todos los locales. Un sistema de plafones de carrizo 2 permite evitar la irradiación solar de la techumbre; las puertas y las ventanas de carrizo entretejido también permiten el paso de aire y luz hacia el interior, limitando la radiación solar. La lámina está recubierta con pintura aislante, para disminuir el calentamiento del edificio.
La construcción con BTC permitió rapidez de construcción y una arquitectura que integra materiales tradicionales con tecnologías contemporáneas 3 (Figura 2). Las características mismas del bloque permiten unas mejores condiciones ambientales adentro del edificio y una notable apariencia estética del material, ahorrando en materiales de recubrimiento.
En el edificio 1, la estructura metálica de marcos rígidos de perfiles estándar de acero se combina con muros de mampostería de BTC, con juntas elásticas entre tierra y acero; mientras que en el segundo edificio el mismo muro de BTC reforzado con elementos puntuales de concreto armado, trabaja como mampostería confinada y sujeta la techumbre de IPR de acero con techo de lámina. La cimentación en este último edificio es de mampostería de piedra local.
Ámbito económico
Las decisiones estructurales, las tecnologías, y los materiales, permitieron ahorros de tiempo en los trabajos de construcción del centro comunitario. La producción completa del BTC se logró en tres meses para los dos edificios con trabajadores locales formados a través de talleres participativos. Los materiales empleados y dejados aparentes también han representado un ahorro importante.
Cabe mencionar que el 80% de los materiales utilizados para el centro comunitario son reciclables: mampostería de piedra, acero, BTC y carrizo, limitando el uso de concreto armado solo en parte de la cimentación y en los refuerzos de muros de mampostería. El aparejo del BTC con machihembrado, permitió el colado adentro de los contrafuertes, ahorrando en cimbra de madera. Las cancelerías de puertas y ventanas integran marcos de acero y entretejido de carrizo también comprado in situ. (Figura 2)
De esta manera se logró un coste de construcción por metro cuadrado inferior al coste medio de construcción de una vivienda de interés social en México [10].

Ámbito social
El integrador social empezó con la realización de talleres participativos para conocer los problemas y las necesidades de la población (Figura 3). El proceso no siempre es fácil y evidente ya que existen muchos problemas de violencia, de género y de división social. Algunas veces esperando la participación de niños, de jóvenes, de mujeres para conocer sus expectativas en relación con un nuevo espacio que respondiera a sus necesidades, llegaban adultos, la mayoría o la totalidad siendo hombres, a expresar sus propias necesidades algunas ajenas al resto de la comunidad.

El proyecto desarrolla diferentes estrategias de integración social, a corto y largo plazo. La tipología arquitectónica del centro comunitario está pensada para el planteamiento de diferentes funciones y usos en el futuro, permitiendo el desarrollo de actividades con diferentes capacidades para los diversos tipos de usuarios.
El centro tiene como finalidad el aprendizaje de la comunidad de Xoxocotla, a través de actividades lúdicas, recreativas y culturales, que completan las del centro deportivo, que también se ha intervenido con pequeñas mejoras de sus instalaciones.
A mediano y largo plazos, el centro funcionará para contener una serie de actividades, ligadas al desarrollo de los jóvenes y los adultos mayores, una parte del edificio 2 será dedicada a una pequeña mediateca para la navegación gratuita en el internet. Otros espacios en este mismo edificio serán dedicados a oficinas y pequeños talleres. En el edificio 1 se propone un gran salón multiuso para el baile, el deporte y otros eventos y otro espacio grande que funcionará como taller para artes y cocina. Este edificio, dispone de baños y un tapanco 4 para relajación, lectura y/o actividades lúdicas.
El proceso de construcción con BTC permitió la capacitación e inclusión de un número creciente de trabajadores y maestros dentro del proceso de construcción del centro comunitario de Xoxocotla. Este fenómeno es un gran éxito social de la obra, tanto por la formación técnica de los albañiles locales, que han podido ampliar sus conocimientos técnicos, así como por la posibilidad de establecer conexiones culturales y de hermandad entre diferentes culturas del país: la convivencia entre la empresa foránea y trabajadores locales.
La unión de esfuerzos de diferentes actores se expresa en el tipo de proyecto arquitectónico desarrollado, su calidad y su carácter innovador. El equipo de producción no sólo respetó tiempos y calidades de producción de los bloques y su montaje, sino también aprovechó los talleres de capacitación, participando activamente en el proceso de mejora de los estándares de producción. Seguros de los conocimientos adquiridos, el equipo de trabajadores capacitados en BTC (locales y foráneos) ofrecen ahora sus conocimientos para futuros trabajos de arquitectura a realizarse con esta tecnología (BTC estabilizado), demostrando actitud y conciencia; hecho de haber aprendido muchos de sus secretos.
Conclusión
La realización del proyecto y la construcción del Centro Comunitario Cuexcomate en el municipio de Xoxocotla, Morelos, México, muestra la importancia de mejorar social e integralmente el hábitat, principalmente en las comunidades más vulnerables.
La existencia de espacios públicos de convivencia, materializados en parques, jardines, plazas y centros comunitarios, son elementos construidos que le otorgan al hábitat las cualidades necesarias para la convivencia social que motiva la cohesión de la población y la posibilita a crear procesos de apropiación del espacio; es decir, la creación de espacios físicos crea espacios sociales, económicos, ambientales y culturales generadores de mejores condiciones de vida y por lo tanto de resiliencia.
La construcción del Centro con bloques de tierra comprimida (BTC) sintetiza los tres ámbitos de la sustentabilidad: social económico y ambiental; generando una arquitectura sustentable. El enfoque socio-ambiental del proyecto empieza con el nombre “Cuexcomate”, representando una relación armoniosa con el medio ambiente. En el ámbito ambiental se emplearon estrategias del diseño bioclimático que, aunadas a las características propias de los muros de tierra, generan mejores condiciones ambientales; en el ámbito económico se logró un precio óptimo gracias a los materiales y a la mano de obra local; en el ámbito social, el proceso comunitario de la elaboración de BTC permitió capacitación, participación e integración social.
Los procesos de construcción de resiliencia pueden considerarse dentro del ciclo de la gestión integral de riesgos de desastre, siendo importante, en la fase de reconstrucción, la creación de mejores condiciones, físicas y sociales, a las que existían antes del desastre. Es decir, en el momento de la reconstrucción se pueden aumentar las capacidades frente a los riesgos existentes.
La construcción de capacidades es un proceso comunitario. Por tal razón, la realización del Centro Comunitario Cuexcomate se realizó por medio del diseño participativo, implementado los principios de la producción social del hábitat y con metodologías de co- producción que permitieron que los nuevos espacios urbano- arquitectónicos generen nuevas formas de habitar y de ser, disminuyendo vulnerabilidades y construyendo procesos de resiliencia.
Agradecimientos
Se agradece profundamente a todos los que han permitido, ayudado y colaborado con la obtención de los resultados referidos en este artículo, y sobre todo realizado del Centro Comunitario Cuexcomate. Al promotor: Fundación Panamericana para el Desarrollo México (PADF-México); a los proyectistas: grupo de arquitectos Re:Lab (Federico Colella, Aleyda Reséndiz, Brenda Hernández, Riccardo Caffarella); a la empresa contratista: Diseño & Construcción; a la colaboración académica en los estudios preliminares de la tierra para la elaboración de los BTC: Dr. Luis Fernando Guerrero Baca y arquitecta Gloria Mattone. Principalmente a la comunidad de Xoxocotla, y en especial los representantes de la Unidad Deportiva, quienes han sido, a lo largo de la realización de este proyecto, los principales participantes.
Referencias bibliográficas
Reséndiz, A; Hernández, B; Caffarella, R; Toledo, A; Attie, S; Guerrero, F. Casas bellas, seguras y confortables. Resiliencia social y ambiental. En Benach N, Alió MA, Aco B, Rojas CJ, editores. La participación ciudadana en los procesos de hacer ciudad. España: Colección Geocrítica de Textos Electrónicos, Universitat de Barcelona; 2019. p. 146-157.
Alpuche, O. El saber tradicional del cuexcomate en Morelos. México: Universidad Autónoma del Estado de Morelos; 2015.
Ortiz, E. Integración de un sistema de instrumentos de apoyo a la producción social de vivienda. México: Hic-al; 2007.
García-Casillas, EM. Diálogos: habitabilidad en el espacio doméstico. En García-Casillas EM, Jiménez-Vaca A, coordinadores. Arquitectura y vida cotidiana en México. México: Ediciones Navarra; 2020. p. 46.
Espinoza-López, AE; Gómez-Azpeitia, G. Hacia una concepción socio-física de la habitabilidad: espacialidad, sustentabilidad y sociedad. Revista Palapa, 2010; 5(10): 59-69.
Reséndiz, A. Urban Resilience and Post-Disaster Reconstruction. Evidences from Mexico and France. In Brunetta G, Caldarice O, Tollin N, Rosas-Casals M, Morató J, editors. Urban Resilience for Risk and Adaptation Governance (Theory and Practice). Suiza: Springer Nature; 2019. p. 267-280.
Meerow, S; Joshua, NP; Stults, M. Defining urban resilience: A review. Landscape and Urban Planning. 2016; 147: 38-49. Disponible en: https://www.sciencedirect.com/science/article/pii/S0169204615002418
Wisner, B; Blaikie, P; Cannon, T; Davis, I. At risk: natural hazards, people's vulnerability and disasters. 2a ed. Londres: Routledge; 2003.
Mattone, Massimiliano. L’Azzociazione “MATTONE SU MATTONE” [Internet]. 2023 [Consultado: 25 de mayo de 2023]. Disponible en: Disponible en: http://www.mattonesumattone.eu/Index/associazione.asp
Diario oficial de la federación. Costos por metro cuadrado de vivienda de interés social. Diario oficial de la federación, acuerdo ACDO.AS2.HCT.260122/13.P.DIR 13 (10/02/2022). Disponible en: https://www.dof.gob.mx/nota_detalle.php?codigo=5642456&fecha=10/02/2022#gsc.tab=0
Notas
Notas de autor
* Autor para la correspondencia: aresendizv@ipn.mx
Declaración de intereses