Resumen: El presente documento de trabajo analiza la importancia de un inmueble ubicado, desde principios del siglo xx hasta nuestros días, en el primer cuadro del puerto de Progreso. Se recopilan datos históricos así como arquitectónicos para dar un panorama de la transformación del lugar y la continuidad de la tradición de tomar café. Como objetivo principal, se trata de preservar el predio denominado “El Cordobés”, ya que forma parte del patrimonio cultural de los progreseños y constituye uno de los pocos lugares que todavía no sucumbe ante el embate del desarrollo.
Palabras clave:cafécafé,patrimoniopatrimonio,ProgresoProgreso.
Abstract: The present Working Paper is focus in analyzing the importance of a building located, since the beginnings of the 20th century to our days, in the downtown of Port Progreso. The present work compiles historic and architectural data to give a panorama of the transformation of the place and the continuity of drinking coffee tradition. The main goal is to preserve the place known as “El Cordobés”, a coffee shop that forms part of progreseños cultural patrimony, and constitutes one of the few spots that have not yet succumbed by modern development.
Keywords: Coffee, Patrimony, Progreso.
Documentos de trabajo
Crónica de una tradición: café "El Cordobés", Progreso, Yucatán

Recepción: 12 Noviembre 2010
Aprobación: 25 Marzo 2011
El gusto por saborear una rica taza de café o té comenzó en el puerto de Progreso, gracias a la influencia de inmigrantes españoles y libaneses que vivían en esa localidad, además de los visitantes que llegaban a Yucatán en barco desde finales del siglo xix. En esos años se abrieron diversos locales que funcionaban como restaurantes y cafeterías como “El Casino”, “El Bosque”, “El Faisán de Oro”, o “La Estrella de Oro”, los cuales estaban dirigidos a la sociedad progreseña, así como a los viajeros que arribaban al puerto y querían degustar un buen café, un vaso de leche, chocolate o sodas, entre otros productos (González Monterrubio, 2005).
Uno de los puntos de referencia con mayor importancia en el puerto de Progreso, desde finales del siglo xix y principios del xx fue, sin duda, el antiguo predio número 29 en el cruce de las calles anteriormente denominadas la “Central” y la “Igualdad”; actualmente, número 150 de la calle 30 con 31 frente al parque “Independencia”, originalmente denominado “Zaragoza”, y cuyos linderos fueron en 1909: “[…] al norte solar con casa de Nicolás Martínez; al oriente casa de madera y teja de Antonio Acevedo Espejo; al sur calle y parque Zaragoza; y al poniente calle y casa de Arturo Echánove […]”.[1](figura 1).
En fotografías de principios del siglo xx tomadas a la plaza, se logra observar que el actual café “El Cordobés”, ya estaba funcionando bajo otra denominación y giro comercial, siempre vinculado a los alimentos, y algunas calles que lo circundaban, aún no se pavimentaban. Como se puede observar había árboles de pinos y almendros que se hallaban en el centro de la vía principal del puerto (figura 2). Nótese también la manta con la leyenda “La Moneda Rota”. Este era el título de una película de esa época y aquella era la forma de anunciar las nuevas cintas que se exhibirían en la ciudad (comunicación personal Romeo Frías Bobadilla 2010).


Negroe Sierra y Miranda Ojeda (2009: 30-31) nos mencionan que ya en 1861 se había establecido en la ciudad de Mérida, el primer local que se dedicaba a la venta de café y restaurante; propiedad de los señores Montillet y Company ubicado en la calle del Degollado. Sin embargo, fue realmente hasta 1875 cuando se instala, de manera formal, un establecimiento de café en el parque principal de aquella ciudad denominado “El Regalo”, propiedad de los señores Rivas Font, transformando la cafetería tradicional a semejanza de los cafés europeos, en los cuales se realizaban diversas actividades de entretenimiento, además del consumo de bebidas y comestibles, se jugaban cartas, ajedrez y dominó, entre otros.
No fue realmente hasta finales de la segunda década del siglo xx, en pleno apogeo del socialismo en el estado, es decir hacia 1918, cuando se instala en el puerto de Progreso, un establecimiento comercial llamado originalmente “Casino Obrero”, que contaba con una cafetería, un salón de billares y cantina. En él se reunían marinos de diferentes nacionalidades que provenían de los diversos vapores que llegaban al puerto, principalmente por el tráfico comercial de la fibra de henequén. La población en general se reunía, no sólo para tomar café y cerveza, sino para divertirse con juegos como el póker, billar, dominó, dados, panguingüe, o para discutir las noticias de los periódicos o leer un buen libro.
Como sucedía en otros centros de reunión de la población libanesa y española que vivía en Yucatán, aquel lugar de esparcimiento era bastante concurrido por los habitantes del puerto de esa época. El primer propietario de este establecimiento fue el señor Pedro León; quien además de comerciante era prominente político de la localidad así como promotor de asociaciones civiles (Frías Bobadilla, 2008: 7) (figura 3).
A través de la información obtenida en el Registro Público de la Propiedad de Progreso, Yucatán, sabemos que el señor Pedro León fue dueño no solamente de ese giro comercial “Casino Obrero” sino también del predio donde estuvo instalado durante los años de 1918 a 1928. Sin embargo, para 1925 es posible observar en anuncios publicitarios de revistas locales, que se menciona al mismo establecimiento, con un nuevo nombre Casino “Centro Obrero”, aunque del mismo propietario, el señor Pedro León, quien lo rebautizó así para esos años (figura 4).


Cabe mencionar que para 1928 cierra sus puertas,[2] cambia de dueño y de giro comercial, instalándose al año siguiente como “Café y Lunch Imperial”; dato que se corrobora por la nota periodística que dice:
Anoche fue inaugurado y abierto al público el elegante y céntrico restaurante y café “IMPERIAL”, del señor Olegario González, en el cruce de las calles 30 y 31; y para celebrar el suceso, su propietario obsequió a sus amistades con un lunch cerveza, amenizado por el concierto de “Chan Cil”,[3] contratado especialmente para esta fiesta (Diario de Yucatán, 29 de noviembre de 1929: 6) (figura 5).

Años después, se desconoce la fecha, el establecimiento fue vendido y adquirido por el comerciante Antonio Álvarez. Sin embargo, en 1933 los anuncios publicitarios hacen referencia al café y lunch “La Colmena” y en otras ocasiones se anunciaba como Salón Cerveza, Lunch y Cigarros “La Colmena” (dgp, 1933: 143).
En ese mismo año, este centro de reunión fue adquirido por la sociedad de origen español de Ángel Villegas y Jesús Alonso, quienes le cambiaron el nombre al establecimiento denominándolo “El Cordobés” confiriéndole, un toque internacional. Ángel Villegas nos mencionó que el nombre del restaurante fue en agradecimiento a uno de sus amigos que le prestó dinero para la adquisición del restaurante y quien se dedicaba a la venta y distribución de granos de café cuya marca llevaba por nombre “El Cordobés”,[4] que hasta hoy día subsiste. Esta información la podemos constatar gracias a una nota periodística:
Los comerciantes don Ángel Villegas y don Jesús Alonso, han adquirido por compra en esta ciudad el establecimiento denominado “La Colmena”, que fue del Sr. Antonio Álvarez. Para celebrar el suceso, los nuevos propietarios ofrecieron a sus amistades un lunch-cerveza (Diario de Yucatán, 8 de noviembre de 1933, 5).
El restaurante alcanzó su mayor apogeo y reputación durante la administración del señor Ángel Villegas. Se inició con la oferta de una serie de platillos de carácter internacional, al estilo de la cocina francesa, italiana y española (figura 6).
Se ofrecían productos importados como jamones, mortadela y chorizos españoles, vinos franceses, así como licores y cervezas de marcas nacionales e importadas.
Su inigualable café hizo de este lugar uno de los centros de reunión más importantes del puerto de Progreso, fue visitado no sólo por la clase política del puerto sino del estado, así como por los administradores de la aduana marítima, y dirigentes de agrupaciones obreras y artísticas de la época, entre otros comensales (figura 7).


También, el cambio se reflejó en el mobiliario y en la adquisición de una vajilla de porcelana con la impresión del nombre del establecimiento, esto le daba status, al lugar en relación con los demás restaurantes o fondas que había para esa época en el puerto de Progreso.
Afortunadamente, aún subsisten algunas de estas piezas cerámicas en colecciones privadas, hemos podido hallar tazas de porcelana con diseño de líneas doradas (874 c) enmarcando una banda en color lila (256 c), redelineada en color negro (419 c). Esta decoración impresa por transferencia sobre el vidriado, se ha perdido en algunos ejemplares, ya que no está protegida bajo el esmalte. Algunas tazas de esta vajilla tienen en la base la marca del país de origen en color gris (424 u): made in germany, junto a una pequeña flor estilizada (figura 8).

Todas llevaban una leyenda que dice: TOMEN CAFÉ DEL CORDOBÉS,[5] este modelo de tazas se utilizó para el servicio de “grecas” (pequeñas tazas de café) del restaurante.[6] Sus dimensiones son 6.2 cm de alto y 5.7 cm de ancho, con un diámetro en la boca de 4.7 cm y un grosor de 5 mm, no presentan marca de fabricación.[7]
El tiempo que Villegas y su esposa Manuela Giménez trabajaron este establecimiento, constituyó una de las mejores épocas del lugar, quizás propiciada por el auge económico de Progreso. Después de cinco años de haber administrado “El Cordobés”, Villegas lo vendió al empresario Miguel Vargas Tugores, como lo menciona el periódico local:
El importante establecimiento denominado “El Cordobes” de la propiedad del Sr. Ángel Villegas que por más de 5 años vino regenteándolo con verdadero éxito, con fecha de hoy ha pasado a poder del estimable comerciante Sr. Miguel Vargas T, por compra que hiciera al Sr. Villegas. El Sr. Vargas ha sido felicitado por la adquisición de este establecimiento, para festejar el suceso ofreció a sus amistades un espléndido lunch-cerveza (Diario de Yucatán, Nuevo propietario, 20 de marzo de 1938, 5).
La administración de Villegas, abarcó de 1933 hasta 1938 y tuvo tanto éxito que con el producto de su trabajo, puso una tienda de ultramarinos en los bajos del edificio del Ateneo, frente a la Plaza Grande de Mérida, cuando se mudó de este puerto (Frías Bobadilla, 2002: 5).
A través de una nota periodística, publicada en la prensa local, sabemos que en diciembre de 1946, el restaurante fue adquirido por Emilio Pech Uc, quien formaba parte de la directiva del sindicato de meseros de Progreso. Desconocemos cuántos años estuvo administrando el negocio y en qué momento lo traspasó al siguiente dueño. Sin embargo hasta 1950 aparece en el Directorio general de la península como el propietario del Salón de Cerveza “El Cordobés” (dgp, 1948-1950: 188, 193).
El administrador que más tiempo tuvo a su cargo el restaurante “El Cordobés” fue Almílcar Aguilar Alam, de origen libanés, quien estuvo al frente del negocio por más de 30 años.[8] Durante su administración se efectuaron cambios radicales tanto en el mobiliario del restaurante como en la imagen del mismo; modernizando el aspecto sobrio y característico de la década de 1930, para convertirlo en un café más moderno y acorde al gusto de la época. Lo anterior se constata a través de una nota periodística:
Bajo la dinámica administración del Sr. Almílcar Aguilar Alam, el café y restaurante “El Cordobes” uno de los más antiguos del puerto, enclavado en el corazón de la ciudad, ha sido totalmente remozado con pintura y nuevo alumbrado. Así mismo ha sido cambiado el antiguo mobiliario por uno nuevo de formica de diseño modernista… (Diario de Yucatán, Innovaciones en céntrico café, 13 de febrero de 1970, 10).
Actualmente, la dueña del establecimiento es la señora Ana María Tello, originaria de la ciudad de Campeche, con experiencia en la administración de restaurantes, quien lo ha dirigido cerca de dos décadas (figura 9). En el local, todavía se conserva funcionando la cafetera original que fue adquirida por Villegas.

Las primeras noticias que tenemos del predio son de 1890, la casa original funcionó como vivienda. Erigida de mampostería con cubierta de láminas de zinc, años más tarde tuvo techumbre de tejas de barro francés. De igual modo, contaba con un corredor de madera en el patio, época en la que su dueño fue el señor Eufemio Milán. Probablemente esta construcción, de estilo ecléctico, se edificó entre 1880 y 1885, en 1890 ya se había concluido[9](figura 10). En 1909, el dueño era Antonio Acevedo Espejo.

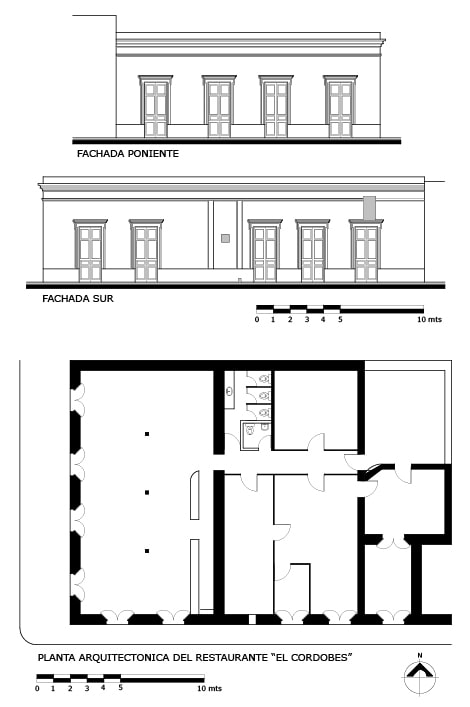
El inmueble es de un nivel, con la fachada principal que mira a la calle 30. Tiene cuatro puertas en esta fachada mientras que la del costado sur, que mira hacia el parque principal, o de Independencia, muestra cinco accesos. Al parecer, fue a finales de las décadas de 1950 ó 1960 cuando se le añade una quinta puerta debido a la adquisición del predio contiguo, lo que permitió que el local pudiera ampliarse. El nuevo acceso de la fachada sur se integró igualando alturas, decorados, así como proporciones similares; dándole integridad al conjunto arquitectónico.
La primera crujía del inmueble, donde se halla el restaurante y cafetería, está destinada para el servicio de los comensales. Tiene un claro de 8 m de ancho por 14.50 m de largo. Cuenta con tres pilares de madera tallada, dispuestos al centro de la crujía, en sentido norte sur (figura 11). Lleva un plafón que originalmente fue de madera, actualmente está conformado por paños de formica que permite ocultar la cubierta de lámina. Mientras que, en el resto de la construcción, el techo es una losa de bloques y vigas.

El techo es de láminas de zinc, mantiene una sola pendiente, donde la parte más baja se ubica en el extremo oriente, al centro del lote, en el corredor que está ubicado en el patio trasero. En la actualidad el área para los clientes se ha extendido al exterior, sobre la acera, donde las mesas son protegidas por un toldo, proporcionando un panorama agradable hacia el parque.
En la fachada sur, se observa un bajante de aguas pluviales empotrado en la pilastra que llega hasta el nivel de la calle. Probablemente este albañal siempre ha desalojado las aguas pluviales del techo.
En todas las fotografías, obtenidas tanto de los archivos particulares, como de diferentes documentos, se puede observar que la fisonomía del edificio no ha sufrido modificaciones radicales sino que ha permanecido igual desde finales del siglo xix hasta nuestros días. Por lo tanto, al haberse conservado por más de un siglo la perspectiva arquitectónica se convierte en una imagen distintiva del ambiente porteño.
También debe mencionarse que, en el entorno de la plaza principal de este puerto, la fachada de este edificio así como la del Palacio Municipal, son las únicas construcciones que desde 1890 no han sufrido cambios radicales en las mismas. A excepción de la edificación de la torre para la instalación del reloj y la estación meteorológica, erigidas en 1896.
Desde que se construyó este edificio, en la última década del siglo xix, y hasta 1918, fungió como casa habitación. Fue a partir de esta fecha, que el lugar albergó un casino y cafetería, años más tarde fue habilitado como restaurante. Cabe recordar que este predio es el único establecimiento comercial que ha perdurado desde los primeros años del siglo xx hasta ahora en el corazón de este puerto.
Desafortunadamente, no ha sido posible realizar excavaciones arqueológicas en el predio. Pues ello nos hubiera permitido obtener una secuencia cronológica preliminar, con base en los materiales culturales que se hubieran podido recuperar, y quizás constatar, por medio de los vestigios materiales y los diferentes establecimientos comerciales albergados ahí.
Actualmente, este restaurante es tan sólo un reflejo de aquél que vivió su época dorada de 1930 a 1950. En muchas ocasiones, estos lugares se constituyen en punto de reunión ya sea para concertar negocios, citas amorosas, recabar información de diversos tópicos, o simplemente para disfrutar una bebida o algún refrigerio.
Asimismo es posible decir que “El Cordobés” es también un escaparate del arte, ya que a finales de enero de 2010, una pareja de turistas, Richard y Martha, él escocés y ella colombiana, deleitaron a los parroquianos con conciertos flamencos (Frías Bobadilla, 2010). Él tocaba la guitarra y ella bailaba y cantaba. Se presentaron por más de una semana y lo único que pedían en retribución eran los aplausos del público, ya que estaban de visita en estas tierras, practicando un turismo cultural.
Hoy en día, el restaurante “El Cordobés” sigue prestando sus servicios a la clientela tanto local como foránea, constituyendo una verdadera tradición en el puerto de Progreso, que esperamos no sucumba ante el embate de los grandes capitales y la economía globalizadora. Es necesario enfatizar que, como hemos mencionado en trabajos anteriores, esta esquina constituye parte de la identidad de la población progreseña.[10]
Archivo fotográfico particular de Romeo Frías Bobadilla.
Archivo fotográfico particular de Luis Millet Cámara.










