Ciencias Exactas e Ingenierías
Sistema hidráulico impulsado por aire a presión para el mantenimiento de Octopus bimaculoides y O. bimaculatus
Hydraulic system impelled by air pressure for Octopus bimaculoides and O. bimaculatus maintenance
Sistema hidráulico impulsado por aire a presión para el mantenimiento de Octopus bimaculoides y O. bimaculatus
Entreciencias: diálogos en la Sociedad del Conocimiento, vol. 3, núm. 8, pp. 289-295, 2015
Universidad Nacional Autónoma de México

Recepción: 19 Junio 2015
Aprobación: 04 Noviembre 2015
Resumen: Los sistemas de recirculación acuícola marina (sram) utilizados en los cultivos experimentales e industriales de especies comerciales, actualmente tienden a desplazar el agua con el principio de la aplicación de la energía neumática generado por compresores o turbinas para evitar la utilización de motobombas. Los sistemas más comunes son “los impulsores de agua” o “airlift” que consisten en desplazar el agua de un tubo en cuya base se inyecta aire. El aquí descrito incluye una cámara de compresión interna que hace las veces de un pistón desplazador del agua. La estructura del sistema que se describe en este trabajo se caracteriza por su sencillez funcional, un mantenimiento mínimo y la conservación estable de los parámetros fisicoquímicos del agua que ha posibilitado la subsistencia de los pulpos Octopus bimaculoides y O. bimaculatus, sus desoves y el estudio de la eclosión de los juveniles y las paralarvas respectivamente. Las ventajas son amplias, toda vez que el experimentador tiene el control de los parámetros ambientales donde se mantienen a los organismos recluidos para conocer las respuestas a la hipótesis de su investigación.
Palabras clave: Sistema marino de recirculación, energía neumática, aire a presión, pulpos.
Abstract: The marine recirculation systems (sram) for the experimental and industrial cultures of commercial species, at the moment, tend to displace water with the principle of the application of air generated by compressors or turbines to avoid the use of pumps. The most common systems are “airlift” that consists of moving the water contained in a tube in whose base air is injected. The system described here includes an internal compression chamber that function as a piston displacing the water. The structure of the system described is characterized by its functional simplicity, a minimum maintenance and a stable management of the water physicochemical parameters that has made possible the subsistence of the pulpy Octopus bimaculoides and O. bimaculatus, its egg-layings and the study of the hatching of juveniles and paralarvae respectively. The advantages are wide, because the experimenter has all time the control over the environmental parameters of the organisms, to know the responses to the hypothesis of its research.
Keywords: Marine Recirculation System, pneumatic energy, air pressure, octopusi.
Introducción
En los últimos años, los sistemas de recirculación para la acuicultura se han perfeccionado y generalmente su enfoque es la reproducción de organismos de importancia acuícola (Timmons, Ebeling y Piedrahita, 2009). Libey (1993) menciona que los sistemas de recirculación acuícola se definen como el conjunto de procesos y componentes que se utilizan para el cultivo de organismos acuáticos. Los componentes que conforman estos sistemas incluyen los estanques para organismos, filtros y sistemas de tratamiento de agua que retorna a los estanques, después de pasar por un tratamiento a través de sistemas de filtración biológica y mecánica (Timmons Ebeling y Piedrahita, 2009; Hernández-Barraza, Aguirre-Guzmán y López-Cantú 2009). Sin embargo, los laboratorios que se dedican a la investigación básica y aplicada en esta temática requieren diseñar los sistemas que permitan mantener a los organismos en un ambiente libre de estrés, además de lograr un bajo costo.
En este trabajo se deja constancia del proyecto de construcción de un sistema eficiente de recirculación de agua para mantener adultos y larvas de organismos marinos, utilizando sólo la presión del aire generada en turbinas alejadas del conjunto para evitar la generación de ruidos y vibraciones que perturben a los animales recluidos (Morgan y Tromborg, 2007). Con una sola fuente de energía para impulsar, airear y degasificar el agua, los cultivos experimentales reducen la inseguridad de trabajar con motobombas que por su forma de operar, pueden causar ruidos que afectan a los organismos cultivados generando respuestas biológicas inesperadas.
Materiales y métodos
La infraestructura del sistema de recirculación acuícola marina (sram) está constituida por dos sistemas independientes con el mismo diseño básico para aumentar la seguridad, evitar la contaminación cruzada y expandir la versatilidad de investigación.
La descripción del conjunto se hace solamente con uno de los sistemas en el entendido que el otro es idéntico.
Cada sistema está constituido por un filtro biológico que surte a siete estanques de mantenimiento o cultivo de organismos con una capacidad de 500 litros cada uno. La descripción del sistema sigue la trayectoria del agua, comenzando por el filtro biológico (fig. 1). El aire que suministra al sistema hidráulico proviene de turbinas que surten a todo el Departamento de Acuicultura del Centro de Investigación Científica y de Educación Superior de Ensenada (cicese).

A la izquierda se observan dos filtros biológicos con sus respectivos sistemas para impulsar el agua. Cada filtro biológico mantiene la recirculación del agua de siete estanques. La estructura de madera sirve para sustentar los estanques y a las tuberías que reparten el aire y el agua a cada uno de los estanques de mantenimiento.
Fuente: elaboración propiaUn estanque de 3.28 m3 (3 mil 280 litros) funciona como filtro biológico independiente. La superficie del espejo de agua del filtro biológico se cubrió con bolsas llenas de bolitas de poliuretano (pellets) que constituyen los filtros biológicos y sobre ellas se colocaron láminas de poliuretano de 2" de grosor para aislarlas del calor del ambiente y disminuir la evaporación; además, todo el estanque se cubrió con una lona plástica de color blanco para reflejar la luz e impedir el crecimiento de macro y microalgas dentro del filtro.
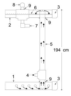
El agua del estanque sale por la base inferior externa del filtro biológico a través de ocho tubos de PVC de 1 ½ “que se reduce a ¾" de Ø antes de entrar al cilindro receptor (fig. 2 - 3). La localización de cada salida se ubica en un cuadrante de la base del filtro para evitar zonas anóxicas durante el funcionamiento. Todas las tuberías confluyen a un cilindro receptor inferior de 6" de Ø (fig. 2). El cilindro de 120 cm (6" de Ø) constituye el receptor inferior del agua filtrada que es impulsada por aire a presión a 1.94 m de altura a través de dos tubos verticales de 2" Ø modificados en los extremos inferior y superior con cisuras que permiten la circulación del fluido (fig. 3). En estos tubos también se insufla aire a presión que decanta el agua en el cilindro receptor superior (6" de Ø) instalado a 1.84 cm de altura (para superar el nivel del espejo de agua de los estanques de cultivo) modificado como se muestra en la figura 4-5. Las flechas más densas del esquema de la figura 4 muestran el recorrido del agua del cilindro inferior al superior y las flechas cortadas la acción del aire a presión.

Las barras grises (1) constituyen la base de madera de 4 x 4 pulgadas del filtro biológico que lo separa del suelo. Se ilustran ocho (2) salidas de PVC de 1½" de Ø que conducen el agua al cilindro receptor inferior de 6" Ø (3) del sistema.
Fuente: elaboración propia

Arreglo para impulsar y repartir el agua en los estanques de mantenimiento. 1: Filtro biológico; 2: Base de madera; 3: Cilindro inferior receptor de agua; 4: Aire a presión; 5: Cilindro superior receptor de agua; 6: Retorno del agua sobrante al filtro biológico; 7: Tubería que distribuye el agua a los estanques; 8: Llaves de paso para el agua que entra por gravedad y también para el aire a presión a los estanques; 9: Estanque de mantenimiento; 10: Desagüe recolector; 11: Válvula unidireccional o anti retorno; 12: Cilindro neumático; 13: Tuberías que distribuyen el agua sobre la superficie del filtro biológico.
Fuente: elaboración propia

Se ilustra el recorrido del agua (flechas densas) y del aire insuflado (flechas cortadas). 1: Cilindro inferior receptor del agua proveniente del filtro biológico; 2: Cilindro superior de descarga del agua transportada por el aire a presión; 3: Tapón de PVC de 6" de Ø; 4: entrada del aire a presión; 5: Tubo de 2" de Ø con muescas o cisuras en sus extremos para elevar y liberar el agua desde el cilindro inferior al superior; 6: Nivel variable del agua; 7: Salida para la distribución del agua en los estanques; 8: Tubería que devuelve el exceso de agua al espejo del filtro biológico; 9: Sellos de hule.
Fuente: elaboración propiaDel cilindro receptor superior sale una red de distribución (de 2" pulgadas de Ø) que provee de agua por gravedad a siete estanques de cultivo de polietileno reciclado de color marrón, levemente cónicos, de 500 litros de capacidad cada uno (fig. 5). Al centro de la tapa del estanque se le perforó un círculo para instalar una malla sombra que filtra 90% de la luz que permite conservar el ritmo circadiano de los animales y también la entrada del agua y del aire. Cada estanque de polietileno (90 cm de alto x 89 cm de Ø) tiene un tubo central de PVC (2" de Ø) como desagüe central y sobrepuesto un tubo externo de PVC de 2½" que permite según el diseño, extraer desde el fondo material suspendido en el agua que se pueda acumular durante el cultivo (fig. 5). Todos los estanques están instalados sobre una estructura de madera de dos pulgadas de grosor a 40 cm del suelo, que permite al desagüe central de cada estanque de mantenimiento conectarse con un recolector de agua de 3" de Ø (tubo de ABS) que la retorna al filtro biológico a través del efecto mecánico del cilindro neumático (fig. 6).

1: Estanque de polietileno reciclado; 2: Tapa; 3: Aire a presión con piedra de aireación; 4: Agua del sistema de recirculación; 5: Tubo de desagüe externo con malla; 6: Tubo de desagüe interno; 7: Recolector de agua.
Fuente: elaboración propiaEl cilindro neumático diseñado como receptor del agua que retorna de los estanques al filtro biológico, utiliza la energía neumática del aire a presión, para generar un trabajo que impulsa y recircula el agua de cada sistema (Kassab et al., 2008). El cilindro (o bomba) neumático (de 6" de Ø) se caracteriza porque el tubo central (de 2" de Ø) está separado del fondo del tapón plano de PVC, sólo cinco mm. El aire a presión entra por la parte superior del tubo de PVC (indicadas en la figura 6 con flechas cortadas) para ejercer fuerza sobre la superficie del agua del cilindro simulando un pistón y empujar mecánicamente el fluido acumulado a través del tubo central, hasta el espejo de agua del filtro biológico correspondiente (fig. 6). Este cilindro neumático se diferencia de los cilindros típicos porque no tiene un pistón. Bückle, en 1965, configuro este principio para un micro acuario que permitió estudiar la etología de Heterotanais oestedii (Crustacea, Tanaidacea) y para hacer las observaciones del comportamiento reproductor de esta especie. El microacuario invertido se articulaba sobre la platina del microscopio mientras se recirculaba el agua en su interior. En contraposición a este principio, el funcionamiento de un sistema de recirculación típicamente es impulsado por motobombas (Bückle et al., 1990; Kubitza, 2006). En la actualidad los airlift se están utilizando, con más frecuencia en las grandes industrias de acuicultura que funcionan con agua recirculada. La combinación e integración del hidroneumático y los impulsores de agua al sistema combinan dos principios que permiten la operación eficiente que elimina las motobombas y reduce el coste en el uso de energía eléctrica.

Las flechas más densas indican el recorrido del agua del desagüe recolector y las flechas cortadas el empuje del aire a presión. 1: Desagüe recolector de los estanques de mantenimiento; 2: Válvula unidireccional; 3: Válvula de paso de ½" para regular el aire a presión. 4: Agua que retorna al espejo del filtro biológico. 5: Tapón plano de 6 " de Ø; 6: Cilindro de 60 cm de alto: 7. Sello de hule. El tubo central de 2" de Ø está separado por cinco mm del fondo de la pared del tapón.
Fuente: elaboración propiaSe calculó el número de veces promedio que se reemplazaba toda el agua de cada estanque de mantenimiento en un día, como metros cúbicos de agua recirculada por día, divididos por el volumen total del sistema [m3 • día ÷ V (m3 estanque)]. La mezcla o dilución del agua remplazada depende del diseño del sistema, por tal existe una fracción del agua que queda retenida en todo el sistema. Esta fracción del volumen del agua que no recircula se calculó aplicando la ecuación Q = (m3 • h-1) ÷ V (m3 estanques) (Food and Agriculture Organization [fao], 1986). Además, se registraron los parámetros fisicoquímicos de temperatura, salinidad y la concentración de oxígeno con un medidor multiparámetro YSI 60 (Modelo 60/10 FT); con el colorímetro Hach DR / 890 se midieron el nitrógeno amoniacal (mg NH3-N • L-1), nitrito (mg NO2-N • L-1) y nitrato (mg NO3-N • L-1).
Resultados y discusión
El diseño del sistema se caracteriza por su sencillez funcional y porque la atención al mantenimiento es mínimo. La calidad del agua conserva una condición estable de los niveles de temperatura, salinidad y concentración de oxígeno disuelto, como se ilustra en la tabla 1(Hernández et al., 2012). La concentración de nitrógeno amoniacal, nitritos y nitratos en los filtros biológicos fue en promedio de 0.097±0.067, 0.043±0.031 y 31.32±5.39 mg/L respectivamente, y en los estanques los valores fueron de 0.13±0.038, 0.028±0.005 y 31.88±5.01 mg/L respectivamente. Estos valores atañen a los dos sistemas.

El sistema hidráulico descrito ha funcionado cinco años ininterrumpidamente. En este sistema de mantenimiento y cultivo de organismos acuáticos se realizaron investigaciones de reproducción de Octopus bimaculoides -Pickford y McConnaughey, 1949- de las costas del Pacífico y de Octopus bimaculatus -Verril, 1883- que se localizan en el Pacífico y también en el Golfo de California, México.
El alimento que se les proporcionó durante las investigaciones fue esencialmente organismos filtradores como Mytilus galloprovicialis -Lamarck, 1819-; Metacarcinus magister -Dana, 1852-, Syn. Cancer magíster -Dana, 1852-; Cancer antennarius, -Carroll, 1989-, Cancer productos -Randall, 1839-. Para mantener la calidad del agua recirculante, los restos de las conchas de los moluscos consumidos por los pulpos, las fecas y las pseudoheces de los bivalvos fueron sifonadas del fondo de cada estanque antes de renovar la alimentación.
En cada estanque de mantenimiento se instaló una piedra de aireación para mantener el nivel de oxígeno disuelto y la recirculación interna del agua (fig. 5). Además, en el fondo del estanque se colocó una vasija de greda que los pulpos utilizaron como refugio y también para fijar en su interior los desoves que ventilan meticulosamente para resguardar la eclosión de los juveniles (O. bimaculoides) y las paralarvas (O. bimaculatus).
Forsyte y Hanlon (1980) cultivaron exitosamente Octopus joubini en un sistema de recirculación a nivel de laboratorio, el cual estaba constituido por acuarios para el acondicionamiento del agua circulante y otros para la manutención de los organismos. Después de las cópulas, las hembras cuidaron los huevos, que una vez eclosionados, tenían una alta tasa de supervivencia: crecieron y alcanzaron la madurez sexual. Con el mismo sistema, DeRusha, Forsyte y Hanlon (1987) estudiaron el ciclo de vida de Octopus diguetti. En el presente sistema, con un gran espacio y volumen de agua disponible, los pulpos O. bimaculoides y O. bimaculatus desovaron exitosamente y se alcanzó la eclosión de los juveniles y las paralarvas.
A este conjunto, constituido por dos sistemas independientes, también se les puede agregar inmediato al filtro biológico, un bomba de calor para trabajar con temperaturas menores a las del ambiente o para aumentar y mantener la temperatura de cultivo. Esta posibilidad es importante porque Forsyte y Hanlon (1988) cultivaron O. bimaculoides exitosamente en dos regímenes térmicos de 18 y 23º C para conocer el crecimiento de la especie y concluyen que el desarrollo temporal se acorta de 16 a 13 meses en la medida que aumenta la temperatura.
En esta descripción sobre el funcionamiento de uno de los dos sistemas, el volumen total de agua recirculada, incluyendo el agua del filtro biológico, es de 6780 litros. El volumen máximo de agua recirculable es de 7.6 ± 0.8 L • s (= 476 L • h). El agua de cada estanque de mantenimiento (500 litros) es remplazada 22 veces al día y el tiempo promedio de residencia es de 0.007 m3 • h-1, es decir 0.168 m3 • día -1 (fao, 1986). La retención de agua del sistema es marginal, lo cual refleja la intensidad y la capacidad de la dinámica hidráulica impulsada por la energía del aire a presión ejercida (fig. 3, #4) dentro del cilindro neumático (fig. 3 #12).
El diseño del impulsor del agua con energía neumática para la recirculación del sistema resultó altamente efectivo y sin requerimientos de mantenimiento. La recirculación del agua es efectiva mientras el aire generado por una turbina mantenga la presión continua.
En el transcurso del funcionamiento del sistema, particularmente en el verano, se evapora agua en todos los recipientes que debe sustituirse con agua dulce para conservar la concentración salina, el volumen recirculante y evitar un cambio en la calidad del agua. Para precaver situaciones extremas al respecto, sobre los dos sistemas se instaló una infraestructura de madera a 233 cm del suelo con una cubierta de malla sombra (con 90% de retención) para reducir la exposición de los estanques al efecto directo de la radiación solar y para mantener el ritmo circadiano de los animales.
Badiola, Mendiola y Bostock (2012) plantearon el mejoramiento funcional de los sistemas de recirculación, y, en efecto, este procedimiento ya se está llevando a niveles industriales en los cultivos de salmones, como lo indica el documento que analiza el impacto ambiental de la Piscicultura de Recirculación Astilleros Calbuco (Sealand Aquaculture, 2013), que en su primer año de funcionamiento producirá 7 millones 200 mil 000 smolts de 100 g hasta 14 millones 400 mil 000 alevines en el quinto año de operación. Los sistemas de recirculación de esta piscifactoría devolverán al mar cantidades mínimas de agua tratada.
En México es necesario impulsar fuertemente el uso de los sram y el diseño y perfeccionamiento de estos sistemas serán fundamentales para la experimentación y su escala en la producción de organismos de importancia económica y con potencial.
Agradecimientos
Esta investigación fue financiada por el Gobierno federal de México a través de fondos regulares del Centro de Investigación Científica y Educación Superior de Ensenada (cicese), Proyecto 623151.
Referencias
Badiola M. Mendiola D, y Bostock J. (2012) Recirculating Aquaculture Systems (RAS) analysis: main issues on management and future challenges. Aquacultural Engineering, 5, 26-35.
Bückle R. L. F., Morales G. E. R., Valenzuela B. F., y Flores A. N. (1990). Guía General del Laboratorio de Acuicultura. Centro de Investigación Científica y Educación Superior de Ensenada, México. Informe Especial.
DeRusha, R. H., Forsyte, J. W., y Hanlon, R. T. (1987). Laboratory Growth, Reproduction and Life Span of the Pacific pygmy octopus, Octopus digueti. Pacific Science, 41, 104-121.
Food and Agriculture Organization [fao] (1986). Flow-through and recirculation systems. European Inland Fisheries Advisory Commission. Recuperado de: http://www.fao.org/fileadmin/templates/wsfs/docs/Issues.
Forsyte, J. V. y Hanlon, R. T. (1980). A closed marine system for rearing Octopus joubini and other large-egged benthic octopods. Recuperado de: http://lan.sagepub.com/content/14/2/137/
Forsyte, J. V., y Hanlon, R. T. (1988). Effect of temperature on laboratory growth, reproduction and life span of Octopus bimaculoides. Marine Biology, 98, 369-379.
Hernández-Barraza, C.A., Aguirre-Guzmán, G., y López-Cantú, D.G. (2009). Sistemas de producción de acuacultura con recirculación de agua para la región norte, noreste y noroeste de México. Quinta Época, XIII (25), 117-130,
Hernández, R. M., Bückle, R. L. F., Cordero, E. B., Barón, S. B., López, P. D., Díaz, S. M., Espinoza, I. J., Murillo, V. L. A., Celaya, O. A. y Valenzuela, B. F. (2012). Construcción y operación de un sistema para el cultivo experimental de la paralarva del pulpo manchado Octopus bimaculatus. Ensenada: Centro de Investigación Científica y de Educación Superior de Ensenada.
Kassab, S. Z., Kandil, H.A., Warda, H. A., y Ahmed, W., H. (2008). Air-lift pumps characteristics under two-phase flow conditions. Recuperado de: doi:10.1016/j_ijhea tfluid dflow.2008.09.002.
Kubitza, F. (2006). Sistemas de Recirculación Cerrada. Recuperado de http://www,minagri,gob,ar/SAGPyA/pesca/acuicultura/01=Cultivos/03-Otros_Sistemas/_archivos/000004_Sistemas%20de%20recirculaci%C3%B3n%20cerrada,pdf.
Sealand Aquaculture (2013). Informe Consolidado de la Evaluación de Impacto Ambiental de la Declaración de Impacto Ambiental del Proyecto "Piscicultura de recirculación astilleros,comuna de calbuco, provincia de llanquihue, décima región de los lagos” "Pisciculturarecirculación astilleros, calbuco". Recuperado de: http://infofirma.sea.gob.cl/DocumentosSEA/MostrarDocumento?docId=ee/7c/beeaf786f4798074f4b2e3e39a013717e8a8.
Libey, G. S. (1993). Evaluation of a Drum Filter for Removal of Solids from a Recirculating Aquaculture System. In: Techniques for Modern Aquaculture. Proceedings of an Aquacultural Engineering Conference. Spokane, Washington.
Morgan, K. N. y Tromborg, C.T. (2007). Sources of stress in captivity. Applied Animal Behaviour Sciences, 102, 262-302.
Timmons, M.B., Ebeling, J.M. y Piedrahita, R.H. (2009). Acuicultura en sistemas de recirculación. NY: Cayuga Aqua Ventures.
Notas de autor