Eficiencia Energética en Luminarias: Estudio de Caso
Energy Efficiency in Luminaires: Case Study
Eficiencia Energética en Luminarias: Estudio de Caso
Ingeniería, vol. 21, núm. 3, pp. 1-12, 2017
Universidad Autónoma de Yucatán

Recepción: 21 Junio 2017
Aprobación: 28 Diciembre 2017
Resumen: En el presente trabajo, se ha realizado un estudio de caso realizado a un aula de clases dentro de las instalaciones de la Facultad de Ingeniería de la Universidad Autónoma de Yucatán. Se han estudiado las luminarias para presentar una serie de propuestas considerando las condiciones óptimas de iluminación para el desarrollo de actividades escolares con base a la Norma Mexica 025-STPS. Se midió el nivel de iluminación actual del aula de clase y a partir de los resultados obtenidos se realizaron simulaciones computacionales a través del software Dialux Evo 7 para comparar diferentes alternativas de iluminación. Se realizó el análisis comparativo de las luminarias y se han obtenido ahorros energéticos de más del 50 %.
Palabras clave: Eficiencia energética, flujo lumínico, iluminación, lúmenes, luminarias.
Abstract: In the present paper, a case study was carried out in a classroom within the facilities of the Faculty of Engineering of the Autonomous University of Yucatan. The luminaires were studied to present a series of proposals considering the optimal lighting conditions for the development of school activities based on the Mexican Standard 025-STPS. The current level of illumination of the classroom was measured and from the obtained results we did computational simulations through Dialux Evo 7 software to compare different lighting alternatives. The comparative analysis of the luminaires was carried out and we obtained energy savings of more than 50 %.
Keywords: Energy efficiency, luminous flux, Illuminance, lumens, luminaires.
Introducción
Gracias a la iluminación eléctrica se ha podido ampliar el horario de actividades del ser humano en periodos en donde la iluminación no era suficiente, convirtiéndose con el paso del tiempo en un factor fundamental para el desarrollo de las sociedades.
En el contexto del calentamiento global y la disminución de los recursos naturales de energía, es esencial centrarse en la reducción del consumo de energía en los edificios, especialmente en los edificios educativos en sus áreas de trabajo y la necesidad de gran energía de iluminación (İnan, 2013). La mayoría de los combustibles fósiles se utilizan para generar electricidad en los edificios (Freewan, 2011). Sin embargo, el uso de tales recursos energéticos causa problemas ambientales como los cambios climáticos y el calentamiento global (Li, 2010).
Una adecuada iluminación es de suma importancia, dado que esto permite una mejora en el desarrollo de las actividades, permitiendo que estas sean menos agotadoras propiciando mejores condiciones de trabajo (Enríquez Harper, 2007); por su parte, la iluminación es definida como el flujo luminoso por unidad de superficie, dicho flujo es considerado como la potencia luminosa total emitida por una fuente luminosa en todas las direcciones (Bastian, 2001).
La eficiencia energética es considerada como el conjunto de acciones que conllevan a la reducción de la cantidad de energía empleada para satisfacer las necesidades energéticas (Instituto Nacional de Electricidad y Energías Limpias, MÉXICO, 2017). El desarrollo de Códigos y Normas de Eficiencia Energética para México es importante dado que el crecimiento poblacional, la creciente urbanización y desarrollo económico, así como el subsecuente incremento del nivel de vida llevarán a un aumento de la demanda energética en edificios en México. En los últimos 10 años, el consumo de energía creció en una tasa anual promedio de 3%, siendo los sectores residencial, comercial y de servicios los consumidores del 37% de esa energía en 2013 siendo de 76.3GWh (Secretaría de Energía, 2017). En México se dispone de una serie de normativas, las cuales se encuentran plasmadas en las Normas Oficiales Mexicanas que están fundamentadas en la Ley Federal sobre Metrología y Normalización, en cuanto a normativas en torno a lámparas y niveles de iluminación aplicadas en el presente trabajo se encuentran la NOM-025-STPS-2008 de condiciones de Iluminación en los centros de trabajo.
El objetivo del presente trabajo es evaluar la intensidad lumínica en un aula de clases de las instalaciones de la Facultad de Ingeniería de la Universidad Autónoma de Yucatán para presentar propuestas basándose en la NOM-025-STPS que permita un ahorro energético y económico.
Metodología
El estudio consistió en realizar mediciones y simulaciones de un área destinada para la impartición de clases escolares. A partir de lo obtenido proponer soluciones que permitan un ahorro económico. Los pasos seguidos son:
Toma de mediciones incluyendo los niveles de luminosidad del área a evaluar
Realizar una simulación del local a través del software Dialux Evo 7 con diferentes luminarias seleccionadas según lo obtenido en el paso 1.
Determinar los ahorros energéticos y económicos
Seleccionar las mejores opciones según:
Ahorro energético
Viabilidad económica
Discusión y resultados
Se evaluó las condiciones actuales de iluminación en un salón de clases de la Facultad de Ingeniería de la UADY. El aula de clase mencionado es el F20 del edificio F. En la Figura 1 se muestra gráficamente la ubicación geográfica mencionada obtenida de Google Earth.
Los datos del área evaluada son:
Dimensiones: 7.80 x 7.90 metros.
Techo a dos aguas con altura de 4 metros (piso-cumbrera) y ángulo de 12°.
Luminarias: 12 de 2x28 W marca Magg. En la Figura 2 se muestra la distribución de las luminarias y en la Tabla 1 se presenta la ubicación de cada una, la altura se considera del suelo al centro del plafón.




Altura del plano de trabajo de 0.80 metros.
Uso promedio de iluminación de 6 horas al día durante 9 meses en promedio.
Así mismo en la Figura 3 se muestran fotografías del lugar analizado.
Equivalencia entre luminarias
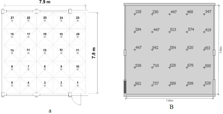
Para analizar la situación actual de las luminarias Magg se han realizado mediciones en el local con las dimensiones ya mencionadas. Las luminarias se encuentran empotradas en el techo a una altura promedio de 3.5 metros y ángulo de 12°. De acuerdo a los procedimientos descritos en la Norma Mexicana 025 (Secretaria del Trabajo y Prevision Social, 2008) se realizaron 25 mediciones en el local con un luxómetro Hioki 3423. Las mediciones fueron realizadas en el punto medio de cada cuadrante seccionado; el luxómetro se posicionó a una altura de 80 cm del suelo (altura de trabajo) esperando 15 segundos para que se estabilice y registrar la medición.
En la Figura 4 se observan los resultados obtenidos (luxes) para cada punto de medición.

Siguiendo la norma se determinó la iluminación promedio dada por:
Donde:
(1)Ep= Nivel promedio de lux
Ei= Nivel de iluminación medido en lux en cada punto
N = Número de mediciones realizadas
Usando la ecuación 1 se obtuvo que la habitación cuenta con 510.36 lux en promedio. La NOM 025-STPS establece 300 luxes para puestos de trabajo de distinción moderada de detalles: ensamble simple, trabajo medio en banco y máquina, inspección simple, empaque y trabajos de oficina; y áreas de trabajo de talleres: áreas de empaque y ensamble, aulas y oficinas (Secretaria del Trabajo y Prevision Social, 2008). Por lo tanto, el valor medio obtenido de las mediciones supera a lo establecido por la norma (valor nominal), de ahí que se propongan opciones de luminarias.
Cálculos luminotécnicos
Para realizar la simulación luminotécnica se ha empleado el software Dialux Evo 7 en el cual se han ingresado las características del lugar, así como los elementos con los que cuenta. En la Figura 5 puede verse una vista del escenario simulado donde se ha considerado un grado de reflexión: GR techo 70%, GR pared 75%, GR suelo 76%.
De acuerdo a la NOM 025-STPS, el cálculo del grado de reflexión de las superficies se obtiene:
Se efectúa una primera medición (E1), con la fotocelda del luxómetro colocada de cara a la superficie, a una distancia de 10 cm ± 2 cm, hasta que la lectura permanezca constante;
La segunda medición (E2), se realiza con la fotocelda orientada en sentido contrario y apoyada en la superficie, con el fin de medir la luz incidente, y
El grado de reflexión de la superficie (GR) se determina con la ecuación siguiente:
(2)

A partir de las mediciones realizadas se obtuvo la ubicación de cada luminaria y se realizó una primera simulación con la ubicación real de las mismas. Al realizar la simulación con los parámetros reales del lugar se obtiene una intensidad luminosa de 541 lux en promedio que con base en la NOM 025 presenta un exceso de luminosidad; mismo que puede observarse en el diagrama de colores falsos (Figura 6.a) mostrando las zonas con mayor luminosidad en amarillo. En el sistema de valores obtenido de la simulación (Figura 6.b) se ha señalado el valor máximo y mínimo de la intensidad luminosa para apreciar las regiones con exceso de luminosidad.
![Luminosidad real del aula. a) Diagrama de colores falsos. b) Sistema de valores [lux].](../46754522001_gf7.png)
A partir de la simulación con las luminarias actuales se proponen tres nuevos sistemas de luminarias, uno usando las luminarias existentes y los otros dos usando tecnología LED. En la Tabla 2 se resumen las características principales de cada luminaria.
Para la primera propuesta se ha modificado la distribución y cantidad de luminarias con el objetivo de reducir el consumo energético al mismo tiempo de obtener una luminosidad más cercana a lo establecido por la NOM 025.



La nueva distribución de las luminarias (Figura 7.a) con su respectiva ubicación (Tabla 3) permite obtener mejores resultados al obtener una luminosidad promedio de 347 lux. En la Figura 7.b puede verse una mayor homogeneidad en la distribución de la luminosidad dentro del área evaluada. Al reducir el número de luminarias y realizando modificaciones en su distribución se ha obtenido una menor media lumínica, misma que se encuentra cerca del valor nominal que demuestra la influencia de la distribución de las luminarias en los valores lumínicos.
Con el modelo usado para las simulaciones de la propuesta 2 y 3 no sólo se ha obtenido un menor consumo energético sino que además la media lumínica se mantiene más cercana al valor nominal. Estas simulaciones permiten analizar los beneficios del uso de tecnología LED frente a la tecnología fluorescente comúnmente usada.
Para la propuesta 2 se han usado ocho luminarias LED ubicadas según la Tabla 4 y distribuidas como se muestra en la Figura 8.a, se ha obtenido una media lumínica de 316 lux. En la Figura 8.b se muestra la distribución de la luminosidad que comparada con la propuesta 1 tiene una distribución similar.


En la simulación de la propuesta 3 se obtuvo una mejor distribución de las luminarias (Figura 9.a y Tabla 5), lo cual se ve reflejado en un ligero aumento del valor medio lumínico (318 lux) observado en la distribución lumínica de la Figura 9.b. La potencia total de las luminarias presenta una ligera disminución comparado con el sistema anterior. En general éste tipo de luminaria LED propuesta, presenta mejores características en comparación con las luminarias ya presentadas.
Ahorro energético
Para este apartado primero se destaca el consumo real actual de la iluminación y de cada propuesta realizada. Para simplificar cada luminaria analizada se le ha sido asignado una letra (A-D), de tal forma que:
Magg/Fluorescente/ 2x28W-6500K (Distribución real)
Magg/Fluorescente/ 2x28W-6500K (Distribución propuesta 1)
CADAN DIRA SD AB-L LED 35W 4000K (Distribución propuesta 2)
NPH30/LED/850 30W-5000K (Distribución propuesta 3)
Para este análisis se ha considerado que las lámparas se usan por 6 horas al día, 5 días a la semana por 9 meses (descontando los periodos de vacaciones y días festivos). Con nueve meses se tienen 36 semanas de las cuales cinco días (lunes a viernes) se usan las lámparas por seis horas de 7 a 10 a.m. y de 5:30 a 8:30 p.m.
En la Tabla 6 se presentan los consumos anuales, el desglose de las horas de consumo y el ahorro energético. La energía se calculó multiplicando la potencia en watts por el número de horas calculado previamente y el ahorro energético se obtuvo aplicando el cálculo de porcentaje de diferencia dado por:
(3)



Ahorro económico
En la Facultad de Ingeniería se aplica la tarifa H-M por parte de la Comisión Federal de Electricidad, tenemos que considerar que los horarios influyen en el cobro del kilowatt hora (kWh). De este modo y según lo establecido por la CFE para la región peninsular, los horarios de consumo se rigen como se presenta en la Tabla 7 y Tabla 8.


De acuerdo a los periodos de cobro presentados, los horarios de encendido de las lámparas son mayoritariamente en horario intermedio salvo en el periodo de invierno que ocupa dos hora del periodo de punta. Considerando lo anterior, se labora 18 semanas en promedio durante el periodo de invierno que equivale a 90 días (cinco días de consumo a la semana) y considerando las dos horas de consumo diarias en periodo de punta se tienen 180 horas/años, mientras que en horario intermedio se tiene 900 horas/años.
Durante diciembre de 2016 a agosto de 2017 la tarifa promedio en horario intermedio ha sido de 1.1744 $/kWh y de 2.3416 $/kWh en horario de punta (Comisión Federal de Electricidad, 2017); estos factores se multiplican por la energía consumida en horario intermedio y punta para obtener el coste energético anual que resulta de la suma de ambos. Los resultados obtenidos se muestran en la Tabla 9.

Los precios presentados en la Tabla 9 son del aula F20 para un año, sin embargo si se extrapola para los demás salones de clases el monto de ahorro equivale a miles de pesos al año. Usando tecnología LED, como se ha demostrado, se pueden obtener ahorros cercanos al 60 %.
Conclusiones
En este trabajo se presentó el estudio de caso de eficiencia energética en luminarias del aula F20 del edificio F de las instalaciones de la Facultad de Ingeniería de la Universidad Autónoma de Yucatán. Para ello se realizó un proceso de medición mediante un luxómetro Hioki 3423 para obtener los valores de intensidad lumínica en base en lo establecido en la norma NOM-025-STPS-2008 de condiciones de iluminación en los centros de trabajo; así como la simulación de las condiciones del aula a través del software DIALUX EVO 7.
Los valores obtenidos en el proceso de medición manual (510.36 lux) y el proceso de simulación (541.10 lux) son cercanos entre sí, la diferencia entre ellos es de 30.74 lux que puede deberse a la suciedad presente en las luminarias y las horas de uso. Podemos establecer que los resultados obtenidos son válidos para su análisis dada la similitud entre lo medido y lo simulado.
Con la medición del nivel de iluminación realizada, se logró concretar el análisis basándose en las normas mexicanas acerca de eficiencia energética e iluminación. Si se reduce el uso de la tecnología ya existente en el aula por una distribución adecuada se tienen ahorros de hasta un 33% en el consumo energético como se obtuvo en la propuesta 1. Por otra parte si se realiza el cambio de tecnología por completo se obtendría un ahorro de más del 50% en el consumo, lo que significa una disminución aún más llamativa (Propuesta 2 y 3).
Se demostró que la tecnología LED es el futuro en el ámbito de la iluminación debido a que tiene una mayor eficiencia, consumen menos energía, mejoran los niveles de iluminación, tienen una vida útil larga y una disminución de los contaminantes emitidos a la atmósfera.
Referencias
Bastian, P. (2001). Electrotecnia (Primera ed.). España: Akal.
Comisión Federal de Electricidad. (2017). Tarifas - CFE. Obtenido de CFE: http://app.cfe.gob.mx/Aplicaciones/CCFE/Tarifas/Tarifas/tarifas_negocio.asp?Tarifa=CMAMT&Anio=2017
Enríquez Harper, G. (2007). El abc del alumbrado y las instalaciones eléctricas en baja tensión (Primera ed.). México: Limusa.
Freewan, A. A. Y. (2011). Improving thermal performance of offices in JUST using fixed shading devices. World Renewable Energy Congress in Sweden, May, 8–13. https://doi.org/10.3384/ecp110571860
İnan, T. (2013). An investigation on daylighting performance in educational institutions. Structural Survey, 31(2), 121–138. https://doi.org/10.1108/02630801311317536
Instituto Nacional de Electricidad y Energías Limpias, MÉXICO. (17 de Febrero de 2017). INEEL. Obtenido de INEEL: https://www.ineel.mx/detalle-de-la-nota.html?id=1060
Li, D. H. W. (2010, July). A review of daylight illuminance determinations and energy implications. Applied Energy. https://doi.org/10.1016/j.apenergy.2010.03.004
Secretaría de Energía. (28 de Mayo de 2017). gob.mx. Obtenido de gob.mx: https://www.gob.mx/sener/prensa/impulsan-eficiencia-energetica-en-el-sector-de-la-construccion
Secretaria del Trabajo y Prevision Social. (12 de Diciembre de 2008). NORMA Oficial Mexicana NOM-025-STPS-2008, Condiciones de iluminación en los centros de trabajo. México: Diario Oficial de la Federación.