Artículos
Vivienda y su contexto.Desarrollo de dispositivos modulares para cosecha de agua de lluvia
Housing and context. Development of modular devices for rain water harvesting
Vivienda y su contexto.Desarrollo de dispositivos modulares para cosecha de agua de lluvia
Vivienda y comunidades sustentables, no. 15, pp. 41-62, 2024
Universidad de Guadalajara
Received: 01 December 2023
Accepted: 05 December 2024
Resumen: La arquitectura se configura como la dialéctica entre el hábitat y el habitante, constituyendo el espacio para las acciones cotidianas. La vivienda, manifestación primaria de la arquitectura, establece el vínculo entre habitantes y entorno; desde un sentido heideggeriano, al entender el habitar como un ser-estar en el mundo, resulta imprescindible pensar en minimizar el impacto del Gestell para el desarrollo futuro. En México, la vivienda es un derecho social legalmente regulado en el Artículo 4 constitucional y el artículo 2 de la ley de vivienda donde se consideran las condiciones óptimas de habitabilidad; sin embargo, abordando la relación de la vivienda con su contexto, la dotación mínima para vivienda de hasta 99 metros cuadrados construidos es de 150 litros de agua por habitante al día, constituyendo un impacto medioambiental. Por tanto, el presente trabajo tiene por objetivo diseñar dispositivos alternativos de captación pluvial dentro de la arquitectura con una metodología de enfoque mixto, que parte de un análisis arquitectónico que contempla la dimensión espacial, material y de adecuación climática; así, se realizó un rediseño interior y exterior de un caso de estudio de vivienda para proponer dispositivos que respondan a la cualidad de lo habitable en el espacio.
Palabras clave: Arquitectura, vivienda, contexto, diseño modular, captación pluvial.
Abstract: Architecture is conceived as the dialectic interplay between habitat and inhabitant, shaping the spatial framework for daily activities. Housing, as the fundamental expression of architectural principles, establishes a profound nexus between inhabitants and their immediate surroundings. Within a Heideggerian conceptión, comprehending dwell as an existential being-in-the-world underscores the imperative to strategically mitigate the impact of Gestell for sustainable future development. In the Mexican context, housing is constitutionally recognized as a social right, delineated by the provisions of Constitutional Article 4 and Housing Law Article 2, mandating considerations for optimal habitability conditions. Nevertheless, an examination of the housing-environment interface reveals that the stipulated minimum water allocation for dwellings up to 99 square meters-150 liters of water per inhabitant per day-significantly contributes to environmental degradation. Consequently, the principal objective of this study is to devise alternative rainwater harvesting mechanisms within architectural frameworks, employing a comprehensive mixed-methods methodology. This approach initiates with an architectural analysis encompassing spatial, material, and climatic dimensions. Subsequently, an exhaustive interior and exterior reconfiguration of a housing case study is conducted to proffer solutions aligned with the qualitative aspects of habitability in spatial environments.
Keywords: Architecture, housing, contextual analysis, modular design, rainwater harvesting.
Introducción
La arquitectura y su diseño han basado su proceso y los productos resultantes en el conocimiento de las formas de interacción de las personas y los entornos. De este modo, se convierte en una aplicación del conocimiento basado en la investigación científica. Norberg Schulz (2008) afirma que la arquitectura es un producto humano cuya misión debería ser ordenar y mejorar las relaciones del habitante con su contexto. La forma de tener en cuenta esta relación relativa y variable entre el habitante y el entorno es hacer hincapié en la pregunta: ¿Qué influencia ejerce el ambiente sobre el habitante?; en esta perspectiva, menciona el hecho de que es evidente que el ambiente afecta y determina el estado de ánimo, y en esta singularidad la arquitectura misma es parte del contexto.
El propósito de la arquitectura debe ser dar orden a ciertos aspectos del ambiente y consecuente a ello controla las relaciones entre el habitante y el ambiente; la arquitectura regula el ambiente para hacer posible la colaboración y la interacción. Este control tiene varios aspectos diferentes, el más elemental es la creación de un ambiente controlado que proteja al habitante contra la lluvia, el frío, el calor, la humedad, el ruido, y otras molestias percibidas que le rodean. Este aspecto puede ser denominado control físico. Otro aspecto es la participación de las edificaciones en las acciones humanas, denominando esta dimensión como marco funcional. En este ámbito, las acciones están determinadas socialmente, y los objetos físicos que participan manifiestan significados sociales; la arquitectura representa objetos culturales, cuya simbolización cultural, junto con el aspecto social, constituye un medio simbólico. El cometido de una obra arquitectónica debe ser estudiado por medio de estas cuatro dimensiones de comparación: el control físico, el marco funcional, el medio social y la simbolización cultural.
La vivienda, punto focal del presente trabajo, se enmarca como el espacio primario del ser humano; de forma general, Ferrando Nicolau señala que la vivienda es “el refugio natural, o construido por la mano del habitante, en el que este habita de modo temporal o permanente” (Solá-Morales, 2004). En términos semejantes se expresa Cortés Alcalá, para quien “la vivienda es un lugar con límites definidos, construida por la acción humana, en la que los habitantes habitan con cierta estabilidad”. La vivienda como elemento teórico se relaciona con cinco conceptos básicos. Se parte de un ámbito general al definir i) contexto como los factores de diversos ámbitos que rodean a un ente; se sigue con ii) arquitectura, la cual se expresa como la dialéctica entre el habitante y su contexto. Estos conceptos enmarcan iii) el espacio como un contenedor de actividades y funciones; iv) las vivencias como las acciones diarias que le confieren la identidad a un espacio; y v) los recursos materiales como el nexo entre el espacio, el habitante y su contexto.
En el acto mediado del habitar, el desarrollo de este trabajo, además de teorizar la relación del habitante con su medio, busca incidir en la dimensión física ambiental; específicamente en la variable del recurso hídrico a través del análisis de un caso de estudio enfocado al desarrollo de dispositivos modulares de captación pluvial en la arquitectura habitacional que permitan, por un lado, iniciar un proceso de formación de recursos humanos, una infraestructura tecnológica mínima, y por otro, la vinculación con el productor de vivienda, de tal forma que se incida también en su modo de producción y en el eventual mejoramiento de su posición competitiva por la implantación de sistemas que orienten a la vivienda hacia un desempeño sustentable, esto último por la generación de información que dé evidencia sólida de dicho mejoramiento.
La vivienda y su contexto
Derivado del vocablo latino contextus, la palabra “contexto” se refiere a todo aquello que rodea, ya sea física o simbólicamente, a un acontecimiento. El concepto “entorno” se entiende como el conjunto de circunstancias o factores sociales, culturales, morales, económicos y/o profesionales, que rodean una cosa o a una persona, colectividad o época, e influyen en su estado o desarrollo. Ambos conceptos convergen en su definición, por tal motivo, como se verá más adelante, algunos autores utilizan las palabras “contexto” y “entorno” indistintamente. Autores como Fuentes (2004) definen al contexto como aquel que incluye las variables ambientales, tanto naturales como artificiales, que inciden de manera directa en una edificación, así como en la relación con el habitante. Por su parte, Bruno Stagno (1992) coincide con Fuentes al referirse a contexto como aquel que determina las condiciones específicas que ejercen acción sobre un objeto de estudio, como ejemplo: la edificación. Además, incluye dentro de su conceptualización las situaciones atemporales, compuestas por los factores sociales, culturales e históricos.
Para Norberg Schulz (2008), el contexto refiere al ámbito en el que el arquitecto se desenvuelve en situaciones originadas de manera determinada y que, explícita o implícitamente, plantea problemas particulares. Estas situaciones se componen de condiciones económicas, políticas y sociales, de tradiciones culturales, de factores físicos como el clima y topografía y, también, de seres humanos que ven el ambiente de formas diferentes. Es decir, el diseño arquitectónico se ve influenciado por el contexto circundante, el cual comprende el ambiente natural, el social, el cultural, así como la percepción e interpretación que el usuario hace de él. Para Kenneth Frampton (2006), el contexto es el núcleo creativo de toda civilización y cultura en torno a la cual se interpreta la vida. Se puede percibir análogamente como una serie de episodios escenográficos con base en los cuales se desarrolla la vida. Para Rapoport (2003), el contexto debe de entenderse como un sistema conformado por lugares y ambientes que rodean al habitante, en los cuales él realiza ciertos sistemas de actividades.
Para efectos de este trabajo, se debe de entender que los espacios no son entidades independientes, por el contrario, se encuentran rodeados de factores físicos, materiales, económicos, políticos, sociales, culturales, históricos y antrópicos que ejercen una influencia sobre él, a la vez que entablan una relación recíproca. A este conjunto de factores se le denomina contexto y con base en él es que se desarrolla la vida. De esta forma, el contexto no determina ciertamente la conducta de sus ocupantes, pero se coincide con Rapoport al referir que si la inhibe o la alienta y que además el contexto debe de entenderse como un sistema de lugares y ambientes, conformados por diversos elementos que rodean al habitante y en base en los cuales él realiza sus actividades. Se observa que autores como Stagno (1992), Fuentes (2004), Schulz (2008), Frampton (2006) y Rapoport (2003) coinciden en la relación bidireccional que existe entre el diseño y el contexto. De todos ellos, Rapoport profundiza al dividir el concepto de contexto en dos vertientes; por un lado, como un sistema conformado por los lugares y ambientes que rodean al habitante, y por el otro, por los sistemas de actividades del ser humano.
El sistema social tiene como mediador físico entre el habitante y el contexto al producto arquitectónico. Morris menciona que
la arquitectura abarca toda consideración del ambiente físico que rodea la vida humana; así, la arquitectura es el conjunto de modificaciones y alteraciones producidas en la superficie de la tierra para satisfacer cualquier necesidad humana (Solá-Morales, 2004).
Cuando se habla de arquitectura, generalmente, la primera idea que viene a la mente es de casas y edificios, muros, cubiertas o fachadas; la forma externa y los materiales constructivos. Sin embargo, la arquitectura, además de ser el espacio contenido por los elementos constructivos, es el espacio habitable, percibido por los habitantes (Fuentes, 2004). Hablar de arquitectura no es plantear una libre actividad artística, esta se debe de entender como una profesión basada en la ciencia y encaminada a la solución de problemas; problemas que tienen que ser identificados, no “definidos” o inventados. La disciplina de la arquitectura y su relación con el ámbito del diseño forma en su conjunto un campo de diseño del entorno.
Stagno comenta que la arquitectura es semejante al proceso de hablar, comienza siendo la simple satisfacción de una necesidad y termina en manifestación de la inventiva y capacidad creadora del habitante. La arquitectura es asunto de morada para las antiguas y nuevas rutinas del habitante. Es respuesta a su necesidad de protegerse de la intemperie, pero transformando lo circundante en algo nuevo, inventado, imaginado primero, construido después y posteriormente recreado. Además, la arquitectura es la dialéctica del lugar y el habitante. El lugar pone sus condiciones específicas y el habitante responde desde expectativas que varían de región en región y de tiempo en tiempo. Nouvel (2001) refiere que la arquitectura consiste en llegar a concentrar de una forma durable y habitable los valores culturales de una época y un lugar, encontrar el espacio habitable como problema específico. Por tanto, la especificidad de esta disciplina se encuentra en dar respuesta a una demanda social dentro de un contexto cultural. Solo si se conoce paso a paso, en sus tiempos históricos, en sus referentes funcionales o técnicos a la arquitectura, es posible avanzar en la comprensión de la riqueza de significados y de mensajes que propone.
La arquitectura es la dialéctica entre el lugar y el habitante. A través de sus recursos materiales constituye el espacio que da lugar a las acciones cotidianas o vivencias de los seres humanos que la habitan, a la vez de entablar la relación de estos con su contexto. En este entendimiento, como menciona Solá-Morales, el objetivo de la arquitectura debe de ser ordenar y mejorar las relaciones del habitante con su contexto. En la arquitectura se concentran de forma durable y habitable los valores físicos, materiales, sociales y culturales de una época y un lugar, idea que parte de la definición de Mies van der Rohe al decir que: “la arquitectura es la voluntad de una época traducida al espacio”. Por su parte, Orozco (2004) conceptualiza la vivienda desde un ámbito constructivo y la define como el recinto, cerrado o semicerrado, que delimita espacios construidos. Por tanto, una vivienda es el resultado de un conjunto de elementos físicos o partes constituyentes que permiten su construcción, y sujeto a esto su existencia. En forma muy particular, estos elementos están definidos por componentes que se denominan componentes constructivos, los cuales conforman todo lo edificado y tienen individual o colectivamente funciones y objetivos específicos.
Cabe reiterar en estas conceptualizaciones que la vivienda no debe considerarse solamente como un espacio delimitado entre muros. Rapoport, por tanto, la define como un sistema de lugares en donde las actividades que toman lugar ahí son muy particulares y están definidas en gran parte por el estilo de vida de las personas. Este tipo de conceptualización implica el uso de las calles, lugares especializados y vecindarios. Tiene incidencia en la evaluación de la densidad de población. La vivienda proporciona el mejor modo de relacionar el sistema total de casa, el asentamiento del paisaje y los monumentos con el modo de vida (Rapoport, 2003). Mercado y Mansalvo concuerdan con Rapoport al referir que la vivienda no es solo una estructura construida, sino también una institución espaciocultural, es la relación de objetos y lugares que son diseñados e interconectados, creando condiciones para el desarrollo del comportamiento del individuo o un grupo social. Lo llama “escenarios culturales” (Mercado, 2004).
Gazmuri define “vivienda” como el espacio donde la familia convive para satisfacer sus necesidades básicas, uno de los aspectos que caracteriza las condiciones materiales de la vida familiar y un bien de primera necesidad, por cuanto el bienestar que ofrecen sus condiciones de habitabilidad influye de manera fundamental en la realización de las funciones familiares, la estabilidad, el equilibrio emocional, el estado de salud y capacidad de trabajo de sus moradores. Desde esta perspectiva, es algo más que un techo, es un espacio integrador de procesos sociales necesario para la consolidación de la familia y el desarrollo de sus miembros (Gazmuri, 2012).
Campos define “vivienda” como el lugar de lo cotidiano, donde se encuentran, en una dinámica compleja, la vivencia subjetiva y la producción y reproducción de las estructuras sociales que transcurren, innegablemente, en un espacio y tiempo determinado ―un “aquí” y un “ahora”― (Campos & Yáva, 2007). Iglesias (1999) define “vivienda” como la interfaz entre el sujeto y el medio ambiente natural. Red de escenarios conductuales que dan ubicación a los aspectos grupales que constituyen la vida familiar y comunitaria. Es el sitio donde los seres humanos realizan una gran cantidad de actividades sociales a las que la vivienda les da ubicación espacial, donde se satisfacen necesidades biológicas y psicológicas fundamentales para el individuo.
Mies Van der Rohe refiere que la vivienda, como manifestación primaria de la arquitectura, es la voluntad de una época traducida al espacio. Le Corbusier, por su parte, menciona que la vivienda debe ser el estuche de la vida, la máquina de la felicidad. Luis Barragán se suma al referirse a la vivienda como su refugio, una pieza de arquitectura emocional, no un lugar frío de convivencia. En este enfoque abordado en torno a la vivienda, el arquitecto como proyectista de edificios para habitar tiene que conocer los significados relacionados a ella, para así poder controlarlos e intervenir sobre ellos. Si bien la arquitectura habitacional puede reducirse a la construcción de casas y a ofrecer unos estereotipos que demanda el mercado inmobiliario, se debe de pensar que su interés básico es ofrecer lugares para vivir, los cuales permitan a quienes los habitan formar un hogar. Como menciona Oliveras, para cada elemento de la vivienda existe un discurso técnico, pero a la vez otro simbólico, que el arquitecto no puede desestimar, es decir, edificaciones que brinden un entorno adecuado para que el usuario pueda apropiarse de él e identificarse orgullosamente según sus propios valores (Oliveras, 2000).
Como mencionaba Rapoport, entre la arquitectura y la cultura existe una relación intrínseca, pero de igual manera Oliveras afirma la existencia de una estrecha relación entre formas de vivienda y cultura. Este autor, enfocado a la vivienda, concuerda con Stagno en su postura de arquitectura al afirmar que en la medida en que los estilos de vida son diferentes para cada cultura, la arquitectura no puede pretender modelos de validez universal. Es en la medida en que los valores socioculturales y sus simbolismos varíen en el tiempo que la vivienda tendrá que cambiar mediante adecuaciones para cada época, teniendo en cuenta que existe una riqueza cultural en la arquitectura que debe ser el punto de referencia. Esto se puede concebir en el hecho de que conocer y aprender formas de vida y arquitecturas de otros lugares es importante, pero sin olvidar que la vivienda siempre tendrá según su emplazamiento una relación directa con su cultura, con sus recursos materiales y su entorno. Como afirma este autor, la vivienda es un espacio privado por excelencia. Es expresión de la voluntad individual y familiar que manifiesta el estatus, el gusto y la cultura de sus habitantes (Oliveras, 2000).
Con base en las posturas mostradas se conceptualiza a la vivienda, para efectos de este trabajo, como la manifestación primaria de la arquitectura, el recinto que contiene un espacio; aquel donde toman lugar las actividades y el estilo de vida de las personas que la habitan; como el resultado de un conjunto de elementos físicos que la constituyen y como el vínculo existente entre el habitante y su contexto. En la ejecución mediada del acto de habitar, este estudio tiene como objetivo incidir en la dimensión físico-ambiental, focalizándose específicamente en la variable del recurso hídrico. Esto se lleva a cabo a través del análisis arquitectónico y el diseño que se concentra en el desarrollo de dispositivos modulares de captación pluvial integrados en la arquitectura residencial.
Desarrollo de dispositivos modulares para cosecha de agua de lluvia
Un sistema de captación de agua de lluvia se define como un conjunto de tuberías, accesorios y equipos que captan la lluvia que cae sobre una superficie para conducirla a un dispositivo de almacenamiento para su uso posterior (Gleason, 2014:267). La cosecha de lluvia es la captación, almacenamiento y reúso de la escorrentía a partir de superficies impermeables. La escorrentía de cubiertas y otras superficies impermeables es tamizada y posiblemente filtrada hacia un sistema de captación que la conduce hacia un dispositivo de almacenamiento, ya sea cisternas o cuerpos de agua (Calkins, 2012:111).
Los dispositivos clave de un sistema de captación son el área de captación, el filtro, la cisterna y el sistema de distribución (Calkins, 2012:111), y en algunos casos, adicionalmente al filtrado, sistemas de tratamiento (Gleason, 2014:272). En general, un sistema de captación de agua de lluvia para edificios, y en específico para vivienda, representa un costo adicional en la instalación hidrosanitaria convencional debido a la habilitación del sistema de conducción y el tanque de almacenamiento (UNEP, 2008:66); la reducción de costo vendrá entonces de dos principios fundamentales: el primero, la reducción del tamaño del tanque, y el segundo, la minimización de la longitud de la tubería de conducción (UNEP, 2008:66), tratando que el almacenamiento esté lo más cerca posible tanto del área de captación como de las áreas que albergan los usos a que se destinará el agua de lluvia (UNEP, 2008:66).
Tecnológicamente es apropiada su implantación cuando la distribución de la precipitación respecto a una áreas de captación y un tamaño de tanque de almacenamiento efectivamente contribuyan en la demanda de consumo de agua en la vivienda, que además la instalación de tanques de almacenamiento sean posibles desde la perspectiva espacial en nuevos edificios o renovaciones, que socialmente sean aceptados por los residentes y habitantes de la vivienda, que los componentes del sistema estén efectivamente diseñados y que el sistema de captación de lluvia en la vivienda sea componente a su vez de un enfoque de manejo integral del agua en escalas urbanas y territoriales más amplias (UNEP, 2008:66).
Adicionalmente, en el ámbito tecnológico tiene la ventaja de que puede ser integrada a diferentes escalas en el orden urbano, con diferentes diseños; destaca sobre todo la solución del tanque de almacenamiento, que puede representar tanques descentralizados visibles en edificios y/o viviendas o tanques semidescentralizados subterráneos conectados a la red municipal de abastecimiento de agua potable, ya sea en edificios y/o viviendas o en clústeres de edificios y/o viviendas. Otro de los aspectos relevantes es que su implantación en áreas urbanas, por lo general, se limita a captar agua de lluvia para usos no potables, debido a la disponibilidad limitada de la cantidad y calidad de agua (UNEP, 2008:66). En este último aspecto y respecto a las preferencias de nuevas fuentes de abastecimiento a escala comunitaria, destacan varias lecciones de acuerdo a Doner et al. (2016): la primera es que es necesario dirigir la percepción pública hacia los usos no potables del agua en la vivienda, además de hacer hincapié en la seguridad del abastecimiento de agua; ambas lecciones permiten, por un lado, valorar la contribución del agua de lluvia en los consumos no potables y, en segunda instancia, como fuente alternativa en casos en los cuales el abastecimiento sea intermitente, ya sea por ineficiencia del sistema municipal o por la exposición a riesgos por efecto de eventos hidrometeorológicos extremos.
Existen enfoques desde clasificar a los sistemas de captación de lluvia desde los usos; una de esas clasificaciones atiende a la distinción de los usos del agua vinculados con riego de áreas verdes o lavado que implican un proceso de filtración primario (Gleason, 2014: 268). En ese caso, se considera como una fuente de agua de baja calidad cuyo uso idóneo para inodoro, riego de jardines y lavado de automóviles (Parkinson & Mark, 2005:109), o bien aquellos que se orientan al consumo humano, que implican sistemas de filtración especializados y de potabilización (Gleason, 2014: 268), que bien pueden representar una alternativa para el consumo humano, sobre todo en hogares pobres, implantando estrategias de filtración y cloración para su purificación (Parkinson & Mark, 2005:109, 110). Otro enfoque de uso considera al tipo de superficie de captación como referente para clasificar el sistema de captación; en caso de azoteas con acceso a mantenimiento constante, por ejemplo, aquellas de barro, lámina de acero, concreto o pizarra, son recomendadas para la cosecha de agua de lluvia, solucionando su manejo con dispositivos de intercepción de primeras lluvias o filtros de sólidos suspendidos, y el agua captada tiene un uso no potable; por otro lado, aquellas superficies de captación en contacto con vialidades o estacionamientos hacen necesaria la implantación de enfoques de tratamiento tales como la biorretención (Calkins, 2012:112).
Un tercer enfoque clasificatorio propuesto por la Unidad de Desarrollo Tecnológico de la Universidad de Warwick, citada por Waite (2010:132), deriva de la capacidad del sistema para abastecer la demanda de agua en la vivienda, clasificándose los sistemas intermitentes que describen una situación de abastecimiento en una parte del año de modo que no abastecen durante la estación seca, sistemas parciales que implican que el sistema abastece de manera limitada durante todo el año, este puede ser el caso de utilizar el agua de lluvia para el consumo humano y se excluyen otros usos potables y no potables, o bien sistemas integrales que cubren la demanda total de abastecimiento durante el año de usos potables y no potables. La clasificación anterior depende del patrón de precipitación, de la disponibilidad espacial para almacenar el agua y de fuentes complementarias de abastecimiento, tales como los sistemas municipales de abastecimiento de agua potable, por ejemplo, en el caso de centros urbanos.
La captación de agua de lluvia, adicionalmente, se considera como una alternativa para aliviar las interrupciones en el servicio convencional de abastecimiento de agua potable, sobre todo en situaciones de emergencia (Parkinson & Mark, 2005:108), así como un instrumento de control de inundaciones, como en el caso de Beijing (Li, Wang & Che, 2010:141-149). Los sistemas de captación, además de su enfoque de abastecimiento de agua, se han asociado también como componentes de sistemas integrales de manejo sensible al agua que contribuyen al desarrollo de servicios ambientales en la ciudad (Wong et al., 2013:35, 41-45), que incluyen estrategias de ahorro de agua, naturación, tratamiento primario, control de inundaciones, infiltración somera y profunda, y espacio verde y público.
La captación pluvial en México
En México, la dotación mínima para vivienda de hasta 99 metros cuadrados construidos es de 150 litros por habitante por día, y para aquella de más de 100 metros cuadrados se consideran 195 litros por habitante por día (Conavi, 2010). De igual manera, la tubería de distribución de agua en la vivienda debe diseñarse y dimensionarse bajo las condiciones de demanda pico, y tomar en cuenta las especificaciones del fabricante para la presión mínima y consumo de los muebles (Conavi, 2010).
Los usos del agua en la vivienda se clasifican generalmente de la siguiente forma:
Sanitario con el uso del inodoro.
Higiene personal que incluye uso de la regadera.
Limpieza general.
Lavado de ropa.
Preparación de alimentos y cocina.
Consumo para beber.
Hay diversos factores que determinan la selección correcta del material de tubería de la instalación intradomiciliaria, entre los que destacan (Conafovi, 2005):
Lo anterior se le vincula con un sistema de abastecimiento de agua potable, aparecen algunas alternativas iniciales para el aumento de la oferta hídrica en el orden local que toman a la vivienda como componente principal. En ese sentido, la Comisión Nacional de Fomento de la Vivienda incluye en su guía de uso eficiente del agua en desarrollos habitacionales a la captación pluvial como una alternativa válida de abastecimiento de agua en la vivienda. Un sistema de captación de agua de lluvia abarca rasgos mínimos como los siguientes (Conafovi, 2005):
Método
El objeto de estudio de la presente investigación refiere a la relación mediada del habitante con su medio a través de la arquitectura, específicamente en la variable hídrica, vinculando la satisfacción de las necesidades básicas del ser con la integridad de su medio. Para cumplir el objetivo de diseñar dispositivos alternativos de captación pluvial dentro de la arquitectura, se comenzó por delimitar una zona de estudio. Se seleccionó un caso de estudio que permite situar el proceso de diseño arquitectónico y relacionarlo con variables del sistema ambiental y social, con base en el incremento demográfico presentado en el año 2022, la demanda de vivienda y, por tanto, la demanda de recursos, se seleccionó la región centro de Jalisco. Posteriormente se realizó un análisis arquitectónico con base en las dimensiones demarcadas por Norberg Schulz (2003) y Bruno Stagno (1997): i) ideas de espacio, ii) recursos materiales, y iii) adecuación al medio ambiente. Se culmina con un proceso de diseño modular de elementos de arquitectura pasiva con base en un enfoque sistémico que relaciona al diseño con las variables físicas y medioambientales.
VIVIENDA Y CAPTACIÓN PLUVIAL EN LA REGIÓN CENTRO DE JALISCO
La vivienda es un derecho social legalmente regulado en el Artículo 4 constitucional y el artículo 2 de la ley de vivienda, dentro de los cuales se consideran las condiciones óptimas de habitabilidad, salubridad, servicios básicos, prevención de desastres, protección física ante elementos naturales. La vivienda, además de arraigar tradiciones, permite la construcción de comunidades, generando redes de ayuda o gestión, y es un indicador básico del bienestar de la población. Permite la creación de oportunidades de negocio, y dentro del ámbito urbano representa el uso de suelo más abundante de la ciudad (Roux y Barrios, 2011).
En los últimos años, Guadalajara ha presentado un incremento poblacional considerable, generando un incremento en la demanda de vivienda y, por lo tanto, de recursos. El estado se enfrenta a una necesidad estimada de hasta 533,349 unidades, lo que representa el retraso en la proyección de 2012 (SPAF, 2008b), justo antes de 2008, se creía que Jalisco enfrentaría una demanda de entre 20,000 y 40,000 unidades (CIDOC-FDH, 2008). Los especialistas de la Universidad de Guadalajara advierten que para hablar de la calidad del agua en la Zona Metropolitana de Guadalajara hay que abordar el tema desde tres perspectivas: el tratamiento que le damos al agua que llega de Chapala ―principal proveedor del vital líquido para la población―. la que se encuentra en los mantos freáticos y el agua que desecha la urbe, cuyo común denominador es la falta de infraestructura y voluntad para su tratamiento y carencia de una participación social activa para su mejor aprovechamiento (Soler, 2000).
El uso de agua pluvial autosuficiente en la vivienda no solo desahogaría la demanda centralizada que existe, sino que redundaría en un ahorro de energía y un mejor control del elemento, ya que se considera que aproximadamente un 13 % de las pérdidas físicas se dan en el trayecto de abastecimiento a los centros habitacionales por debajo de la tierra (Vale, 1981), y hasta un 60 % en instalaciones individuales (CONAFOVI, 2007). El entorno del proyecto está situado en el desarrollo de sistemas de captación de agua pluvial aplicable a vivienda de interés social en la Región Centro de Jalisco, del desarrollo de prototipos de los módulos componentes del sistema y de la definición de potencial de aplicación de los prototipos de almacenamiento en la estructura y el mobiliario, tanto en la unidad como a nivel de mobiliario urbano. El caso de estudio está referido a un nuevo desarrollo de vivienda de interés social, que promueve una desarrolladora pequeña de vivienda (Armonía y Orden en la Vivienda S. A. de C. V.). El municipio elegido fue El Salto, Jalisco, en el cual se sitúa en la actualidad la construcción del área habitacional.
ESTUDIO DE LA PROPUESTA ARQUITECTÓNICA
Desde un punto de vista arquitectónico, las principales condicionantes para el desarrollo del sistema son las siguientes: 1. Evitar en la medida de lo posible modificaciones en el sistema estructural, limitando el movimiento del suelo en las plataformas que sostienen las bases (limitante para la implantación de una cisterna subterránea para el sistema de almacenamiento); 2. Buscar una variedad de usos, además del asignado para el almacenamiento de agua de lluvia, al contenedor; 3. Por último, que el sistema tenga un requerimiento de energía mínimo, evitando la necesidad de desplazamiento forzado que exija de energía eléctrica.
Teniendo en cuenta las limitaciones, se realizó un análisis de contexto inmediato de la vivienda, seguido por uno espacial, funcional y constructivo. Uno de los principales problemas que emergieron fue la ubicación para el tanque de almacenamiento, que condiciona espacial y geométricamente el o los espacios dentro de la vivienda donde se ubicará, ya que estos presentan dimensiones mínimas, además de la modificación de las instalaciones hidráulicas planteadas por el sistema.
Primeras ideas derivadas del análisis del contexto inmediato
Del análisis de orientación de partida se desprende que algunas manzanas presentan orientaciones desventajosas en términos de asolamiento (Figura 1), lo que sugiere el desarrollo de una implementación del sistema asociado a muros verdes adosados a la fachada de la vivienda. La hipótesis presumía que podía desarrollarse un producto que protegiera a la vivienda de la orientación poniente, al tiempo de que podrían tener la particularidad de ser asimismo muros divisorios, que contribuirán a la mejora de la imagen urbana del fraccionamiento.

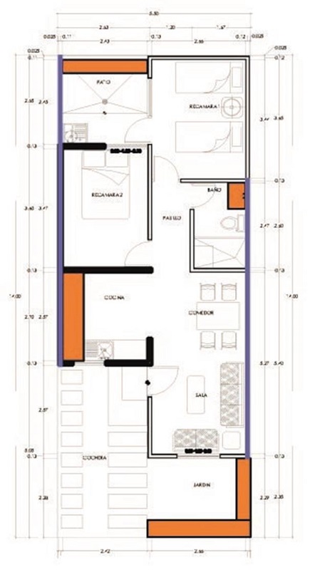
El primer acercamiento a la vivienda se propuso a partir del análisis espacial de la vivienda y de su programa arquitectónico, llegándose a la conclusión de que son cuatro los posibles espacios con mayor potencialidad para recibir al sistema de captación de agua de lluvia. El enfoque metodológico fue analizar la disposición y geometría de cada dependencia de la vivienda mediante las plantas arquitectónicas y detectar las áreas donde podría implantarse el sistema, tratando, por un lado, de no afectar las circulaciones al interior del espacio, minimizar los trayectos y conexiones de la red hidráulica del sistema de captación, y constituirse en elementos de mobiliario adicionales que se integren a la función inicial con que se proyectó el espacio.
Para el análisis, los espacios quedaron divididos en dos grupos:
En el interior de la vivienda: sala, comedor, cocina, pasillo, dormitorios y baño compartido.
Fuera de la vivienda: patio, jardín delantero y estacionamientos.
Los criterios que guiaron el análisis fueron:
Que el sistema puede utilizarse tanto como mobiliario exterior como interior, por lo que debería ser resistente al sol y efectos del clima.
Deberá tenerse cuidado en las conexiones y uniones para impedir fugas que afecten los espacios interiores.
Si se restara el espacio que ocuparía el sistema de captación no se afectaría su funcionalidad, quedando un espacio mínimo óptimo para las actividades que en él se efectuarán.
Propuestas para implantación en espacios interiores
Baño
Se propone la implementación de un tanque de almacenamiento de adosado en la parte inferior del lavabo (Figura 2), que adicionalmente capte las aguas grises de este. Los principales rasgos de esta implantación consisten en que el agua captada pueda ser utilizada en el inodoro, dada su fácil vinculación, lo cual nos permitirá ahorrar en la instalación hidráulica, el bajante que conducirá el agua captada bajaría directamente por el muro hasta el tanque, para su llenado; adicionalmente, se contemplan a las instalaciones ahogadas en el muro.

Cocina
En este espacio se propone la implementación de un pretil contenedor, que nos permita almacenar el agua pluvial (Figura 2). El sistema sería el implementado en la base del lavabo del baño, bajante desde la azotea (área captadora) hasta el pretil contenedor, para de ahí distribuirlo a los diferentes usos mediante una instalación que pueda contenerse dentro del muro.
Los usos del agua captada podrían estar vinculados con lavado de ropa, lavado de auto, riego de jardín, lavado de trastes y cocina (si se implementa un filtro).
Propuestas para implantación en espacios exteriores
Patio trasero
Este espacio se propone por la disponibilidad espacial disponible (Figura 2), donde el agua acumulada podría ser utilizada para el lavado de ropa y limpieza de pisos. Por otra parte, la distancia al baño le permitiría la implementación de una instalación que alimentaría el inodoro.
Jardín Frontal
Al igual que en el patio trasero, podría haber un conjunto de muros verdes con contenedores escalonados que permitan el almacenamiento y distribución del agua, estos muros también se convierten en parte de la fachada, aumentando el impacto en la propuesta actual. Eventualmente, sería deseable que se utilizaran como elemento para protección de la luz solar o bien utilizarlos como base para una jardinera (Figura 3).

En cuanto a la elección del desarrollo al mismo tiempo de un sistema de muros verde, hay ciertos criterios de diseño relacionados con su estructura escalonada, que permite que por gravedad el agua tenga la suficiente presión para su distribución; habría tres piezas interconectadas con tamaños distintos, todas desmontables para facilitar su transporte e implementación (Figura 4).

Primeras ideas y bocetos para el diseño del tanque de almacenamiento
El análisis espacial deja en claro que el diseño de los contenedores, la conexión a fuentes de abastecimiento, la determinación de los usos y las funciones alternativas del sistema deben convertirse en los principales ejes de trabajo a nivel arquitectónico.
Algunas de las hipótesis más promisorias en este sentido se relacionan con la posibilidad del desarrollo de muros móviles que puedan almacenar agua de lluvia y que conformarán módulos que se unen entre sí (Figura 5).

Entre las ideas que se exploraron se propuso diseñar una escalera de dos piezas para almacenar agua pluvial en el patio de servicios, se abastecerá mediante la gárgola que desemboca en dicho espacio (Figura 6).

Las Figuras 7-11 muestran diferentes diseños iniciales de esquemas modulares que se podrían utilizar en el producto final.





Resultados y discusión
PROPUESTA DEFINITIVA DEL MÓDULO DE ALMACENAMIENTO Y APLICACIONES EN LA VIVIENDA
El módulo de almacenamiento parte de un prisma rectangular, el cual es modificado formalmente a través de sustracciones al prisma con formas orgánicas (Figura 12).

BAÑO
La colocación espacial del sistema de almacenamiento dentro del baño permite la delimitación de dos zonas dentro de este. Tres módulos colocados en forma de canto conforman un elemento vertical, que por un lado atiende a funciones de captación de agua de lluvia, además de servir para el almacenamiento de agua pluvial y ser utilizado como mobiliario para la colocación de toallas o artículos de uso personal (Figuras 13-14). El dispositivo no interfiere con la función espacial, ya que se prevé que su colocación permita la conservación de las medidas espaciales necesarias para el desarrollo de las actividades que ahí se realizan. Los flujos de circulación quedan libres de cualquier obstáculo; adicionalmente, el dispositivo, al encontrarse vinculado cerca del inodoro, nos permite disminuir considerablemente metros lineales de tubería para ser conectado para alimentar a este, atendiendo además a la mejora estética del espacio por su diseño.


PATIOS
En el caso del jardín frontal se prevé el apilamiento en canto de los módulos interconectados para la formación de un muro divisorio que mejore la estética de la fachada principal de la vivienda y que eventualmente contribuya a la protección del asoleamiento que en algunos casos pueda presentarse (Figura 15). La magnitud de la contribución a la protección del asoleamiento queda como una tarea pendiente de investigación para proyectos futuros, dado lo promisorio del tema (Figura 16).


Descripción, análisis y escenarios de implantación del sistema de captación respecto a las instalaciones hidráulicas de la vivienda
El sistema contempla dispositivos de primeras lluvias, de captura de sólidos, de conducción, almacenamiento y salida. A partir del análisis de implantación del sistema de captación, y específicamente su componente más problemático, el dispositivo de almacenamiento, se definieron tres lugares para emplazarlo, en este caso el patio posterior, el jardín frontal y el baño. Los dos primeros lugares son candidatos naturales debido al espacio disponible, la facilidad de dirigir el agua almacenada para usos prioritarios como el lavado y riego de jardines, y debido a la contribución del sistema a la configuración espacial exterior, por su uso como accesorios y elementos de división. Ambos espacios también requieren solo la adaptación de los bajantes y las gárgolas, sin la introducción de tuberías especiales o adaptaciones adicionales para los sistemas hidráulicos existentes previstos en el proyecto inicial, se hace una descripción general de los componentes en la Figura 17.

El cuarto de baño es pertinente debido a la cercanía del inodoro, estableciendo al sistema en su fuente de abastecimiento principal durante la época de lluvias. Se hace presente la desventaja de requerir adaptaciones adicionales a los sistemas hidráulicos, tales como tubos y conexiones, así como la modificación de las paredes para su configuración correcta.
PROPUESTA FINAL
La primera estrategia de la propuesta final es cambiar las pendientes de la azotea para favorecer el suministro del sistema. Por otro lado, cada espacio en el que el dispositivo se va a colocar tiene una capacidad de captura diferente, y debido a consideraciones espaciales solo un cierto número de tanques de almacenamiento puede ser colocado.
En el cuarto de baño es posible colocar tres módulos de almacenamiento, que no generan más de 234 litros, ya que cada módulo tiene capacidad para 78 litros de agua de lluvia.
Estos tres módulos y el dispositivo han de ser colocados entre el inodoro y la regadera, teniendo una función alterna de anaquel.
El dispositivo que se coloca en el baño se compone de las partes siguientes: tres módulos de almacenamiento, un soporte de pared vertical, una caja de base, tres separadores, base de malla filtro, malla filtro, tapadera, tres abrazaderas.
Otra propuesta es utilizar un lavabo formado por los módulos almacenadores, para aumentar la capacidad de almacenamiento del baño, y que podría ser utilizado como una alternativa para almacenar y reutilizar las aguas grises del lavabo.
Las etapas constructivas para la habilitación del sistema de captación en el baño son las siguientes:
Se habilita un firme de concreto de 30 cm x 50 cm x 10 cm de espesor que nos permita tener nivelado el dispositivo.
Se habilita y coloca el soporte vertical, anclándolo al muro por medio de tornillos y pijas, para que se mantenga firme.
Se coloca sobre el firme la base del dispositivo, para poder apilar los módulos almacenadores.
Se coloca la base que contiene el filtro y soportará la tapadera final.
El armado culmina con la colocación de la tapadera del dispositivo. Las Figuras 18 y 19 describen cómo podría implantarse en el baño el contenedor.


En lo que respecta a la función del dispositivo como divisiones, los módulos de almacenamiento se colocan uno encima del otro, lo que permite la formación de un muro, cuyas dimensiones pueden variar dependiendo de las necesidades del usuario. Una alternativa se presenta en el patio trasero, donde se ha propuesto la colocación de nueve módulos que, además de almacenar el agua de lluvia, forman una pared divisoria.
Las líneas de alimentación para el sistema deben incluir una coladera ahogada en la losa que tendrá la función de filtro de sólidos en la azotea, unida a un tubo de PVC de dos pulgadas que conducirá el agua hasta el dispositivo. En caso de exceso, este se controla mediante una tubería de cuatro pulgadas de ancho, que lo llevaría a la alcantarilla principal, que a su vez es conducido debajo de la calle a los tanques de almacenamiento ubicados en las zonas verdes públicas.
Antes de la unión de la tubería exterior con la profunda será necesaria la colocación de una válvula y una salida, que nos permita el desalojo de las primeras lluvias hacia el drenaje.
Para el funcionamiento adecuado del sistema como una pared divisoria es necesaria la implementación de cierto número de módulos captadores, dependiendo de la dimensión de estos, es por eso que tenemos tres tipos de muros divisorios. En las Figuras 20 y 21 se exponen los diferentes muros propuestos y algunos detalles constructivos a nivel conceptual para su habilitación.


Las Figuras 22 y 23 describen en general los resultados de la implantación como parte de un sistema divisorio en el patio posterior, además de exponer la lógica de captación y de alimentación del sistema para las áreas frontal y posterior de la vivienda.


POTENCIAL DE APROVECHAMIENTO Y DISEÑO A NIVEL DOMÉSTICO
Mediante este apartado se llevará a cabo el estudio de las dos propuestas de captación de aguas pluviales que se han ideado para instalarse en las casas-habitación del fraccionamiento Nueva Vizcaya. Para cada análisis, se iniciará primero describiendo las condiciones de la vivienda, después se aplicará la metodología de demanda y oferta, propuesta por la Universidad de Warwick, pasando después a una propuesta de captación en módulos contenedores. Por último, se dimensionarán los bajantes de aguas pluviales.
El autor considera de suma importancia que el lector conozca primeramente sobre la alternativa de captación que se propone en esta investigación, la cual plantea que el agua de lluvia no sea captada en cisternas convencionales, sino en un sistema modular de capas formado por pequeños módulos contenedores de polietileno de alta densidad, que estarán interconectados entre sí. Este nuevo concepto de contenedores que cuentan con una capacidad de 78 litros cada uno, permite aprovechar en mayor medida el espacio de la casa-habitación.
Es necesario llevar a cabo un análisis de las características de la casa a construir. El análisis incluye el área de captura, la eficiencia de esta, número de habitantes, la cantidad de agua del grifo que requieren para sus actividades, y la aplicación del método de la alimentación y la demanda para su caso específico.
El área elegida en los hogares para la recogida de agua de lluvia es la azotea, ya que suele ser el lugar más convencional. El tejado está formado por una losa de concreto cubierto por una capa de recubrimiento resistente al agua. Cabe señalar que la información que se ha presentado sobre estos materiales ha sido proporcionada por la empresa desarrolladora y, por lo tanto, son confiables.
Para determinar la eficiencia de la captura de un área, en este caso una azotea construida de concreto, se tomó como dato medio el de 0.7, es decir, el valor promedio que podría recolectar este tipo de material.
Esta azotea tiene una superficie de 46.15 m2, dividida para nuestros propósitos en dos partes. La primera de ellas, perteneciente al patio frontal, tiene una superficie de 22.91 m2, mientras que el segundo, que corresponde a la zona que alimentará a los recipientes colocados en el baño, tiene los restantes 23.24 m2.
La vivienda analizada es una vivienda de interés social, con un suministro de agua potable de 150 litros/habitante/día. El número de habitantes por hogar es determinado de acuerdo a la metodología de Becerril (s/f), que especifica lo siguiente:
Para poder aplicar el método de la demanda primeramente ordenaremos los datos correspondientes:
Datos:
Dotación (C) = 150 litros/habitante/día.
Número de habitantes en la casa (n) = 5.
Periodo que cubrir = 365 días.
De acuerdo con el método de demanda se obtendrá primeramente el consumo anual, que para este caso será también el volumen del contenedor que se necesitará.
La construcción de un tanque contenedor con capacidad de 273.75 m3 no es nada viable, sin embargo, ese dato nos da una idea de toda el agua de lluvia que necesitaríamos captar en un año para poder cubrir al cien por ciento todas las actividades domésticas de una vivienda de interés social.
A diferencia del método de demanda, el método de la oferta se basa en la cantidad de agua de lluvia que se puede captar, por lo que la precipitación anual será fundamental para este cálculo.
Datos:
Área total de captura = 46.15 m2.
Coeficiente de eficiencia = 0.7.
Precipitación media anual = 836.3 mm/año.
De acuerdo con este cálculo, el agua de lluvia que estará disponible de manera diaria una vez captada será de 0.074 m3/día, o bien 74 litros/ día, aunque es una cantidad pequeña el lector no debe olvidar que estamos hablando de que esos 74 litros estarán disponibles todo el año si así se decidiera. Se tiende a pensar que el agua de lluvia debe utilizarse para fines específicos, pues no suplirá al cien por ciento al agua potable en todas las actividades domésticas, sin embargo, sí minimizará el uso de esta última en alguna o algunas actividades en particular.
Referencias
Becerril, H. (s/f). Datos básicos de instalaciones hidráulicas y sanitarias. 8.ª ed. Ciudad de México: E. S. I. A.
Calkins, M. (2012). The sustainable sites handbook: A complete guide to the principles, strategies and best practices for sustainable landscapes. Hoboken, New Jersey: John Wiley and Sons, Inc.
Campos, F. & Yáva, P. (2007). Lugar, vivienda y urbanidad. Red de Revistas Científicas de América Latina, el Caribe, España y Portugal, 41-52.
CIDOC-FDH, F. (2008). El estado actual de la vivienda en México 2008. Centro de Investigación y Documentación de la Casa AC y Sociedad Hipotecaria Federal. p. 44.
Cisneros, J.; Galizia Tundisi, B. & Galizia Tundisi, J. (2012). Diagnóstico del agua en las Américas. Red Interamericana de Academias de Ciencias. Foro Consultivo Científico y Tecnológico. Recuperado el 19 de noviembre de 2012, de: Recuperado el 19 de noviembre de 2012, de: http://www.foroconsultivo.org.mx/libros_editados/agua_2012/diagnostico_del_agua_en_las_americas.pdf
CONAFOVI (2007). Manual del uso eficiente del agua en desarrollos habitacionales. Comisión Nacional de Fomento de la Vivienda, México, Gobierno Nacional.
CONAVI (2008). Programa Nacional de Vivienda 2007-2012: hacia un desarrollo habitacional sustentable. Versión Ejecutiva. Ciudad de México: Comisión Nacional de Vivienda.
Dorner, Z.; Brent, D. A. & Leroux, A. (2016). Preferences for Intrinsically Risky Attributes. Discussion Paper 32/16. Australia: Monash Business School, Department of Economics.
FAO (s/f). Recuperado el 2 de diciembre de 2012, de Recuperado el 2 de diciembre de 2012, de http://www.fao.org
Frampton, K. (2006). Hacia un regionalismo crítico: Seis puntos para una arquitectura de resistencia. En H. Foster, La posmodernidad (pp. 37-59). Barcelona: Kairos.
Fuentes, F. (2004). Clima y Arquitectura. México: UAM.
Gazmuri, P. (2012). Familia y habitabilidad en la vivienda. Aproximaciones metodológicas para su estudio desde una perspectiva sociológica. Arquitectura y Urbanismo, vol. XXXIV, 32-47.
Gleason, J. A.; Acosta, M. & Peregrina, A. A. (2010). Importancia de los aspectos hidrológicos en la planeación urbana. Auge21. Revista de Difusión Científica, 5(1), 153-166.
Gleason Espíndola, J. A. (2014). Sistemas de agua sustentables en las ciudades. México D. F.: Editorial Trillas.
Iglesia, R. (1999). Vivir y habitar. Buenos Aires: Rest.
IPROVIPE (s/f). Inmobiliaria y Promotora de Vivienda de Interés Público. Recuperado el 15 de diciembre de 2012, de http://www1.jalisco.gob.mx/wps/portal/iprovipe
Leduc, W. & Van Kann, F. (2013). Spatial planning based on urban energy harvesting toward productive urban regions. Journal of Cleaner Production, 39, 180-190.
Li, J. Q.; Wang, W. L. & Che, W. (2010). Studies and practices of urban rainwater harvest and runoff pollution control in Beijing. En Hao, X.; Novotny, V. & Nelson, V (eds.), Water infrastructure for sustainable communities, China and the World (pp. 23-34). Londres: IWA Publishing.
Marsalek, J.; Cisneros, B. J.; Karamouz, M.; Malmquist, P. A.; Goldenfum, J. A. & Chocat, B. (2007). Urban water cycle processes and interactions: Urban Water Series-UNESCO-IHPVol. 2. Taylor & Francis.
Mercado, S. D. (2004). Algunos factores físicos y psicológicos relacionados con la habitabilidad interna de la vivienda. Medio Ambiente y Comportamiento Humano, 89-113.
McPherson, M. B. & Schneider, W. J. (1974). Problems in modeling urban watersheds. Water Resources Research, 10(3), 434-440.
Nouvel, J. (2001). Los objetos singulares. Arquitectura y Filosofía. Buenos Aires: Fondo de la Cultura Económica.
Ocampo, R. & Ocampo, J. (2008). Proyecto urbano rural de captación, canalización y reutilización de las aguas pluviales como medio alternativo para su abastecimiento en viviendas y condominios. Monterrey, N. L.: CEP-UANL.
Orozco, E. (2008). Notas sobre materiales, técnicas y sistemas constructivos. Tecnología y Construcción, 9-18.
Parkinson, J. & Mark, O. (2005). Urban stormwater management in developing countries. Londres: IWA Publishing.
Rapoport, A. (2003). Cultura, Arquitectura y Diseño. Barcelona: Arquitectonics.
Roehr, D. & Fassman-Beck, E. (2015). Living roofs in integrated urban water systems. Nueva York, EE. UU.: Routledge.
Roux, R. S. & Barrios, D. M. (2011). Manual Normativo para el desarrollo de vivienda sustentable de interés social en México. Matamoros, Tamaulipas: Universidad Autónoma de Tamaulipas.
SAGARPA (2008). Sistemas de Almacenamiento de agua en el hogar. Proyecto Estratégico para la Seguridad Alimentaria. Secretaría de Agricultura, Ganadería, Desarrollo Rural, Pesca y Alimentación.
SPAF (2008a). Plan Regional de Desarrollo 2030 Región 12 Centro. Guadalajara, Jalisco. Secretaría de Planeación Administración y Finanzas. p. 68.
__________ (2008b). Plan Estatal de Desarrollo Jalisco 2030. Guadalajara, Jalisco. Secretaría de Planeación Administración y Finanzas. p. 183.
Schmidt, M. (2009). Rainwater harvesting for mitigating local and global warming. En Fifth Urban Research Symposium, 26, 28.6.09.
Schulz, C. N. (2008). Intenciones en arquitectura. Gustavo Gili.
Solà-Morales Rubio, I. (2004). Introducción a la arquitectura. Conceptos fundamentales. Universitat Politecnica de Catalunya. Iniciativa Digital Politécnica.
Soler, A. (2000). Agua que no has de beber!... La calidad del agua en Guadalajara. Gaceta Universitaria. Guadalajara, Jalisco: Universidad de Guadalajara.
Stagno, B. (1997). Arquitectura para una latitud. México: MANHIR.
Stagno, B. (1992). Arquitectura y Sincretismo Ambiental. Pensamiento Centroamericano.
Switch (2010). Gestión integral del agua urbana para la ciudad del futuro, Manual 4.
United Nations Environment Programme, Delft University of Technology, Environment Management Centre (2008). Every Drop Counts. Environmentally Sound Technologies for Urban and Domestic Water Use Efficiency. Osaka, Japón: Division of Technology, Industry and Economics UNEP - International Environmental Technology Centre.
Waite, M. (2010). Sustainable water resources in the built environment. Londres: IWA Publishing.
White, I. (2010). Water and the city: Risk, resilience and planning for a sustainable future. Nueva York, N. Y.: Routledge.
Wong, T. H. F.; Allen, R.; Brown, R. R.; Deletic, A.; Gangadharan, L.; Gernjak, W.; Jakob, C.; Johnstone, P.; Reeder, M.; Tapper, N.; Vietz, G. & Walsh, C. J. (2013). Blueprint2013 -Stormwater Management in a Water Sensitive City. Melbourne, Australia: Cooperative Research Centre for Water Sensitive Cities Ltd.