Artículos
Representación de la temporalidad en plantas de proyectos de viviendas flexibles
Representación de la temporalidad en plantas de proyectos de viviendas flexibles
Arquisur revista, vol. 23, núm. 13, pp. 20-31, 2023
Universidad Nacional del Litoral
Recepción: 31 Marzo 2023
Aprobación: 20 Mayo 2023
Resumen: En este artículo se presenta una investigación que reflexiona sobre algunos recursos que permiten incluir la dimensión tiempo en una representación gráfica bidimensional. Con este objetivo se desarrolla el análisis de una serie de dibujos de plantas de vivienda, entre las que se incluyen proyectos y obras construidas a lo largo del siglo XX y principios del siglo XXI. A partir de las plantas seleccionadas se analizan dos modalidades diferentes de flexibilidad: propuestas que incluyen transformaciones cíclicas y propuestas que incluyen transformaciones evolutivas. El análisis de los dibujos tiene por objetivo estudiar las relaciones entre las ideas proyectuales que sustentan las propuestas y los recursos gráficos utilizados por los proyectistas para comunicarlas. En ese sentido, los dibujos analizados pueden ser entendidos como un discurso gráfico sobre el proyecto arquitectónico. Como conclusión del estudio se desarrolló una clasificación de las distintas estrategias gráficas empleadas en los ejemplos analizados. Dicha clasificación se presenta en un cuadro en el que, mediante diagramas, se sintetizan los recursos aplicados en el dibujo y la organización gráfica de las plantas.
Palabras clave: Discurso gráfico, Flexibilidad, Proyecto, Recursos gráficos, Transformación espacial.
Abstract: This article presents an investigation that reflects on some resources that allow the time dimension to be included in a two-dimensional graphic representation. With this objective, the analysis of a series of drawings of housing plans is developed, among which are included projects and works built throughout the 20th century and the beginning of the 21st century. From the selected plants, two different modalities of flexibility are analyzed: firstly, proposals that include cyclical transformations and, secondly, proposals that include evolutionary transformations. The analysis of the drawings aims to study the relationships between the design ideas that support the proposals and the graphic resources used by the designers to communicate them. In this sense, the analyzed drawings can be understood as a graphic discourse on the architectural project. As a conclusion of the study, a classification of the different graphic strategies used in the analyzed examples was developed. Said classification is presented in a table in which, by means of diagrams, the resources applied in the drawing and the graphic organization of the plants are synthesized.
Keywords: Graphic discourse, Flexibility, Project, Graphic resources, Spatial transformation.
Resumo: Neste artigo presenta-se una pesquisa que indaga sobre alguns recursos que permitem incluir a dimensão tempo em una representação gráfica bidimensional. Com este objeti-vo desenvolve-se a análise de una série de desenhos de plantas de habitação entre as que se incluem projetos e obras construídas ao longo do século x x e princípios do século x xi. A partir das plantas selecionadas analisam-se duas modalidades diferentes de flexibilidade: propostas que incluem transformações cíclicas e propostas que incluem transformações evolutivas. A análise dos desenhos tem por objeto estudar as relações entre as ideias pro-jetuais que sustentam as propostas e os recursos gráficos utilizados pelos projetistas para comunica-las. Nesse sentido, os desenhos analisados podem ser considerados como um discurso gráfico sobre o projeto arquitetônico. A maneira de conclusão foi desenvolvida uma classificação das distintas estratégias gráficas empregadas nos exemplos analisados. Esta classificação apresenta-se em uma tabela na qual e mediante diagramas, sintetizam--se os recursos aplicados no desenho e na organização gráfica das plantas.
Palavras-chave: Discurso gráfico, flexibilidade, projeto, recursos gráficos, transformação espacial.
Introducción
Las múltiples y cambiantes actividades que en la contemporaneidad se desarrollan en el espacio doméstico llevan a que debamos concebirlo como un territorio en constante transformación. En ese sentido, los procesos temporales propios del habitar deben ser considerados como un factor clave a la hora de comunicar gráficamente las ideas de flexibilidad espacial y funcional presentes en los proyectos de vivienda.
El objetivo de este artículo de reflexión consiste en identificar y analizar una serie de recursos gráficos que permiten representar las transformaciones de los espacios o las mutaciones de los usos domésticos en algunas propuestas de vivienda que incorporan soluciones proyectuales flexibles.
Partiendo de Carlos Sabino (1992), la metodología de investigación desarrollada para llevar adelante este objetivo pertenece a la familia de los abordajes cualitativos e implica un estudioexplicativo. Se trata de un enfoque de estudiode caso múltiple que consiste en utilizar técnicas de revisión bibliográfica, sistematizar información gráfica y establecer una muestra intencional de plantas que conforman un corpus organizado según dos modalidades de flexibilidad. Para la definición de estas modalidades se analizaron diferentes clasificaciones realizadas por variados autores (en publicaciones de los últimos 25 años).
El estudio se basa en el análisis comparado de plantas de proyectos de vivienda unifamiliar o de unidades tipológicas de vivienda colectiva, dado que se trata del tipo de gráficos más utilizados para expresar el programa analizado. Debido a la bidimensionalidad inherente a la representación de una planta, estos ejemplos apelan a la cuarta dimensión ⎯el Tiempo⎯ de manera de poder comunicar el devenir de cada espacio. Las propuestas seleccionadas incluyen proyectos y obras construidas que se despliegan en un arco temporal que abarca desde la segunda década del siglo xx hasta la primera del siglo xxi.
Esta investigación es parte de una tesis de maestría en donde se analizan los discursos gráficos vinculados a diferentes modalidades de flexibilidad. Si bien existen algunos antecedentes de investigaciones recientes que reconocen la relación entre temporalidad y flexibilidad, en general se trata de un tema insuficientemente explorado.
Este artículo se organiza en dos apartados principales en los que se analizan dos modalidades de flexibilidad. En primer lugar, se estudian casos de transformaciones cíclicas, que implican cambios reversibles (por lo general, vinculados a ciclos diarios o anuales). En segundo lugar, se estudian casos de transformaciones evolutivas, que generan cambios permanentes y por lo general se desarrollan durante periodos de tiempo más prolongados (como los que afectan la conformación familiar).
Ciclos temporales
En un parágrafo del libro Pisos piloto: células domésticas experimentales Gustavo Gili Galfetti (1997) establece que el concepto de flexibilidad por movilidad se consigue mediante el uso de “tabiques, paneles o armarios móviles, desplazables, pivotantes, abatibles, escamoteables” ya que estos dispositivos permiten “una rápida modificación de los espacios según las horas y las actividades de la jornada” (el destacado es mío) (pp.13-14). Por su parte, en Herramientaspara habitar el presente, Montaner, Muxi y Falagán (2011) plantean la previsión de “dispositivos móviles que beneficien la plurifuncionalidad del espacio”, entre los cuales incluyen a los “tabiques móviles, correderos o abatibles, el mobiliario retráctil o plegable, o las divisiones y carpinterías desmontables, que pueden hacer desaparecer la compartimentación habitual de la vivienda” de modo que permiten una “flexibilidad inmediata” (p.187). En cambio, en la clasificación elaborada por Dayra Gelabert y Dania González (2013) sus autoras utilizan la denominación “movilidad cotidiana” para definir una “rápida y fácil transformación del espacio con acciones de simple ejecución” (p. 28). Mientras que Josep María Montaner (2015), en el libro que dedica al estudio histórico de la vivienda colectiva, menciona los cambios “que se pueden hacer cada día desplazando algunos elementos domésticos” (p. 128) para luego definir esos cambios como una “manera física” de entender la flexibilidad “basada en el diseño de elementos que se pliegan y despliegan, que giran y se desplazan” (p. 133).
En definitiva, los cuatro trabajos concuerdan en el concepto de movilidad[1] y se centran en describir los dispositivos que se utilizan para conseguir las transformaciones. Para ello, algunos autores aluden a la rapidez y la facilidad con que se hacen estos movimientos, por lo que mencionan lo inmediato o lo instantáneo; mientras que otros especifican el período de tiempo que abarcan los cambios, por lo que refieren a la jornada, lo cotidiano o lo diario.
Todos estos autores nos hablan de una temporalidad en base a ciclos, determinada por nuestro reloj biológico[2], y vinculada a las diferentes actividades realizadas en el día y en la noche, o durante las horas de vigilia y de sueño[3]. Por ello, en este artículo las denominaremos transformaciones cíclicas. Por tratarse de procesos periódicos, estas transformaciones deben ser reversibles y, particularmente, dado que por lo general se trata de ciclos diarios, los cambios deben realizarse en plazos temporales cortos.
1. Dualidad gráfica
El recurso más sencillo para expresar la flexibilidad de una propuesta consiste en utilizar dos plantas que muestren diferentes usos de un mismo espacio, generando así una dualidad grafica que refleje la condición mutable del proyecto.
La casa Schroeder ⎯construida en 1924 por Gerrit Rietveld en la ciudad de Utrecht (Países Bajos)⎯ es uno de los aportes modernos considerado como ejemplo canónico de planta flexible. En la mayoría de las publicaciones que registran la propuesta se incluyen dos plantas diferentes del nivel superior, una diurna y otra nocturna. Este desdoblamiento gráfico permite contraponer la integración espacial conseguida durante el día con la compartimentación requerida durante la noche (figura 1).

La misma dicotomía día-noche fue llevada un paso más allá por Le Corbusier, en las plantas de una propuesta no construida de viviendas adosadas, las casas Loucheur (figura 2).

Durante el día algunos de los equipamientos que permiten el descanso nocturno se repliegan sobre armarios verticales mientras que otros se ocultan detrás de paneles móviles. De esta manera los escasos 45 m. de la planta quedan liberados para usos diurnos. En su dibujo, Le Corbusier aprovechó la simetría del edificio para incluir dos instancias temporales (“de nuit, de jour”) integradas en un único gráfico, por lo que se leen como versiones especulares y opuestas de un mismo espacio.
2. Secuencia gráfica
En los casos anteriores, el recurso gráfico empleado para expresar la transformación espacial consistía en incluir dos estadios opuestos (día-noche). En este apartado vamos a revisar algunos ejemplos en donde las transformaciones requieren más de dos instancias temporales para ser comprendidas, lo que conlleva el uso de secuencias gráficas.
El proyecto 1990 House es una propuesta teórica desarrollada por el grupo Archigram en 1967 que busca escapar de la estática concepción tradicional sobre el espacio doméstico para ampararse en una utopía tecnológica de una constante convertibilidad. Como resultado, la transformación de este espacio se presenta mediante una secuencia de siete plantas que abarcan las 24 horas un ciclo diario (figura 3).
Los siete intervalos temporales se corresponden con una ordenada cronología de actividades cotidianas que se desarrollan en un mismo espacio: dormir, desayunar, actividades individuales, actividades para niños, mirar televisión y tomar té, actividades para jóvenes y adultos, cena, fiestas y, nuevamente, dormir (Gili Galfetti, 1997, pp. 60-61). Esta elaborada coreografía de transformaciones espaciales es posible gracias a una variada parafernalia de gadgets tecnológicos (pantallas plegables, asientos inflables, muros “robots”, entre otros). Para mostrar los movimientos de cada dispositivo y la ubicación de estos en el espacio, las plantas se expresan usando diferentes tipos de líneas discontinuas.
En las plantas del conjunto que Steven Holl construyó en 1991 en la ciudad de Fukuoka también se apeló a una secuencia gráfica. No obstante, a diferencia del caso anterior, aquí no se trata de reflejar los sucesivos usos de un mismo espacio en una sola jornada. Su proyectista denominó espacio bisagra o “hinged space” (Holl, 2000, p. 233) a la solución adoptada para conseguir flexibilidad en el uso de los espacios, pues en lugar de utilizar divisiones corredizas (como en la casa Schroeder) la modificación del espacio interior se consigue en base a puertas, plafones y armarios pivotantes.
Dado que los giros son movimientos que implican una mayor complejidad que los desplazamientos lineales, dos instancias no son suficientes para representar en forma adecuada el mecanismo de variación espacial del proyecto. Por ello en el libro Pisos piloto (Gili Galfetti, 1997, p. 29) se presenta una secuencia de tres instancias gráficas (figura 4). Elena Mata Botella (2002) ha comparado esa secuencia con los “fotogramas de una película”, argumentando que “captan el instante concreto dentro de una posible secuencia indefinida” (p.104).
3. Superposición gráfica
Si la secuencia aumenta el número de instancias de una transformación, la superposición permite reducirlas a su mínima expresión. Para ejemplificar este recurso vamos a analizar una segunda versión del gráfico de Fukuoka en la que los equipamientos móviles se dibujan en dos posiciones distintas en cada planta, lo que posibilita una menor cantidad de instancias temporales (figura 5). Las sucesivas posiciones de los elementos transformables aparecen dos veces en cada planta, de manera de mostrar distintas instancias temporales en forma simultánea y superpuesta. Para poder diferenciar entre sí las dos instancias, una de ellas se expresa con un relleno negro y la otra se dibuja de modo lineal. No obstante, dada la complejidad de los movimientos representados, este gráfico requiere de recursos complementarios para ser comprendido. Para ello se incorporaron flechas y líneas discontinuas que describen las trayectorias de giro de los elementos pivotantes. En definitiva, si la primera versión de la planta apuesta por un despliegue analítico del movimiento de los paneles, la segunda versión propone una síntesis, apelando a recursos que hacen posible una mayor economía gráfica.
Transformaciones evolutivas
En 1974 John Habraken (2000, pp. 36-37) nos hablaba de proyectar pensando en la evolución de la composición familiar:
Es posible distinguir las diferentes fases del desarrollo de una familia: la joven pareja sin niños, la familia con niños pequeños, que crecen, que van al colegio y, finalmente, dejan la casa para formar sus propias familias. No es tan solo un cambio en número, implica también una serie de diferentes relaciones y formas de vivir juntos. De diferentes actividades dentro y fuera de la vivienda. (p. 37)
Si los ejemplos anteriores referían a ciclos periódicos (diarios, semanales o anuales) a partir de aquí vamos a analizar una temporalidad significativamente diferente, que está definida por transformaciones evolutivas. Son varios los autores que distinguen dos posibilidades en este tipo de cambios: los que ocurren al interior de la vivienda y los que se producen hacia afuera, mediante el aumento del volumen construido.
En un trabajo ya citado, Gustavo Gili Galfetti (1997) explica que el concepto de evolución supone una “modificación a largo plazo según las transformaciones de la familia” mientras que el concepto de elasticidad implica la “modificación de la superficie habitable adjuntando una o más estancias” (p. 13). En cambio, en su tesis doctoral sobre la flexibilidad de la vivienda, Pablo Fernández Lorenzo (2012) plantea que el atributo de adaptabilidad supone la posibilidad de adecuarse “sin grandes obras” a diferentes usos, modos de vida o unidades de convivencia. Mientras que el atributo de perfectibilidad implica una vivienda que “incorpora en su planteamiento una futura mejora, en la calidad de sus componentes o en el tamaño del espacio” (pp. 151-152). Por su parte, Gelabert y González (2013) diferencian entre “transformación en el tiempo” y “movilidad cotidiana” (o frecuente) y también distinguen entre transformaciones internas y externas. Si las primeras implican cambios cualitativos, las segundas son cuantitativas y por ello las denominan “viviendas crecederas” (p. 28). Por último, Josep María Montaner (2015) también reconoce una diferencia entre los cambios que requieren pequeñas obras, como transformar tabiques de separación, y los que requieren obras más complejas “pero realizables al fin” (p. 128), como los crecimientos.
De acuerdo a estos autores, es necesario considerar dos niveles o dos modalidades de transformaciones evolutivas: uno interno (adaptabilidad o transformaciones cualitativas) y uno externo (perfectibilidad o transformaciones cuantitativas). En el siguiente apartado analizaremos una propuesta que combina ambas modalidades de manera sincrética.
1. Secuencia de evolución externa
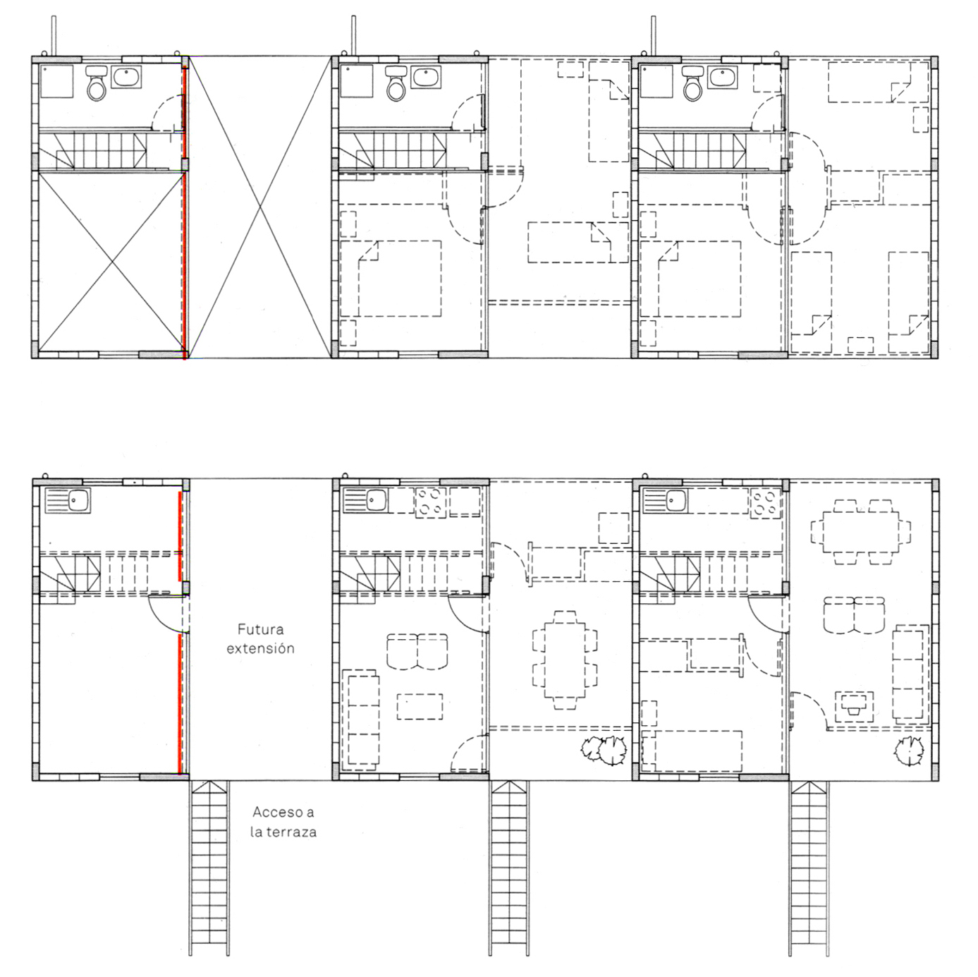
Uno de los ejemplos más paradigmáticos ⎯y que ha sido más difundido durante lo que va de este siglo⎯ de vivienda evolutiva, crecedera o progresiva es el conjunto de viviendas sociales Quinta Monroy, construido en 2003 en Iquique (Chile) por el arquitecto Alejandro Aravena y su estudio Elemental (figuras 6 y 7). El aspecto más radical de este proyecto consiste en que a cada propietario se le entrega solamente una “media casa”, de manera que esta pueda ser completada en una segunda etapa. La propuesta de Elemental consta de dos tipos de viviendas: casas en planta baja y apartamentos dúplex superpuestos a las casas. Los proyectistas explican cómo definieron la materialización constructiva de los apartamentos:
El dúplex se concibió como una “C” de materiales sólidos configurada por poros de 3 m de ancho para las ampliaciones. […] El lado abierto de la “C” se hizo de madera aglomerada y bastidor de pino de 5 x 5 cm fácilmente removible, para asegurar que las ampliaciones siguieran efectivamente la dirección proyectada. (Ferré, Sakamoto y Hwang, 2010, p. 248)
Para terminar de comprender la propuesta es necesario comparar dos versiones[4] de la planta del primer nivel de los apartamentos dúplex. Ambos gráficos muestran tres apartamentos formando una tira, pero en lugar de repetir un mismo apartamento se representaron diferentes instancias temporales yuxtapuestas, conviviendo en una misma planta[5]. De esta manera el dibujo de cada nivel puede ser leído como una secuenciaevolutiva que presenta tres estadios sucesivos de la vivienda incremental: la unidad inicialmente entregada y dos instancias futuras.
Mediante el añadido de algunos elementos gráficos se consigue que ambas versiones establezcan discursos que son diferentes entre sí, pero también complementarios. En el estadio inicial de la primera versión se dibujaron unas gruesas líneas de color rojo que indican los cerramientos removibles que sus proyectistas designan como “tabiques móviles” (figura 6).

En cambio, en la segunda versión se agregaron rellenos grises en los espacios interiores, de manera de visualizar el incremento de área conseguido con la ampliación (figura 7).
Como consecuencia, el discurso se desdobla y alude a diferentes conceptos asociados a la vivienda incremental. Mientras que el color rojo de la primera versión enfatiza el dispositivo tecnológico que permite el crecimiento, los rellenos grises de la segunda destacan el aumento de área. En definitiva, ambos recursos remiten a las dos modalidades de una vivienda progresiva presentes en la clasificación planteada por Gelabert y González (2013). El primero acentúa el carácter asistido del crecimiento y el segundo destaca el aspecto cuantitativo[6] de la mejora.
Uno de los aspectos que vale la pena destacar de estos gráficos son los distintos usos otorgados a las líneas discontinuas. En la segunda y la tercera instancia de cada versión el mobiliario y los tabiques divisorios agregados por los usuarios se representaron con líneas de trazos. Mediante este recurso se establece una diferencia gráfica con la instancia del apartamento entregado en la primera etapa, lo que sugiere que se trata de una instancia futura.
2. Coexistencia de niveles temporales
Para Gili Galfetti (1997) los mecanismos utilizados en las viviendas de Fukuoka (figuras 4 y 5) permiten diferentes reconfiguraciones de la planta, dado que
la configuración diurna de cada espacio permite ampliar la zona de estar durante el día y recuperar los dormitorios por la noche. La articulación “episódica” refleja las modificaciones del núcleo familiar a través del tiempo: disminuir el número de habitaciones cuando los hijos dejan el hogar paterno o añadir habitaciones cuando es necesario. (p. 28)
Según esta explicación, en el proyecto coexisten dos niveles de articulación temporal: un nivel cíclico, que responde a los cambios diarios; y un nivel “episódico”⎯que aquí llamaremos evolutivo⎯ en el que se tiene en cuenta la evolución familiar. Sin embargo, en los gráficos publicados en Pisos piloto (Gili Galfetti, 1997, p. 29) la transformación se muestra a partir de una sola secuencia y no se especifican niveles temporales.
Una similar relación entre cambios cíclicos y evolutivos se produce en los gráficos de las Viviendas para empleados de correos, un edificio de apartamentos para jóvenes en París, construido en 1991 por los arquitectos Boudon, Michel y Monnot. Además de espacios de servicio, cada unidad posee una única sala que ofrece diferentes formas de compartimentación, gracias a un panel pivotante[7] que gira sobre un eje vertical. Dado que este eje es excéntrico con respecto al largo total del panel, su asimetría permite diversas posiciones. El movimiento del panel se muestra en paralelo, mediante dos tipos de plantas muy distintas entre sí (figura 8).

A diferencia de las versiones sucesivas dibujadas por Steven Holl, en este caso se trata de gráficos complementarios,puesto que comparten una misma página del libro Pisos Piloto (Gili Galfetti, 1997, p.32). Aunque ambos dibujos expresen el movimiento del panel pivotante, las interpretaciones que proponen de este dispositivo son divergentes.
En el primer caso —o en el primer nivel del discurso gráfico— mediante un solo dibujo se muestra el giro de 270 grados que el mecanismo puede llegar a realizar. Esto se expresa mediante dos arcos de circunferencia dibujados mediante líneas discontinuas (o de trazos) que describen el “barrido” completo del panel. En cambio, en el segundo nivel del discurso el giro se despliega en una serie de esquemas que representan cuatro posiciones fijas ⎯cuidadosamente elegidas⎯ que pueden ser ocupadas por el panel. Resulta significativo que a cada instancia se le asignó un uso predominante: las dos primeras corresponden a una pareja sin hijos; las dos últimas a una pareja con hijos.
En definitiva, dichos esquemas no plantean la dicotomía abierto/cerrado o día/noche que establecen las plantas duales, sino que indican una alternancia de estadios posibles, pues no suponen un orden fijo ni un resultado final. Podríamos decir que el primer dibujo incluye las infinitas posiciones que el movimiento del panel podría adoptar, mientras que el segundo registra solo las posiciones más significativas para sugerir aquellos usos domésticos que resultan más probables. Por lo tanto, el segundo dibujo podría leerse como una secuencia “episódica” —retomando el término que Gili Galfetti usaba para las viviendas de Fukuoka— o mejor, como una serie[8] en la que se ilustran distintas etapas vitales de un núcleo familiar.
Otra forma de entender la relación entre estos dos dibujos consiste en decir que el primero implica un discurso neutro, en el que se representa el giro del panel utilizando la codificación convencional (la misma que se usa para mostrar el barrido de una puerta). En cambio, el segundo es un discurso intencionado que expresa algunas de las posibilidades de apropiación del espacio. Como resultado, el primer gráfico explica mejor el dispositivo tecnológico, mientras que el segundo es más eficaz como discurso sobre la flexibilidad.
3. Secuencia de evolución interna
El estudio de arquitectos españoles Coll-Leclerc (Jaume Coll y Judith Leclerc) realiza en 2005 el edificio 44 viviendas protegidas en Pardinyes (Lleida, España). Una secuencia de cuatro plantas muestra los cambios de uso experimentados a lo largo del tiempo en el reducido espacio interior de un apartamento (figura 9). El discurso elaborado en este gráfico radica en mostrar cómo una misma planta responde a diferentes situaciones de uso a partir de mínimos cambios en la tabiquería interna y en la organización del mobiliario.

Las áreas coloreadas representan diferentes usos vinculados a actividades domésticas o laborales, lo que indica que la relación entre el espacio de vivienda y el de trabajo se modifica sustancialmente con el tiempo. En resumen, los cambios experimentados en la tipología implican diferentes proporciones de espacio compartimentado con respecto al espacio abierto (este último se expresa siempre con un relleno celeste claro).
Al igual que ocurría con otros de los casos vistos en este artículo, el gráfico incluye dos niveles temporales. Por un lado, transformaciones episódicas (tipos 1, 2 y 3) que se desarrollan como resultado de un prolongado proceso de evolución familiar. Por otro lado, transformaciones cíclicas (tipos 3 y 4) que dependen de las diferencias climáticas estacionales (invierno/verano) que afectan la temperatura y el asoleamiento a lo largo del año.
Conclusiones
A partir del análisis de los dibujos presentados en este artículo se puede establecer que existen una serie de códigos y recursos gráficos que permiten introducir la temporalidad en la representación bidimensional del espacio. Por tanto, como conclusión del estudio realizado, presentamos un cuadro con una serie de diagramas que proponen una sistematización de los recursos gráficos adoptados en las plantas de las viviendas analizadas (figura 10). Para explicar este cuadro vamos a hacer algunos comentarios de lo visto en los apartados anteriores.

La primera estrategia que hemos analizado en este artículo consiste en incluir dos instancias gráficas de una misma planta, de manera de representar la alternancia de dos estados o dos momentos diferentes. Aquí hemos denominado dualidad gráfica a este recurso. En general, las dualidades resultan adecuadas para representar procesos temporales cíclicos, reversibles y periódicos. Estos procesos suelen desarrollarse durante intervalos temporales limitados ⎯como ocurre en el caso de los ciclos circadianos (día-noche) representados en los dibujos de la casa Schroeder (figura 1)⎯ pero también pueden abarcar periodos más extensos que comprenden el ciclo anual (invierno-verano) como ocurre en las últimas dos instancias de las Viviendas en Pardinyes (figura 9).
La secuencia gráfica es un recurso que permite mostrar las transformaciones operadas en el espacio mediante un mayor despliegue de instancias temporales, y suele usase tanto para ilustrar transformaciones cíclicas como cambios evolutivos. En la primera versión de las plantas de Fukuoka (figura 5) la secuencia incluye tres instancias temporales. En cambio, en las Viviendas para empleados de correos (figura 7) y en las Viviendas en Pardinyes (figura 8) se incluyen cuatro instancias, mientras en la 1990 House se llega a incluir siete instancias temporales (figura 4).
Como contraposición a esta abundancia gráfica, cuando la propuesta incluye más de una unidad de vivienda se puede apelar al recurso de agrupación gráfica, que consiste en integrar diferentes instancias temporales en una misma planta. Este recurso puede usarse tanto para describir procesos cíclicos como evolutivos. El primer proceso se ilustra con el proyecto de las casas Loucheur de Le Corbusier (figura 2) donde la dualidad día/noche se muestra en un solo dibujo, gracias a la simetría de la propuesta. El segundo proceso se ejemplifica con la planta de Quinta Monroy (figura 9) donde la repetición de un mismo tipo de apartamento permite que el dibujo incluya tres instancias temporales yuxtapuestas que forman una secuencia.
Por otro lado, un recurso conceptual que resulta un poco más complejo consiste en la superposición gráfica de diferentes instancias temporales en una misma planta. Un ejemplo de aplicación de dicho recurso es la segunda versión de las plantas de Fukuoka (figura 6).
En resumen, todos estos recursos establecen diferentes formas de disponer las instancias temporales de las plantas en el espacio gráfico de la representación (sea este la página de un libro, una lámina de una exposición o la pantalla de una computadora). No obstante, debemos señalar otros dos recursos gráficos que, para sugerir las transformaciones, dependen de la manera de expresar las plantas.
En primero es el uso de líneas discontinuas[9]. Este tipo de línea funciona como un indicio de no permanencia, ya que puede representar dos condiciones distintas: una presencia eventual (algo que puede estar o no estar presente) o una presencia futura (algo que aún no está presente). La primera posibilidad incluye la representación de las trayectorias de los desplazamientos o los giros de elementos móviles. Esto se ilustra en las Viviendas en Fukuoka (figura 6) y en las Viviendas para empleados de correos (figura 7). La segunda posibilidad implica representar posiciones virtuales de objetos, como ocurre con las ampliaciones y el mobiliario dibujados en las instancias intermedia y final de las plantas de Quinta Monroy (figura 9). Por último, también es posible combinar ambos usos en un mismo gráfico, como ocurre en las plantas de la 1990 House (figura 4).
El segundo recurso es la inclusión del mobiliario. El dibujo del mobiliario en una planta permite determinar los usos y las actividades que se desarrollan en cada espacio. Sin embargo, la aplicación de este recurso depende del tipo de propuesta y de las ideas que se quieran representar. En las plantas de la Maison Loucheur (figura 2) el dibujo del mobiliario resulta indispensable, dado que la propuesta incluye equipamiento que se oculta o se traslada de sitio. En cambio, el mobiliario no se dibujó en las viviendas de Fukuoka (figuras 5 y 6) ni en la Viviendas para empleados de correos (figura 7), puesto que en esos casos lo importante es mostrar el giro de paneles, plafones y tabiques, y por ello la inclusión del mobiliario podría dificultar o entorpecer la lectura de esos movimientos.
En definitiva, existen múltiples formas de expresar la temporalidad en el dibujo de una planta. Aunque en este tipo de gráficos solo se representen dos dimensiones espaciales, mediante los recursos aquí analizados se puede sugerir una cuarta dimensión. Esta condición espacio-temporal de los proyectos estudiados implica que la representación de las plantas se convierta en un valioso recurso discursivo para comunicar la flexibilidad de la vivienda.
Por último, si bien esta investigación se restringe a propuestas de vivienda que permiten transformaciones cíclicas o evolutivas, los recursos aquí analizados trascienden los casos estudiados y pueden ser aplicables a otros proyectos o incluso a otras temáticas, más allá de la vivienda.
Referencias bibliográficas
Aravena, A. y Iacovelli, A.. (2012). Elemental: manual de vivienda incremental y diseño participativo. Ostfildern: Hantje Cantz.
Fernández Lorenzo, P. (2012). La casa abierta: hacia una vivienda variable y sostenible concebida como si el habitante importara (tesis de doctorado). Universidad Politécnica de Madrid: Escuela Técnica Superior de Arquitectura de Madrid, España.
Fernández Lorenzo, Pablo. (2016). Hacia una vivienda abierta: concebida como si el habitante importara. Buenos Aires: Diseño Editorial.
Fernández Per, A., Mozas, J. y Arpa, J. (2009) HoCo: Density, Housing, Construction & Costs. Victoria Gasteiz: a+t ediciones.
Ferré, A., Sakamoto, T. y Hwang, I. (2010). Vivienda Total: alternativas a la dispersión urbana. Barcelona: Actar.
Gelabert Abreu, D. y González Couret, D. (2013). “Progresividad y flexibilidad en la vivienda: enfoques teóricos”. Recuperado de: http://scielo.sld.cu/pdf/au/v34n1/au030113.pdf
Gili Galfetti, G.(1997). Pisos piloto: células domésticas experimentales. Barcelona: Gustavo Gili.
Grijalba, A; Merino del Río, R y Bengoetxea, J. (2019). Representando el tiempo polivalencia espacial en las viviendas Diagoon y Centraal Beheer. EGA: revista de expresión gráfica arquitectónica, 24 (35), 168-181.
Habraken, J. et al. (2000). El diseño de soportes. Barcelona: Gustavo Gili.
Holl, S. (2000). Paralax. New York: Princeton Architectural Press.
Mata Botella, Elena. (2002). El análisis gráfico de la casa (tesis doctoral). Universidad Politécnica de Madrid, España. Recuperado de: http://oa.upm.es/1844/1/ELENA_MATA_BOTELLA.pdf
Montaner, J. M. (2015). La arquitectura de la vivienda colectiva: políticas y proyectos en la ciudad contemporánea. Barcelona: Reverté.
Montaner, J. M., Muxi, Z. y Falagán, D. (2011). Herramientaspara habitar el presente: la vivienda del siglo xxi. Barcelona: Actar.
Sabino, C. (1992). El proceso de investigación. Caracas: Panapo.
Notas
Información adicional
CÓMO CITAR: Folga Bekavac, A. R. Representación de la temporalidad en plantas de viviendas flexibles. ARQUISUR Revista, 13(23), 20-31. https://doi.org/10.14409/ar.v13i23.12425