Artículos
Recepción: 31 Marzo 2024
Aprobación: 06 Mayo 2024
DOI: https://doi.org/10.14409/ar.v14i25.13433
Resumen: Cuando se trata de expresar la flexibilidad de usos del espacio doméstico, la planta es la pieza gráfica más adecuada. En este artículo se reflexiona sobre las relaciones que existen entre las ideas proyectuales que sustentan las propuestas y los recursos gráficos utilizados por los proyectistas para comunicarlas. Con ese objetivo, se analiza la modalidad flexible denominada planta versátil, entendida por algunos autores como una flexibilidadinicial, ya que se desarrolla antes de la ocupación del usuario. Para llevar adelante esa reflexión, en primer lugar, se ponen en diálogo las ideas de diferentes autores que han teorizado sobre la flexibilidad de la vivienda. En segundo lugar, a modo de ilustración de los conceptos teóricos estudiados, se aborda el análisis de una serie de proyectos y obras construidas. Dichas propuestas se presentan a través de dibujos de plantas publicados por los propios proyectistas para explicar sus ideas. Del estudio de las plantas se deriva una serie de conclusiones sobre el uso de dicho gráfico como una herramienta discursiva puesta al servicio del proyecto.
Palabras clave: discurso gráfico, flexibilidad, planta, representación, vivienda colectiva.
Abstract: When it comes to expressing the flexibility of uses of the domestic space, the floor plan is the most appropriate graphic piece. This paper reflects on the relationships that exist between the design ideas that support the proposals and the graphic resources used by designers to communicate them. With this objective, the flexible modality called versatile floor plan is analyzed. It is considered as an initial flexibility since it is developed before users’ occupation. To carry out this reflection, the ideas of different authors who have theorized about flexible housing are opened to discussion. Second, as an illustration of the studied theoretical concepts, the analysis of a series of projects and accomplished works is performed. These proposals are presented by means of plan drawings published by designers themselves to explain their ideas. From the study of the floor plans, a series of conclusions are drawn about the use of the aforesaid graphics as discursive tools at the service of the project.
Keywords: graphic discourse, flexibility, plan, representation, collective housing.
Resumo: Quando se trata de expressar a flexibilidade de usos do espaço doméstico, a planta baixa é a peça gráfica mais adequada. Este artigo reflete sobre as relações existentes entre as ideias projetuais que sustentam as propostas e os recursos gráficos utilizados pelos projetistas para comunicá-las. Para tanto, analisa-se a modalidade flexível denominada planta versátil, entendida por alguns autores como uma flexibilidade inicial, uma vez que é desenvolvida antes da ocupação do usuário. Para realizar essa reflexão, em primeiro lugar, são colocadas em diálogo as ideias de diferentes autores que teorizaram sobre a flexibilidade da moradia. Em segundo lugar, como ilustração dos conceitos teóricos estudados, é abordada a análise de uma série de projetos e obras construídas. Essas propostas são apresentadas na forma de desenhos de plantas publicados pelos próprios autores para explicar suas ideias. Do estudo das plantas, deriva uma série de conclusões sobre o uso desse recurso gráfico como ferramenta discursiva ao serviço do projeto.
Palavras-chave: discurso gráfico, flexibilidade, planta, representação, habitação coletiva.
1. Introducción
En este artículo de reflexión se presentan algunos resultados de una investigación, realizada en el marco de una tesis de maestría,[1] en la que se estudia una serie de discursos gráficos elaborados por arquitectos y arquitectas para comunicar ideas proyectuales. En particular, en dicha investigación se analiza una selección de dibujos en planta de propuestas de vivienda colectiva que incorporan soluciones proyectuales flexibles. En ese sentido, es necesario definir tres restricciones que, a modo de sucesivos marcos, delimitan el objeto de estudio. En primer lugar, la vivienda colectiva como programa edilicio estudiado; en segundo lugar, la flexibilidad como una estrategia proyectual propia de la vivienda colectiva; en tercer lugar, la planta como el tipo de representación que resulta más adecuado para elaborar un discurso gráfico sobre la flexibilidad.
Existen diversas denominaciones para referirse al programa edilicio analizado en este texto. Por ejemplo, Nicholas John Habraken (2000:9) nos habla de «producción masiva de viviendas»; en cambio, Roberto Kuri (2006:77) lo nombra «vivienda masiva agrupada»; mientras que Ferre, Sakamoto y Hwang (2010:10) lo llaman «vivienda plurifamiliar». No obstante, la gran mayoría de los autores consultados prefiere designarlo vivienda colectiva. Puntualmente, para este artículo se tomó en cuenta la concepción de vivienda colectiva que desarrolla Carolina Valenzuela en el artículo «Plantas transformables: la vivienda colectiva como objeto de intervención», donde la define como «aquella que no tiene usuario conocido» (2004:75). Para esta autora, la indefinición del usuario es uno de los principales motivos —aunque no el único— que lleva a establecer estrategias de flexibilidad. Algo similar argumenta Gustavo Gili Galfetti en el libro Pisos piloto: células domésticas experimentales cuando se refiere a la flexibilidad como «un mecanismo hábil para solucionar la falta de conexión existente (…) entre el usuario anónimo y el proyectista» (1997:12). En definitiva, ante el desconocimiento o la inexistencia de un usuario concreto, la flexibilidad es una estrategia de proyecto adecuada, e incluso necesaria, para desarrollar propuestas de vivienda colectiva.
Si la flexibilidad es una temática intrínseca a la vivienda colectiva contemporánea, la planta es la pieza gráfica que mejor permite exponer las ideas proyectuales sobre la flexibilidad. En definitiva, estas dos primeras restricciones definen la temática de los discursos gráficos analizados.
Con relación a la planta —la tercera restricción de esta investigación—, en el libro Arquitectura y modos de habitar, Jorge Sarquis explica lo que denomina «diagrama lacano–vitrubiano» (2012:24). En dicho texto, el autor asocia cada uno de los principios de la tríada vitrubiana (utilitas, firmitas y venustas) con uno de los gráficos que forman la clásica terna[2] de proyecciones geometrales (planta, corte y fachada). De este modo, la firmitas se vincula con la sección; la venustas,con la fachada; y la utilitas, con la planta.[3] Dado que el tema desarrollado en este artículo se centra en ciertos modos de representar los usos del espacio, la utilitas es el principio que aquí nos interesa estudiar y la planta es el tipo de representación que resulta más adecuado para desarrollar ese análisis.
A su vez, dado que nos focalizaremos en los usos del espaciodoméstico, la planta adquiere mayor relevancia que en otros programas. Acerca de la estrecha relación entre la planta y el habitar, Friederike Schneider alega que «la idea subyacente de una planta no es sino la interpretación que hace el proyectista de una forma de vivir» (1997:XII). Algo similar señala Carolina Valenzuela cuando afirma que la planta «puede entenderse como el material genético del espacio» (2004:74).
Por otro lado, y entrando de lleno en el campo de investigación específico de este artículo, la vivienda colectiva es un programa edilicio que —por lo general— presupone la repetición y el apilamiento de plantas iguales. Por ello, tal como expone Habraken en su libro El diseño de soportes, una «buena» planta suele ser el origen del proyecto de vivienda:
La planta básica es siempre un compromiso, es el resultado de complejas negociaciones entre arquitecto, cliente, constructor, ingeniero de estructuras y otros profesionales. De hecho, la mayor parte de los esfuerzos de diseño son dirigidos a encontrar una solución lo suficientemente buena como para justificar una repetición continuada de la planta. (2000:11)
Por tanto, la elección de la planta resulta estratégica como objeto de estudio de una investigación sobre los discursos gráficos, pues se trata del tipo de representación más adecuada para expresar la flexibilidad de usos de espacios interiores domésticos en edificios de vivienda colectiva. Con ese objetivo en este artículo se presenta una serie de proyectos desarrollados por diferentes arquitectos a lo largo de un arco temporal que se inicia en la tercera década del siglo XX y culmina en la segunda década del siglo XXI. El estudio de cada caso se apoya en las palabras de los propios proyectistas y en comentarios críticos de distintos autores, pero se basa fundamentalmente en los dibujos de las plantas. El corpus de casos a analizar consiste en gráficos que aparecieron en publicaciones disciplinares. Por ello, podemos suponer que fueron realizados por los proyectistas con un claro objetivo comunicacional.
La metodología para llevar adelante la investigación implicó, en primer lugar, desarrollar el estudio comparado de las concepciones y las categorías de una serie de autores que han reflexionado o teorizado sobre la flexibilidad de la vivienda. En segundo lugar, a partir de la revisión de los conceptos y las clasificaciones aportados por dichos autores se definió una clasificación propia, en la que se establecen seis modalidades[4] flexibles vinculadas al habitar contemporáneo: planta transformable, planta evolutiva, planta versátil, planta neutra, planta libre y planta diversa. En particular, en este texto se analiza la modalidad que hemos denominado planta versátil, entendida por algunos autores como una flexibilidadinicial, ya que se produce antes de la ocupación del usuario.
2. Flexibilidad inicial
En Pisos piloto: células domésticas experimentales, Gustavo Gili Galfetti (1997) propone hacer una distinción entre dos modalidades de flexibilidad, la inicial y la permanente. Si la flexibilidad permanente tiene que ver con las modificaciones que se hacen a lo largo del período de uso de una vivienda, la flexibilidad inicial implica «una elección anterior a la ocupación de la vivienda y permite una participación del habitante y del promotor en su concepción» (1997:13). Es decir, para dicho autor, esta modalidad implica que el usuario puede intervenir en el proyecto a partir de una elección (previa a la finalización de la obra) que se realiza entre diferentes posibilidades de organización.
Un concepto similar es el que aporta Carolina Valenzuela (2004:75). En el artículo «Plantas transformables: la vivienda colectiva como objeto de intervención» la autora plantea que la elección por lo general es «irreversible» y, de este modo, establece una tajante diferencia con el tipo de flexibilidad que permite el cambio en forma «permanente».
En el texto «Progresividad y flexibilidad en la vivienda: Enfoques teóricos», Dayra Gelabert y Dania González también distinguen entre dos tipos de flexibilidad: la inicial y la continua. Para las autoras, lo que justifica el calificativo de inicial es que dicha flexibilidad «se manifiesta en la etapa de diseño y concepción» (2013:25), mientras que la flexibilidadcontinua «se produce durante el uso, explotación y transformación del inmueble, luego de la ocupación de la vivienda» (2013:28). Por ello, la definen como «la posibilidad de realizar variaciones al proyecto arquitectónico antes del momento de ocupación» (2013:27). En definitiva, la elección puede llevarse a cabo durante el proceso de construcción o antes de iniciarlo.
No obstante, Gelabert y González reconocen dos limitaciones inherentes a esta modalidad flexible. La primera tiene que ver con las dificultades específicas que presentan ciertos contextos —tanto en lo social como en lo económico— para lograr una real elección del usuario en el periodo anterior a la ocupación. Siendo que, en la mayoría de los casos, «el diseño se elabora para un usuario aún desconocido en ese momento» (2013:27) su participación puede suponer una imposibilidad fáctica. La segunda dificultad radica en que, dado que la versatilidad es una «cualidad inicial», una vez que se optó por una alternativa puede ocurrir que la vivienda obtenida no admita la posibilidad de realizar cambios en el tiempo. Ante esa eventualidad los usuarios quedarían cautivos de «soluciones rígidas» y estarían condenados el uso de espacios que no se puedan adaptar a la evolución de sus necesidades futuras. Para evitar ese impedimento, su recomendación es que la flexibilidad inicial coexista con otras modalidades de flexibilidadcontinua (2013:28).
Por último, dichas autoras proponen dos estrategias para proyectar una planta versátil. La más sencilla implica «proporcionar espacios de dimensiones equivalentes que pueden asumir diferentes funciones, de acuerdo con las preferencias y formas de vida de la familia»; mientras que la más ambiciosa consiste en «la asociación variable de módulos o unidades habitacionales que permitan la combinación y desarrollo de diferentes esquemas» (2013:27). Si una permite distintas distribuciones internas, la otra habilita una mayor libertad para definir las dimensiones externas de la vivienda.
A partir de las definiciones establecidas por los distintos autores consultados, en lugar de referirnos al concepto de flexibilidad inicial, en este artículo aplicaremos el adjetivo versátil[5] para calificar el sustantivo planta. A su vez, usaremos el término alternativas[6] para denominar a las distintas opciones tipológicas previstas por un proyecto de planta versátil. Por último, con relación a las dos estrategias planteadas por Gelabert y González, las designaremos como versatilidad interna y versatilidad externa.[7] En los siguientes apartados ilustraremos estos dos tipos de planta versátil a través de proyectos y obras construidas.
3. Versatilidad interna
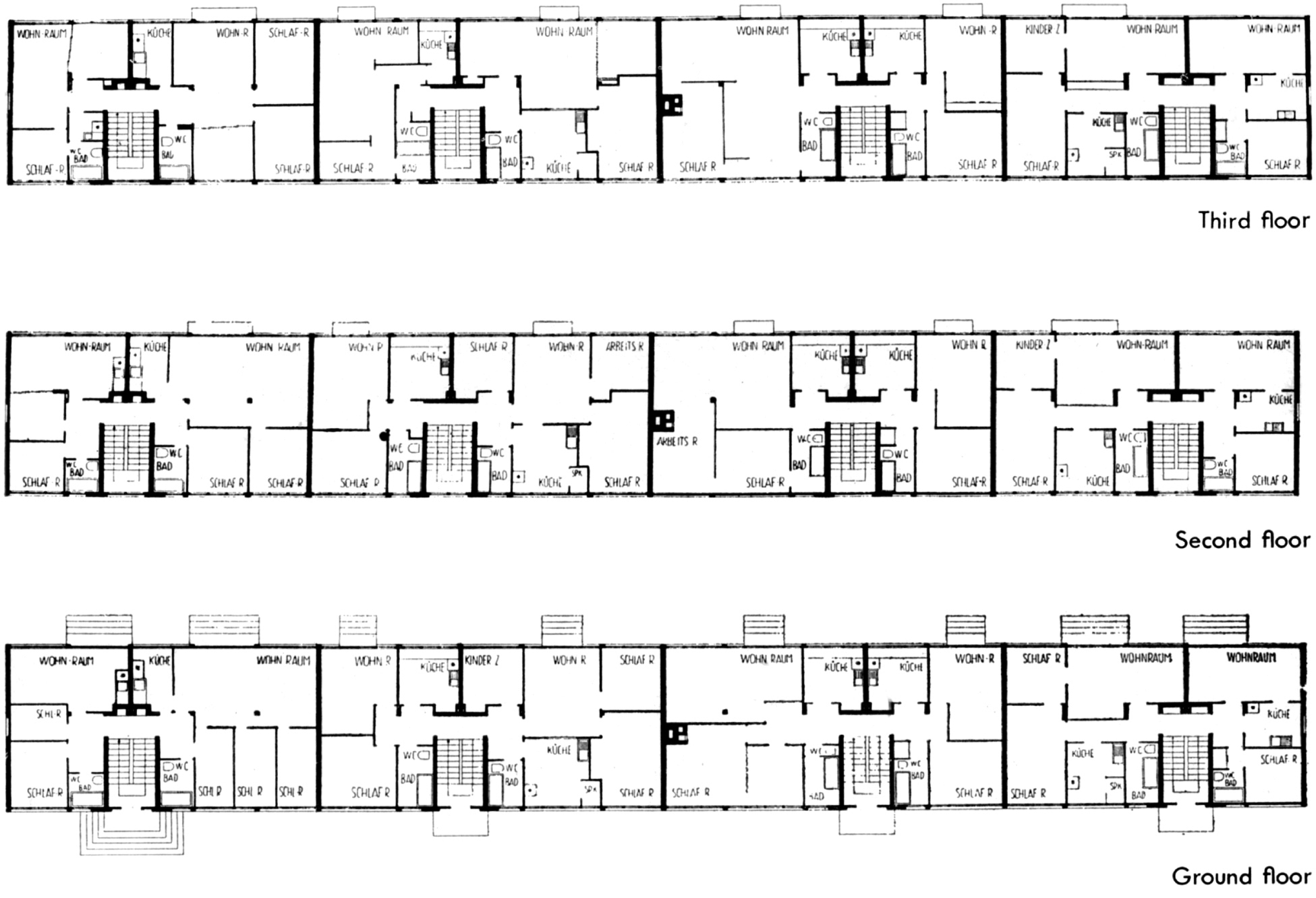
Antes de analizar casos contemporáneos es conveniente empezar con una obra canónica del Movimiento Moderno. Se trata del bloque lineal que Ludwig Mies van der Rohe proyectó y construyó en 1927 en el barrio Weissenhof (Stuttgart, Alemania) como parte de una exposición (organizada por el Deutscher Werkbund) dedicada a la vivienda moderna. Cada nivel de este edificio se conforma por ocho viviendas de dos diferentes tamaños, organizadas en torno a cuatro núcleos verticales de circulación y acceso (Figura 1).
Hilary French ha escrito que en este edificio «Mies aplicó el concepto de flexibilidad en todas sus acepciones» (2008:48).[8] Por otro lado, Friederike Schneider menciona que los usuarios de las viviendas «tienen la posibilidad de establecer la distribución interior que les convenga mediante el uso de tabiques especiales desmontables» (1997:30); mientras que Gelabert y González utilizan esta propuesta para ilustrar el concepto de flexibilidadinicial y destacan que Mies logró «diferentes configuraciones interiores para viviendas de iguales dimensiones» (2013:27). En definitiva, los críticos no han manifestado una posición unánime sobre qué aspectos de la flexibilidad son determinantes en esta propuesta miesiana.
Tal vez el principal aporte de este proyecto consiste en proveer múltiples alternativas de distribución interna en las dos unidades base que conforman el bloque. Para argumentar esta afirmación podemos recurrir a las palabras que Philip Johnson dejó escritas en el catálogo de la celebérrima exposición que el Museum of Modern Art (MOMA) de New York dedicó en 1947 a la obra de Mies van der Rohe: «La flexibilidad de la construcción con estructura independiente fue demostrada por Mies en su casa de departamentos. Mediante el empleo de tabiques movibles creaba doce departamentos de distinta distribución en ambas unidades» (Johnson, 1960:43).[9]
Las plantas[10] que acompañan el texto de Johnson permiten confirmar que los 24 apartamentos obtenidos son diferentes entre sí (Figura 1). Sin embargo, se podría alegar que esa ostentosa demostración de diversidad tipológica debe ser entendida como un muestrario de opciones habitables, ya que el edificio fue concebido en el marco de una exposición de vivienda. Por ello, podemos inferir que los dibujos publicados por Johnson en lugar de ilustrar alternativas de versatilidad interna son la mera representación de las plantas del edificio realizado. En ese sentido, resulta valioso comparar el dibujo de los tres niveles con la planta rotulada «Construction system» (Figura 2). Este último gráfico —también publicado en el catálogo del MOMA (Johnson, 1947)— es la base sobre la que se apoyan todas las variantes tipológicas. Se trata de una planta en la que no se dibujaron las particiones internas, sino que sólo se incluyeron los elementos que condicionan la organización del espacio: los pilares metálicos exentos y los ductos de instalaciones.
Una lectura diferente de este mismo edificio es la que ofrecen las tres plantas parciales publicadas en el libro Atlas de plantas (Schneider, 1997:19) (Figura 3). Por la forma en que están dibujadas y amobladas, estas plantas podrían verse como tres alternativas de organización interna de un mismo tramo, aunque en realidad se trata de tres tramos que pertenecen a diferentes niveles.[11]
Si el edificio de Mies maximiza la diversidad tipológica en función de una intención expositiva, otros proyectos optan por una variedad más controlada, en virtud de atender criterios constructivos, económicos y mercantiles. Obviamente, en propuestas cuyo origen es el mercado especulativo, limitar las opciones tipológicas suele ser la regla general. A este respecto, un ejemplo contemporáneo representativo de la estrategia de versatilidad interna son las viviendas Leebgasse 46, construidas en Viena en el año 2003 por el estudio Querkraft Architekten (Figura 4).
El libro Vivienda Total (Ferré, Sakamoto y Hwang, 2010) incluye un texto que explica los requerimientos programáticos y, sobre todo, las condicionantes contextuales que llevaron a los proyectistas a adoptar una planta versátil:
La orientación de las distintas zonas de la vivienda era evidente: el lado oeste, orientado a un patio verde, debería alojar el salón, mientras que el lado este, que da a una calle poco transitada y poco atractiva, debería contener los dormitorios. Sin embargo, el promotor pidió que la zona de día pudiera orientarse también al este. Se definió entonces un sistema perfectamente variable consistente en estancias dispuestas alrededor de un núcleo húmedo, una planta libre que permite la orientación de la zona de estar hacia el sol de la tarde o de la mañana. El salón también puede ser pasante, orientado hacia ambos lados. Los residentes seleccionaron su distribución preferida cuando el edificio era una simple estructura, durante la fase de venta. (Ferré, Sakamoto y Hwang, 2010:63)
Las tres alternativas de organización mencionadas en la cita se corresponden con las plantas publicadas en Vivienda Total (Figura 4). El esquema organizativo en el que se basan las variantes se puede resumir como una serie de habitaciones que se contraponen al salón, el espacio protagonista de la planta.
Al dibujar una planta, por lo general, el mobiliario constituye un recurso gráfico que permite determinar los usos y las actividades que se desarrollan en cada espacio. No obstante, la adecuada aplicación de este recurso depende del tipo de propuesta y de las ideas que se quieran representar. En este caso se optó por no dibujar el mobiliario y, en su lugar, se aplicó una codificación cromática que identifica distintos usos del espacio: las habitaciones se expresan en rosa claro, los servicios higiénicos en celeste y los salones se destacan con un llamativo amarillo.
Tal como indican sus proyectistas, la orientación de las zonas de estar determinó las variaciones de la planta. Esto se expresa gráficamente mediante unas gruesas flechas de color rojo que establecen los vínculos con las diferentes orientaciones: hacia el este, hacia el oeste o en ambas direcciones. La potencia gráfica que poseen esas flechas constituye un recurso de énfasis, que manifiesta que las relaciones con el exterior fueron proyectualmente más relevantes que las actividades desarrolladas en los espacios interiores.
Un discurso totalmente diferente sobre la versatilidad interna es el que nos propone la planta del Edificio de usos mixtos P10, un complejo de viviendas y oficinas ubicadas en la ciudad de Split (Croacia) y proyectado en 2009 por Studio UP (Figura 5).
Ferré, Sakamoto y Hwang explican que «excepto el núcleo estructural y la fachada, la posición del resto de elementos puede variar en función de las necesidades de los residentes, expresadas durante el proceso de diseño» (2010:244). En consecuencia, las alternativas de compartimentación del espacio se dibujaron superpuestas, mediante líneas discontinuas de color rojo. Ciertamente, este insólito gráfico propone un verdadero desafío a quienes traten de decodificarlo, pues los dibujantes no se molestaron en clarificar las diferentes opciones; lo que podría haberse conseguido —al menos parcialmente— usando diferentes colores. La mayor dificultad radica en que la sumatoria de trazos genera una confusa amalgama que resulta casi imposible de descifrar. Podemos inferir que la intención comunicativa del gráfico se fundamenta en sugerir múltiples alternativas de organización, más que en proponer soluciones concretas. Esta capacidadde sugerencia se consigue a costa de sacrificar la legibilidad de la propuesta. En definitiva, lo que presenta mayor importancia discursiva en este gráfico es expresar la idea, o mejor, la noción de versatilidad.
4. Versatilidad externa
Hemos definido a los casos anteriores como propuestas de versatilidadinterna, dado que las alternativas de organización de la planta no afectan el perímetro de cada vivienda, sino que se restringen a sus espacios interiores. No obstante, la versatilidad no se limita a esta condición, sino que otros casos proponen versatilidad externa, es decir, las plantas admiten variaciones en los límites de las viviendas y, por lo tanto, también en el área total construida. Son varios los trabajos teóricos que se han ocupado de este tema.
En el artículo «Desarrollo histórico de la planta de la vivienda» —incluido en el libro Atlas de plantas—, Reinhard Gieselmann establece como un valor del proyecto «la capacidad que tiene una vivienda para unirse a otra[s], y también la dotación de habitaciones intermedias que pueden asignarse indistintamente a una u otra vivienda» (1997:25). En otro artículo de la misma publicación, Friedericke Schneider hace una valoración similar al proponer «habitaciones de carácter neutro que puedan asignarse a viviendas diferentes, o a unir dos o más viviendas en una sola» (1997:30).
En línea con estos autores, Pablo Fernández Lorenzo propuso, en su tesis doctoral, un atributo de flexibilidad que denominó «contorno definido y límites variables entre viviendas» y formuló tres características que definen a esta concepción:
la vivienda se desarrolla dentro de un espacio tipológicamente diferente cuya indefinición de uso es total, de tal modo que las fronteras entre las viviendas creadas en su interior son variables (…). La construcción utiliza sistemas de separación entre viviendas que pueden ser desplazados o suprimidos (…). El espacio servido por cada núcleo de comunicación vertical puede estar formado por una o dos viviendas, siendo variables los límites entre ellas. (2012:425)
Por su parte, Montaner, Muxi y Falagán aportan una serie de «estrategias de transformación» mediante las que proponen «una adecuada diversidad de tipologías, previendo incluso los posibles mecanismos de agrupación o disgregación de las viviendas» (2011:161).
De modo que, si la versatilidad no se restringe al interior de la tipología y se extrapola al edificio, es posible obtener mayor libertad para la subdivisión de las unidades de vivienda. A partir de esta idea definiremos dos estrategias de versatilidad externa: cuando la planta impone limitantes en la cantidad y/o el tamaño de las viviendas y cuando no existen dichas limitantes.[12] En el primer caso nos referiremos a límitesvariables entre viviendas, mientras que al segundo lo denominaremos versatilidad ilimitada.
4.1 Límites variables entre viviendas
El primer caso que ilustra esta estrategia es el edificio 110 Rooms, ubicado en la ciudad de Barcelona y proyectado en 2016 por el estudio español MAIO (integrado por María Charneco, Alfredo Lérida, Guillermo López y Anna Puigjaner) (Figura 6). Desde el propio nombre de la propuesta se enfatiza la habitación por sobre la tipología. Los proyectistas manifiestan que «el edificio de viviendas se ha concebido como un sistema de habitaciones en el que cada apartamento puede ser ampliado o reducido —añadiendo o restando piezas— para responder a las necesidades futuras de sus habitantes» (MAIO, 2019:96). Esta condición permite que el límite entre dos viviendas se ubique en diferentes posiciones, hacia un lado o hacia el otro del eje de simetría.
Para expresar las alternativas de división, sus autores presentan seis plantas que forman una serie gráfica.[13] En cada planta se utilizaron dos intensidades de rellenos grises, un recurso que permite que los apartamentos contiguos se diferencien mejor.
Otro caso que apela a la versatilidad de los límites variables es Structural Dyke, un proyecto no construido del estudio Njiric + Njiric Arhitekti (Helena Njiric y Hrvoje Njiric), desarrollado en el año 1993 para la municipalidad de Den Bosch, en Países Bajos (Figura 7).
La planta del edificio (Figura 7, centro y abajo) ilustra un total de nueve variantes de organización interna, conseguidas a partir de la unidad básica(Figura 7, arriba). Manuel Gausa (2002: 24–25) entiende que el proyecto consiste en «esquemas combinatorios sobre la base de núcleos fijos y crecimientos variables», mientras que Elena Mata Botella dice que esa planta «se convierte en un muestrario de los "escenarios habituales" que producen las gentes que ahí habitan» (2002:105). Para caracterizar a esas «gentes», los proyectistas establecen una serie de etiquetas textuales que aparecen en cada vivienda e informan sobre la cantidad de ocupantes, sus relaciones (familiares o de convivencia) e incluso indican las actividades que realizan (laborales, formativas o recreativas).

Para dar respuesta a esa diversidad de modos de habitar, el principal recurso proyectual consiste en sumar o restar espacios laterales a la unidad básica. Como consecuencia, la planta ilustra diferentes variantes en la asignación de los espacios de las bandas angostas, que abarcan desde las más compactas (old lady y musician) a las más amplias (students flat y work unit).
Otro recurso, que se suma a los dos anteriores, es que los probables usuarios aparecen sugeridos mediante circunferencias (aunque dado el pequeño tamaño que tienen, tendemos a verlos como puntos). En algunos casos se incluye sólo a quienes viven en cada apartamento, mientras que, en otros, esos puntos se multiplican por toda la vivienda (por ejemplo, en las opciones family . kitchen parties) indicando visitantes frecuentes o personas que interactúan en los espacios exteriores.
5. Versatilidad ilimitada
Para desarrollar la última estrategia de planta versátil vamos a revisar dos casos que proponen una enorme libertad en la subdivisión de unidades. El primero, llamado Mix Land, se trata de un proyecto no construido desarrollado por Manuel Gausa en 2004 como parte del plan urbano Sociópolis para la ciudad de Valencia (Figura 8).
Vicente Guallart, director de dicho plan, nos dice que Gausa estableció: «A scheme of residential modules, at once flexible and defined, allows the spaces to be adapted, on the basis of slight variations, to differing situations of coexistence, intimacy and exchange» (Guallart, 2004:117).
Las variaciones que menciona Guallart tienen su origen en una organización lineal (viviendas en tira) a la que se accede por un corredor de distribución. Lo más significativo de la propuesta es que las 20 unidades previstas pueden tener diversos anchos de fachada, además de distintas configuraciones internas. A diferencia del proyecto anterior, los diez tipos de vivienda se muestran por separado, mediante una ficha técnica que incluye la planta y algunos datos (áreas, espacios, probables usuarios), lo que se constituye en un muestrario de las opciones disponibles obtenidas a partir de diferentes cortes de la tira.
El recurso gráfico más destacable es la representación de los usuarios mediante figuras humanas recortadas de fotografías. Esas figuras complementan la información que se da en la ficha técnica y, al ubicarse en los interiores de las plantas, califican los espacios y aportan tridimensionalidad al dibujo, aunque por tratarse de fotografías trasgreden el sistema diédrico ortogonal, propio de la planta.
Para sugerir los probables usuarios de las viviendas, en algunos casos se definen las características profesionales («un estudiante», «un arquitecto», «dos jóvenes artistas»), mientras que en otros se establecen las relaciones interpersonales entre los integrantes del núcleo de convivencia («una pareja», «una pareja y un adolescente», «una pareja y dos niños»). Además, las figuras ilustran algunos de los usos desarrollados en las viviendas (las parejas realizan actividades compartiendo el espacio, los niños juegan en las salas, uno de los jóvenes artistas toca el saxofón, el arquitecto dibuja en una mesa). En definitiva, las diferencias entre los apartamentos están relacionadas (podríamos decir adaptadas) con los distintos tipos de usuario. Por otro lado, en cada planta se dibuja el mínimo equipamiento indispensable (aparatos sanitarios de cocinas y baños, espacios de almacenamiento y camas), y el espacio libre restante queda definido mediante un relleno gris claro que permite destacar las figuras de los usuarios.
Una lógica proyectual similar es la que adoptaron Carlos Arroyo, Manuela Pérez y Eleonora Guidotti en el Eco–barrio Benquerencia de Toledo, una propuesta que en 2001 resultó ganadora de un primer premio en la sexta edición del Concurso Europan.[14] Sus proyectistas explican:
El volumen banda es una estructura lineal que permite decidir el tamaño y la configuración adecuada para cada habitante, manteniendo la necesaria flexibilidad para que, en el futuro, pueda adaptarse a los cambios en la composición del núcleo habitacional, sus condiciones de trabajo u otras necesidades del habitante. (Solanas, 2008:54)
La clave proyectual que podemos extraer de esta explicación es que el volumen banda «permite decidir el tamaño y la configuración» de las viviendas. A partir de esta idea, vamos a analizar el primer gráfico de la propuesta, titulado «volumen banda – vivienda al corte» (Figura 9).
En este caso, los cortes de la tira no siguen un patrón regular ni están sometidos a un módulo, sino que dependen de las necesidades espaciales de los habitantes. Un texto que acompaña al gráfico aporta algunos argumentos que permiten entender mejor esta idea: «Se ha conseguido que las personas que los adquieran puedan elegir el tamaño de su espacio con total libertad. Pueden también compartimentar según sus deseos, su forma de vida o las necesidades de su trabajo» (Solanas, 2008:57).
Luego de plantear una libérrima posibilidad de compartimentación, los proyectistas explican cómo se determina la «medida de una vivienda adecuada», es decir, el modo de hacer los «cortes» en el volumen banda:
El gradiente de situaciones socioeconómicas se corresponderá con la escala de tamaños. Fijado este parámetro, la composición del grupo proporcionará una tabla de opciones habitacionales que ilustrará posibles combinaciones espaciales en el interior de la vivienda, para facilitar la elección por parte del usuario. (Solanas, 2008:56)
La cita anterior acompaña al gráfico titulado «diagrama del volumen banda» (Figura 10). Se trata de una matriz[15] que incluye 138 alternativas tipológicas en donde la «superficie construida» (14 columnas que abarcan áreas desde 39,5 m² a 91,1 m²) se relaciona con las «posibilidades de vivienda» (19 filas que incluyen alternativas, codificadas de la A a la S).
Podemos decir que la extrema versatilidad conseguida en el volumenbanda opera a dos niveles. En el primer nivel (versatilidad externa) se exige definir la dimensión lineal por donde se realiza el corte de la banda, lo que determina la superficie total construida. Esto se consigue mediante el «gradiente de situaciones socioeconómicas» (Solanas, 2008:56). En el segundo nivel (versatilidad interna) es el usuario quien puede elegir, entre varias alternativas disponibles, la organización espacial que mejor se adapta a «sus deseos, su forma de vida o las necesidades de su trabajo» (Solanas, 2008:57). En definitiva, el discurso gráfico del «diagrama del volumen banda» (Figura 10) considera dos niveles de versatilidad: mientras que las columnas dan respuesta al primer nivel, las filas responden al segundo.
6. Conclusiones
Llegar a las conclusiones supone cerrar el proceso de análisis desarrollado a lo largo de este artículo. Por ello, a modo de síntesis,[16] es necesario hacer una recapitulación y un resumen de los principales temas vistos en ese recorrido y, a la vez, destacar los conceptos más importantes.
En primer lugar, la característica discursiva definitoria de las plantas versátiles no radica tanto en los recursos gráficos con los que se dibujan las plantas, sino en la forma de disponer las diversas alternativas de organización tipológica en el espacio gráfico de la página (o de la pantalla, cuando corresponde). En los casos analizados, las alternativas se muestran básicamente de tres modos. En el primer modo, las tipologías se presentan por separado, en forma independiente al edificio que las contiene. Esto puede conseguirse mediante series gráficas de tipologías que incluyen variaciones de una misma planta, las que pueden presentarse en forma de fichas, como en Mix Land (Figura 8), o pueden formar matrices, como en el Eco–barrio Benquerencia (Figura 10). En el segundo modo, las alternativas se integran una misma planta: conformando un sector del edificio, como sucede en las viviendas Weissenhof (Figura 3); o se incluye la planta del edificio completo, como sucede en Leebgasse 46 (Figura 4), en 110 Rooms (Figura 6) y en Den Bosch (Figura 7). El tercer modo consiste en que las alternativas se superpongan en un mismo gráfico, como ocurre en la planta del Edificio de usos mixtos P10 (Figura 5).
En segundo lugar, el dibujo del mobiliario permite determinar los usos y las actividades que se desarrollan en cada espacio. Sin embargo, la aplicación de este recurso depende del tipo de propuesta y de las ideas que se quieran representar. Varias de las plantas analizadas en este trabajo incluyen el mobiliario para sugerir los usos, como ocurre en Weissenhof (Figura 3), Den Bosch (Figura 7) y Benquerencia (Figuras 9 y 10); aunque en otros casos los usos se indican sin apelar al mobiliario, como sucede en Leebgasse 46 (Figura 4) y en Mix Land (Figura 8).
En tercer lugar, un recurso que se reitera en varios casos consiste en el uso de rellenos grises o de color en los espacios interiores de la planta. Este recurso se aplica con diferentes objetivos: puede actuar a modo de código cromático indicando los usos del espacio, como sucede en Leebgasse 46 (Figura 4); puede destacar un sector o una zona dentro de una vivienda, como ocurre en Den Bosch (Figura 7); puede diferenciar dos viviendas contiguas, como se hizo en 110 Rooms (Figura 6) y en Eco–barrio Benquerencia (Figura 9), o simplemente puede usarse de fondo, como se hace en Mix Land (Figura 8).
Por último, los recursos gráficos que son propios del dibujo de una planta pueden complementarse con la inclusión de los probables usuarios para los que se proyecta. En este trabajo analizamos tres recursos que permiten indicar los tipos de usuarios: el uso de etiquetas textuales en Den Bosch (Figura 7); los pictogramas humanos en Eco–barrio Benquerencia (Figura 9) y en Mix Land (Figura 10), y las figuras fotográficas en Mix Land (Figura 8). Vale la pena destacar que estos recursos trascienden la mera representación convencional de una planta y se constituyen así en licencias . transgresiones expresivasque vuelven más contundente un discurso gráfico destinado a comunicar ideas proyectuales.
Referencias bibliográficas
Aymonino, C. (1983). El significado de las ciudades. Blume.
Fernández Lorenzo, P. (2012). La casa abierta: hacia una vivienda variable y sostenible concebida como si el habitante importara. [Tesis de Doctorado]. Universidad Politécnica de Madrid. Escuela Técnica Superior de Arquitectura. http://oa.upm.es/21971/
Ferré, A.; Sakamoto, T. y Hwang, I. (2010). Vivienda Total: alternativas a la dispersión urbana. Actar.
Folga, A. (2023). Representación de la temporalidad en plantas de proyectos de viviendas flexibles. ArquisurRevista, 13(23), 20–31. https://doi.org/10.14409/ar.v13i23.12425
Folga, A. (2022a). Planta neutra: Una estrategia de flexibilidad en proyectos de vivienda colectiva. Textos De Tecnología, (04), 33-47. Recuperado de https://revistas.udelar.edu.uy/OJS/index.php/RTdT/article/view/901
Folga, A. (2022b). SILODAM: Un discurso gráfico sobre la diversidad tipológica en la vivienda colectiva contemporánea. ARQUISUR Revista, 12 (21), 110–123. https://doi.org/10.14409/ar.v12i22.11221
French, H. (2008). Vivienda colectiva paradigmática del siglo XX. Gustavo Gili.
Gausa, M. (2002). Housing: Nuevas alternativas, nuevos sistemas. Actar.
Gelabert , D. y González, D. (2013). Progresividad y flexibilidad en la vivienda. Enfoques teóricos. Arquitecturay Urbanismo, 34(1), 17–31. http://scielo.sld.cu/scielo.php?script=sci_arttext&pid=S1815-58982013000100003&lng=es&tlng=es
Gieselmann, R. (1997). Desarrollo histórico de la planta de la vivienda. En Schneider, F. (Ed.). Atlas de plantas (pp. 12–25). Gustavo Gili.
Gili Galfetti, G. (1997). Pisos piloto. Células domésticas experimentales. Gustavo Gili.
Guallart, V. (2004). Sociópolis. Project for a City of the Future. Actar.
Habraken, N. (2000). El diseño de soportes.Gustavo Gili.
Johnson, P. (1947). Mies van der Rohe. The Museum of Modern Art.
Johnson, P. (1960). Mies van der Rohe. Víctor Lerú.
Kuri, R. (2006). La vivienda urbana agrupada. Ante los nuevos cambios culturales: estrategias proyectuales. En Sarquis, J. (Comp.). Arquitectura y Modos de habitar (pp. 75–92). Nobuko.
MAIO (2019). 110 habitaciones. ARQ (Santiago), (102), 96–105. https://dx.doi.org/10.4067/S0717-69962019000200096
Mata Botella, E. (2002). El análisis gráfico de la casa (tesis doctoral). Universidad Politécnica de Madrid. http://oa.upm.es/1844/1/ELENA_MATA_BOTELLA.pdf
Montaner, J.M.; Muxi, Z. y Falagán, D. (2011). Herramientaspara habitar el presente. La vivienda del siglo XXI. Actar.
Sarquis, J. (2006). Arquitectura y modos de habitar. En Sarquis, J. (Comp.). Arquitectura y Modos de habitar (pp. 13–35). Nobuko.
Sabino, C. (1992). El proceso de investigación. Panapo.
Sainz, J. (2005). El dibujo de arquitectura: teoría e historia de un lenguaje gráfico. Reverté.
Schneider, F. (Ed.) (1997). Atlas de plantas. Gustavo Gili.
Solanas, T. (2008). Vivienda y Sostenibilidad en España. Vol. 2. Gustavo Gili.
Valenzuela, C. (2004). Plantas transformables. La vivienda colectiva como objeto de intervención. ARQ, (58), 74–77. https://dx.doi.org/10.4067/S0717-69962004005800022
Notas