Resumen:
Una visita reciente a la Hill House del arquitecto Rennie Mackintosh, en Helensburgh, Escocia, origina este artículo de reflexión. Los recorridos por sus diferentes ámbitos convocan recuerdos, ideas, asociaciones de imágenes de otras casas, otros tiempos y lugares. El trabajo muestra un modo de habitar en el que ciertos comportamientos arquetípicos del ser humano parecen encontrar respuestas también arquetípicas en la arquitectura de la casa, manifestaciones espaciales paradigmáticas que siguen guiando el proyecto doméstico en nuestros días. Desde el antiguo castillo de Hedingham en Essex, Inglaterra, hasta el pequeño apartamento proyectado por Christian Pottgiesser en París, el itinerario no es solo a través de las habitaciones de la Hill House, sino de otras obras de la arquitectura, el cine y la pintura, que confluyen congregadas por una misma forma de vivir, sentir y crear el espacio doméstico. Mediante este itinerario se descubre una vía histórica argumental de transformaciones espaciales que podría explicar, provisionalmente, la persistencia de ciertos arquetipos domésticos en las arquitecturas contemporáneas, a la vez que remitirnos a sus orígenes más remotos y olvidados.
Palabras clave: casa aislada inglesa, equipamiento, espacio doméstico, Hill House, interioridad.
Abstract: This work is the result of a recent visit to the Hill House designed by architect Rennie Mackintosh in Helensburgh, Scotland. Looking around the house evokes memories, ideas, and associations with other houses, other times, and other places. The work displays a way of inhabiting in which certain archetypal human behaviors also seem to find archetypal responses in the architecture of the house, which are paradigmatic spatial manifestations that still guide domestic projects today. From the ancient Hedingham Castle in Essex, England, to the small apartment designed by Christian Pottgiesser in Paris, the itinerary not only includes the Hill House’s rooms, but also other works of architecture, cinema, and painting that converge on the same way of living, feeling, and creating the domestic space. Through this itinerary, a historical argumentative path of spatial transformations is discovered, which could provisionally explain the persistence of certain domestic spatial types in contemporary architecture while also recalling its most remote and forgotten origins.
Keywords: English isolated house, equipment, domestic space, Hill House, interiority.
Resumo:
Uma recente visita à Hill House do arquiteto Rennie Mackintosh em Helensburgh, Escócia, originou este artigo de reflexão. Os passeios pelos seus diferentes espaços evocam memórias, ideias, associações de imagens de outras casas, de outros tempos e de outros lugares. A obra exibe uma forma de viver em que certos comportamentos humanos arquetípicos parecem encontrar também respostas arquetípicas na arquitetura da casa, manifestações espaciais paradigmáticas que continuam a orientar o design doméstico hoje. Do antigo Castelo de Hedingham, em Essex, Inglaterra, ao pequeno apartamento desenhado por Christian Pottgiesser em Paris, o itinerário passa não só pelos quartos da Hill House, mas também por outras obras de arquitetura, cinema e pintura que se unem no mesmo modo de viver, sentir, pensar (e fazer pensar) e criar espaço doméstico. Através deste itinerário, descobre-se um percurso histórico argumentativo de transformações espaciais que poderá explicar, provisoriamente, a persistência de determinados tipos espaciais domésticos nas arquiteturas contemporâneas, ao mesmo tempo em que nos remete para as suas origens mais remotas e esquecidas.
Palavras-chave: casa inglesa isolada, equipamento, espaço doméstico, Hill House, interioridade.
Artículos
El hueco en la piedra. Los límites difusos del espacio interior
The hole in the stone. The diffuse limits of the interior space
O buraco na pedra. Os limites difusos do espaço interior
Recepción: 31 Marzo 2024
Aprobación: 06 Mayo 2024

«En la vivienda italiana prevalece la forma del conjunto, en la inglesa, la forma de sus elementos. Dichos elementos son recurrentes y en ellos encontramos el carácter de la casa inglesa» (Cornoldi, 1999:17)
La primera imagen que recordé cuando vi la Hill House este verano de 2023 fue aquella con la que finaliza Nostalgia, la película de Andrei Tarkovsky: la de una casa dentro de la nave de una gran iglesia en ruinas.
Separada de la historia narrada en el filme, la imagen tendría múltiples significados en el cine del director ruso. Capas del tiempo, historias superpuestas, espacios de épocas remotas que se funden en el presente, la grandeza de la casa de Dios y la pequeñez de la casa del hombre, o la pertinaz presencia del espacio doméstico a través del tiempo. Considerando el tema del filme y su nombre, se puede interpretar la imagen de la casa como la de un refugio, un hueco dentro de otro hueco que pertenece a un mundo pasado y devastado, erosionado por el tiempo y el accionar del hombre, del que quedan algunos vestigios para que no sea totalmente olvidado, manteniendo así la esperanza de su restauración. Si nostalgia es la añoranza que se tiene cuando todavía se está en entorno del hogar pero no se lo reconoce como tal, la imagen es también una metáfora: la de que el hombre busca en todo tiempo reinstalar, entre los vestigios de su pasado, ese hueco perdido de regocijo inefable como expresión de un nuevo comienzo.
En la imagen, la casa del hombre aparece lozana en medio de la ruina; se manifiesta como el paisaje puro de nuestro primer espacio, de nuestra más profunda infancia, nuestra primera y última esperanza cuando nos invade la sensación de desolación, cuando hemos perdido el solaz porque nuestra identidad ha sido erosionada y añoramos el placer que nos proporcionaba el asueto de los quehaceres habituales, el descanso que solamente el hogar puede proporcionarnos.
Dos centros luminosos se perciben en El Filósofo meditando de Rembrandt, la ventana y el fuego, dos oquedades que aglutinan actividades, amparándolas y favoreciendo su desarrollo.
La ventana parece inducir a la meditación y a la imaginación en medio de una luz espesa que adquiere fuerza de metáfora: la mente iluminada dispuesta a la creación, al intercambio de las ideas interiores con las de un exterior imaginario. El fuego, en cambio, favorece la acción, el movimiento mecánico para la elaboración de alimentos, mientras instaura un nuevo centro interno en el espacio atendido por la mujer que se erige como custodia de lo doméstico. Ambos centros se complementan, pensamiento y acción son necesarios para la sobrevivencia y el disfrute de la vida. Ambos centros representan dos fuerzas, una centrífuga que impulsa a escapar y evadirse a un mundo de aventuras, y otra centrípeta que atrae hacia el interior, hacia el centro mismo de lo doméstico. Como el filósofo y su mujer, cada uno de nosotros se debate entre la partida y el regreso, entre un mundo que está fuera y otro mundo que está dentro, mientras atravesamos una y otra vez, desdibujándolos, los frágiles límites entre el interior y el exterior (Figuras 1a y 1b).


La Hill House (1902–1904) necesita de un andamiaje complejo para su restauración. Un andamiaje que la rodea, la abraza y la aprisiona como un oscuro manto, borrándola casi del paisaje. Mientras se recorre la obra por el interior de esa nueva piel, una segunda casa, se pueden tener perspectivas insólitas del edificio de Mackintosh y del paisaje que lo rodea.
La casa discurre en una campiña ondulada y verde, de benigna belleza, en lo alto de una colina, a unos treinta minutos a pie de la estación de Helensburgh. Desde su jardín y desde su interior aún se puede percibir el Gare Loch, un pliegue del fiordo de Clyde, en la costa oeste de Escocia, donde el río Clyde, después de atravesar Glasgow, desemboca lento en el mar de Irlanda.
Vista dentro de esta nueva estructura, la Hill House parece más pequeña que la imagen que ofrecía cuando estaba libre en la colina, ostentando su aspecto de estilo baronial escocés. Resulta difícil apreciarla ahora con el porte de un castillo o una fortaleza desafiante sobre el promontorio como lucía en las fotos que conocí de estudiante. Solo recobra su escala real cuando se ingresa al interior. Allí el espacio se vuelve a ensanchar, se diversifica y adquiere una magnitud excepcional debido a la variedad de mundos que contiene.
Desde el exterior, detrás de la malla oscura, la casa se percibe como un conjunto armónico de bultos, de volúmenes pintorescos, hábilmente proporcionados y articulados a pesar de que las sombras arrojadas, que tanto colaboran en la gracia de su forma, hayan desaparecido. La imagen sugerente y ambigua, entre casa, castillo medieval y maqueta o casa de muñecas, provoca la confusión de su tamaño.
La malla gris que la rodea parece preservar un tesoro valioso, ideal de un modo de vida que se fue perdiendo, pero que aún conserva algo primigenio, imposible de destruir. Como un umbráculo a cielo abierto genera una zona de penumbra en el intersticio de sus capas. El interior de la casa se oscurece, y es necesario encender algunas lámparas para combatir la oscuridad. Pero en ciertos lugares, en aquellos huecos junto a las ventanas diseñadas con esmero, la luz diurna prevalece sobre la penumbra, encendiendo flores y cuerpos de doncellas de estilizados contornos, plasmados en cálidos vitrales dibujados con trazos de metal y trozos de vidrio coloreado.
La casa está llena de huecos, ella misma es una cavidad dentro del andamiaje metálico. Lugares para el descanso, la lectura, el solaz, junto al fuego y al vano.
La arquitectura dibuja, en estas casas inglesas, oquedades que parecen estar dispuestas a acogernos y renovarnos, liberándonos del trajín del día.
Cuando atravesamos el umbral del jardín y del acceso, e ingresamos a una habitación con el fuego y la lámpara encendidos, y nos sentamos en el sillón junto a la ventana, estamos entrando en los huecos que nos esperan, huecos con otros huecos que nos sorprenden y nos transforman, transformados ellos, a su vez, por nuestra presencia.
Así expresa la arquitectura de estas casas los lugares de nuestro descanso, de nuestra pausa y nuestra restauración.
La sociedad, la vida privada de la casa contemporánea se manifiestan plenamente en las casas apartadas de Gran Bretaña de fines del setecientos y del ochocientos, donde se gestan los grandes modelos espaciales de occidente que albergan los comportamientos arquetípicos del ser humano (Cornoldi, 1999).
Acceder, adentrarse, acoger y recibir, asomarse, apartarse y recogerse, acciones arquetípicas, encuentran su respuesta en los huecos de la casa: umbral (arch – way), porch, vestíbulo (entrance – hall/outer–hall), salón (hall, drawing room), comedor (diningroom), dormitorio (chamber/bedroom).
Si bien la arquitectura inglesa de la casa aislada no renuncia a las más excéntricas invenciones, organiza sistemáticamente los conocimientos derivados de cada época y civilización. Pragmatismo y eclecticismo anglosajón conducen a fundar la utilidad y el placer junto con la comodidad francesa que se enquista en aquí y evoluciona en bienestar y relax. El confort se transforma en un hecho deliberadamente físico (Cornoldi, 1999).
Según las imágenes de los libros, implantada en la colina, la casa (hoy prisionera en su jaula metálica) luce gran libertad y elegante racionalidad, de apariencia casual y pintoresca, pero sólida, como la de los castillos de Britania.
La planta se caracteriza por ambientes desgranados y vinculados, dispuestos con autonomía según diferentes modos de relacionamiento, engrapados al espacio del Hall, pero manteniendo su independencia. El espacio fluye y a la vez se aísla, se cierra en cada bucle y en cada hueco. Cada ambiente es diferente, nunca se reitera el mismo esquema espacial, ni el mismo diseño de alféizar, ni el mismo diseño de hogar; cada espacio mantiene una identidad debido a sus formas, sus proporciones, la iluminación, los materiales, el equipamiento y la relación con el entorno.
La singularidad de cada ambiente está en función de un significado especial de la vida privada, de un tipo definido de actividad doméstica: acceder, conversar, comer, leer, dormir (Figuras 2a, 2b).


Cada ambiente está organizado como un conjunto de ámbitos diferentes, formal y funcionalmente compatibles que se reconocen por su perímetro articulado, por el diseño del pavimento y las diferentes alturas del cielorraso, por los revestimientos de sus paredes y el tratamiento de las ventanas, por la presencia de columnas, nichos, armarios y asientos empotrados, por la disposición del equipamiento móvil, las alfombras y cortinas.
Lo íntimo se esconde para protegerse y para proteger la identidad del habitante. Se oculta detrás de una apariencia que revela el secreto. En la casa, el secreto no se desvela repentinamente sino en los puntos de contacto de la apariencia y de la sinceridad (Serfaty–Garzon, 2003:193).
Cada ambiente parece encerrar un mundo completo, una casa dentro de otra casa. El mundo cabe en una habitación, en una oquedad. Un hueco abre otro hueco en una sucesión casi infinita que perfora y se estrecha, simulando conducir a lo más íntimo y secreto, siempre inaccesible. A veces, en un hueco solo cabe un libro, pero un libro es un mundo que se abre a quien lo lee. Sí, los huecos de la Hill House albergan mundos, aun los más pequeñitos.
En el interior de una misma estancia, el individuo puede apartarse o relacionarse gracias a la presencia de pequeños rincones reservados que favorecen la individualidad y de espacios mayores que favorecen las relaciones y la interacción.
Esta calidad de la habitación, propia de la casa inglesa, ha servido como modelo de la privacidad británica, y se repropone en toda la casa, concebida como acoplamiento de varias partes vinculadas que parecen desprenderse de un centro y rodearlo sutilmente, generando una organización policéntrica y aglutinada, combinación de refugio y de lugar de vida compartida, admirada por los pioneros de la arquitectura moderna de Europa y Norteamérica, Richardson, Wright, Muthesius, Loos. Una casa con aire de austeridad y no obstante sofisticada, lugar de ensayo de la etapa final del proceso de maduración del espacio privado contemporáneo que resume las intenciones esenciales de ese proceso: búsqueda del placer y el bienestar, de la higiene, de la eficiencia, de la practicidad y la intimidad (Cornoldi, 1999).
Una casa proyectada y construida con inteligencia, pero sobre todo con el corazón.
Recorrer la Hill House es transportarse por mundos fascinantes de claridades y penumbras alternadas, de silencios y rumores; es desplazarse entre joyas brillantes de colores transparentes aprisionadas por trazos sinuosos, oscuros y elegantes. Todo parece conformar un bosque encantado que parafrasea la dulce campiña del entorno, colmada de náyades, seres mágicos y mitológicos, transparentándola a su interior a través de metáforas formales serpenteantes y elegantes.
El recorrido sigue los rigores de un sistema de espacios encadenados que nos conducen desde el exterior al interior hasta aquel rincón que buscamos ansiosos, o hasta aquel balcón desde donde dominamos la campiña o el Hall.
La intensidad de ese recorrido se suaviza y pierde su rumbo en el meandro de un hueco, donde nos atrapa la concavidad de un sillón espléndidamente tapizado o la de una estufa revestida de cerámicas, o la luminosidad de un bay window de rigurosa simetría. Siempre se vuelve al Hall, donde el camino se bifurca y las alternativas sorprenden, provocándonos a tomar nuevas rutas.
El fuego es el corazón de la casa inglesa, su centro emocional, a veces, su centro geométrico. Herencia de la casa vikinga (longhouse) en la que todo giraba en torno a un fuego central con el que se cocinaban los alimentos y con el que se iluminaba y calentaba a todo el espacio llamado Hall. Rústicos camastros y mesas de madera se organizaban en torno a este fuego que gobernaba la vida de sus habitantes.
Poco a poco, esas partes que estaban integradas al Hall, en cuyo centro brillaba el fuego, se fueron distinguiendo, primero como huecos del propio espacio (alcoves), y posteriormente como habitaciones más amplias. El fuego se multiplicó y se repartió entre esas estancias, construyendo su propio rincón y adueñándose de su propio hueco cavado en el muro.
Penshurst Place, en Kent, del Siglo XIV, adopta una conformación que aún muestra la posición central del fuego, hearth, y del dais, entarimado que privilegiaba a un sector del espacio (Figuras 3a, 3b).


Si atendemos al origen y la etimología de la palabra hearth,[1] vemos que comparte su ascendencia con la palabra corazón (heart). Hearth, por su parte, se traduce como Hogar y éste como home, término anglosajón de donde deriva hejm (hogar) para los holandeses y otros pueblos del norte de Europa (Rybczynski :71), culturas que desarrollaron el espacio doméstico burgués. No es necesario destacar la relación entre hogar y corazón que más que al órgano se refiere al sentimiento: el hueco del fuego es aquello que amamos, es nuestro corazón y el de nuestro hogar, nuestra fuente de vida.
Con el pasar del tiempo, igualmente el lugar del fuego se desplazó de la posición central al perímetro del Hall y creó su propio lugar, elfireplace (también llamado inglenook)[2], en muchos casos equipado, conformando otro hueco esencial de la casa.
En Crossways, que el arquitecto Hugh Baillie Scott proyectó en 1897 en Windermere, Cumberland, si bien el Hall aún mantiene su jerarquía y sus dimensiones, se aprecia una mayor especificidad y diferenciación. El comedor (dining room), la alcoba (bower)[3] y el salón para visitas (drawing room), están diferenciados, aunque aún conectados generosamente al espacio del Hall. Asimismo, la secuencia de acceso sigue una sucesión de cambios de dirección que tamizan con más fuerza la relación del Hall con el exterior, reforzando el carácter íntimo de los espacios (Figuras 4a y 4b).

Para incrementar la intimidad, con el correr del tiempo, el Hall perdió consistencia como lugar de estar y se transformó en un lugar de distribución y de espera, más parecido a un vestíbulo.
Como el umbral, el vestíbulo ofrece un tiempo de pausa previo al verdadero contacto social. Como el umbral, protege a la casa y le sirve de esclusa de seguridad. Palabras y gestos de bienvenida rozan sin nombrarlo el riesgo de invasión de la intimidad por parte del visitante, portador del exterior. Calman los temores del anfitrión delante de la mirada extraña dirigida a su interior (Serfaty–Garzon,2003:154).
En la Red House, del arquitecto Philip Webb, el Hall se reduce y adopta la condición de espacio vestibular y distribuidor del cual nace la escalera hacia la planta superior. También en la Hill House, el Hall actúa como un segundo vestíbulo distribuidor, un ensanchamiento del primero al que se accede franqueando cinco escalones. Desde él parte la escalera que conduce a los dormitorios en la planta alta. Este nacimiento está trabajado como un volumen prismático engarzado al Hall, cuidadosamente envuelto por un screen de listones de madera oscura de indudable filiación oriental, común en las escaleras de las casas inglesas de esa época (The Orchard, del arquitecto Charles Voysey, en Shire Lane, es un ejemplo). Este volumen, que toma casi la mitad de la anchura del Hall, continúa la secuencia de los cinco escalones dispuestos entre el vestíbulo y aquel. El volumen genera la convexidad necesaria para provocar el giro e ingresar a la concavidad de la escalera que se despliega como una oquedad del Hall–Vestíbulo.
Desde el Hall, puede alcanzarse el salón (drawing room) con sus tres huecos profundos que adjetivan funciones específicas, habilitando actividades diferentes en el mismo espacio: la sala de música, el bay windows y el amplio hueco del salón con el lugar del fuego; los dos primeros claramente marcados por el descenso del cielorraso y la articulación perimetral del volumen, mientras que el último, resulta de un estrechamiento profundo del espacio. Visto de otro modo, podría suponerse que el espacio del salón presenta dos huecos profundos, el bay window y la salita de música equipada con un piano. En cierto sentido, podría verse el salón como una reminiscencia del antiguo Hall que vuelve a desdoblarse y a ahuecarse, en el que el fuego central se ha desplazado al perímetro, mientras que los otros ámbitos lo rodean como calificaciones del mismo espacio que adoptan la forma de un hueco (alcoves) (Figuras 5a y 5b).

El bay window, compuesto por una sucesión de estratos verticales, nos acerca al espacio exterior y nos distancia de este al mismo tiempo, como lo hace un balcón que, sin dejar de pertenecer al interior, nos transporta y nos deposita en el exterior. Su definición espacial se logra por un descenso de la altura del cielorraso, por la acumulación intensa de la luz del sur, reflejada en la superficie color marfil de su equipamiento y por la interrupción de la alfombra que cubre la totalidad del salón que deja al descubierto, en esa zona, el piso de tablas, provocando un eficiente cambio de colores del plano horizontal.
A medida que nos aproximamos a la ventana, se pueden distinguir en los planos laterales que conforman el espacio tres fajas dispuestas a modo de bambalinas, que retrasan y entretienen nuestro tránsito hacia el vano, y generan el bay window propiamente dicho. Un primer sector, definido por dos muros decorados con listones y motivos florares, enmarcado frontalmente por dos placas de madera, una segunda faja formada por vanos verticales que se despliegan de piso a techo y un tercer sector caracterizado por un sillón fijo, flanqueado por dos mesas que se extienden por una repisa anexa a la ventana, y que define, subiendo por detrás, el respaldo del sillón. Esta repisa constituye el último límite contra el muro y contribuye a engrosarlo junto con los demás recursos del sistema descrito. El sillón, dispuesto de ese modo, compone con el espacio interior y el exterior un juego de correspondencias entre ambos espacios. Las miradas de quien lo ocupe alternarán visiones de la sala del piano y de la sala del fuego con las del jardín exterior o con la de un libro que tenga entre sus manos y que dejará oculto en alguno de los huecos o estuches secretos de las mesas laterales (Figura 5c).

Tal como lo expresan varios filósofos de la vivienda, quien así se disponga podrá cumplir con el ritual del abandono y del retorno, ya que «es necesario abandonar la casa (nacimiento) para poder retornar; la polaridad éxodo–retorno es el marco que contiene toda la existencia humana.»[4] (Alessandria, S.; Vigna :153, traducción del autor)
El bay window puede verse, también, como un engrosamiento del límite de la propia casa que prolonga el espacio intersticial generado por la estructura del andamiaje, acrecentando las capas que la aproximan al jardín y a la campiña, espacio que podría verse como una prominencia del salón o como un engrosamiento de su muro perimetral, como ocurre en el castillo de Hedingham, un guiño que hace el interior al exterior y que redobla la idea de que la Hill House, a diferencia de la casa mediterránea, carece de espacios propiamente de transición entre el interior y el exterior. Cuando estos existen, como en el caso de la sucesión de espacios de acceso a la casa, son más bien espacios dinámicos, de recorrido y no de estadía, como podrían serlo una terraza techada o una veranda.
El bay window, como espacio del contorno, separa al interior del entorno externo, pero también lo conecta, imponiéndole distintos umbrales a la percepción (Figura 5d).

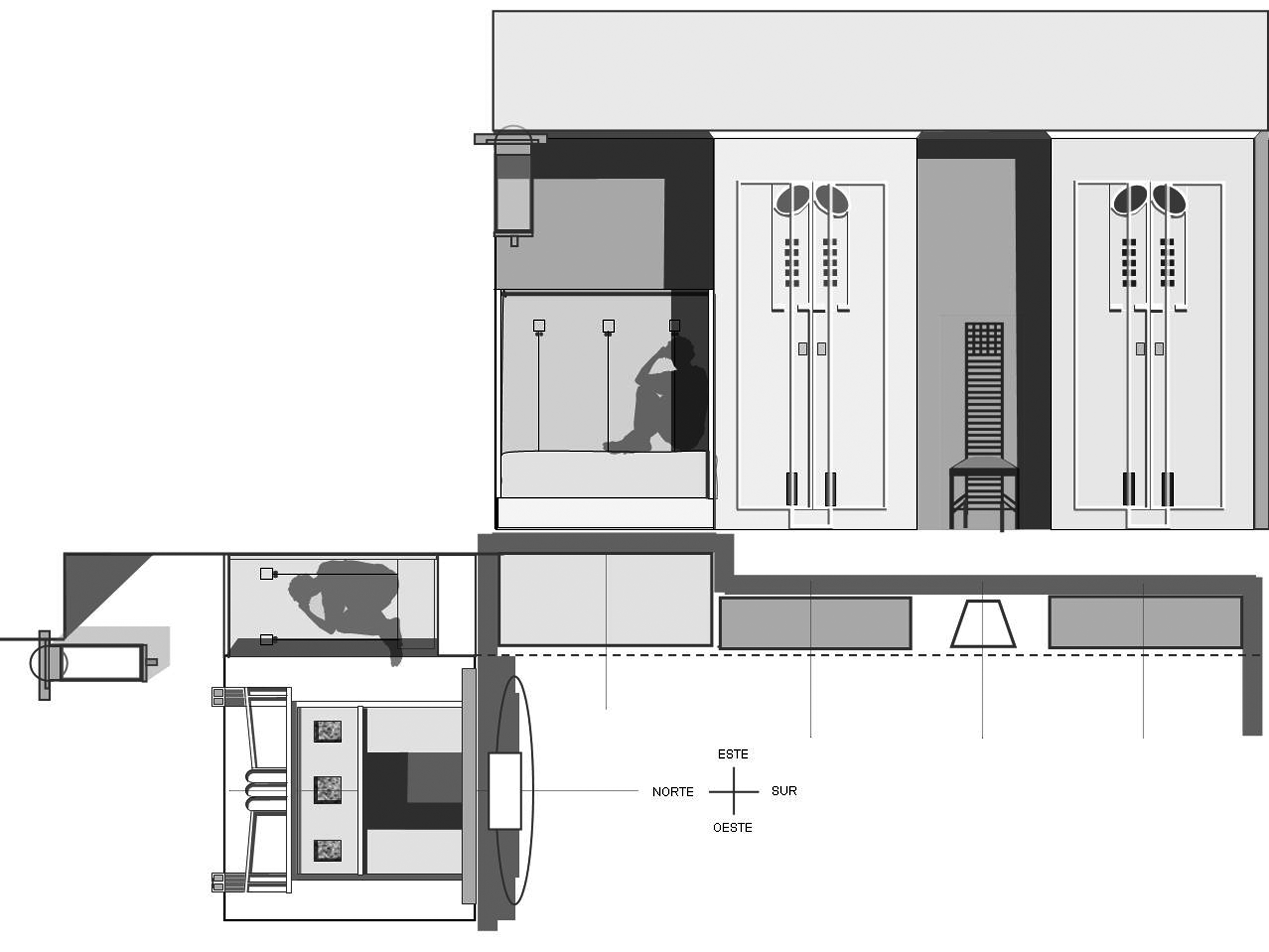
El dormitorio principal, aunque de dimensiones más pequeñas, es trabajado de forma similar. La cama matrimonial está engarzada en un hueco con cielorraso abovedado y más bajo que el resto de la habitación, como lo estaba el piano en la sala de música de la planta baja. Al equipamiento móvil también se le crea su hueco, o él fabrica su propio recinto acogedor y aclimatado, multiplicando los huecos dentro de la habitación. En el mismo ámbito del dormitorio se genera otro rincón con la presencia de un hogar y un sillón embutido entre la estufa y un armario, especialmente diseñado, que contiene al espacio y completa la definición del hueco. También en este sector el cielorraso desciende de modo tal que el conjunto espacial se asemeja al del bay window del salón de planta baja, pero sin la ventana. El espacio adquiere aquí la escala del susurro, de la intimidad más secreta, de la seguridad más concluyente (Figura 6a).

Los recursos de la silla engastada en el hueco y el sillón de respaldo y laterales altos se encuentran en otros sectores de la Hill House y de la propia Casa Mackintosh en Glasgow (Figuras 6b y 6c).


Estas situaciones muestran la evolución que sufre el espacio y especialmente el lugar del fuego que muda de una posición central en la antigua casa vikinga y anglosajona a una posición perimetral, pero no marginal, en las casas inglesas de los siglos XVIII, XIX y principios del XX.
Cambia también la concepción de centro en cuanto a que el único centro del origen, el hearth (hogar, fuego, corazón) se multiplica ahora en diferentes centros, ya que cada espacio y cada habitación poseen los suyos, sugiriendo la idea de varias casas dentro de una casa o dentro de una misma habitación.
En este sentido, Blackwell (1897) en Windermere, Cumbria, es un antecedente próximo a la Hill House en la que se registran claramente los diferentes centros que la casa aislada inglesa fue ganando con el transcurso del tiempo.
El hueco presenta una parte cóncava y otra convexa. Si el espacio cóncavo nos acoge, el convexo nos hace resbalar, girar, como si una fuerza nos moviese alrededor del hueco para depositarnos en otro hueco.
ElDen es la oquedad de una guarida, un espacio secreto, donde en secreto encaramos nuestros deseos más íntimos y planificamos nuestros movimientos antes de volver al mundo para llevar al mundo el mundo ideal de nuestros sueños. El Den (guarida, en su traducción literal) de la casa inglesa era un refugio al que, en general, se accedía por una escalera secundaria que rodeaba el rincón del fuego. En algunos casos, tenía ventanas hacia el Hall debido a la doble altura de este y a la simple altura del Den y del inglenook o fireplace, sobre el que frecuentemente se localizaba, como en Blackwell.
Para el Hall, el Den era una oquedad más, perforada en el muro ya perforado por el fireplace y la escalera. Desde ese espacio oculto, se podía observar, sin ser visto, la dinámica del Hall que, metafóricamente, se transformaba en una plaza urbana a la que se abrían las ventanas interiores de la casa (Figura 7).

Fuente: Dibujos del autor a partir de las fotos.
https://twitter.com/LadyTeapots/status/992412619222016000
Reconocidas por sus valores, algunas casas del Movimiento Moderno le deben su concepción espacial a la de la casa apartada inglesa.
La secuencia de acceso y calificación de los espacios que le asigna Adolf Loos a la Casa Müller (1928–1930) poseen semejanza con las de Blackwell. El gran living–salón, al que se llega por una sucesión de espacios similares a los de la casa apartada inglesa, podría asimilarse al Hall de doble altura de esta. Del mismo modo, el espacio reservado a la señora Müller, al cual se accede desde el Salón por una escalera especial que nace en uno de los huecos del muro de piedra que flanquea al Salón por el lado suroeste, es similar en su concepción y resolución al Den(guarida) de la Casa Blackwell, con su ventana abierta al Salón (Hall), enmarcada por una reja que protege y oculta.
Una visión parecida del confort es la que se refleja en la arquitectura doméstica de Adolf Loos y que define el término Raumplan —organización del espacio— una concatenación de estancias de diversa entidad, dispuestas en varios niveles, cada una con su propio techo, formando un pequeño rincón delante del fuego, un lugar para conversar, una hornacina para la cama o un boudoir anexo al dormitorio, resolviendo en el «espacio» lo que Baillie Scott resolvía en un único nivel (Fuertes Monteys, 2001:60).
También la investigadora Eva Branscome del Univesity College London reconoce que en la obra de Loos, y en particular en la Casa Khuner, existen precedentes formales de las casas apartadas inglesas de finales del siglo XIX y principios del siglo XX. Incluso afirma que al rastrear el linaje del concepto de Loos del interior Raumplan, «donde los principales espacios habitables fluyen como entrelazados entre sí, utilizando el espacio como algo tridimensional», Julius Posener se refiere al «Gran Salón» de la casa solariega rural inglesa, con su chimenea rinconera y vigas vistas (Branscome, 2020) (Figuras 8a y 8b).


Vincent Scully, refiriéndose a la fluidez con que se interconectan sus espacios diferenciados en la Watts Sherman House (1874) de Henry Hobson Richardson, corrobora la procedencia de este modo de tratar el espacio de las casas inglesas de finales del 1860 y 1870, especialmente aquellas como Leyswood (1868) y Hopedene (1873) de Richard Norman Shaw (Scully, 1969:112).
La Casa y Estudio (1889) de Frank Lloyd Wright en Oak Park, Illinois, como la gran mayoría de sus otros proyectos para espacios domésticos, presenta secuencias y tratamiento de los espacios propios de la casa apartada inglesa, especialmente en lo que refiere al espacio del fuego.
En la Blosson House (1882), Chicago, Illinois, el Hall se transforma en Living de donde parte la escalera hacia la planta superior, envuelta en una screen de varillas de madera. Al fondo del Living, el fireplace es resuelto como remate del sistema de acceso, mediante un sector claramente diferenciado.
Existen casas en las que el living adopta el nombre de Living–core (centro de vida o centro viviente), expresándose con ello la importancia de este espacio como centro de la vida de la casa.
Otras, como la Little House (1912–1914, Wayzata, Minnesota), o la Yamamura House (1918), adoptan la forma original del gran Hall de la casa vikinga, a modo de nave, y de las primitivas casas inglesas para conformar el drawing room o living.
La Susan Laurence Dana House (1903) que proyecta Wright en Springfields, Illinois, genera un living al que se accede por un complejo sistema de escaleras debido a su disposición en un nivel superior al del acceso. Al fondo de este recinto, que en los planos aparece con el nombre de Gallery, se organiza el espacio del hogar que se denomina alcove (hueco). La asociación con la imagen del gran Hall y el Dais de Penshurst Place surge de inmediato. Igualmente, la casa que la firma de arquitectos Maybeck & White proyecta y construye para Mrs. Phoebe A. Hearst en California se conforma según el gran Hall primitivo, con el hogar sobre uno de sus extremos (Figuras 8c y 8d).


Desde hace tiempo, la normativa urbanística francesa niega el derecho a la edificabilidad en las parcelas pequeñas. Superficie insuficiente, fachada estrecha o servidumbres obsoletas justifican esta normativa. No obstante, Christian Pottgiesser creó, en uno de estos intersticios parisinos, una vivienda muy particular.
La Maison Saint Louis (1998–2003) se inserta en un terreno de apenas 8,80 m de ancho por 4 de profundidad. Es un espacio habitable de 35 m2 con una inesperada arquitectura contemporánea. Debido a sus dimensiones, sus vistas limitadas y las hospitalarias expectativas de su propietario, esta «casa de muñecas», como se la reconoce habitualmente, se vio obligada a ignorar todas las convenciones de la vivienda individual tradicional (Blaise, 2004:106–111, traducción del autor).
La idea de Pottgiesser fue insertar un espacio habitable central, abierto lateralmente en la fachada hacia un patio interno, con una doble pared periférica de gran espesor en la que se alojan todos los servicios a modo de alcoves, organización que recuerda a la del castillo de Hedingham en Essex.
La partición mediante paneles de yeso que rodea el espacio central al que se accede yuxtapone huecos, paneles de vidrio y puertas. Estos huecos albergan una pequeña biblioteca, un área de comedor, cuyos asientos telescópicos se desplazan para acomodar a dos personas adicionales, una escalera en tresbolillo, muy vertical, que sirve para acceder a una cama complementaria ubicada en el ático.
El dormitorio, cuyo ancho es igual al de su cama doble, recibe luz natural a través de una ventana estrecha, mientras que un vano de vidrio que da al salón (Hall) captura la luz del techo que emana de la hendidura de la cubierta. El segundo hueco da acceso al baño, cuya zona del lavabo está iluminada por una aspillera. La tercera, que da a la cocina, está a su vez enmarcada por otras dos ranuras alargadas; la de arriba, esmerilada, ofrece una vista del Hall desde la habitación de invitados. Un niño o un joven adolescente pueden encontrar refugio para pasar la noche en la alcoba instalada encima del comedor, al que se puede acceder a través de una puerta trampa. Este diseño atípico de arquitectura doméstica satisface todas las necesidades de una casa urbana, pero, además, crea un entorno de vida real, de gran calidez a través de su notable tratamiento cromático que resalta la volumetría de las diferentes partes y canaliza la luz natural, promoviendo una profunda interacción social de sus habitantes.
Sorprende, de alguna manera, al comparar esta organización espacial con la de la casa aislada inglesa, las similitudes en cuanto a la disposición de los espacios específicos, tratados como alcobas (alcoves), huecos, en torno a un espacio central (hall) de dimensiones reducidas (Figuras 9a y 9b).


La identidad o pertenencia, necesaria para el ser humano, consiste en la conversión del espacio genérico (la vastedad indefinida y anónima) en espacio con connotación de lugar que da sentido a la existencia. El ser humano debe crear un orden arquitectónico para establecerse y entender el mundo, para poder orientarse e identificarse. Para él, el lugar es el espacio habitado, es el escenario que resume tiempo y espacio, y se construye con la existencia de un sujeto y su historia. De ahí que la topogénesis sea el estudio de la construcción de lugares para vivir, convirtiendo al arquitecto en un generador de lugares. El lugar permite al sujeto navegar por la historia y permite a la historia situar al sujeto. Con la identificación del lugar, el hombre construye mapas de comprensión espacial, se entiende a sí mismo y se entiende en el mundo (Solano Meneses, 2015:2). La arquitectura como hito le sitúa y le da sentido, identificándolo. Una casa, sus espacios, sus lugares, están gobernados por las actividades y acontecimientos que allí suceden pues «el carácter de un lugar le es dado por los episodios que allí ocurren» (Alexander, 1981:64).
Los huecos que albergan esos episodios, y los huecos de esos huecos que cobijan mundos con otros episodios, son la respuesta y las huellas de esa necesaria identificación y pertenencia.
El espacio del hogar adquiere diferentes rostros para conseguir un objetivo común: la preservación de la intimidad del ser humano y el mayor confort posible, también el dominio de un territorio que significa, de algún modo, dominio de sí.
El yo contiene espacios, se despliega en los múltiples espacios que lo constituyen en los diversos tiempos, espacio–tiempos complicados en un espacio múltiple de un instante, concentrado de tiempos, en este preciso lugar geográfico en que se encuentra en este instante.
Así el lugar es inevitablemente un laberinto de espacios y tiempos en múltiples sentidos virtuales, que lo sustraen a la concreción material cerrada y lo devuelven a tramas imaginario–reales, auténtica, plena «realidad» (Lapoujade, 2006:145).
La casa deviene espacios imaginarios construidos dentro de espacios reales aludidos o plasmados por los rincones de ese laberinto que se despliega a nuestro paso.
La casa aislada inglesa muestra esa progresiva generación de huecos que se segregan de un único y primitivo gran hueco central, corazón del hogar en las casas nórdicas, disponiéndose como oquedades diferenciadas y específicas que alojan diversas actividades en zonas periféricas, generando, a su vez, otros centros y otros huecos que vuelven a situarse en el perímetro del espacio como si horadaran sus muros y multiplicaran sus límites, difuminándolos a la vez. Estos huecos se internan en las profundidades del volumen, perforando la piedra que los construye para acoger el fuego de la vida del hogar, el corazón de lo doméstico, o la luz del sol, generando un diálogo apacible con los paisajes circundantes, en un juego de intercambios silenciosos que bascula entre interiores y exteriores.
La conformación espacial de la Hill House, como la de la mayoría de las casas apartadas inglesas, expresa el paulatino expandirse del dominio de quien la habita, la progresiva apropiación del espacio a través de otros múltiples espacios que se desprenden de un centro, el Hall y el Hearth, origen unitario del proceso. El perímetro cerrado, preciso y concluyente de la casa vikinga se fue ablandando, creando bucles cada vez más complejos y haciéndose más indefinido, mientras alternaba introspección con miradas al exterior circundante, fundando un conjunto espacial con atributos de laberinto.
La noción de control por parte del habitante se ubica en el centro de lo privado, a través de él toma su propio lugar en el mundo y se identifica.
El «lugar de la vivienda», la «casa» en griego se dice oikos. Pero oikos no era la casa considerada como construcción (en ese sentido se decía domos . doma). Para el hombre griego oikos (…) significaba el nacimiento, la infancia, la pertenencia a una familia, la totalidad de los bienes poseídos, su administración, la concepción de los descendientes, y el escenario de su nacimiento (Liiceanu, 1983:106)
Al finalizar la visita, cuando bajaba por el camino recto que conduce a la estación de Helensbourgh, desandando el trayecto que me había llevado hasta la Hill House, una última mirada a la casa, prisionera dentro de su otra casa metálica, me permitió comprender que sus espacios habían sido resignificados.
El espacio encerrado por la jaula metálica, otrora espacio abierto, se había transformado ahora en un espacio interior y ambiguo. Las visiones nítidas que los habitantes de la Hill House habrían tenido del fiordo de Clyde y de las suaves colinas que lo enmarcan, ahora estaban enturbiadas por un velo usurpador, y sus vidas parecían prisioneras en la casa, sin poder cumplir plenamente con el rito de la evasión y el retorno que aseguran una vida saludable.
Vi a través de la jaula, cómo los muros de la Hill House se proyectan como fachadas interiores y se alzan pequeños frente a los gigantes de la gran jaula metálica, sin tocarse, en una sutil estrategia plástica, tan leve como ingeniosa, deliberada expresión de una inserción de otro mundo que no puede adaptarse ni modelarse totalmente según un pasado concluido. Otro mundo que debe modificar su escala y su finalidad, aceptando lo antiguo como inevitable, como un mundo que sobrevive en un mundo de fragmentos y del cual el presente aún se nutre (Figuras 10a y 10b).


Hall–sala–salón–drawing room: el hall y el salón pueden aparecer diferenciados ya que el salón [sala, drawing room] deriva del hall (considérese el salón o la sala de la Casa Müller de Adolf Loos).
Alcove.bower.chamber: lugar anexo al hall utilizado alternativamente como dormitorio. La humilde casa inglesa del filme How green was my valley .Cuán verde era mi valle), de 1941, tiene, anexo a la sala, una alcove donde pasa el joven Huw su convalecencia. Este espacio podría considerarse también un bay window.
Bay window.alcove: ensanchamiento perimetral del espacio logrado por un meandro del muro donde se ubica un sillón o una cama, anexo a un vano. Inglenook–rincón, generalmente acondicionado con un hogar (estufa de leña) que adopta el nombre de fireplace.
Hearth: lugar del fuego en el centro del hall.
Den–lugar (secreto) a modo de escritorio o estudio ubicado sobre el fireplace y al cual se accede por una escalerilla especial desde el hall o desde el descanso de la escalera principal. Eventualmente se abría al hall.






















