Resumen: El barrio Sierra Morena se ubica en el borde urbano suroriental de la ciudad de Bogotá, y contiene huellas de un pasado y un presente marcados en recorridos veredales que transforman un entorno natural, a causa de asentamientos de comunidades que encontraron en él, cualidades estratégicas para subsistir. El presente proyecto ofrece una nueva perspectiva respecto al papel de la arquitectura en función del espacio colectivo, como respuesta proyectual frente a situaciones de calidad de vida en los recorridos de sectores desestructurados, a partir de la aplicación de un marco investigativo desde la teoría del nuevo urbanismo, donde se valida, en términos cualitativos de diseño, la caminabilidad como estrategia que impacta en la construcción social del borde urbano. Se diseña un proyecto urbano integral para la resignificación del tejido urbano existente, que articula los distintos sistemas funcionales y que aúna las prácticas urbanas rurales.
Palabras clave: Espacio urbanoEspacio urbano,desarrollo participativodesarrollo participativo,identidad culturalidentidad cultural,calidad de vida urbanacalidad de vida urbana,urbanismo socialurbanismo social.
Abstract: The Sierra Morena neighborhood will be located on the south-eastern urban edge of the city of Bogotá and contains traces of a past and present marked on sidewalk recordings that transform a natural environment, a cause of settlements of communities that found in it, strategic characteristics to survive. This project offers a new perspective regarding the role of architecture in terms of collective space, as a project response to situations of quality of life in the engravers of unstructured sectors, from the application of the research framework from the theory of New Urbanism, where walkability is validated in qualitative design terms as a strategy that impacts the social construction of the urban edge. A comprehensive urban project is designed for the resignification of the existing urban fabric that articulates the different functional systems and that combines rural urban practices.
Keywords: Urban space, participatory development, cultural identity, quality of urban life, social urbanism.
Proyecto arquitectónico y urbano
La caminabilidad como estrategia proyectual para las redes peatonales del borde urbano. Barrio Sierra Morena, Usme
Walkability as a design strategy for pedestrian networks on the urban edge. Sierra Morena, Usme Neightborghood
Recepción: 05 Octubre 2019
Recibido del documento revisado: 26 Marzo 2020
Aprobación: 29 Mayo 2020
Este artículo se presenta como resultado del proyecto de grado para optar por el título de arquitecta en la Facultad de Diseño de la Universidad Católica de Colombia, a partir del aprendizaje concurrente, basado en situaciones problema con usuarios, contextos y problemas reales. Dicho proyecto, además, tiene un énfasis exploratorio en términos de investigación-creación, entendida como la indagación que busca responder a una pregunta o un problema de investigación a través de una experiencia creativa que da lugar a obras, objetos o productos con valor estético, y cuya naturaleza temporal puede ser efímera, procesual o permanente (Colciencias, 2017, p. 167), lo que permite solucionar proyectos de arquitectura bajo una investigación de diseño basado en evidencia con el 20% cuantitativo y el 80 % de valoración cualitativa, y dirigido, apoyado y soportado desde la participación en el Semillero de investigación Espacio Público y Movilidad Urbana (2017-2019) y como auxiliar de investigación en el proyecto (2018-3) Estudio comparativo de instrumentos de gestión para el desarrollo del borde urbano1, cuya solución se halla sujeta a los intereses de la Facultad de Diseño en los aspectos social, ambiental y tecnológico, como un compromiso profesional respecto al cual el estudiante tenga la capacidad para transformar un determinado entorno a partir de la interpretación de su hábitat.
A lo largo del tiempo, el acto humano de caminar ha permitido descubrir, experimentar y transformar realidades de distintos paisajes que derivan en la conformación de senderos, a través de los cuales es posible vivir y pensar el espacio, en términos del cuerpo y sus formas de desplazamiento en distintos ámbitos y escalas, con ritmos, afinidades y velocidades particulares, lo que determina espacios de uso y práctica colectiva.
El presente proyecto surge desde la investigación y la experiencia en el territorio del borde urbano suroriental de la ciudad de Bogotá, D. C., ubicado en la localidad de Usme UPZ2 57 Gran Yomasa, en el barrio Sierra Morena, como se observa en la figura 1, y que contiene
Zonas de permanente transición y cambio en las que se presentan fenómenos como la ruralización de la ciudad y la urbanización del campo [...]. La presencia de áreas con gran valor ecológico que resultan estratégicas por la provisión de bienes y servicios ambientales que soportan la ciudad. (Alcaldía Mayor de Bogotá, 2015a, p. 16).

Así mismo, la condición de borde contiene importantes características en términos de la experiencia humana, al ser una franja de transición entre el campo y la ciudad, que cobija a los más desfavorecidos, y en cuanto al suelo, para aquellos que pueden encontrar una revivificación colectiva y familiar al transformarlo en su hábitat popular (Aguilera y Sarmiento, 2019, p. 35). La situación anterior hace del borde un territorio de oportunidades para el diseño proyectual y experimental en términos conceptuales y académicos.
Como antecedente del contexto descrito, los procesos expansivos de Bogotá en la segunda mitad del siglo XX se dieron, en gran medida, por la migración del campo a la ciudad, como consecuencia del desplazamiento forzado a causa del conflicto armado, situación que, según el documento del Consejo Nacional de Política Económica y Social de la República de Colombia (CONPES) 3850 de 2015, lleva a la degradación ambiental, a la pobreza rural y a brechas socioeconómicas y territoriales (Departamento Nacional de Planeación, 2015, p. 13) en los bordes urbanos, donde se crean nuevos tejidos sociales que se construyen como consecuencia del paso del caminante de manera fragmentada, con una naturaleza experimental y empírica. En estos nuevos tejidos sociales se sitúan, a partir de la autogestión de tierreros, quienes se apropian de los terrenos y los venden para la posterior construcción, a partir de las condiciones, los alcances y los conocimientos de cada familia y cubriendo las necesidades inmediatas, lo que deriva en sectores segregados y con difícil acceso a los servicios de la ciudad, tal como lo afirma Janoshcka (2002), debido a la carencia de procesos de organización y de planificación sobre los territorios y la escasez de planes para el desarrollo de infraestructura y servicios (p. 119), lo que afecta directamente la calidad de vida en los espacios urbanos habitados de manera colectiva.
No obstante lo anterior, este acto urbanizador define una red de caminos peatonales que se sitúan como espacios de uso y práctica cotidianos, y que, a pesar de ser generados por la comunidad y propiciar relaciones de vecindad, derivan en una situación problema de carencia urbana, pues desde el planeamiento urbano, dentro de un enfoque integral, se limita, según el Manual Pui-Dots (Alcaldía Mayor de Bogotá, 2015b, p. 24), la optimización de las condiciones ambientales, sociales y físicas de la ciudad, lo que compromete directamente para el barrio, así como la eficiencia de los espacios generados por la población en términos de accesibilidad, proximidad y habitabilidad, pues existe una desconexión física y perceptual entre el entorno natural que lo rodea y el espacio colectivo. Esto hace evidente la poca cobertura de necesidades y servicios, la percepción negativa del espacio habitable y la calidad de vida urbana. Este hecho lo refuerza el Informe de Calidad de Vida de Bogotá Cómo Vamos (2017), según el cual el espacio colectivo de borde "Presenta deficiencias de accesibilidad para las personas de menos recursos, (...) la falta de planeación en la ocupación indebida del espacio Público es un factor que reduce y limita la movilidad, la recreación, el ocio y la seguridad" (p. 264). Por ello, es indispensable profundizar en las condiciones que debe tener el espacio público para ser de calidad, pues en los territorios de borde, el espacio colectivo reúne procesos de convivencia social que no están comprendiendo elementos propicios para un correcto desarrollo, ni para la práctica ni la seguridad de la población que lo habita. Según la política distrital de espacio público en el documento diagnóstico este se debe reconocer como
[...] único sistema que interrelaciona, articula y conecta diferentes elementos (naturales y construidos) como partes de un todo. [...] Permite el uso y disfrute de los mismos, y, que debe ser concebido como el lugar de la vida ciudadana para el encuentro y la comunicación de todos los habitantes. (Alcaldía Mayor de Bogotá, 2019, p. 44).
Lo anterior, más aun, en los territorios de configuración informal, que definen unas condiciones particulares identificables; sin embargo, desde una mirada normativa para poder mejorar dichas condiciones, según la Alcaldía Mayor de Bogotá (23 de diciembre de 2004) en el Decreto 411 de 2004, por el cual se reglamenta la UPZ57, este sector se rige por el Tratamiento de Mejoramiento Integral de barrios3 y precisa una doble actuación: definir un conjunto de acciones para mejorar las condiciones del espacio público y privado (Ley 1424 de 1993, artículo 38).
Por lo anterior, el diseño para beneficiar al peatón cobra relevancia, pues debe basarse en la integralidad de prácticas sociales, en la apropiación cultural, en el paisaje natural para el desarrollo de todos estos involucrados y en la adecuación de una infraestructura vista desde lo caminable, ya que, por las condiciones geográficas, es el principal medio para movilizarse.
En este contexto, surge la pregunta principal de la investigación: ¿Cuál es la estrategia de diseño que permite integrar las prácticas urbanas y rurales en el borde urbano? Partiendo de ella, surgen, a su vez, dos preguntas que la secundan: ¿Cómo se puede retomar el significado de los caminos rurales en el territorio del borde urbano?, y: ¿se pueden articular los distintos sistemas funcionales de un territorio de borde en una escala más humana?
Como hipótesis de la pregunta principal se plantea que si se retoma el significado del camino rural, entonces se pueden vincular los sistemas funcionales del borde urbano. En efecto, como H0 se plantea que el significado del camino rural equivale a los sistemas funcionales del borde urbano (H0 = 0). Frente a las dos preguntas secundarias, la H1 plantea que el significado del camino rural aumenta la vinculación de los sistemas funcionales del borde urbano (H1 > 0). La H2 plantea que el significado del camino rural disminuye la vinculación de los sistemas funcionales del borde urbano (H1 < 0).
Para crear y recuperar un territorio de escala amable, la teoría del nuevo urbanismo4 promueve la creación de ciudades más humanas, más equilibradas y más sustentables, con un contexto apropiado para desarrollar arquitectura coherente con la organización de su territorio y fomentar comunidades enteramente estructuradas, como un proceso en el que la ciudad ya existente se puede mejorar a partir de hacerla más compacta. Para este proyecto se toman tres de los diez principios básicos que establece dicha teoría: 1) peatonalización de las ciudades (en cuanto a espacios urbanos que dan preferencia al peatón); 2) la diversidad del uso del suelo (para la reunión de actividades públicas mixtas), y 3) calidad en la arquitectura y en el diseño urbano (incluir belleza, confort, funcionalidad e identidad del lugar) (Duany et al., 2004), ya que pueden ser diseñadas dentro de la escala del caso de estudio seleccionado; mientras, los otros 7 principios tienen que ver con aspectos de gran desarrollo a escala regional y de ciudad.
Según Nenadich Correa (2013), citando la carta del nuevo urbanismo CNU5 (2000), se busca la reconfiguración de barrios periféricos de crecimiento descontrolado a comunidades de verdaderos vecindarios, comunidades diversas, y la preservación de los entornos naturales (p. 214); por tanto, la caminabilidad urbana se considera una estrategia que permite generar espacios de calidad.
El concepto de caminabilidad urbana tiene que ver con la gama de atributos de diseño que favorecen los traslados a pie brindando una accesibilidad al espacio urbano, con zonas de tránsito calmado, integración de calles completas y conectividad con usos mixtos del suelo. Según la teoría general de la caminabilidad urbana se explica, en su sentido más amplio, cómo el caminar debe satisfacer cuatro condiciones: 1) debe ser útil, 2) debe ser seguro, 3) debe ser cómodo y 4) debe ser interesante (Speck, 2013, p. 10). Además, se refiere al acto humano de caminar, lo que permite desplazarse de múltiples maneras, hacer pausas, detenerse, perderse y encontrarse con un sinfín de posibilidades y actividades que se pueden dar según las condiciones físicas y semióticas del territorio. Los lugares caminables y los espacios para el peatón van más allá del aspecto funcional, pues apremian por el desarrollo sustentable en términos de flujos de relaciones complementarios a los usos que demandan las dinámicas de ciudad, hecho que refuerza Gehl (2014) asegurando que el caminar es una forma de circular, pero es también el potencial punto de partida para otras actividades (p. 120); de ahí la importancia que tienen la vocación, la disposición y el uso de los elementos que componen un determinado espacio urbano, pues un diseño caminable de este va a permitir, en el caso de borde, generar lazos fuertes de vecindad y colectividad entre las comunidades y su hábitat.
En razón de lo anterior, para proyectar entornos caminables se deben evidenciar las condiciones que se detallarán a continuación.
Se la define como la condición que supera barreras físicas de los entornos y permite el derecho a disfrutar y practicar de manera equitativa los espacios y los servicios de los cuales se compone una ciudad; esto, a su vez, implica la creación de condiciones favorables en comodidad y seguridad para promover los desplazamientos a pie, para así garantizar la calidad de vida de los habitantes; por tanto, una accesibilidad favorable es aquella que pasa desapercibida a los usuarios, la que busca un diseño equivalente para todos, cómodo, estético y seguro (Boudeguer Simonetti et al., 2010, p. 10). Así pues, para que la accesibilidad sea universal debe, en principio, densificar en la creación de lugares activos y vibrantes, conectar al peatón y otros sistemas y articular las sucesiones de imágenes existentes y emergentes del paisaje, de manera que se pueda circular saludablemente respetando el entorno natural.
El Ministerio de Ambiente, Vivienda y Desarrollo Territorial (19 de mayo de 2005) en el Decreto 1538 de 2005 establece los parámetros que se deben tener en cuenta para garantizar la accesibilidad al espacio público: vías de circulación peatonal, mobiliario urbano, cruces a desnivel, puentes y túneles peatonales, parques, plazas y plazoletas (Ley 361 de 1997, artículo 7). Esto genera la posibilidad, la diversidad y la mixtura de actividades en la inserción de espacios colectivos incluyentes que cubren las necesidades de una población determinada. En los planos físico y espacial, el Instituto Colombiano de Normas Técnicas (23 de febrero de 2005) especifica en la NTC6 4144 las dimensiones mínimas que deben tener los pasillos y los corredores en los edificios y en los espacios urbanos y rurales (p. 2); así, por ejemplo, los pasillos y los corredores de uso público deberán contar con un ancho mínimo de 1,20-1,50 m y estar libres de barreras físicas.
Se refiere al encuentro de actividades propias para el desarrollo de las ciudades que se ubiquen en distancias caminables y de fácil acceso de manera peatonal. Salvador Rueda (2007) señala que en la proximidad se deben compactar dichas actividades a partir de la reunión en un espacio más o menos limitado de los usos y las funciones urbanas (p. 12). En efecto, hacerlo potencia el contacto, la comunicación y el intercambio de bienes y servicios, lo que resulta pertinente para la reconfiguración del borde.
En general, la habitabilidad se entiende como condición integradora del entorno construido y la mediación ambiental, social y económica que permite el desarrollo y el bienestar de comunidades humanas en sus aspectos físicos, mentales y sociales (Moreno, 2008). En este proyecto se abordan dos miradas: una es desde el aspecto urbano, que relaciona directamente las condiciones de la ciudad y los elementos del espacio urbano, los espacios de ocio y las condiciones sociales que se pueden dar; todo ello permite que se genere cohesión social, lo que, en principio, es el objetivo de habitar un espacio.
Por otro lado, el concepto también se relaciona, desde el habitar el objeto contenido, donde se define la habitabilidad,
[...] como la capacidad que tiene un edificio para asegurar condiciones mínimas de confort y salubridad a sus habitantes. En este orden de ideas, un mal diseño ocasiona que no se responda a las condiciones óptimas para que se mantenga la vida humana. (Cubillos González et al., 2014, p. 114).
Es importante considerar las condicionantes arquitectónicas y urbanas al momento de hacer una propuesta física, pues para que se dé el correcto desarrollo de dichas propuestas se necesita el aspecto tecnológico, como parte edificadora de ellas.
En la figura 2 se expone un cuadro de estructura mental, donde se relacionan, a manera de síntesis, las primeras conexiones físicas y teóricas para la solución fundamentada del proyecto.

Proponer una estrategia de diseño que permita integrar desde el barrio y la calle las prácticas urbanas y rurales en el borde urbano.
Identificar el significado del camino rural en el borde urbano, para vincularlo con los sistemas funcionales de la ciudad.
Integrar los distintos sistemas funcionales de un territorio de borde en una escala más humana.
La estrategia de investigación exploratoria se aborda desde el método de razonamiento deductivo directo, el cual busca determinar las características de una realidad particular que se estudia por derivación o resultado de los atributos o los enunciados contenidos en proposiciones o leyes científicas de carácter general formuladas con anterioridad (Abreu, 2014, p. 200). En ese sentido, debido a la relevancia interpretada en sus definiciones, se sintetizaron y se establecieron los criterios que permiten la caminabilidad: la accesibilidad, la proximidad y la habitabilidad son las condiciones con las que se puede valorar cualitativamente el barrio.
Para lograr lo planteado, se generó un instrumento exploratorio de valoración cualitativa, a partir de la selección de indicadores urbanos que en este proyecto no se medirán de manera cuantitativa, sino que se dejarán planteados para una segunda etapa de investigación, donde se validarán en términos científicos. Estos se tomaron de Cutiérrez-López et al. (2019, pp. 11-13), sintetizados así: 1) accesibilidad: infraestructura peatonal pendiente (10-5 m de ancho, atracto-res peatonales, integración de calles completas, eliminación de barreras físicas, así como brindar seguridad; 2) proximidad: distancia a equipamientos, 1 km-500 m, compactar usos, es decir reunir en un espacio funciones urbanas que impliquen un menor desplazamiento y ofrecer diversidad de actividades a nivel de espacios públicos; 3) habitabilidad: arbolado urbano, microlina, confort peatonal, disponibilidad de andenes, conectividad, calidad visual y tratamiento paisajístico. Todo ello, con el objeto de validarlos en esta primera etapa desde la arquitectura, lo que permitirá acercarse a la hipótesis. Estos aspectos de detallarán en la figura 3.

Por otra parte, para la validación se plantearon las etapas interpretadas del método que se explicarán seguidamente.
Para el proceso de recolección de información se recurrió a dos técnicas: 1) observación técnica etnográfica, donde se hizo el análisis por parte del investigador, a partir del instrumento de validación en visitas dirigidas; 2) desde entrevistas y charlas con la comunidad del barrio; para esto, se diseñó una cartografía social como herramienta que busca crear una conexión entre la comunidad y aquel profesional que debe intervenir su contexto (Aguilera-Martínez et al., 2017, p. 88). Así, en el barrio de estudio se identificaron las necesidades de la comunidad, que, a su vez, se involucró en cierto nivel del proyecto, en un punto intermedio de la escalera de participación frente a la toma de decisiones.
Construcción lógico-argumentativa de silogismos para entender el fenómeno observado; en este caso, la elaboración de la hipótesis nula y de dos hipótesis de investigación, con el fin de determinar cuál se acerca más a la verdad.
Revisión de literatura de análisis de los principios de la teoría del nuevo urbanismo, para verificar lo que se observó en la realidad. Además, se determinaron las causas del estado actual observado y confrontado, lo que deriva en la selección de puntos estratégicos para el diseño, así como en la localización de actividades colectivas sujetas a las necesidades de la comunidad. Por último, se formuló la estrategia de diseño, como posible respuesta a la pregunta principal.
Se validan los conceptos y los indicadores a partir de la representación arquitectónica, a raíz de lo cual se evidenció que la escala urbana interviene la calle del barrio, la escala arquitectónica como dualidad entre el campo-ciudad y la escala constructiva como mediadora de la habitabilidad de las dos escalas.
Así mismo, el proceso de investigación-creación se sintetizó como se muestra en la figura 4, donde se representó como columna vertebral el componente investigativo desde la teoría, en el cual se articulan los componentes conceptuales y procedimentales que permiten la formulación del proyecto.

Se evalúan los principios expuestos en la teoría del nuevo urbanismo, a través de las condiciones de caminabilidad: principio de peatonalización de las ciudades desde la accesibilidad, principio de diversidad de usos de suelo desde la proximidad, y principio de la calidad en la arquitectura y diseño urbano desde la habitabilidad. La valoración cualitativa se hace a partir de señalar la presencia o no de los indicadores en un rango de entre el 100 % como lo ideal, y el 0 %, como la ausencia de lo ideal, junto con lo encontrado y las observaciones del caso, como se muestra en la figura 5.

De lo anterior se deduce que el promedio de necesidades identificadas por el diseñador en términos de la accesibilidad equivale al 15 %, pues el barrio cuenta con una trama urbana fragmentada que dificulta el tránsito peatonal continuo y accesible para todos; además, sus calles son inseguras, por la invasión del espacio público y la ausencia de atractores peatonales. Frente a la proximidad, esta equivale al 16 %, ya que no se cuenta con equipamientos para el encuentro y el ocio: solo tiene un salón comunal, de insuficiente cobertura para el polígono del barrio, y no existe una compactación de usos que se refiere a "la construcción vertical del lugar, lo que genera integración entre las relaciones y funciones con límites precisos, que continúa con la configuración de centralidades urbanas" (Díaz-Osorio y Medina-Ruíz, 2019, p. 123); es decir, su densidad en términos dotacionales, no es diversa, precisa ni cercana a nivel del barrio. Finalmente, la habitabilidad equivale al 25 %, pues a pesar de ubicarse en un ambiente natural, el barrio presenta rupturas de relación entre el campo y la ciudad, debido a la calidad de la arquitectura popular que relaciona el peatón con su hábitat. Por ello, en síntesis, el promedio de caminabilidad es del 39 % y equivale a la sumatoria de estas 3 condiciones. Adicionalmente, se evalúan de nuevo los indicadores en una charla con la comunidad, donde la accesibilidad equivale al 12 %, pues argumentan dificultad para caminar en torno a sus viviendas y rumbo a sus sistemas de transporte. Mientras, la proximidad equivale al 6,6 %, ya que no tienen un espacio dentro de su barrio para desarrollar actividades de ocio y educación. La habitabilidad se sitúa en el 19 %, pues cuentan con un entorno natural, pero contaminado por diferentes elementos. Por todo lo anterior, el promedio de necesidades de caminabilidad encontradas por la comunidad equivale al 12,5 %, como se expone en la figura 6.

Por otra parte, dentro de la charla con la comunidad se trabajó, de manera trasversal, una cartografía social, donde primero se informó, por parte de la líder de Acción Comunal del barrio, al diseñador, el número de la población que en su momento habita el barrio, y el cual equivale a 500 personas, aproximadamente; de estas, un grupo de 10 personas identificaron y rastrearon problemáticas de dotaciones, representadas a través de dibujos, de actividades culturales (auditorio), productivas (cultivar flores y vegetales), educativas (cursos de costura, aulas) y recreativas (recuperar la quebrada, construcción de un parque al aire libre). Esto indica que el posible diseño puede ser una red peatonal, donde se vinculen y se evidencien dichas dotaciones, según se muestra en las figuras 7 y 8.


Se deducen, entonces, las necesidades parciales de la caminabilidad que presenta el barrio Sierra Morena, a partir de la sumatoria de los promedios obtenidos por las dos anteriores valoraciones:
% Observación diseñador + % Observación comunidad / 2 = % Necesidades parciales de caminabilidad: 18,2% + 12,5%/2 = 13,8%.
Esto significa que las necesidades parciales tienden a acercase a la segunda hipótesis de investigación, pues indican que las condiciones actuales del "significado del camino rural disminuyen la vinculación de los sistemas funcionales del borde urbano" (H2 < 0).
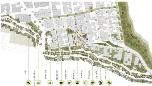
En razón del promedio parcial, se plantea la caminabilidad como estrategia proyectual de oportunidades peatonales que integran las prácticas urbano-rurales (culturales, productivas, educativas, y recreativas) identificadas por la comunidad, pues, según la Alcaldía Local de Usme (2017), este barrio es, estructuralmente hablando, excluido de los derechos culturales acordes con sus propias concepciones y sus procesos barriales, porque son el barrio y la vereda los ámbitos privilegiados de la construcción cultural (p. 9). Por lo anterior, se decide ubicar sobre el centro del barrio un sistema dotacional compacto que reúna lo identificado en las necesidades expuestas, como se verá en la figura 9.

Como validación primaria de la estrategia, desde la arquitectura se desarrollan los tres principios del nuevo urbanismo y los indicadores de caminabilidad, que, de nuevo, serán evaluados cualitativamente por el diseñador y darán cuenta del aporte y del impacto que podría tener el diseño vs. las necesidades carentes.
Respondiendo a la pregunta: ¿Cómo se puede retomar el significado de los caminos rurales en el territorio del borde urbano?, esto se logra a partir del diseño de una red de movilidad peatonal, con una distancia de 400 m lineales, que compacta dotaciones mixtas en términos de espacio público, por medio de secciones referidas a horizontes de experiencia, que resignifican las practicas identificadas por la población en la cartografía social: recreación, producción agrícola, educación y espacios culturales al aire libre. Dicha red inicia a partir de la activación de una quebrada (la quebrada El Muerto), que se ubica en el límite urbano y el rural del barrio, y la cual puede convertirse en un eje articulador de este con su entorno natural.
Los indicadores de caminabilidad se aplican en el 69 %, expresados de la siguiente manera: en la accesibilidad, el recorrido se diseña a partir de rampas con una pendiente máxima del 10 %, integración de calles completas e inserción de mobiliarios como atractores peatonales, como se plantea en la figura 10.

Desde la proximidad, en el 90 %, se diseñan actividades de recreación pasiva y activa con mixtura de zonas como: huertos, carriles para la movilidad alternativa, zonas de descanso y contemplación, muros educativos de manifestación cultural; según se ve en la figura 11.

Además del diseño de zonas de recreación por medio de módulos flexibles de mobiliario urbano que se pueden ensamblar y acomodar a las preferencias de la comunidad (sentarse, crear muros, cajas, y juegos) (figura 12).

Desde de la habilidad, en el 70 %, se refuerzan las condiciones ambientales con la presencia de arbolado para generar microclimas, así como sistemas naturales de absorción a partir de superficies permeables. Los senderos se conforman con tramos de revestimiento en madera del sistema WPC7 ecológica, con resistencia al alto tráfico. La calidad visual, el tratamiento paisajístico y el confort peatonal se diseñan en función de los códigos, los signos y los símbolos que provienen de la cultura de los habitantes del barrio, y que hacen de la red un lugar practicable que experimenta sensaciones en torno a la zona residencial circundante y el espacio público, como se muestra en la figura 13.

Responde a la pregunta: ¿Se pueden articular los distintos sistemas funcionales de un territorio de borde en una escala más humana? Se parte del diseño de un equipamiento, que surge como la pausa al recorrido de la quebrada, a partir de tres niveles de bandas caminables, adecuadas a las condiciones topográficas del lugar en el que se inserta. Así mismo, compacta mixtura de usos con actividades accesibles y próximas entre sí.
El primer nivel de banda se vincula directamente con la quebrada, y un acceso escalonado adyacente, a la vía de entrada principal al barrio. En esta, a su vez, se ubican aulas flexibles que se extienden hacia patios interiores y contienen la formación cultural (taller lúdico para la población infantil, taller de pintura y de cómputo para jóvenes). Además, contempla la reubicación del salón comunal del barrio con mayor capacidad en 100 m2. El segundo nivel de la banda ofrece dos actividades: la primera se paramenta a la vía de acceso al barrio y se convierte en una vía peatonal alterna, como extensión de la vía que emerge del andén. La segunda contiene actividades educativas (taller de costura, sala de profesores, administración, taller de cocina y una cafetería comunal) y un auditorio edificio. El tercer nivel de la banda inicia con rampas de pendiente máxima del 10%, y en un tramo descansan de manera lineal, con espacios para descanso y mobiliario, como se ve en las figuras 14 y 15.


Este principio se aplica a partir de la calidad, el confort y la funcionalidad del objeto arquitectónico y el diseño urbano propuesto. Se toma para el confort la paramentación a los empates, de acuerdo con aislamientos y cesiones, y aprovecha la topografía para recoger el agua de lluvia de las escorrentías, que sirven, a su vez, para el riego de las huertas ubicadas sobre las terrazas contenidas en el espacio público. Se implementan superficies permeables para reconducir el agua y evitar enlodamientos, como se muestra en la figura 16.

Desde el aspecto funcional, se propone un tanque de reserva y colección de aguas, como se observa en el anexo 1. La Resolución 549 de 2015 indica, en la guía de construcción soste-nible para el ahorro de agua y energía en edificaciones, que se deben tomar como base los datos de la precipitación anual del sector, lo cual deriva en la ubicación estratégica de 2 tanques por cada sección de edificio, con capacidad para 100 mi cada uno. En relación con el desarrollo técnico, se implementa el sistema estructural a porticado, con revestimientos en madera, teniendo en cuenta que las condiciones del lugar donde se inserta, el crecimiento poblacional y el cambio climático afectan la habitabilidad de las edificaciones. Por ello, estas enfrentan una alta demanda de recursos y energía que comprometen su sostenibilidad (Cubillos González et al., 2014, p. 114), razón por la cual el proyecto busca hacer de la edificación un espacio habitable que permita mitigar el problema en términos de confort humano. Detalles de dicho sistema se representan en la figura 17.

Así mismo, para el confort peatonal y la calidad en la arquitectura, la ventilación se representa desde el efecto chimenea, a partir de los aislamientos y los vacíos adyacentes al contexto del que se paramenta. Con esto, el aire ingresa y sale de manera fluida y ambienta el edificio. Adicional a ello, la iluminación se diseñó de manera natural, a fin de reducir el consumo de energía a partir del aprovechamiento máximo de la luz solar; esto último, desde los vacíos que generan iluminación cenital, así como a través de los elementos de fachada permeable, como se detalla en la figura 18.

Por último, la belleza y el paisaje se refuerzan a partir del diseño de fachada; este es un prototipo flexible que recubre un cerramiento interno con vidrio termoacústico, lo cual hace del interior un espacio cálido, pues reduce el enfriamiento que se pueda dar en el sector. En efecto, se lo adapta, según la inclinación, la pendiente y la forma, a la banda del edificio, como elemento replicable de madera en el panel CLT8. Así es observable en la figura 19.

Con el resultado de diseño, se evalúa nuevamente el proyecto, a partir de los indicadores valorados en la identificación de las necesidades, para así comparar el aporte en caminabilidad. Desde la condición de la accesibilidad se puede inferir que con dicho diseño aumentó el 69 %; en proximidad, en el 90 %, y en habitabilidad, en el 70,6 %. Por tanto, el promedio de caminabilidad diseñado equivale a: [69 % + 90 % + 70,6 / 3 = 76,5 %]. Estas cifras se expresan en la figura 20.

En tal sentido, la diferencia entre el proyecto (diseño) y el promedio parcial de necesidades equivale a: [76,5 % - 15,3 % = 61,2 %]. Se puede inferir entonces, en términos conceptuales y de producción arquitectónica, y a partir de esta valoración establecida a partir de los resultados, que el proyecto se acerca a la H1 de investigación, pues el significado diseñado del camino rural aumenta la vinculación de los sistemas funcionales del borde urbano (H1> 0).
El proyecto presenta una alternativa de movilidad peatonal para el barrio Sierra Morena con el 76,5% de promedio (buena), pues, en comparación con los datos parciales promediados cualitativamente en las necesidades (15,3%), se evidencia que tienden a aumentar las condiciones de la caminabilidad, en términos de accesibilidad (69%), proximidad (90%) y habitabilidad (70%). Esto, partiendo de relacionar, desde la arquitectura, conexiones específicas de una trama urbana informal de modo peatonal, al ser un componente primordial en el diseño de los espacios urbanos, pues la viabilidad de esta constituye una alternativa fundamental a los problemas de movilidad de las ciudades (Gutiérrez-López et al., 2019, p. 9). Además, se evidenció que los principios de dicha teoría pueden ser adaptables al barrio, desde el sentido mismo que implica este efecto caminable, ya olvidado, como parte fundamental de organización de un hábitat urbano rural, según lo plantea Careri:
[...] el hecho de andar se convirtió en una acción simbólica que permitió que el hombre habitara el mundo [...] Al modificar los significados del espacio atravesado, el recorrido se convirtió en la primera acción estética que penetró en los territorios del caos construyendo un nuevo orden. (2002, p. 16).
Es entonces cuando la noción de "nuevo orden", generado por los desplazamientos de aquellas personas que habitan el barrio, muestra la relación y la veracidad del significado entre una teoría y un concepto, y, en este caso, la caminabilidad se interpreta no solo como una variable urbana, sino como principio básico clave de un espacio urbano planificado, capaz de representar la arquitectura como puente o transición de diferentes realidades, para poder acceder a los diferentes bienes dotacionales que necesita un territorio popular.
Como parte clave de la investigación, se comprendió que la noción del espacio público del borde, interpretado como la calle, la vereda, el sendero, puede reinterpretarse a partir de un objeto arquitectónico que multiplica las opciones de accesibilidad, actividades próximas y habitabilidad de un espacio de calidad, que aúna la dicotomía campo-ciudad; por tanto, dicho concepto, ligado al principio de peatonalización de las ciudades, discute sobre el espacio colectivo, ya que
[...] deja de ser un instrumento de cohesión física de la ciudad, para convertirse en una estrategia activa y permanente de discusión en todas sus dimensiones, abriendo paso a un debate cultural sobre el espacio público y, en consecuencia, al derecho sobre este. (Arias-Romero et al., 2016, p. 13).
En efecto, el derecho al disfrute del espacio colectivo es una condición fundamental que deben tener los espacios urbanos del barrio Sierra Morena, debido a la variedad de población que se asienta de manera experimental y empírica en este evocando sus lugares de origen, y en tal sentido, para el barrio, todas las personas tienen derecho de asociación, de reunión y de manifestación. Las ciudades deben disponer y garantizar espacios públicos para tal efecto (Zetina, 2001, p. 7).
Por lo anterior, los resultados obtenidos se representan como un diseño basado en evidencia con tres etapas claramente expuestas: 1) la primera, pre= formulación teórica; 2) la segunda, el diseño = representación arquitectónica, y, por último, 3) la pos = validación del proyecto, a través de la ejecución física de este, que para el caso queda pendiente de una segunda etapa de la investigación, donde se validarán la eficiencia y el éxito del proyecto planteado, en términos estadísticos y científicos. Esto último, a su vez, a partir de los flujos de uso y de apropiación.
La presente investigación buscó, de manera exploratoria, representar en un proyecto de arquitectura aspectos teóricos y conceptuales que se han construido desde la participación en el semillero de investigación Espacio público y movilidad urbana y el proyecto de investigación Estudio comparativo de instrumentos de gestión para el desarrollo del borde urbano, donde se toman como base los problemas actuales de la movilidad peatonal que presentan las ciudades latinoamericanas a causa de los procesos expansivos, pues sus poblaciones se enfrentan a un territorio fragmentado, desigual, no inclusivo, que altera y fragmenta las condiciones espaciotemporales sobre las cuales se construye la espacialidad urbana de la vida cotidiana, y, por ende, afecta sus desplazamientos (Regalado-Regalado, 2019). En efecto, con esta participación se identifican y se interpretan relaciones existentes entre el espacio público y de movilidad alternativa en diferentes contextos de la ciudad contemporánea.
Para el presente proyecto se elige estratégicamente un barrio, por parte del proyecto de investigación, con el sustento de ser un sector afectado por la expansión de la ciudad que genera mayor demanda en infraestructura de servicios y dotaciones. También ha modificado el espacio público, y en tal sentido, se espera que se distribuya de manera equitativa en la ciudad garantizando una óptima cobertura (Gutiérrez-López, Quenguan-López y Betancourt-Carvajal, 2019), y, en ese escenario, solventar una solución desde una experiencia creativa.
Es así como, a partir de la arquitectura, se representa, de manera exploratoria, la caminabilidad como la estrategia proyectual mediadora de lo teórico y lo funcional, para las redes peatonales del borde urbano, como respuesta al objetivo principal de la investigación, ya que permite integrar las prácticas urbanas y rurales del barrio Sierra Morena; sin embargo, frente a los objetivos específicos 1 y 2, se infiere que, desde las condiciones de la estrategia caminable, es posible identificar el significado del camino rural en el borde urbano gracias a la participación de la comunidad, para vincularlo con los sistemas funcionales de la ciudad, así como integrarlos en una escala más humana con su territorio.
Normalmente, la toma de decisiones frente al desarrollo del espacio urbano de la ciudad y las mejoras en términos de infraestructura se disponen en detalle hacia el centro consolidado compactando usos y funciones, donde el principal foco es la cobertura; sin embargo, no sucede lo mismo para la periferia, pues, a causa de la experiencia en este proyecto, se observa que a menor escala también es necesario ampliar la cobertura, para que se pueda acceder a un servicio sin dificultad y con menor tiempo y a menos distancia. Por lo tanto, se puede inferir que la limita-ción en este proyecto, por un lado, tiene que ver con mantener la participación con la comunidad para presentar el resultado del diseño, así como su avance en términos de la construcción.
Pese a lo anterior, este resultado es generalizable en otras ciudades, pues se lo evidencia -tal vez no desde la teoría, pero sí desde la noción de ciudad caminable- en el caso del Proyecto Urbano Integral noroccidental, denominado jardín circunvalar de Medellín, pues surge la caminabilidad como estrategia para controlar la expansión a través de un diseño completamente peatonal, denominado "camino de la vida". Este tipo de acciones han funcionado como soluciones proyectuales, donde se entiende que lo peatonal hace parte de la topografía, y los buenos resultados han hecho que la comunidad se apropie de este tipo de intervenciones como construcción social de bordes de las periferias urbanas.
Finalmente, se toma este proyecto de grado como base con la que es posible formular un protocolo establecido, como propuesta de temas de estudios posteriores. Además, es un ejemplo de aporte que representan los procesos investigativos en la formación académica-profesional de un estudiante, pues se crean aspectos cognitivos relacionados con la capacidad para indagar, analizar, relacionar, cuestionar y proponer soportes teóricos y metodológicos que llevan a la argumentación reflexiva y crítica frente a la arquitectura. Sería importante, entonces, para la Facultad de Diseño, considerar la investigación como opción de trabajo de grado, lo que ampliaría la formación académica de un arquitecto católico, lo cual es relevante en su papel de ampliar las fronteras del conocimiento disciplinar, transdisciplinar y de responsabilidad con la sociedad.



















