Resumen: La incipiente construcción de la legitimidad de los barrios de vivienda pública de la segunda mitad del siglo xx como patrimonio ordinario de calidad requiere el desarrollo de medidas para su protección y rehabilitación. Estos barrios son innovadores arquitectónica y urbanísticamente, al tiempo que están sometidos a procesos de destrucción por la presión inmobiliaria ligada a su centralidad, y de degradación por las reformas individuales e incluso por políticas insuficientes o inadecuadas de rehabilitación estrictamente funcional. Se expone la evolución del concepto de “patrimonio ordinario” aplicado a los conjuntos de vivienda social, y cómo esta noción aparece recogida en las normativas y prácticas europeas y nacionales. El propósito es considerar la situación de los barrios de promoción oficial de Madrid como objeto patrimonializable a través del estudio de tres barrios representativos del Madrid de los años 1940, 1960 y 1980, del que se extraen conclusiones generalizables a otros barrios de promoción oficial.
Palabras clave:patrimoniopatrimonio,renovación urbanarenovación urbana,viviendavivienda.
Abstract: The construction of the legitimacy of social housing neighborhoods built in the second half of the 20th century as ordinary and qualitative heritage, calls for measures for their safeguard and renewal. These neighborhoods are innovative both from an architectural and an urban perspective; however, they are also submitted to real estate speculation processes due to their central location, to degradation processes derived from inhabitants’ interventions, or even insufficient or inadequate functional renewal. The evolution of the concept of heritage regarding social housing neighborhoods is explained, as well as its adjustment to national-level and European regulations and practices. Lastly, the situation of Madrid’s social housing neighborhoods as heritage is analyzed through the study of three case studies that are typical for the public housing built in the 1940’s, 1950’s and 1980’s, from which general conclusions regarding Madrid’s social housing neighborhoods can be extracted.
Keywords: housing.
Artículos
La arquitectura ordinaria del siglo XX como patrimonio cultural: tres barrios de promoción oficial de Madrid
Recepción: 29 Febrero 2016
Aprobación: 13 Julio 2016
Entendemos que patrimonio construido es todo aquello que, sin tener valores extraordinarios, alcanza un buen nivel de calidad en su composición, habitabilidad y estabilidad constructiva. Es el complemento imprescindible de los edificios relevantes y conforma los espacios abiertos que se guardan en la memoria colectiva. Dentro de este patrimonio ordinario merecen especial atención los conjuntos de vivienda social construidos por las Administraciones Públicas de los distintos países europeos en la segunda mitad del siglo xx. Con ellos se colonizaba las periferias, utilizando la fórmula de polígonos semiautónomos con equipamientos y usos complementarios, los mismos que sirven de pauta a la promoción privada. Estos conjuntos representan una política de vivienda consecuente con la formación del Estado de Bienestar, que reconoce el derecho de toda persona a un hogar digno, junto con la educación, la sanidad y las pensiones. Son, además, el resultado del trabajo comprometido de arquitectos destacados, que aportan racionalidad a la organización del espacio y a los sistemas constructivos, con el objetivo de servir a más población con menos coste (Moya, 2004).
El crecimiento de las ciudades envuelve hoy estos antiguos barrios de vivienda pública con todos sus servicios, y su relativa centralidad los hace atractivos a la promoción especulativa, solo interesada en recuperar las plusvalías del suelo. Por su parte, la Administración permite e incluso fomenta su destrucción o, con mayor frecuencia, su alteración por intervenciones totalmente ajenas a su calidad arquitectónica y urbana, reforzando mecanismos destructivos del patrimonio urbano que no son ya las guerras o las catástrofes naturales, sino la técnica utilizada incultamente y movida fundamentalmente por la especulación económica. Frente a su destrucción o su rehabilitación funcional indiscriminada, el estudio detallado de los conjuntos de vivienda social permite elaborar propuestas de rehabilitación que compatibilicen el aumento del confort de la vivienda y los espacios públicos, la protección de las características originales que fundamentan la calidad arquitectónica y urbana del conjunto, y el mantenimiento de la población frente a procesos de desalojo, degradación y abandono o gentrificación.
Esta consideración de los barrios de promoción oficial como patrimonio ordinario fuerza una ampliación conceptual y metodológica, si no normativa, del patrimonio, ampliación aún incipiente. Así, aunque se observa en las cartas internacionales una evolución hacia la inclusión dentro del patrimonio de arquitecturas cada vez más recientes, como la arquitectura moderna; de tipos menos representativos, como la arquitectura menor; y de espacios de mayor escala y complejidad, como ciudades, barrios y barriadas, los barrios de promoción oficial no están recogidos de forma explícita en ese universo. Ya en 1964, la Carta de Venecia extendía la noción de monumento histórico desde la creación arquitectónica aislada al conjunto urbano o rural, incluyendo no solo obras maestras, sino “obras modestas que han adquirido con el tiempo una significación cultural”. Por su parte, la Carta de Washington de 1987 concretaba por primera vez los elementos que determinan la imagen de una población o área urbana y que habrían de ser conservados: “La forma urbana definida por trama y el parcelario; la relación entre los diversos espacios urbanos, edificios, espacios verdes y libres; la forma y el aspecto de los edificios (interior y exterior), definidos a través de su estructura, volumen, estilo, escala, materiales, color y decoración; las relaciones entre población o área urbana y su entorno (...); las diversas funciones adquiridas...”. Igualmente, introducía la idea de la singularidad de cada intervención, “evitando todo dogmatismo y teniendo siempre en cuenta los problemas específicos de cada caso particular”, reconociendo así la imposibilidad de definir el patrimonio de forma unívoca y estable, como también lo haría la Carta de Cracovia en el año 2000, que supeditaba sus múltiples y cambiantes concepciones a la pluralidad social.
Pese a los avances normativos reseñados, la identificación y protección jurídica y urbanística de los conjuntos de vivienda social, en tanto que patrimonio ordinario del siglo xx, continúa evidenciando en los distintos países y regiones europeas unos criterios vacilantes e inadaptados, que dan lugar a una selección puntual e irregular centrada en gran medida en los conjuntos construidos antes de la Segunda Guerra Mundial, y carecen con frecuencia de herramientas efectivas para su salvaguarda. Así, el reconocimiento del valor patrimonial de las obras más representativas de la arquitectura de la primera mitad del siglo xx en países como Alemania se refleja en su presencia en las listas de elementos declarados de los distintos Estados federados, mientras que la protección de los conjuntos de vivienda de la segunda mitad del siglo xx, y especialmente de aquellos construidos a partir de 1960, sigue siendo en gran medida objeto de controversia (Escherich, 2005, p. 2).
Por su parte, la preferencia por la protección de lo antiguo, homogéneo, único, noble y extraordinario, frente a lo reciente, heterogéneo, múltiple, popular y ordinario, sigue dificultando la protección de los conjuntos de vivienda social en países como Francia. Aunque a partir de 1950 se ha producido una progresiva y aún limitada inclusión del patrimonio del siglo xx (Schmückle-Mollard, 1999, p. 1) en las listas de Monumentos Históricos e inventarios, en 2003 solo un 3% de los edificios protegidos como Monumentos Históricos databan del siglo xx, y únicamente un 0,3% eran posteriores a 1945 (Barré, 2009, p. 15). La inadecuación de esta protección clásica, a través de la inscripción o clasificación, a la arquitectura del siglo xx llevó a la creación en 1999 de la Etiqueta siglo xx, con el objetivo de sensibilizar de su interés sin recurrir a figuras con efectos jurídicos o económicos, más allá de la derogación de los trabajos de aislamiento térmico exterior (Gaudard, 2010, p. 6). De los 878 edificios identificados con la Etiqueta siglo xx, 28 son Grands Ensembles, conjuntos de vivienda social construidos entre los años 1950 y 1970.
En Italia existe una consideración importante desde un punto de vista cultural, pero sin apoyo jurídico suficiente. Mientras que los conjuntos de vivienda social anteriores a la Segunda Guerra Mundial son respetados en su integridad como patrimonio antiguo, los posteriores, construidos por ina-Casa y encargados a los mejores arquitectos del país, no están protegidos jurídicamente, aunque con frecuencia se incluyen en catálogos locales y son varios los estudios y proyectos que tratan del recupero del moderno, y que a veces se enmarcan en programas no siempre desarrollados.
A pesar de esta ampliación conceptual y normativa, los grandes conjuntos residenciales constituyen un campo aún no normalizado sistemáticamente, lo que permite una mayor flexibilidad e innovación en el debate en torno a la conservación, restauración y transformación, cuyos criterios han quedado fijados en otros ámbitos, como la ciudad histórica. En cierto sentido, su situación es semejante a la de los centros históricos en los años 1950, sometidos a destrucciones masivas por considerarse modelos inadecuados, con la consiguiente pérdida de valores físicos y culturales específicos que, en la última década, han comenzado a ser revindicados.
En un contexto de aceleración de la renovación y la remodelación urbana en las áreas centrales de la ciudad de Madrid y de efervescencia de los movimientos ciudadanos, que comenzaban a incluir entre sus reivindicaciones la protección del patrimonio, surgieron en la segunda mitad de los años 1970 distintas iniciativas para frenar las destrucciones de elementos y áreas urbanas. Tales propuestas abarcan desde el movimiento ciudadano en defensa de las Colonias de Hotelitos, al intento de salvaguarda del conjunto de la ciudad a través de un Plan Especial que no llegó a ser aprobado, pero cuyo espíritu se recuperaría en parte en el Plan General de 1985.
El intento de modificación de la Ordenanza Cuarta, que protegía indirectamente a las colonias construidas en los años 1920 y 1930 bajo las Leyes Salmón, de Casas Baratas y de Casas Económicas, y a algunas colonias posteriores de obreros y empleados, mediante el mantenimiento de la densidad y el tipo edificatorio en caso de sustitución, fue abortado gracias a la movilización ciudadana, que condujo a la redacción, a partir de la primera mitad de los años 1980, de Planes Especiales de Protección de las que pasarían a denominarse Colonias Históricas. Este movimiento, encabezado por la Coordinadora de Hotelitos, se basaba en la defensa del contenido social y de las formas de vida asociadas a determinadas áreas urbanas, así como de las configuraciones morfológicas y tipológicas que las posibilitaban: los conjuntos de vivienda unifamiliar. Así, bajo la defensa del patrimonio histórico, evidenciada en la adopción del nombre de Colonias Históricas para las popularmente conocidas como Colonias de Hotelitos, subyacía una lucha contra la especulación y la segregación socioespacial (Díez, 2015, p. 267).
En paralelo a esta lucha vecinal, y con el objetivo de detener la destrucción del patrimonio edificado del conjunto de la ciudad, los técnicos de la Zona Histórico-Artística elaboraron un documento cautelar y provisional que paralizaba las licencias de derribo de una serie de elementos de carácter singular y condicionaba su concesión para otros, de valor ambiental, hasta que se aprobase el Plan o Catálogo definitivo. El Catálogo de Edificios y Conjuntos de Madrid, Fase I, conocido como Precatálogo y aprobado en 1977, incluía ya varios barrios de promoción oficial como elementos de carácter singular, no solo Colonias de Hotelitos sino también Colonias Municipales de posguerra. Aunque reconocía los valores arquitectónico, histórico y cultural, introducía la posibilidad de fundamentar la protección en otros valores, incluyendo los relacionales o de conjunto, en tanto que elementos urbanos que constituyen la inevitable referencia formal y cultural que justifica y da su verdadero sentido a los edificios singulares.

El innovador Plan Especial de Protección del Conjunto Urbano de Madrid (pepcum), redactado en 1978 para sustituir al Precatálogo, buscaba la protección completa de la ciudad en su estructura física y social. Entre las áreas homogéneas exteriores que se protegerían incluía 88 conjuntos de vivienda unifamiliar, fundamentalmente Colonias de Hotelitos, pero también barrios de promoción oficial (figura 1). En estas áreas, seleccionadas por la calidad de su edificación y espacios públicos y por la existencia de un trazado urbanístico unitario, de edificios repetidos y de un mismo estamento social, se daba prioridad a lo existente, estableciendo la obligatoriedad de composiciones análogas a las características en cuanto a volúmenes, materiales, color y forma de cubierta. Por su parte, el aspecto más innovador del Plan –la protección básica destinada a la defensa del estatuto de lo urbano– suponía el derecho de los edificios existentes a no pasar a estar fuera de ordenación en relación con las determinaciones del planeamiento, y a no ser objeto de aumentos del aprovechamiento ni del desplazamiento involuntario de sus residentes. Para ello regulaba las condiciones de demolición de edificios, evitando que se destruyesen durante su vida útil, así como las de rehabilitación.
Pese su calidad y ambición, o precisamente por ellas, el pepcum no fue aprobado, siendo sustituido en 1980 por el Plan Villa de Madrid, que adoptaba la forma de un catálogo limitado a edificios del casco antiguo, el ensanche y los cascos de los pueblos anexionados a la capital, e implicaba el abandono del valor de lo existente como tal, volviendo a fundamentar la protección en el valor histórico-artístico. Sin embargo, la Corporación Municipal no tardaría en retomar el objetivo de defensa de la ciudad existente mediante la incidencia en los mecanismos detonantes de los procesos de destrucción, defensa que se confiaba ahora a la revisión del Plan General, iniciada en 1981. El objetivo primordial del Plan –la preservación y mejora de la ciudad heredada–, que buscaba completarla, adecuarla y dotarla de servicios, y en la que trataba de evitar e invertir la segregación socioespacial, no era aquí una parte menor del Plan, relegada a los ámbitos de conservación histórico-artística, sino la estrategia para la ciudad en su conjunto. Este objetivo general de protección de la ciudad se reflejaba en la Norma Zonal 3 de mantenimiento de la edificación, que incluía la mayoría de los barrios de promoción oficial existentes. En estas áreas no se buscaba el mantenimiento de la edificación existente por su valor patrimonial, sino exclusivamente económico, por lo que se permitían todas las obras menos la demolición de la edificación original, salvo ruina o fuera de ordenación, y los criterios de composición en obras de nueva edificación y en los edificios existentes eran libres.
El Plan General de 1997, que abandonó definitivamente el objetivo de la salvaguarda de la ciudad en su conjunto para limitar la protección a determinados elementos o áreas destacados, introdujo una nueva figura, la de los Conjuntos Homogéneos de Bloques en Altura, que comprendía algunos barrios de promoción oficial (figura 1) y suplía en parte la protección que sobre ellos ejercía la Norma Zonal de mantenimiento de la edificación del Plan de 1985. Sin embargo, el impacto de esta nueva figura ha sido reducido, por carecer de un adecuado desarrollo normativo y de una aplicación coherente y sistemática en su delimitación. Así, las únicas limitaciones a la intervención en estos conjuntos son el condicionamiento de la realización de obras exteriores y de modificación de envolventes a la aprobación de un proyecto común, así como la sustitución de edificios, que a su vez ha de mantener las constantes arquitectónicas que han motivado su protección. La utilización del Plan Especial como instrumento para regular la intervención tiene un carácter no vinculante.
Carentes de mecanismos de protección efectiva, más allá de las catalogaciones puntuales, irregulares y discrecionales recogidas en el planeamiento municipal, los barrios de promoción oficial se ven sometidos en España a riesgos de distinto tipo. El principal se deriva de su localización relativamente central. Estos barrios, que por economía y proximidad al foco del problema se ubicaron a continuación de la ciudad construida, sustituyendo a las infraviviendas edificadas al margen del planeamiento, son ahora lugares céntricos dotados de todas las infraestructuras y equipamientos. A la presión que el aumento del precio del suelo por su centralidad ejerce sobre la pervivencia de estos barrios frente a su eventual remodelación, se suma el hecho de que el sector de la construcción en España trabaja fundamentalmente en obra nueva y el sector inmobiliario en la venta, de forma que la rehabilitación y el alquiler quedan muy postergados con respecto a otros países europeos.
El segundo riesgo que justifica, con más ideología que teoría, la demolición de la edificación, es lo endeble de su construcción. Si bien es cierto que fueron construidos con sistemas y materiales económicos, que en parte no cumplen con la actual normativa, las nuevas técnicas permiten subsanar estas deficiencias con un coste económico y social menor que el derivado de la remodelación. Otra justificación para demoler las viviendas es su escasa superficie, que podría resolverse con ampliaciones de cada vivienda con estructuras supletorias, y paliarse en parte con una mayor movilidad de los hogares y completando la vivienda con espacios comunitarios, lo que produciría un ahorro imprescindible de energía y superficie.
En relación con este último riesgo habría un tercero, la rehabilitación indiscriminada mediante actuaciones individuales en cada vivienda o bloque, que desdibuja el proyecto original, produce un paisaje caótico, caro y de escasa calidad. Los Planes Especiales de actuación conjunta, que podrían paliar estas deficiencias, no siempre tienen en cuenta el proyecto original o se centran solo en la accesibilidad y el aislamiento térmico de los edificios, sin considerar otros muchos aspectos de edificios y espacios libres, quedando estos últimos con frecuencia fuera de las intervenciones financiadas por las Administraciones Públicas.
Un cuarto riesgo es el aumento de vulnerabilidad de su población por su progresivo envejecimiento, especialmente relevante en los barrios construidos durante el franquismo, entre 1939 y 1975, en los que la proporción de mayores de 65 y de 80 años ha aumentado de forma constante y regular desde 1977. Así, nos encontramos ante barrios con altas tasas de envejecimiento –los mayores de 85 años suponían el 10,8% de la población en 2014–, sectores sometidos en la actualidad a un incipiente proceso de rejuvenecimiento. La situación de vulnerabilidad de la población se ve igualmente agravada por la pérdida de identidad que conlleva la reducción de la movilización social y la intensa vida asociativa que caracterizó a muchos de estos barrios desde su construcción, vinculada tanto al envejecimiento como a la consecución de las reivindicaciones de mejora de las viviendas y los equipamientos que impulsaron la vida asociativa en los años 1970 y 1980 (Pérez & Sánchez, 2008).
En el caso de los barrios de vivienda social construidos en Madrid durante el franquismo, a estas dificultades para su reconocimiento como patrimonio se sumaría su eventual rechazo como parte del legado franquista, en el marco del debate sobre la memoria histórica de los regímenes totalitarios (Bodenschatz, Sassi & Welch, 2015).

A pesar de carecer de un nivel de protección patrimonial jurídica o urbanística comparable con otros tejidos urbanos, y de los riesgos a los que están sometidos, algunos barrios de promoción oficial españoles han sido objeto de patrimonialización, mediante su catalogación en los sucesivos Planes de Ordenación Urbana. Sin embargo, no se han llevado a cabo estudios sobre su patrimonialización, aunque son numerosos los que describen las condiciones legislativas, organizativas y urbanísticas que condicionaron la promoción de vivienda pública durante el franquismo y las características arquitectónicas y constructivas de los proyectos ejecutados (Moya, 1983; Pichel, 1978; Sambricio, 1977; Valenzuela, 1974). Gran parte de estos estudios abarca la historia de la construcción de vivienda social desde las primeras Leyes de Casas Baratas (López, 2002, 2003a; Sambricio, 2003, 2008, 2009), y la mayoría se ha centrado en los barrios de vivienda social de las décadas de 1940 (Capitel, 1977; López, 2003b; Sambricio, 1977) y de 1950 y 1960 (Fernández-Galiano, Fernández & Lopera, 1989; Sambricio, 1997, 1999), con un enfoque histórico o, alternativamente, de reivindicación de los modelos originales como vigentes. Apenas existen estudios que se interroguen sobre la asignación, gestión, evolución posterior y eventual protección patrimonial de los barrios de vivienda social, desde una perspectiva histórica, sociológica o urbanística (Gaviria, 1968; Moya, 1980).
Por su parte, los conjuntos de vivienda social europeos, que desde finales de los años 1970 se han sumado a los barrios populares de los centros históricos como objeto principal de las políticas de intervención pública en áreas urbanas, han sido recientemente objeto de diversos estudios. En ellos se analiza específicamente su incipiente proceso de patrimonialización, ya sea mediante el seguimiento de la evolución histórica de determinados conjuntos objeto de identificación o protección patrimonial (Kaddour, 2013; Veschambre, 2000, 2005 y 2008), o como aplicación de los modelos de patrimonialización de barrios históricos a los conjuntos de vivienda social (Amougou, 2006).
El análisis de tres barrios representativos de la producción de vivienda social madrileña de las décadas de 1940, 1960 y 1980 –la Colonia del Tercio y Terol, el Poblado Dirigido de Fuencarral y el Unidad 2 de Palomeras Sureste–, que cuentan con distintos niveles de protección, busca contribuir al desarrollo de los estudios sobre la patrimonialización de conjuntos de vivienda social en Europa; específicamente, en el contexto singular de la producción de vivienda en España durante el franquismo y la transición y de su posterior evolución y eventual patrimonialización.
La Colonia del Tercio y Terol es el único conjunto finalmente ejecutado de los planeados por la Dirección General de Regiones Devastadas (dgrd) en la ciudad de Madrid para la reconstrucción tras la Guerra Civil. Como tal, refleja el modelo de sociedad propuesto por el régimen franquista durante la autarquía y está catalogada en el Plan General de 1997 como Colonia Histórica, lo que supone el mantenimiento de su volumetría. Por su parte, tanto el Poblado Dirigido de Fuencarral como la Unidad 2 de Palomeras Sureste están catalogados como Conjuntos Homogéneos de Bloques en Altura, lo que implica únicamente su protección frente al derribo y sustitución.
El Poblado Dirigido de Fuencarral destaca, dentro de la producción residencial de la autarquía española de los años 1950, por su carácter innovador y por la armonía entre su morfología y tipología edificatorias en una composición muy depurada, que resolvía las dificultades planteadas por la movida topografía y la ubicación en un entorno desfavorable, rodeado de grandes infraestructuras de transporte, asentamientos chabolistas e instalaciones industriales. También es un caso singular de adaptación a un presupuesto muy escaso, traducido en pobres materiales y personal no cualificado para su construcción, que fue suplida por el amor al detalle y al trabajo artesanal de su autor, José Luis Romany, plasmados en el trabajo cotidiano desarrollado en la caseta de obra.
Por su parte, la Unidad 2 de Palomeras Sureste es un barrio que contribuye a la calidad del tejido residencial madrileño, y pone de manifiesto la relación entre el buen resultado urbanístico y el sistema de gestión directa de los usuarios en su construcción, utilizado en la Operación de Barrios en Remodelación. Cumple sus funciones, alberga una población cohesionada y tiene una arquitectura bien compuesta sin pretensiones espectaculares, obra de un arquitecto, Juan Montes, que –al igual que los de los otros barrios– pertenece a aquellos que no buscan notoriedad, pero tienen una trayectoria profesional plena de buenos ejemplos de arquitectura ordinaria.
La catalogación patrimonial de estos y otros barrios de vivienda social permite presumir la existencia de un cierto acuerdo social implícito sobre la validez de valores tanto históricos y artísticos como funcionales e identitarios, y sobre su asignación a estos conjuntos (Díez, 2015). Los valores artísticos e históricos, fuentes de autoridad consolidadas (Prats, 1997 [2009, p. 2]) en las que se ha fundamentado tradicionalmente la protección del patrimonio urbano (Bourdin, 1984, pp. 31-33), están también presentes en los procesos de patrimonialización de los barrios de promoción oficial, gracias a la ampliación cronológica y estilística (Choay, 1992; Leniaud, 2002) que permite la inclusión de obras del siglo xx y de la arquitectura moderna entre las épocas y los estilos susceptibles de protección. Su funcionamiento como fuentes de autoridad patrimonial no se ha visto alterado, y su reconocimiento se hace operativo con excesiva frecuencia a través de la distinción del autor, tendiendo a confundir, especialmente en la arquitectura del siglo xx, el reconocimiento de la calidad de las obras con el homenaje a los grandes arquitectos (Amougou, 2006, p. 28), y dejando en muchos casos fuera obras de gran calidad de autores menos consagrados o publicitados. Sin embargo, y más allá del reconocimiento del autor, el valor histórico puede fundamentar también la interpretación de estos barrios como testimonios de los asentamientos característicos del siglo xx, y como resultado de logros sociales y técnicos vinculados a la promoción pública de vivienda social.
Existen otros valores determinantes para la eventual protección de los barrios de promoción oficial. Entre ellos, los vinculados a la calidad y funcionalidad residencial y urbana de los tejidos existentes, que remiten al valor de uso enunciado por Riegl (1902, p. 72). También los que tienen relación con su carácter de soporte del tejido social. Fue en los años 1970 cuando se inició la reivindicación de estos espacios en la ciudad de Madrid, bajo la forma de críticas a la destrucción de la ciudad existente basadas en la defensa del estatuto de lo urbano y en la lucha contra la renovación-expulsión y la segregación socioespacial (Álvarez Mora, 1978).
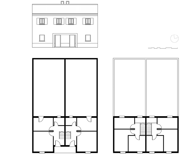
La construcción de la Colonia del Tercio y Terol corresponde a una primera etapa de promoción de vivienda pública en Madrid, inmediatamente posterior al final de la Guerra Civil, como parte de la labor de reconstrucción de la dgrd en los barrios adoptados al sur del Puente de Toledo (figura 2). En ellos se preveía la reconstrucción de las antiguas barriadas del Tercio, Terol, Las Pavas y Mataderos, y su unión mediante un nuevo núcleo residencial, cuyas viviendas fueron en gran medida concedidas a empleados de personas influyentes, habitualmente del servicio doméstico, así como a militares, guardias civiles y excombatientes del bando nacional. Se trataba con frecuencia de familias numerosas, o que acogían de forma temporal a parientes llegados a la capital, cuyo cabeza de familia era empleado asalariado o, en menor medida, obrero manual (Díez, 2015, pp. 193-198).

El proyecto, redactado por los arquitectos de la Dirección General de Arquitectura Luis Díaz-Guerra y Milla y Ramiro Avendaño Paisán, y atribuido con frecuencia al reconocido arquitecto Luis Moya Blanco, se aprobó en 1941 y fue modificado en 1944. Su trazado, con una calle de acceso que bordeaba el conjunto por el sur y calles perpendiculares y paralelas de acceso a las viviendas, estaba determinado por la continuidad con las barriadas del Tercio y Los Mataderos, y daba lugar a manzanas estrechas y alargadas que se disponían buscando la máxima adaptación al terreno para evitar los costosos gastos de movimiento de tierras (figura 3).
El conjunto contó finalmente con 682 viviendas de entre 54 y 66 m2 de superficie útil, en edificaciones alineadas al borde de manzana y dispuestas evitando los encuentros en esquina. La mayor densidad se concentraba en el borde sur, con bloques de tres alturas, y en el eje central, donde se ubicaban las doce viviendas para comerciantes de tres plantas con patio posterior. El resto de la Colonia consistía en viviendas unifamiliares de dos plantas en hilera con patio posterior o delantero, que permitía el cultivo de una huerta, prevista inicialmente como ayuda económica para la familia (figura 4). El resultado era un tejido de viviendas unifamiliares de alta densidad, 65 viv./ha, con un gran porcentaje de espacios libre privados, el 39%, y un muy reducido porcentaje de zonas libres públicas, apenas el 16% (Moya, 1983), que se reducían al viario y la plaza central.


No hay constancia de obras generales en la edificación anteriores a los años 1970, aunque sí se llevó a cabo la reparación de la urbanización por parte del Instituto Nacional de la Vivienda (inv), que adecuó los viales y servicios de la Colonia en 1969. Con posterioridad la Colonia sufrió dos intervenciones de gran escala, de forma que entre 1977 y 1979 se llevó a cabo su reparación general, que incluyó la de las cubiertas, la reconstrucción de las tapias desplomadas, el revoco de las fachadas exteriores, la construcción de arquetas a pie de bajante, y la sustitución de las soleras más afectadas. Con vistas a la próxima venta de las viviendas a sus ocupantes a principios de los años 1990, el Instituto de la Vivienda de la Comunidad de Madrid (ivima) reparó la edificación y la urbanización de la Colonia en seis fases sucesivas entre 1988 y 1998, proyectadas por Valentín y Víctor Berriochoa. En esta intervención se repuso el enfoscado de las fachadas, se sustituyeron las cubiertas de madera por cerchas metálicas con placas de fibrocemento con aislamiento térmico y tejas curvas y planas, se renovó la red de saneamiento y de suministro de agua, y se dotó de una pequeña bañera a las viviendas que aún no disponían de ella.
Por su parte, las modificaciones de las viviendas por sus habitantes se han limitado a la distribución interior y a las ampliaciones en el patio trasero, manteniéndose la configuración original de los huecos de fachada y un tratamiento unitario de su acabado y color (figura 5), aunque sin respetarse el color inicial ni recuperarse los colores proyectados, adaptados a la orientación.

La renovación de la población de la Colonia del Tercio y Terol fue muy reducida hasta 2005, momento en el que el envejecimiento extremo dio paso a la llegada de hogares unipersonales, fundamentalmente de mujeres menores de 65 años, y familias con hijos menores de 25 años, mayoritariamente españoles y que han adquirido la vivienda en propiedad. Estos nuevos residentes se caracterizan por contar con un nivel educativo y socioeconómico notablemente superior al de los habitantes originales y sus descendientes, y contrastan con su fuerte precarización (tabla 2).

El reconocimiento del valor patrimonial de la Colonia surgió de forma temprana, con su participación en las reivindicaciones de la Coordinadora de Hotelitos en los años 1970. Sin embargo, al no estar incluida entre las Colonias Históricas inicialmente delimitadas en la primera mitad de los años 1980, la Colonia no contaría con un Plan Especial de Protección sino hasta la aprobación del Área de Planeamiento Específico en 1995. Hasta ese momento estuvo regulada exclusivamente por la ordenanza de preservación de colonias del Plan General de 1985, que permitía obras de nueva planta por sustitución de edificios en ruina, y ampliación de los existentes, con una ocupación máxima del 75% de la parcela y un máximo de tres plantas. En el Plan General vigente, aprobado en 1997, la Colonia del Tercio y Terol está catalogada como Colonia Histórica y en ella se permite, junto con el uso de vivienda, la instalación de talleres domésticos o despachos profesionales vinculados a ella. También hay autorización para aumentar la superficie construida con sótanos o semisótanos o mediante la ocupación del patio en planta baja, debiendo mantenerse el resto de la volumetría.
Tras la reivindicación vecinal en los años 1970 para la conservación de la Colonia como patrimonio histórico a partir no tanto de un reconocimiento de su valor cultural, como de una estrategia de la población para asegurar su permanencia frente a la amenaza de remodelación, la llegada de nuevos vecinos de mayor nivel socioeconómico en los últimos quince años ha determinado el aumento de las exigencias en cuanto a las prestaciones de las viviendas. Las mejoras de las viviendas que desean acometer los nuevos vecinos suponen el aumento de su superficie y la variación de su volumetría, y requieren la flexibilización de los criterios de protección patrimonial, flexibilización que ha sido solicitada por gran parte de los vecinos a la corporación municipal con ocasión de la revisión del Plan General de Ordenación Urbana de Madrid, cuyo preavance se aprobó en 2012 (Díez, 2015, p. 297).
La posición de los residentes en la Colonia del Tercio y Terol ha evolucionado en relación con la protección patrimonial del conjunto, desde su reivindicación como forma de lucha contra la renovación-expulsión en los años 1970, a las demandas a favor de la flexibilización e incluso eliminación de los criterios de protección patrimonial impulsadas mayoritariamente de los nuevos vecinos gentrificadores desde los años 2000. Ello evidencia, por una parte, el papel pragmático que ha desempeñado la defensa del patrimonio en las luchas vecinales, pragmatismo utilizado con frecuencia como argumento transversal y con menor carga ideológica que los directamente referidos a la expulsión de la población desfavorecida de áreas centrales o a la segregación socioespacial. Por otra parte, da cuenta de las dificultades a las que se enfrenta la conservación cuando varían las exigencias habitacionales al producirse un aumento del nivel socioeconómico de los residentes.
El Poblado de Fuencarral forma parte de los seis Poblados Dirigidos de Renta Limitada encargados entre 1956 y 1959, que buscaban reorientar la capacidad constructora de los inmigrantes a la edificación de viviendas protegidas, para cuya ubicación la Comisaría de Urbanismo eligió reservas de suelo verde de coste muy bajo, por estar calificado como rústico o anillo verde del plan General de 1946 redactado por el arquitecto Pedro Bidagor. Esta ubicación, que permitía cumplir el objetivo oficial de realojar a los inmigrantes y erradicar el chabolismo asentado en los mismos terrenos u otros próximos, al mismo tiempo colonizaba el territorio, generando solares hasta la ciudad construida aprovechados posteriormente por la iniciativa privada.
El proyecto para la construcción de un Poblado Dirigido al suroeste del pueblo de Fuencarral fue encargado a José Luis Romany en 1956. Este había de situarse en un terreno con pendiente hacia el norte y vistas sobre el alfoz madrileño y las montañas de Guadarrama, limitado por la carretera de la Playa, el ferrocarril del Norte, el Poblado de Absorción A y los terrenos en que se construiría la Unidad Vecinal de Absorción (uva) de Fuencarral en 1963.

Los beneficiarios de las viviendas de los Poblados Dirigidos de Renta Limitada presentaban un perfil bastante homogéneo, siendo en su mayoría matrimonios de entre 30 y 39 años con hijos menores de 10 años a los que se sumaron, en menor medida, hijos nacidos tras su instalación, aunque por lo general la cantidad de familias numerosas radicadas en los Poblados era moderada. El nivel educativo era superior al de otros tipos de barrios de promoción oficial, y el porcentaje de obreros asalariados más reducido (Díez, 2015, pp. 190, 192). Por estar al norte de Madrid, en una zona de mayor nivel socioeconómico, el Poblado de Fuencarral se concibió para usuarios de nivel económico algo superior al de otros poblados, mediante una entrada que asumieron ellos mismos o sus organizaciones o montepíos, lo cual dio lugar a que fuera habitado por pequeños funcionarios del Régimen, especialmente Policía Armada.1
El Poblado, construido entre 1959 y 1960, presenta una estructura centrípeta, con los equipamientos en el interior, que adapta el modelo de la manzana Radburn a una trama ortogonal, más fácil de replantear y que únicamente ha de resolver los encuentros en diagonal con la vía de circunvalación (figura 7). Supone una evolución desde los modelos del urbanismo del Movimiento Moderno ortodoxo, en el que se daba prioridad a la orientación, la separación de funciones y la tipología en bloque abierto, y responde al interés de Romany y otros jóvenes arquitectos contemporáneos por las nuevas corrientes organicistas procedentes del mundo anglosajón y por la arquitectura escandinava. La ordenación del Poblado parte así de los esquemas de escalones vecinales, y se divide en conjuntos a los que se dota del equipamiento correspondiente según su tamaño. La movida topografía marcó la estructura y la morfología del barrio, de forma que las viviendas unifamiliares se situaron en las zonas de mayor pendiente, y la vaguada que recorre el conjunto permaneció como espacio libre. La débil cimentación de zapatas corridas aconsejó a Romany abancalar el terreno con muretes de piedra, que definen y embellecen los espacios libres.
El Poblado cuenta con un total de 1.839 viviendas, 395 unifamiliares con patio adosadas en hileras, con orientación mayoritariamente este-oeste, y 157 bloques de doble crujía de 4 y 5 plantas, con orientación norte-sur y este-oeste (figura 8). Al programa de vivienda se sumó un grupo escolar, una oficina de administración y tres mercados que albergaban 135 locales comerciales.

En 1964, el propio José Luis Romany corrigió alguno de los defectos detectados en la edificación, cerrando las escaleras con paños de ladrillo para aislar las viviendas del frío, transformando las cubiertas planas en inclinadas de poca pendiente, cubriendo la mitad superior de los testeros de los bloques con placas de fibrocemento que recogen el agua con un canalón, e incorporando un alero a la cubierta de las viviendas unifamiliares para evitar humedades.
En los últimos años, el Poblado Dirigido de Fuencarral ha experimentado un rejuvenecimiento por la extinción de los hogares originales, que ha conducido no a la adquisición de viviendas en propiedad por familias españolas de un mayor nivel socioeconómico, como ha ocurrido en la Colonia del Tercio y Terol, sino, fundamentalmente, a la llegada de población inmigrante en régimen de alquiler. En la actualidad presenta un nivel educativo y socioeconómico medio-bajo, con una reducida presencia de estudiantes y una importante precarización tanto dentro como fuera del trabajo (tabla 2). Esta vulnerabilidad de su población ha dificultado el desarrollo de las iniciativas para su rehabilitación integral y valorización social, que han partido de la Administración municipal o de profesionales ligados al barrio. Así, en 2006, el Poblado fue declarado Zona de Rehabilitación Integrada, lo que dio lugar al Plan Especial de Protección e Intervención en 2010, de Antonio Rosales y Juan Salcedo, que proponía la rehabilitación de los bloques mediante el aislamiento de las fachadas, y la mejora de la accesibilidad añadiendo ascensores y rampas. Como consecuencia de los revocos se establecieron diferentes tonalidades cromáticas para las fachadas, las que –desde nuestro punto de vista– desvirtúan la pureza racionalista del proyecto original. En el año 2011, el equipo formado por Alejandro Tamayo y Juan Manuel Medina elaboró el Plan Especial de Protección e Intervención de la Colonia de Viviendas Unifamiliares, en el que se buscaba aumentar la eficiencia energética de la que estas viviendas están tan necesitadas, y se fijaban sus posibles ampliaciones, sin perjudicar el conjunto ni las condiciones de soleamiento e intimidad de los edificios colindantes.
Las iniciativas públicas de rehabilitación no han logrado la adhesión suficiente por parte de los residentes y propietarios, que carecen de los recursos económicos necesarios para hacer frente a posibles intervenciones, o esperan un aumento en el valor de sus inmuebles para venderlos y abandonar definitivamente el barrio. En consecuencia, las transformaciones se han limitado a las llevadas a cabo por los propietarios de las viviendas de forma individual (figura 8), y los bellos espacios interbloques no han contado con intervenciones de mejora por parte de la Administración y han sido ocupados por el automóvil, convirtiéndose en vías de acceso lo que antes eran pacíficos senderos peatonales.
La reiterada promoción de planes para llevar a cabo una rehabilitación del Poblado Dirigido de Fuencarral respetuosa con sus valores patrimoniales por parte de las Administraciones Públicas y profesionales vinculados al barrio, refleja el reconocimiento con el que cuenta entre los expertos. Tal apreciación, basada tanto en la calidad urbanística del Poblado como en la relevancia de su autor, y la dificultad para implementar los planes de rehabilitación, evidencian la necesidad de una construcción de la legitimidad patrimonial desde la población, o al menos en diálogo con ella, y de su adaptación a sus condiciones socioeconómicas y demográficas.

El núcleo de Palomeras, que había comenzado a crecer desde el arroyo del Abroñigal hacia el este, a lo largo de la avenida de la Albufera en los años 1940, estaba habitado a finales de los años 1970 por unas 12.000 familias en condiciones precarias. Aprovechando este crecimiento de la ciudad, los propietarios del suelo plantearon el desarrollo de Planes Parciales de iniciativa privada, lo que hubiese implicado la expulsión de los residentes. La lucha vecinal determinó su inclusión en la Operación de Remodelación y Realojamiento de Barrios (orr), desarrollada fundamentalmente entre 1979 y 1986 y que supuso la remodelación de más de 38.500 viviendas en treinta barrios de la periferia próxima de Madrid. Estos vecindarios incluían núcleos de casa bajas y chabolas consolidados y de gran tamaño, y pequeños asentamientos chabolistas de minorías étnicas, así como barrios de promoción oficial de carácter temporal destinados a la absorción del chabolismo o de carácter permanente pero, en muchos de ellos, con importantes deficiencias constructivas o de habitabilidad (Leal, 1986; Vinuesa, Sánchez-Fayos & Oliete, 1986). En el núcleo de Palomeras se consiguió que los vecinos permaneciesen en el barrio en condiciones económicas accesibles gracias a la valoración de la infravivienda que aportaban, préstamos a largo plazo y bajo interés, así como ayudas a fondo perdido, y como novedad se reivindicó que se dotara el barrio de infraestructuras y equipamientos. Así, las viviendas se destinaron al realojo de las familias del núcleo chabolista de Palomeras, por lo que las características iniciales de su población reflejaban la composición propia de los asentamientos chabolistas existentes en Madrid en los años 1970; esto es, asentamientos que se habían desarrollado desde los años 1940 y contaban con variedad de edades y de estructuras de hogares, y nivel educativo y posición sociolaboral muy bajos (Rodríguez-Villasante et al., 1989).
Las primeras promociones de Palomeras Sureste, entre ellas la Unidad 2, se iniciaron en la zona este, siguiendo la estrategia general de ocupación inicial de los terrenos vacantes con muy elevada edificabilidad, para permitir el realojo de los ocupantes de las viviendas que se demolerían. La remodelación de Palomeras fue gestionada por una sociedad pública de derecho privado, que incluía a la Administración central y local y a los propios vecinos; fue promovida por la empresa pública Visomsa (Viviendas Sociales de Madrid, sa), y se encomendó la construcción a una cooperativa formada por los propios obreros de los barrios en remodelación, Copozo. De este conjunto de circunstancias, no repetidas en años sucesivos, en las que existe gran coherencia entre la construcción sin ánimo de lucro de un barrio y sus habitantes, podemos deducir un camino para obtener los resultados requeridos a cualquier actuación de vivienda social.
La ordenación del ámbito se recogía en un Estudio de Detalle redactado por Manuel Paredes, Mario Muelas y Alfredo Villanueva, miembros del equipo Estudio de Urbanismo y Arquitectura (euya). El borde sureste del conjunto quedaba limitado por el Parque Lineal Palomeras Sureste, proyectado en 1982 por euya y Leandro Silva, y ejecutado en 1988, aprovechando las tierras sobrantes de los desmontes para configurar colinas que daban variedad a la composición al tiempo que aislaban del ruido de las autopistas próximas.

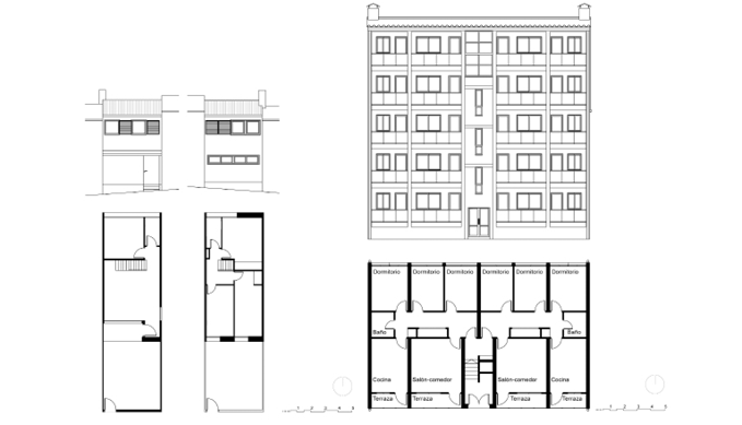
La Unidad 2, proyectada en 1979 por Juan Montes, de euya, y construida entre 1980 y 1982, constaba de 1.118 viviendas con una plaza de garaje por vivienda y locales en las planta baja. La alta edificabilidad derivada del proceso de remodelación, y la obligada edificación abierta marcada por el planeamiento aún vigente, condicionaron la elección de los tipos edificatorios, bloques lineales y torres. La ubicación en un solar curvo se resolvió mediante el trazado de un eje central al que se abren parejas de Unidades formadas por la combinación de bloques lineales curvos de doble crujía, entre 7 y 9 plantas, y torres cuadradas de entre 10 y 13 plantas en los extremos (figura 9). Cada Unidad define una plaza semipública desde la que se accede a los portales y locales en planta baja, plaza que a su vez se abre al eje central, cuya curvatura la convierte en un espacio dinámico con percepción cerrada que le da carácter. Debido a los fuertes desniveles, en algunos bloques quedan plantas por debajo de la de acceso en las fachadas sur, que se aprovechan como lugares de estancia cubiertos o locales de equipamiento o uso vecinal. Las torres extremas se conectan a través de los tendederos de la cocina con el bloque lineal, lo que en un terreno tan movido era posible gracias al proyecto conjunto de los edificios residenciales y el espacio público. La distribución de las plantas tipo de las torres y los bloques lineales consigue obtener viviendas de gran calidad y que la proporción entre superficie construida y útil sea mínima, contribuyendo a la economía del proyecto (figura 10).

El conjunto no ha sido objeto de intervenciones unitarias de gran escala desde su construcción, limitándose las obras generales en los edificios a la colocación de un zócalo de baldosas cerámicas y al cambio de las rejas de cerramientos exteriores y de las cancelas de entrada a los portales. En el espacio público destaca la desacertada sustitución del pavimento original de las zonas de juego por hormigón impreso y el cambio del mobiliario urbano original. Entre las modificaciones llevadas a cabo por los ocupantes es frecuente el cerramiento de las terrazas y tendederos interiores al plano de fachada con ventanas similares a las de los huecos originales, la mayoría con persiana enrollable, así como la incorporación de toldos de protección solar en las ventanas y terrazas con orientación sur u oeste (figura 11). Se han incorporado nuevas carpinterías de aluminio como doble ventana, especialmente en plantas superiores; se han cambiado las rejas originales de plantas bajas e incorporado rejas en otras plantas, y se han modificado las chimeneas de ventilación de las cocinas. Como suele ocurrir, el barrio no ha tenido el mantenimiento necesario, a pesar de que los acabados en ladrillo y otros materiales de calidad superior a etapas anteriores de vivienda social han resistido bien el paso del tiempo.

En los treinta años trascurridos se han producido muy pocos cambios en su continente y los habitantes son mayoritariamente los originales, constituyendo en la actualidad un ámbito socioeconómicamente precarizado, con un nivel educativo bajo y gran presencia de ocupaciones ligadas a la clase trabajadora tradicional. Su situación de empobrecimiento se evidencia en la convivencia de varias generaciones en el hogar (tabla 2), lo que responde en mayor medida a la interpretación de los barrios de vivienda social como áreas urbanas degradadas o vulnerables (Hernández Aja, 1997; Hernández, Matesanz & García, 2015), frente al carácter del Poblado Dirigido de Fuencarral de enclave estancado, y a la incipiente gentrificación de la Colonia del Tercio y Terol.
La calidad de la construcción original y el escaso tiempo transcurrido, así como la desactivación de las reivindicaciones vecinales originarias tras la obtención de la vivienda y la desaparición de los estrechos vínculos sociales que habían caracterizado los asentamientos chabolistas de origen (Rodríguez-Villasante et al., 1989), explican la falta de demandas relativas a una eventual rehabilitación física del barrio, así como el desconocimiento por parte de los habitantes de la protección patrimonial de la que es objeto.
Aunque cada vez se aparta más la política urbanística del urbanismo, cabe pensar que las contradicciones que puedan surgir en la economía global conduzcan a corregir la tendencia actual. Por el momento, el cambio climático es el principal argumento que pone de manifiesto esta contradicción. La teoría urbanística analiza y desmenuza las causas del cambio climático que las fuerzas económicas no consideran, pues frena su objetivo principal: el desarrollo continuo. La estrategia a largo plazo de unos pocos, esto es, la búsqueda de rentabilidad a corto plazo, es difícil de contrarrestar por una mayoría democrática que busca el bienestar del presente. Sin embargo, lo intentamos en nuestro campo con la esperanza del resquicio que abre la contradicción mencionada.
Es obvio que cualquier medida a escala de detalle como la que tratamos en este artículo está influida por la síntesis del panorama global expuesto en el párrafo anterior. La ciudad cotidiana se destruye paulatinamente en aras del negocio inmobiliario, a pesar de que la recuperación del patrimonio construido y, por tanto, su mantenimiento, es más eficiente en todos los campos, incluido el económico. Hemos visto que esta aseveración ha sido reconocida por varias Cartas internacionales que no solo reparan en el patrimonio extraordinario sino en el ordinario, y sobre todo consideran a la población que lo habita.
Entre otros patrimonios ordinarios de calidad, nosotros nos ocupamos de los barrios de vivienda social pública por las razones apuntadas: constituir una parte importante del conjunto construido y ser vanguardia con influencia notable en el resto. El hecho de haber sido proyectados por arquitectos destacados merecidamente, nos ayuda a la consideración social, pero no es suficiente. Por el contrario, la debilidad de su construcción, debido a la escasez de medios de la época, invita a su demolición en una visión interesada y poco conocedora de las posibilidades técnicas que hoy existen. La escasa estructura representativa que la política de la ciudad permite hace que no existan prácticamente organizaciones que defiendan el derecho a la ciudad, en el sentido establecido por Henri Lefebvre. En España todavía la situación es peor, si tenemos en cuenta que en un 98% la vivienda es privada, y sometida, por tanto, al mercado inmobiliario. Las ayudas de la Administración a los propietarios se orientan más a producir plusvalías que a satisfacer necesidades de uso imprescindibles, con lo cual no se consigue el mantenimiento de la población. Además, la distribución de las escasas ayudas no afina suficientemente a sus destinatarios. Por ello intentamos proponer un sistema de ayuda pública a asociaciones de propietarios que gestionen una distribución justa y complementaria de los recursos individuales. Sería una especie de cooperativa con la finalidad de mantener el barrio y no de construir viviendas, como es habitual en nuestro país.
Independientemente de las ayudas a la vivienda, los Ayuntamientos deben emprender planes de intervención en el espacio público con tres objetivos principales: resolver la accesibilidad de las personas y servicios de emergencia; adecuar el tratamiento de la pavimentación, mobiliario urbano y vegetación a la nueva situación previsible en la que se reduzcan los coches de barrios ahora céntricos con abundante transporte público; y recuperar la relativa autosuficiencia con la que fueron proyectados, fomentando equipamientos, locales, talleres y otros usos complementarios.
Con respecto a las reformas constructivas en las viviendas, se puede establecer un sistema de obras tipo, distribuciones y materiales, con listados de técnicos y mano de obra que hayan avalado su buen hacer, y presupuestos conocidos y ajustados. También una organización que facilite las gestiones con la Administración para garantizar la legalidad de las mismas en cuanto tanto a la normativa, como a los posibles beneficios fiscales que tengan por finalidad apoyar este tipo de obras. Cualquier forma de ayuda directa o fiscal debe exigir en contrapartida una serie de años sin que las viviendas de promoción oficial entren al mercado inmobiliario, al igual que ocurre con las de protección pública.
A partir de la evolución de los tres barrios elegidos en Madrid y de las experiencias en otros países europeos, podemos concluir que existen condiciones objetivas para salvaguardar los barrios sociales de vivienda pública. Más allá de los valores históricos, artísticos, instrumentales o identitarios que justifiquen las distintas formas de intervenir en los barrios de vivienda social, necesariamente individuales y resultado de sus características intrínsecas y de la construcción social de su legitimidad patrimonial (Ariño, 2012; Davallon, 2000; Lamy, 1996), la protección y rehabilitación de los conjuntos de vivienda social deberían ser lideradas por una Administración con voluntad política para desarrollar las medidas sociales y técnicas necesarias. Y ello no solo como una forma de conservar el pasado, sino de rescatar y realizar sus esperanzas frustradas (Ariño, 2002, p. 146), interviniendo en aquellos conjuntos que, como los aquí analizados, reúnen una doble condición: “Mejorar las condiciones de vida de las personas más frágiles en el tiempo presente, levantar su dignidad y reforzar su calidad de vida” y “mirar lo pasado sin cultivar la complacencia y la satisfacción, invitando al asombro, al sobrecogimiento, provocando inquietud y conmoción” (Ariño, 2012, p. 226).












