Artículos
Recepción: 18 Octubre 2021
Aprobación: 25 Abril 2022
Publicación: 30 Septiembre 2022
DOI: https://doi.org/10.11144/Javeriana.cvu15.rihu
Resumen: El uso intensivo del espacio interior habitacional en las ciudades del siglo XXI consolida un proceso de retiro a una esfera privada espacial no siempre satisfactoria para los usuarios. La necesidad de considerar elementos no únicamente en términos de satisfacción individual, sino también colectiva y ambiental, nos lleva a pensar en la integración de demandas de calidad de vida de los usuarios vinculadas a la conexión familiar en un microentorno saludable, por medio un modelo de habitabilidad tripartito, con tres dimensiones fundamentales: la psico-eficiencia, la socio-eficiencia y la ecoeficiencia. Partiendo del levantamiento planimétrico y fotográfico de un caso de estudio ubicado en la Ciudad de México, se procedió a un análisis basado en la tríada teórica previamente elaborada. El resultado del mismo señala que en la intersección de dichas dimensiones se ubican elementos controvertidos de la habitabilidad del entorno interior residencial (como una conexión urbana y familiar compatible con la privacidad y la salud en un ambiente lo más sustentable posible), objetivos que el proyectista tuvo que tratar de lograr negociando soluciones que se adaptaran a deseos no siempre coincidentes de los usuarios.
Palabras clave: Habitabilidad, casa urbana, arquitectura mexicana, identidad familiar.
Abstract: The intensive use of interior living space in the cities of the 21st century consolidates a process of retreat to a private spatial sphere that is not always satisfactory for the users. The need to consider elements not only in terms of individual satisfaction, but also in terms of collective and environmental satisfaction, leads us to think about the integration of quality of life demands of users linked to family connection in a healthy micro-environment, through a tripartite habitability model, with three fundamental dimensions: psycho-efficiency, socio-efficiency and eco-efficiency. Based on the planimetric and photographic survey of a case study located in Mexico City, we proceeded to an analysis based on the previously elaborated theoretical triad. The result shows that at the intersection of these dimensions are located controversial elements of the habitability of the residential interior environment (such as an urban and family connection compatible with privacy and health in an environment as sustainable as possible), objectives that the designer had to try to achieve by negotiating solutions that adapt to the not always coinciding desires of the users.
Keywords: Habitability, urban house, Mexican architecture, family identity.
Resumo: O uso intensivo do espaço interior habitacional nas cidades do século XXI consolida um processo de retração para uma esfera privada espacial nem sempre satisfatória para os utentes. A necessidade de considerar elementos não apenas em termos de satisfação individual, mas também coletiva e ambiental, leva-nos a pensar na integração das demandas de qualidade de vida dos usuários vinculadas à conexão familiar em um microambiente saudável, por meio de um modelo de habitabilidade tripartite, com três dimensões fundamentais: psicoeficiência, socioeficiência e ecoeficiência. Partindo do levantamento planimétrico e fotográfico de um caso de estudo locado em Cidade de México, procedeu-se a uma análise baseada na tríade teórica previamente elaborada. O resultado indica que na intersecção de tais dimensões acham-se elementos controversos da habitabilidade do ambiente interior residencial (como uma conexão urbana e familiar compatível com a privacidade e a saúde em um ambiente o mais sustentável possível), objetivos que o projetista tentou conseguir ao negociar soluções que se adaptassem a desejos nem sempre coincidentes dos utentes.
Palavras-chave: Habitabilidade, moradia urbana, arquitetura mexicana, identidade familiar.
Introducción
La definición de habitabilidad como espacio vivible no puede eludir la cuestión del contexto sociocultural e histórico, ya que cada época e incluso cada generación transforma el ideal de vida al que aspira e intenta hacerlo realidad en contextos económicos y urbanos distintos. Al revisar propuestas de diseño de los últimos años y literatura sobre habitabilidad (Casals y Arcas, 2010; Espinosa y Gómez, 2010; Kusumarini et al., 2011; Landázuri y Mercado, 2004; Mehabian y Russell, 1974), surge la hipótesis de que, en el contexto actual de demanda de calidad de vida y sustentabilidad, es necesaria una revisión de los tradicionales criterios funcionalistas de habitabilidad. Las crisis modernas en términos de sociabilidad y ecología estimulan el interés por tendencias transversales en la arquitectura residencial que se adaptan a los nuevos riesgos y carencias. Siguiendo esta línea de estudio, se ha tratado de proponer aquí un planteamiento arquitectónico que tenga en cuenta no solo variables de habitabilidad psicofísicas sino también de carácter social y ambiental, incorporadas en las últimas décadas en la producción de una teoría de la arquitectura que integra aportaciones de disciplinas como psicología, antropología, sociología urbana y estudios ambientales. El trabajo teórico de revisión nos permite pensar en un modelo de análisis de habitabilidad de tipo cualitativo, claro y operativo, pertinente a la hora de realizar evaluaciones que no pierdan de vista (a veces por exceso de aparato estadístico o uso de matrices complejas) los objetivos principales del espacio doméstico. Aplicamos el modelo a un caso de estudio en la Ciudad de México, una casa familiar reconvertida en tres departamentos conectados, que ilustra de manera pertinente algunas de las necesidades habitacionales actuales y que puede ser modelo para futuros proyectos.
Marco teórico
Uno de los aspectos que llama la atención al estudiar la habitabilidad es la falta de una tradición teórica consensuada a nivel global, ya que, en general, se detecta una gran dispersión en las propuestas. Ello es, en parte, debido a que la habitabilidad como conjunto de estándares mínimos de construcción (Arcas et al., 2010, la critican por no incluir aspectos como la significación y la apropiación simbólica) no es la misma que la habitabilidad referida a estándares deseables de calidad de vida. En la literatura anglosajona el tema ha sido abordado tanto desde las nociones de satisfacción residencial (Mohit, 2014) y calidad en el diseño de vivienda, como, en las últimas décadas, desde el enfoque de livability (Ley, 1990, lo propone escrito como liveability, y del mismo modo lo hace Van Dorst, 2012). Esta categoría se aplica a estudios de vivienda y se entiende como parte de entornos urbanos y medioambientales que proporcionan calidad de vida (Herman y Lewis, 2017; Kaal, 2011). La idea de habitabilidad en este enfoque, estudiada como un componente medible a través de indicadores sobre calidad de aire, transporte, vida comunitaria o vivienda asequible es interesante en la planificación urbana porque permite tener una visión general de las conexiones entre dimensiones arquitectónicas, sociales y medioambientales.
Al interior de la vivienda, al detallarse los atributos del espacio habitable no siempre se advierte, en los autores revisados, un orden claro o una categorización jerárquica de las variables señaladas como importantes. Landázuri y Mercado (2004) proponen un modelo con tres grandes grupos de factores que emergen en la evaluación del interior satisfactorio: los que tiene que ver con el placer-displacer proporcionado por el espacio, la activación-tranquilidad (saturación del ambiente) y, finalmente, el dominio o capacidad del usuario de controlar el entorno en el que vive. El modelo, señala el mismo autor, explica solo el 50 % de la habitabilidad analizada en un caso de estudio, por lo que recomienda profundizar en variables como la privacidad, el ruido, el tamaño de espacios colectivos, las cuales contienen simultáneamente elementos de displacer, exceso de activación y falta de control. Luna y Gómez (2015) proponen un listado de variables en el que figuran el confort psicológico, la dimensión espacial, la vinculación espacial, la permanencia espacial, la seguridad de estancia, el placer y la presencia de imaginarios.
El entronque de la tradición funcionalista arquitectónica con la psicología ambiental, el humanismo existencialista o las teorías semióticas y culturalistas centradas en la vivencia del usuario, puede ser factible organizando categorías de acuerdo con una gradación que vaya desde los elementos puramente físicos hasta los fenómenos psicológicos, condicionados culturalmente. En este sentido, cabe pensar en varios grupos distintos: los atributos totalmente materiales (presencia de cocina, baños, conducto de desechos, aperturas de ventilación y luz), los fenómenos físicos generales que ya son fenómenos vividos por el habitante (iluminación, ventilación, protección, silencio, ruido), y los atributos totalmente psicológicos (sensación de seguridad, significación, control, legibilidad, tranquilidad, confort). Estos últimos serían factores derivados de la vivencia espacial que tienen lugar exclusivamente en el habitante (placer, vinculación, simbolismo), influido por el contexto sociocultural.

Un elemento relativamente reciente en los estudios de habitabilidad interior es el ambiental. Podríamos pensar que en el interior no tiene la importancia que disfruta en la noción de livability trabajada para entornos urbanos interactuando con zonas verdes y naturales. La morada, sin duda, es un entorno plenamente construido, pero no por ello está desconectada de elementos como la calidad del aire, la posible presencia de vegetación interior y sobre todo vinculada a los problemas medioambientales, en la medida en que es responsable de un consumo energético específico y productor continuo de desechos que tienen un impacto determinado. El elemento ambiental lo vemos incorporado por Espinosa y Gómez (2010) y en Arcas et al. (2011), con un nuevo imperativo ecológico (que se añade a la tríada vitruviana) en el quehacer del profesional (Guerin y Ginthner, 1999; Hayles, 2015; Sorrento, 2012).
Por consiguiente, es importante considerar no solamente los atributos de orden fisio-psicológico (añadiendo al placer estético, central en la enseñanza clásica de la arquitectura, otros requerimientos de diseño centrado en la necesidades y salud del usuario), sino atributos de orden social y ambiental, no siempre integrados o explícitamente categorizados en los modelos de habitabilidad. En un plano colectivo, el espacio interior produce efectos no solo a usuarios aislados, sino directamente a los grupos domésticos que comparten una vivienda (con una zonificación que aliente o inhiba la convivencia o la privacidad), ya que tiene la capacidad de influir en la producción de lazos sociales y emocionales.
El modelo que aquí se presenta, además de otorgar al plano social su propia esfera teórica, busca dar un marco a la diversidad de listas de requerimientos y factores, discrecionalmente ampliables o dependientes de las preferencias terminológicas de cada autor. Básicamente, elude la prescripción cerrada en los planos materiales y fenomenológicos, los supone implícitos y se concentra en los efectos producidos por la arquitectura interior en los actores involucrados: sujetos individuales, grupos y medio ambiente. Es decir, mientras que los medios para llegar al resultado deseado, la habitabilidad, pueden variar, consideramos que el espacio satisfactorio siempre tiene tres virtudes a nivel de sus resultados: psico-eficiente, es decir, construye al sujeto en un sentido positivo (con elementos de estimulación sensorial, saturación-tranquilidad y estética adecuada, así como dispositivos detonantes de apropiación simbólica de un espacio individualmente significativo); socio-eficiente, en el sentido de que favorece la interacción y crea comunidad; y ecoeficiente, con medidas de sustentabilidad que favorecen al entorno y permiten su disfrute a futuras generaciones.
En la categoría de psicoeficiencia se integran numerosas variables que tradicionalmente han configurado el ideal de arquitectura interior: confort (general, térmico, acústico, ergonómico), placer estético, identidad (memoria, distinción, estatus), privacidad y funcionalidad en la satisfacción de necesidades básicas.

En cuanto a la socioeficiencia, si bien el espacio interior ha cobijado siempre una colectividad, en las sociedades contemporáneas se plantean nuevos retos. H. Lefebvre, en Crítica de la vida cotidiana (1947), señaló que la reproducción de la cotidianeidad moderna dada por la sociedad burocrática del “consumo controlado” ha ido acompañada de una “individualización extrema”, una atomización en consumidores aislados, con la destrucción de los contextos colectivos tradicionales. Partiendo de la preocupación por recuperar niveles saludables de sociabilidad por medio de la arquitectura son interesantes los diseños que consideren las virtudes sociales de inclusión y conectividad del espacio habitacional. Aquí retomamos el concepto de socioeficiencia de Sabater (2015), quien lo concibe como término complementario al de ecoeficiencia, ya que participa del mismo anhelo por obtener “el mayor rendimiento, el máximo de resultados y prestaciones, con el mínimo gasto en impacto ambiental y territorial” (p. 42). Se trata de un rendimiento que pensamos aquí en términos de acceso a la vivienda, inclusión y convivencia en espacios sociópetos (Hall, 1989; Osmond, 1957) y deseados (Eleb y Bendimérad, 2018), que promueven el encuentro entre personas, como el family room, la cocina abierta, la sala de usos múltiples en un edificio, el roof garden. En nuestro siglo, la vivienda flexible compartida (cohousing y coliving) sería socioeficiente al dar alojamiento a varias personas en una época de escasez y encarecimiento del espacio urbano, con la posibilidad de vincular hogares en tránsito (Montaner y Muxí, 2010) y hogares unipersonales a espacios de apoyo mutuo, con lo cual se abre la posibilidad de renovar un parque de viviendas unifamiliares obsoletas que en su día fueran fueron socio-eficientes.
En la intersección entre las tres dimensiones señaladas se ubican objetivos fundamentales de la habitabilidad actual. Un espacio ecoeficiente puede ser además favorable para la salud del usuario, con una salud corporal que beneficia a la salud psíquica, como también lo hace el espacio conectado e incluyente que proporciona la socio-eficiencia. A su vez, un espacio que socializa de manera óptima necesidades colectivas redunda en una mejor sustentabilidad.
Metodología
El objetivo del trabajo fue entender un proyecto arquitectónico a partir de un modelo de habitabilidad integral que abarcara las preocupaciones de la arquitectura residencial de las últimas décadas. Se pretendió comprobar la hipótesis de que en el parque habitacional de las grandes ciudades existen dichas preocupaciones, y que al ordenar el estudio de un proyecto en la tríada pscioeficiencia, socioeficiencia, ecoeficiencia, se obtiene una idea general pertinente de los logros que la obra alcanzó. Para ello, se empleó una metodología cualitativa de investigación, completando el estudio descriptivo de los datos planimétricos y fotográficos con una entrevista abierta en profundidad realizada al equipo de arquitectos responsables de la remodelación (Alejandro Leal, Julie Rousset e Iván Muñoz), que se presenta a continuación.
Resultados
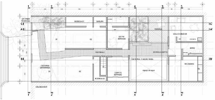
Los arquitectos explicaron que en 2010 recibieron el encargo de reformar una casa de los años cincuenta en una colonia de clase media-alta (Mixcoac, en la calle Extremadura), ubicada en la zona sur de la Ciudad de México. Originalmente ahí vivieron los padres de F., mujer separada que heredó la casa y junto con su hijo (quien financia la obra) encargó una transformación profunda del inmueble. El reto del proyecto arquitectónico era hacer habitable una construcción en las nuevas condiciones familiares y con nuevos requerimientos. Por un lado, la casa había quedado muy grande para una única persona, la madre, y tanto su hijo como su hija querían vivir cerca de ella, por lo que aprovecharon la coyuntura de la remodelación para adecuar sus propias unidades habitacionales allí. Además, la casa estaba muy envejecida, con lo que ya no era operativa, ni por su materialidad ni por la falta de una configuración adecuada a las personas que la iban a habitar.

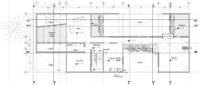
Para el hijo se construyó un departamento entero, un ático suplementario. La adición vertical de una célula habitacional en las casas mexicanas es un recurso habitual en el crecimiento familiar, que aquí deliberadamente se quiso reproducir, en un formato de alto nivel adquisitivo, con el fin de facilitar el contacto familiar en una ciudad colapsada por el tráfico.

Socioeficiencia
Los frecuentes viajes y las residencias temporales en el extranjero por parte de los hijos dan importancia al hecho de regresar a la casa, porque esta siempre ha constituido un punto de referencia, el elemento permanente en las biografías individuales, el que da continuidad e identidad a la familia. La reforma del inmueble quiso vehicular la consolidación de lazos familiares importantes para los clientes. Además, no se trataba únicamente de restaurar la casa, sino que había que pensar en una vivienda familiar nueva en un sentido muy concreto, puesto que, para los hijos mayores, se pretendía que cada uno tuviera su espacio. La idea era dar habitabilidad a una familia que quería estar junta, pero junta de una manera muy particular, en una casa segmentada, estratificada por niveles; uno nuevo para el hijo, el del medio para la madre (centro de la familia) y otro para la hija (en la planta baja reformada).
En la planta baja del proyecto se proyectó la célula habitacional de la hija, colindando con el estacionamiento para cuatro coches, unas bodegas y un cuarto de servicio. El departamento se ubica en el área donde los abuelos habían tenido, además de los dos coches, sus habitaciones públicas, estancia y cocina. Se adecuó la cocina, la estancia, el cuarto de lavandería, el baño y dos habitaciones que están detrás de un patio. La célula de habitación de la hija, pese a ser de un tamaño menor que los demás departamentos, quedó contenida en su propio espacio al fondo, con una privacidad interesante, con terraza y su vestibulación.

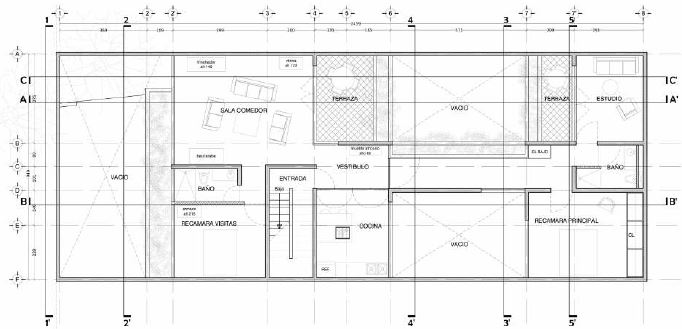
La primera planta, donde originalmente estaban las habitaciones de los abuelos, es ahora el departamento de la madre. Sigue la distribución original de una casa que ocupaba un terreno relativamente angosto y profundo: cuerpo frontal (área pública) y uno trasero (área privada) con un pasillo que hace de un puente entre ambos. El espacio quedó como lugar de convergencia entre los dos hijos, con la posibilidad de reencuentro familiar por su tamaño, la presencia de una generosa terraza y la ubicación intermedia. Tras un pasillo y un vestíbulo hay dos habitaciones, una principal con baño. Se trata, por consiguiente, de una unidad con tres habitaciones, una de las cuales pudiera ser estudio o cuarto para un visitante (pudiera tratarse del esposo, quien visita por temporadas a la familia). Su lavandería está en la planta baja, con un traslado que pudiera ser complicado para una persona que se aproxima a la tercera edad, por lo que el proyecto se abre a futuros cambios de uso, como enfermería en el cuarto de servicio en planta baja, para cuando haya que contar con ayuda.

El departamento del hijo es un ejemplo paradigmático de diseño centrado en el usuario, con decisiones producto de negociaciones y co-design constante (en su habitación principal hay dos niveles; un estudio a doble altura adecuado para la fotografía, y en un segundo nivel, a manera de mezzanine, el dormitorio propiamente dicho con un baño).

Un elemento de socioeficiencia importante fue la terraza, hecha de rejilla para permitir el flujo de la luz al departamento inferior, el de la madre, quien no quería que la incorporación de un nuevo nivel fuera en detrimento de la luz que recibiría en el suyo. Para conseguir el equilibrio entre los requerimientos de los dos usuarios (los arquitectos se enfrentaron a una situación en la que había un cliente económico, el hijo, y un cliente emocional, la madre) hubo que trabajar la volumetría del segundo nivel. Con un techo inclinado, se pudo reducir la altura para que el ángulo del sol estuviera lo más aprovechado posible; además, la jardinera del último nivel se pensó con un retrancamiento hacia el interior, que permitió dar más aire al patio. Por consiguiente, la verticalización (tema central en el proceso de densificación que sufre la ciudad, donde cada generación suele añadir niveles a la casa de la generación anterior) se llevó a cabo de una manera muy cuidada, buscando que los espacios fueran satisfactorios para todos, lo cual redundaría en una cohabitación eficiente.

Psicoeficiencia
La luz, además de aparecer como un punto en la negociación de la distribución espacial y familiar, se concibió en el proyecto como elemento de placer y de bienestar, que se añade a un ambiente de paz, pensado para aliviar el estrés urbano.
Es una luz que se suma a la unidad estética deseada, centrada en el respeto al carácter de modernidad de los años cincuenta con el que la madre está vinculada emocionalmente, con el añadido del gusto por lo natural, acorde con la sensibilidad ecológica actual. La existencia de patios se aprovechó para acomodar terrazas y jardineras con sistemas de riego automático, con la idea que convertir el espacio en un vergel (que fuera agradable y al mismo tiempo creara un microclima), aunque no se pudieron tomar fotos de la última etapa. La casa, pese a su relativo encierro y falta de vistas, pudo así respirar hacia el interior por medio de sus patios y terrazas, con lo que se logró aliviar, por ejemplo, el confinamiento en épocas en que fuera necesario. La sensación de espacialidad se mejoró gracias a este recurso, junto a la optimización del asoleamiento (se ensancharon las ventanas), algo fundamental en la Ciudad de México, donde en época de lluvias (junio-octubre), el ambiente puede llegar a ser muy gris. En los dos niveles superiores se colocaron ventanas que prolongan el muro, a modo de tribuna, las cuales pueden funcionar como ventanas habitables, de contemplación y reposo, como las de los conventos, o como remates para decoración iluminada.

Cabe destacar la escalera que une los distintos niveles. Además de ser el elemento simbólico de la conexión familiar (socioeficiente), proporciona cierto efecto en la subida (promenade lecorbusiana) por su diseño. La escalera no llega a los bordes, para permitir que la luz cenital del tragaluz bañe por entero los muros que la rodean y dé la impresión de que está suspendida en el aire. Una lámpara indirecta rectangular funciona como elemento geométrico que remata la vista de la persona que sube. El pasamanos en discontinuidad genera un efecto visual interesante, enfatiza la verticalidad, sujetado por unos tirantes metálicos ocultos a primera vista. La carpintería estuvo pensada de manera muy minimalista, con pocas juntas, muros blancos aplanados que nos dan una arquitectura blanca, colorida por plantas que tienen que cubrir, a medida que crezcan, todas las jardineras.
Ecoeficiencia
El capítulo de ecoeficiencia se benefició por el hecho de disponer suficiente presupuesto. La casa tiene sistema de ecotecnias y de iluminación led, de ahorro energético; contempla el tratamiento de aguas grises; el agua de los excusados es agua de reúso; bajo los coches hay un sistema de filtros, que filtran el agua de la lluvia; hay además dos cisternas: una de agua purificada y una de agua de la calle. Hay paneles solares, recuperación del agua fluvial, uso de agua gris (de la lavadora), con un doble sistema de agua, calentadores de alta recuperación (evitando el antiguo calentador de llama). Estos dispositivos se añaden a una consideración urbana de la casa, con una atención al contexto y al problema que es hoy la actual ubicación, en una calle transformada en eje vial, con cinco carriles de tráfico. Para paliar el tema de la contaminación acústica y evitar la entrada de polución, había que cerrar la casa, replegarse, transformando una fachada de los años cincuenta de grandes ventanales que observaban la ciudad. Se levantó un muro de 3 m de altura, blanco (con un toque de amarillo donde está la entrada peatonal), quedando una única ventana (la del estudio del segundo nivel) hacia la calle. De ese modo, se pretendió generar un entorno lo más apartado posible de la contaminación, más ecoeficiente y saludable, sin renunciar a los beneficios de la ubicación urbana. La negociación entre conexión urbana (socioeficiente) y entorno saludable (eco y psicoeficiente) llevó a decisiones costosas en términos económicos y constructivos.
Conclusiones
El proyecto buscaba satisfacer las necesidades residenciales de los usuarios con la remodelación interior y de reciclaje de una casa del siglo pasado, por lo que, en su punto de partida, ya se encuentra un elemento de ecoeficiencia. La decisión de inversión en reforma arquitectónica y no obra nueva (con el presupuesto empleado pudieron haberse adquirido dos departamentos nuevos pequeños), aparece al mismo tiempo como una decisión socioeficiente (al mantener lazos familiares) y sustentable (ahorradora de gasto en el transporte para estar juntos si vivieran lejos). El caso de estudio reflejó, además, ciertos aspectos interesantes en la construcción de habitabilidad: el carácter dialéctico de sus atributos, la posibilidad de obtener sinergias entre ellos (la ecoeficiencia generadora de espacio saludable y psicoeficiente, la conexión familiar como intersección positiva entre elementos socioeficientes y psicoeficientes), pero también la necesidad de efectuar decisiones equilibradas cuando entran en conflicto.
Por un lado, la maximización de luz y ventilación por medio de patios y ventanas fue un elemento que proporcionó simultáneamente bienestar psicológico y eficiencia energética. La introducción de dispositivos biofílicos como las jardineras de riego automático se concibió con la idea de crear un microambiente opuesto al de la ciudad, un filtro a la vez sensorial y material que en las terrazas podrá alentar una convivencia relajada; por su parte, si bien la segmentación y la proliferación de servicios (tres cocinas, numerosos baños) aparece como poco sustentable, la privacidad obtenida se espera que sea psico-eficiente y socio-eficiente en el sentido de que la interacción pueda ser una interacción deseada.
Por otro lado, en algunos momentos hubo que negociar los alcances de beneficios y sacrificios individuales para que la convivencia generara conexión y no enfrentamiento. El papel del arquitecto fue mediar en las negociaciones, cuando las ganancias en un ámbito de habitabilidad se producían en conflicto con otros ámbitos. Se trató de minimizar el problema cuando la luz del nivel superior oscureció la del nivel inferior. Otro punto fue que la obtención de un buen de nivel de privacidad no alentó la creación de un espacio colectivo de convivencia único, un generoso patio central compartido, por ejemplo. Las visitas deberán tener lugar en los espacios y terrazas pertenecientes a cada usuario. En este sentido, ante las tensiones entre psico-eficiencia y socio-eficiencia, tanto el cliente como los arquitectos tuvieron que contemplar soluciones parciales y la apertura del proyecto a futuras modificaciones o múltiples formas de uso.
La casa de la calle Extremadura puede interpretarse como un regreso al modelo de casa mexicana de patio (en particular las casas llamadas de alcayata, en forma de C), adaptada al siglo XXI. Hay una recuperación de la casa histórica replegada sobre sí misma, con el patio aislado, ahora ya no del bullicio colonial, sino del tráfico moderno, tratando de crear un microambiente interior saludable. También se moderniza la idea de la gran casa de la familia extendida (tanto prehispánica, en el calpulli, como en la casa virreinal donde varias generaciones podían cohabitar), en este caso con un cohousing que dota de los servicios a todas las unidades por igual. Es al mismo tiempo una vivienda colectiva para una única familia y una casa que se ha transformado en tres departamentos que pueden funcionar independientemente. No podemos hablar estrictamente de vivienda unifamiliar o plurifamiliar, ni de “casa-habitación”, como aparece en numerosos manuales, ni de vivienda colectiva. Es una casa familiar con tres departamentos al interior, una casa en un sentido contemporáneo, que abraza la complejidad en las formas actuales de convivencia, permitiendo la individualidad, pero conservando un predio de la anterior generación sin renunciar a la posibilidad de conectar con la identidad familiar histórica por medio del espacio.
Referencias
Arcas, J., Pagés, A., y Casals, M. (2010). Habitabilidad, la otra cara de la edificación sostenible [Ponencia]. SB10 Mad, Sustainable Building Conference.
Arcas, J., Pagés, A., y Casals, M. (2011). El futuro del hábitat: repensando la habitabilidad desde la sostenibilidad. El caso español. Revista INVI, 26(72), 65-93.
Casals, M., y Arcas. J. (2010). Habitabilidad: Un concepto en crisis. Sobre su redificación orientada hacia la rehabilitación [Ponencia]. SB10 Mad-Sustainable Building Conference.
Eleb, M., y Bendimérad, S. (2018). Ensemble et Séparément. Des Lieux pour Cohabiter. Pierre Mardaga Editeur.
Espinosa, A. E., y Gómez, G. (2010). Hacia una concepción socio-física de la habitabilidad: espacialidad, sustentabilidad y sociedad. Palapa, 5(10), 59-69.
Guerin, D., y Ginthner, D. (1999). Designers knowledge of green design: What do we do now? En IDEC, International conference abstracts (pp. 50-51). Clearwater.
Hall, E. (1989). La dimensión oculta. Siglo XXI.
Hayles, C. S. (2015). Environmental sustainable interior design: A snapshot of current supply of and demand for green, sustainable or fair trade products for interior design practice, International Journal of Sustainable Built Environment,4(1), 100-108. http://dx.doi.org/10.1016/j.ijsbe.2015.03.006
Herman, T., y Lewis, R. (2017). What is Livability? University of Oregon https://sci.uoregon.edu/sites/sci1.uoregon.edu/files/sub_1_-_what_is_livability_lit_review.pdf
Kaal, H. (2011). A conceptual history of livability. City: Analysis of Urban Change, Theory, Action, 15(5), 532-547. https://doi.org/10.1080/13604813.2011.595094
Kusumarini, Y., Ekasiwi, S. N. N., y Faqih, M. (2011). Sustainable Interior: A Holistic Approach of Eco-Socio-Econo Interior. Australian Journal of Basic and Applied Sciences, 5(12), 2176-2181.
Landázuri, A. M., y Mercado, S. (2004). Algunos factores físicos y psicológicos relacionados con la habitabilidad interna de la vivienda. Medio Ambiente y Comportamiento Humano, 5(1y2), 89-113.
Lefebvre, H. (1947). Critique de la vie quotidienne. Editions Bernard Grasset.
Ley, D. (1990). Urban Liveability in Context. Urban Geography, 11(1), 31-35.
Luna, J. G., y Gómez, A. (2015). Un acercamiento al estudio de habitabilidad en la vivienda de interés social. En R. Valladares Anguiano (ed.), Diversas visiones de la habitabilidad (pp. 91-112). Red Nacional de Habitabilidad Urbana.
Mehabian, A., y Russell, J. (1974). An Approach to Environmental Psychology. MIT Press.
Mohit, M. A. (2014). Residential Satisfaction: Concept, Theories and Empirical Studies. Planning Malaysia, 12, 47-66.
Montaner, J. M., y Muxí, Z. (2010). Reflexiones para proyectar viviendas del siglo XXI. Dearq, (6), 82-99.
Osmond, H. (1957). A review of the clinical effects of psychotomimetic agents. Ann N Y Acad Sci, 66(3), 418-434. https://doi.org/10.1111/j.1749-6632.1957.tb40738.x
Sabater, T. (2015). Socioeficiencia. En A. Barrios, E. González, J. Mariñas y M. Molina-Huelva (coords.), Re-habitación, re-generación, re-programación (pp. 40-47). Junta de Andalucía-Universidad de Sevilla.
Sorrento, L. (2012). A Natural Balance: Interior Design, Humans, and Sustainability. Journal of Interior Design, 37(2), 9-33.
Van Dorst, M. J. (2012). Liveability. En E. Van Bueren (ed.), Sustainable Urban Environments (pp. 223-241). Springer. https://www.researchgate.net/publication/314616668
Notas
Notas de autor
a Autor de correspondencia. Correo electrónico: investigacion@ump.mx