Artículos

Recepción: 14 Febrero 2019
Aprobación: 25 Octubre 2019
Publicación: 31 Diciembre 2019
Resumen: El artículo aborda la cuestión del desarrollo del neocolonial español, como un estilo arquitectónico, válido para afrontar la modernidad en la primera mitad del siglo XX. Pero se presta especial atención a su aceptación y desarrollo en España, que suele ser un extremo poco estudiado. Se muestra el interés por conseguir una unidad social iberoamericana, incluso proponiendo la existencia de una ?quinta raza? cultural, que como una muestra más de unidad, también compartiría ese estilo arquitectónico intercontinental. Es notable la voluntad de los arquitectos comprometidos para lograrlo, que introducían en sus proyectos, repertorios ornamentales de distintos lugares de la comunidad iberoamericana. Se llama especialmente la atención sobre la importancia del desarrollo del estilo, con unas plantas arquitectónicas modernas y procedentes de la arquitectura anglosajona, que nada tenían que ver con la tradición constructiva ibérica y que le otorgaban funcionalidad.
Palabras clave: Neocolonial en España, Arquitectura Iberoamericana, Martín Noel, Exposición Iberoamericana 1929, Raza cósmica.
Abstract: The article addresses the development of the Spanish Colonial Revival style, as an architectural style, valid to face modernity in the first half of the 20th century. But special attention is paid to its acceptance and development in Spain, which is often an extreme little studied. It shows the interest in achieving an Iberic-American social unit, even proposing the existence of a cultural "fifth race" that, as a further example of unity, would also share that intercontinental architectural style. It is remarkable the will of the architects committed to achieve it, who introduced into their projects, ornamental repertoires from different places of the Iberic-American community. It is especially called attention to the importance of the development of style, with modern architectural plants and from the Anglo-Saxon architecture, which had nothing to do with the Iberian building tradition and that gave it functionality.
Keywords: Colonial revival in Spain, Iberic-American architecture, Martín Noel, Iberic-American Exposition 1929, Cosmic race.
1. Introducción
El llamado neocolonial español fue un estilo arquitectónico transcontinental, 1 con una fuerza y una proyección, que parece haber olvidado la historiografía de la arquitectura española. Incluso pese al clarísimo origen hispano de sus elementos, no suele indagarse su desarrollo moderno en España y habitualmente solo se hace referencia a su nacimiento anglosajón y a sus expresiones latinoamericanas.
El estilo se vio propiciado tras la publicación de la novela ?Ramona? (1884), de Helen Hunt Jackson (1830-1885), 2 que ?descubrió? culturalmente el mundo pre-anglosajón a la sociedad estadounidense. Con esta ?moda?, se produjo una paradoja, como afirmaba R. Winter: ?[?] California, mientras participaba, y a veces lideraba el avance del modernismo, ha sido el símbolo del antimodernismo: el regreso a un día dorado antes de que el gringo llegara a violar la tierra virgen? (Winter, 1997: 1). En el campo de la difusión de las ideas, de recuperación de lo indígena y lo hispano, hay que reseñar la importancia que tuvo la labor del periodista e historiador Charles Fletcher Lummis (1859-1928). Como bibliotecario de Los Ángeles (1905-1910): ?[?] acumuló manuscritos del período de la ocupación española de California, que ahora forman el núcleo de la importante colección de documentos de la Los Angeles Public Library´s, relacionados con la experiencia hispanoamericana? (Winter, 1997: 2). Lummis publicó muchos libros difundiendo las culturas indígena y española californianas y esta información también interesó a algunos arquitectos apegados a los historicismos. 3De esta manera, desde finales del siglo XIX, el Colonial style, el Mission style, el Spanish style o simplemente el Californian style, se convirtieron en estilos de uso cotidiano para el arquitecto norteamericano. Como uno de los ?paradigmas? del estilo se suele señalar el trabajo de Julia Morgan (1872-1957) para W. R. Hearst en San Simeón (Wilson, 2012), con su ?Casa encantada? o ?Hearst Castle? (1919-1947) (Gutiérrez Viñuales, 2016: 8).
Para que España se uniera ?institucionalmente?, al debate hispanista, hubo que esperar hasta el año de 1915, en el cual se celebró el VI Congreso Nacional de Arquitectos en San Sebastián. El congreso recogía en sus actas la conveniencia de estudiar los modelos españoles históricos, 4 para construir la arquitectura española moderna. Paradójicamente, ese mismo año y en la ciudad de San Diego (EE.UU.), se había escogido un estilo hispánico para construir todo el recinto de la Exposición Panamá-California. El ayuntamiento de la ciudad encargó la realización del proyecto a un equipo de arquitectos que estuvo presidido por Bertram Grosvernor Goodhue (1869-1924). Goodhue, fue el primer arquitecto norteamericano que trabajó con gran acierto lo que entonces llamaban Spanish Style; le interesaban los elementos de la arquitectura española y en concreto su expresión colonial mejicana (Oliver, 1983). Cuando se construyó la exposición, se publicó un catálogo sobre la misma, que contribuyó a aumentar la difusión del estilo. 5
Según Gutiérrez Viñuales ?Las alternativas arquitectónicas vinculadas a ese ?estilo californiano?, de fuerte impronta fachadista, suelen dividirse en dos. La versión popular conocida como mission style, de notoria fortuna en los últimos lustros del siglo XIX y la conocida como ?renacimiento español?, que toma como referencia el barroco español (realmente el mejicano) con sus cargas decorativas [?]? (Gutiérrez Viñuales, 2016: 8).
En el surgimiento de este movimiento arquitectónico, sin duda existía una componente identitaria, que se ajustaba bastante al concepto de revival ecléctico que se estaba desarrollando en Europa. En EE.UU., la sensación de ser un ?país joven?, propiciaba seguir otros movimiento artísticos de países más ?antiguos?, especialmente del Reino Unido. Con el ?descubrimiento? de la arquitectura colonial española, los norteamericanos asumieron que ellos también tenían un estilo occidental propio, singular y de base clásica. 6 También era una manera de integrar como plenamente norteamericano lo que desde la guerra mexico-americana (1846-1848), se consideraban como unos territorios conquistados a Méjico, por lo distinto de las sociedades latinas y anglosajona.
Los proyectos que los arquitectos norteamericanos desarrollaron desde finales del siglo XIX, pero con el concepto arquitectónico anglosajón de Arts & Crafts, habían provisto al nuevo estilo de plantas abiertas, funcionales y de fácil zonificación. Este es un extremo muy característico, e interesante a nivel disciplinar, que raras veces se ha tenido en cuenta.
En las naciones americanas de habla hispana, la adopción del estilo se convirtió en una cuestión más trascendente, ya que representaba aspiraciones de afirmación nacional. ?El interés que para muchos americanos tenía la cultura extranjera y que significaba una ?fuga espiritual de la propia tierra? era en definitiva fruto de un proceso de ?autodegradación? fomentado por aquella dialéctica excluyente de ?civilización (Europa) o barbarie (América)? con que se había justificado el proyecto dependiente del siglo XIX? (Gutiérrez Viñuales, 1995: 18). Como afirmaba Veronica Cremaschi: ?Estas discusiones acerca de nuestra identidad arquitectónica se produjeron a nivel continental. Por ello encontramos expresiones neocoloniales en distintos países americanos simultáneamente, sus ejemplos se extienden desde California, Texas y Florida en los Estados Unidos, hasta el Cono Sur, teniendo en cada país características distintas. Debido a las diferencias nacionales y a búsquedas particulares, tanto de arquitectos locales como de comitentes, se expresó a través de diferentes variantes: las hispanistas, la colonial o de fusión (en la que preponderan elementos americanos o hispánicos alternativamente), y la indigenista o prehispánica? (Cremaschi, 2014: 66). En Iberoamérica, durante las primeras décadas del siglo XX, se produjo una fuerte reacción social y cultural hispanista, coincidiendo con la creciente inmigración europea al continente. ?Pero la consecuencia (de esta inmigración) en los países iberoamericanos sería la apropiación explícita de los productos artísticos, como definición de sus respectiva nacionalidades. La ?americanizada?, es el intento de formular una identidad nacional-continental, para compensar las frustraciones que las revoluciones malogradas, habían dejado en amplias capas de la sociedad de México o Argentina [?]? (Morales Saro, 1998: 19)
En México la revalorización de la tradición virreinal se impulsó como un nuevo emblema de su identidad, alentada en los trabajos teóricos de arquitectos como Jesús T. Acevedo (1882-1918), con su obra ?La arquitectura colonial en Méjico? (1910) y Federico E. Mariscal (1881-1971) con su conferencia ?La patria y la arquitectura nacional? (1913) (López Guzman & Avilés García, 2015: 59). Hasta el punto de que el gobierno de Venustiano Carranza lo patrocinó como estilo oficial (1919), eximiendo del pago del Impuesto Federal sobre la Construcción, a todo aquel que lo utilizara profesionalmente Fierro Gossman, 1998: 57). En este país, José Vasconcelos (1882-1959), su ministro de educación, publicó La raza cósmica (1925), definiendo una hipotética quinta raza, propia de Iberoamérica, resultado del mestizaje de las cuatro conocidas pero unidas bajo una misma ?cultura?.
En Argentina, ?[?] Durante las primeras décadas del siglo XX, la obra escrita de Ricardo Rojas (1882-1957), particularmente La restauración nacionalista (1909) sirvió de inspiración para descubrir una arquitectura y una estética ?nacionales? (Bonicatto, 2011: 15), que se reafirmaron con su publicación de Eurindia(1924). En el texto de 1909, promocionado por el presidente Hipólito Yrigoyen, Rojas no oponía nada al cosmopolitismo, pero veía un peligro en el desarraigo demostrado por algunos inmigrantes y sus hijos, por lo que pretendía ?argentinizarlos? (Bonicatto, 2011: 15). Tanto en el ámbito profesional como social del estilo, hay que destacar la labor de los arquitectos argentinos Martín Noel (1888-1963) y Ángel Guido (1896-1960), que predicaban la necesidad de crear una arquitectura de raíces americanas, que diera cierta unidad a los edificios del continente, y no fuera únicamente singular de una nación concreta (Graciani García, 1995). La arquitectura histórica continental era el resultado de una fusión hispano-indígena y se debía encontrar un estilo que pudiera incluir elementos de todos los países americanos, de pasado hispano.
Una muestra de su larga vigencia oficial se puede comprobar, tanto en los ?poblados dirigidos? españoles, como con los ?poblados justicialistas? argentinos. De hecho, el gobierno del general Perón, en los años cuarenta y cincuenta lo veía adecuado para dar forma a su propuesta de vivienda social moderna; como explicaba Rosa Aboy:
?También en el primer trienio, que coincide con los años de mayor prosperidad de la presidencia de Perón, se construyeron barrios de casas que hallaron inspiración formal en la arquitectura de las misiones jesuitas de la costa oeste de Norteamérica. El tipo, conocido como californiano, había sido introducido en el país en las décadas del veinte y del treinta por los sectores burgueses, hallando excelente receptividad por la creciente influencia norteamericana. En el período en que los migrantes internos fueron empujados a la ciudad por los desfavorables términos de intercambio económico, el chalet californiano fue visto como símbolo de ascenso social por vastos sectores que pugnaban por incorporarse a la clase media argentina? (Aboy, 2003: 3).
2. El desarrollo del movimiento neocolonial en España
En España el fenómeno identitario no lo despertó una inmigración, ya que coetáneamente eran precisamente los españoles, los que emigraban a América. Hasta ese momento, España había querido verse representada en las exposiciones universales con la estética islámica, lúdica y sensual, que la singularizaba del resto de Europa (Bueno Fidel, 1987). Cuando el ?desastre del 98? se asumió en nuestro país, donde se estaban practicando estilos arquitectónicos del resto de Europa, una corriente de pensamiento regeracionista volvió la mirada a los estilos castizos.
El ideario del 98 tuvo gran influencia en las siguientes generaciones de intelectuales españoles, pero ésta no fue menor en los movimientos hispanófilos de Iberoamérica y en los movimientos artísticos neocoloniales (Morales Saro, 1998:19). La corriente, en el campo de las letras, estaba claramente encabezada por Marcelino Menéndez Pelayo (1856-1912) y en el arquitectónico por Vicente Lampérez Romea (1861-1923). 7
En 1899 ya existió una primera defensa del barroco español,1 en la conferencia que el arquitecto Arturo Mélida Alinari (1849-1902), 8 pronunció para su ingreso en la Academia de Bellas artes de San Fernando de Madrid: ?Las causas de la decadencia de la arquitectura y medios para repararla?. 9Según Villar Movellán, desde ese momento, en España, ?El barroco se redescubre como estilo flexible, imaginativo, fuertemente ornamental, es decir con todas las ventajas del neoislamismo y sin ninguno de sus inconvenientes? (Villar Movellán, 1981: 342).
Pero el primer llamamiento público hacia una recuperación del barroco español, se produjo en 1920 y desde el nº 21 de la Revista Arquitectura, 11 donde participaron José Ortega y Gasset (1883-1955) (Ortega y Gasset, 1920: 33), y los arquitectos Ricardo Velázquez Bosco (1843-1923) (director de la Escuela Técnica Superior de Arquitectura de Madrid) (Velázquez Bosco, 1920: 36), y Ricardo Giralt Casadesús (1884-1970) (Giralt y Casadesús, 1920: 42), entre otros. 12 Esta publicación, por primera vez en España desde la ilustración, señaló al ?denostado barroco? como una posible solución válida para desarrollar el estilo que debía seguir la arquitectura española coetánea. En el mismo año, Leopoldo Torres Balbás (1888-1960), también desde la Revista Arquitectura, daba cuenta de un edificio nuevo en este estilo, del arquitecto José Yarnoz Larrosa (Torres Balbas, 1920). Se había construido en la calle de Alcalá de Madrid, esquina con la calle de Claudio Coello y se exaltaba el estilo como perfectamente válido para formar parte de una ciudad moderna (Figura 1). Torres Balbás afirmaba que ?[...] la gran ventaja de la arquitectura barroca para trabajar en ella actualmente, es su gran libertad, que causaba la indignación de gentes de educación académica. Es un arte sin reglas, sin preceptos, a través del cual la personalidad del artista puede mostrarse libremente? (Torres Balbas, 1920: 59). Posiblemente debido a este ambiente, en 1924 se tradujo al español la obra de Otto Schubert, ?Barock in Spanien? (1908). 13
El texto encontró eco en el ambiente profesional y algunos arquitectos comenzaron a reafirmarse en el uso del barroco como un estilo posible para en ese momento.

Flores Soto ponía en valor que ?[?] Torres Balbás desarrolló una intensa labor crítica reivindicando la necesidad de modernizar la arquitectura española. Fijándose en las características que consideró esenciales de la modernidad: la idea del progreso humano y la irrenunciable redención de los ?parias? imprimió un giro de orientación al debate arquitectónico español? (Flores Soto, 2012: 485). Además de su conocida labor en el campo de la restauración, dedicó gran parte de su vida a demostrar la validez de los principios de la arquitectura histórica y por ende vernácula para esa buscada regeneración:
?Propaguemos este sano casticismo abierto a todas las influencias, estudiando la arquitectura de nuestro país, recorriendo sus ciudades, pueblos y campos, analizando, midiendo, dibujando los viejos edificios de todos los tiempos, no solo los monumentales y más ricos, sino también, y tal vez con preferencia, los modestísimos que constituyen esa arquitectura cotidiana, popular y anónima, en cuyas formas se va perpetuando una secular tradición, y en la que mejor podremos percibir el espíritu constructivo de nuestra raza? (Torres Balbás, 1918: 33).
Esta búsqueda de la ?síntesis de la arquitectura?, de lo fundamental y no mutable, de los ?principios básicos constitutivos?, ya la habían defendido arquitectos como Semper o Viollet-le-Duc, en el siglo anterior. Algunas décadas después (1947), este sueño seguía persistiendo en el ánimo de algunos arquitectos como Fernando Chueca Goitia, que intentó sintetizar en su obra ?Invariantes castizos de la arquitectura española?, esos principios constantes y válidos, en este caso para la arquitectura española de todos los tiempos. 14 Posteriormente (1966), Chueca, también intentaría hacerlo con respecto a la arquitectura hispanoamericana. Sus teorías se publicaron en forma de artículo en un numero monográfico, dedicado a Hispanoamérica, de la Revista de Occidente. 15
Entre las cuestiones importantes que incitaron a desarrollar el estilo barroco en general, y neocolonial en particular, en España, no se puede ignorar la campaña de proselitismo hispánico que el arquitecto argentino Martín Noel desarrolló en nuestro país. Noel había comenzado su andadura hispanista, en 1914, con la conferencia ?Arquitectura colonial? en el Museo Nacional de Bellas Artes de Buenos Aires y a partir de ese momento su actividad fue en aumento. 16 En la década de los veinte, los éxitos del arquitecto y su prestigio en España, fueron muy importantes (Villar Movellán, 1981).
Una España buscando la egeneración, que por autoafirmarse, estaba interesada en la ?potenciación del espíritu de la Hispanidad, o de la raza, como gustaban llamar entonces a la entidad cultural hispánica? (Villar Movellán, 1981: 344). Todo ese movimiento americano de recuperación de lo hispánico, aunque de forma artística y emotiva, volvia a poner a España como referencia de los paises latinoamericanos. Para una nación deprimida emocionalmente y empobrecida fue una gran oportunidad para recuperar su prestigio, al menos moral.
En 1921, la Real Academia de Bellas artes de San Fernando, concedió a Noel el ?Premio de la raza? por su trabajo. 17 Asimismo fue elegido académico de la Academia de San Fernando de Madrid, de la de Santa Isabel de Hungría de Sevilla y miembro de la Junta de Historia de Madrid. ?El concepto que tenía Noel de la arquitectura desembocaba en un sincretismo panamericano, válido en cuanto a estilo e incluso en cuanto a planteamientos ecológicos, para zonas muy diversas del mundo hispánico? (Villar Movellán, 1981: 345).
Según Amparo Graciani el pensamiento de Noel interesaba en España por tres razones:
?a. El autor establecía un nexo entre España y la tradición arquitectónica americana, en unos momentos en los cuales en nuestro país se trataba de promover las relaciones culturales con ultramar; b. Noel se centraba en la potenciación de lo hispánico, cuando en España se exaltaba el papel de la Madre Patria, etc.; c. El arquitecto sintetizaba elementos del Barroco, cuya estética -hasta la fecha despreciada- era entonces muy estimada por los arquitectos del momento en base a su libertad compositiva y ornamental.? (Graciani García, 1995:167)
Por todo lo anteriormente expuesto: ?[?] a los ojos de otros arquitectos de la época (en España y América), Martín Noel era ya en 1922 una figura clave en la plasmación práctica de la nueva estética nacionalista [?] (Graciani García, 1995: 167).
Al final de su vida, Vicente Lampérez Romea, también hacía su aportación al movimiento neocolonial. El 17 de marzo de 1922, por encargo del Ministerio de Cultura, daba una conferencia en el Museo del Prado, con el título ?Arquitectura hispanoamericana en las épocas de la colonización y de los virreinatos?, que fue publicada en la revista Arquitectura y Construcción. 18 En la misma hablaba de que ?[?] ninguno de los artistas españoles que han ido a América han abordado este estudio [?]. Por lo tanto, creo ser , con esta conferencia, el iniciador del asunto en España? (Lampérez Romea, 1922: 27). Daba cuenta de los ?meritísimos estudios? que en el ?gran continente? se habían publicado (sobre todo en México) y pedía que en España se hicieran otros paralelos, 19 ya que ?cierta visión? se había escapado a los tratadistas americanos. En su conferencia, Lampérez distinguía dos corrientes arquitectónicas válidas para el ejercicio profesional moderno, la de copia de los modelos españoles y la de adaptación de los modelos coloniales. 20 En cuanto a la primera, el arquitecto proponía que se enviasen a América, fotos, dibujos y vaciados en yeso de obras peninsulares. En cuanto a la segunda, destacaba el papel de Martín Noel y su trabajo difusor de la cultura hispánica (Villar Movellán, 1981: 346). Tras hacer una descripción exhaustiva de la arquitectura en los periodos virreinales, acababa dando cuenta de la obra de los modernos arquitectos hispanoamericanos y sugería un lugar para España en ese movimiento. España debería desarrollar, mediante exposiciones y publicaciones, una mejor difusión de su patrimonio, para así enriquecer los elementos coloniales a través de la ?Junta para el fomento de las relaciones artísticas y literarias hispanoamericanas?. Lampérez, con su influencia cultural y profesional, daba legitimidad a los estilos coloniales para hacer arquitectura en el ámbito hispano.
En el mismo año de 1922, Leopoldo Torres Balbás, escribía en la Revista Arquitectura un artículo dando también cuenta de este fenómeno:
?Inspirándose en la arquitectura de las misiones, los norteamericanos han construido en California un gran número de residencias apropiadas al país [?]. [?] muros lisos, blanqueados, y cubiertas poco pendientes de teja árabe son las características exteriores de estas residencias, contrastando con tal sencillez, a veces la puerta principal decorase ricamente con motivos de progenie plateresca o francamente barrocos, modernizados?.
Su texto es interesante porque no solo analizaba el estilo desde un aspecto artístico, ya que por primera vez también se valoraban otras cuestiones arquitectónicas:
?En planta no recuerdan en nada a nuestras casas, de disposición siempre extraordinariamente sencilla, rectangular. Herederos los norteamericanos del arte inglés de las comodidades domésticas, siguen en la disposición de las viviendas su depurada tradición, haciendo plantas de área muy extendida e irregular, típicas de las viviendas aisladas de los anglosajones?.
Concluía su artículo lamentándose: ?Desgraciadamente, los españoles hemos permanecido ausentes hasta ahora de esta interesante labor de propaganda de nuestro antiguo arte, y no nos hemos preocupado en darlo a conocer fuera de España?? (Torres Balbás, 1922). Pese a estas ?protestas?, no sería hasta la segunda mitad de los años veinte, cuando en España se construiría habitualmente en neobarroco, vernáculo, californiano o misional.
En 1926 hubo otro ?llamamiento institucional?, en el mismo sentido que los dos anteriores, cuando el arquitecto Modesto López Otero (1885-1962) leyó su discurso de ingreso en la Real Academia de Bellas Artes de San Fernando de Madrid. El arquitecto escogió para su conferencia el tema, ?Una influencia española en la arquitectura norteamericana?. 21
López Otero llamaba la atención de los académicos de que ?existía un estilo muy desconocido en España y sin embargo de ascendencia española? que estaba siendo desarrollado con gran gusto y éxito en Estados Unidos (López Otero, 1926: 10). Los norteamericanos desarrollaban sus obras con una prodigiosa perfección, pero además de este desarrollo intelectual, materializado en los rascacielos, cultivaban ?[...] con verdadero amor otro sentimental, en adaptaciones derivadas de lo que ellos consideran sus propios estilos tradicionales? (López Otero, 1926: 10). López Otero observaba que los arquitectos norteamericanos habían estudiado los restos y ruinas de la antigua arquitectura española, e incluso estudiaban la arquitectura que no había cruzado el océano y quedaba en España, de aquel periodo; 22 con esto pretendían enriquecer el repertorio de elementos de ese estilo, para acometer su labor disciplinar (Figura 2).

Le apenaba el ?abandono profesional español? en el estudio de dicha arquitectura y calificaba de ?lamentable? que hubiera que recurrir a obras norteamericanas para documentarse sobre la arquitectura colonial española. También, al igual que Torres Balbás, destacaba la modernidad y funcionalidad que aquellos arquitectos habían impuesto a los modelos españoles.
?La planta, amoldada a la nueva vida, tiene comunidad dispositiva: adhesión libre, de espacios rectangulares, engendrando casi siempre un patio. Y en elevación, juegan los mismos elementos: raramente torres de cuerpos escalonados; muros lisos y desnudos [?]. Parquedad de huecos, guarnecidos de dintel o de arco de medio punto. Concentraciones ornamentales en el hueco principal o en hastiales de movido contorno. Silueta de tranquila horizontalidad, alguna vez alterada por la espadaña del campanario? (López Otero, 1926: 16).
Al final de su discurso, Modesto López Otero animaba a los jóvenes arquitectos españoles a profundizar en el estilo para que, a partir de éste, tener una opción más para el desarrollo de la arquitectura española moderna.
3. La gran muestra del estilo. La Exposición Iberoamericana de 1929
En 1923 el general Miguel Primo de Rivera dio un golpe de estado militar y desde su dictadura se fomentó el uso de todos los estilos regionales y/o vernáculos españoles. Este periodo (1923-1930) se destacó por el aumento de la obra pública, sobre todo a nivel de infraestructuras, y estos estilos se plasmaron en muchas de ellas. Cuando se planteó la celebración de una Exposición Internacional en Barcelona y otra Exposición Iberoamericana en Sevilla, Primo unificó por decreto (1926) dichas muestras, argumentando evitar así las rivalidades entre ambas ciudades, con el nombre de ?Exposición General Española? (Rodríguez Barberán, 2006: 284); sería una sola muestra con dos sedes distintas. Aunque la Exposición Iberoamericana Sevillana de 1929 es sobradamente conocida, es inevitable recordarla en este texto, pues fue el colofón y mayor órgano de difusión de los modernos estilos iberoamericanos.
España, el país anfitrión, optó por estilos peninsulares coetáneos con el descubrimiento de América, todos los principales pabellones fueron diseñados por Aníbal González Álvarez-Ossorio (1876-1929). 23 El resto de obras dotacionales españolas se construyeron en un neobarroco andaluz con adiciones coloniales. 24
Los pabellones iberoamericanos, exceptuando el de México y Guatemala, 25 optaron mayoritariamente por representarse con edificios neocoloniales. A tenor de esta actitud del gobierno de México, Carranza y Luiz, afirmaban: ?En México, sin embargo, la arquitectura y la cultura prehispánica se vieron con importantes vehículos para la transformación de la sociedad como resultado de la Revolución Mexicana y se generó el exaltado fervor nacionalista?( Carranza & Lara, 2014: 48). Es interesante resaltar que el arte prehispánico, ya había sido preferido en México durante el ?Porfiriato? (1876-1911), situación que continuó hasta la revolución mejicana de 1910. Este cambio de gobierno marcó el reencuentro con España y su herencia cultural. Pero el neoprehispánico volvió a aparecer en México, en la década de los años veinte, aunque conviviendo con el neocolonial español (Gutiérrez Viñuales, 2002: 271).
El autor del pabellón Mejicano, Manuel María Amábilis Domínguez (1886-1966) combinó la estética prehispánica con materiales nuevos para demostrar la modernidad de su nación. ?Llevado por un exaltado nacionalismo, Amábilis introducía en él sus peculiares hipótesis sobre los orígenes étnicos, creencias, cultura y espíritu de la raza tolteca, que consideraba la creadora de toda civilización? (Braojos Garrido & Graciani García, 1998: 64). ?El proyecto de Amábilis fue elogiado por la crítica, entre otras cosas, por su veracidad arquitectónica y plástica con respecto a los antiguos edificios mayas? (López Guzman & Avilés García, 2015: 67)(Figura 3)

Casi todos los pabellones construidos neocoloniales, aspiraban a la ?confluencia estética? que Noel y otros, habían propuesto, para conseguir aquel estilo continental americano. Tampoco se excluían elementos arquitectónicos peninsulares, que fomentaban esa transversalidad, incluyendo culturalmente lo ibérico en lo americano. Entre las naciones que desarrollaron esta actitud, y tuvieron más éxito en la Exposición, se pueden destacar los pabellones del Perú, Colombia y Argentina.
El Perú, país tradicionalmente francófilo, había desarrollado el academicismo francés tras la posguerra de 1876 y hasta después de la primera guerra mundial. En la década de 1920 se comenzó a plantear con fuerza la cuestión de encontrar un arte nacional propio, Paredes Hernández afirmaba que ?[?] en el Perú la revalorización del pasado se vería hasta de tres maneras distintas: 26 el neocolonial, de corte hispanista; el neoinca o mejor llamado indigenista; y el neoperuano, una fusión equilibrada entre ambos? (Paredes Hernández, 2015: 44).
Finalmente la preferencia oficial se inclinó hacia el neocolonial español, basado en la arquitectura colonial peruana de los siglos XVII y XVIII, volviendo a desarrollar las casas con balcones y las portadas virreinales de piedra. Paredes Hernández razonaba el porque de esta preferencia: en primer lugar, ya existían una serie de ordenanzas municipales que hacían obligatorio el uso del neocolonial en el centro de Lima. El indigenismo, en cambio, podía poner en peligro la estabilidad de la sociedad y no era una buena opción para la burguesía y menos para el gobierno de Augusto Leguía, pese a que su gobierno se caracterizó por la defensa del indígena y su formación para integrarlo (Paredes Hernández, 2015: 45). Pero esta actitud política no fue acompañada por un proceso de creación de arquitectura indigenista. ?Por último se evidencia la influencia económica y política que EE. UU. tenía en el país, pues el estilo había nacido en California y se puso de moda allá, para posteriormente ser traído a Latinoamérica? (Paredes Hernández, 2015: 46). En cuanto al estilo neoperuano, vio la luz hacia 1924 y fue creado e impulsado por el arquitecto y escultor Manuel Piqueras Cotolí (1885-1937). Una imagen que intentaba mostrar una fusión equilibrada de tradiciones hispanas y andinas, pero con un predominio del neocolonial que servía de base para la adición de los elementos andinos.
Por ello el pabellón de Perú de Sevilla, diseñado por el propio Piqueras Cotolí y en este estilo, tenía como discurso principal la herencia española e indígena en el mestizaje (Gutiérrez Viñuales, 2011). Según Fernando Villegas, Piqueras recurrió a varios elementos artísticos de etnias culturales distintas. Transfirió al pabellón elementos decorativos prehispánicos de Tiahuanaco y Chavín, que convivían con otros coloniales, como escudos de la nobleza española en (Lima Villegas, 2015). Era un edificio con trazas generales coloniales, tal como se concebía entonces, pero se había procurado que todos sus elementos decorativos, exteriores e interiores fueran prehispánicos (Figura 4).

El pabellón de Colombia adoptaba un aire marcadamente ?misional?, con un cuerpo central flanqueado por dos campanarios. Fue diseñado por el arquitecto sevillano José Granados de la Vega (1898-1990), también autor del pabellón indigenista de Guatemala. En el edificio hay que resaltar la decoración del escultor colombiano Rómulo Rozo (1899-1964) con el tema de los dioses chibchas, tolimas y mayas. El pabellón en sí, también era una fusión de arquitectura religiosa española, con elementos esculturales religiosos prehispánicos, era una extraña apuesta que obtuvo gran éxito y reconocimiento (Graciani García, 2014)(Figura 5).

El pabellón de Argentina, de Martín Noel, fue muy elogiado; no podía ser menos, tanto por su diseño como por la popularidad de su autor en la península y en América. Pese a que representaba a su nación, Noel aplicó al diseño del pabellón sus teorías de construir una arquitectura iberoamericana y por ello incluyó elementos argentinos, españoles y de otros países americanos, sobre todo del Perú.
Noel planteó su pabellón basándose en un modelo claustral, por lo característico de este elemento en las arquitecturas coloniales y peninsular. El motivo por el cual incluyó elementos peruanos en un pabellón argentino, estaba estrechamente ligado a su idea sobre la transversalidad del estilo. ?Según Noel y otros teóricos del neocolonial, este estilo virreinal había encontrado sus mejores exponentes en la arquitectura altoperuana y por lo tanto identificaba en ese recorte del pasado un modelo positivo para reproducir? (Gutman, 1995: 153)(Figura 6). Para Margarita Gutman, la forma de trabajar de Noel consistía en ?una recomposición hecha por una yuxtaposición de fragmentos ornamentales, desplegados sobre una base compositiva académica [?] en la que encontraba la estructura básica de la ?buena arquitectura? (Gutman, 1995: 154).

Es importante destacar que la actividad de Noel en España no fue meramente arquitectónica, también desarrolló una labor de proselitismo cultural, que tuvo una gran trascendencia. Como observaba Amparo Graciani: ?[?] quisiéramos dejar patente que la labor de Noel en la Exposición no se limitó a la construcción del pabellón definitivo, [?], sino que el autor acometió toda una misión, convirtiéndose para los españoles en símbolo de un nuevo estilo? (Graciani García, 1995: 161). ?Durante la Exposición, en 1929, Noel fue designado profesor de la Universidad de Sevilla, en cuya Facultad de Letras el primer curso de Historia del Arte Colonial Hispano-Americano, que más tarde repetiría en el Instituto de Investigaciones Históricasar de repetiría en el de la Facultad de Filosofía y Letras de Buenos Aires y en la Universidad de Montevideo? (Graciani García, 1995: 162). A raíz de todo ello se fundó, en Sevilla, la Cátedra de Historia del Arte Colonial Hispano Americano (25 de enero de 1930). ?Noel plantearía entonces taxativamente la creación de ?un Laboratorio de Historia del Arte Hispanoamericano con sede en Sevilla y anejo a la Universidad? que hoy en día continúa manteniendo una relación cultural entre Andalucía y América (Gutiérrez Viñuales, 1995: 203).
4. El neocolonial en la práctica profesional española
Debido a la escasez de estudios sobre el fenómeno de este estilo en España, se van a estudiar las publicaciones profesionales del momento. Analizando sus artículos, se pueden obtener datos objetivos, del interés que el neocolonial despertaba entre los arquitectos y los comitentes en el país. Entre las publicaciones, coetáneas con la producción arquitectónica neocolonial, se pueden destacar, Viviendas, Nuevas Formas, Cortijos y Rascacielos, Re-Co, Arquitectura i Urbanisme y posteriormente A.C.. El estudio, aunque abarcará otras revistas, se basará fundamentalmente en lo publicado en la revista Cortijos y Rascacielos, dirigida por Casto (1930-1935) y Guillermo (1944-1954) Fernández-Shaw, debido a su constancia editorial en el tiempo y mayor difusión, comparada con las otras publicaciones. De la revista Cortijos y Rascacielos, Flores Soto afirmaba:
?[?] Es una publicación nacida en el ámbito de la arquitectura influida por la Escuela de Madrid, donde desde principios de siglos se viene debatiendo sobre lo que debe ser la arquitectura española del momento. De manera que como él mismo (Casto Fernández-Shaw) dice en la editorial del primer número, puede entenderse como un intento de aunar las dos tendencias básicas del debate arquitectónico: tradición y modernidad. Entendidas no como posturas antagónicas, sino como perspectivas diversas entre las que se puede encontrar un justo y adecuado equilibrio? (Flores Soto, 2012: 483).
En los ochenta números de la revista (1930-1954), se publicaron cuarenta y tres proyectos con rasgos de colonial español.27 De hecho, el espacio de tiempo cubierto por la revista (1930-1954), coincide, aproximadamente, con la vida del estilo en el ámbito profesional nacional.
Su primer número se publicó coincidiendo con la Exposición Iberoamericana, y la revista informó desde sus páginas sobre algunos de sus pabellones. El pabellón de Estados Unidos (W. T. Johnson), apareció en el número uno de la revista, 28el pabellón chileno (Figura 7) (Juan Martínez Gutiérrez), en el segundo número; 29 y en su número tercero se publicó el pabellón de la Argentina de (Martín Noel) y con éste se dio fin a las noticias sobre la muestra. Se calificaba al mismo de ?una de las joyas más admirables de la exposición?; y se afirmaba ?El artífice que proyectó esta obra, enamorado de España y de su arte, ha producido en su patria gran número de obras en las que domina la misma idea: la fusión de elementos de arquitectura española con la mano de la obra indígena? (N. A.,1930). Las fachadas se resolvían, frecuentemente, mezclando elementos neobarrocos españoles con hispanoamericanos. Pese a que el estilo tiene una forma característica de trazar las plantas, al estilo norteamericano, las que desarrollaban los proyectos eran normalmentre cuadradas.

Fernando Chueca Goitia en sus ?Invariantes castizos de la arquitectura española?, afirma que en nuestro país existe una tradición de plantas cuadradas. Tras hablar de la sinceridad volumétrica que es característica de toda la arquitectura hispánica, Chueca habla de la planta:
?[?] pasando luego al área bidimensional hemos hecho notar la planitud de toda la arquitectura española [...] siempre bajo la rígida disciplina del ángulo recto, [?] hemos visto la tendencia hacia el cuadrado, lo que nos ha conducido a considerar eso que hemos llamado cuadralidad de la arquitectura española como una de sus características diferenciales? (Chueca Goitia, 1947: 96).
En cuanto a la posible singularidad iberoamericana de ese aspecto ?técnico?, J. Fernández-Santos afirma que Chueca aparta la tesis indigenista como explicación de los rasgos distintivos de la arquitectura virreinal de la peninsular, ya que para él es una característica ?no-estructural?, simplemente ornamental. Para Chueca perviven las características profundas de mudéjar, ?[?] un mudéjar que no es propiamente estilo y cuya perdurabilidad histórica antecede a la conquista árabe de la península ibérica? (Fernández-Santos Ortíz-Iribas, 2012: 246). Chueca posteriormente recopiló en una sola obra sus ?Invariantes castizos españoles? con los ?invariantes de la arquitectura hispanoamericana?, 30 y el ?Manifiesto de la Alhambra?. 31
Se propone escoger proyectos neocoloniales publicados en esta u otras revistas. Los arquitectos autores de los proyectos escogidos, publicados en Cortijos y Rascacielos, manejaban varios estilos, al modo ecléctico, no desdeñando estos proyectos neocoloniales, con otros de diferentes estilos, incluyendo los del academicismo francés o los de la vanguardia europea.
Los proyectos neocoloniales, aquí presentado, se analizarán tanto en su vertiente técnica como ornamental, para comprobar si el arquitecto había asumido el estilo en su totalidad o tan solo estaba haciendo un edificio a la moda. Básicamente el estudio se realizará a través de viviendas unifamiliares, para ello se analizarán parámetros técnicos y formales. Como parámetros técnicos, se reconocen: Planta como resultado de agregaciones funcionales e importancia de la zonificación; estudio minucioso de las circulaciones; multiplicidad de orientaciones; relación más amplia exterior-interior, existencia de patios (ajardinados o no). La base de sus plantas, está en la constitución de ?bloques funcionales? en razón de su uso y que podrían ser autónomos, es decir que están dotados de sus propios aseos y/o elementos de circulación verticales u horizontales.
En cuanto a su carácter formal, se puede destacar: aspecto pintoresco, convivencia de elementos arquitectónicos extraídos indistintamente del barroco peninsular o del americano; acabado blanco; disposición de algún elemento vertical; uso de logias; combinación de cubiertas planas e inclinadas; existencia de pérgolas. Tras lo expuesto, se comprueba que cuando los arquitectos españoles desarrollaban el estilo, la referencia más frecuentemente escogida era la californiana. Quizás la explicación estribe en varias formas comunes de ésta, con algunas arquitecturas populares peninsulares. Los muros hastiales ondulados, las pergolas y los patios cerrados, así como las porchadas, son comunes a las arquitecturas españolas levantinas, notablemente de Andalucía y Valencia. Es una arquitectura más prismática y más parca en ornato que la virreinal, agrupándolo unicamente alrededor de los huecos principales, tal como se hacía en los estados norteamericanos que habían pertenecido a México.
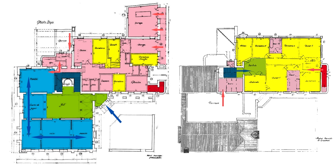
Se escoge como primera pieza de estudio, la casa de campo para el conde de Trespalacios, en Chamartín de la Rosa (Madrid), obra del arquitecto Casto Fernández-Shaw. 32 En el artículo, se identificaba el proyecto como ?Estilo colonial español? y la forma de componer los volúmenes piramidalmente, en torno al centro materializado como un torreón cuadrado cubierto por una cúpula, recuerda sin duda al pabellón chileno de la Exposición Iberoamericana de 1929 (Figura 8). El arquitecto conocía bien el pabellón chileno, por haber tenido que hacerse cargo de su dirección tras del cese de su autor, Juan Martínez Gutiérrez.

El arquitecto aprovechaba la pendiente del terreno para mejorar la zonificación, este extremo hacía que aparecieran distintos niveles, tanto en la planta baja como en la superior. En la zona más alta, de planta baja, se ubicó el ?bloque de día?, compuesto por salón, despacho y estar. Esta zona se conectaba con el comedor que se incluía en la zona servidora, a través del ?cuarto de jugar?. Todos estos espacios del ?bloque de día? estaban directamente conectados con el hall que articulaba las circulaciones en esta zona, que solo se desarrolla en planta baja. El ?bloque servidor?, a una cota más baja, contenía todos los elementos necesarios y adecuados para su función, desde dormitorios a garaje, pasando por espacios de tareas de dormitorio, servicio y almacenamiento. Esta zona disponía de una escalera propia que la comunicaba con la planta superior o ?bloque de noche?.
En la planta superior solo existía edificación sobre la zona servidora de planta baja, estando la zona servida cubierta por una azotea y un tejado de teja árabe. Toda la planta estaba dedicada al ?bloque de noche? y la comunicación entre ambos espacios servidos se producía desde la escalera principal de la casa, ubicada en el hall de planta baja. El bloque estaba compuesto por cinco dormitorios, tres baños, una solana cerrada, un gabinete y un ropero (Figura 9).

En segundo lugar se analiza un proyecto colonial español del arquitecto Antonio Gómez Davó (1890-1971), publicado en la prensa profesional española, 33 y también en la extranjera 34 La casa ?Atalaya?, ubicada en Rocafort (Valencia) (Figura 10). También situada en ladera y al igual que la anterior, cumplía con los parámetros técnicos y estéticos esperados del estilo (jardín claustral, torre, lenguaje clásico...). El edificio cumplió la función de embajada de México durante la Guerra Civil Español (1936-1939), quizá su estilo influyó en ello.

El ?bloque de noche? consistía en un elemento lineal, articulado por un corredor, donde todas las estancias recaían a un gran jardín y el pasillo a un jardín claustral, desde donde se acedía peatonalmente al edificio, y que hacía las veces de rendez-vous. El bloque estaba compuesto por cuatro dormitorios y dos baños.
A continuación y con el mismo ancho de crujía, se disponía el ?bloque de servicio?, dotado con su propia escalera, ya que tenía su zona de noche en la planta superior. Estaba compuesto por office, cocina y garaje y tenía su acceso independiente, desde un patio rodado. Su zona de noche en la planta superior, se componía de tres dormitorios, un aseo, cuarto de estar del servicio y una terraza con pérgola. En esta misma planta se desarrollaban las tareas de planchado y almacenamiento de ropa blanca.
Por último el ?bloque de día? era perpendicular a los anteriores y se colocaba en su intersección, para poder conectar con el office del ?bloque de servicio? y con el vestíbulo, tangente al ?bloque de noche?. Estaba compuesto por vestíbulo, comedor y sala de estar, desde la cual se accedía a una torre-biblioteca. Una de sus fachadas recaía al jardín claustral y la otra al patio rodado, teniendo acceso a ambos (Figura 11).

Para terminar, se propone analizar la vivienda ?Casa campera en Torremolinos? del arquitecto José González Edo (1894-1989), que el editor define como de ?gran sabor andaluz?. 35El aspecto exterior, más sencillo que en los proyectos anteriores, incorporaba también elementos claramente extraídos del repertorio californiano (Figura 12).

La organización de la planta, delata el conocimiento de González Edo de la obra norteamericana de F. Ll. Wright, puesto que reproduce un esquema similar al de la casa Winckler (1938-39) (Figura 13).

El ?bloque de noche?, resuelto como en el proyecto de ?La atalaya?, estaba concebido como una pieza alargada, articulada por un corredor. Estaba compuesto por cuatro dormitorios y dos baños; los dormitorios recayentes a un porche con pérgola y el corredor a un jardín claustral. El ?bloque de día estaba compuesto por el hall, desde el que se accedía a los tres bloques (noche, día y servicio), un gran estar y una zona acotada para comedor, muy permeable visualmente. Desde el estar se salía directamente al jardín claustral.
Por últmio el ?bloque servidor?, a continuación del ?bloque servido? y relacionado con este a través de un office, estaba compuesto por la cocina, aseo de servicio, un lavadero con salida a un patio y aparecía una pequeña escalera que posiblemente subía a la zona de noche de servicio. 36
5. Conclusiones
En la arquitectura occidental del siglo XIX, tras su ruptura con el neoclasicismo, se estaba llevando a cabo la búsqueda de un estilo para el siglo. Todos los arquitectos que lo pretendieron, entendieron como indispensable, el estudio y clasificación de las piezas de toda la historia general de la arquitectura. Del estudio de esos tipos debían, abstrayéndose de sus formas, descubrir unos principios arquitectónicos constitutivos y con ellos generar una nueva arquitectura válida y verdadera. La incapacidad de lograrlo, impulsó a las distintas sociedades a recurrir a estilos históricos que los singularizaban, porque representaban sus momentos nacionales de esplendor. Este estado de las cosas desembocó en un ir y venir en la historia de la arquitectura, para encontrar un estilo histórico útil y provisional, para construir, mientras se inventaba ese estilo del siglo.
Esta búsqueda europea también implicó al continente americano. Tiene especial interés la deriva que tomó la arquitectura norteamericana, buscando una reafirmación identitaria en ese ir y venir de los estilos del pasado. Paradójicamente una sociedad anglosajona y protestante dio un gran impulso a un estilo meridional y católico, cuestión aprovechada por los otros países americanos hispanohablantes y con un pasado cultural español. En estos países la elección del estilo neocolonial se convirtió en una actitud política y social, yendo mucho más allá que en Estados Unidos, prestándosele mucha más atención y otorgándole un significado más trascendente. Hay que recordar que tanto en los países latinoamericanos como en España, durante el siglo XIX, habían estado desarrollando estilos exóticos europeos, sin arraigo vernáculo.
Como había pasado en Europa, con la búsqueda de los estilos en la historia, también en el continente americano existían partidarios de adoptar una u otra arquitectura. El debate fundamental se estableció entre una gran parte de la sociedad, que se identificaba con lo hispano, y otra parte menos numerosa que proponían el arte prehispano o indigenista para resolver su arquitectura moderna y singular.
La coincidencia de la búsqueda identitaria y deseos de regeneración, aunque por distintos motivos, de estos países latinos y España, propició un proyecto cultural muy importante. Este proyecto, aunque pervivió hasta los años sesenta, fue perdiendo fuerza hasta no ser recordado hoy en día. Se superaron los conceptos de arte y se comenzaron a acuñar otros mucho más comprometidos como el de raza, hermandad, fusión, etc.
Emocionalmente este proyecto benefició a una España que quería reafirmarse y que en esta búsqueda se había convertido en referencia obligada para estas naciones americanas.
En esos momentos el estilo neocolonial, en el mundo profesional, era moderno. Durante los años veinte eran habituales los debates entre arquitectos que lo defendían como arquitectura para resolver el problema identitario, y aquellos que defendían la también exótica vanguardia europea para lograrlo. Como por ejemplo en Argentina, donde el debate se efectuaba, en gran medida, desde las páginas de la revista de la Sociedad Central de Arquitectos (S.C.A.). En este debate, el neocolonial se impuso durante los años veinte, comenzando a tomar su lugar la vanguardia, en los años treinta. Es decir se daba carta de modernidad a ambos, al admitir su validez para construir arquitectura moderna. A partir de esta circunstancia, no fueron pocos los arquitectos españoles que practicaron lo que ellos denominaban barroco colonial español. Estudiando los proyectos se percibe que no todos los arquitectos hacían una aplicación integral del estilo. En cuanto a la decoración e inclusión de elementos americanos, todos lo aplicaban, frecuentemente al modo de Noel, es decir combinando elementos coloniales con otros también de base neobarroca pero española.
Lamentablemente nuestra historiografía suele omitir los proyectos construidos con este estilo en España. Sin duda influye, en esta actitud, un rechazo hacia el lenguaje clásico, derivado del eclecticismo, que caracteriza al estilo. Este extremo ha hecho que no se profundice en su estudio y no se hayan tenido en cuenta las disposiciones en planta, ni las secciones que caracterizan a este tipo de arquitectura, adoptadas si el arquitecto había comprendido el estilo en su totalidad. La importancia que, en estos tipos tiene, una correcta zonificación y un buen estudio de circulaciones son básicamente los parámetros que no se analizan. Por ello los análisis arquitectónicos suelen quedarse en la piel del edificio y pocos críticos trascienden a otros extremos, que aunque menos inmediatos son más importantes para una obra de arquitectura. Estos parámetros aseguran el confort de los habitantes del edificio, como las plantas abiertas y extendidas que aseguran una mejor relación interior-exterior, aprovechando las orientaciones adecuadas y mejorando la relación visual con el jardín. Por último hay que destacar la versatilidad social y tipológica del estilo, posiblemente el único de los estilos modernos que fue apto para resolver tanto dotaciones (mercados, ayuntamientos, etc.), programas de viviendas de alto nivel social, así como de viviendas protegidas para núcleos agropecuarios. Esta flexibilidad social y tipologica del estilo, frente a su oponente, la vanguardia centroeuropea se puede razonar desde algunos extremos.
La vanguardia, nacida tras la primera guerra mundial y con la caracteristica singular de carencia de ornato, ostentaba una belleza más abstracta que el neocolonial, estilo dotado de lenguaje clásico. Este extremo ya parece asegurar un éxito más extendido del estilo, por el prestigio social que otorga historicamente éste lenguage.
En los edificios proyectados en vanguardia, las casas de alto estatus social y las viviendas humildes, dificilmente se pueden homogeneizar en su aspecto cualitativo. Debido a su falta de ornamentación, es la calidad de los materiales la que otorga la distinción. Solo hay que pensar en las particiones de onix, ébano, los grandes planos de vidrio o la estrutura cromada o de bronce, para darse cuenta de la imposibilidad de aplicar estos acabados a la vivienda obrera.
La arquitectura neocolonial se resuelve con un enfoscado unificador, decorado con cal. Frecuentemente los solados se realizan con piezas de barro y lo ?caro? se confía a algunos detalles de cerámica. Las piezas que reproducen motivos de orden clásico y que confieren estatus a los edificios, se realizan con moldes y materiales muy baratos, como la escayola o la madera en las pérgolas. La impronta pintoresca y vernácula, determina el uso de estos materiales tradicionales y el dominio de su ejecución por parte de los industriales. Cuando se aborda la resolución de viviendas para clase humilde, si que pueden usarse los mismos materiales que en los edificios de lujo, aunque las piezas sean menos ornamentadas. Por ello el aspecto exterior de los edificios de cualquier estatus social, resuelto con acabados neocoloniales, no es tan diferente como el que expresan piezas, para los mismos usos, diseñadas en el estilo de vanguardia.
Todas estas circunstancias, que si que se tenían en cuenta en su época de desarrollo, deberían analizarse desde la historiografía. Esto ayudaría a completar el relato histórico de la arquitectura del siglo XX, en nuestro país. Así, además de hacer desaparecer una laguna histórica, de grandes dimensiones por su carácter intercontinental, los arquitectos estudiarían dichos proyectos que a nivel distributivo y funcional, no han perdido validez.
Referencias
Aboy, R. (2003). La vivienda social en Buenos Aires en la segunda posguerra (1946-1955). Scripta Nova. Revista electrónica de geografía y ciencias sociales, VII, (146)
Baeschlin, A. (1932). La casa de campo ?Atalaya?. Rocafort. Arquitecto: Antonio Gómez Davó, Valencia. Viviendas, revista del Hogar. (5), pp. 6-8
Baeschlin, A. (1933). Ein modern landhaus in Spanien, Architekt Antonio Gómez-Davó, Valencia. Das Ideal Heim. (4), pp. 143-148
Bonicatto, V. (2010) La materialización de una imagen nacional: Ricardo Rojas en la arquitectura argentina. Boletín de estética, (15), pp. 3-29
Braojos, A. & Graciani, A. (1998). El pabellón de México en la Sevilla de 1929. Evocaciones históricas y artísticas. Sevilla: Universidad de Sevilla. Secretariado de publicaciones
Bueno Fidel, Mª. J. (1987). Arquitectura y nacionalismo. Málaga: Universidad de Málaga
Carranza, L. E. & Luiz, F. (2014). Modern architecture in Latin America: Art, Tecnology and Utopia. Austin: University of Texas Press
Chueca Goitia, F. (1947). Invariantes castizos de la arquitectura española. Madrid: Editorial Dossat S. A.
Chueca Goitia, F. (1966). Invariantes en la arquitectura hispanoamericana. Revista de Occidente. (38, Número extraordinario dedicado a Hispanoamérica), pp. 241-273.
Cremaschi, V. (2014). El estilo neocolonial como modernismo americano. Arquitecturas del Sur, XXII (45), pp. 64-75
De La Fuente, A. (1930). Pabellón de Chile en la Exposición Iberoamericana de Sevilla. Revista Cortijos y Rascacielos, (2), pp. 59-63
Fernández-Santos Ortiz-Iribas, J. (2013). ¿Invariantes arquitectónicos de ultramar? Problematicidad del ?barroco? de la ?trans-España?. Sémata: Ciencias Sociais e Humanidades, (24). Disponible en: http://www.usc.es/revistas/index.php/semata/article/view/1093/1016
Fernández-Shaw Iturralde, C. (1930). Pabellón de los EE. UU, de América del Norte, en la Exposición Ibero-Americana de Sevilla. Revista Cortijos y Rascacielos, (1), pp. 19-22.
Fernández-Shaw Iturralde, C. (1935). Casa de campo para el Sr. Conde de Trespalacios, en Chamartín de la Rosa (Madrid), arquitecto: Casto Fernández-Shaw. Revista Cortijos y Rascacielos, (18), pp. 27-3
Fernández-Shaw Iturralde, C. (1952). Dos obras de González Edo. Casa campera en Torremolinos. Revista Cortijos y Rascacielos, (71), pp. 17-20
Fierro Gossman, R. (1998). La gran corriente ornamental del siglo XX. Una revisión neocolonial en la ciudad de México. México: Universidad Iberoamericana
Flores Soto, J. A. (mayo, 2012). La cuestión de la tradición española en el contexto del nacimiento de Cortijos y rascacielos. Trabajo presentado en las Actas del Congreso Internacional: Las revistas de arquitectura (1900-1975): crónicas, manifiestos, propaganda, de la Escuela Técnica Superior de Arquitectura de la Universidad de Navarra, Pamplona.
Giralt i Casadesús, R. (1920). El barroco y su rehabilitación. Arquitectura, Órgano Oficial de la Sociedad Central de Arquitectos, (22), pp. 42-46
Graciani García, A. (1995). La participación argentina en la Exposición Iberoamericana. La actuación de Martín Noel: un edificio una misión, En: Gutiérrez, R. Gutman, M., Pérez Escolano, V. (eds). El arquitecto Martín Noel. Su tiempo y su obra, Consejería de Cultura. Junta de Andalucía, Sevilla, pp. 161-179
Graciani García, A., Padilla Peñuela, C., & Rivadencira Velasques, R. (2014). 1929, el pabellón de Colombia en la Exposición Iberoamericana de Sevilla. Bogotá: La Bachué
Gutiérrez Viñuales, R. (1995). Martín Noel en el contexto iberoamericano. La lucidez de un precursor. En: El arquitecto Martín Noel. Su tiempo y su obra, pp.18-39. Sevilla: Junta de Andalucía. Consejería de Cultura
Gutiérrez Viñuales, R. (1995). La creación del laboratorio de arte americano en Sevilla?. El arquitecto Martín Noel. Su tiempo y su obra, pp. 201-205. Sevilla: Junta de Andalucía. Consejería de Cultura
Gutiérrez Viñuales, R. (2002). Arquitectura historicista de raíces prehispánicas. Revista Goya, (289-290), pp. 267-286
Gutiérrez Viñuales, R. (2008). Martín Noel, el edificio de la embajada argentina en Lima y la identidad nacional y americana. Anuario Profesional del Cuerpo Permanente del Servicio Exterior de la Nación, pp. 101-106. Buenos Aires: APCESEN. Disponible en: http://www.ugr.es/~rgutierr/PDF1/121.pdf
Gutiérrez Viñuales, R. (2011). Manuel Piqueras Cotolí. Ancestralidad y modernidad en el arte peruano. En: Andalucía y América. Patrimonio artístico, pp. 15-17. Granada: Editorial Atrio
Gutiérrez Viñuales, R. (2016). Identidades españolas en América a través del arte y la arquitectura. Escenarios de entresiglos (1890-1930) y prolongaciones en el tiempo. Historia y política, (36). Disponible en: https://recyt.fecyt.es/index.php/Hyp/article/view/35645/32580
Gutman, M. (1995). El pabellón argentino en la exposición iberoamericana de Sevilla. En: El arquitecto Martín Noel. Su tiempo y su obra, pp. 148-159. Sevilla: Junta de Andalucía. Consejería de Cultura
Lampérez Romea, V. (1922). Arquitectura hispanoamericana en las épocas de la colonización y de los virreinatos. Revista Arquitectura y Construcción, (40), pp. 27-48
López Guzmán, R. & Avilés García, A. Y. (2015). Presencia mexicana en las exposiciones internacionales. El pabellón morisco de Nueva Orleáns (1884). AWRAQ, (2), pp. 59-84
López Otero, M. (mayo, 1926). Una influencia española en la arquitectura norteamericana. Discurso leído en Academia de Bellas Artes de San Fernando de Madrid, Madrid.
Mélida Alinari, A. (octubre, 1899). Causas de la decadencia de la arquitectura y medios para su regeneración. Discurso leído en Academia de Bellas Artes de San Fernando de Madrid, Madrid.
Morales Saro, M.C. (1998). El arte y la España del 98. Identidades y desastres. Trabajo presentado en Arte e identidades culturales. Actas del XII Congreso Nacional del Comité Español de Historia del Arte (CEHA).Universidad de Oviedo, Oviedo.
N. A. (1930). Pabellón de la Argentina en la Exposición Iberoamericana de Sevilla. Revista Cortijos y Rascacielos, (2), [92-95]
Noel, M. (1914). Arquitectura colonial. La Nación, martes 22 de septiembre, p. 7
Noel, M. (1921). Contribución a la historia de la arquitectura hispanoamericana. Buenos Aires: Ed. Peuser
Oliver, R. (1983). Bertram Grosvenor Goodhue. Cambridge: The Massachusetts Institute of Technology
Ortega y Gasset, J. (1920). La voluntad del barroco. Arquitectura, Órgano Oficial de la Sociedad Central de Arquitectos, (21), [33]
Paredes Hernández, C.L. (2015). Arquitectura y discurso simbólico en el Oncenio de Leguía: una aproximación a través de sus edificios oficiales (1919-1924). Diacrónica, 44 (3), pp. 33-47. Disponible en;; https://drive.google.com/file/d/0B5NiXkkApvmmanFvWmVBQVQtQ1k/view
Rodríguez Barberán, F.J. (2006). El jardín de las delicias arquitectónicas: la exposición de Sevilla de 1929 y los pabellones americanos. Apuntes, 2, pp. 284-299
Rucabado, L. & González, A. (1915). Orientaciones para el resurgimiento de una arquitectura nacional. Arquitectura y Construcción, (278), pp. 193-208
Schubert, O. (1924). Historia del Barroco en España. Madrid: Saturnino Calleja
Torres Balbás, L. (1918). Mientras labran los sillares. Arquitectura, Sociedad Central de Arquitectos, (1), pp.31-34
Torres Balbás, L. (1920). Arquitectura española contemporánea. El resurgir del barroco y la ultima obra del arquitecto Yarnoz. Revista Arquitectura, (22), pp. 57-61
Torres Balbás, L. (1922). La moderna arquitectura española en Norteamérica. Revista Arquitectura, (44), pp. 475-477
Velázquez Bosco, R. (1920). El barroquismo en arquitectura. Arquitectura, Órgano Oficial de la Sociedad Central de Arquitectos, (21), p. 36
Villar Movellán, A. (1981). Aspectos teóricos de la arquitectura neobarroca hispánica. Trabajo presentado en las Actas de las I Jornadas de Andalucía y América en el Instituto de estudios onubenses, Huelva. Tomo II. pp. 337-352
Villegas, F. (2015). El pabellón peruano en la Exposición Iberoamericana de Sevilla, (1929). Anales del Museo de América, (23), pp.143-183. Disponible en: https://dialnet.unirioja.es/descarga/articulo/5612876.pdf
Wilson, M. (2012). Julia Morgan, architect of beauty. Layton: Gibbs Smith publisher
Winslow, C.M., Stein, C. S. & Taylor, H. A. (1916). T he architecture and the gardens of the San Diego Exposition; a pictorial survey of the aesthetic features of the Panama California International. San Francisco: Paul Elder
Winter, R. (1997). Introduction: The myth of California expressed in Arts and Crafts theory. En: Towards a simple way of life. The Arts & Crafts architects of California, pp. 1-5. Berkley: A Norfleet Press Book, University of California Press.
Winter, R. (1997). Introduction: The myth of California expressed in Arts and Crafts theory. En: Towards a simple way of life. The Arts & Crafts architects of Californiapp. 1-5. Berkley: A Norfleet Press Book, University of California Press.
Notas