Resumen:
Se trata de investigaciones breves y exploratorias, en su mayoría fortuitas, surgidas de otras muchas investigaciones, heterodoxas en su corte metodológico, que apelan a la reflexión personal más que al rigor indagatorio de carácter positivista. Por ese motivo, al ser la reflexión la tarea principal de este trabajo, se desarrolla sobre miradas hacia el interior del propio investigador y articulista y al asombro que estas miradas le provocan. Un trabajo de reflexión que, si bien parte de documentos primarios y secundarios, es esencialmente una tarea de especulación, razonamiento, análisis y elaboración libres de un material básico, no necesariamente abundante ni extenso. Como en toda investigación, también se recurre a fuentes que, aunque no se mencionan, inciden en la ejecución del artículo, que entretejen un sustrato de imágenes recordadas no siempre con total exactitud. Este trabajo es solo un fragmento, un recorte de una larga historia de miradas con las que se vuelve a interrogar al objeto de estudio. Un recorte que enfoca únicamente algunos aspectos que, por razones de extensión, deben seleccionarse entre otros muchos y sintetizarse.
Palabras clave: arquitectura, equipamiento, espacio interior, paisaje, vivienda.
Abstract:
These are brief and exploratory investigations, mostly fortuitous, arising from many other investigations, heterodox in their methodological nature that appeals to subjective reflection rather than to the rigor of the positivist investigation. For this reason, as reflection is the main task of this work, it is developed on the inward gazes of the researcher and writer himself, and the astonishment that these gazes provoke in him. A work of reflection, that although it starts from primary and secondary documents, is developed as a task of speculation, reasoning, analysis and free elaboration of a basic material, it is not necessary abundant or extensive. As in all researchs, sources are also used that, although they are not mentioned, affect the execution of the article, sources that interweave a substrate of remembered images, not always with total accuracy. This work is only a fragment, a clipping of a long history of views with which the object of study is once again questioned and investigated in some way. A clipping that focuses only on some aspects that for reasons of limited length of the article must be selected from many others and synthesized.
Keywords: architecture, equipment, interior space, landscape, dwelling.
Artículos
Serendipia. Miradas al interior

Recepción: 31 Marzo 2021
Aprobación: 20 Mayo 2021


Siempre me pregunté qué miran los arquitectos desde el interior de sus casas.
¿Observa Philip Johnson crecer los árboles de las lejanas praderas de New Canaan? ¿Miran Ida Lillemor y Halldor Gunnløgsson las quietas aguas del Estrecho de Sund mientras recuerdan el mar de arena de Ryōan–ji? ¿Abandona Lina Bo Bardi su mirada en los bosques de Morumbí que avanza en torno a su Casa de Cristal? ¿Le Corbusier divisa el azul Mediterráneo desde Le Cabanon, imaginando tierras lejanas donde difundir sus teorías y su arquitectura? ¿Imagina Amancio Williams nuevas arquitecturas desde la ventana de su estudio rodeado de los jardines de Belgrano? ¿Y acaso Antonio Bonet intercambia vistas entre alguna calle de Barcelona y la bahía de Portezuelo, soñando con las calas de la costa catalana? Todos observan el exterior, como si el interior ya no les proporcionara regocijo y los aprisionara, como si fuese necesario salir y conquistar ese ámbito que se muestra lejano y ajeno.
Cinco arquitectos miran, desde el interior de sus casas, al exterior. ¿Qué buscan en ese exterior, en esa pradera, en esos bosques, en ese mar, en esas sierras? Tal vez, insatisfechos de su obra, buscan una nueva casa, un nuevo hogar. ¿Pero miran realmente al exterior o sus miradas se vuelven, apenas nacen y se proyectan, hacia el interior, hacia su propio interior? No lo podemos saber desde aquí, ni podemos ya preguntarles, pero yo creo que no miran, o miran pero no ven, o no ven lo que parece que miran. Creo que reflexionan. Entonces no miran al exterior, reflexionan. Miran hacia su interior porque reflexionar es mirar hacia nuestros propios interiores.
«Miradas al interior» procura recoger, mediante sucesivas reflexiones, una serie de observaciones dispares, de muy diversa índole y origen, que surgen en los recorridos de las investigaciones sobre temas determinados a priori.
«Miradas al interior» constituye un puñado de pequeños descubrimientos, serendipias o hallazgos casuales que podrían dar origen a otras muchas investigaciones y a otras tantas búsquedas.
Se trata de investigaciones breves y exploratorias, consecuencia de otras investigaciones, heterodoxas en su corte metodológico, que apelan a la reflexión más que al rigor indagatorio de carácter positivista.
Por ese motivo, al ser la reflexión la tarea principal de este trabajo, se desarrolla sobre miradas hacia el interior del propio investigador (y articulista) y al asombro que estas miradas le provocan. Es un trabajo de reflexión que, si bien parte de documentos primarios y secundarios, se desenvuelve esencialmente como una tarea de especulación, razonamiento, análisis y elaboración libres de un material básico, no necesariamente abundante ni extenso.
Este trabajo es solo un fragmento, un recorte de una larga historia de miradas con las que se vuelve a indagar el objeto de estudio después de haberlo recorrido. Un recorte enfocado en algunos aspectos que, por razones de extensión del artículo, deben seleccionarse, de entre otros muchos, y sintetizarse.
Durante los procesos de investigación surgen, con frecuencia, estas pequeñas revelaciones que, como cantos de sirena, nos seducen y nos desvían, nos hacen encallar en lugares desconocidos y muchas veces peligrosos de los que solo una pleamar podría sacarnos y reconducirnos por el canal debido.
Pero esos arrecifes ocultos, que solo se revelan por azar, ¿no constituyen acaso el corazón de una investigación? Los dejamos pasar, así no más, sin reparar en ellos como en un don gratuito que nos da la oportunidad, el azar, el sino.
«Miradas al interior» intenta rescatar esos encallamientos en los que nos detenemos a reflexionar sorprendidos por un descubrimiento, como la liebre de Bachelard,[i] maravillados por una coincidencia que solo nuestra mente ata (con hilos invisibles) como consecuencia de procesos de comparación, significación y resignificación a veces inexplicables.
«Miradas al interior» procura recobrar esos episodios intrascendentes que se nos escapan y que con obstinación nos persiguen en nuestra mente, nos desarman, quiebran el andamiaje que nos construimos hasta crear otro nuevo, imponiéndose y conduciéndonos por otros caminos diferentes de los que nos propusimos.
«Miradas al interior» son, así, miradas azarosas (casuales, furtivas, peligrosas) pero miradas al fin que pueden generar otras miradas (propias o ajenas), desde otros ángulos, con otros encuadres e intenciones.
No se trata de invenciones, de creaciones en el sentido divino, sino de descubrimientos. ¿Qué es acaso la investigación sino el encontrar lo perdido, descubrir lo oculto, lo que ya existe y que por algún motivo estaba escondido?
Se dice comúnmente que el investigador hace visible lo invisible. Lo invisible no es solo lo oculto, lo que no se ve, puede ser también algo cuya apariencia es muy visible pero en lo que nuestra mirada distraída no se detiene lo suficiente como para poder advertir. En ese caso, el investigador ayuda a redirigir esa mirada, a detenerla el tiempo suficiente, y lo hace a través de diferentes recursos. El discurso escrito, la fotografía, el dibujo, los esquemas ayudan en esa orientación de la mirada hacia donde pretendemos posar la atención, nuestra y ajena, y a descubrir lo que estaba esperando ser descubierto.
La piedra que oculta el tesoro se nos presenta ante nuestros ojos de mil formas diferentes. Solo basta que un destello nos deslumbre y nos seduzca, o simplemente nos haga llamar la atención. La palabra de un texto, la imagen de una foto, el comentario de alguien durante una conversación informal bastan para que los artilugios de nuestro pensamiento los vinculen con evocaciones de cosas olvidadas —vistas o leídas no se sabe dónde ni cuándo— y las traigan nuevamente a nuestro presente.
Así pues, los mensajes de las imágenes —incluyo en este término tanto las imágenes reales como las mentales, pues del vínculo entre ellas se trata— adquieren categorías diferentes que deben presentarse ordenadamente, a modo de causa y efecto, para producir su fruto.
En una primera instancia, solo percibimos la apariencia, lo puramente visual, lo que se hace explícito, aquello que en efecto se muestra y de lo que hacemos una lectura literal.
En una segunda instancia, fundamental y decisiva, la imagen nos envía un mensaje diferente, complejo, es lo connotado o simbólico. Este mensaje simbólico, vinculante, abre la imagen única en una multiplicidad de imágenes, la despliega en tantas facetas posibles según las capacidades de quien la reciba, pues conlleva una serie de significados culturales asociados al mensaje revelado. Son las diversas lecturas que, con distintos niveles de profundidad, se pueden hacer de los elementos denotados. Esta instancia podría equipararse a levantar la piedra que oculta, a atrapar lo que está detrás (o debajo), a reconocerlo como un descubrimiento, como una constatación que se produce en el momento mismo en que acuden todos los elementos vinculados.
En este sentido, los modos y los medios a través de los cuales se nos presenta la imagen pueden llegar a ser decisivos en la aprehensión de tal o cual fenómeno, cualidad o rasgo de una o más obras. A veces se requiere de un detenerse, de un tomarse más tiempo para ir más profundo; a veces es necesario realizar ciertas operaciones, ciertos movimientos que, como las manos diestras de un mago, terminan por revelarnos lo que no veíamos.
En el cielo vemos todas las estrellas que nuestra visión nos permite ver, pero basta que alguien nos diga que ese conjunto de estrellas forma tal o cual constelación para que veamos a un guerrero o a un cazador blandiendo su espada y protegiéndose con su escudo. Hay obras que generan connotaciones sorprendentes que solo pueden ser explicadas por el espíritu de una época, es decir, por las simples coincidencias de paradigmas.[ii]


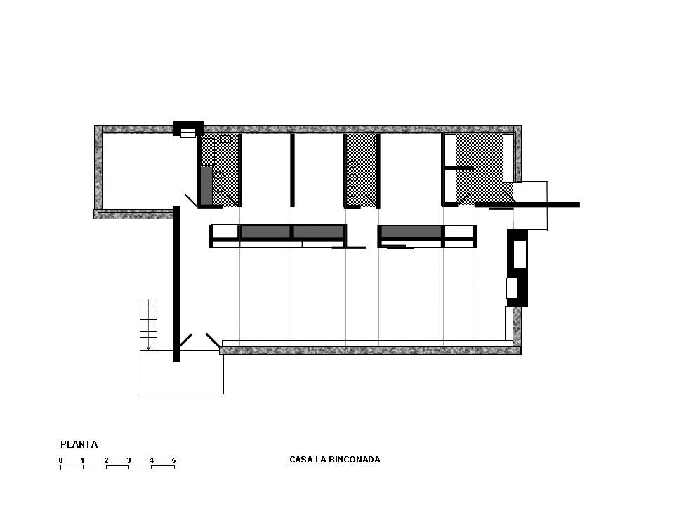
La Casa sobre el Arroyo en Mar del Plata, Argentina, conocida comúnmente como la Casa del Puente, es una fuente de ideas y de referentes, una obra indudablemente inspiradora y única en muchos aspectos. En su conjunto y en sus detalles nos remite a obras dispares que constituyen entre todas constelaciones particulares. Una de esas constelaciones particulares la conforman La Casa Farnsworth (1946–1951) de Ludwig Mies van der Rohe; la Casa de Cristal (1949) de Philip Johnson, ambas en Estados Unidos; la casa propia del arquitecto danés Halldor Gunnløgsson (1958) en Rungsted Kyst, Dinamarca; y muy especialmente La Rinconada (1945–1948) del arquitecto español Antonio Bonet Castellana, en Uruguay, todas ellas contemporáneas o posteriores en el tiempo a la Casa sobre el Arroyo.[iii] Además de ser viviendas unifamiliares, poseen la particularidad de su forma, la distribución de sus espacios específicos y su especial equipamiento, a la vez que el modo en que este contribuye a calificar los espacios interiores de lo que, en principio, podría describirse como un contenedor prismático neutro. (Figs. 1-6)

En todos los casos ejemplificados, la forma predominante de la vivienda es la de un prisma recto de diferentes proporciones según cada una de las casas.
Ese espacio, en principio indeterminado, se califica por medio de diferentes elementos, recursos que pertenecen a distintas escalas y calidades de la arquitectura. En todos ellos existe un componente del equipamiento, llamémosle dominante, que sirve para caracterizarlo, calificarlo y otorgarle distintas funciones en cuanto a sus espacios específicos.
En todos los casos, y en menor o mayor grado, la función del equipamiento dominante se ve apoyada o reforzada por otro equipamiento secundario o complementario que termina de definir las distintas funciones de los espacios específicos que albergan las diversas actividades. Por lo general, ese equipamiento secundario está compuesto de piezas móviles, mientras que el equipamiento dominante es una única pieza fija.
El equipamiento dominante o mueble principal tiene la capacidad de calificar el espacio en términos generales (en zona íntima y zona de relación, por ejemplo) y determinar la ubicación de los espacios específicos. En ese sentido, su localización con respecto a los límites del espacio prismático interior, que en un principio y sin equipamiento alguno resulta más o menos indeterminado, es estratégica. Esta ubicación estratégica tiene por primer objetivo proporcionar las dimensiones de los distintos espacios específicos según sus funciones y las actividades que albergarán. (Figs. 7-11)





Analizados los contenidos del mueble dominante, notamos que estos son de diferente índole. En la Casa Farnsworth, el mueble contiene los baños, el equipamiento de la cocina y la estufa de leña, además de un sector de abastecimiento y desagües; mientras que, en la Casa de Cristal, el mueble dominante, que es de forma cilíndrica, agrupa el baño y la estufa, y la cocina se separa como espacio a partir de un mueble isla bajo. Un placard independiente se ubica tangencialmente al cilindro para definir el espacio del dormitorio, otorgándole mayor intimidad al ocultarlo de la zona del acceso.
En la casa del arquitecto Halldor Gunnløgsson, el mueble contenedor comprende los baños, el espacio cocina y su equipamiento completo, los depósitos para la ropa y una biblioteca. En este caso, la estufa de leña se separa del mueble dominante para calificar una zona de escritorio, próxima al acceso, y una zona de living en la parte opuesta. Contribuye a proteger al living de la visión oblicua desde el acceso principal a la casa, otorga a la zona de relación un cierto grado de intimidad sin que el espacio pierda continuidad y fluidez y provoca la aparición de un vestíbulo–recibidor muy abierto que el arquitecto transformó en su propio estudio.
El grado de esencialidad del mueble principal depende de la capacidad para definir por sí solo el carácter de los espacios específicos en función de los objetos que contiene y su proyección en el espacio.
Tal como se mencionó, resulta diferente la capacidad del mueble principal de la Casa Farnsworth del de las casas La Rinconada o la Casa del Puente, o incluso la propia Casa de Cristal de Johnson, en los que son utilizados otros recursos (además de la ubicación del mueble dominante) para calificar los espacios, lo que le otorga también mayor complejidad a estas viviendas.
En la casa proyectada por Mies, la calidad del mueble principal y especialmente su ubicación en el interior del contenedor prismático alcanzan para calificar la diversidad de espacios específicos y para solucionar todos los problemas del equipamiento fijo. Si bien existe un placard que cierra aún más el ámbito del dormitorio, la ubicación del acceso en el extremo opuesto del prisma contribuye a mantener la intimidad del dormitorio ubicado allí.
En La Rinconada o en la Casa sobre el Arroyo, el ámbito cocina no se genera exclusivamente por el equipamiento fijo sino que este se ve reforzado por tabiques que lo rodean. Del mismo modo sucede con los baños. Estos espacios de servicio se disponen en un ámbito propio, habitaciones destinadas a funcionar como tales: baños y cocina no se encuentran contenidos en un mueble sino en una habitación específica. En estos sectores, el espacio pierde continuidad y fluidez debido a su compartimentación.
En el caso de La Rinconada, el hogar se separa para generar un ámbito propio en uno de los extremos del prisma sobre el testero sur, opuesto al acceso, y los baños y la cocina también conforman ámbitos calificados no solo por el equipamiento sino por la disposición de tabiques.
Hay que destacar que tanto en la Casa Farnsworth como en la Casa de Cristal hay un solo dormitorio, hecho que simplifica el problema para mantener la intimidad interna de la casa y obtener a la vez un espacio más integrado.
En todos los ejemplos, una de las funciones esenciales del mueble contenedor dominante parecería ser la de camuflar la diversidad de locales y funciones que contiene, de manera de otorgar al conjunto cierta homogeneidad material y visual que contribuya a simplificar la imagen, a minimizar y ordenar los componentes del paisaje interior de la vivienda, reduciéndolos a muy pocos elementos jerarquizados.[iv]
El tratamiento material del perímetro del prisma contenedor, límite entre el espacio exterior e interior de la casa, resulta, en todos los casos, producto de diferentes criterios y posibilidades de implantación. Mientras que en la Casa Farnsworth y la Casa de Cristal, al igual que en la Casa sobre el Arroyo, la transparencia del vidrio está predeterminada en todo el perímetro vertical del prisma, sin modulación alguna sea cual sea la orientación de sus caras, o las tensiones provocadas por el acceso o las vistas, o incluso por la función de los espacios interiores, en la casa Gunnløgsson los límites laterales del terreno (medianeras), relativamente estrechos, obligan a tratar las caras más cortas como testeros opacos. Sin embargo, podría pensarse que, al disponer todos los componentes del equipamiento fijo en una isla interior, la vocación de la casa es la de tener un perímetro totalmente vidriado si se lo hubiese permitido el predio, como sí ocurre en los tres ejemplos anteriores, insertos en un lote menos riguroso o exigido desde el punto de vista de las dimensiones y de la proporción de su forma geométrica.
En cambio, en La Rinconada, ubicada en un predio que aparentemente ofrece gran libertad de resolución, su autor califica el perímetro según las tensiones del lugar y del espacio exterior —orientación, topografía, vistas predominantes, accesos y linderos—, y de las tensiones del interior provocadas por las actividades que se desarrollan en los distintos espacios específicos. Este último aspecto hace que en esta obra la relación interior–exterior manifieste un ritmo diferente al de las anteriores. En este sentido, el espacio de estar, desarrollado en una de las mitades del prisma contenedor, se expresa como balcón hacia el paisaje, hacia la cadena de cerros y la bahía de Portezuelo con su playa y los pinares. Los dormitorios y los servicios (baños y cocina), en la otra mitad del prisma, se orientan hacia el sentido opuesto, hacia el este y la ladera de la Punta Ballena, donde las vistas están limitadas por el propio terreno que desciende. También se limita la apertura del ventanal hacia el sur (el extremo de Punta Ballena) en la pared donde se encuentra la estufa de leña, seguramente por razones de acondicionamiento térmico y para preservar la intimidad del estar de las vistas desde las casas vecinas.
Interiormente, existe una diferencia sustancial en cuanto a las posibilidades de recorridos. Mientras que en las casas Farnsworth y de Cristal se podría recorrer el perímetro interior sin ningún tipo de interrupciones dado que ningún tabique toca ese perímetro vidriado, en las casas de La Rinconada y del Puente el recorrido se vería interrumpido por una serie de tabiques perpendiculares al plano de fachada. Estos tabiques son los que conforman los dormitorios y los servicios en ambas casas.
Accesos
A su manera, cada una de las casas plantea un recorrido de acceso que constituye un verdadero ritual de aproximación al interior y a la privacidad, tan importante en una vivienda.
En tanto que a la Casa de Cristal se accede directamente desde el exterior, sin otra mediación que una plataforma escalonada que contiene en sí todo el peso semántico del pasaje de lo terrenal y salvaje del espacio exterior a la domesticidad cultivada del interior, a la Casa Farnsworth, cuyo nivel interior está a una altura bastante mayor, se ingresa por una plataforma intermedia que conduce a un porche desde el que se accede al espacio interior después de realizar un giro de 90 grados. En este caso, el ritual se vale de otros recursos además del cambio de niveles, tales como el espacio intermedio exterior cubierto y, muy especialmente, del cambio de dirección del recorrido.
En La Rinconada existe también un ascenso, una escalera paralela al testero norte del prisma conduce al nivel principal de la vivienda, elevado un nivel del suelo a una altura notoriamente mayor que la de los ejemplos anteriores. En este caso, la persona que accede gira 180 grados para volver sobre sus pasos y acceder al interior de la vivienda, en el nivel superior. Antes de girar, al llegar al descanso de la escalera, puede observar el paisaje como desde un balcón exterior, un anticipo del mismo paisaje que observará desde dentro de la casa, enmarcado por los vanos y los objetos del living–comedor.
También en esta casa se recurre al cambio de niveles (extremo, si se considera que se supera el metro y medio), y al giro, igualmente extremo, pues se vuelve sobre la misma dirección pero en sentido contrario. En este caso, se recurre a un tercer elemento que jalona el recorrido de acceso: la vista espectacular de la bahía de Portezuelo, las sierras lejanas de las Ánimas y el mar azul. Esta vista, insinuada, no mostrada antes por permanecer oculta por la vegetación baja de matorrales de acacias, detiene necesariamente al visitante y lo desconecta del mundo real para introducirlo en un mundo ideal que lo predispone a valorar la casa como balcón protegido y privilegiado hacia ese paisaje que se transforma en idílico y abstracto.
El acceso en la Casa sobre el Arroyo se efectúa por dos flancos simétricos, dos escaleras que recorren el arco que sirve de apoyo y que, a modo de puente, salvan las dos orillas opuestas del arroyo sobre el que se extiende la construcción. Las escaleras, además de permitir salvar el desnivel que separa el suelo con el primer piso, funcionan como vestíbulo, como escotilla que transporta al visitante a un mundo encantado (siempre pasar del exterior al interior tiene algo de mágico), a un mirador rodeado de un denso bosque verde, a un observatorio de la naturaleza. El recorrido de ambas escaleras, si se hace de modo continuo, permite al caminante entrar y salir, subir y bajar, tocar apenas el espacio interior y volver a salir para desembarcar en la orilla opuesta del arroyo. Es como un juego, y sin conocer las verdaderas intenciones del autor, el juego está presente detrás del rigor y la precisión con que fuera proyectada y construida esta vivienda.
A este respecto, ambas casas, tanto La Rinconada como la Casa sobre el Arroyo, contienen la esencia, los arquetipos del habitar: la caverna y la casa sobre los árboles. Ese modo de acceder, desde abajo, como desde las entrañas de la tierra, desde un subsuelo, sugiere el acceso a una gruta. Pero el ascenso inmediato que ambas casas exigen, por medio de las escaleras para alcanzar el piano nobile, las transforma en casas sobre los árboles, verdaderos miradores dispuestos en altura que celebran aquel concepto que afirma que «lo divino se manifiesta en lo natural». Asimismo, ambas proponen, por la propia conformación y encuadre del medio exterior, una visión abstracta de la naturaleza. (Figs. 12-16)

Cálculo de la altura de antepecho Casa sobre el Arroyo
Fuente: https://www.youtube.com/watch?v=vt76gxsTXBY




El paralelismo entre ambas viviendas es notable. El tratamiento de los grandes ventanales, que transforman las viviendas en verdaderos observatorios de la naturaleza, es similar aunque no idéntico. Como ya se expresara, mientras que en la Casa sobre el Arroyo, tal vez como tributo a la fenêtre á longuer de Le Corbusier, el gran ventanal recorre la totalidad del perímetro del prisma contenedor, en La Rinconada, el ventanal corrido se interrumpe en los lados más cortos del prisma contenedor, en la pared sur, donde se ubica la estufa de leña y en la pared norte que flanquea el acceso panorámico a la vivienda, no sin antes doblar el ángulo y otorgarle al ventanal la imagen de un enorme bay window.
Si se retoma el análisis de la gran ventana, otra diferencia fundamental en el tratamiento radica en las alturas de los antepechos de ambos vanos.
Mientras que en La Rinconada, la altura del antepecho del gran ventanal del estar–comedor es de aproximadamente 68 cm, el antepecho de los ventanales de La Casa sobre el Arroyo es de 98 cm aproximadamente.[v]
No obstante, una nueva similitud aparece en el tratamiento de ambos vanos, el alféizar de las ventanas se ensancha hacia adentro al igual que en la Villa Savoye.
En este sentido, una nueva constelación de referentes podría suponerse si se tiene en cuenta este detalle no menor del tratamiento del vano principal de ambas obras que procura ensanchar virtualmente el espesor del muro entre los espacios interiores y el exterior.
En las fotos de las dos casas aparecen, entre otros objetos del equipamiento, sillones BKF, símbolo de la arquitectura y el equipamiento modernos, muy utilizado en las décadas de los 40, 50 y 60, y en cuyo proyecto intervino el propio Antonio Bonet.
Si se considera la altura promedio de un sillón BKF y una persona sentada en él, la visión del paisaje exterior que puede llegar a tener esa persona a través del ventanal es diferente en ambas casas (además del carácter marino de uno y boscoso del otro).
En La Rinconada, una persona sentada en un sillón BKF —con una altura de su horizonte a 100 cm aproximadamente— vería el horizonte marino y parte del cielo y el mar. A medida que se aproxime al ventanal verá más cielo y más mar, pero en proporciones distintas, según lo muestran los dibujos. La porción que verá de cielo aumentará en progresión geométrica, mientras que la que verá de mar lo hará en progresión aritmética.
En la Casa sobre el Arroyo, una persona sentada en un sillón BKF, con su horizonte a 100 cm de altura, no verá el suelo aunque se aproxime al alféizar del ventanal, es decir, no vería el horizonte aun en la situación en la que la casa estuviese en un campo despejado de vegetación, pues su horizonte coincide con el borde superior del alféizar. Solo verá los troncos de los árboles, sus follajes y el cielo a través de ellos, pero nunca el horizonte mientras permanezca sentada. De este modo, se cancela todo posible movimiento que no sea el que produce el viento en el follaje de los árboles, situación que permite el aislamiento absoluto. Se tendrá la sensación de que la casa flota en el bosque como si estuviera suspendida de los árboles, o del cielo.
En ambas casas, el antepecho del ventanal, cuyo grosor se aumenta por efecto de la repisa que funciona como prolongación y ensanchamiento del alféizar hacia el interior, cumple la función de no permitir el total acercamiento del observador al borde inferior del vano y de cancelar los accidentes paisajísticos cercanos que distraerían la visión del paisaje lejano, el mar y el cielo en un caso, y el bosque y el cielo en el otro. Este recurso le devuelve a quien observa un paisaje lejano e ideal, incontaminado, ajeno a las vicisitudes terrenas, a la vez que sugiere que el espacio interior levita, flota en la atmósfera, lo que refuerza, tal como se expresara, la visión abstracta de la naturaleza. (Figs 17 y 18)


Miradas al interior
Si volvemos nuestra mirada hacia el interior de las viviendas podremos comprobar similitudes en muchos aspectos.
Crujías
En primer lugar, ambas casas presentan dos crujías bien marcadas y diferentes por su organización espacial y por su función, una destinada a espacios de estar y recepción y otra a dormitorios y servicios (baños y cocinas). Ambas se disponen en el sentido longitudinal del contenedor que constituye la vivienda y se definen del mismo modo, mediante un mueble tipo placard, prismático, que contiene objetos de distinta índole, el contenedor dominante.
En la Casa sobre el Arroyo, la presencia y función calificatoria del mueble está reforzada por las dos escaleras que conducen al piano nobile dispuestas según el eje longitudinal de la vivienda, paralelas y tangentes al mueble contenedor dominante.
La crujía destinada a dormitorios y servicios se completa en uno de sus extremos por un espacio destinado a escritorio y estudio, a la derecha, en la Casa sobre el Arroyo y en el extremo izquierdo, en La Rinconada. En este último caso, el equipamiento dibujado en las plantas analizadas es sumamente austero: una mesa y una silla, mientras que en la Casa sobre el Arroyo el equipamiento típico de un escritorio (mesa y sillón) se completa con un piano de cola que nos remite a la calidad de músico de su propietario, el compositor Alberto Williams, padre del arquitecto Amancio Williams. El otro extremo de la crujía presenta una habitación que podría interpretarse como ampliación del dormitorio matrimonial, un vestidor o, por sus dimensiones, un estar anexo al dormitorio que, junto con el baño, completa una verdadera suite.
En ambas casas, el mueble fijo que limita las dos zonas, la de recepción y la íntima de los dormitorios y servicios, funciona como una frontera de intercambio. A través de ella se transita, se pasa de una zona a otra, y de ella se nutren ambos sectores.
La secuencia CBD
Otro aspecto que resulta similar en ambas casas es el ritmo que marcan los dormitorios, los baños y la cocina, componentes de una de las crujías.
La secuencia común a ambas casas es: cocina (C), dormitorio (D), baño (B), dormitorio (D), dormitorio (D), baño (B). Es decir: C–D–B–D–D–B.
También hay algunas diferencias, especialmente en cuanto a las proporciones y a las dimensiones.
Si se toma la anchura del baño como módulo menor, se puede comprobar que la cocina tiene una anchura de dos módulos en ambas casas. En la Casa sobre el Arroyo, el ancho de cada dormitorio equivale a dos módulos, mientras que en La Rinconada solo el ancho de un dormitorio equivale a dos módulos, mientras que los otros dos tienen un módulo y medio de ancho.
De todos modos, más allá de estas diferencias, pareciera que el módulo básico, patrón de medida y de composición de los espacios específicos, es el correspondiente al ancho del baño.
Trama circulatoria
En cuanto a la trama circulatoria, tanto en La Rinconada como en la Casa sobre el Arroyo se puede circular sin interrupciones alrededor del mueble longitudinal que define las dos crujías y pasar alternativamente de la zona de relación a la zona íntima. En la Casa sobre el Arroyo existe una diferencia notable debido a que los dos dormitorios yuxtapuestos llegan hasta una de las caras longitudinales del mueble, interrumpiendo alternativamente la circulación. No obstante, la puerta entre los dos dormitorios permite el paso, en servidumbre, a través del dormitorio matrimonial, y facilita el recorrido alrededor del mueble principal. Se genera una conexión especial por medio del mueble de acceso al dormitorio matrimonial y al espacio que remata la crujía para el caso en que esa puerta permanezca cerrada. En el caso de que se busque mayor independencia y la puerta permanezca cerrada, el dormitorio matrimonial, el baño, la habitación anexa y el espacio de la estufa conforman un verdadero apartamento para el matrimonio.
Aunque en La Rinconada el acceso está dispuesto en uno de los extremos del prisma contenedor, es posible acceder a la zona íntima sin necesidad de atravesar el estar–comedor. Lo mismo sucede en la Casa sobre el Arroyo, a la que se accede en un punto central, en uno de los extremos de las escaleras. Aunque la circulación alrededor del mueble longitudinal se vea interrumpida alternativamente, el acceso a una zona central del contenedor en la que rematan las dos escaleras y la apertura mediante la interrupción del mueble longitudinal permiten alcanzar la zona íntima sin necesidad de atravesar la crujía destinada a estar y recepción, excepto a los integrantes del matrimonio que deben atravesar la zona de estar para llegar a la zona íntima específica para ellos en el caso de mantener cerrada la puerta que conecta los dos dormitorios.
La posibilidad de rodear el mueble longitudinal facilita el acceso a todo su perímetro. En La Rinconada, el mueble tiene doble flanco y sirve tanto a la crujía íntima como a la de recepción. En cambio, en la Casa sobre el Arroyo la existencia de las dos escaleras adosadas al mueble inhabilita la posibilidad de acceso desde el estar a uno de los lados del mueble central. Este se abre exclusivamente hacia la zona de dormitorios, baños y cocina, es decir, hacia la crujía íntima.
Si bien en la bibliografía y documentos consultados no se encontró alguna mención de un posible conocimiento de la Casa sobre el Arroyo de Amancio Williams por parte de Antonio Bonet, asombra la similitud de las conformaciones espaciales de La Rinconada y la Casa sobre el Arroyo.
1) El manejo del mismo recurso para zonificar y calificar el espacio indeterminado de un prisma recto a través de un mueble contenedor multifuncional dispuesto en la misma dirección que la mediana mayor del rectángulo que constituye la planta de la vivienda.
2) La disposición de los mismos espacios específicos en cada una de las dos zonas definidas por el mueble contenedor: estar–comedor en una de ellas y dormitorios, baños y cocina en la otra, con dos espacios a modo de estudio en los extremos.
3) La secuencia de los espacios específicos constituida por dormitorios y servicios,
4) La adopción del ancho del baño como módulo básico para dimensionar y proporcionar la vivienda.
5) Viviendas posteriores y francamente posteriores, como la del arquitecto Halldor Gunnløgsson, utilizan el mismo recurso del mueble contenedor fijo para calificar y organizar sus espacios interiores.
Después de haber escrito el contenido de este artículo y no satisfecho por la increíble similitud entre varios aspectos de la Casa sobre el Arroyo y La Rinconada, continué una investigación que hubiese querido dejar abierta a la curiosidad y labor de otros investigadores sobre la posible relación profesional entre los arquitectos Amancio Williams y Antonio Bonet, y el mencionado conocimiento por parte de Bonet de la Casa sobre el Arroyo.
Finalmente, en el Diccionario de Arquitectura en la Argentina. Estilos obras biografías instituciones ciudades, citado en las Referencias bibliográficas, encontré un indicio que verifiqué en la página web[vi] y que paso a transcribir parcialmente:
En 1942 fue creada la Organización de la Vivienda Integral en la República Argentina (OVRA), presidida por Ernesto Santamarina, siendo su Secretario General el Arq. Antonio Bonet. Amancio Williams formó parte junto a Horacio Caminos, Ricardo Rivas, Eduardo Sacriste e Hilario Zalba del grupo de arquitectos colaboradores. El fruto más importante de esta organización fue el estudio de viviendas para una pequeña zona de Buenos Aires conocida como Casa Amarilla, en el Barrio sur, antigua estación del ferrocarril. Dejando el suelo libre este estudio obtiene una densidad de 700 habitantes por hectárea, siendo la densidad del barrio en ese momento de 130 habitantes por hectárea. (…)
Presenta un gran interés el corte vertical de los blocs en los que cada circulación sirve a cinco pisos. Las circulaciones a las que se accede por escaleras mecánicas tienen el carácter de amplias veredas. (Estudio para viviendas en Casa Amarilla. 1942–1943 Coautores Arqs. Antonio Bonet, Horacio Caminos, Ricardo Rivas, Eduardo Sacriste, Hilario Zalba.)











Cálculo de la altura de antepecho Casa sobre el Arroyo
Fuente: https://www.youtube.com/watch?v=vt76gxsTXBY




