Resumen: Desde que comenzaran a aparecer hace ya más de veinte años toda una serie de investigaciones sobre las denominadas escrituras expuestas hasta nuestros días, especialmente aquellas sobre las epigrafías populares, los estudios sobre ciertas manifestaciones plasmadas sobre los muros han permitido definir una práctica muy común, a veces enormemente repetitiva, como ocurre con ciertos símbolos de naturaleza religiosa que se plasman sobre la arquitectura civil y religiosa. No obstante, aun a pesar de que contamos a nuestra disposición un importante corpus, no abundan las interpretaciones de naturaleza antropológica que permitan situar en unas coordenadas específicas las intenciones por medio de las cuales se representaron ciertas escrituras y símbolos en unos contextos muy determinados. A través del estudio de tres ejemplos particulares de la arquitectura religiosa de la comunidad de Castilla y León (España), tratamos de abordar la intencionalidad de dichas manifestaciones y arrojar luz acerca de un fenómeno, muy generalizado en el orbe cristiano, poco estudiado hasta la fecha.
Palabras clave: Grafitos, escrituras expuestas, ritualidad, cruces, religiosidad popular.
Abstract: Since a whole series of investigations began to appear more than twenty years ago on the so-called scriptures on display up to the present day, especially those on popular epigraphs, studies on certain manifestations captured on walls have made it possible to define a very common practice, times enormously repetitive, as occurs with certain symbols of a religious nature embodied on civil and religious architecture. However, even though we have an important corpus at our disposal, there are not many interpretations of an anthropological nature that allow us to place in specific coordinates the intentions through which certain writings and symbols were shaped in very specific contexts. Through the study of three particular examples of the religious architecture of the community of Castilla y León (Spain), we try to address the intentionality of these manifestations and shed light on a phenomenon, very widespread in the Christian world, little studied to date.
Keywords: Graffiti, exposed scriptures, rituality, crosses, popular religiosity.
Dossier
Cuando las cruces hablan. Análisis de los rastros de ritualidad popular sobre la pared desde una óptica antropológica
When crosses speak. Analysis of the traces of popular rituality on the wall from an anthropological point of view
Recepción: 17 Octubre 2022
Aprobación: 29 Noviembre 2022
Los estudios de determinados símbolos que se plasman en la pared cuentan con una dilatada tradición, como lo pone de manifiesto la extensa nómina de referencias bibliográficas que tenemos a nuestra disposición y que abarcan las denominadas escrituras expuestas (Fraenkel, 1994; Petrucci, 1999), especialmente las de las clases populares o subalternas, de las que se han hecho eco algunos investigadores de la escuela italiana -Petrucci o Antonelli, y más modernamente Federico Troletti- o española, con Antonio Castillo a la cabeza, entre otros muchos. Todos ellos han ido afianzando una línea de estudios que se encuentra, a nuestro juicio, a medio camino entre la historia y la antropología, abordando no solo los escritos visibles y con mensajes muy específicos que se plasman sobre el soporte parietal (Castillo, 2006 y 2009), sino también otros tipos de manifestaciones como los grafiti (Gimeno y Mandingorra, 1997), cuyos mensajes trascienden la materialidad para aproximarse a la configuración de lugares de identidad colectiva (Caffarena y Stiaccini, 2005). En este contexto, en los últimos años, hemos asistido a cierto repunte de las investigaciones sobre determinados grafitos de la Edad Media y Moderna, desde las que efectuara Patrice Cressier en los años 80 del pasado siglo en torno a ciertos grafitos de origen morisco, especialmente de los que encontramos en los edificios históricos, manifestaciones que posteriormente ha retomado con notable impulso Ignacio Barrera Maturana, ofreciendo nuevos horizontes en la catalogación e interpretación de toda una serie de símbolos que para comprender su lenguaje se hace necesario el realizar las preguntas adecuadas (Lorenzo, 2020).
Como ha quedado claro en las aproximaciones que se han realizado hasta el momento, estas escrituras no son solo testimonios documentales que informan de algún suceso o dan cuenta de un hecho singular, sino que son también manifestaciones estéticas de un momento determinado que se plasman en lugares muy específicos, unas veces para ser vistas y otras aparentemente no. Las miradas que se han realizado, especialmente en torno a ciertos símbolos como los emanados de la religión católica, han derivado en el establecimiento de complejos sistemas taxonómicos que aunque nos ayudan a ordenar los complejos palimpsestos de escrituras a que dan lugar, no suelen ayudar en la definición de su intentio operis (Hoppe, 2004: 334), por más que algunas aproximaciones hayan tratado de acercarse a ciertas cuestiones epistemológicas en torno a determinadas marcas de sacralidad plasmadas sobre la pared (Cruz, 2018; Gerevini, 2015: 205-229). Como se indica en algunos de los trabajos más recientes, el soporte arquitectónico no solo es espacio de comunicación, sino que lo es de información y de protección, gracias a que entre el emisor y el receptor se genera una serie de códigos en los que el locus se sublima en una serie de “puntos singulares” a través de los cuales el receptor puede dialogar con un ser superior (Rossi, 1976: 158), a través de un médium que no solo representa el signo, sino que realiza toda una verdadera performance para alcanzar una finalidad clara y evidente en el mensaje (Troletti, 2021: 202).
La simple presencia de estas “señales”, en especial algunas de ellas, vehiculan ciertas manifestaciones, prácticas inmateriales, gracias a la existencia dialéctica de toda una serie de fuerzas que bien se consolidan o se debilitan en virtud de la posición topográfica en la que se encuentre el símbolo y la propia finalidad con la que se plasma en el soporte murario (Moles y Rohmer, 1972: 42). Todo ello da lugar a una interesante discusión epistemológica acerca de la explicación psicogenética y psicosociológica de los lugares sociales donde se establecen determinados símbolos o signos (Muntañola, 1978: 14). Según se ha apuntado (Cruz, 2018: 322), gracias a estos lenguajes se plantea una cierta “estética semiótica” dentro de la que Bense denominaba Plakatwelt a través de la cual, objetos físicos y signos participan de dos mundos (el divino y el terrenal) que, en cierto sentido, encuentran unidad; según esta hipótesis, parece que se traza una vía por la cual se asistiría a la materialización del signo estético y su progresiva degradación a signo real -Realzeichen- y, en última instancia, a su transformación en señal (Dorfles, 1984: 59). No obstante, esta hipótesis que bien parece acomodarse a ciertos mensajes emitidos, caso de las vallas publicitarias del espacio urbano actual, no suele adecuarse a ciertas epigrafías populares en las que no solo se percibe una imagen real, sino que existe otra “proyectada” en la que el significado es cambiante en virtud del emisor (tiempo) y del receptor (espacio) (Cruz, 2018: 322), donde ciertos símbolos reproducidos en los soportes parietales configuran una suerte de imágenes hápticas (Peñalver, 2003: 177) creadas más por pulsiones o sensaciones internas que por las simple observación directa, si bien en algunos casos concretos nos encontramos ante verdaderas translatio in parietem (Lorenzo, 2013), esto es, traslaciones de determinados textos o símbolos de un tipo de soporte determinado al soporte parietal para cuyo caso no solo es válida una interpretación paleográfica, sino que es preciso extenderlo a análisis de naturaleza puramente antropológica.
Estas cuestiones permiten abrir un debate ciertamente interesante relativo a la necesidad de estudiar ciertos símbolos, no como simples categorías taxonómicas que permiten encuadrar en un lugar y en un tiempo específico todo aquel mensaje cifrado en un soporte visible, sino sobre todo como “acciones” que más allá del símbolo, manifiestan no solo determinadas realidades cognoscitivas, sino toda una serie de operaciones orientadas a una ritualidad específica, de carácter no solo individual sino también colectivo, tratando de hallar el Volkgeist o espíritu del pueblo, según la concepción hegeliana de la cultura. Y eso es precisamente lo que solemos encontrar en ciertos soportes parietales de los edificios religiosos de una región de España (Castilla y León). Interpretados habitualmente como meros grafitos históricos (entre otros Lejárraga e Ibáñez, 1998; Ozcáriz, 2012), la presencia de todo un auténtico “programa” escrito, cuya topografía para nada resulta casual, en determinadas construcciones sagradas castellano y leonesas, deben de ser analizado e interpretado a la luz de la antropología, no tanto como meros “guardianes del umbral” (Campbell, 2015) o simples signos de carácter apotropaico, sino como elementos que forman parte de un programa de acciones rituales de enorme complejidad, que podemos interpretar desde una óptica transgeneracional y transversal las motivaciones, funcionalidades y finalidades de unos símbolos que se repiten ad infinitum en un tiempo dilatado pero en un espacio muy específico.

Es la cruz, por encima de otros, el emblema que suele protagonizar la mayor parte del capital escrito de la arquitectura sagrada en el mundo rural castellano y leonés (Cruz, 2016), especialmente en sus lienzos exteriores, si bien suele compartir soporte con determinados grafitos que lo hacen, con cierta intensidad, en el interior de la misma (Lorenzo, 2021). Siendo un signo universal en algunas culturas, como la judeocristiana, es evidente que la encontremos en multitud de soportes, no solo arquitectónico sino también de naturaleza objetual, de ahí que en ocasiones sea una tarea compleja deslindar su cronología, por cuanto la forma apenas ha cambiado a lo largo de los siglos y mucho menos su función, más allá de la puramente informadora y, por ende, protectora. Se trata, en todo caso, de una imagen en cierto sentido “hegemónica” que identifica y resignifica los objetos/lugares donde se representa, que a veces no solo es imagen por sí misma, sino que se eleva a la categoría de imagen condensada y metafórica (Pallasmaa, 2021). Se trata, pues, de un signo que ocupa un lugar central en la arquitectura, aun cuando su posición topográfica, cambiante en virtud del tipo y cronología de la construcción, puede variar en función de las circunstancias en las que se han representado (Cruz, 2017).
El estudio de las cruces grabadas y de ciertos grafitos que las acompañan de tres monumentos de carácter religioso (una catedral, una iglesia y una ermita) documentadas en fecha reciente, en tierras de Salamanca y Palencia (dentro de la comunidad autónoma de Castilla y León), nos han de permitir interpretar, lejos de un afán exclusivamente tipológico, las posibles intencionalidades que se encuentran detrás de su presencia en dichos edificios. Cada uno de ellos son exempla y modelo de una manera específica de plasmar y reflejar de forma gráfica ciertas acciones rituales, especialmente las de carácter popular, en una suerte de transmutación de lo inmaterial a lo puramente material (de la acción a la pared) de toda una serie de gestos simbólicos que suelen darse en torno a estos edificios sagrados y que encuentran su reflejo, a su vez, en la arquitectura civil y popular en el mismo tiempo (cronología) y espacio (territorio). Se trata de analizar, en definitiva, el símbolo plasmado sobre la pared con otros ojos, alejados de una mirada tipológica que oculta la necesidad de interpretaciones de mayor calado, una mirada que comience a comprender la lógica, casi oculta, de los mensajes que nuestros antepasados dejaron escritos, sin palabras, sobre los muros.
Aunque los estudios sobre los grafitos en edificios históricos han recobrado una nueva vida gracias, en parte, a los trabajos de algunos autores que se han preocupado por documentar corpus completos en conjuntos arquitectónicos de enorme interés, lo cierto es que aparte de analizar los símbolos plasmados sobre el soporte parietal y buscar analogías en edificios similares (cfr. Jimeno, 2015), no abundan las investigaciones que traten de aproximarse a las causas, finalidades y répétitions de l’intensité (Deonna, 1954: 405) de un lenguaje en la que la “multiplicación del signo” es propia de una praxis que, en buena medida, suelen atender a prácticas profilácticas de tipo mágico-religiosas (Hoppe, 2004: 334) o, como ocurre en ciertos templos franceses, verdaderos actos de consagración (Codou, 2008: 256).
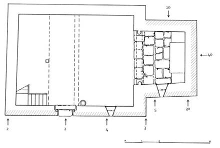
La catedral de Ciudad Rodrigo, en la provincia de Salamanca, ofrece la posibilidad de estudiar desde esta óptica todo el universo de símbolos, en especial cruces, que se despliegan por buena parte del edificio, principalmente en las zonas de paso y las de abertura, caso de las puertas y ámbitos cercanos a los umbrales. No solo la propia tipología del edificio, sino su dilatada cronología (su traza se plantea a finales del siglo XII y su construcción se sucede a lo largo de las dos centurias siguientes, si bien se documentan ampliaciones renacentistas y numerosas reformas a lo largo del siglo XVIII) obliga a posicionarnos ante un edificio enormemente complejo que no solo cumplió una única función eclesiástica, sino que también contó con otra funeraria, manifestada en las capillas construidas para tal fin en su claustro (Carrero, 2006). Son precisamente los muros de este espacio los que se encuentran cargados de símbolos, cruces en su mayor parte, en una disposición muy específica y con unos mensajes concretos, representados por medio de pintura negra o de almagre o aplicados (en soporte lígneo), de tal modo que dan lugar a un lenguaje que hasta la fecha no había sido leído de manera convincente. La riqueza de cruces es bien evidente, si atendemos a la cantidad de ellas que se han representado de forma transgeneracional en las diferentes pandas, como lo confirma no solo las distintas hechuras, sino que existen evidentes solapamientos entre algunos de los símbolos, así como un desigual reparto numérico en cada lado del claustro.
Mientras que en la panda occidental se documenta la presencia de nueve cruces, todas en silueta de calvario pintadas con almagre de color rojizo y, en menor número, en pintura negra, en la septentrional recogemos la presencia de tres cruces en silueta de calvario, una pintada y otra de madera correspondiente a las estaciones de viacrucis IX y X. Por su parte, las pandas oriental y meridional ofrecen un complejo palimpsesto de cruces en el que se entremezclan las cruces pintadas en negro o almagre con las cruces de madera que rinden, en este caso, continuidad al viacrucis de la panda norte; documentamos la presencia, en concreto, de once ítems en el lado este y otros tantos en el lado sur, entremezclándose las cruces de madera, más modernas que las pintadas -nuevamente en negro o rojo almagre- que ofrecen, en conjunto, cierta estratificación en cuanto a tamaños, pero no en lo relativo a su posición en la pared, ya que se han dispuesto a una cierta altura en el lienzo, formando una suerte de recorrido direccional muy específico a lo largo del claustro.
Toda esta maraña de símbolos da lugar, como apuntamos, a un circuito circular que se ha mantenido de forma dilatada en el tiempo, como lo pone de manifiesto la distinta hechura, propia del siglo XVI o XVII para el caso de las cruces pintadas y del siglo XVIII o XIX para las que se elaboraron con placas de madera. Estas, además, se disponen encima de las pintadas, dando lugar a cierta estratigrafía del símbolo cruciforme que permite, además, a partir de esta simple observación tipológica, la presencia de al menos tres recorridos sucesivos de viacrucis dentro del claustro de la catedral mirobrigense, definidos a partir de otros tantos calvarios pintados en almagre, con pintura negra y, finalmente, labrado en madera, que confirma la continuidad de un rito y la propia configuración de un recorrido sagrado penitencial de Semana Santa que parece que se desarrolló dentro del edificio religioso (y por tanto, y en cierto sentido, de carácter privativo para determinados individuos) y mantenido a lo largo de varios siglos. En todo caso, se trata de la plasmación física de un ritual originado en la Contrarreforma, como es bien sabido (Cruz, 2016: 32-38), máximo representante de una religiosidad de carácter oficial, directamente emanada de Trento, pero que convivió con otras manifestaciones de carácter más puramente popular.
Este juego de espejos que representa la religiosidad oficial y la popular, eso es, la Pequeña o Gran Tradición, como apuntara en su momento Robert Redfield (1956: 67-104), aparece nítidamente reflejado en la catedral de Ciudad Rodrigo a través de un conjunto de cruces grabadas sobre la pared por medio de trazos incisos, que los hacen en las zonas de abertura, especialmente en las jambas de las puertas, no solo las que dan acceso al interior del edificio desde el exterior, sino las que separan las diferentes zonas de paso, caso de las que separan el claustro del resto de las estancias catedralicias. Frente a las cruces de los distintos viacrucis claustrales, estas cruces obedecen a tipos simples -cruces latinas o griegas- o cruces en silueta de calvario, obtenidas mediante la fricción de un elemento punzante que trató tan solo de representar un símbolo bien conocido más que de una iconografía concreta, aun cuando algunas de las cruces representadas ofrecen una hechura más cuidada. Se trata de auténticos grafitis de ocasión que se plasmaron, no obstante, para ser utilizados en ciertos rituales de acceso, de entrada/salida, como pone de manifiesto el hecho de que muchos de ellos muestran huellas evidentes de haber sido sobados, tocados cada vez que se pasaba delante de los mismos, dando lugar a una gestualidad y ritualidad muy específica que es fácil documentar en otros edificios religiosos de menor entidad. Los encontramos en las puertas, pero también en algunas partes del claustro compartiendo el mismo espacio que las cruces descritas, dando lugar a un interesante juego dialéctico de símbolos cruciformes pintados/religiosidad oficial y cruces grabadas/religiosidad popular que tan solo comparten una misma tipología, pero distinta funcionalidad. Se trata de una iconografía omnipresente en la arquitectura doméstica (Cruz, 2016; Balesteros y Saraiva, 2007) y sagrada, de toda la península Ibérica (Lorenzo, 2021: 188-196) y de otros territorios europeos (Antonelli, 2006) y, por supuesto, iberoamericanos, como lo pone de manifiesto las cruces pintadas en algunas de las chulpas de las tierras altas del desierto de Atacama (Rivet, 2013) o en las casas cuzqueñas (Carreño, 2019), en los que se documentan un tipo de símbolo, en realidad una imagen que parece hablar por sí misma, que significa, no obstante, cosas diferentes en virtud de su posición topográfica.
Todas estas cruces presentes en la catedral de Ciudad Rodrigo, más allá de configurar un completo corpus de símbolos de naturaleza religiosa que definen un ámbito de lo sagrado (Arrúe, 2022: 277-279) y que formarían, en cierto sentido, pendant con los vítores y otros emblemas y proclamas pintadas a la almagra en los muros exteriores de dicho monumento, permiten algunas lecturas más profundas que dan lugar a una serie de interpretaciones de naturaleza eminentemente antropológica, alejada de los análisis de orden taxonómico que se suelen hacer en este tipo de documentos parietales.
Parece quedar claro que toda esta suerte de sucesión aparentemente desordenada de símbolos se plasmó de manera diacrónica y, por tanto, transgeneracional dando lugar a un lenguaje estratificado, cuyo uso permite diferenciar de manera nítida dos contextos de uso: uno privado, para el caso de las cruces que se despliegan en las pandas del claustro y otro, de carácter eminentemente público, para las que se encuentran en las jambas de las puertas de acceso al templo y de acceso a ciertas estancias del mismo.

Tal y como podemos observar en el plano que acompaña a estas líneas (Figura 2), se pueden definir una serie de vectores que delimitan una evidente direccionalidad de los trazos que obliga, de manera inexorable, a realizar el recorrido procesional de los viacrucis pintados o tallados que se colocaron de forma diacrónica sobre los muros y una liminaridad representada por las cruces que se grabaron en los umbrales de las puertas, que permiten salir o entrar al espacio privativo del claustro o las que se abren en los lienzos exteriores para acceder al interior del templo. Unas y otras vienen a dar cuenta del ambiguo valor del trazo cruciforme en función de su hechura y, sobre todo, de su ubicación sobre el soporte parietal, aspecto que ha dado lugar a interesantes debates en torno a sus significados plurales y que permite lecturas que van más allá de una clasificación tipológica que, para el caso que nos ocupa, apenas si permite un encuadre cronológico bastante laxo, a causa de que no todas las cruces grabadas sobre la pared significan lo mismo a lo largo del tiempo (Cruz, 2014: 72). La catedral mirobrigense permite analizar un complejo palimpsesto de símbolos que da pie a dibujar una micro-topografía sagrada que obliga a repensar, en clave antropológica, el fenómeno de plasmar cruces en la arquitectura no como meros detentes o los espantabrujas de la arquitectura popular de las sierras salmantinas (Cea, 2005: 91), las cruces con carácter apotropaico de la ciudad de Cuzco (Carreño, 2019) o simples emblemas decorativos e identificadores, sino como “acciones rituales y gestuales” con un significado profundo en función de su posición topográfica específica, sus niveles de repetición y diacronía. Es así como podemos comprender e interpretar en clave ritual la yuxtaposición sucesiva de estaciones y calvarios de tres series de viacrucis -permanencia del rito- o la hechura artesanal y las huellas de sobado de las cruces grabadas que se localizan en las jambas de las puertas de acceso, repitiendo, además, una práctica que se documenta en la arquitectura doméstica a lo largo de todo el Antiguo Régimen, en el que lejos de emitir mensajes efímeros dejó plasmadas las prácticas de religiosidad cotidianas y extraordinarias más comunes del momento. En este sentido, Jean Marie Hoppe en su estudio sobre la teología de la cruz, describe tres categorías: 1) como objeto de espera escatológica; 2) como extensión cósmica de la redención y 3) como límite (Hoppe, 2004: 329-330), dentro de las cuales hallaríamos la razón profunda de su presencia en el soporte parietal.
Aunque direccionalidad y liminaridad de las cruces presentes en la catedral mirobrigense parece quedar fuera de toda duda, si atendemos a los diversos tipos documentados y a su particular topografía dentro de dicho edificio sagrado, aparte de la propia funcionalidad ritual -protectora y demarcadora- que conlleva su presencia en ámbitos específicos del propio monumento, la personalidad de todas ellas vendría derivada de los colectivos que dieron sentido a su presencia, en este caso, el estamento eclesiástico para el primer conjunto de ellas y el pueblo llano para las segundas, quienes vehicularon a través de estos símbolos plasmados sobre las paredes cierta conexión con la divinidad. No obstante, en este juego dialéctico documentamos cierta distorsión en la presencia de marcas de hechura popular (las cruces grabadas) en un contexto en el que prevalecen las cruces de mejor factura (las cruces pintadas o las talladas sobre soporte de madera), hecho que parece dar lugar a unas marcas híbridas -una pequeña serie de cruces pintadas en rojo que imitan en forma y función ritual a las cruces grabadas- que vendrían a ocupar, dentro de este complejo palimpsesto de grafitos catedralicios, una acción ritual que se encuentra a medio camino entre lo culto y lo popular, dando lugar a interesantes fenómenos de yuxtaposición, sustitución y emulación de unos símbolos que vinieron a complementar todo el complejo lenguaje plasmado sobre las paredes de la catedral mirobrigense.
Frente a los grandes edificios eclesiásticos y monasteriales en los que se documentan complejas colecciones de grafitos y escrituras expuestas, las pequeñas iglesias parroquiales de la comunidad de Castilla y León, especialmente las que se encuentran en el tercio septentrional de la misma, rinden interesantes ejemplos de estas marcas sagradas plasmadas en el exterior de sus muros, ofreciendo interesantes lenguajes codificados que, salvo algunas excepciones2, han pasado casi sistemáticamente desapercibidos a los ojos de los investigadores, más interesados en documentar otros tipos de manifestaciones artísticas. Tal vez el hecho de que estos símbolos se hayan ido acomodando al paso del tiempo sin mayores problemas a otros tipos de grafiti, más modernos, pero de menor carga simbólica y por tanto menor interés etnográfico, ha permitido su conservación pero, por el contrario, han perdido protagonismo de cara a una investigación que, por desgracia, aún se encuentra por hacer. Aunque la nómina de ejemplos es enorme, no nos hemos podido resistir al análisis de un pequeño edificio sagrado de carácter rural por el interés que presentan sus cuarteados muros, soporte de un interesantísimo programa iconográfico que no ha sido estudiado hasta la fecha. La ermita de la Virgen del Valle, situada en el término municipal de Vallespinoso de Cervera, perteneciente a un pequeño pueblecito de la montaña palentina, es un pequeño edificio románico levantado en el siglo XIII, de planta rectangular con la cabecera plana (Huerta, 2002: 615-618) que cuenta en su interior con un interesante programa decorativo de pinturas murales (Manzarabeitia, 2001: 237-249; VV.AA., 1997: 98-104), restaurado en fecha reciente. Se trata de un edificio levantado en la cima de un pequeño cabezo ¿artificial? que domina el fondo de un vallejo, muy próximo a una fuente -que en la zona se denomina dojo- con propiedades mágicas que da lugar, en virtud de ciertas leyendas, a un característico paisaje sagrado nord-palentino (Cruz y Sánchez, 2021), donde la tradición apunta a cómo se apareció la imagen de la Virgen a un toro, cerca de dicha fuente, en cuyo espacio se levantó su ermita por imperativo de dicha imagen, siguiendo una puesta en escena muy común a lo largo de las edades media y moderna (Christian, 1990 y 1991).

La iglesia de Nuestra Señora del Valle ofrece todos los rasgos de las construcciones sagradas propias de un contexto rural, eminentemente campesino, eje de los rituales propios de una religiosidad local marcada por los ciclos anuales como vectores de las prácticas rituales habituales en este contexto. Prácticas que, como apuntaremos a continuación, configuraron una particular nómina de manifestaciones inmateriales que dejaron, con toda probabilidad, huella sobre las paredes de la construcción. Y es que, si por algo destaca la ermita de Nuestra Señora del Valle, más que por su arquitectura, es por la omnipresencia del signo de la cruz, acompañado bien, es verdad, por otros grafitos tales como símbolos geométricos, zoomorfos -especialmente esquemáticas representaciones de gallos como iconografía que suele representar los augurios (Caro Baroja, 1941), además de la resurrección de Cristo-, juegos o alquerques, algunos letreros y, sobre todo, cruces. Aunque, en cierto sentido, la ermita es un buen ejemplo del imaginario habitual que se reproduce en el soporte parietal de este tipo de edificios (Lorenzo, 2021), nuestro edificio agrupa un notable conjunto de cruces que merecen nuestra atención, por cuanto nos han de servir para tratar de avanzar algunas hipótesis en cuanto a las intencionalidades que llevaron a plasmar sobre los muros tal cantidad de símbolos, así como sus posibles significados.
En conjunto, los muros exteriores de la iglesia conserva un total de 96 cruces grabadas sobre la roca de textura areniscosa de la ermita que se encuentran desigualmente repartidas entre el lienzo meridional (8 cruces), esquina suroriental (8 cruces) y cabecera (85 cruces)3, cuyas tipologías se reparten entre cruces sencillas, en silueta de calvario, cruces recuadradas, cruces sobre orbe o cruces rematadas en círculos, tipos muy comunes que documentamos en este territorio a lo largo de toda la Edad Media y Moderna, circunstancia que nos exime de elaborar la siempre tediosa tarea de comparación con ejemplos similares.

La presencia de tal acumulación de símbolos da pie a plantear algunas cuestiones importantes relativas a su hechura y cronología, y la posible función dentro del edificio religioso, de cara a comprender los mecanismos a través de los cuales algunas construcciones sagradas contaron con tal número de signos, frente a otros en los que estos apenas si hacen acto de presencia. Al tratarse de escrituras espontáneas, habitualmente desprovistas de fechas, la datación de las mismas resulta enormemente compleja, máxime cuando la morfología de los símbolos, en este caso las cruces, no se acomoda a una fecha concreta sino que se trata de tipos que encontramos a lo largo de las edades Media y Moderna sin apenas variar sus esquemas compositivos; tal vez algunos tipos, como las cruces en cuyo campos se dispone un círculo, se aproximen a las cruces plasmadas en los amojonamientos del norte de las provincias de Burgos y Palencia (Fernández y Lamalfa, 2005: 260), se puedan datar a finales de la Edad Media o principios de la Moderna, si bien las cruces en silueta de calvario sean del tipo que sean, se encuentran presentes desde el siglo XIII hasta el siglo XIX, con lo que el establecimiento de analogías resulta del todo infructuosa. Que nos encontramos ante un fenómeno diacrónico, queda fuera de toda duda, como permite observar la continuada acumulación de símbolos a lo largo de varias generaciones en puntos muy concretos del edificio -la cabecera y la nave del Evangelio-, mostrando un patrón que esta vez sí se repite en construcciones sagradas similares. Aunque ubicación, multiplicación y distribución, tres de los principales factores que permiten definir la intentio operis de lenguajes en clave simbólica (Hoppe, 2004: 332), tal vez sea necesaria plantear preguntas de mayor calado a la hora de apuntalar una hipótesis razonable a estas silenciosas -y a veces, silenciadas- presencias simbólicas sobre los sacros muros. Cuestiones tales como la altura a la que se encuentran los símbolos grabados, la cronología relativa no solo al tiempo de elaboración sino al tiempo de “uso” de las cruces, los momentos del año en que se representaron y se utilizaron, el tamaño de las mismas, habitualmente jerarquizado y, finalmente, el distinto grado de profundidad en el grabado y pulimento, han de ofrecer algunas respuestas a las incógnitas que siguen planteando estas genuinas manifestaciones de la religiosidad popular local.

En el caso de la ermita de Vallespinoso, está claro que existe una reiteración en el gesto, pero también una evidente visibilidad -sobre todo en determinadas condiciones de luz (cfr. Nieto, 1978)-, a tenor del tamaño y profundidad de los trazos impresos sobre el soporte pétreo, lo que permite sospechar que su autor o autores persiguieron dejar su presencia a través de unos rasgos de manera indeleble, buscando similar trascendencia a la que los otros estamentos dejaron representados sobre diversos tipos de edificios, no solo los propios de los domini o clases privilegiadas sino de otros tipos, como pueden ser las cárceles del Antiguo Régimen (Castillo, 2006: 146). Al respecto, existe en la actualidad una interesante línea de análisis de este tipo de manifestaciones, tanto las medievales (López Menchero et al., 2020), como las posteriores (Morales et al., 2020), materia que está dando lugar a investigaciones específicas (Fiume y García Arenal, 2018) encuadrados en equipos de trabajo como el desarrollado en Zaragoza que lleva por título: GAP-Project: Graffiti Art in Prison.
A partir de estas consideraciones: ¿para qué se despliega tal acumulación de símbolos? Y, más aún ¿a quién va dirigido este lenguaje murario? Indudablemente, estamos ante el quid de la cuestión, si bien creemos que no podemos dejar de plantear algunas posibilidades de interpretación aún a riesgo de no poder referenciarlas convenientemente, no solo relativas a determinados textos, sino también a otros ejemplos mejor documentados, dando lugar a interpretaciones que pueden, de no hacerse las preguntas precisas, quedar en el aire (Gombrich, 2018: 188).
Resulta indudable cómo estos complejos palimpsestos en los que se percibe una innegable “repetición de la acción simbólica”, vienen a contar una historia que es necesario descifrar en una clave antropológica que vaya más allá del establecimiento de una seriación de símbolos a lo largo de varias generaciones. Todo este complejo sistema yuxtapuesto de motivos cruciformes, acompañados de un universo de dibujos, letreros y otros distintivos, ocupan una posición jerárquica dentro del lienzo, queriéndose primar su presencia de forma bien visible frente al resto, de cara a emitir unos mensajes muy específicos que van más allá del poder protector, evidente en las zonas de abertura, de umbral, y que nos remiten a la manifestación de no solo presencias -por ejemplo, de nombres propios o de abreviaturas- sino, sobre todo, de acciones cuya significado dista, aún hoy en día, de ser desvelado en su totalidad.
Aunque mucho se ha avanzado en la interpretación del significado de la cruz en la arquitectura (Cruz, 2016), en el que se prima su valor protector, de detente contra el mal,4 lo cierto es que las interpretaciones que podemos proponer para todos estos símbolos dispuestos en los lienzos de construcciones sacras y domésticas, distan mucho de resultar convincente. Aún con todo, cabe la posibilidad de dar cumplidas respuestas a la cuestión de para qué se realizaron -atendida la circunstancia de que la información oral suele resultar, casi siempre, infructuosa- analizando ciertas manifestaciones de la religiosidad campesina en cuya materialización participaron las cruces, como se ha puesto de manifiesto en fecha reciente al hilo de ciertos rituales de bendición de campos, ciclos de rogativas y conjura de tormentas en las que la cruz ha formado parte consustancial de dichos rituales (Cruz y Encinas, 2022). Contamos, en este sentido, con algunos refrendos etnográficos en ciertos tipos de rituales circunvalatorios en torno a ermitas y santuarios, de origen prerromano (Moya, 2010), como los que se documentan en algunos templos gallegos donde los peregrinos solían marcar con una cruz sus lienzos exteriores como constancia de un favor recibido por la divinidad. Se puede hacer referencia a otras interpretaciones, más allá de la simple finalidad como detente y que tiene que ver con unos particulares métodos contables en virtud de la multiplicación del signo, tales como conteos de toques de campana o, incluso, como se ha sugerido en alguna ocasión, sistemas contables de enterramientos (Lauwers, 2005) o de delimitación de muertes acaecidas en ciertas situaciones penosas5 que tal vez haya descartar en nuestro caso, aun cuando no es infrecuente la presencia de enterramientos en torno a estas construcciones sagradas campestres, como pone de manifiesto con cierta frecuencia la arqueología.

A nuestro juicio, toda esta compilación de símbolos puede interpretarse desde determinadas manifestaciones de naturaleza colectiva relacionadas con ciertas festividades o con ciertos acontecimientos temporales o episódicos en los que ha debido de entrar en juego un número concreto de personas que además tienen el deseo de dejar plasmado una huella perenne sobre los muros del templo a modo de conmemoratio, no solo en torno a las zonas de abertura (puertas y ventanas), sino también en la zona de la cabecera, espacios exteriores donde se repite de manera diacrónica ciertos rituales campesinos como las conjuras de tormentas, a través del conocido toque “a tentenublo”, por parte de los reñubeiros o renubeiros, personajes que desplegaban una particular artillería de toques de campana tañidos de tal manera que “espantaba” la nube o tormenta.
Los rituales destinados a esconjuros de tormentas y plagas se enmarcan dentro de las creencias y prácticas de una sociedad que creía firmemente en que los rituales mágicos-religiosos eran la única arma con la que contaban para poder controlar el efecto devastador de la naturaleza sobre su vida. Una sociedad rural con grandes dificultades para el cultivo (escasez de agua o escasez de tierra; orografía abrupta, dificultades técnicas, etc.) era sumamente sensible a los fenómenos naturales cíclicos como las sequías, las pedregadas estivales o las tormentas. Por eso no es raro comprobar que en la vida cotidiana tradicional pirenaica existía gran número de rituales relacionados con la protección de las casas, las personas, los campos, los animales, etc. (como por ejemplo, los espantabrujas en las chamineras -chimeneas tradicionales de los Pirineos- o la colocación de cardos o patas de animales en las puertas de esas mismas casas), como tantas otras tradiciones de origen pagano. Este intento de control de la naturaleza que el ser humano realizaba desde tiempos ancestrales fue cristianizado por la Iglesia, pasando a formar parte de la liturgia católica, como ha confirmado en más de un trabajo el antropólogo Ángel Gari. En ese contexto se enmarcan los rituales de esconjuro. Según algunos autores, desde comienzo del siglo XVI están documentados los esconjuros realizados en los pórticos, ventanas o campanarios de los templos.
Las referencias a estos rituales salpican sobre todo algunos territorios aragoneses, como la provincia de Huesca, y no parece raro que se crearan diversos templetes destinados específicamente a ese fin. En otras provincias, los conjuraderos de este estilo son infrecuentes primando, como ocurre en las provincias de Soria o Teruel, los cruceros simples. La misión prioritaria de estas acciones fue probablemente el ahuyentar las tormentas o tronadas y proteger los campos de los devastadores efectos de rayos y pedrisco, pero también está documentada su misión como ahuyentador de plagas y animales nocivos. Además, en la Edad Media existía la creencia generalizada de que había personas con poderes especiales capaces de realizar encantamientos que provocaran tempestades y huracanes. De hecho, la Iglesia admitía que podía haber seres humanos, como profetas, que con sus plegarias pudiesen conseguir la lluvia o hacer que cayese fuego o granizo. También permitía la realización de misas para obtener la lluvia o para conjurar calamidades naturales. Es decir, existía la creencia común de que ciertas personas podían manipular las fuerzas de la naturaleza, en un sentido positivo para el ser humano, o en contra del mismo. Por tanto, se comprende que en muchos casos los vecinos pensasen que la tormenta que había arruinado sus cosechas había sido originada por las artes de alguna bruja u otro agente mágico.
Aunque se trata de un elemento que predominantemente está presente en el pirineo aragonés, también existen ejemplares en Lérida, Gerona y la vertiente francesa, fruto de una cultura tradicional pirenaica con numerosos rasgos comunes. En Aragón, los esconjuraderos se ubican en la zona septentrional del territorio, en el Prepirineo y Pirineo. En la actualidad, los esconjuraderos conocidos se localizan especialmente en la comarca de Sobrarbe, aunque existen también ejemplares en la Hoya de Huesca, el Somontano de Barbastro y la Jacetania, existiendo la posibilidad de que estudios futuros identifiquen en Aragón otros ejemplares que hayan pasado desapercibidos y sean desconocidos hasta el momento. Incluso en las vecinas provincias de Lérida y Gerona existe la figura del comunidor como elemento arquitectónico con funciones similares a los esconjuraderos aragoneses.
En la región castellano y leonesa, los conjuraderos más habituales los encontramos en los campanarios, donde es normal disponer de ámbitos propios denominados conjuratorios. Su función era permitir al sacerdote la conjuración de las tormentas o realizar distintos rituales apotropaicos o propiciatorios, como la bendición de los campos u otros. Así, esta antigua práctica, ya en desuso, trataba de alejar el mal que podían engendrar los elementos atmosféricos sobre la feligresía, indefensa entonces ante la fuerza de los fenómenos atmosféricos como el rayo, el viento, la tormenta, el frío o la nieve. Por extensión, el mal podía venir también en forma de inundaciones o riadas que anegaban los campos, o también de enfermedades, como la peste, que diezmaba la población. Pero también podía llegar en forma de sequía y entonces, aparte de las rogativas habituales que se celebraban en la Iglesia, también se conjuraban los elementos atmosféricos para la protección de las cosechas. Estas eran el único medio de subsistencia para la población en otros tiempos.
En esta comunidad, los conjuraderos más comunes se localizan en los campanarios de las iglesias. Las torres y los atrios eran lugares habituales donde el pueblo se refugiaba para conjurar las tormentas en caso de peligro. En la Tierra de Campos palentina, por ejemplo, se conculcaba la tormenta desde las iglesias por medio de un complejo ritual en el que se rezaba en la iglesia, con las puertas del Sagrario abiertas y el cirio pascual encendido; se permitía incluso subir al campanario, después de rezadas las pertinentes Letanías y Psalmos, para lanzar oraciones y conjuros, casi siempre por parte de los párrocos o ciertas personas -los conjuradores-, que a través de ciertas oraciones especiales -de Santa Úrsula o de Santa Brígida, o el agua de San Gregorio en Aragón y Navarra (Satrústegui, 1979; Labeaga, 1993)- trataba de prevenir la acción maligna de estas inclemencias meteorológicas que eventualmente pudieron dejar alguna huella -las cruces grabadas sobre la pared- como representación palpable de una acción ritual de naturaleza inmaterial.
Con todo, tal vez una de las hipótesis que mayor fuerza cobra es, a nuestro juicio, la presencia de estas cruces como evidencia de rituales de bendición de campos, a tenor de ciertos documentos etnográficos que encontramos en la provincia de Soria, donde en los lienzos de algunas ermitas -caso de la ermita de la Soledad de Tajahuerce, como muestra la imagen que acompaña a estas líneas- aparecen dispuestas algunas crucecitas de cera que servían para proteger los cultivos (Cruz y Encinas, 2022: 34), a través de uno de los más genuinos rituales campesinos de toda la península. Aunque tampoco queremos descartar otras posibles interpretaciones para estas cruces como marcas identificativas de mojones o deslindes que se visitan periódicamente (Allende y Martínez, 2011), en virtud de la similitud con las cruces que se representan en los amojonamientos del norte de las provincias de Palencia y Burgos (Fernández y Lamalfa, 2005), tal vez haya que dejar abierta esta posibilidad hasta acometer nuevas indagaciones.
Hay que tener en cuenta cómo las manifestaciones rituales del campesino tradicional son muy numerosas y encuentran en su génesis un origen prerromano y romano; algunos autores como J. Mª Blázquez, Alberto Lorrio o Martín Almagro Gorbea, entre otros muchos, han incidido en este origen en más de una ocasión, ofreciendo interesantes investigaciones desde la denominada paleoetnología (Moya, 2013), gracias a la cual contamos con interesantes aportaciones acerca de ritos de origen antiguo muy específicos que se han perpetuado hasta prácticamente nuestros días. La riqueza de rituales y prácticas devotas del campesino español es enorme, dando lugar a la configuración de un paisaje cultural específico, no solo agrario sino también sagrado, el cual se encuentra en constante negociación y reconfiguración simbólica a través de los hitos que se erigieron en el territorio, dando lugar a una suerte de hierofanía (Eliade, 1990) plasmada en forma de prácticas rituales, tanto colectivas como individuales que enriquecen la experiencia del individuo a través de la perpetuación de estas prácticas de manera transgeneracional, cargando de significado simbólico un ámbito tan, en apariencia, anodino como el ager.
Esta presencia de la multiforme acción simbólica que confluye en las comunidades agrícolas tradicionales (Ginzburg, 2011) ha interesado, en fecha relativamente reciente, a numerosos investigadores que han puesto el acento en el interés que tiene para comprender ciertas dinámicas en la evolución del campo español. Y es que tal y como apunta Antonio Ariño, la estructura social se nutre de la interrelación dinámica de tres tipos de fenómenos, como son el sistema de interacciones de los agente sociales, el universo material y el universo simbólico, siendo este último una dimensión constitutiva de la propia configuración del agricultor tradicional (Ariño, 1992: 45).
Precisamente ha sido este autor uno de los primeros, junto con los miembros del equipo encabezado por Honorio Velasco (Velasco, 1991), quienes peregrinamente comenzaron a analizar en clave simbólica la situación del campesinado español, especialmente cuando los sistemas tradicionales agrarios habían comenzado a languidecer. El citado Antonio Ariño estableció de forma teórica la estructura del ritual agrario en virtud de la existencia de una actividad productiva que es común a todas las sociedades agrícolas, si bien esta no es para nada uniforme y existe toda una pléyade de expresiones que enriquecen el panorama de la religiosidad local peninsular (Christian, 1991) y que se encuentran en íntima relación, como cabe esperar, con el calendario y el santoral cristiano; diferenciaba así entre bendiciones de animales donde destaca la celebración de San Antonio Abad y bendiciones de campos, que se celebran entre San Antonio (17 de enero), San Marcos (25 de abril) y San Gregorio (9 de mayo), el cual fue sustituido en tiempos de la Dictadura por San Isidro (Cruz, 2010). Se da la circunstancia de que la procesión litánica del 25 de abril, instituida en el calendario cristiano por el papa Gregorio a finales del siglo VI d. C. vino a sustituir las procesiones paganas por esta celebración de San Gregorio (Ariño, 1992: 49) que ha quedado como una de las celebraciones más genuinas del calendario agrícola peninsular.
Estas bendiciones de campos se han celebrado con normalidad hasta la aceleración de la industrialización de la década de los años 60 del pasado siglo, siendo una de las manifestaciones que, aunque superviviente de esta transformación campesina, mayores mutaciones ha sufrido tanto en su forma y localización espacial como en el cambio del santoral; los intercesores habituales de estos rituales han sido San Marcos, San Pedro mártir (29 de abril), la Invención de la Cruz (3 de mayo) y San Gregorio, que en un momento dado, durante la dictadura de Franco, se vieron sustituidas por la celebración de San Isidro (15 de mayo), una transformación de primer orden en lo político y lo económico -se generalizará a partir de la década de los años 50 las cooperativas y asociaciones agrícolas bajo advocación del santo madrileño-, pero sobre todo en lo antropológico, poco estudiado hasta la fecha, pero del mayor interés a la hora de fijar hitos en el territorios (ermitas, cruceros de término, peirones, calvarios, etc.), así como las propias marcas como las que nos encontramos en algunos edificios del campo castellano.
Tenidos en cuenta estos aspectos, en el Antiguo Régimen y hasta hace no muchos años, la festividad de San Gregorio se erigía en una celebración campesina de enorme importancia. En su festividad (9 de mayo) se realizaba la bendición de los campos, práctica muy extendida por buena parte del territorio peninsular a lo largo de los siglos. No es casualidad que se haya celebrado hasta hace relativamente poco, en muchos pueblos de Castilla, la festividad de San Gregorio, como uno de los santos de los agricultores, como San Isidro o San Marcos. Fue precisamente este santo quien siendo papa, según marca la pertinente hagiografía, instituyó las letanías llamadas mayores el día de San Marcos, la cual en procesión solemne, se pide a Dios salud y que dé frutos la tierra y que los conserve (Alonso, 1999: 55). Según expresan algunos Ceremoniales de principios del siglo XVIII, las Letanías mayores se rezaban el día de San Marcos en tanto que las denominadas Letanías menores hacían lo propio en los tres días inmediatos a la Ascensión. Cuenta la tradición que San Gregorio vino a España en el siglo XI, procedente de Roma, para conjurar las plagas que la asolaban, especialmente la plaga de la langosta (Barragán, 1978; Peris, 2008). Dentro del calendario agrícola tradicional, plagado de hitos a lo largo del año, las fiestas de primavera han tenido en el mundo rural gran importancia por cuanto venía a suponer una verdadera renovatio, un renacimiento de la naturaleza. Es en este momento cuando se concitan una serie de festividades; al día del Corpus Christi o el de la Cruz le acompaña todo un santoral que se puede relacionar con ciertos ritos agrarios: San Pedro Regalado, San Gregorio, San Isidro, Santa Quiteria o el Rocío, por citar tan solo las más conocidas. El mes de mayo es, por antonomasia, el mes de la naturaleza, el mes de la regeneración espiritual, una vez superadas las tinieblas del invierno. En este momento se celebran toda una serie de rituales relacionados con la naturaleza; es el mes del árbol -a este se le denomina significativamente mayo- y en torno al mismo giran los bailes de quintos, los encierros de toros, los árboles-mayos, las enramadas o la conversión de árbol en cruz. Se acompañan, asimismo, de la bendición de los campos en rituales participativos de romerías, canciones (o mayas), bailes, comidas rituales y, por supuesto, la bendición de los campos (García Fernández, 2004: 22-23).
Las celebraciones de San Marcos o de San Gregorio, sin ir más lejos, encuentran en las festividades romanas de la Robigalia y la Cerialia, claros antecedentes a estas prácticas campesinas tradicionales; en la primera Varrón, en su obra De re rusticae, nos describe cómo se ofrecía al dios Robigo un tributo en forma de dones y sacrificios de animales mediante un ritual en el que encontramos una suerte de procesión en la que se efectúan una serie de súplicas para evitar que los cereales sean atacados por la roña y malogren las cosechas (Caro Baroja, 1989: 77-83). No es casual que en algunas partes de la Península Ibérica se realicen durante la fiesta de San Gregorio Ostiense (Jimeno, 1997) una serie de rituales en los que se combina la bendición de los campos propiamente dicha con la aspersión de los mismos o, como ocurre en Sorlada (Navarra), con el agua pasada por la reliquia del santo se bendicen aquellos (Panizo, 1991: 138).
Todos estos santos del campo vienen a ser reflejo de la Religiosidad Oficial y la Religiosidad Popular, respectivamente, o lo que es lo mismo de la Pequeña y de la Gran Tradición (Redfield, 1956: 67-104), tema que ha ocupado un sinfín de investigaciones de corte antropológico. Tal y como dictan los estudios antropológicos, tal y como apunta Robert Redfield, la Gran y Pequeña Tradición hace referencia a la existencia de un binomio que se resuelve con la distinción entre la religiosidad propia de los grupos de poder (representados grosso modo por maestros, curas, médicos, profesionales liberales…) y aquella que le es propia al estamento menos privilegiado (campesinos, ganaderos, pobres…). Esta dicotomía, tal y como apunta aquel autor, estaría fundamentada en una estricta división del conocimiento: sacerdotes/laicos, instruidos/analfabetos, jefes/subordinados, aristócratas/campesinos, etc. (Cátedra, 1997: 21). No obstante, esta división ha sido criticada por su excesiva compartimentación; en este sentido, se han alzado otras voces advirtiendo cómo existe en ese cuadro general una profunda interacción entre la Pequeña y la Gran Tradición, siendo ambos elementos de un proceso que en todas las escalas es complementario. Así es como los ritos locales (Pequeña Tradición) abrirían paso a la instrucción clásica (Gran Tradición), interacción cuyo fruto es “[…] la universalización de la cultura local y […] una parroquialización […]” o reformulación por parte de las ideas de las Gran Tradición (Cátedra, 1997: 21-22).
Los ritos en torno al mundo agrario no terminan con las manifestaciones descritas, las cuales van asociadas en el territorio a ciertos elementos construidos como los cruceros, ciertos objetos (hachas, crucecitas de cera, estampas, etc.) o determinadas marcas (las cruces incisas) los cuales, como incide C. Bromberger (1979: 105-107), suelen ser elementos explícitos, comprensibles para todas las personas de una comunidad a los que se añade una carga ideológica adicional que, a veces, llega a condicionar totalmente la actividad humana (Mingote, 1995: 146), en especial, en ciertos actos repetitivos de la coetaneidad laboral que llegan a modelar, en cierto sentido, el paisaje apropiado por la actividad campesina.
Como apunta Mingote, siguiendo las palabras de Pierre Lemmonier, para los antropólogos existe una neta diferencia entre acto técnico y acto ritual, que se distingue uno de otro en que mientras que en el primero se produce un efecto observable, en el segundo no (Mingote, 1995: 152), pero en los que, sin embargo, encontramos una coexistencia clara entre la experiencia del creer-saber no existiendo un límite claro, como piensa Mingote, para lo cual pone el ejemplo de cortar un árbol en el que a la propia acción de partirlos suele ir acompañado de una fórmula mágica para derribarlo (Mingote, 1995: 153).
Los muros de los edificios sagrados ofrecen, como hemos visto, un panorama escrito y simbólico enormemente complejo que despliega ante nuestra mirada diferentes tipos de mensajes, con unos códigos que a veces tan solo son descifrables por parte del emisor y del propio receptor. Ofrecen, además, un soporte inmejorable para plasmar acciones rituales o ritualizadas, como hemos tenido oportunidad de analizar en la ermita de Vallespinoso de Cervera y para reproducir en símbolos, en definitiva, algunos de los actos litúrgicos más comunes propios de la religiosidad popular, algunos de los cuales, cuando se emparentan con grafiti, se están re-interpretando en la actualidad en clave no solo iconográfica (Jimeno Guerra, 2022), aunque sin tocar aún la necesaria tecla antropológica.
El tercer ejemplo que presentamos, se localiza en la pequeña iglesia parroquial de San Vicente Mártir de Valdunciel, un desconocido templo barroco de planta rectangular, testero plano, atrio porticado situado en el lado de la epístola y espadaña a los pies a la cual se accede a través de un husillo de planta circular que se localiza en el tercio septentrional del núcleo urbano citado, situado en la comarca cerealista de La Armuña en el norte de la provincia de Salamanca. Se trata de un pequeño templo levantado con piedra arenisca de Villamayor, poco destacado en cuanto a su arquitectura, pero que ofrece una manifestación representada sobre sus muros exteriores que merece nuestra atención. Nos referimos, en concreto, a la presencia de un viacrucis completo en bajorrelieve dispuesto en las paredes exteriores del templo, compuesto por las catorce estaciones representadas por otras tantas cruces en silueta de calvario en cuyo pie se representa, en números romanos, el número de estación. Tan solo la estación XII -la que muestra el Calvario propiamente dicho- y la estación XIV son diferentes al resto, presentando en la primera de ellas las tres cruces entre las que se reproduce la escalera y un motivo vegetal y la cruz de calvario flanqueada por el sol y la luna, para el caso de la segunda, mostrando una iconografía bien conocida en el arte cristiano (Labrador y Medianero, 2004). Se trata de un viacrucis que podemos clasificar como “planificado”, esto es, labrado en el momento en que se levantó la iglesia, cuya cronología hemos de establecer entre los siglos XVII y XVIII, y que encuentra en otros templos de la comarca, tales como la iglesia de San Miguel Arcángel de Arcediano, del mismo estilo constructivo a de la Valdunciel.
No es, sin embargo, la presencia de este recorrido penitencial el que nos interesa, por más que se trata de un tipo de documento bien conocido en la arquitectura (Castellanos, 1893), formando una suerte de trampantojo a lo divino de los viacrucis de bulto redondo (Robin, 2013), sino las representaciones cruciformes que se disponen en el lienzo situado a los pies del templo. Cuando la luz incide sobre el lienzo occidental, en las horas centrales de la tarde, se despliegan ante los ojos un impresionante conjunto de trazos cruciformes, incisos sobre la blanda arenisca con un instrumento de punta metálica, que viene a ocupar todo el tercio inferior de dicho lienzo a mediana altura y bajo las estaciones descritas (en concreto, entre la X y la XII). Documentamos a lo largo de cinco filas, dispuestas cada una sobre otras tantas hiladas de sillares, un total de 260 cruces de buen tamaño (cuya altura viene a coincidir con el ancho del sillar), grabadas con instrumento metálico que no deja profundas acanaladuras, de ahí que algunos símbolos, si la luz no incide de manera rasante, prácticamente pasan desapercibidos. Esta sucesión de cruces -todas ellas de perfil simple, sin pie- se han grabado de manera ordenada, como si de un particular sistema contable se tratase en el que, sin embargo, se percibe cierta diacronía definida por un desgaste diferencial en algunas de las cruces. Con todo, creemos encontrarnos ante una manifestación espontánea que no ha debido de realizarse a cabo de forma diacrónica, como lo pone de manifiesto similar hechura para todos los símbolos dispuestos de manera ordenada a lo largo de esta ancha banda que encontramos en el lienzo occidental. Se atestigua el hecho, por otro lado, de que coinciden en un mismo soporte un doble sistema de comunicación no escrita sobre la pared: el viacrucis, como representación de una práctica religioso oficial, frente a la plasmación de un ¿acto ritual? repetido a lo largo de un arco temporal muy concreto, más propio de la religiosidad popular que de la liturgia de la iglesia, seguramente realizados por unas pocas manos que trataron de mostrar un orden escrupuloso en la disposición de los símbolos sobre el soporte parietal.
Esta ordenada serie de cruces ¿a qué acto ritual es debido? y, sobre todo, ¿para qué se trazaron, en un momento dado, sobre el lienzo semejante secuencia seriada de trazos cruciformes? Aunque la información oral no nos ha ofrecido claves al respecto y, de hecho, se trata de cruces que suelen pasar desapercibas a los propios vecinos de Valdunciel, lo cierto es que nos encontramos ante una manifestación que resulta enormemente original en el panorama grafitero de la península Ibérica, donde no conocemos paralelos similares al de la iglesia salmantina, aparte del testimonio del santuario gallego de Nuestra Señora de O Corpiño, en Lalín, lugar donde sus paredes exteriores despliegan las representaciones palpables de los votos o agradecimientos de los favores recibidos por parte de los romeros, por medio de sencillas cruces trazadas con tiza o con pequeños trozos de ladrillos (Eiroa et al., 2007: 82), ofreciendo similar hechura y localización que algunos trazos de grafitos devocionales en edificios cristianos de otras partes de Europa, asociados a una gestualidad muy específica relativa a las denominadas “zonas de contacto” de determinados espacios del edificio sagrado y la presencia de ciertas devociones o existencia de ciertos mártires cristianos (Yasin, 2015: 51).
Estamos ante una manifestación que encuentra eco en otros templos6 y que nos remite, a nuestro juicio, a una suerte de conteo sistemático y seriado, no jerarquizado, detrás de lo cual se infiere la presencia de una acción ritualizada de manera periódica a lo largo de un tramo temporal que no parece haber sido muy dilatado. Si tenemos en cuenta la homogeneidad de los trazos, si bien exterioriza una acción simbólica continuada en el tiempo que puede responder, como apuntábamos líneas atrás, a determinados rituales de carácter agrario de los que la correa de transmisión de saberes y conocimiento de la tradición oral, por desgracia, se ha topado con una ruptura que no nos permite llegar a responder de manera satisfactoria a algunas de las cuestiones que aquí quedan planteadas.

La investigación de ciertas marcas grabadas sobre la pared, en concreto el emblema de la cruz, en tres contextos arquitectónicos netamente definidos -catedral, ermita e iglesia-, responde a una ritualidad muy acusada y específica que tiene que ver respectivamente con ciertas acciones que implican direccionalidad y liminalidad, remiten a determinadas prácticas campesinas y a ciertas repeticiones en clave sagrada. La literatura científica había soslayado hasta la fecha el estudio de este tipo de manifestaciones desde la etnografía, en detrimento de una clasificación taxonómica que aparte de engrosar los corpora de símbolos grabados sobre el soporte parietal, no viene a dilucidar cuestiones de mayor calado que se pueden analizar desde otros ángulos. La oportunidad que nos ofrecen los edificios estudiados, puede abrir puertas a interpretaciones que van más allá de la rendición de cuentas de una mera presencia y que, en cambio, permite aproximarnos a un fenómeno generalizado tras del cual se manifiestan, no siempre enmascarados bajo abigarrados palimpsestos, complejos lenguajes en clave simbólica que es preciso desvelar.
Aunque esta suerte de género de escrituras expuestas ofrece innegables similitudes con las que se disponen en la arquitectura doméstica o en ciertos contextos específicos, como los centros de reclusión o las construcciones militares, al menos en lo relativo a los espacios físicos donde estas se despliegan ante los ojos, existen notables divergencias en cuanto a los mensajes que se pretende transmitir, que para el caso de los símbolos grabados en algunos edificios religiosos, permiten diseñar una interpretación no solo en clave ritual, sino como manifestaciones colectivas y transgeneracionales, y un marcado sentido popular que, en ciertos casos, pueden ser llevados a proponer una finalidad propia dentro de las particulares prácticas campesinas tradicionales de esta parte del territorio de la península ibérica.
Se ha tratado de trazar desde una óptica alejada de la clasificación tipológica los posibles caminos que han de seguir las investigaciones futuras sobre estas particulares expresiones de la religiosidad popular, más bien de la “religiosidad local” en palabras de W. Christian, no solo atendiendo a una morfología concreta, sino sobre todo a la ubicación dentro del soporte, a la “repetición de la intensidad” y, especialmente, a los rasgos que permiten encuadrarlos en acciones rituales llevadas a cabo a lo largo del tiempo para unos fines determinados.
Las posibilidades que abre el estudio de estas escrituras populares desde esta óptica son, pues, enormemente extensas, no solo a partir de la propia visibilización de un fenómeno que se encuentra muy generalizado en estos tipos de soportes, sino también por las propias ventanas epistemológicas que las manifestaciones de esta naturaleza pueden abrir a una investigación que autorice mirar con otros ojos unos signos que van más allá de ciertas acciones simbólicas sobre los muros.






