Artículo de investigación
Recepción: 05 Marzo 2020
Aprobación: 12 Julio 2020
DOI: https://doi.org/10.14482/inde.39.1.624.189
Resumen: El ultrasonido ha sido usado desde hace aproximadamente medio siglo para la evaluación de estructuras de concreto, y es a la fecha la técnica no destructiva más utilizada en el mundo. Consiste en la medición del tiempo en la que un pulso de sonido de alta frecuencia atraviesa la masa del material; conociendo la distancia recorrida, se puede obtener la velocidad. Esta técnica se utiliza principalmente para la detección de grietas y la estimación de la resistencia del concreto. El objetivo de este estudio fue observar el efecto de las barras de acero de refuerzo en la velocidad y la variabilidad de la velocidad medida en columnas de tres edificios. Se midió la velocidad en 25 columnas utilizando transductores de onda longitudinal colocados en arreglo directo. En los tres edificios, se obtuvo un rango de velocidades medias de 3.491 a 3.653 m/s en un contexto en el que se utilizaron los mismos materiales y se tuvieron similares niveles de esfuerzo en cada columna. De acuerdo con las velocidades medidas, solo un edificio cumplió con la resistencia de diseño.
Palabras clave: agregados calizos, concreto, evaluación estructural, ultrasonido.
Abstract: Ultrasonic has been used for approximately half a century to evaluate concrete structures, and, it is, to date, the most widely used non-destructive technique in the world. This technique consists of measuring the time in which a high frequency sound pulse crosses the mass of the material; knowing the traveled distance, we can get the velocity. Ultrasonic is mainly used to detect cracks and estimate concrete strength. The aim of the study was to determine the effect of reinforcing steel bars, as well as the variability of the velocity measured in the columns of three buildings. The velocity was measured in twenty-five columns, using longitudinal wave transducers, placed in direct arrangement. The velocity range measured in the three buildings was 3.491 to 3.653 m/s, in a context in which the same materials were used, and the columns had similar levels of stress. According to the tests, only one building complied with design resistance.
Keywords: concrete, limestone aggregates, structural evaluation, ultrasonic.
1. INTRODUCCIÓN
La técnica del ultrasonido consiste en la emisión y recepción de tonos altos de sonido, con frecuencias mayores de 20 kHz, que corresponde al límite audible del ser humano. Sus primeras aplicaciones estuvieron asociadas a la localización acústica de objetivos militares durante las dos grandes guerras del siglo XX [1]. Actualmente tiene muchas aplicaciones en diversos campos, tales como la medicina, la biología, la física, la química, etc.
La utilización del ultrasonido para la evaluación de los materiales tiene la ventaja de que no ocasiona en ellos deterioros que pudieran alterar sus propiedades y desempeño mecánico, lo cual ha hecho que sea la técnica no destructiva más utilizada en el mundo para la evaluación de elementos estructurales [2]. La prueba consiste en medir el tiempo de tránsito de pulsos de ultrasonido a través de la masa del material.
De acuerdo con la teoría de la propagación del sonido, la velocidad en los sólidos es una función que varía en forma directa con la raíz cuadrada del módulo elasticidad y en forma inversa con la raíz cuadrada de la densidad [3]. Es decir que, cuanto más rígido sea un material, sus enlaces moleculares serán más fuertes, lo cual les permitirá a sus partículas, al ser excitadas, regresar más rápido a sus posiciones de equilibrio y vibrar a mayor velocidad; y por otro lado, mientras mayor sea la masa molecular de un material, se necesitará mayor energía para hacerlo vibrar.
La prueba del ultrasonido para la evaluación del concreto fue desarrollada por Leslie y Cheesman [4] e inicialmente utilizada para diagnosticar el estado de las cortinas de presas concreto en Canadá. Sus principales usos incluyen detección de grietas y estimación de las propiedades físicas del material. A partir de este momento, al resultado de la aplicación de esta prueba se le llamará, en forma abreviada, la velocidad.
El equipo utilizado para medir la velocidad a través de un elemento de concreto consiste en un generador de pulso que produce una excitación en un cristal piezoeléctrico montado en un contenedor de acero inoxidable, denominado transductor. La vibración del cristal, en su frecuencia natural, provoca un movimiento vibratorio en el concreto al poner el transductor en contacto con él; según el tipo de transductor, las ondas pueden ser longitudinales (de compresión) o transversales (de cortante). Los pulsos que se van generando son recibidos por un segundo traductor que se coloca en la cara opuesta del elemento, y son convertidos de nueva cuenta a señal eléctrica. El tiempo en microsegundos que toma el pulso en atravesar el elemento de concreto es medido por un circuito electrónico. Conociendo la distancia entre ambos traductores, la velocidad queda determinada por el cociente entre la distancia y el tiempo [5].
Malhotra [6] estableció un criterio general de aceptación del concreto a partir de la medición de la velocidad; de acuerdo con sus investigaciones, los concretos con velocidad superior a 3.660 m/s se pueden considerar como de buen desempeño estructural, mientras que por debajo de este valor de características cuestionables. Sin embargo, diversos estudios de correlación entre la velocidad y la resistencia a la compresión del concreto han dado como resultado la obtención de muchos modelos y criterios diferentes, debido principalmente al carácter compuesto del material [7], [8]. A pesar de lo anterior, el ultrasonido ha sido útil para la evaluación de la calidad del concreto debido a que la pendiente de las curvas de correlación entre la velocidad y la resistencia a compresión es relativamente consistente, entre 0,02 y 0,03 MPa por m/s [9]. La resistencia a la compresión axial será mencionada en adelante, en forma abreviada, como la resistencia.
Algunos de los principales factores que afectan esta correlación están relacionados con la naturaleza de los agregados, la cual hace variar las propiedades elásticas de la fase más abundante del concreto [10]. La influencia del tipo de agregado en la velocidad ha sido estudiada por diferentes investigadores [11], [12]. En la tabla 1, se presentan los rangos de velocidad reportados por [12].
En la región donde se realizó esta investigación, el concreto se fabrica con agregados calizos de alta absorción. Castellanos [13] estudió la correlación entre la velocidad y la resistencia utilizando una muestra de este tipo de agregados y obtuvo un coeficiente de correlación (r) de 0,94, para una curva de ajuste exponencial. Posteriormente, Solís et al [14] obtuvieron una curva de regresión exponencial con una r de 0,82 para concretos preparados con seis muestras de agregados calizos triturados de la misma región; esta menor fuerza en la correlación hizo evidente el efecto de la variabilidad de las propiedades de los agregados, aun cuando estos provengan del mismo tipo de roca.
Otra fuente de variación en la velocidad es el nivel del esfuerzo en el elemento estructural, ya que se ha comprobado que, cuando se producen microagrietamientos en el concreto, se reduce considerablemente la velocidad [15]. También se ha encontrado que la longitud de la ruta del pulso podría influir en la velocidad, por esto se recomienda una longitud mínima de 0,15 m, ya que distancias más pequeñas producen mayores velocidades, debido a que relativamente se tiene menor variabilidad en la estructura del concreto [16].
La mayor influencia en la medición de la velocidad en elementos de concreto armado es la presencia de las barras de refuerzo en las cercanías de la ruta del pulso, ya que la velocidad en el acero es aproximadamente un 50 % mayor que en el concreto. Por lo anterior, es importante, al hacer una evaluación in situ, evitar que la velocidad se vea afectada por la presencia de las barras [17].
El objetivo de este estudio fue evaluar el concreto de columnas con dimensiones y armado estandarizados, por medio de la técnica del ultrasonido. Se observó el efecto de las barras de acero de refuerzo, la variabilidad de la velocidad entre las columnas de un mismo edificio y entre las columnas de tres edificios con diferentes edades, y se estimó la resistencia del concreto.
2. METODOLOGÍA
Se midió la velocidad de pulso ultrasónico in situ en columnas de concreto reforzado de tres edificios de un campus universitario en México. Los edificios estudiados serán mencionados por sus denominaciones originales en el campus: edificios C, J y K.
La unidad de estudio fue el concreto fabricado con agregados calizos triturados de alta absorción de la península de Yucatán. La velocidad se midió siguiendo la norma ASTM C597 - 16 Método de prueba estándar para la velocidad del pulso a través del concreto [18]. Se utilizaron transductores de onda longitudinal de 54 kHz de frecuencia siguiendo el método directo (colocados en forma alineada en lados opuestos de la columna). Las mediciones de la velocidad tuvieron cinco repeticiones y cada valor reportado en el estudio corresponde a la media.
Los edificios estudiados están estructurados por medio de marcos rígidos estandarizados conformados por dos columnas y una viga (con claro central de 8,00 m y con dos extensiones en voladizo de 2,30 m). Los marcos están colocados uniformemente a cada 3,24 m. Los tres edificios tienen un solo piso o planta, por lo que el nivel de esfuerzo en cada columna es similar.
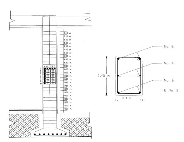
Las columnas de estos edificios tienen las siguientes características comunes: sección de 0,45 x 0,30 m, resistencia de diseño de concreto (f'c) de 250 kg/cm2 (24,5 MPa), acero de refuerzo longitudinal con cuatro barras de 3/4" de diámetro, dos barras adicionales de 1/2" de diámetro, y acero de refuerzo transversal (estribos y grapas) con barras de 3/8" de diámetro, espaciados a 10 cm a todo lo largo de la columna; todo el acero es grado 42. Las características geométricas de las columnas estudiadas se presentan en la figura 1.

En todas las mediciones, se colocaron los transductores en los lados mayores de la sección transversal de la columna, de tal manera que la distancia de recorrido del pulso fue de 0,30 m; de esta forma, las barras de acero longitudinal quedaron perpendiculares a la propagación del sonido.
Se midió la velocidad con tres niveles de detalle, que se describen a continuación. Para observar la influencia del acero de refuerzo, se hicieron mediciones en una porción de una columna elegida al azar del edificio J, que abarcó un área de 0,50 m de alto por 0,45 m de ancho, como se muestra en la figura 1. En esta superficie, se tomaron 70 mediciones en una configuración que fue definida por 7 ejes verticales (A-G) y 10 ejes horizontales (1-10); las medidas se tomaron en las intersecciones de estos ejes.
Las velocidades medidas en esa porción de la columna se agruparon de la siguiente manera: a) las que fueron tomadas en los ejes A y G con influencia del acero de 3A", b) las que fueron tomadas en el eje D con influencia del acero de V2" y c) las que fueron tomadas en los ejes B, C, E y F que fueron consideradas libres de la influencia del refuerzo longitudinal y transversal. Se calculó la media y el coeficiente de variación de la velocidad para los tres grupos. Con las medidas de la velocidad tomadas en esta porción de la columna, se realizó un mapeo que permitió apreciar la influencia de las barras de acero de refuerzo en la velocidad.
Se midió la velocidad en las siete columnas de la fachada norte del edificio J, para observar la variabilidad de la velocidad en estos elementos, los cuales fueron fabricados con los mismos materiales, recursos humanos y procesos constructivos y de supervisión. Se hicieron 24 mediciones por columna, aproximadamente a cada 0,10 m, en ubicaciones libres del acero longitudinal y transversal; para logarlo, se localizó y trazó la ubicación real del acero de refuerzo usando un pacómetro. Con los datos obtenidos, se calculó la media y el coeficiente de variación de la velocidad para cada columna, y también para el total de las 168 mediciones de la velocidad realizadas en este edificio.
Para observar la variabilidad de la velocidad en columnas que fueron fabricadas en diferentes años, por empresas constructoras diferentes, se hicieron mediciones de la velocidad en otros dos edificios del campus: el C y el K. En el primero, se hicieron mediciones en las 11 columnas de la fachada sur y en el segundo en las 7 columnas de la fachada norte. En ambos casos, se hicieron 4 mediciones por columna, aproximadamente a cada 0,80 m, en ubicaciones libres de acero de refuerzo.
Las velocidades medidas en los edificios C y K fueron analizadas junto con las del edificio J, de tal manera que se pudo comparar la velocidad en las columnas de los tres edificios. En el momento del estudio, las edades de los edificios eran de 13, 15 y 16 años, para los edificios K, J y C, respectivamente. Para las velocidades de los tres edificios, se calcularon las medias con sus errores estimados para una confianza del 95 % y sus coeficientes de variación.
Por otro lado, utilizando los modelos de correlación desarrollados por Solís el al. [9] para concretos fabricados con agregados pétreos calizos de la misma región de este estudio, se estimó la resistencia del concreto de cada edificio y se comparó con su f'c.
3. RESULTADOS Y DISCUSIÓN
Influencia del acero de refuerzo
La tabla 2 contiene los resultados que permiten observar la influencia del acero de refuerzo en la velocidad (V) medida en una porción de una columna del edificio J. En esta tabla, se presentan las medias y los coeficientes de variación de las velocidades medidas de acuerdo con las ubicaciones señaladas en la figura 1. Como se explicó en la metodología, para los diferentes ejes verticales (A-G), se generaron trayectorias del pulso ultrasónico con diferentes niveles de influencias de las barras de acero.

En la figura 2, se han graficado los valores de las velocidades medidas en los diez niveles de la columna estudiada (ejes 1-10). En la figura, se puede observar la influencia del acero en la velocidad y la variabilidad en las medidas tomadas en las zonas con diferentes niveles de influencia.

De acuerdo con la literatura, la presencia de acero de refuerzo es el factor que ocasiona la mayor influencia en la velocidad, ya que en este material la velocidad es mucho mayor que en el concreto. De ahí que en los elementos de concreto reforzado la velocidad en las proximidades del acero de refuerzo es, por lo general, más alta que en el concreto simple [19].
Según las medidas tomadas en el edificio J, la razón entre la media de la velocidad en el concreto sin influencia de acero (ejes B, C, E y F) y la media de la velocidad en el concreto en las cercanías de las barras de 3A" (ejes A y G) fue de 0,89 (3.797/4.267), mientras que esta misma razón para el caso de las barras de V2" (eje D) fue de 0,93 (3.797/4.075). De acuerdo con el Manual CRC sobre pruebas no destructivas en el concreto, cuando las barras están en posición perpendicular a la propagación, la razón mencionada puede tomar valores entre 0,75 y 0,99, según la cantidad de acero y de las propiedades del concreto [5].
Cruz et al. [20] estudiaron en laboratorio el efecto del acero de refuerzo de V2" en posición perpendicular a la propagación. De acuerdo con sus datos, la razón entre la media de la velocidad en probetas de concreto simple y la media de la velocidad en las probetas con acero fue de 0,94 (4.052/4.294); este valor es consistente con el que se obtuvo en esta investigación para las barras de V2". Estos autores también reportaron un mayor efecto del acero de refuerzo en la velocidad cuando el pulso se propagó en forma paralela a las barras y resultó una razón de 0,83.
Algunos autores han calculado factores de corrección para la velocidad en el concreto. Cuando la barra está en posición perpendicular a la trayectoria del pulso, el factor de corrección depende de la relación entre la sumatoria de los diámetros de las barras (LS) y la distancia total de propagación del pulso (L); y cuando la barra está paralela al recorrido del pulso, el factor depende de la relación entre la distancia de la barra al recorrido del pulso (a) y la distancia total de propagación (L) [17], [21].
En general, para evitar el efecto de las barras de acero en la velocidad, lo más recomendable es tomar las medidas fuera de las trayectorias del acero, para lo cual es necesario ubicarlas previamente por medio de detección magnética.
Variabilidad de la velocidad en las columnas de un edificio
La tabla 3 contiene los resultados que permiten observar la variabilidad de la velocidad en todas las columnas de una de las fachadas del edificio J. En esta tabla, se presentan las medias y los coeficientes de variación de las medidas tomadas en el concreto libre de la influencia del acero en las siete columnas.

En la figura 3, se han graficado los valores de las velocidades medidas a todo lo alto de cada una de las columnas estudiadas en el edificio J. Utilizando los 168 valores medidos en estas columnas, se calcularon la media y el coeficiente de variación de todo el grupo; los valores de estos estadísticos fueron de 3.797 m/s y 2,82 %, respectivamente.

En esta parte del estudio, en el cual se observó la variabilidad de la velocidad en las columnas de un mismo edificio, se mantuvieron constantes la mayoría de los factores que afectan a la velocidad: el tipo de agregado y la fuente de suministro (calizo de alta absorción), el tipo de cemento (Portland tipo I proveniente de la misma fábrica y lote), la relación entre el agua y el cemento (correspondiente a un f'c de 250 kg/ cm2), los aditivos (no se usaron), la longitud de la ruta del pulso (0,30 m), la edad del concreto (15 años) y la temperatura del ambiente (media de 26 °C).
Bajo estas condiciones de uniformidad, en que las columnas estudiadas fueron fabricadas en forma simultánea por los mismos trabajadores, materiales y procedimientos constructivos, se calculó una media que coincidió con la obtenida en la porción de la columna estudiada con mayor detalle del mismo edificio J (3.797 m/s), y un coeficiente de variación que fue aproximadamente un 1 % mayor que el obtenido en esa porción. Este pequeño incremento en el coeficiente pudiera atribuirse a variadas causas: la variabilidad en la formación de microgrietas derivadas de las cargas [22], la variabilidad espacial de las propiedades físicas y mecánicas del concreto [23] o la presencia accidental del acero, el cual se intentó eludir por medio de su ubicación y trazado superficial.
Variabilidad de la velocidad en columnas de tres edificios
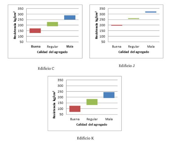
La tabla 4 contiene los resultados que permiten observar la variabilidad de la velocidad en los tres edificios estudiados (C, J y K). En esta tabla, se presentan las medias y los coeficientes de variación de las medidas de la velocidad tomadas en el concreto libre de la influencia del acero en las columnas de los tres edificios. Los valores contenidos en esta tabla representan los estadísticos obtenidos a partir de muestras de diferentes tamaños; como se explicó en la metodología, en los edificios C y K se hicieron menos mediciones que en el edificio J, que fue el que se estudió con mayor detalle.

A partir de los 240 valores medidos en las 25 columnas estudiadas, se calcularon la media y el coeficiente de variación; los valores de estos estadísticos fueron de 3.735 m/s y 4,77 %, respectivamente. En la figura 4, se presenta un gráfico de barras de error de las medias de las velocidades medidas en los tres edificios estudiados.

En esta parte del estudio, en el cual se observó la variabilidad de la velocidad en las columnas de tres edificios, se añadieron los siguientes efectos a los mencionados en la sección anterior: la edad del concreto (13, 15 y 16 años), la posible variación en la relación A/C (atribuible al nivel de control de la fabricación del concreto), la variación en las propiedades y proporciones de los agregados (del mismo origen geológico) y la posible variación en las propiedades del cemento (del mismo tipo I).
Bajo estas condiciones de menor uniformidad en el concreto, se calculó un coeficiente de variación aproximadamente de un 2 % mayor que el que se calculó para las mediciones hechas en las siete columnas del edificio J. Este incremento en la variabilidad pudiera atribuirse a verdaderas diferencias en la calidad del concreto, producto de diferencias en la dosificación de los materiales y en el seguimiento de las prácticas constructivas recomendadas (principalmente de compactación y curado).
Evaluación de la resistencia del concreto
En la ecuación 1, se presenta el modelo desarrollado por Solís et al. [9] a partir del ensayo de 100 mezclas de concreto, fabricadas con agregados calizos de alta absorción, obtenidos de 10 canteras de la misma región de este estudio. Utilizando esta ecuación y las velocidades medidas, se estimaron las siguientes resistencias (R) a la compresión del concreto: 224 kg/cm2 (22,0 Mpa) para el edificio C, 258 kg/cm2 (25,3 Mpa) para el edificio J y 191 kg/cm2 (18,7 Mpa) para el edificio K. Si se comparan estos valores con la f'c de diseño de los edificios estudiados (250 kg/cm2), se podría colegir que solo el concreto del edificio J cumplió con la especificación.

La principal conclusión del citado estudio [9] fue que, para que la velocidad de pulso ultrasónico tome un fuerte poder de predicción sobre la resistencia del concreto, la velocidad se debería combinar con otra variable que incluya información sobre las propiedades físicas de los agregados utilizados. La ecuación 2 corresponde a un modelo que fue desarrollado en ese estudio [9], el cual incluye una variable IC, que representa un índice de calidad de los agregados. De acuerdo con ese estudio, los agregados provenientes de las 10 canteras tuvieron un rango de IC de 6 a 8, este último valor es el que corresponde a la mejor calidad esperada en este tipo de agregados triturados de roca caliza de alta absorción. Conforme a este modelo, los concretos con igual nivel de velocidad tendrán menores resistencias, mientras mejor sea la calidad del agregado (mayor IC).

En la tabla 5, se muestran los resultados de aplicar la ecuación 2 a las velocidades medias obtenidas en cada edificio de este estudio. En esta tabla, se han considerado tres posibles valores del IC de los agregados, que corresponderían a calidades baja (6), media (7) y alta (8). Con estos valores se han calculado la resistencia y sus porcentajes respecto de la f'c (250 kg/cm2).

A partir de la tabla 5, se podría afirmar de manera inductiva que los concretos del edificio C podrían haber cumplido con la f'c si hubieran sido fabricados con agregados que tuvieran un IC de 6; los concretos del edificio J podrían haber cumplido con la f'c, si hubieran sido fabricados con agregados que tuvieran un IC de 6 o 7, y los concretos del edificio K bajo ningún supuesto sobre la calidad del agregado podrían haber cumplido con la f'c. Es pertinente hacer la observación de que la velocidad más alta medida en el edificio K fue de 3.595 m/s, que, combinada con el valor más favorable de IC (6), permite estimar una resistencia de 252 K/cm2 (aproximadamente el f'c).
En la figura 5, se presentan los intervalos de resistencia, con un 95 % de confianza, calculados para los concretos de las columnas de los tres edificios, en consideración a los márgenes de error de las medias (figura 3).

CONCLUSIONES
Para poder dar una acertada opinión sobre la calidad del concreto en estructuras de concreto reforzado, es importante identificar la ubicación exacta de las barras de refuerzo y hacer las mediciones de la velocidad en el concreto libre de influencia del acero.
También se debe considerar la calidad del agregado utilizado para poder hacer una correcta interpretación de la velocidad y a partir de esta obtener un estimado aceptable de la resistencia a la compresión del concreto.
El rango entre las velocidades medias medidas en el estudio estuvo entre 3.491 y 3.653 m/s, lo cual representa una variabilidad de aproximadamente un 10 % (respecto del menor valor). De acuerdo con estas velocidades, se estimó probable que en dos de los tres edificios no se haya cumplido con la resistencia de diseño.
REFERENCIAS
[1] J. A. Gallego-Juárez, "Piezoelectric ceramics and ultrasonic transducers", J. Phys. E: Sci. Instrum., vol. 22, no. 10, pp. 804-817, 1989. http://doi.org/10.1016/B978-1-78242-0286.00005-3
[2] B. Drinkwater y P. Wilcox, "Ultrasonic arrays for non-destructive evaluation: a review", NDT & E International, vol. 39, no. 7, pp. 525-541, oct. 2006. http://doi.org/10.1016/j.ndteint.2006.03.006
[3] J. L. Rose, Ultrasonic waves in solid media. Cambridge: Cambridge University Press, 2000.
[4] J. R. Leslie y W. J. Cheesman , "An ultrasonic method of studying deterioration and cracking in concrete structures", J. Am. Concr. Inst., vol. 21, no. 1, pp. 17-36, 1949.
[5] T. Naik, V. Malhotra y J. Popovics, "The ultrasonic pulse velocity method", en Handbook on Nondestructive Testing of Concrete, 2.a ed. Boca Raton: CRC Press, 2003.
[6] V. M. Malhotra, Testing hardened concrete: nondestructive methods. Detroit: American Concrete Institute, 1976.
[7] D. A. Anderson y R. K. Seals, "Pulse velocity as a predictor of 28-and 90-day strength", Journal Proceedings, vol. 78, no. 2, pp. 116-122, 1981.
[8] V. R. Sturrup, F. J. Vecchio y H. Caratin, "Pulse velocity as a measure of concrete compressive strength", ACISpecial Publication, no. 82, pp. 201-228, 1984.
[9] R. Solís-Carcaño y E. I. Moreno, "Evaluation of concrete made with crushed limestone aggregate based on ultrasonic pulse velocity, Constr. Build. Mater., vol. 22, no. 6, pp. 1225-1231, en. 2008. http://doi.org/10.1016/j.conbuildmat.2007.01.014
[10] R. S. Jenkings, "Nondestructive testing: an evaluation tool", Concrete International, vol. 7, no. 2, pp. 22-26, 1985.
[11] M. Molero, I. Segura, S. Aparicio y J. V. Fuente, "Influence of aggregates and air voids on the ultrasonic velocity and attenuation in cementitious materials", Eur. J. Environ. Civ. Eng., vol. 15, no. 4, pp. 501-517, oct. 2011. http://doi.org/10.1080/19648189.2011.969 3343
[12] I. Fâcâoaru, "Non-destructive testing of concrete in Romania", en Non-destructive testing of concrete and timber. Londres: Thomas Telford, 1970, pp. 39-49.
[13] G. Castellanos, "Aplicacionesdelmétodo de velocidaddepulso ultrasónico correlacionado con la resistencia a la compresión para evaluar la calidad del concreto hidráulico", Tesis de maestría, Universidad Autónoma de Yucatán, Mérida, México, 1985.
[14] R. G. Solís Carcaño, É. I. Moreno y W. R. Castillo Pak, "Predicción de la resistencia del concreto con base en la velocidad de pulso ultrasónico y un índice de calidad de los agregados", Ingeniería, vol. 8, no. 2, pp. 41-52, 2004.
[15] T. T. Wu y T. F. Lin, "The stress effect on the ultrasonic velocity variations of concrete under repeated loading", Materials Journal, vol. 95, no. 5, pp. 519-524, 1998.
[16] R. Jones, Non-destructive testing of concrete. Cambridge: Cambridge University Press, 1962.
[17] J. H. Bungey, "The influence of reinforcement on ultrasonic pulse velocity testing". ACI Special Publication, no. 82, pp. 229-246, 1984.
[18] ASTM C597 - 16, Standard Test Method for Pulse Velocity Through Concrete. West Conshohocken: ASTM International, 2016.
[19] R. Pucinotti, L. Hinterholz, A. D'Elia y R. De Lorenzo, "Influence of steel reinforcement on ultrasonic pulses velocity", en 4th International Conference on NDT, Creta, Grecia, 2007.
[20] R. Cruz, L. Quintero y J. Herrera, "Evaluación del efecto de barras de refuerzo en concreto sobre las medidas de velocidad de pulso ultrasónico (VPU)", Revista Colombiana de Materiales, no. 5, pp. 107-113, 2014.
[21] H. W. Chung, "Effects of embedded steel bars upon ultrasonic testing of concrete", Magazine of Concrete Research, vol. 30, no. 102, pp. 19-25, mzo. 1978. http://doi.org/10.1680/macr.1978.30.102.19
[22] A. Masi y L. Chiauzzi, "An experimental study on the within-member variability of in situ concrete strength in RC building structures", Constr. Build. Mater., vol. 47, pp. 951961, oct. 2013. http://doi.org/10.1016/j.conbuildmat.2013.05.102
[23] N. Nguyen, Z. Sbartaï, J. Lataste, D. Breysse y F. Bos, "Assessing the spatial variability of concrete structures using NDT techniques: laboratory tests and case study", Constr.Build. Mater., vol. 49, pp. 240-250, dic. 2013. http://doi.org/10.1016/j.conbuildmat.2013.08.011